👉 Odbierz prezent 🎁

Dom murowany Eco 1

HPE1006

Dodaj

Dodano!

Porównaj

Dodano!

Drukuj

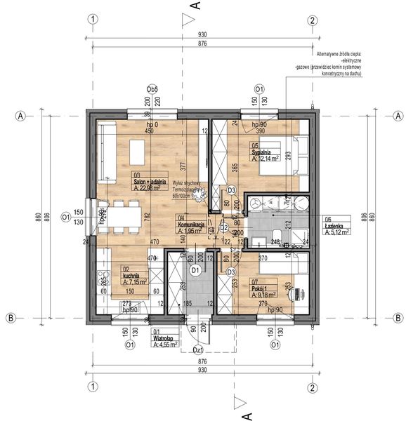
Rzut parteru

Powierzchnia (m²)
Tooltip
Powierzchnia pomieszczenia
to ta, z której faktycznie możesz korzystać – skosy i niskie części poddasza są liczone częściowo lub wcale.
  1. 100% dla wysokości powyżej 2,2 m,
  2. 50% dla wysokości 1,4–2,2 m,
  3. nie liczymy poniżej 1,4 m.

Powierzchnia podłogi
Liczymy po obrysie pomieszczenia, bez względu na jego wysokość/skosy. Jeśli nie ma skosów to powierzchnia podłogi i pomieszczenia jest taka sama.
pomieszczenia
podłogi
1. Wiatrołap
4,55
4,68
2. Kuchnia
7,15
7,23
3. Pokój dzienny + jadalnia
22,98
23,27
4. Korytarz
1,95
1,99
5. Pokój
12,14
12,36
6. Łazienka
5,12
5,26
7. Pokój
9,18
9,36
Razem
63,07
64,15

Pow. użytkowa

63,07 m²

Pow. zabudowy

79,80 m²

Pokoje

2

Łazienki i WC

1

Garaż

0

Kąt dachu

30°

Min. szer. i dł. działki:

16,30 m x 17,60 m

Technologia

Murowana

więcej

Dom wycofany z oferty

W razie pytań prosimy o kontakt z doradcą. Polecamy zobaczyć podobne domy gotowe.

Wolne terminy!
Umów wizytę w
domu pokazowym
  • Jak wygląda proces budowy?
  • Ile trwa budowa i jakie terminy są dostępne?
  • Jak się mieszka w takim domu!

Zobacz podobne domy gotowe

1

/

3

Zdjęcie Bergen 70
Bergen 70
Dodano!
Dodano!
Pow. użytkowa
72,05 m²
Pow. zabudowy
91,82 m²
Pokoje
3
369 000 zł 5 121 zł/m²
Bez pozwolenia
Zdjęcie Dom prefabrykowany DH70-1
Dom prefabrykowany DH70-1
Dodano!
Dodano!
Pow. użytkowa
64,87 m²
Pow. zabudowy
65,97 m²
Pokoje
2
540 864 zł 8 338 zł/m²
Bez pozwolenia
Zdjęcie Dom szkieletowy Mezzanine Smart 50
Pow. użytkowa
61,13 m²
Pow. zabudowy
50 m²
Pokoje
1
324 700 zł 5 346 zł/m²
Bez pozwolenia
Zdjęcie Dom prefabrykowany DH70-2
Dom prefabrykowany DH70-2
Dodano!
Dodano!
Pow. użytkowa
66,43 m²
Pow. zabudowy
69,66 m²
Pokoje
3
557 820 zł 8 397 zł/m²
Bez pozwolenia
Zdjęcie Dom szkieletowy Zen Smart 50
Pow. użytkowa
58,79 m²
Pow. zabudowy
46,75 m²
Pokoje
3
350 201 zł 5 957 zł/m²
Bez pozwolenia
Zdjęcie Dom szkieletowy Family Smart 50
Pow. użytkowa
67,67 m²
Pow. zabudowy
50 m²
Pokoje
3
385 800 zł 5 701 zł/m²
Bez pozwolenia
Zdjęcie Dom szkieletowy Vista Smart 80
Pow. użytkowa
69,20 m²
Pow. zabudowy
55,20 m²
Pokoje
3
390 830 zł 5 648 zł/m²
Bez pozwolenia
Zdjęcie Dom szkieletowy One Step Smart 70
Pow. użytkowa
55,49 m²
Pow. zabudowy
70 m²
Pokoje
2
342 468 zł 6 172 zł/m²
Bez pozwolenia
Zdjęcie Dom prefabrykowany DH60
Dom prefabrykowany DH60
Dodano!
Dodano!
Pow. użytkowa
55,13 m²
Pow. zabudowy
69,47 m²
Pokoje
2
347 868 zł 6 310 zł/m²
Bez pozwolenia
Zdjęcie Dom szkieletowy Space Smart 70
Pow. użytkowa
55 m²
Pow. zabudowy
70 m²
Pokoje
3
311 040 zł 5 655 zł/m²
Bez pozwolenia
Zdjęcie Dom szkieletowy Edge Smart 90
Pow. użytkowa
71,68 m²
Pow. zabudowy
66,67 m²
Pokoje
3
452 995 zł 6 320 zł/m²
Bez pozwolenia
Zdjęcie Dom prefabrykowany DH47 + przedsionek
Pow. użytkowa
53,72 m²
Pow. zabudowy
58,28 m²
Pokoje
2
459 540 zł 8 554 zł/m²
RZUTY

Rozmieszczenie
pomieszczeń

Parter - 63,07 m²

Parter projektu Dom murowany Eco 1
Powierzchnia (m²)
Tooltip
Powierzchnia pomieszczenia
to ta, z której faktycznie możesz korzystać – skosy i niskie części poddasza są liczone częściowo lub wcale.
  1. 100% dla wysokości powyżej 2,2 m,
  2. 50% dla wysokości 1,4–2,2 m,
  3. nie liczymy poniżej 1,4 m.

Powierzchnia podłogi
Liczymy po obrysie pomieszczenia, bez względu na jego wysokość/skosy. Jeśli nie ma skosów to powierzchnia podłogi i pomieszczenia jest taka sama.
pomieszczenia
podłogi
1. Wiatrołap
4,55
4,68
2. Kuchnia
7,15
7,23
3. Pokój dzienny + jadalnia
22,98
23,27
4. Korytarz
1,95
1,99
5. Pokój
12,14
12,36
6. Łazienka
5,12
5,26
7. Pokój
9,18
9,36
Razem
63,07
64,15

Podoba Ci się dom, ale chciałbyś dokonać pewnych zmian?

  • Możesz zmienić kolor i materiał elewacji
  • Możesz zmienić funkcję i układ pomieszczeń
Konsultant

Skontaktuj się z nami - przygotujemy bezpłatną ofertę dla Ciebie

71 718 89 70

pon.-pt. 08:00 - 19:00

PODSTAWOWE INFORMACJE

Murowany dom energooszczędny

icon
Technologia murowana
icon
Gwarancja: 5 lat rękojmi
icon
Realizacja w 6-9 m-cy
icon
Dom parterowy
ZAKRES REALIZACJI DO WYBORU

Wybierz wariant dopasowany do Twoich potrzeb

Zakres podstawowy

Jeżeli szukasz ekonomicznego rozwiązania, wybierz dom w stanie deweloperskim w podstawowym standardzie energooszczędnym i podstawowej wersji wykończenia budynku.

Zakres PODSTAWOWY:

  • ściany zewnętrzne i wewnętrzne z betonu komórkowego,
  • konstrukcja dachu z drewnianych wiązarów,
  • pokrycie dachu dachówką betonową, falistą,
  • podstawowy montaż okien,
  • okna 3-szybowe, 6-komorowe PVC, profile białe,
  • drzwi wejściowe energooszczędne,
  • instalacja elektryczna,
  • instalacja wodno-kanalizacyjna,
  • instalacja CO – ogrzewanie elektryczne, podłogowe,
  • wentylacja mechaniczna – rekuperacja,
  • tynki wewnętrzne,
  • sufity z płyt g-k,
  • posadzka cementowa z izolacją styropianem,
  • elewacja – 15 cm styropianu grafitowego,
  • wykończenie elewacji – biały tynk,
  • wybudowanie domu na działce.

Opcje dodatkowe:

  • źródło ciepła,
  • fotowoltaika.
Dom murowany Eco 1 - HPE1006
Zakres rozszerzony

Opcja dla tych, którzy szukają domu w stanie deweloperskim o podwyższonym standardzie energooszczędności i chcą dopasować wygląd domu do swoich oczekiwań.

Wariant ROZSZERZONY obejmuje ten sam zakres prac, ale różni się od PODSTAWOWEGO standardem i sposobem wykończenia następujących elementów:

  • pokrycie dachu: dachówka betonowa, płaska (podstawowy: dachówka falista),
  • okna 3-szybowe, 6-komorowe PVC, profile okleinowane zewnętrznie (podstawowy: profile białe),
  • warstwowy montaż okien z ciepłymi parapetami i klinarytami (zamiast podstawowego montażu bez ciepłych parapetów i klinarytów),
  • elewacja – 15 cm styropianu grafitowego (podstawowy: 10 cm),
  • wykończenie elewacji – biały tynk, imitacja deski (podstawowy: biały tynk).
Dom murowany Eco 1 - HPE1006

Analiza działki

Czy ten dom pasuje na Twoją działkę? Chętnie to sprawdzimy!

  • Czy wybrany dom zmieści się na Twojej działce?
  • Czy spełnia parametry wg MPZT lub WZ?
TECHNOLOGIA I KONSTRUKCJA

Energooszczędny dom murowany

Niskoenergetycznie i ekonomiczne domy murowane

Technologia murowana ulepszona jest najpowszechniejszą technologią stawiania domów w Polsce. Do budowy, zamiast cegieł, wykorzystuje się bloczki i elementy prefabrykowane (np. nadproża, schody). 

Dzięki doświadczeniu i zgraniu ekipy budowlanej nawet domy murowane można stawiać w krótszym czasie – bez opóźnień i niespodzianek. Dzięki przemyślanym rozwiązaniom konstrukcyjnym można zoptymalizować koszty budowy.

Dom murowany Eco 1 - HPE1006
Konstrukcja

Ściany zewnętrzne wykonane są z bloczków z betonu komórkowego 24 cm, a ściany wewnętrzne działowe z bloczków 12 cm. Technologia murowana nie wymaga stosowania ciężkiego sprzętu, dlatego taki dom można postawić praktycznie wszędzie.

Efektywne ocieplenie ścian (styropian grafitowy 15 cm), dachu i podłóg oraz rekuperacja w standardzie pozwalają osiągnąć wysokie parametry energooszczędności.
 

Dom murowany Eco 1 - HPE1006
Fundamenty

W celu optymalizacji kosztów budowy domyślnym rodzajem stosowanego fundamentu są ławy fundamentowe. Zapewniają odpowiednią nośność przy standardowych gruntach i nadają się do stawiania domów w technologii murowanej. Nie wymagają też specjalistycznego sprzętu.

Płyta fundamentowa zapewnia większą stabilność konstrukcji i stanowi jednocześnie izolację termiczną od dołu, poprawiając efektywność energetyczną domu. Eliminuje potrzebę wykonywania głębokich wykopów.
 

Dom murowany Eco 1 - HPE1006
Dach i stropy

Konstrukcję dachu wykonuje się z drewnianych wiązarów, a standardowe pokrycie stanowi dachówka betonowa.

Strop drewniany na dolnym pasie wiązara jest ocieplony i zamknięty płytami G-K. 
 

Dom murowany Eco 1 - HPE1006
Nowoczesny dom – niższe rachunki

Dom zaprojektowane z myślą o energooszczędności i komforcie codziennego użytkowania. Przemyślana izolacja, nowoczesna stolarka oraz wentylacja z rekuperacją zapewniają optymalny mikroklimat przez cały rok i realne oszczędności w eksploatacji.

To idealne rozwiązanie dla osób, które szukają nowoczesnego, ekonomicznego i przyjaznego środowisku domu.

Dom murowany Eco 1 - HPE1006
Dane techniczne

Specyfikacja

Powierzchnie i wymiary Powierzchnie i wymiary

Powierzchnia użytkowa
Tooltip
Suma powierzchni wszystkich pomieszczeń mieszkalnych, pomniejszona o pow. garażu, kotłowni, strychu, piwnicy. Jest liczona w 100% dla pomieszczeń o wysokości powyżej 2,2 m, w 50% dla pomieszczeń o wys. 2,2-1,4 m i niewliczana dla niższych niż 1,4 m.

63,07 m²

Powierzchnia zabudowy
Tooltip
Powierzchnia zajmowana przez część na- oraz nadziemną budynku liczona, jako rzut pionowy budynku na działkę.

79,80 m²

Powierzchnia całkowita
Tooltip
Całkowita powierzchnia wszystkich kondygnacji budynku łącznie z elementami nośnymi, takimi jak ściany zewnętrzne (z ociepleniem), słupy, tarasy, itp.

79,80 m²

Kubatura brutto
Tooltip
Zazwyczaj jest to suma kubatur (objętości) wszystkich pomieszczeń budynku, liczonych po zewnętrznym obrysie murów (z ociepleniem).

350,70 m³

Powierzchnia dachu

92,26 m²

Kąt nachylenia dachu
Tooltip
Nachylenie połaci dachu głównego podawane w stopniach. Uwaga! W niektórych projektach występuje więcej niż jedno nachylenie dachu.

30°

Wysokość budynku
Tooltip
Wysokość liczona od części budynku położonej najniżej przy powierzchni terenu do najwyższego punktu dachu (kalenicy) z wyłączeniem kominów.

5,94 m

Szerokość elewacji

9,30 m

Długość elewacji

8,60 m

Min. szerokość działki
Tooltip
Najmniejsza możliwa szerokość działki niezbędna do wybudowania wybranego domu. Składa się z szerokości elewacji domu powiększonej z obu stron o 3 m dla ściany bez otworów drzwiowych/okiennych lub 4 m, dla ściany z otworami.

16,30 m

Min. długość działki
Tooltip
Najmniejsza możliwa długość działki niezbędna do wybudowania wybranego domu. Składa się z długości elewacji domu powiększonej z obu stron o 3 m dla ściany bez otworów drzwiowych/okiennych lub 4 m, dla ściany z otworami.

17,60 m

Energooszczędność Energooszczędność

Ep
Tooltip
Energia pierwotna określa ilość energii nieodnawialnej potrzebnej w ciągu roku do ogrzewania czy też ogrzania wody użytkowej z uwzględnieniem kosztów produkcji i transportu surowców energetycznych.

69,33 kWh/(m²rok)

Ek
Tooltip
Energia końcowa określa zapotrzebowanie budynku na energię niezbędną do uzyskania założonych parametrów, jak np. temperatura wewnątrz budynku.

67,49 kWh/(m²rok)

Euco
Tooltip
Energia użytkowa potrzebna do ogrzewania i wentylacji. Im parametr jest niższy tym budynek bardziej energooszczędny.

22,90 kWh/(m²rok)

Ogrzewanie

elektryczne

Wentylacja

mechaniczna

Technologia i materiały Technologia i materiały

Posadowienie budynku

ława fundamentowa

Ściany zewnętrzne

beton komórkowy 24 cm

Ściany wewnętrzne

beton komórkowy 12 cm

Strop nad parterem

wiązary

Konstrukcja dachu

drewniana

Pokrycie dachu

dachówka betonowa

Elewacja

tynk

DOMY GOTOWE

Zbuduj swój dom w 3 prostych krokach

Wybierasz dom,
przygotowujemy ofertę

Konfigurujemy i tworzymy dla Ciebie bezpłatną ofertę. Pomagamy w weryfikacji działki.

Podpisujesz umowę, rusza produkcja

Podpisujesz umowę z naszym partnerem na produkcję i montaż Twojego domu. Nie martwisz się o terminy i znasz koszty budowy.

Ciesz się swoim domem

W zależności od wybranej technologii budowy, Producent albo przywiezie gotowe elementy na Twoją działkę, albo – w przypadku metody murowanej - rozpocznie proces budowy domu od podstaw. Tobie pozostaną już tylko wewnętrzne prace wykończeniowe.

Dom w 3 krokach

NIE CZEKAJ DŁUŻEJ!

Pomożemy Ci zrealizować marzenie o domu - nawet w 3 miesiące!

Ikona zadzwoń

Zadzwoń

71 71 88 970

pon.-pt. 8:00-19:00

Zadzwoń teraz
Ikona list

Napisz do nas:

domygotowe@extradom.pl
lub
Wolne terminy!

Zobacz na żywo nasz gotowy dom!

Zanim podejmiesz decyzję, spotkaj się z nami na budowie i zobacz, jak realizowana jest taka inwestycja. Dzięki temu:

  • Dowiesz się, jak wygląda budowa i efekt finalny.
  • Skonsultujesz swoje pomysły z naszym ekspertem

Zobacz podobne domy gotowe

1

/

3

Zdjęcie Bergen 70
Bergen 70
Dodano!
Dodano!
Pow. użytkowa
72,05 m²
Pow. zabudowy
91,82 m²
Pokoje
3
369 000 zł 5 121 zł/m²
Bez pozwolenia
Zdjęcie Dom prefabrykowany DH70-1
Dom prefabrykowany DH70-1
Dodano!
Dodano!
Pow. użytkowa
64,87 m²
Pow. zabudowy
65,97 m²
Pokoje
2
540 864 zł 8 338 zł/m²
Bez pozwolenia
Zdjęcie Dom szkieletowy Mezzanine Smart 50
Pow. użytkowa
61,13 m²
Pow. zabudowy
50 m²
Pokoje
1
324 700 zł 5 346 zł/m²
Bez pozwolenia
Zdjęcie Dom prefabrykowany DH70-2
Dom prefabrykowany DH70-2
Dodano!
Dodano!
Pow. użytkowa
66,43 m²
Pow. zabudowy
69,66 m²
Pokoje
3
557 820 zł 8 397 zł/m²
Bez pozwolenia
Zdjęcie Dom szkieletowy Zen Smart 50
Pow. użytkowa
58,79 m²
Pow. zabudowy
46,75 m²
Pokoje
3
350 201 zł 5 957 zł/m²
Bez pozwolenia
Zdjęcie Dom szkieletowy Family Smart 50
Pow. użytkowa
67,67 m²
Pow. zabudowy
50 m²
Pokoje
3
385 800 zł 5 701 zł/m²
Bez pozwolenia
Zdjęcie Dom szkieletowy Vista Smart 80
Pow. użytkowa
69,20 m²
Pow. zabudowy
55,20 m²
Pokoje
3
390 830 zł 5 648 zł/m²
Bez pozwolenia
Zdjęcie Dom szkieletowy One Step Smart 70
Pow. użytkowa
55,49 m²
Pow. zabudowy
70 m²
Pokoje
2
342 468 zł 6 172 zł/m²
Bez pozwolenia
Zdjęcie Dom prefabrykowany DH60
Dom prefabrykowany DH60
Dodano!
Dodano!
Pow. użytkowa
55,13 m²
Pow. zabudowy
69,47 m²
Pokoje
2
347 868 zł 6 310 zł/m²
Bez pozwolenia
Zdjęcie Dom szkieletowy Space Smart 70
Pow. użytkowa
55 m²
Pow. zabudowy
70 m²
Pokoje
3
311 040 zł 5 655 zł/m²
Bez pozwolenia
Zdjęcie Dom szkieletowy Edge Smart 90
Pow. użytkowa
71,68 m²
Pow. zabudowy
66,67 m²
Pokoje
3
452 995 zł 6 320 zł/m²
Bez pozwolenia
Zdjęcie Dom prefabrykowany DH47 + przedsionek
Pow. użytkowa
53,72 m²
Pow. zabudowy
58,28 m²
Pokoje
2
459 540 zł 8 554 zł/m²

Graficzne opracowanie rzutów poglądowych widocznych na karcie projektu zostało wykonane przez Extradom.pl. Prezentowane przez Extradom.pl wizualizacje wykonane zostały przez autora projektu i należy poczytywać je jedynie za przykład i propozycję wykończenia, wizję architektoniczną autora projektu. Ostateczne wykończenie budynku może nastąpić na wiele sposobów. Szczegółowe rozwiązania zastosowane w oferowanej dokumentacji - w tym również ilość, lokalizacje i wygląd okien, drzwi, kominów - mogą w niewielkim stopniu różnić się od prezentowanej wizualizacji budynku.

Extradom.pl Spółka z ograniczoną odpowiedzialnością z siedzibą przy ul. Jaworskiej 13, 53-612 Wrocław, wpisana do rejestru przedsiębiorców Krajowego Rejestru Sądowego przez Sąd Rejonowy dla Wrocławia-Fabrycznej we Wrocławiu, VI Wydział Gospodarczy Krajowego Rejestru Sądowego do pod numerem KRS 0000648746, numer NIP 895-17-18-333, o kapitale zakładowym 708 150,00 zł uprzejmie informuje, iż poprzez serwis Extradom.pl umożliwia m.in. zapoznanie się przez konsumentów z ofertą handlową Partnerów Extradom.pl, którzy stosują metody budowy domów przy wykorzystaniu różnego rodzaju technologie prefabrykacji bądź modułowe (tzw. „Gotowe domy”).

Extradom.pl nie prowadzi jednakże sprzedaży ani nie oferuje usług polegających na doradztwie finansowym, prawnym ani podatkowym w zakresie inwestycji realizowanych w technologiach tzw. „Gotowych domów”. Informacje prezentowane w serwisie Extradom.pl dotyczące Partnerów Extradom.pl oferujących realizację inwestycji w technologiach „Gotowych domów” lub podobnych mają charakter informacyjny i reklamowy.

Prezentowane w serwisie Extradom.pl informacje dotyczące stosowanych przez Partnerów metod budowy domów w technologii prefabrykacji bądź modułowej pochodzą od Partnerów Extradom.pl.

Extradom.pl sp. z o.o. jedynie umożliwia nawiązanie kontaktu przez Użytkownika z Partnerem Extradom.pl stosującym tego rodzaju technologie budowy domów i nie jest stroną umowy o roboty budowlane zawieranej przez Użytkownika Extradom.pl z Partnerem Extradom.pl.

REKLAMA
Zamknij