Projekty nawet 500 zł taniej ❄️

Koniec oferty za:

0dni

00godz.

00min.

00sek.

Sprawdź

Dom prefabrykowany DH70-2

HDH1005

Dodaj

Dodano!

Porównaj

Dodano!

Drukuj

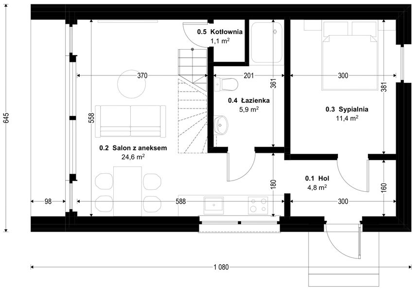
Rzut parteru

Powierzchnia (m²)
Tooltip
Powierzchnia pomieszczenia
to ta, z której faktycznie możesz korzystać – skosy i niskie części poddasza są liczone częściowo lub wcale.
  1. 100% dla wysokości powyżej 2,2 m,
  2. 50% dla wysokości 1,4–2,2 m,
  3. nie liczymy poniżej 1,4 m.

Powierzchnia podłogi
Liczymy po obrysie pomieszczenia, bez względu na jego wysokość/skosy. Jeśli nie ma skosów to powierzchnia podłogi i pomieszczenia jest taka sama.
pomieszczenia i podłogi
podłogi
1. Hall
4,80
2. Pokój dzienny + kuchnia
24,60
3. Łazienka
5,90
4. Pokój
11,40
5. Kotłownia
1,10
Razem
47,80
47,80
Powierzchnia (m²)
Tooltip
Powierzchnia pomieszczenia
to ta, z której faktycznie możesz korzystać – skosy i niskie części poddasza są liczone częściowo lub wcale.
  1. 100% dla wysokości powyżej 2,2 m,
  2. 50% dla wysokości 1,4–2,2 m,
  3. nie liczymy poniżej 1,4 m.

Powierzchnia podłogi
Liczymy po obrysie pomieszczenia, bez względu na jego wysokość/skosy. Jeśli nie ma skosów to powierzchnia podłogi i pomieszczenia jest taka sama.
pomieszczenia
podłogi
1. Antresola
6,26
9,49
2. Pokój
6,19
9,50
3. Pokój
6,19
9,50
Razem
18,64
28,49

Pow. użytkowa

66,44 m²

Pow. zabudowy

69,70 m²

Pokoje

3

Łazienki i WC

1

Garaż

0

Kąt dachu

45°

Min. szer. i dł. działki:

13,45 m x 18,80 m

Technologia

Prefabrykat drewniany

więcej

Cena
Tooltip

8% VAT dla klienta
indywidualnego, 23% VAT dla
firmy. Cena za metr wyliczana
na podstawie powierzchni netto
lub powierzchni użytkowej.

Brutto
Netto
Cena
Tooltip

8% VAT dla klienta
indywidualnego, 23% VAT dla
firmy. Cena za metr wyliczana
na podstawie powierzchni netto
lub powierzchni użytkowej.

Brutto
Netto
Stan deweloperski
Tooltip

Szczegóły zakresu podstawowego znajdziesz
w opisie.

433 080 zł

5 678 zł/m²

Skonfiguruj dom

Skonfiguruj dom

Fundamenty

od 33 990 zł

Źródło ciepła

od 14 256 zł

Fotowoltaika

od 34 020 zł

Wolne terminy!
Umów wizytę w
domu pokazowym
  • Jak wygląda proces budowy?
  • Ile trwa budowa i jakie terminy są dostępne?
  • Jak się mieszka w takim domu!
RZUTY

Rozmieszczenie
pomieszczeń

Parter - 47,80 m²

Wymiary wewnętrzne

Powierzchnie pomieszczeń

Oznaczenia na rzutach

Lodówka

Suszarka

Zmywarka

Suszarka nad pralką

Kuchenka

Pralka

Piekarnik

Szafa

Kocioł

Pompa ciepła

Kominek

Rekuperacja

Szerokość stolarki
Wysokość stolarki

Legenda Zobacz oznaczenia użyte na rzutach

Powierzchnia (m²)
Tooltip
Powierzchnia pomieszczenia
to ta, z której faktycznie możesz korzystać – skosy i niskie części poddasza są liczone częściowo lub wcale.
  1. 100% dla wysokości powyżej 2,2 m,
  2. 50% dla wysokości 1,4–2,2 m,
  3. nie liczymy poniżej 1,4 m.

Powierzchnia podłogi
Liczymy po obrysie pomieszczenia, bez względu na jego wysokość/skosy. Jeśli nie ma skosów to powierzchnia podłogi i pomieszczenia jest taka sama.
pomieszczenia i podłogi
podłogi
1. Hall
4,80
2. Pokój dzienny + kuchnia
24,60
3. Łazienka
5,90
4. Pokój
11,40
5. Kotłownia
1,10
Razem
47,80
47,80

Oznaczenia na rzutach

Lodówka

Suszarka

Zmywarka

Suszarka nad pralką

Kuchenka

Pralka

Piekarnik

Szafa

Kocioł

Pompa ciepła

Kominek

Rekuperacja

Szerokość stolarki
Wysokość stolarki

Legenda Zobacz oznaczenia użyte na rzutach

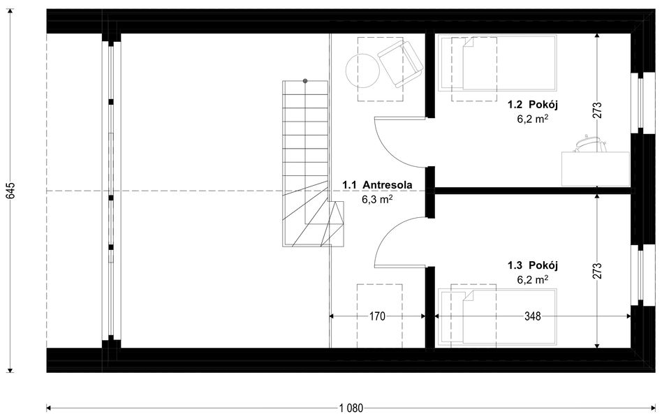
Poddasze - 18,64 m²

Wymiary wewnętrzne

Powierzchnie pomieszczeń

Oznaczenia na rzutach

Lodówka

Suszarka

Zmywarka

Suszarka nad pralką

Kuchenka

Pralka

Piekarnik

Szafa

Kocioł

Pompa ciepła

Kominek

Rekuperacja

Szerokość stolarki
Wysokość stolarki

Legenda Zobacz oznaczenia użyte na rzutach

Powierzchnia (m²)
Tooltip
Powierzchnia pomieszczenia
to ta, z której faktycznie możesz korzystać – skosy i niskie części poddasza są liczone częściowo lub wcale.
  1. 100% dla wysokości powyżej 2,2 m,
  2. 50% dla wysokości 1,4–2,2 m,
  3. nie liczymy poniżej 1,4 m.

Powierzchnia podłogi
Liczymy po obrysie pomieszczenia, bez względu na jego wysokość/skosy. Jeśli nie ma skosów to powierzchnia podłogi i pomieszczenia jest taka sama.
pomieszczenia
podłogi
1. Antresola
6,26
9,49
2. Pokój
6,19
9,50
3. Pokój
6,19
9,50
Razem
18,64
28,49

Oznaczenia na rzutach

Lodówka

Suszarka

Zmywarka

Suszarka nad pralką

Kuchenka

Pralka

Piekarnik

Szafa

Kocioł

Pompa ciepła

Kominek

Rekuperacja

Szerokość stolarki
Wysokość stolarki

Legenda Zobacz oznaczenia użyte na rzutach

Podoba Ci się dom, ale chciałbyś dokonać pewnych zmian?

  • Możesz zmienić kolor i materiał elewacji
  • Możesz zmienić funkcję i układ pomieszczeń
Konsultant

Skontaktuj się z nami - przygotujemy bezpłatną ofertę dla Ciebie

71 718 89 70

pon.-pt. 08:00 - 19:00

PODSTAWOWE INFORMACJE

Nowoczesny, drewniany dom

icon
Prefabrykat drewniany
icon
30 lat gwarancji
icon
Realizacja w 3 m-ce
icon
Na zgłoszenie, z tarasem
DOM DLA 4 OSÓB
Wszystko, czego potrzebujesz

Dom DH70-2 to propozycja kompaktowego, całorocznego domu dla rodziny 2+2 lub małej rodziny i ich gości. Wybierając go, zapewnisz sobie komfortowy wypoczynek przez cały rok.

Bryła w stylu nowoczesnej stodoły wyróżnia się przeszkloną ścianą szczytową i minimalistycznym wykończeniem, z dbałością o każdy detal.

Przy domu możesz zaaranżować taras z przejściem do salonu.

Dom prefabrykowany DH70-2 - HDH1005
ZAKRES REALIZACJI
Stan deweloperski

Gotowy dom to opcja dla tych, którzy cenią sobie czas i wygodę. Otrzymujesz dom w stanie niepełnym deweloperskim, aby szybciej zająć się wykończeniem i urządzeniem zgodnie z Twoimi potrzebami.

Zakres realizacji:

  • konstrukcja domu,
  • wykończenie ścian płytami g-k lub Fermacell (położenie bez malowania i szpachlowania) albo położenie boazerii na powierzchni całego domu,
  • ruszt instalacyjny wewnętrzny,
  • termoizolacja wełną skalną prasowaną RockWool,
  • elewacja: tynk lub boazeria,
  • pokrycie dachu blachą na rąbek lub blachodachówką,
  • rynny stalowe w kolorze dachu,
  • stolarka okienno-drzwiowa, 3-szybowa 6-komorowa PVC,
  • okna dachowe,
  • drzwi wejściowe antywłamaniowe,
  • parapety zewnętrzne stalowe, ocynkowane, malowane proszkowo,
  • instalacja elektryczna i wodno-kanalizacyjna,
  • wentylacja grawitacyjna,
  • transport i montaż domu na działce.
Dom prefabrykowany DH70-2 - HDH1005
ZAPYTAJ DORADCĘ
Dodatkowe możliwości

Sprawdź dodatkowe rozwiązania i możliwe zmiany, o które możesz poszerzyć zakres usługi:

  • wykonanie fundamentów,
  • zmiana pokrycia dachowego,
  • zmiana rodzaju elewacji,
  • wykonanie tarasu i zadaszenia,
  • montaż źródła ciepła,
  • instalacja fotowoltaiczna,
  • rekuperacja zamiast wentylacji grawitacyjnej.

Szczegóły oferty skonsultuj z doradcą.

Dom prefabrykowany DH70-2 - HDH1005
Dom prefabrykowany DH70-2 - HDH1005

Lamele drewniane

Dom prefabrykowany DH70-2 - HDH1005

Boazeria

Dom prefabrykowany DH70-2 - HDH1005

Tynk

DOM MARZEŃ
W górach lub nad jeziorem

Salon w domu DH70-2 został wręcz stworzony po to, aby podziwiać roztaczający się z niego widok na okolicę.

Jeżeli szukasz rozwiązania na swoją działkę w górach lub nad jeziorem, DH70-2 sprawdzi się doskonale jak dom rekreacyjny.

Drugim miejscem, z którego możesz obserwować otoczenie, jest antresola z przyjemnym zakątkiem do wypoczynku.

Dom prefabrykowany DH70-2 - HDH1005
Dom prefabrykowany DH70-2 - HDH1005

Aneks kuchenny

Dom prefabrykowany DH70-2 - HDH1005

Łazienka z prysznicem

Dom prefabrykowany DH70-2 - HDH1005

3 sypialnie

KOMFORT I WYGODA
Na każdą porę roku

W domu DH70-2 znajdziesz wszystko, czego potrzebujesz, aby spędzić czas z bliskimi i cieszyć się bliskością natury.

Do Waszej dyspozycji jest salon z aneksem kuchennym, wygodna łazienka i aż 3 sypialnie – 1 główna na dole oraz 2 zamykane pokoje na antresoli. Twoje dzieci lub goście będą mieli zapewnioną prywatność i przestrzeń tylko dla siebie.

Dom prefabrykowany DH70-2 - HDH1005
DOM Z PREFABRYKATÓW DREWNIANYCH
Jaki będzie Twój nowy dom?

Dom DH70-2 z prefabrykatów drewnianych jest wytrzymały i bezpieczny, a jego podstawowa zaleta to krótki czas realizacji. Dlaczego warto go wybrać?

  • Produkcja prefabrykowanych elementów trwa do 3 miesięcy, a montaż na działce inwestora to kwestia kilku dni.
  • Trwałość domu z prefabrykatów drewnianych jest porównywalna z budynkami murowanymi. Jest m.in. odporny na ogień i działanie warunków atmosferycznych.
  • Warstwowa konstrukcja ścian pozwala uzyskać wysokie parametry izolacyjności cieplnej i akustycznej przy ich stosunkowo mniejszej grubości. Dom jest cichy i ciepły.
  • Drewno jest materiałem ekologicznym, a technologia prefabrykacji minimalizuje odpady, ilość zużytych materiałów oraz stosowanej chemii budowlanej.

Więcej

Dom prefabrykowany DH70-2 - HDH1005

Analiza działki

Czy ten dom pasuje na Twoją działkę? Chętnie to sprawdzimy!

  • Czy wybrany dom zmieści się na Twojej działce?
  • Czy spełnia parametry wg MPZT lub WZ?
TECHNOLOGIA I KONSTRUKCJA

Prefabrykat drewniany - ekspresowa realizacja

Nowoczesny dom drewniany

Technologia prefabrykacji to jeden z najszybszych sposobów, aby zamieszkać we własnym domu. Budynek powstaje z elementów przygotowanych wcześniej w zakładzie produkcyjnym pod ścisłą kontrolą jakości, co przekłada się na jego dłuższą żywotność.

Poszczególne części domu przewozi są na działkę inwestora i składa na miejscu w kilkanaście dni.

Domy z prefabrykowanych modułów wykonane na konstrukcji drewnianej to nowoczesne, energooszczędne i ekologiczne obiekty, które nadają się do całorocznego zamieszkania.

Dom prefabrykowany DH70-2 - HDH1005
Trwała konstrukcja, ciepły i cichy dom

Konstrukcja domów z prefabrykatów drewnianych bazuje na prefabrykowanym szkielecie, wykonanym z certyfikowanego drewna klasy C24, 4-stronnie struganego, o wilgotności poniżej 18%, które jest niepalne, a jedynie zwęgla się na powierzchni. Powstały z niego obiekt charakteryzuje się wysoką trwałością.  

Do wykonania ścian i pozostałych przegród domu stosuje się wysokiej jakości materiały: wytrzymałe płyty Fermacell oraz niepalną wełnę skalną RockWool o wysokich parametrach izolacji termicznej i akustycznej, aby dom był ciepły i komfortowy.

Do domu wstawia się energooszczędne 3-szybowe, 6-komorowe okna.

Dom prefabrykowany DH70-2 - HDH1005
Budowa w 3 tygodnie

Przeniesieniu procesu „budowy” do fabryki i prefabrykacja poszczególnych elementów domu znacznie skraca czas jego realizacji. Jego produkcja trwa zaledwie 3 miesiące.

Prefabrykowane elementy konstrukcji domu, gotowe ściany, strop czy elementy dachu montuje się na działce inwestora, na wcześniej przygotowanej płycie fundamentowej. Montaż konstrukcji trwa od 2 do 3 dni, a jego wykończeniem możesz zająć się już po 3 tygodniach od rozpoczęcia prac.

Dom taki można wznieść o każdej porze roku bez względu na temperaturę.

Dom prefabrykowany DH70-2 - HDH1005
Ściany w drewnianym domu prefabrykowanym

Prefabrykowane ściany mają warstwową budowę, na którą składają się (od wewnątrz):

  1. Płyta Fermacell 12,5 mm / płyta G-K 12,5 mm / boazeria
  2. Ruszt instalacyjny 40x60 mm ocieplony wełną skalną RockWool 50 mm
  3. Folia paroizolacyjna
  4. Konstrukcja drewniana 45x145 mm, ocieplona wełną skalną Rockwool 140(145) mm
  5. Płyta Fermacell 12,5 mm
  6. Wełna fasadowa 100 mm
  7. Membrana fasadowa wiatroizolacyjna
  8. Elewacja

Ściany od zewnątrz mogą być wykończone drewnianymi lamelami, blachą na rąbek, boazerią lub tynkiem, zależnie od projektu i preferencji inwestora.

Dom prefabrykowany DH70-2 - HDH1005
Dach w drewnianym domu prefabrykowanym

Prefabrykowany dach składa się z kolejno ułożonych warstw (od wewnątrz):

  1. Płyta Fermacell 12,5 mm / płyta G-K 12,5 mm / boazeria
  2. Ruszt instalacyjny 40x60 mm ocieplony wełną skalną RockWool 50mm
  3. Folia paroizolacyjna
  4. Krokwie 40x195 mm, ocieplenie wełną skalną RockWool 180 mm
  5. Płyta Fermacell 12,5 mm
  6. Membrana dachowa
  7. Łaty i kontrłaty impregnowane
  8. Pokrycie dachowe blachą na rąbek
Dom prefabrykowany DH70-2 - HDH1005
Zrównoważone budownictwo

Produkcja prefabrykatów drewnianych i stawianie nowoczesnych domów w tej technologii doskonale wpisują się w nurt zrównoważonego budownictwa.

Wykorzystanie ekologicznych materiałów, które emitują mniej szkodliwych substancji, minimalizuje wpływ budowy na środowisko oraz ryzyko wystąpienia alergii u mieszkańców. Do tego drewno jest materiałem przyjaznym i estetycznym. 

Energooszczędne, drewniane domy prefabrykowane pozostawiają mniejszy ślad węglowy. Dzięki efektywnej izolacji i zastosowaniu odpowiedniej stolarki można skutecznie zmniejszyć zużycie energii i obniżyć koszty eksploatacji domu.

Dom prefabrykowany DH70-2 - HDH1005
Dane techniczne

Specyfikacja

Powierzchnie i wymiary Powierzchnie i wymiary

Powierzchnia użytkowa
Tooltip
Suma powierzchni wszystkich pomieszczeń mieszkalnych, pomniejszona o pow. garażu, kotłowni, strychu, piwnicy. Jest liczona w 100% dla pomieszczeń o wysokości powyżej 2,2 m, w 50% dla pomieszczeń o wys. 2,2-1,4 m i niewliczana dla niższych niż 1,4 m.

66,44 m²

Wysokość ściany kolankowej
Tooltip
Wysokość ściany podpierającej dach. Jej wysokość wpływa na powierzchnię użytkową kondygnacji, na której się znajduje.

0,85 m

Powierzchnia zabudowy
Tooltip
Powierzchnia zajmowana przez część na- oraz nadziemną budynku liczona, jako rzut pionowy budynku na działkę.

69,70 m²

Powierzchnia całkowita
Tooltip
Całkowita powierzchnia wszystkich kondygnacji budynku łącznie z elementami nośnymi, takimi jak ściany zewnętrzne (z ociepleniem), słupy, tarasy, itp.

107,70 m²

Powierzchnia netto
Tooltip
Powierzchna wszystkich pomieszczeń w budynku mierzona na wysokości podłogi.

76,27 m²

Kubatura netto
Tooltip
Zazwyczaj jest to suma kubatur (objętości) pomieszczeń budynku, bez strychu, liczonych po zewnętrznym obrysie murów (z ociepleniem).

239,03 m³

Kubatura brutto
Tooltip
Zazwyczaj jest to suma kubatur (objętości) wszystkich pomieszczeń budynku, liczonych po zewnętrznym obrysie murów (z ociepleniem).

364,91 m³

Powierzchnia dachu

98,50 m²

Kąt nachylenia dachu
Tooltip
Nachylenie połaci dachu głównego podawane w stopniach. Uwaga! W niektórych projektach występuje więcej niż jedno nachylenie dachu.

45°

Wysokość budynku
Tooltip
Wysokość liczona od części budynku położonej najniżej przy powierzchni terenu do najwyższego punktu dachu (kalenicy) z wyłączeniem kominów.

7,47 m

Szerokość elewacji

6,45 m

Długość elewacji

10,80 m

Min. szerokość działki
Tooltip
Najmniejsza możliwa szerokość działki niezbędna do wybudowania wybranego domu. Składa się z szerokości elewacji domu powiększonej z obu stron o 3 m dla ściany bez otworów drzwiowych/okiennych lub 4 m, dla ściany z otworami.

13,45 m

Min. długość działki
Tooltip
Najmniejsza możliwa długość działki niezbędna do wybudowania wybranego domu. Składa się z długości elewacji domu powiększonej z obu stron o 3 m dla ściany bez otworów drzwiowych/okiennych lub 4 m, dla ściany z otworami.

18,80 m

Energooszczędność Energooszczędność

Ep
Tooltip
Energia pierwotna określa ilość energii nieodnawialnej potrzebnej w ciągu roku do ogrzewania czy też ogrzania wody użytkowej z uwzględnieniem kosztów produkcji i transportu surowców energetycznych.

68,35 kWh/(m²rok)

Ogrzewanie

opcja dodatkowo płatna.

Wentylacja

grawitacyjna

Technologia i materiały Technologia i materiały

Posadowienie budynku

Ława albo płyta fundamentowa

Ściany zewnętrzne

Szkielet drewniany 45x145 + wełna skalna 19 cm

Ściany wewnętrzne

Szkielet drewniany 40x100 + wełna skalna 10 cm

Strop nad parterem

drewniany

Konstrukcja dachu

Drewniana

Pokrycie dachu

Blacha na rąbek

Elewacja

Lamelkowa

DOMY GOTOWE

Zbuduj swój dom w 3 prostych krokach

Wybierasz dom,
przygotowujemy ofertę

Konfigurujemy i tworzymy dla Ciebie bezpłatną ofertę. Pomagamy w weryfikacji działki.

Podpisujesz umowę, rusza produkcja

Podpisujesz umowę z naszym partnerem na produkcję i montaż Twojego domu. Nie martwisz się o terminy i znasz koszty budowy.

Ciesz się swoim domem

W zależności od wybranej technologii budowy, Producent albo przywiezie gotowe elementy na Twoją działkę, albo – w przypadku metody murowanej - rozpocznie proces budowy domu od podstaw. Tobie pozostaną już tylko wewnętrzne prace wykończeniowe.

Dom w 3 krokach

NIE CZEKAJ DŁUŻEJ!

Pomożemy Ci zrealizować marzenie o domu - nawet w 3 miesiące!

Ikona zadzwoń

Zadzwoń

71 71 88 970

pon.-pt. 8:00-19:00

Zadzwoń teraz
Ikona list

Napisz do nas:

domygotowe@extradom.pl
lub
Wolne terminy!

Zobacz na żywo nasz gotowy dom!

Zanim podejmiesz decyzję, spotkaj się z nami na budowie i zobacz, jak realizowana jest taka inwestycja. Dzięki temu:

  • Dowiesz się, jak wygląda budowa i efekt finalny.
  • Skonsultujesz swoje pomysły z naszym ekspertem

Zobacz podobne domy gotowe

1

/

3

Bez pozwolenia
Zdjęcie Dom szkieletowy Family Smart 50
Pow. użytkowa
67,67 m²
Pow. zabudowy
50 m²
Pokoje
3
385 800 zł 5 701 zł/m²
Bez pozwolenia
Zdjęcie Dom prefabrykowany DH70-1
Dom prefabrykowany DH70-1
Dodano!
Dodano!
Pow. użytkowa
64,87 m²
Pow. zabudowy
65,97 m²
Pokoje
2
426 600 zł 5 796 zł/m²
Bez pozwolenia
Zdjęcie Dom szkieletowy Vista Smart 80
Pow. użytkowa
69,20 m²
Pow. zabudowy
55,20 m²
Pokoje
3
390 830 zł 5 648 zł/m²
Zdjęcie Dom prefabrykowany Parterowy 70B
Pow. użytkowa
70,79 m²
Pow. zabudowy
87,45 m²
Pokoje
2
369 000 zł 5 213 zł/m²
Zdjęcie Dom prefabrykowany Parterowy 70A
Pow. użytkowa
70,91 m²
Pow. zabudowy
87,45 m²
Pokoje
3
369 000 zł 5 204 zł/m²
Zdjęcie Dom prefabrykowany Parterowy 70C
Pow. użytkowa
71,37 m²
Pow. zabudowy
87,45 m²
Pokoje
2
369 000 zł 5 170 zł/m²
Bez pozwolenia
Zdjęcie Dom szkieletowy Edge Smart 90
Pow. użytkowa
71,68 m²
Pow. zabudowy
66,67 m²
Pokoje
3
452 995 zł 6 320 zł/m²
Bez pozwolenia
Zdjęcie Dom szkieletowy Mezzanine Smart 50
Pow. użytkowa
61,13 m²
Pow. zabudowy
50 m²
Pokoje
1
324 700 zł 5 346 zł/m²
Bez pozwolenia
Zdjęcie Dom prefabrykowany DH70
Dom prefabrykowany DH70
Dodano!
Dodano!
Pow. użytkowa
73,10 m²
Pow. zabudowy
68,50 m²
Pokoje
3
409 320 zł 5 599 zł/m²
Zdjęcie Dom szkieletowy One Step Smart 90
Pow. użytkowa
73,45 m²
Pow. zabudowy
90 m²
Pokoje
2
428 600 zł 5 318 zł/m²
Zdjęcie Dom szkieletowy Space Smart 90
Pow. użytkowa
74 m²
Pow. zabudowy
90 m²
Pokoje
3
379 527 zł 5 129 zł/m²
Zdjęcie Dom keramzytowy Fiore 76
Dom keramzytowy Fiore 76
Dodano!
Dodano!
Pow. użytkowa
75,95 m²
Pow. zabudowy
125,05 m²
Pokoje
3
344 520 zł 4 536 zł/m²

Graficzne opracowanie rzutów poglądowych widocznych na karcie projektu zostało wykonane przez Extradom.pl. Prezentowane przez Extradom.pl wizualizacje wykonane zostały przez autora projektu i należy poczytywać je jedynie za przykład i propozycję wykończenia, wizję architektoniczną autora projektu. Ostateczne wykończenie budynku może nastąpić na wiele sposobów. Szczegółowe rozwiązania zastosowane w oferowanej dokumentacji - w tym również ilość, lokalizacje i wygląd okien, drzwi, kominów - mogą w niewielkim stopniu różnić się od prezentowanej wizualizacji budynku.

Extradom.pl Spółka z ograniczoną odpowiedzialnością z siedzibą przy ul. Jaworskiej 13, 53-612 Wrocław, wpisana do rejestru przedsiębiorców Krajowego Rejestru Sądowego przez Sąd Rejonowy dla Wrocławia-Fabrycznej we Wrocławiu, VI Wydział Gospodarczy Krajowego Rejestru Sądowego do pod numerem KRS 0000648746, numer NIP 895-17-18-333, o kapitale zakładowym 708 150,00 zł uprzejmie informuje, iż poprzez serwis Extradom.pl umożliwia m.in. zapoznanie się przez konsumentów z ofertą handlową Partnerów Extradom.pl, którzy stosują metody budowy domów przy wykorzystaniu różnego rodzaju technologie prefabrykacji bądź modułowe (tzw. „Gotowe domy”).

Extradom.pl nie prowadzi jednakże sprzedaży ani nie oferuje usług polegających na doradztwie finansowym, prawnym ani podatkowym w zakresie inwestycji realizowanych w technologiach tzw. „Gotowych domów”. Informacje prezentowane w serwisie Extradom.pl dotyczące Partnerów Extradom.pl oferujących realizację inwestycji w technologiach „Gotowych domów” lub podobnych mają charakter informacyjny i reklamowy.

Prezentowane w serwisie Extradom.pl informacje dotyczące stosowanych przez Partnerów metod budowy domów w technologii prefabrykacji bądź modułowej pochodzą od Partnerów Extradom.pl.

Extradom.pl sp. z o.o. jedynie umożliwia nawiązanie kontaktu przez Użytkownika z Partnerem Extradom.pl stosującym tego rodzaju technologie budowy domów i nie jest stroną umowy o roboty budowlane zawieranej przez Użytkownika Extradom.pl z Partnerem Extradom.pl.

Zadzwoń i poproś
o bezpłatną wycenę

71 718 89 70
REKLAMA
Zamknij