JBL GO 4 w prezencie 🎸

Koniec oferty za:

0dni

00godz.

00min.

00sek.

Sprawdź

Dom mobilny Model Mazuria Premium

HTH1003
Zdjęcia z realizacji (14)

Dodaj

Dodano!

Porównaj

Dodano!

Drukuj

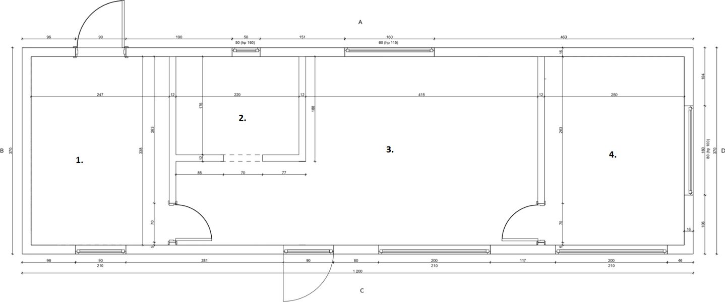
Rzut parteru

Powierzchnia (m²)
Tooltip
Powierzchnia pomieszczenia
to ta, z której faktycznie możesz korzystać – skosy i niskie części poddasza są liczone częściowo lub wcale.
  1. 100% dla wysokości powyżej 2,2 m,
  2. 50% dla wysokości 1,4–2,2 m,
  3. nie liczymy poniżej 1,4 m.

Powierzchnia podłogi
Liczymy po obrysie pomieszczenia, bez względu na jego wysokość/skosy. Jeśli nie ma skosów to powierzchnia podłogi i pomieszczenia jest taka sama.
pomieszczenia i podłogi
podłogi
1. Pokój dzienny + jadalnia
18
2. Pokój
8,40
3. Łazienka
4
4. Pokój
8,50
Razem
38,90
38,90

Pow. użytkowa

39 m²

Pow. zabudowy

48 m²

Pokoje

2

Łazienki i WC

1

Garaż

0

Kąt dachu

Min. szer. i dł. działki:

20 m x 12 m

Technologia

Domy mobilne, Szkielet drewniany

więcej

Cena
Tooltip

8% VAT dla klienta
indywidualnego, 23% VAT dla
firmy. Cena za metr wyliczana
na podstawie powierzchni netto
lub powierzchni użytkowej.

Brutto
Netto
Cena
Tooltip

8% VAT dla klienta
indywidualnego, 23% VAT dla
firmy. Cena za metr wyliczana
na podstawie powierzchni netto
lub powierzchni użytkowej.

Brutto
Netto
Stan deweloperski
Tooltip

Szczegóły zakresu podstawowego znajdziesz
w opisie.

320 000 zł

8 205 zł/m²

Wolne terminy!
Umów wizytę w
domu pokazowym
  • Jak wygląda proces budowy?
  • Ile trwa budowa i jakie terminy są dostępne?
  • Jak się mieszka w takim domu!
RZUTY

Rozmieszczenie
pomieszczeń

Parter - 38,90 m²

Wymiary wewnętrzne

Powierzchnie pomieszczeń

Oznaczenia na rzutach

Lodówka

Suszarka

Zmywarka

Suszarka nad pralką

Kuchenka

Pralka

Piekarnik

Szafa

Kocioł

Pompa ciepła

Kominek

Rekuperacja

Szerokość stolarki
Wysokość stolarki

Legenda Zobacz oznaczenia użyte na rzutach

Powierzchnia (m²)
Tooltip
Powierzchnia pomieszczenia
to ta, z której faktycznie możesz korzystać – skosy i niskie części poddasza są liczone częściowo lub wcale.
  1. 100% dla wysokości powyżej 2,2 m,
  2. 50% dla wysokości 1,4–2,2 m,
  3. nie liczymy poniżej 1,4 m.

Powierzchnia podłogi
Liczymy po obrysie pomieszczenia, bez względu na jego wysokość/skosy. Jeśli nie ma skosów to powierzchnia podłogi i pomieszczenia jest taka sama.
pomieszczenia i podłogi
podłogi
1. Pokój dzienny + jadalnia
18
2. Pokój
8,40
3. Łazienka
4
4. Pokój
8,50
Razem
38,90
38,90

Oznaczenia na rzutach

Lodówka

Suszarka

Zmywarka

Suszarka nad pralką

Kuchenka

Pralka

Piekarnik

Szafa

Kocioł

Pompa ciepła

Kominek

Rekuperacja

Szerokość stolarki
Wysokość stolarki

Legenda Zobacz oznaczenia użyte na rzutach

Podoba Ci się dom, ale chciałbyś dokonać pewnych zmian?

  • Możesz zmienić kolor i materiał elewacji
  • Możesz zmienić funkcję i układ pomieszczeń
Konsultant

Skontaktuj się z nami - przygotujemy bezpłatną ofertę dla Ciebie

71 718 89 70

pon.-pt. 08:00 - 19:00

PODSTAWOWE INFORMACJE

Mobilny dom tam, gdzie Ty

icon
Dom mobilny
icon
2 lata gwarancji
icon
Realizacja w 4-6 m-cy
icon
Bez pozwolenia
MIESZKAJ TAM, GDZIE ZECHCESZ
Inteligentny dom mobilny

Mobilny dom Mazuria Premium to nowoczesne bryła, utrzymana w klimacie skandynawskich domków. W jego wnętrzu znajdziemy wszystko, co niezbędne do wygodnego i spokojnego życia 2 lub 3 osób przez cały rok. Sprawdzi się idealnie jako dom rekreacyjny, ale nie tylko...

Mazuria Premium w zakresie rozszerzonym to synonim luksusu i wygody. Oprócz standardowych udogodnień, może być wyposażony m.in. w instalacje z funkcją Wi-Fi. Otrzymujesz inteligentny dom, którym zarządzasz z dowolnego miejsca i kontrolujesz zużycie energii. 

Sprawdź również pozostałe domy z mniejszym pakietem wyposażenia: Mazuria Standard i Mazuria Economy.

Dom mobilny Model Mazuria Premium - HTH1003
ZAKRES REALIZACJI DO WYBORU

Wybierz wariant dopasowany do Twoich potrzeb

Zakres podstawowy

Ekonomiczne rozwiązanie, idealne dla osób, które chcą mieć wpływ na wykończenie swojego domu. Otrzymujesz solidną konstrukcję, którą dopasujesz do swoich potrzeb.

Zakres PODSTAWOWY obejmuje:

  • szkielet wykonany ze świerku skandynawskiego,
  • ściany zewnętrzne wykonane ze świerku skandynawskiego,
  • ściany wewnętrzne wykonane ze świerku skandynawskiego oraz sklejki egzotycznej,
  • izolację termiczna pianą PUR otwartokomórkową lub wełną drzewną Steico,
  • podwozie na homologowanej przyczepie marki Rydwan,
  • pokrycie dachu blachą na rąbek stojący,
  • okna 3-szybowe, aluminiowe,
  • drzwi wejściowe stalowe,
  • instalację elektryczną,
  • instalację hydrauliczną,
  • podłogę z paneli winylowych,
  • montaż klimatyzacji i bojlera,
  • oświetlenie.
Dom mobilny Model Mazuria Premium - HTH1003
Zakres rozszerzony

Opcja dla tych, którzy które cenią sobie czas i wygodę. Otrzymujesz wykończony dom i możesz szybciej w nim zamieszkać.

Zakres ROZSZERZONY obejmuje dodatkowo:

  • ogrzewanie podłogowe elektryczne z funkcją WiFi
  • wentylację grawitacyjną (w łazience wentylacja z czujnikiem wilgotności oraz rekuperacja), 
  • klimatyzację z funkcją grzania WiFi,
  • kuchnię – pełne wyposażenie w meble i AGD: kuchenka indukcyjna, piekarnik, okap, lodówka, zmywarka, zlew,
  • salon wyposażony w kanapę rozkładaną, stół oraz krzesła,
  • sypialnie wyposażone w łóżka, szafy, biurko i krzesło
  • łazienkę z kabiną prysznicową, toaletą, szafką z umywalką, lustrem, pralką oraz bojlerem 80 l

Opcje dodatkowe – o szczegóły zapytaj doradcę:

  • projekt wnętrza,
  • taras lub schody przed domem,
  • taras na dachu.
Dom mobilny Model Mazuria Premium - HTH1003
PRZESTRZEŃ IDEALNA DLA CIEBIE
Wszystko, co niezbędne

W domu serii Mazuria o powierzchni użytkowej 39 m2 można komfortowo funkcjonować przez cały rok.

Po wejściu do domu wita nas jasna, otwarta przestrzeń wspólna, a w niej: aneks kuchenny, strefa jadalniana oraz część wypoczynkowa z miejscem na wygodny narożnik.

Cechą charakterystyczną domów Mazuria są duże przeszklenia, dzięki którym wnętrze wypełnia światło, a mieszkańcy mogą poczuć bliskość natury.

Dom mobilny Model Mazuria Premium - HTH1003
Dom mobilny Model Mazuria Premium - HTH1003

Otwarta strefa dzienna

Dom mobilny Model Mazuria Premium - HTH1003

Łazienka

Dom mobilny Model Mazuria Premium - HTH1003

2 osobne pokoje

WERSJA PREMIUM
Mała przestrzeń na wysokie wymagania

Na obu końcach domu Mazuria znalazły się 2 osobne pokoje, co gwarantuje mieszkańcom prywatność. W głównej sypialni wydzielono również miejsce na pojemną szafę. Dodatkowy pokój może pełnić rolę pokoju gościnnego dla kolejnych 2 osób lub biura.

W komfortowej łazience znajduje się kabina prysznicowa i miejsce na pralkę.

Mazuria Premium jest idealną opcją dla wymagających, którym zależy na luksusowym wnętrzu i maksymalnym możliwym komforcie. To połączenie Twoich potrzeb z gwarantowaną wysoką jakością wykonania.

Dom mobilny Model Mazuria Premium - HTH1003
MOBILNY DOM NA MIARĘ POTRZEB
Jaki będzie Twój nowy dom?

Dom mobilny Mazuria Premium może podróżować za Twoimi marzeniami. Poznaj jego zalety:

  • Nie wymaga pozwolenia na budowę – może stać prawie na każdej działce.
  • Może być zamieszkiwany przez cały rok – odpowiednia izolacja gwarantuje wysoki komfort termiczny zimą i latem.
  • Najlżejsza konstrukcja drewniana na rynku, wykonana z materiałów o wysokiej wytrzymałości.
  • Drewno zabezpieczone przed działaniem warunków atmosferycznych, promieni UV i wilgoci.
  • Solidny dach odporny na korozję i warunki atmosferyczne – bez ryzyka zalania i uszkodzeń.
  • Elastyczne możliwości wykończenia wnętrza – dbałość o detale.
  • Najwyższej jakości materiały i surowce – wyjątkowa trwałość i mniejsze wydatki na konserwację.

Więcej

Dom mobilny Model Mazuria Premium - HTH1003

Analiza działki

Czy ten dom pasuje na Twoją działkę? Chętnie to sprawdzimy!

  • Czy wybrany dom zmieści się na Twojej działce?
  • Czy spełnia parametry wg MPZT lub WZ?
KONSTRUKCJA I TECHNOLOGIA

Domki mobilne na cały rok

Mobilność i elastyczność lokalizacji

Domy mobilne to świetne rozwiązanie dla osób ceniących sobie swobodę i wolność. Nie są związane na stałe z gruntem, a dzięki lekkiej konstrukcji na podwoziu, łatwo je przemieścić i ustawić w wybranej lokalizacji, bez potrzeby pozwolenia na budowę.

Są przystosowane do całorocznego użytkowania, zapewniają wygodę niezależnie od warunków. Możliwość zmiany lokalizacji w dowolnym momencie daje mieszkańcom pełną elastyczność i niezależność.

Dom mobilny Model Mazuria Premium - HTH1003
Trwała konstrukcja drewniana

Konstrukcja domu mobilnego opiera się o szkielet z wytrzymałego drewna C24 ze świerku o niskiej wilgotności (16-18%), co zapewnia solidność i trwałość domu na lata. Izolacja z wełny drzewnej Steico gwarantuje mieszkańcom komfort termiczny przez cały rok.

Dach zabezpieczono membraną Braas Dörken Delta®-Maxx o paroprzepuszczalności μ = 2 i dużej wytrzymałości, aby skutecznie chronić dom przed wilgocią. Do pokrycia wykorzystuje się stalową blachę Ruukki o grubości 5 mm, zabezpieczoną warstwą odporną na korozję i warunki atmosferyczne. Taka konstrukcja zapewnia sprawne odprowadzanie wody, minimalizując ryzyko zalania.

Dom mobilny Model Mazuria Premium - HTH1003
Systemy instalacyjne i energooszczędność

Domy mobilne są wyposażone we wszystkie niezbędne instalacje, które bez problemu można podłączyć do sieci. Komfort w chłodne dni zapewniają mieszkańcom nowoczesne systemy m.in. ogrzewanie podłogowe z funkcją WiFi czy klimatyzacja z funkcją grzania.

Izolacja z wełny drzewnej Steico zapewnia efektywność energetyczną, a opcjonalne panele fotowoltaiczne wspierają ekologiczne korzystanie z energii.

Dom mobilny Model Mazuria Premium - HTH1003
Wykończenie wnętrz i aranżacja przestrzeni

Wnętrza domów starannie wykończono z użyciem świerku skandynawskiego i egzotycznej sklejki, co nadaje im nowoczesny, naturalny charakter.

Domy są w pełni wyposażone i gotowe do zamieszkania – kuchnie mają pełny zestaw AGD, a łazienki nowoczesne prysznice i pralki. Sypialnie i salon są funkcjonalne i estetyczne, zapewniając komfort codziennego użytkowania.

Dom mobilny Model Mazuria Premium - HTH1003
Funkcjonalność i ekologia

Domy mobilne to elastyczne rozwiązania, idealne na stałe zamieszkanie, domek letniskowy czy pracownię.

Dzięki zastosowaniu naturalnych materiałów, jak drewno i wełna drzewna, są przyjazne dla środowiska. Ekologiczne farby i impregnaty chronią konstrukcję, zmniejszając jednocześnie negatywny wpływ na środowisko, co czyni je doskonałym wyborem dla osób dbających o ekologię.

Dom mobilny Model Mazuria Premium - HTH1003
Dane techniczne

Specyfikacja

Powierzchnie i wymiary Powierzchnie i wymiary

Powierzchnia użytkowa
Tooltip
Suma powierzchni wszystkich pomieszczeń mieszkalnych, pomniejszona o pow. garażu, kotłowni, strychu, piwnicy. Jest liczona w 100% dla pomieszczeń o wysokości powyżej 2,2 m, w 50% dla pomieszczeń o wys. 2,2-1,4 m i niewliczana dla niższych niż 1,4 m.

39 m²

Wysokość ściany kolankowej
Tooltip
Wysokość ściany podpierającej dach. Jej wysokość wpływa na powierzchnię użytkową kondygnacji, na której się znajduje.

3,50 m

Powierzchnia zabudowy
Tooltip
Powierzchnia zajmowana przez część na- oraz nadziemną budynku liczona, jako rzut pionowy budynku na działkę.

48 m²

Powierzchnia całkowita
Tooltip
Całkowita powierzchnia wszystkich kondygnacji budynku łącznie z elementami nośnymi, takimi jak ściany zewnętrzne (z ociepleniem), słupy, tarasy, itp.

48 m²

Kubatura netto
Tooltip
Zazwyczaj jest to suma kubatur (objętości) pomieszczeń budynku, bez strychu, liczonych po zewnętrznym obrysie murów (z ociepleniem).

102 m³

Kubatura brutto
Tooltip
Zazwyczaj jest to suma kubatur (objętości) wszystkich pomieszczeń budynku, liczonych po zewnętrznym obrysie murów (z ociepleniem).

130 m³

Powierzchnia dachu

48 m²

Kąt nachylenia dachu
Tooltip
Nachylenie połaci dachu głównego podawane w stopniach. Uwaga! W niektórych projektach występuje więcej niż jedno nachylenie dachu.

Wysokość budynku
Tooltip
Wysokość liczona od części budynku położonej najniżej przy powierzchni terenu do najwyższego punktu dachu (kalenicy) z wyłączeniem kominów.

4 m

Szerokość elewacji

12 m

Długość elewacji

4 m

Min. szerokość działki
Tooltip
Najmniejsza możliwa szerokość działki niezbędna do wybudowania wybranego domu. Składa się z szerokości elewacji domu powiększonej z obu stron o 3 m dla ściany bez otworów drzwiowych/okiennych lub 4 m, dla ściany z otworami.

20 m

Min. długość działki
Tooltip
Najmniejsza możliwa długość działki niezbędna do wybudowania wybranego domu. Składa się z długości elewacji domu powiększonej z obu stron o 3 m dla ściany bez otworów drzwiowych/okiennych lub 4 m, dla ściany z otworami.

12 m

Energooszczędność Energooszczędność

Ogrzewanie

elektryczne, podłogowe

Wentylacja

Mechaniczna, grawitacyjna, rekuperacja

Technologia i materiały Technologia i materiały

Posadowienie budynku

Fundament punktowy.

Ściany zewnętrzne

Szkielet drewniany 145x45 mm - świerk skandynawski, piana PUR/wełna drzewna Steico.

Ściany wewnętrzne

Szkielet drewniany 70x45 mm świerk skandynawski.

Konstrukcja dachu

Świerk skandynawski C24 145x45 mm, OSB 15 mm.

Pokrycie dachu

Blacha na rąbek stojący / folia EPDM.

Elewacja

Świerk skandynawski 113x14 mm / blacha na rąbek stojący.

Instalacje dodatkowe w
standardzie

klimatyzacja z funkcją grzania

Zdjęcia z realizacji - Dom mobilny Model Mazuria Premium (14)

Zobacz wszystkie
DOMY GOTOWE

Zbuduj swój dom w 3 prostych krokach

Wybierasz dom,
przygotowujemy ofertę

Konfigurujemy i tworzymy dla Ciebie bezpłatną ofertę. Pomagamy w weryfikacji działki.

Podpisujesz umowę, rusza produkcja

Podpisujesz umowę z naszym partnerem na produkcję i montaż Twojego domu. Nie martwisz się o terminy i znasz koszty budowy.

Ciesz się swoim domem

W zależności od wybranej technologii budowy, Producent albo przywiezie gotowe elementy na Twoją działkę, albo – w przypadku metody murowanej - rozpocznie proces budowy domu od podstaw. Tobie pozostaną już tylko wewnętrzne prace wykończeniowe.

Dom w 3 krokach

NIE CZEKAJ DŁUŻEJ!

Pomożemy Ci zrealizować marzenie o domu - nawet w 3 miesiące!

Ikona zadzwoń

Zadzwoń

71 71 88 970

pon.-pt. 8:00-19:00

Zadzwoń teraz
Ikona list

Napisz do nas:

domygotowe@extradom.pl
lub
Wolne terminy!

Zobacz na żywo nasz gotowy dom!

Zanim podejmiesz decyzję, spotkaj się z nami na budowie i zobacz, jak realizowana jest taka inwestycja. Dzięki temu:

  • Dowiesz się, jak wygląda budowa i efekt finalny.
  • Skonsultujesz swoje pomysły z naszym ekspertem

Zobacz podobne domy gotowe

1

/

3

Bez pozwolenia
Zdjęcie Dom mobilny Model Mazuria Economy
Pow. użytkowa
39 m²
Pow. zabudowy
48 m²
Pokoje
2
240 000 zł 6 154 zł/m²
Bez pozwolenia
Zdjęcie Dom mobilny Model Mazuria Standard
Pow. użytkowa
39 m²
Pow. zabudowy
48 m²
Pokoje
2
290 000 zł 7 436 zł/m²
Bez pozwolenia
Zdjęcie Dom prefabrykowany DH44
Dom prefabrykowany DH44
Dodano!
Dodano!
Pow. użytkowa
39,12 m²
Pow. zabudowy
44,46 m²
Pokoje
0
309 500 zł 5 853 zł/m²
Bez pozwolenia
Zdjęcie Dom mobilny MoonWave
Dom mobilny MoonWave
Dodano!
Dodano!
Pow. użytkowa
41,15 m²
Pow. zabudowy
48,32 m²
Pokoje
2
305 750 zł 7 430 zł/m²
Bez pozwolenia
Zdjęcie Dom mobilny StarPoint
Dom mobilny StarPoint
Dodano!
Dodano!
Pow. użytkowa
41,69 m²
Pow. zabudowy
57,11 m²
Pokoje
1
365 750 zł 8 792 zł/m²
Bez pozwolenia
Zdjęcie Dom szkieletowy Mezzanine Smart 35
Pow. użytkowa
45 m²
Pow. zabudowy
35 m²
Pokoje
1
242 750 zł 5 405 zł/m²
Bez pozwolenia
Zdjęcie Dom prefabrykowany DH55
Dom prefabrykowany DH55
Dodano!
Dodano!
Pow. użytkowa
48,20 m²
Pow. zabudowy
44,54 m²
Pokoje
0
332 640 zł 6 510 zł/m²
Bez pozwolenia
Zdjęcie Dom szkieletowy Family Smart
Pow. użytkowa
48,91 m²
Pow. zabudowy
35 m²
Pokoje
3
269 400 zł 5 508 zł/m²
Bez pozwolenia
Zdjęcie Dom mobilny SunStone
Dom mobilny SunStone
Dodano!
Dodano!
Pow. użytkowa
49,21 m²
Pow. zabudowy
57,11 m²
Pokoje
2
335 500 zł 6 818 zł/m²
Bez pozwolenia
Zdjęcie Dom prefabrykowany DH47
Dom prefabrykowany DH47
Dodano!
Dodano!
Pow. użytkowa
51,10 m²
Pow. zabudowy
48,70 m²
Pokoje
2
378 600 zł 6 321 zł/m²
Bez pozwolenia
Zdjęcie Dom prefabrykowany DH47 + przedsionek
Pow. użytkowa
53,72 m²
Pow. zabudowy
58,28 m²
Pokoje
2
413 964 zł 7 706 zł/m²
Bez pozwolenia
Zdjęcie Dom szkieletowy Space Smart 70
Pow. użytkowa
55 m²
Pow. zabudowy
70 m²
Pokoje
3
311 040 zł 5 655 zł/m²

Graficzne opracowanie rzutów poglądowych widocznych na karcie projektu zostało wykonane przez Extradom.pl. Prezentowane przez Extradom.pl wizualizacje wykonane zostały przez autora projektu i należy poczytywać je jedynie za przykład i propozycję wykończenia, wizję architektoniczną autora projektu. Ostateczne wykończenie budynku może nastąpić na wiele sposobów. Szczegółowe rozwiązania zastosowane w oferowanej dokumentacji - w tym również ilość, lokalizacje i wygląd okien, drzwi, kominów - mogą w niewielkim stopniu różnić się od prezentowanej wizualizacji budynku.

Extradom.pl Spółka z ograniczoną odpowiedzialnością z siedzibą przy ul. Jaworskiej 13, 53-612 Wrocław, wpisana do rejestru przedsiębiorców Krajowego Rejestru Sądowego przez Sąd Rejonowy dla Wrocławia-Fabrycznej we Wrocławiu, VI Wydział Gospodarczy Krajowego Rejestru Sądowego do pod numerem KRS 0000648746, numer NIP 895-17-18-333, o kapitale zakładowym 708 150,00 zł uprzejmie informuje, iż poprzez serwis Extradom.pl umożliwia m.in. zapoznanie się przez konsumentów z ofertą handlową Partnerów Extradom.pl, którzy stosują metody budowy domów przy wykorzystaniu różnego rodzaju technologie prefabrykacji bądź modułowe (tzw. „Gotowe domy”).

Extradom.pl nie prowadzi jednakże sprzedaży ani nie oferuje usług polegających na doradztwie finansowym, prawnym ani podatkowym w zakresie inwestycji realizowanych w technologiach tzw. „Gotowych domów”. Informacje prezentowane w serwisie Extradom.pl dotyczące Partnerów Extradom.pl oferujących realizację inwestycji w technologiach „Gotowych domów” lub podobnych mają charakter informacyjny i reklamowy.

Prezentowane w serwisie Extradom.pl informacje dotyczące stosowanych przez Partnerów metod budowy domów w technologii prefabrykacji bądź modułowej pochodzą od Partnerów Extradom.pl.

Extradom.pl sp. z o.o. jedynie umożliwia nawiązanie kontaktu przez Użytkownika z Partnerem Extradom.pl stosującym tego rodzaju technologie budowy domów i nie jest stroną umowy o roboty budowlane zawieranej przez Użytkownika Extradom.pl z Partnerem Extradom.pl.

Zadzwoń i poproś
o bezpłatną wycenę

71 718 89 70
REKLAMA
Zamknij