👉 Wiosenne rabaty + karta allegro 200 zł! 🔥

Koniec oferty za:

00godz.

00min.

00sek.

Sprawdź

Dom mobilny MoonWave

HLL1000

Dodaj

Dodano!

Porównaj

Dodano!

Drukuj

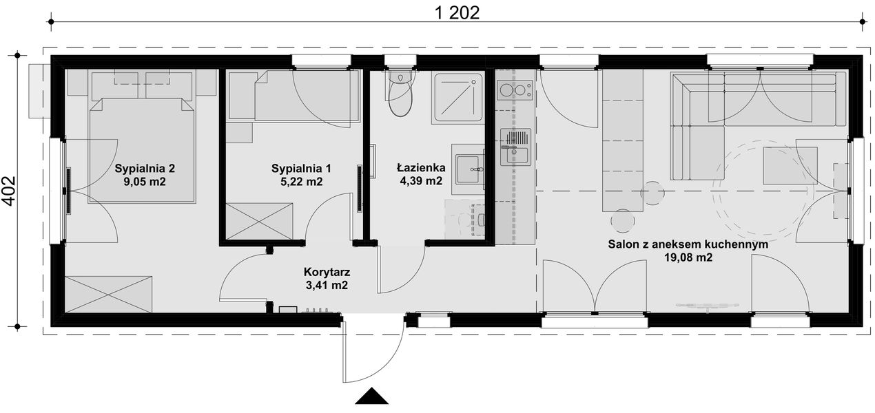
Rzut parteru

Powierzchnia (m²)
Tooltip
Powierzchnia pomieszczenia
to ta, z której faktycznie możesz korzystać – skosy i niskie części poddasza są liczone częściowo lub wcale.
  1. 100% dla wysokości powyżej 2,2 m,
  2. 50% dla wysokości 1,4–2,2 m,
  3. nie liczymy poniżej 1,4 m.

Powierzchnia podłogi
Liczymy po obrysie pomieszczenia, bez względu na jego wysokość/skosy. Jeśli nie ma skosów to powierzchnia podłogi i pomieszczenia jest taka sama.
pomieszczenia i podłogi
podłogi
1. Korytarz
3,41
2. Pokój
9,05
3. Pokój
5,22
4. Łazienka
4,39
5. Pokój dzienny + jadalnia + kuchnia
19,08
Razem
41,15
41,15

Pow. użytkowa

41,15 m²

Pow. zabudowy

48,32 m²

Pokoje

2

Łazienki i WC

1

Garaż

0

Kąt dachu

14,40°

Min. szer. i dł. działki:

20,02 m x 12,02 m

Technologia

Domy mobilne

więcej

Cena
Tooltip

8% VAT dla klienta
indywidualnego, 23% VAT dla
firmy. Cena za metr wyliczana
na podstawie powierzchni netto
lub powierzchni użytkowej.

Brutto
Netto
Cena
Tooltip

8% VAT dla klienta
indywidualnego, 23% VAT dla
firmy. Cena za metr wyliczana
na podstawie powierzchni netto
lub powierzchni użytkowej.

Brutto
Netto
Stan deweloperski
Tooltip

Szczegóły zakresu podstawowego znajdziesz
w opisie.

305 750 zł

7 430 zł/m²

ikona
Odbiór techniczny GRATIS
Gwarantujemy najwyższą jakość
Wolne terminy!
Umów wizytę w
domu pokazowym
  • Jak wygląda proces budowy?
  • Ile trwa budowa i jakie terminy są dostępne?
  • Jak się mieszka w takim domu!
RZUTY

Rozmieszczenie
pomieszczeń

Parter - 41,15 m²

Wymiary wewnętrzne

Powierzchnie pomieszczeń

Oznaczenia na rzutach

Lodówka

Suszarka

Zmywarka

Suszarka nad pralką

Kuchenka

Pralka

Piekarnik

Szafa

Kocioł

Pompa ciepła

Kominek

Rekuperacja

Szerokość stolarki
Wysokość stolarki

Legenda Zobacz oznaczenia użyte na rzutach

Powierzchnia (m²)
Tooltip
Powierzchnia pomieszczenia
to ta, z której faktycznie możesz korzystać – skosy i niskie części poddasza są liczone częściowo lub wcale.
  1. 100% dla wysokości powyżej 2,2 m,
  2. 50% dla wysokości 1,4–2,2 m,
  3. nie liczymy poniżej 1,4 m.

Powierzchnia podłogi
Liczymy po obrysie pomieszczenia, bez względu na jego wysokość/skosy. Jeśli nie ma skosów to powierzchnia podłogi i pomieszczenia jest taka sama.
pomieszczenia i podłogi
podłogi
1. Korytarz
3,41
2. Pokój
9,05
3. Pokój
5,22
4. Łazienka
4,39
5. Pokój dzienny + jadalnia + kuchnia
19,08
Razem
41,15
41,15

Oznaczenia na rzutach

Lodówka

Suszarka

Zmywarka

Suszarka nad pralką

Kuchenka

Pralka

Piekarnik

Szafa

Kocioł

Pompa ciepła

Kominek

Rekuperacja

Szerokość stolarki
Wysokość stolarki

Legenda Zobacz oznaczenia użyte na rzutach

Podoba Ci się dom, ale chciałbyś dokonać pewnych zmian?

  • Możesz zmienić kolor i materiał elewacji
  • Możesz zmienić funkcję i układ pomieszczeń
Konsultant

Skontaktuj się z nami - przygotujemy bezpłatną ofertę dla Ciebie

71 718 89 70

pon.-pt. 08:00 - 19:00

PODSTAWOWE INFORMACJE

Dom mobilny na 4 pory roku

icon
Dom mobilny
icon
Gwarancja na dom
icon
Realizacja w 90 dni
icon
Całoroczny
PARTEROWY DOM MOBILNY
Mobilna nowoczesność

Dom MoonWave to mobilna opcja budynku parterowego o powierzchni użytkowej wynoszącej nieco ponad 40 m2, który nie jest na stałe związany z gruntem.

To idealny sposób na kompaktowy dom rekreacyjny - gotowy na każde warunki i na każdą porę roku! Wykonanie z wysokiej jakości materiałów zapewnia estetyczny i trwały wygląd na lata. Projektanci zadbali również o komfort i prywatność mieszkańców wprowadzajac funkcjonalny układ pomieszczeń.

Dom mobilny MoonWave - HLL1000
ZAKRES REALIZACJI DO WYBORU

Wybierz wariant dopasowany do Twoich potrzeb

Zakres podstawowy

Ekonomiczne rozwiązanie, idealne dla osób, które chcą mieć wpływ na wykończenie swojego domu. Otrzymujesz solidną konstrukcję, którą dopasujesz do swoich potrzeb.

Zakres PODSTAWOWY obejmuje:

  • podstawową konstrukcję - profil stalowy,
  • konstrukcję przegród wykonaną z profili stalowych, płyt MDF i OSB, drewnianych listew i łat,
  • elewację,
  • wiatroizolację i paroizolację,
  • izolację przegród i podłogi pianą otwartokomórkową PUR,
  • izolację i pokrycie dachu,
  • podłogę z blachy ocynkowanej, odpornej na korozję,
  • wykończenie podłogi.
Dom mobilny MoonWave - HLL1000
Zakres rozszerzony

Opcja dla tych, którzy które cenią sobie czas i wygodę. Otrzymujesz wykończony dom i możesz szybciej przejść do etapu jego urządzania.

Zakres ROZSZERZONY obejmuje dodatkowo:

  • wyposażenie domu – zabudowa kuchenna, salon, sypialnia,
  • pełne wyposażenie łazienki: kabina prysznicowa, umywalka, toaleta, lustro, bojler,
  • ogrzewanie elektryczne.
Dom mobilny MoonWave - HLL1000
TWÓJ DRUGI DOM
Zaspokoi Twoje potrzeby

W domu całorocznym MoonWave spędzisz możesz spędzać wolny czas, kiedy tylko zechcesz. Na ponad 40 m² powierzchni znajdziesz 2 kameralne sypialnie, w których przewidziano miejsce na pakowne szafy.

Serce domu stanowi pokój dzienny z aneksem kuchennym i wyspą, która łączy strefę wypoczynku z jadalnią i kuchnią.

W domku MoonWave przenocujesz tu nawet 5 osób!

Dom mobilny MoonWave - HLL1000
Dom mobilny MoonWave - HLL1000

2 sypialnie

Dom mobilny MoonWave - HLL1000

Łazienka z prysznicem

Dom mobilny MoonWave - HLL1000

Salon z aneksem

DOM MOBILNY NA 4 PORY ROKU
Jaki będzie Twój nowy dom?

Dom mobilny MoonWave to komfort, którym możesz się cieszyć przez cały rok. Poznaj go bliżej:

  • To połączenie luksusu i funkcjonalności z najnowszymi technologiami budowlanymi.
  • Stalowa konstrukcja zapewnia wytrzymałość, stabilność i długą żywotność domu.
  • Piana otwartokomórkowa PUR gwarantuje wysoki poziom izolacji termicznej i akustycznej.
  • Elastyczne podejście do wykończenia wnętrz i elewacji dla wygodnej personalizacji.
  • Solidne zabezpieczenie przed warunkami atmosferycznymi, dzięki wysokiej jakości materiałom.
  • Przemyślane, nowoczesne rozwiązania zapewniają wygodę użytkowania i ponadczasowy wygląd.

Więcej

Dom mobilny MoonWave - HLL1000

Analiza działki

Czy ten dom pasuje na Twoją działkę? Chętnie to sprawdzimy!

  • Czy wybrany dom zmieści się na Twojej działce?
  • Czy spełnia parametry wg MPZT lub WZ?
KONSTRUKCJA I TECHNOLOGIA

Domki mobilne na cały rok

Mobilność i elastyczność lokalizacji

Domy mobilne to świetne rozwiązanie dla osób ceniących sobie swobodę i wolność. Nie są związane na stałe z gruntem, a dzięki lekkiej konstrukcji na podwoziu, łatwo je przemieścić i ustawić w wybranej lokalizacji, bez potrzeby pozwolenia na budowę.

Są przystosowane do całorocznego użytkowania, zapewniają wygodę niezależnie od warunków. Możliwość zmiany lokalizacji w dowolnym momencie daje mieszkańcom pełną elastyczność i niezależność.

Dom mobilny MoonWave - HLL1000
Solidna i lekka konstrukcja z profili stalowych

Domy mobilne opierają się na stalowym szkielecie gwarantującym lekkość i wytrzymałość konstrukcji. Specjalna konstrukcja ścian wypełnionych pianą otwartokomórkową PUR zapewnia doskonałą izolację termiczną i akustyczną.

Dzięki zastosowaniu wysokiej jakości materiałów domy są odporne na warunki atmosferyczne, a ich mieszkańcy cieszą się bezpieczeństwem i komfortem o każdej porze roku.

Dom mobilny MoonWave - HLL1000
Systemy instalacyjne i energooszczędność

Domy mobilne są wyposażone we wszystkie niezbędne instalacje, które bez problemu można podłączyć do sieci. Komfort w chłodne dni zapewnia mieszkańcom ogrzewanie elektryczne.

Dzięki dobrej izolacji z piany PUR, domy są energooszczędne, co pozwala na zmniejszenie kosztów i wpływu na środowisko.

Dom mobilny MoonWave - HLL1000
Wykończenie wnętrz i aranżacja przestrzeni

Otrzymujemy w pełni wyposażony dom mobilny, gotowy do zamieszkania – od kuchni po łazienkę z prysznicem i ogrzewaniem, co zapewnia pełen komfort użytkowania.

Wnętrza urządzone są funkcjonalnie i nowocześnie, z wykorzystaniem takich materiałów, jak płyty MDF, OSB i drewno, ale też można zaaranżować je według własnych potrzeb.

Dom mobilny MoonWave - HLL1000
Funkcjonalność i ekologia

Domy mobilne łączą funkcjonalność z ekologią. Zastosowane rozwiązania konstrukcyjne zapewniają mniejsze zużycie energii.

Dzięki trwałym materiałom i energooszczędnym technologiom domy mobilne są przyjazne dla środowiska, wspierając nowoczesne budownictwo, co czyni je idealnym rozwiązaniem na stałe zamieszkanie, wypoczynek czy biuro.

Dom mobilny MoonWave - HLL1000
Dane techniczne

Specyfikacja

Powierzchnie i wymiary Powierzchnie i wymiary

Powierzchnia użytkowa
Tooltip
Suma powierzchni wszystkich pomieszczeń mieszkalnych, pomniejszona o pow. garażu, kotłowni, strychu, piwnicy. Jest liczona w 100% dla pomieszczeń o wysokości powyżej 2,2 m, w 50% dla pomieszczeń o wys. 2,2-1,4 m i niewliczana dla niższych niż 1,4 m.

41,15 m²

Powierzchnia zabudowy
Tooltip
Powierzchnia zajmowana przez część na- oraz nadziemną budynku liczona, jako rzut pionowy budynku na działkę.

48,32 m²

Powierzchnia całkowita
Tooltip
Całkowita powierzchnia wszystkich kondygnacji budynku łącznie z elementami nośnymi, takimi jak ściany zewnętrzne (z ociepleniem), słupy, tarasy, itp.

48,32 m²

Powierzchnia netto
Tooltip
Powierzchna wszystkich pomieszczeń w budynku mierzona na wysokości podłogi.

41,15 m²

Kubatura netto
Tooltip
Zazwyczaj jest to suma kubatur (objętości) pomieszczeń budynku, bez strychu, liczonych po zewnętrznym obrysie murów (z ociepleniem).

95,20 m³

Kubatura brutto
Tooltip
Zazwyczaj jest to suma kubatur (objętości) wszystkich pomieszczeń budynku, liczonych po zewnętrznym obrysie murów (z ociepleniem).

140,50 m³

Powierzchnia dachu

53,90 m²

Kąt nachylenia dachu
Tooltip
Nachylenie połaci dachu głównego podawane w stopniach. Uwaga! W niektórych projektach występuje więcej niż jedno nachylenie dachu.

14,40°

Wysokość budynku
Tooltip
Wysokość liczona od części budynku położonej najniżej przy powierzchni terenu do najwyższego punktu dachu (kalenicy) z wyłączeniem kominów.

3,80 m

Szerokość elewacji

12,02 m

Długość elewacji

4,02 m

Min. szerokość działki
Tooltip
Najmniejsza możliwa szerokość działki niezbędna do wybudowania wybranego domu. Składa się z szerokości elewacji domu powiększonej z obu stron o 3 m dla ściany bez otworów drzwiowych/okiennych lub 4 m, dla ściany z otworami.

20,02 m

Min. długość działki
Tooltip
Najmniejsza możliwa długość działki niezbędna do wybudowania wybranego domu. Składa się z długości elewacji domu powiększonej z obu stron o 3 m dla ściany bez otworów drzwiowych/okiennych lub 4 m, dla ściany z otworami.

12,02 m

Energooszczędność Energooszczędność

Ogrzewanie

grzejnik elektryczny żeberkowy w łazience, oraz grzejniki olejowe w sypialniach i salonie

Wentylacja

wentylacja wywiewna ciągła dwustopniowa z wentylatorem ściennym umieszczonym w łazience, nawietrzaki w oknach

Technologia i materiały Technologia i materiały

Posadowienie budynku

stopy fundamentowe

Ściany zewnętrzne

konstrukcja stalowa na podkonstrukcji drewnianej, ocieplenie piana PUR otwartokomórkowa 13cm

Ściany wewnętrzne

konstrukcja szkieletowa drewniana dach- konstrukcja stalowa na podkonstrukcji drewnianej wypełniona pianą PUR otwartokomórkową 13cm pokrycie dachu- blachodachówka

Konstrukcja dachu

konstrukcja stalowa na podkonstrukcji drewnianej wypełniona pianą PUR otwartokomórkową 13cm

Pokrycie dachu

blachodachówka

Elewacja

panele PVC

DOMY GOTOWE

Zbuduj swój dom w 3 prostych krokach

Wybierasz dom,
przygotowujemy ofertę

Konfigurujemy i tworzymy dla Ciebie bezpłatną ofertę. Pomagamy w weryfikacji działki.

Podpisujesz umowę, rusza produkcja

Podpisujesz umowę z naszym partnerem na produkcję i montaż Twojego domu. Nie martwisz się o terminy i znasz koszty budowy.

Ciesz się swoim domem

W zależności od wybranej technologii budowy, Producent albo przywiezie gotowe elementy na Twoją działkę, albo – w przypadku metody murowanej - rozpocznie proces budowy domu od podstaw. Tobie pozostaną już tylko wewnętrzne prace wykończeniowe.

Dom w 3 krokach

NIE CZEKAJ DŁUŻEJ!

Pomożemy Ci zrealizować marzenie o domu - nawet w 3 miesiące!

Ikona zadzwoń

Zadzwoń

71 71 88 970

pon.-pt. 8:00-19:00

Zadzwoń teraz
Ikona list

Napisz do nas:

domygotowe@extradom.pl
lub
Wolne terminy!

Zobacz na żywo nasz gotowy dom!

Zanim podejmiesz decyzję, spotkaj się z nami na budowie i zobacz, jak realizowana jest taka inwestycja. Dzięki temu:

  • Dowiesz się, jak wygląda budowa i efekt finalny.
  • Skonsultujesz swoje pomysły z naszym ekspertem

Zobacz podobne domy gotowe

1

/

3

Zdjęcie Bergen 70
Bergen 70
Dodano!
Dodano!
Pow. użytkowa
72,05 m²
Pow. zabudowy
91,82 m²
Pokoje
3
389 000 zł 5 399 zł/m²
Bez pozwolenia
Zdjęcie Dom mobilny StarPoint
Dom mobilny StarPoint
Dodano!
Dodano!
Pow. użytkowa
41,69 m²
Pow. zabudowy
57,11 m²
Pokoje
1
365 750 zł 8 792 zł/m²
Bez pozwolenia
Zdjęcie Dom prefabrykowany DH44
Dom prefabrykowany DH44
Dodano!
Dodano!
Pow. użytkowa
39,12 m²
Pow. zabudowy
44,46 m²
Pokoje
0
378 108 zł 9 665 zł/m²
Bez pozwolenia
Zdjęcie Dom mobilny Model Mazuria Economy
Pow. użytkowa
39 m²
Pow. zabudowy
48 m²
Pokoje
2
240 000 zł 6 154 zł/m²
Bez pozwolenia
Zdjęcie Dom mobilny Model Mazuria Standard
Pow. użytkowa
39 m²
Pow. zabudowy
48 m²
Pokoje
2
290 000 zł 7 436 zł/m²
Bez pozwolenia
Zdjęcie Dom mobilny Model Mazuria Premium
Pow. użytkowa
39 m²
Pow. zabudowy
48 m²
Pokoje
2
320 000 zł 8 205 zł/m²
Bez pozwolenia
Zdjęcie Dom szkieletowy Mezzanine Smart 35
Pow. użytkowa
45 m²
Pow. zabudowy
35 m²
Pokoje
1
242 750 zł 5 405 zł/m²
Bez pozwolenia
Zdjęcie Dom prefabrykowany DH55
Dom prefabrykowany DH55
Dodano!
Dodano!
Pow. użytkowa
47,30 m²
Pow. zabudowy
53,40 m²
Pokoje
0
429 084 zł 9 072 zł/m²
Bez pozwolenia
Zdjęcie Dom szkieletowy Family Smart
Pow. użytkowa
48,91 m²
Pow. zabudowy
35 m²
Pokoje
3
269 400 zł 5 508 zł/m²
Bez pozwolenia
Zdjęcie Dom mobilny SunStone
Dom mobilny SunStone
Dodano!
Dodano!
Pow. użytkowa
49,21 m²
Pow. zabudowy
57,11 m²
Pokoje
2
335 500 zł 6 818 zł/m²
Bez pozwolenia
Zdjęcie Dom prefabrykowany DH47-1
Dom prefabrykowany DH47-1
Dodano!
Dodano!
Pow. użytkowa
51,20 m²
Pow. zabudowy
48,64 m²
Pokoje
2
408 672 zł 7 982 zł/m²
Bez pozwolenia
Zdjęcie Dom prefabrykowany DH47 + przedsionek
Pow. użytkowa
53,72 m²
Pow. zabudowy
58,28 m²
Pokoje
2
459 540 zł 8 554 zł/m²

Graficzne opracowanie rzutów poglądowych widocznych na karcie projektu zostało wykonane przez Extradom.pl. Prezentowane przez Extradom.pl wizualizacje wykonane zostały przez autora projektu i należy poczytywać je jedynie za przykład i propozycję wykończenia, wizję architektoniczną autora projektu. Ostateczne wykończenie budynku może nastąpić na wiele sposobów. Szczegółowe rozwiązania zastosowane w oferowanej dokumentacji - w tym również ilość, lokalizacje i wygląd okien, drzwi, kominów - mogą w niewielkim stopniu różnić się od prezentowanej wizualizacji budynku.

Extradom.pl Spółka z ograniczoną odpowiedzialnością z siedzibą przy ul. Jaworskiej 13, 53-612 Wrocław, wpisana do rejestru przedsiębiorców Krajowego Rejestru Sądowego przez Sąd Rejonowy dla Wrocławia-Fabrycznej we Wrocławiu, VI Wydział Gospodarczy Krajowego Rejestru Sądowego do pod numerem KRS 0000648746, numer NIP 895-17-18-333, o kapitale zakładowym 708 150,00 zł uprzejmie informuje, iż poprzez serwis Extradom.pl umożliwia m.in. zapoznanie się przez konsumentów z ofertą handlową Partnerów Extradom.pl, którzy stosują metody budowy domów przy wykorzystaniu różnego rodzaju technologie prefabrykacji bądź modułowe (tzw. „Gotowe domy”).

Extradom.pl nie prowadzi jednakże sprzedaży ani nie oferuje usług polegających na doradztwie finansowym, prawnym ani podatkowym w zakresie inwestycji realizowanych w technologiach tzw. „Gotowych domów”. Informacje prezentowane w serwisie Extradom.pl dotyczące Partnerów Extradom.pl oferujących realizację inwestycji w technologiach „Gotowych domów” lub podobnych mają charakter informacyjny i reklamowy.

Prezentowane w serwisie Extradom.pl informacje dotyczące stosowanych przez Partnerów metod budowy domów w technologii prefabrykacji bądź modułowej pochodzą od Partnerów Extradom.pl.

Extradom.pl sp. z o.o. jedynie umożliwia nawiązanie kontaktu przez Użytkownika z Partnerem Extradom.pl stosującym tego rodzaju technologie budowy domów i nie jest stroną umowy o roboty budowlane zawieranej przez Użytkownika Extradom.pl z Partnerem Extradom.pl.

Zadzwoń i poproś
o bezpłatną wycenę

71 718 89 70
REKLAMA
Zamknij