👉 Projekty w extracenach + karta allegro 200 zł! 🔥

Koniec oferty za:

00godz.

00min.

00sek.

Sprawdź

Projekt domu SADYBA 2 KRD1205

Zapisz Dodano!
Porównaj Dodano!
ikona Pobierz i drukuj

Warstwy

Warstwy

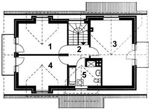
Rzut parteru

Powierzchnia (m²)
Tooltip
Powierzchnia pomieszczenia
to ta, z której faktycznie możesz korzystać – skosy i niskie części poddasza są liczone częściowo lub wcale.
  1. 100% dla wysokości powyżej 2,2 m,
  2. 50% dla wysokości 1,4–2,2 m,
  3. nie liczymy poniżej 1,4 m.

Powierzchnia podłogi
Liczymy po obrysie pomieszczenia, bez względu na jego wysokość/skosy. Jeśli nie ma skosów to powierzchnia podłogi i pomieszczenia jest taka sama.
pomieszczenia i podłogi
podłogi
1. Pokój dzienny
28,30
2. Wc
1,60
3. Wiatrołap
3,80
4. Spiżarnia
2,50
5. Hall
8,10
6. Kuchnia
8,20
7. Jadalnia
8,90
Razem
61,40
61,40
Powierzchnia (m²)
Tooltip
Powierzchnia pomieszczenia
to ta, z której faktycznie możesz korzystać – skosy i niskie części poddasza są liczone częściowo lub wcale.
  1. 100% dla wysokości powyżej 2,2 m,
  2. 50% dla wysokości 1,4–2,2 m,
  3. nie liczymy poniżej 1,4 m.

Powierzchnia podłogi
Liczymy po obrysie pomieszczenia, bez względu na jego wysokość/skosy. Jeśli nie ma skosów to powierzchnia podłogi i pomieszczenia jest taka sama.
pomieszczenia i podłogi
podłogi
1. Pokój
12
2. Przedpokój
3,40
3. Pokój
20,80
4. Pokój
12
5. Łazienka
4,90
Razem
53,10
53,10

    Usytuowanie na działce

    Czy ten projekt pasuje na
    Twoją działkę?

    Chętnie to sprawdzimy!

    Dowiedz się:

    • czy zmieści się na niej wybrany przez Ciebie dom
    • jakie parametry musi spełniać dom według miejscowego planu zagospodarowania lub warunków zabudowy (np. kąt nachylenia i typ dachu, liczba kondygnacji itp.
    • jakie inne projekty pasują na Twoją działkę – znajdziemy je dla Ciebie!

Pokoje

3

Łazienki i WC

2

Garaż

0
więcej

SADYBA 2 - KRD1205

ikona3
Pokoje (bez salonu)
ikona 2
Łazienki (z toaletami)
ikona 0
Liczba stanowisk garażowych
(z wiatą garażową)

Projekt został
wycofany z oferty

W razie pytań prosimy o kontakt
z Centrum Obsługi Klienta
Konsultant
71 715 20 60

pon.-pt. 8-21, sob. 9-17

Parter - 61,40 m²

Parter projektu SADYBA 2

Zapytaj, co możesz zmienić

Powierzchnia (m²)
Tooltip
Powierzchnia pomieszczenia
to ta, z której faktycznie możesz korzystać – skosy i niskie części poddasza są liczone częściowo lub wcale.
  1. 100% dla wysokości powyżej 2,2 m,
  2. 50% dla wysokości 1,4–2,2 m,
  3. nie liczymy poniżej 1,4 m.

Powierzchnia podłogi
Liczymy po obrysie pomieszczenia, bez względu na jego wysokość/skosy. Jeśli nie ma skosów to powierzchnia podłogi i pomieszczenia jest taka sama.
pomieszczenia i podłogi
podłogi
1. Pokój dzienny
28,30
2. Wc
1,60
3. Wiatrołap
3,80
4. Spiżarnia
2,50
5. Hall
8,10
6. Kuchnia
8,20
7. Jadalnia
8,90
Razem
61,40
61,40

Poddasze - 53,10 m²

Poddasze projektu SADYBA 2

Zapytaj, co możesz zmienić

Powierzchnia (m²)
Tooltip
Powierzchnia pomieszczenia
to ta, z której faktycznie możesz korzystać – skosy i niskie części poddasza są liczone częściowo lub wcale.
  1. 100% dla wysokości powyżej 2,2 m,
  2. 50% dla wysokości 1,4–2,2 m,
  3. nie liczymy poniżej 1,4 m.

Powierzchnia podłogi
Liczymy po obrysie pomieszczenia, bez względu na jego wysokość/skosy. Jeśli nie ma skosów to powierzchnia podłogi i pomieszczenia jest taka sama.
pomieszczenia i podłogi
podłogi
1. Pokój
12
2. Przedpokój
3,40
3. Pokój
20,80
4. Pokój
12
5. Łazienka
4,90
Razem
53,10
53,10

Podobne projekty (10203)

Zobacz wszystkie
Nowość
Zdjęcie 1 projektu LK&1827 LKP1021
LK&1827
Dodano!
Dodano!
232,54 m²
4
1
2

16 000 zł

Zdjęcie 1 projektu Mini 4 modern energo WRC2765
Mini 4 modern energo
Dodano!
Dodano!
114,22 m²
3
2
0

5 200 zł

Nowość
Zdjęcie 1 projektu Astina 2 BSE1284
Astina 2
Dodano!
Dodano!
158,95 m²
4
3
2

6 800 zł

Nowość
Zdjęcie 1 projektu Mini 4 modern plus energo plus WRC2837
110,05 m²
3
2
0

6 600 zł

Nowość
Zdjęcie 1 projektu Mini 1 G1 modern plus energo plus WRC2838
86,22 m²
3
2
1

6 100 zł

NIŻSZA CENA 🔥
Nowość
Zdjęcie 1 projektu N-114 PZB1117
N-114
Dodano!
Dodano!
126,40 m²
3
2
1

7 875 zł

8 290 zł

Tooltip

Cena regularna

7 875 zł najniższa cena
Tooltip

Najniższa cena z 30 dni
przed obniżką

NIŻSZA CENA 🔥
Zdjęcie 1 projektu Serengeti WRN1498
Serengeti
Dodano!
Dodano!
69,60 m²
2
1
0

3 275 zł

3 495 zł

Tooltip

Cena regularna

3 295 zł najniższa cena
Tooltip

Najniższa cena z 30 dni
przed obniżką

Zdjęcie 1 projektu EX 2 soft WRC2720
EX 2 soft
Dodano!
Dodano!
124,39 m²
3
5
0

5 000 zł

Przekroje

Przekrój pionowy
Autor: Archeton

Dane techniczne projektu

Powierzchnie i wymiary Powierzchnie i wymiary

Energooszczędność Energooszczędność

Oze Czym jest OZE (Odnawialne Źródło Energii)?
Warunki techniczne

Projekt zgody z WT 2021

Opis projektu domu
SADYBA 2

Dom parterowy, z użytkowym poddaszem, niepodpiwniczony. Funkcjonalny dom parterowy z poddaszem mieszkalnym. Otwarta przestrzeń parteru mieści hall, pokój dzienny i kuchnię z jadalnią. Z hallu dostępne są także: spiżarnia, WC oraz otwarta klatka schodowa prowadząca na poddasze. Kondygnacja poddasza posiada 2 pokoje jednoosobowe i 1 pokój dwuosobowy z łazienką. Niewielki dom nawiązujący wyglądem do form tradycyjnych. Prosta bryła nakryta dwuspadowym dachem wzbogacona lukarnami i zadaszeniem wejścia.
Czytaj więcej

Polecani producenci

Kompletne systemy rekuperacji

tło producenta

Alnor

Dowiedz się więcej

Dachy modułowe ze stali

tło producenta

Budmat

Poznaj szczegóły oferty

Prefabrykowane konstrukcje dachowe

tło producenta

WIĄZAR POLSKA

Zobacz więcej

Sprawdź nową generację okien GREENVIEW

tło producenta

FAKRO

Sprawdź nową generację okien GREENVIEW

Styropian, tynki, farby, kleje

tło producenta

Termo Organika

Poznaj super jakość

Okna, drzwi, osłony przeciwsłoneczne

tło producenta

Aluprof

Sprawdź ofertę
Zobacz więcej

Społeczność projektu domu
SADYBA 2 w budowie

Dołącz do społeczności osób, które budują ten dom lub są zainteresowane jego budową.

  • Oglądaj zdjęcia z budowy
  • Zadawaj pytania
  • Wymieniaj się doświadczeniami

Opinie o projekcie domu SADYBA 2

Ocena

Ten projekt nie ma jeszcze opinii, bądź pierwszy!

Dodaj opinię

ASYSTENT WYBORU PROJEKTU

Szukasz idealnego projektu? Znajdziemy go dla Ciebie!

Doradca na podstawie Twoich wskazówek przygotuje spersonalizowaną listę projektów

Graficzne opracowanie rzutów poglądowych widocznych na karcie projektu zostało wykonane przez Extradom.pl. Prezentowane przez Extradom.pl wizualizacje wykonane zostały przez autora projektu i należy poczytywać je jedynie za przykład i propozycję wykończenia, wizję architektoniczną autora projektu. Ostateczne wykończenie budynku może nastąpić na wiele sposobów. Szczegółowe rozwiązania zastosowane w oferowanej dokumentacji - w tym również ilość, lokalizacje i wygląd okien, drzwi, kominów - mogą w niewielkim stopniu różnić się od prezentowanej wizualizacji budynku.

REKLAMA
Zamknij