👉 Niższe ceny + karta allegro 200 zł! 🔥

Koniec oferty za:

0dni

00godz.

00min.

00sek.

Sprawdź

Projekt przychodni at-177 BSK1044

Zapisz Dodano!
Porównaj Dodano!
ikona Pobierz i drukuj
Dodaj opinię

Warstwy

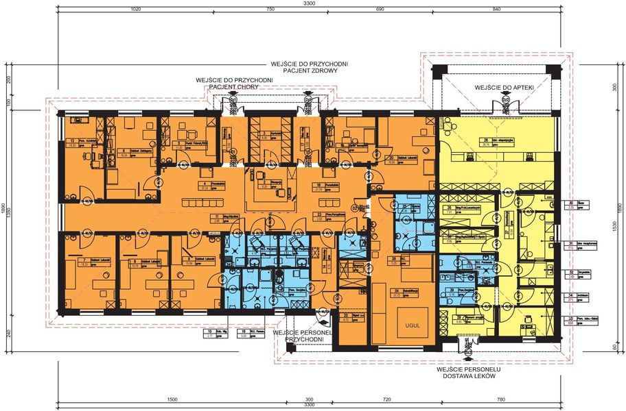
Rzut parteru

Powierzchnia (m²)
Tooltip
Powierzchnia pomieszczenia
to ta, z której faktycznie możesz korzystać – skosy i niskie części poddasza są liczone częściowo lub wcale.
  1. 100% dla wysokości powyżej 2,2 m,
  2. 50% dla wysokości 1,4–2,2 m,
  3. nie liczymy poniżej 1,4 m.

Powierzchnia podłogi
Liczymy po obrysie pomieszczenia, bez względu na jego wysokość/skosy. Jeśli nie ma skosów to powierzchnia podłogi i pomieszczenia jest taka sama.
pomieszczenia i podłogi
podłogi
1. Wiatrołap
5,69
2. Recepcja
9,20
3. Kartoteki
8,26
4. Poczekalnia
37,24
5. Punkt pobrań/ekg
11,20
6. Gabinet zabiegowy
18,24
7. Gabinet lekarski
16,33
8. Gabinet lekarski
15,79
9. Gabinet lekarski
15,99
10. Kabina higieniczna
2,77
11. Magazyn odpadów medycznych
2,86
12. Pomieszczenie administracyjne
14,20
13. Wc pacjenta
4,18
14. Wiatrołap
8,16
15. Pomieszczenie socjalne
6,07
16. Wc personelu
5,25
17. Wiatrołap
5,69
18. Poczekalnia
21,79
19. Punkt szczepień
10,22
20. Gabinet lekarski ped.
19,24
21. Wc pacjenta
4,18
22. Kotłownia
6,72
23. Pomieszczenie porządkowe
2,83
24. Rehabilitacja
31,72
25. Szatnia
4,36
26. Wc
5,25
27. Magazyn
3,35
28. Izba ekspedycyjna
36,74
29. Komora przyjęć
6,95
30. Śluza
2,53
31. Izba recepturowa
7,13
32. Zmywalnia
3,68
33. Pomieszczenie administracyjno-szkoleniowe
6,95
34. Archiwum
2,71
35. Magazyn produktów leczniczych
7,91
36. Magazyn suplementów diety i opatrunków
5,86
37. Korytarz
10,84
38. Wc personelu
4,92
39. Pomieszczenie socjalne
5,16
Razem
398,16
398,16

    Usytuowanie na działce

    Czy ten projekt pasuje na
    Twoją działkę?

    Chętnie to sprawdzimy!

    Dowiedz się:

    • czy zmieści się na niej wybrany przez Ciebie dom
    • jakie parametry musi spełniać dom według miejscowego planu zagospodarowania lub warunków zabudowy (np. kąt nachylenia i typ dachu, liczba kondygnacji itp.
    • jakie inne projekty pasują na Twoją działkę – znajdziemy je dla Ciebie!

Pow. użytkowa

398 m²

Pokoje

0

Łazienki i WC

5

Garaż

0

Kąt dachu

28°

Wysokość budynku

8,75 m

Powierzchnia zabudowy

513,90 m²

Min. szer. i dł. działki

27 x 41 m

Konstrukcja

ikona
Murowana

Pokaż więcej parametrów

Zapisz Dodano!
Porównaj Dodano!
ikona Pobierz i drukuj

at-177 - BSK1044

ikona 398 m²
Powierzchnia użytkowa
ikona0
Pokoje (bez salonu)
ikona 5
Łazienki (z toaletami)
ikona 0
Liczba stanowisk garażowych
(z wiatą garażową)
ikona
Konstrukcja: Murowana

Projekt został
wycofany z oferty

W razie pytań prosimy o kontakt
z Centrum Obsługi Klienta
Konsultant
71 715 20 60

pon.-pt. 8-21, sob. 9-17

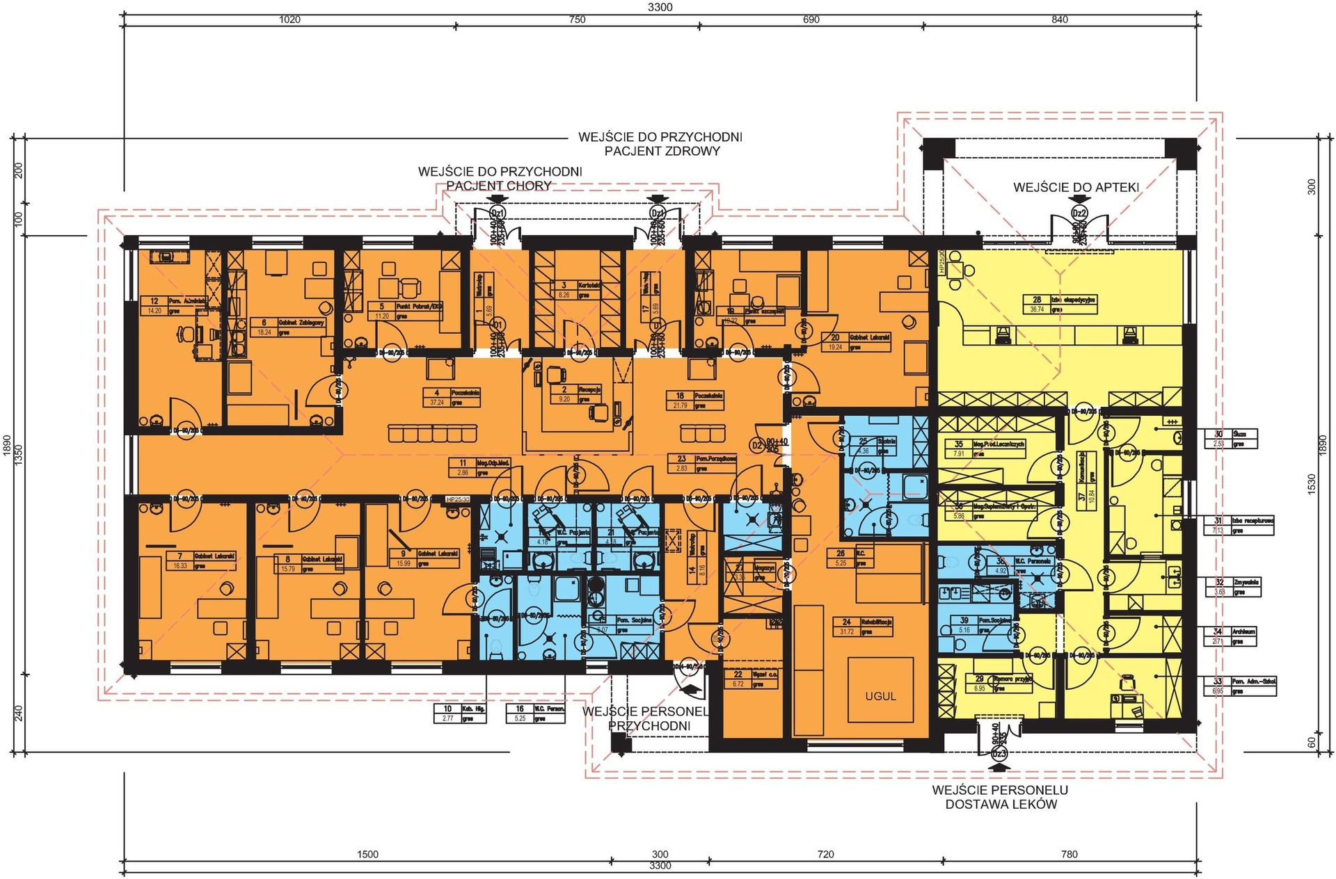
Parter - 398,16 m²

Projekt przychodni at-177 - rzut parteru, dom liczy 0 pokoje, 5 łazienki i wc

Zapytaj, co możesz zmienić

Powierzchnia (m²)
Tooltip
Powierzchnia pomieszczenia
to ta, z której faktycznie możesz korzystać – skosy i niskie części poddasza są liczone częściowo lub wcale.
  1. 100% dla wysokości powyżej 2,2 m,
  2. 50% dla wysokości 1,4–2,2 m,
  3. nie liczymy poniżej 1,4 m.

Powierzchnia podłogi
Liczymy po obrysie pomieszczenia, bez względu na jego wysokość/skosy. Jeśli nie ma skosów to powierzchnia podłogi i pomieszczenia jest taka sama.
pomieszczenia i podłogi
podłogi
1. Wiatrołap
5,69
2. Recepcja
9,20
3. Kartoteki
8,26
4. Poczekalnia
37,24
5. Punkt pobrań/ekg
11,20
6. Gabinet zabiegowy
18,24
7. Gabinet lekarski
16,33
8. Gabinet lekarski
15,79
9. Gabinet lekarski
15,99
10. Kabina higieniczna
2,77
11. Magazyn odpadów medycznych
2,86
12. Pomieszczenie administracyjne
14,20
13. Wc pacjenta
4,18
14. Wiatrołap
8,16
15. Pomieszczenie socjalne
6,07
16. Wc personelu
5,25
17. Wiatrołap
5,69
18. Poczekalnia
21,79
19. Punkt szczepień
10,22
20. Gabinet lekarski ped.
19,24
21. Wc pacjenta
4,18
22. Kotłownia
6,72
23. Pomieszczenie porządkowe
2,83
24. Rehabilitacja
31,72
25. Szatnia
4,36
26. Wc
5,25
27. Magazyn
3,35
28. Izba ekspedycyjna
36,74
29. Komora przyjęć
6,95
30. Śluza
2,53
31. Izba recepturowa
7,13
32. Zmywalnia
3,68
33. Pomieszczenie administracyjno-szkoleniowe
6,95
34. Archiwum
2,71
35. Magazyn produktów leczniczych
7,91
36. Magazyn suplementów diety i opatrunków
5,86
37. Korytarz
10,84
38. Wc personelu
4,92
39. Pomieszczenie socjalne
5,16
Razem
398,16
398,16

Przekroje

Przekrój pionowy
Autor: AT Studio Projekt

Dane techniczne projektu

Powierzchnie i wymiary Powierzchnie i wymiary

Powierzchnia użytkowa
Tooltip
Suma powierzchni wszystkich pomieszczeń mieszkalnych, pomniejszona o pow. garażu, kotłowni, strychu, piwnicy. Jest liczona w 100% dla pomieszczeń o wysokości powyżej 2,2 m, w 50% dla pomieszczeń o wys. 2,2-1,4 m i niewliczana dla niższych niż 1,4 m.

398 m²

Powierzchnia zabudowy
Tooltip
Powierzchnia zajmowana przez część na- oraz nadziemną budynku liczona, jako rzut pionowy budynku na działkę.

513,90 m²

Powierzchnia netto
Tooltip
Powierzchna wszystkich pomieszczeń w budynku mierzona na wysokości podłogi.

398,16 m²

Kąt nachylenia dachu
Tooltip
Nachylenie połaci dachu głównego podawane w stopniach. Uwaga! W niektórych projektach występuje więcej niż jedno nachylenie dachu.

28°

Wysokość budynku
Tooltip
Wysokość liczona od części budynku położonej najniżej przy powierzchni terenu do najwyższego punktu dachu (kalenicy) z wyłączeniem kominów.

8,75 m

Szerokość elewacji

18,90 m

Długość elewacji

33 m

Min. szerokość działki
Tooltip
Najmniejsza możliwa szerokość działki niezbędna do wybudowania wybranego domu. Składa się z szerokości elewacji domu powiększonej z obu stron o 3 m dla ściany bez otworów drzwiowych/okiennych lub 4 m, dla ściany z otworami.

27 m

Min. długość działki
Tooltip
Najmniejsza możliwa długość działki niezbędna do wybudowania wybranego domu. Składa się z długości elewacji domu powiększonej z obu stron o 3 m dla ściany bez otworów drzwiowych/okiennych lub 4 m, dla ściany z otworami.

41 m

Energooszczędność Energooszczędność

Oze Czym jest OZE (Odnawialne Źródło Energii)?
Warunki techniczne

Projekt zgody z WT 2021

Technologia i konstrukcja Technologia i konstrukcja

Konstrukcja

Murowana

Opis szczegółowy

Ściany zewnętrzne: ytong gr. 24cm ocieplone styropianem 18cm . Ściany wewnętrzne: silka 24cm . Strop: gęstożebrowy teriva . Konstrukcja dachu: krokwiowo-płatwiowa . Dach: blacha płaska na rąbek stojący, blachodachówka . połać dachu pod kątem – 28 . Ogrzewanie: na paliwo ekologiczne .

Strop

Gęstożebrowy

Reklama
Okna i drzwi tarasowe

Nowoczesne okna PVC i aluminiowe WIŚNIOWSKI – doskonała izolacja, elegancki design i niezrównana trwałość.

Wiśniowski
Sprawdź parametry!
Okna dachowe

Oferujemy bezpłatne konsultacje w zakresie wszystkich rozwiązań VELUX. Wyceny, porady dotyczące doboru okien i rolet zewnętrznych - sprawdź!

Velux
Sprawdź szczegóły
Okna i drzwi tarasowe

Systemy drzwi i okien z myślą o nowoczesnej architekturze i dużych przeszkleniach tarasowych.

Drutex
Sprawdź ofertę!
Pompa ciepła

Wybierz pompę ciepła, która pasuje do Twojego domu. Niezależnie od tego, czy ustawienie wewnątrz czy na zewnątrz, pompy ciepła STIEBEL ELTRON dopasują się do każdej przestrzeni.

Stiebel
Dobierz pompę ciepła
Drzwi

Idealne połączenie sztuki z technologią! Nowoczesne i energooszczędne drzwi wyróżniają się doskonałym połączeniem funkcjonalności, wysokiej estetyki wykonania oraz unikalnego stylu.

Drutex
Zobacz więcej
Drzwi

Ciepłe drzwi WIŚNIOWSKI z kontrolą dostępu. Szeroka gama wzorów i kolorów.

Wiśniowski
Wybierz najlepsze
Bramy garażowe

Automatyczne bramy garażowe segmentowe i uchylne WIŚNIOWSKI na wymiar i z systemem smart home w standardzie.

Wiśniowski
Sprawdź ofertę!
Rekuperacja

Alnor - kompletny system rekuperacji. Dobierz idealne rozwiązanie dla Twojego domu!

Alnor
Dobierz rekuperator
Dach

Producent stalowych pokryć dachowych i systemów elewacyjnych. Precyzja wykonania, trwałość na lata i szybki montaż doceniany przez dekarzy. Postaw na solidny dach Budmat.

Budmat
Sprawdź ofertę
Ogrodzenie

Nowoczesne stalowe ogrodzenia Budmat - estetyka, bezpieczeństwo i trwałość na lata. Systemowe rozwiązania na wymiar, dopasowane do każdego domu.

Budmat
Sprawdź ofertę

Opis projektu przychodni
at-177

Projekt Przychodnia zdrowia NZOZ z Apteką ogólnodostępną. Program użytkowy przewiduje udzielanie świadczeń zdrowotnych dorosłym, dzieciom chorym i dzieciom zdrowym. W budynku wyodrębniona jest apteka ogólnodostępna. Przewidziano odrębne pomieszczenia dla pacjenta zdrowego i pacjenta chorego połączone wspólnym pomieszczeniem recepcji, odrębne funkcjonalnie w całości pomieszczenia apteki ogólnodostępnej, oraz pomieszczenia w których odbywała się będzie rehabilitacja z dostępem od strony pomieszczeń dla pacjenta zdrowego. Do pomieszczeń przychodni zdrowia NZOZ prowadzą dwa odrębne wejścia z zewnątrz dla pacjenta zdrowego i chorego oraz odrębne wejście z zewnątrz usytuowanego od tyłu budynku dla personelu przychodni. Do apteki ogólnodostępnej prowadzi odrębne wejście z zewnątrz oraz odrębne wejście z zewnątrz od tyłu budynku dla personelu apteki oraz dostaw leków. Budynek przychodni zdrowia NZOZ i apteki , projektowany jest w technologii tradycyjnej murowanej: ściany zewnętrzne z bloczków Ytong PP3/0,5 S+GT gr. 24cm ocieplone styropianem Termo Organika „Termonium Fasada” gr. 18cm metodą lekką mokrą, strop gęsto żebrowy belkowo-pustakowym typu Konbet Teriva 24/60 Base o wysokości konstrukcyjnej 24cm z wypełnieniem między belkami kratowymi pustakami stropowymi Termo 10-komorowymi Konbet, dach wielospadowy o konstrukcji drewnianej płatwiowo-kleszczowej kryty blachą płaską Ruukki Classic na rąbek stojący. Budynek jednokondygnacyjny nie podpiwniczony. Elewację zaprojektowano z tynku silikatowego z elementami z deski elewacyjnej, cokół zaprojektowano z tynku silikatowego. Stolarka okienna i drzwiowa PCV lub aluminiowa. Budynek przystosowany jest dla osób niepełnosprawnych poruszających się na wózkach inwalidzkich. Wjazd na parter odbywa się bezpośrednio z poziomu terenu. Projekt Przychodni Zdrowia NZOZ i Apteki wg kategorii obiektów budowlanych zakwalifikowany został do XI kategorii.
Czytaj więcej

Polecani producenci

Kompletne systemy rekuperacji

tło producenta

Alnor

Dowiedz się więcej

Dachy modułowe ze stali

tło producenta

Budmat

Poznaj szczegóły oferty

Prefabrykowane konstrukcje dachowe

tło producenta

WIĄZAR POLSKA

Zobacz więcej
Zobacz więcej

Społeczność projektu przychodni
at-177 w budowie

Dołącz do społeczności osób, które budują ten dom lub są zainteresowane jego budową.

  • Oglądaj zdjęcia z budowy
  • Zadawaj pytania
  • Wymieniaj się doświadczeniami

Opinie o projekcie przychodni
at-177

Opinie niezweryfikowane

Bądź pierwszy!
Ten projekt nie ma jeszcze opinii, bądź pierwszy!

ikona Dodaj opinię o projekcie

ASYSTENT WYBORU PROJEKTU

Szukasz idealnego projektu? Znajdziemy go dla Ciebie!

Doradca na podstawie Twoich wskazówek przygotuje spersonalizowaną listę projektów

Graficzne opracowanie rzutów poglądowych widocznych na karcie projektu zostało wykonane przez Extradom.pl. Prezentowane przez Extradom.pl wizualizacje wykonane zostały przez autora projektu i należy poczytywać je jedynie za przykład i propozycję wykończenia, wizję architektoniczną autora projektu. Ostateczne wykończenie budynku może nastąpić na wiele sposobów. Szczegółowe rozwiązania zastosowane w oferowanej dokumentacji - w tym również ilość, lokalizacje i wygląd okien, drzwi, kominów - mogą w niewielkim stopniu różnić się od prezentowanej wizualizacji budynku.

REKLAMA
Zamknij