👉 Niższe ceny + karta allegro 200 zł! 🔥

Koniec oferty za:

0dni

00godz.

00min.

00sek.

Sprawdź

Projekt hotelu AI 102 KRL1095

Zapisz Dodano!
Porównaj Dodano!
ikona Pobierz i drukuj
Dodaj opinię

Warstwy

Warstwy

Warstwy

Warstwy

Rzut parteru

Powierzchnia (m²)
Tooltip
Powierzchnia pomieszczenia
to ta, z której faktycznie możesz korzystać – skosy i niskie części poddasza są liczone częściowo lub wcale.
  1. 100% dla wysokości powyżej 2,2 m,
  2. 50% dla wysokości 1,4–2,2 m,
  3. nie liczymy poniżej 1,4 m.

Powierzchnia podłogi
Liczymy po obrysie pomieszczenia, bez względu na jego wysokość/skosy. Jeśli nie ma skosów to powierzchnia podłogi i pomieszczenia jest taka sama.
pomieszczenia i podłogi
podłogi
1. Schody
11,90
2. Pomieszczenie gospodarcze
10,90
3. Pomieszczenie gospodarcze
10,70
4. Kotłownia
21,20
5. Garaż jednostanowiskowy
21,20
6. Garaż dwustanowiskowy
39,90
7. Korytarz
22
8. Sauna
20,20
9. Jacuzzi
20,20
10. Pokój dzienny
32,90
11. Pokój dzienny
30
12. Wiatrołap
3,70
13. Pokój
10,90
14. Pokój
20,10
15. Korytarz
9,60
16. Kuchnia
20
17. Korytarz
5,30
18. Wc
1,40
19. Łazienka
6,40
20. Spiżarnia
6,90
Razem
325,40
325,40
Powierzchnia (m²)
Tooltip
Powierzchnia pomieszczenia
to ta, z której faktycznie możesz korzystać – skosy i niskie części poddasza są liczone częściowo lub wcale.
  1. 100% dla wysokości powyżej 2,2 m,
  2. 50% dla wysokości 1,4–2,2 m,
  3. nie liczymy poniżej 1,4 m.

Powierzchnia podłogi
Liczymy po obrysie pomieszczenia, bez względu na jego wysokość/skosy. Jeśli nie ma skosów to powierzchnia podłogi i pomieszczenia jest taka sama.
pomieszczenia i podłogi
podłogi
1. Wiatrołap
5,80
2. Hall + recepcja
23,30
3. Schody
38,80
4. Pokój
19,40
5. Pokój
19,40
6. Pomieszczenie socjalne
19,40
7. Sala kawiarni
90,10
8. Kuchnia + zaplecze
40,50
9. Łazienka
13,30
Razem
270
270
Powierzchnia (m²)
Tooltip
Powierzchnia pomieszczenia
to ta, z której faktycznie możesz korzystać – skosy i niskie części poddasza są liczone częściowo lub wcale.
  1. 100% dla wysokości powyżej 2,2 m,
  2. 50% dla wysokości 1,4–2,2 m,
  3. nie liczymy poniżej 1,4 m.

Powierzchnia podłogi
Liczymy po obrysie pomieszczenia, bez względu na jego wysokość/skosy. Jeśli nie ma skosów to powierzchnia podłogi i pomieszczenia jest taka sama.
pomieszczenia i podłogi
podłogi
1. Schody
24,10
2. Pokój
20,30
3. Korytarz
22
4. Pomieszczenie gospodarcze
10,50
5. Pokój
20,30
6. Pokój
20,30
7. Pokój
20,30
8. Pokój
42
9. Pokój
42
10. Pokój
20,30
11. Pokój
20,30
Razem
262,40
262,40
Powierzchnia (m²)
Tooltip
Powierzchnia pomieszczenia
to ta, z której faktycznie możesz korzystać – skosy i niskie części poddasza są liczone częściowo lub wcale.
  1. 100% dla wysokości powyżej 2,2 m,
  2. 50% dla wysokości 1,4–2,2 m,
  3. nie liczymy poniżej 1,4 m.

Powierzchnia podłogi
Liczymy po obrysie pomieszczenia, bez względu na jego wysokość/skosy. Jeśli nie ma skosów to powierzchnia podłogi i pomieszczenia jest taka sama.
pomieszczenia
podłogi
1. Schody
20,40
20,40
2. Pomieszczenie gospodarcze
5,80
5,80
3. Pokój
24,40
26,84
4. Pokój
22,40
24,85
5. Pokój
33,50
37,63
6. Pokój
22,40
24,85
7. Pokój
24,40
26,84
8. Korytarz
23
23
Razem
176,30
190,21

    Usytuowanie na działce

    Czy ten projekt pasuje na
    Twoją działkę?

    Chętnie to sprawdzimy!

    Dowiedz się:

    • czy zmieści się na niej wybrany przez Ciebie dom
    • jakie parametry musi spełniać dom według miejscowego planu zagospodarowania lub warunków zabudowy (np. kąt nachylenia i typ dachu, liczba kondygnacji itp.
    • jakie inne projekty pasują na Twoją działkę – znajdziemy je dla Ciebie!

Pow. użytkowa

1 034,10 m²

Pokoje

17

Łazienki i WC

1

Garaż

3

Kąt dachu

40°

Wysokość budynku

11,72 m

Powierzchnia zabudowy

409,91 m²

Konstrukcja

ikona
Murowana

Pokaż więcej parametrów

Zapisz Dodano!
Porównaj Dodano!
ikona Pobierz i drukuj

AI 102 - KRL1095

ikona 1 034,10 m²
Powierzchnia użytkowa
ikona17
Pokoje (bez salonu)
ikona 1
Łazienki (z toaletami)
ikona 3
Liczba stanowisk garażowych
(z wiatą garażową)
ikona
Konstrukcja: Murowana

Projekt został
wycofany z oferty

W razie pytań prosimy o kontakt
z Centrum Obsługi Klienta
Konsultant
71 715 20 60

pon.-pt. 8-21, sob. 9-17

Piwnica - 325,40 m²

Projekt hotelu AI 102 - rzut piwnicy, dom liczy 17 pokoje, 1 łazienki i wc

Zapytaj, co możesz zmienić

Powierzchnia (m²)
Tooltip
Powierzchnia pomieszczenia
to ta, z której faktycznie możesz korzystać – skosy i niskie części poddasza są liczone częściowo lub wcale.
  1. 100% dla wysokości powyżej 2,2 m,
  2. 50% dla wysokości 1,4–2,2 m,
  3. nie liczymy poniżej 1,4 m.

Powierzchnia podłogi
Liczymy po obrysie pomieszczenia, bez względu na jego wysokość/skosy. Jeśli nie ma skosów to powierzchnia podłogi i pomieszczenia jest taka sama.
pomieszczenia i podłogi
podłogi
1. Schody
11,90
2. Pomieszczenie gospodarcze
10,90
3. Pomieszczenie gospodarcze
10,70
4. Kotłownia
21,20
5. Garaż jednostanowiskowy
21,20
6. Garaż dwustanowiskowy
39,90
7. Korytarz
22
8. Sauna
20,20
9. Jacuzzi
20,20
10. Pokój dzienny
32,90
11. Pokój dzienny
30
12. Wiatrołap
3,70
13. Pokój
10,90
14. Pokój
20,10
15. Korytarz
9,60
16. Kuchnia
20
17. Korytarz
5,30
18. Wc
1,40
19. Łazienka
6,40
20. Spiżarnia
6,90
Razem
325,40
325,40

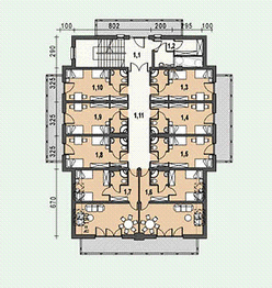
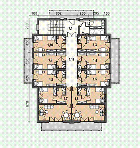
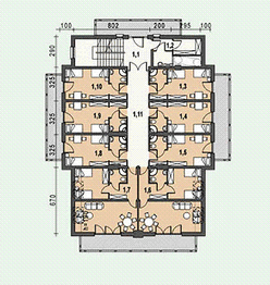
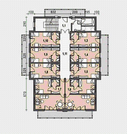
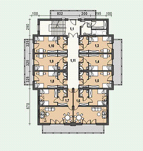
Parter - 270 m²

Projekt hotelu AI 102 - rzut parteru, dom liczy 17 pokoje, 1 łazienki i wc

Zapytaj, co możesz zmienić

Powierzchnia (m²)
Tooltip
Powierzchnia pomieszczenia
to ta, z której faktycznie możesz korzystać – skosy i niskie części poddasza są liczone częściowo lub wcale.
  1. 100% dla wysokości powyżej 2,2 m,
  2. 50% dla wysokości 1,4–2,2 m,
  3. nie liczymy poniżej 1,4 m.

Powierzchnia podłogi
Liczymy po obrysie pomieszczenia, bez względu na jego wysokość/skosy. Jeśli nie ma skosów to powierzchnia podłogi i pomieszczenia jest taka sama.
pomieszczenia i podłogi
podłogi
1. Wiatrołap
5,80
2. Hall + recepcja
23,30
3. Schody
38,80
4. Pokój
19,40
5. Pokój
19,40
6. Pomieszczenie socjalne
19,40
7. Sala kawiarni
90,10
8. Kuchnia + zaplecze
40,50
9. Łazienka
13,30
Razem
270
270

Piętro 1 - 262,40 m²

Projekt hotelu AI 102 - rzut 1 piętra, dom liczy 17 pokoje, 1 łazienki i wc

Zapytaj, co możesz zmienić

Powierzchnia (m²)
Tooltip
Powierzchnia pomieszczenia
to ta, z której faktycznie możesz korzystać – skosy i niskie części poddasza są liczone częściowo lub wcale.
  1. 100% dla wysokości powyżej 2,2 m,
  2. 50% dla wysokości 1,4–2,2 m,
  3. nie liczymy poniżej 1,4 m.

Powierzchnia podłogi
Liczymy po obrysie pomieszczenia, bez względu na jego wysokość/skosy. Jeśli nie ma skosów to powierzchnia podłogi i pomieszczenia jest taka sama.
pomieszczenia i podłogi
podłogi
1. Schody
24,10
2. Pokój
20,30
3. Korytarz
22
4. Pomieszczenie gospodarcze
10,50
5. Pokój
20,30
6. Pokój
20,30
7. Pokój
20,30
8. Pokój
42
9. Pokój
42
10. Pokój
20,30
11. Pokój
20,30
Razem
262,40
262,40

Poddasze - 176,30 m²

Projekt hotelu AI 102 - rzut poddasza, dom liczy 17 pokoje, 1 łazienki i wc

Zapytaj, co możesz zmienić

Powierzchnia (m²)
Tooltip
Powierzchnia pomieszczenia
to ta, z której faktycznie możesz korzystać – skosy i niskie części poddasza są liczone częściowo lub wcale.
  1. 100% dla wysokości powyżej 2,2 m,
  2. 50% dla wysokości 1,4–2,2 m,
  3. nie liczymy poniżej 1,4 m.

Powierzchnia podłogi
Liczymy po obrysie pomieszczenia, bez względu na jego wysokość/skosy. Jeśli nie ma skosów to powierzchnia podłogi i pomieszczenia jest taka sama.
pomieszczenia
podłogi
1. Schody
20,40
20,40
2. Pomieszczenie gospodarcze
5,80
5,80
3. Pokój
24,40
26,84
4. Pokój
22,40
24,85
5. Pokój
33,50
37,63
6. Pokój
22,40
24,85
7. Pokój
24,40
26,84
8. Korytarz
23
23
Razem
176,30
190,21

Elewacje

Frontowa
Tylna
Lewa
Prawa

Przekroje

Przekrój pionowy

Usytuowanie na działce

Czy ten projekt pasuje na
Twoją działkę?

Chętnie to sprawdzimy!

Czy ten projekt pasuje na
Twoją działkę?

Chętnie to sprawdzimy!

Dowiedz się:

  • czy zmieści się na niej wybrany przez Ciebie dom
  • jakie parametry musi spełniać dom według miejscowego planu zagospodarowania lub warunków zabudowy (np. kąt nachylenia i typ dachu, liczba kondygnacji itp.
  • jakie inne projekty pasują na Twoją działkę – znajdziemy je dla Ciebie!
Autor: ArchStudio

Dane techniczne projektu

Powierzchnie i wymiary Powierzchnie i wymiary

Powierzchnia użytkowa
Tooltip
Suma powierzchni wszystkich pomieszczeń mieszkalnych, pomniejszona o pow. garażu, kotłowni, strychu, piwnicy. Jest liczona w 100% dla pomieszczeń o wysokości powyżej 2,2 m, w 50% dla pomieszczeń o wys. 2,2-1,4 m i niewliczana dla niższych niż 1,4 m.

1 034,10 m²

Powierzchnia zabudowy
Tooltip
Powierzchnia zajmowana przez część na- oraz nadziemną budynku liczona, jako rzut pionowy budynku na działkę.

409,91 m²

Kąt nachylenia dachu
Tooltip
Nachylenie połaci dachu głównego podawane w stopniach. Uwaga! W niektórych projektach występuje więcej niż jedno nachylenie dachu.

40°

Wysokość budynku
Tooltip
Wysokość liczona od części budynku położonej najniżej przy powierzchni terenu do najwyższego punktu dachu (kalenicy) z wyłączeniem kominów.

11,72 m

Min. szerokość działki
Tooltip
Najmniejsza możliwa szerokość działki niezbędna do wybudowania wybranego domu. Składa się z szerokości elewacji domu powiększonej z obu stron o 3 m dla ściany bez otworów drzwiowych/okiennych lub 4 m, dla ściany z otworami.

35 m

Technologia i konstrukcja Technologia i konstrukcja

Konstrukcja

Murowana

Opis szczegółowy

Fundamenty: żelbetowe, lane na mokro. Ściany fundamentowe: żelbetowe, lane na mokro (alternatywnie bloczki betonowe). Ściany zewnętrzne: pustak ceramiczny 25 cm + styropian 12 cm. Ściany wewnętrzne nośne: pustak 25 cm Ścianki działowe: pustak 12 cm lub z płyt gipsowo kartonowych (GK). Schody: żelbetowe Strop: żelbetowy, lany na mokro. Więźba: drewniana. Pokrycie dachu: Dachówka ceramiczna.

Reklama
Okna i drzwi tarasowe

Nowoczesne okna PVC i aluminiowe WIŚNIOWSKI – doskonała izolacja, elegancki design i niezrównana trwałość.

Wiśniowski
Sprawdź parametry!
Okna dachowe

Oferujemy bezpłatne konsultacje w zakresie wszystkich rozwiązań VELUX. Wyceny, porady dotyczące doboru okien i rolet zewnętrznych - sprawdź!

Velux
Sprawdź szczegóły
Okna i drzwi tarasowe

Systemy drzwi i okien z myślą o nowoczesnej architekturze i dużych przeszkleniach tarasowych.

Drutex
Sprawdź ofertę!
Pompa ciepła

Wybierz pompę ciepła, która pasuje do Twojego domu. Niezależnie od tego, czy ustawienie wewnątrz czy na zewnątrz, pompy ciepła STIEBEL ELTRON dopasują się do każdej przestrzeni.

Stiebel
Dobierz pompę ciepła
Drzwi

Idealne połączenie sztuki z technologią! Nowoczesne i energooszczędne drzwi wyróżniają się doskonałym połączeniem funkcjonalności, wysokiej estetyki wykonania oraz unikalnego stylu.

Drutex
Zobacz więcej
Drzwi

Ciepłe drzwi WIŚNIOWSKI z kontrolą dostępu. Szeroka gama wzorów i kolorów.

Wiśniowski
Wybierz najlepsze
Bramy garażowe

Automatyczne bramy garażowe segmentowe i uchylne WIŚNIOWSKI na wymiar i z systemem smart home w standardzie.

Wiśniowski
Sprawdź ofertę!
Rekuperacja

Alnor - kompletny system rekuperacji. Dobierz idealne rozwiązanie dla Twojego domu!

Alnor
Dobierz rekuperator
Dach

Producent stalowych pokryć dachowych i systemów elewacyjnych. Precyzja wykonania, trwałość na lata i szybki montaż doceniany przez dekarzy. Postaw na solidny dach Budmat.

Budmat
Sprawdź ofertę
Ogrodzenie

Nowoczesne stalowe ogrodzenia Budmat - estetyka, bezpieczeństwo i trwałość na lata. Systemowe rozwiązania na wymiar, dopasowane do każdego domu.

Budmat
Sprawdź ofertę

Opis projektu hotelu
AI 102

Projektowany budynek zawiera 3 funkcje: hotelową, gastronomiczną oraz mieszkalną. Mieszkanie właściciela zlokalizowane w przyziemu, zawiera 2 sypalnie, salon z kuchnią oraz łazienkę. Restauracja (pom.0.7) - zlokalizowana na parterze przewidziana dla 25 os. Posiada oddzielne zaplecze kuchenne pom 0.8. Przestronna sala restauracyna z centralnie zlokalizoawnym kominkiem, posiada szerg wyjść na obszerny taras na którym znajduje się zewnętrzny kominek, w sali możliwość przewidziany bar. Do sali prowadzi hall główny w którym znajduje się recepcja. Część hotelowa - przewidziana dla 27 os. w tym pokój dla os. niepełnosprawnej, mieści się na pierwszym piętrze oraz poddaszu. Do dyspozycji są również 3 apartamenty. Każdy pokój posiada łazienkę oraz wyjście na szeroki balkon. W przyziemiu dodatkowo znajdują się: sala TV, sala bilardowa, jakuzi oraz sauna, część mieszkalną można zaadoptować np na pub. Zaplecze techniczne (pralnia, kotłownia, pom. bielizny brudnej) zlokalizowano równię z przyziemiu. Pensjonat posiada 3 miejsca garażowe.
Czytaj więcej

Polecani producenci

Kompletne systemy rekuperacji

tło producenta

Alnor

Dowiedz się więcej

Dachy modułowe ze stali

tło producenta

Budmat

Poznaj szczegóły oferty

Prefabrykowane konstrukcje dachowe

tło producenta

WIĄZAR POLSKA

Zobacz więcej
Zobacz więcej

Społeczność projektu hotelu
AI 102 w budowie

Dołącz do społeczności osób, które budują ten dom lub są zainteresowane jego budową.

  • Oglądaj zdjęcia z budowy
  • Zadawaj pytania
  • Wymieniaj się doświadczeniami

Opinie o projekcie hotelu
AI 102

Opinie niezweryfikowane

Bądź pierwszy!
Ten projekt nie ma jeszcze opinii, bądź pierwszy!

ikona Dodaj opinię o projekcie

ASYSTENT WYBORU PROJEKTU

Szukasz idealnego projektu? Znajdziemy go dla Ciebie!

Doradca na podstawie Twoich wskazówek przygotuje spersonalizowaną listę projektów

Graficzne opracowanie rzutów poglądowych widocznych na karcie projektu zostało wykonane przez Extradom.pl. Prezentowane przez Extradom.pl wizualizacje wykonane zostały przez autora projektu i należy poczytywać je jedynie za przykład i propozycję wykończenia, wizję architektoniczną autora projektu. Ostateczne wykończenie budynku może nastąpić na wiele sposobów. Szczegółowe rozwiązania zastosowane w oferowanej dokumentacji - w tym również ilość, lokalizacje i wygląd okien, drzwi, kominów - mogą w niewielkim stopniu różnić się od prezentowanej wizualizacji budynku.

REKLAMA
Zamknij