👉 Rozgrzewające rabaty! 🔥

Projekt domu ZIEMOWIT KRD1492

Dodano!
Dodano!

Warstwy

Warstwy

Rzut parteru

Powierzchnia (m²)
Tooltip
Powierzchnia pomieszczenia
to ta, z której faktycznie możesz korzystać – skosy i niskie części poddasza są liczone częściowo lub wcale.
  1. 100% dla wysokości powyżej 2,2 m,
  2. 50% dla wysokości 1,4–2,2 m,
  3. nie liczymy poniżej 1,4 m.

Powierzchnia podłogi (wartość w nawiasie)
Liczymy po całym obrysie pomieszczenia, bez względu na jego wysokość.
108,90
1. Pokój dzienny
30,80
2. Kuchnia
7,90
3. Jadalnia
8,40
4. Garderoba
4,90
5. Łazienka
3,20
6. Pom. gospodarcze
5,60
7. Kotłownia+pralnia
8,10
8. Schowek
6,20
9. Garaż
18
10. Hall
9,30
11. Sień
2,90
12. Klatka schodowa
3,60
Powierzchnia (m²)
Tooltip
Powierzchnia pomieszczenia
to ta, z której faktycznie możesz korzystać – skosy i niskie części poddasza są liczone częściowo lub wcale.
  1. 100% dla wysokości powyżej 2,2 m,
  2. 50% dla wysokości 1,4–2,2 m,
  3. nie liczymy poniżej 1,4 m.

Powierzchnia podłogi (wartość w nawiasie)
Liczymy po całym obrysie pomieszczenia, bez względu na jego wysokość.
82,30
1. Pokój
22,70
2. Pokój
12,20
3. Pokój
13,10
4. Pokój
13,20
5. Garderoba
1,50
6. Łazienka
9,60
7. Przedpokój
6,40
8. Klatka schodowa
3,60

    Usytuowanie na działce

    Czy ten projekt pasuje na
    Twoją działkę?

    Chętnie to sprawdzimy!

    Dowiedz się:

    • czy zmieści się na niej wybrany przez Ciebie dom
    • jakie parametry musi spełniać dom według miejscowego planu zagospodarowania lub warunków zabudowy (np. kąt nachylenia i typ dachu, liczba kondygnacji itp.
    • jakie inne projekty pasują na Twoją działkę – znajdziemy je dla Ciebie!

Pokoje

4

Łazienki i WC

2

Garaż

0
więcej

ZIEMOWIT - KRD1492

ikona4
Pokoje (bez salonu)
ikona 2
Łazienki (z toaletami)
ikona 0
Liczba stanowisk garażowych
(z wiatą garażową)

Projekt został
wycofany z oferty

W razie pytań prosimy o kontakt
z Centrum Obsługi Klienta
Konsultant Masz pytania?
Zadzwoń
71 715 20 60

pon.-pt. 8-21, sob. 9-17

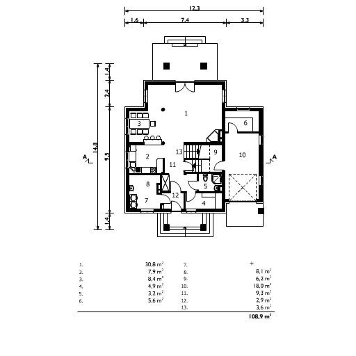
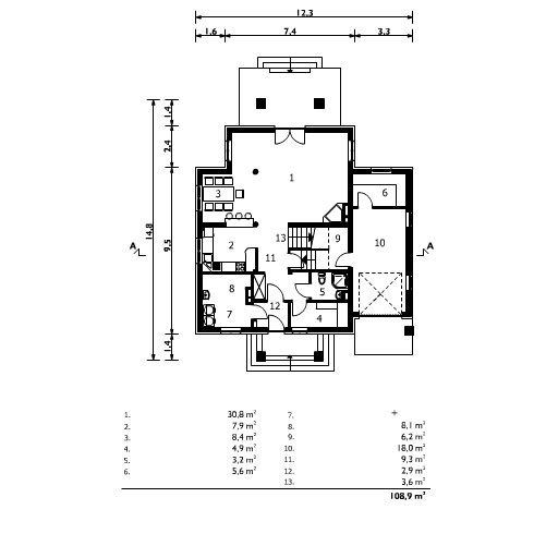
Parter - 108,90 m²

Parter projektu ZIEMOWIT

Zapytaj, co możesz zmienić

Powierzchnia (m²)
Tooltip
Powierzchnia pomieszczenia
to ta, z której faktycznie możesz korzystać – skosy i niskie części poddasza są liczone częściowo lub wcale.
  1. 100% dla wysokości powyżej 2,2 m,
  2. 50% dla wysokości 1,4–2,2 m,
  3. nie liczymy poniżej 1,4 m.

Powierzchnia podłogi (wartość w nawiasie)
Liczymy po całym obrysie pomieszczenia, bez względu na jego wysokość.
(108,90)
108,90
1. Pokój dzienny
30,80
2. Kuchnia
7,90
3. Jadalnia
8,40
4. Garderoba
4,90
5. Łazienka
3,20
6. Pom. gospodarcze
5,60
7. Kotłownia+pralnia
8,10
8. Schowek
6,20
9. Garaż
18
10. Hall
9,30
11. Sień
2,90
12. Klatka schodowa
3,60

Poddasze - 82,30 m²

Poddasze projektu ZIEMOWIT

Zapytaj, co możesz zmienić

Powierzchnia (m²)
Tooltip
Powierzchnia pomieszczenia
to ta, z której faktycznie możesz korzystać – skosy i niskie części poddasza są liczone częściowo lub wcale.
  1. 100% dla wysokości powyżej 2,2 m,
  2. 50% dla wysokości 1,4–2,2 m,
  3. nie liczymy poniżej 1,4 m.

Powierzchnia podłogi (wartość w nawiasie)
Liczymy po całym obrysie pomieszczenia, bez względu na jego wysokość.
(82,30)
82,30
1. Pokój
22,70
2. Pokój
12,20
3. Pokój
13,10
4. Pokój
13,20
5. Garderoba
1,50
6. Łazienka
9,60
7. Przedpokój
6,40
8. Klatka schodowa
3,60

Podobne projekty (9918)

Zobacz wszystkie
Nowość
Zdjęcie 1 projektu A-115 PZB1097
A-115
Dodano!
Dodano!
388,30 m²
5
5
3

13 800 zł

Nowość
Zdjęcie 1 projektu A-116 PZB1098
A-116
Dodano!
Dodano!
201,80 m²
4
3
2

9 900 zł

NIŻSZA CENA ✂️
Zdjęcie 1 projektu A-15 PZB1004
A-15
Dodano!
Dodano!
114,80 m²
3
2
0

6 070 zł

6 390 zł

Tooltip

Cena regularna

5 751 zł najniższa cena
Tooltip

Najniższa cena z 30 dni
przed obniżką

Zdjęcie 1 projektu HomeKoncept 122 G2 KRX1282
HomeKoncept 122 G2
Dodano!
Dodano!
107,62 m²
3
2
2

6 790 zł

Zdjęcie 1 projektu HomeKoncept 58 KRX1074
HomeKoncept 58
Dodano!
Dodano!
141,68 m²
3
2
2

7 490 zł

NIŻSZA CENA ✂️
Zdjęcie 1 projektu A-37 PZB1057
A-37
Dodano!
Dodano!
281,72 m²
4
2
3

9 329 zł

9 820 zł

Tooltip

Cena regularna

8 838 zł najniższa cena
Tooltip

Najniższa cena z 30 dni
przed obniżką

Zdjęcie 1 projektu HomeKoncept 112 G2 KRX1258
HomeKoncept 112 G2
Dodano!
Dodano!
162,53 m²
3
3
2

8 390 zł

NIŻSZA CENA ✂️
Zdjęcie 1 projektu B-144 PZB1071
B-144
Dodano!
Dodano!
179,17 m²
8
6
2

10 925 zł

11 500 zł

Tooltip

Cena regularna

10 350 zł najniższa cena
Tooltip

Najniższa cena z 30 dni
przed obniżką

Elewacje

Frontowa
Tylna
Lewa
Prawa

Przekroje

Przekrój pionowy

Usytuowanie na działce

Czy ten projekt pasuje na
Twoją działkę?

Chętnie to sprawdzimy!

Czy ten projekt pasuje na
Twoją działkę?

Chętnie to sprawdzimy!

Dowiedz się:

  • czy zmieści się na niej wybrany przez Ciebie dom
  • jakie parametry musi spełniać dom według miejscowego planu zagospodarowania lub warunków zabudowy (np. kąt nachylenia i typ dachu, liczba kondygnacji itp.
  • jakie inne projekty pasują na Twoją działkę – znajdziemy je dla Ciebie!
Autor: Archeton

Dane techniczne projektu

Powierzchnie i wymiary Powierzchnie i wymiary

Energooszczędność Energooszczędność

Oze Czym jest OZE (Odnawialne Źródło Energii)?
Warunki techniczne

Projekt zgody z WT 2021

Opis projektu domu
ZIEMOWIT

Dom jednorodzinny, wolno stojący, parterowy, bez podpiwniczenia, z użytkowym poddaszem i garażem. Funkcjonalnie bardzo ciekawie rozwiązany. Wydzielone dwie strefy: wspólna i prywatna. Bryła budynku oparta jest na rzucie litery „T”, nakryta dachem wielospadowym. Budynek urozmaicają malownicze zadaszone i wsparte na słupach balkony, które akcentują główną oś.
Czytaj więcej

Polecani producenci

Prefabrykowane konstrukcje dachowe

tło producenta

WIĄZAR POLSKA

Zobacz więcej

Sprawdź nową generację okien GREENVIEW

tło producenta

FAKRO

Sprawdź nową generację okien GREENVIEW

Styropian, tynki, farby, kleje

tło producenta

Termo Organika

Poznaj super jakość

Okna, drzwi, osłony przeciwsłoneczne

tło producenta

Aluprof

Sprawdź ofertę

Kompletne systemy rekuperacji

tło producenta

Alnor

Dowiedz się więcej

Sprawdź nowy system DACHRYNNA

tło producenta

Galeco

Sprawdź ofertę
Zobacz więcej

Społeczność projektu domu
ZIEMOWIT w budowie

Dołącz do społeczności osób, które budują ten dom lub są zainteresowane jego budową.

  • Oglądaj zdjęcia z budowy
  • Zadawaj pytania
  • Wymieniaj się doświadczeniami

Opinie o projekcie domu ZIEMOWIT

Ocena

Ten projekt nie ma jeszcze opinii, bądź pierwszy!

Dodaj opinię

ASYSTENT WYBORU PROJEKTU

Szukasz idealnego projektu? Znajdziemy go dla Ciebie!

Doradca na podstawie Twoich wskazówek przygotuje spersonalizowaną listę projektów

Graficzne opracowanie rzutów poglądowych widocznych na karcie projektu zostało wykonane przez Extradom.pl. Prezentowane przez Extradom.pl wizualizacje wykonane zostały przez autora projektu i należy poczytywać je jedynie za przykład i propozycję wykończenia, wizję architektoniczną autora projektu. Ostateczne wykończenie budynku może nastąpić na wiele sposobów. Szczegółowe rozwiązania zastosowane w oferowanej dokumentacji - w tym również ilość, lokalizacje i wygląd okien, drzwi, kominów - mogą w niewielkim stopniu różnić się od prezentowanej wizualizacji budynku.

REKLAMA
Zamknij