👉 Wiosenne rabaty + karta allegro 200 zł! 🔥

Koniec oferty za:

00godz.

00min.

00sek.

Sprawdź

Projekt domu Twins 1 WOW1037

Zapisz Dodano!
Porównaj Dodano!
ikona Pobierz i drukuj
Dodaj opinię

Warstwy

Wymiary wewnętrzne

Powierzchnie pomieszczeń

Numery pomieszczeń

Meble

Kolory pomieszczeń

Warstwy

Wymiary wewnętrzne

Powierzchnie pomieszczeń

Numery pomieszczeń

Meble

Kolory pomieszczeń

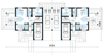
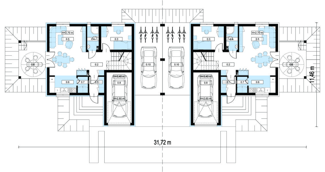
Rzut parteru

Powierzchnia (m²)
Tooltip
Powierzchnia pomieszczenia
to ta, z której faktycznie możesz korzystać – skosy i niskie części poddasza są liczone częściowo lub wcale.
  1. 100% dla wysokości powyżej 2,2 m,
  2. 50% dla wysokości 1,4–2,2 m,
  3. nie liczymy poniżej 1,4 m.

Powierzchnia podłogi
Liczymy po obrysie pomieszczenia, bez względu na jego wysokość/skosy. Jeśli nie ma skosów to powierzchnia podłogi i pomieszczenia jest taka sama.
pomieszczenia
podłogi
1. Wiatrołap
3,02
3,02
2. Korytarz
9,61
12,91
3. Spiżarnia
2,05
2,05
4. Kuchnia
5,69
5,69
5. Pokój dzienny + jadalnia
22,24
22,24
6. Łazienka
3,28
3,28
7. Pokój
8,84
8,84
8. Garaż jednostanowiskowy
15,68
15,68
Razem
70,41
73,71
9. Taras
12,41
10. Wiata
24,16
Powierzchnia (m²)
Tooltip
Powierzchnia pomieszczenia
to ta, z której faktycznie możesz korzystać – skosy i niskie części poddasza są liczone częściowo lub wcale.
  1. 100% dla wysokości powyżej 2,2 m,
  2. 50% dla wysokości 1,4–2,2 m,
  3. nie liczymy poniżej 1,4 m.

Powierzchnia podłogi
Liczymy po obrysie pomieszczenia, bez względu na jego wysokość/skosy. Jeśli nie ma skosów to powierzchnia podłogi i pomieszczenia jest taka sama.
pomieszczenia
podłogi
1. Korytarz
7,18
7,18
2. Pokój
9,74
11,33
3. Pokój
12,37
14,67
4. Pokój
16,21
18,71
5. Łazienka
8,36
10,16
Razem
53,86
62,05

    Usytuowanie na działce

    Czy ten projekt pasuje na
    Twoją działkę?

    Chętnie to sprawdzimy!

    Dowiedz się:

    • czy zmieści się na niej wybrany przez Ciebie dom
    • jakie parametry musi spełniać dom według miejscowego planu zagospodarowania lub warunków zabudowy (np. kąt nachylenia i typ dachu, liczba kondygnacji itp.
    • jakie inne projekty pasują na Twoją działkę – znajdziemy je dla Ciebie!

Pow. użytkowa

217,18 m²

Pokoje

4

Łazienki i WC

2

Garaż

1

Min. szer. i dł. działki

37,72 x 19,46 m

Kąt dachu

40°

Konstrukcja

Murowana
więcej
Zapisz Dodano!
Porównaj Dodano!
ikona Pobierz i drukuj

Twins 1 - WOW1037

ikona 217,18 m²
Powierzchnia użytkowa
ikona4
Pokoje (bez salonu)
ikona 2
Łazienki (z toaletami)
ikona 1
Liczba stanowisk garażowych
(z wiatą garażową)
ikona
Konstrukcja: Murowana

8 000 zł

Projekt jest dostępny

Gwarancja najniższej ceny
ikona
Darmowa dostawa
Paczkomaty, kurier
ikona
100 dni na wymianę,
30 dni na zwrot
ikona Zyskaj najwięcej! Extradodatki GRATIS:

15% rabatu do LEROY MERLIN

10% rabatu w CASTORAMIE

16% rabatu w SELSEY

Pakiet Formalności 2026

Przydatne Extradodatki

Poradnik Dach Solarny

ikona Co zawiera projekt?
  • Projekt zgodny z WT2021
  • Bezpłatne pozwolenie na zmiany
  • Charakterystyka energetyczna
Konsultant
71 715 20 60

pon.-pt. 8-21, sob. 9-17

Szukasz wykonawcy godnego zaufania?
Zleć budowę w Extradom.pl!

  • Z góry znasz koszt budowy domu
  • Dom odbierasz zgodnie z ustalonym harmonogramem - nawet w 6 miesięcy
  • Zabezpiecza Cię jedna kompleksowa umowa z jednym wykonawcą
  • Otrzymujesz nawet 30-letnią gwarancję na konstrukcję domu
  • Oszczędzasz swój czas dzięki pewnej i kompletnej usłudze
  • Odbiór techniczny GRATIS - Gwarantujemy najwyższą jakość
Cena brutto stanu
deweloperskiego od
Tooltip
Cena brutto stanu deweloperskiego od 4 209 do 5 379 zł/m2.
Cena jest uzależniona m.in. od lokalizacji, wybranej technologii, kubatury budynku, skomplikowania projektu i ewentualnych zmian, na które zdecyduje się inwestor.
Cena za m2 powierzchni netto, czyli wszystkich pomieszczeń mierzonych na wysokości podłogi.
4 209 zł/m2
Dowiedz się więcej
Konsultant Masz pytania?
Zadzwoń
71 715 20 09

pon.-pt. 8-19

Parter - 70,41 m²

Warstwy

Wymiary wewnętrzne

Meble

Powierzchnie pomieszczeń

Kolory pomieszczeń

Numery pomieszczeń

Zapytaj, co możesz zmienić

Oznaczenia na rzutach

Lodówka

Suszarka

Zmywarka

Suszarka nad pralką

Kuchenka

Pralka

Piekarnik

Szafa

Kocioł

Pompa ciepła

Kominek

Rekuperacja

Szerokość stolarki
Wysokość stolarki

Legenda Zobacz oznaczenia użyte na rzutach

Powierzchnia (m²)
Tooltip
Powierzchnia pomieszczenia
to ta, z której faktycznie możesz korzystać – skosy i niskie części poddasza są liczone częściowo lub wcale.
  1. 100% dla wysokości powyżej 2,2 m,
  2. 50% dla wysokości 1,4–2,2 m,
  3. nie liczymy poniżej 1,4 m.

Powierzchnia podłogi
Liczymy po obrysie pomieszczenia, bez względu na jego wysokość/skosy. Jeśli nie ma skosów to powierzchnia podłogi i pomieszczenia jest taka sama.
pomieszczenia
podłogi
1. Wiatrołap
3,02
3,02
2. Korytarz
9,61
12,91
3. Spiżarnia
2,05
2,05
4. Kuchnia
5,69
5,69
5. Pokój dzienny + jadalnia
22,24
22,24
6. Łazienka
3,28
3,28
7. Pokój
8,84
8,84
8. Garaż jednostanowiskowy
15,68
15,68
Razem
70,41
73,71
9. Taras
12,41
10. Wiata
24,16

Natychmiast, otrzymasz PDF-y
z rzutami wszystkich kondygnacji

Oznaczenia na rzutach

Lodówka

Suszarka

Zmywarka

Suszarka nad pralką

Kuchenka

Pralka

Piekarnik

Szafa

Kocioł

Pompa ciepła

Kominek

Rekuperacja

Szerokość stolarki
Wysokość stolarki

Legenda Zobacz oznaczenia użyte na rzutach

Poddasze - 53,86 m²

Warstwy

Wymiary wewnętrzne

Meble

Powierzchnie pomieszczeń

Kolory pomieszczeń

Numery pomieszczeń

Zapytaj, co możesz zmienić

Oznaczenia na rzutach

Lodówka

Suszarka

Zmywarka

Suszarka nad pralką

Kuchenka

Pralka

Piekarnik

Szafa

Kocioł

Pompa ciepła

Kominek

Rekuperacja

Szerokość stolarki
Wysokość stolarki

Legenda Zobacz oznaczenia użyte na rzutach

Powierzchnia (m²)
Tooltip
Powierzchnia pomieszczenia
to ta, z której faktycznie możesz korzystać – skosy i niskie części poddasza są liczone częściowo lub wcale.
  1. 100% dla wysokości powyżej 2,2 m,
  2. 50% dla wysokości 1,4–2,2 m,
  3. nie liczymy poniżej 1,4 m.

Powierzchnia podłogi
Liczymy po obrysie pomieszczenia, bez względu na jego wysokość/skosy. Jeśli nie ma skosów to powierzchnia podłogi i pomieszczenia jest taka sama.
pomieszczenia
podłogi
1. Korytarz
7,18
7,18
2. Pokój
9,74
11,33
3. Pokój
12,37
14,67
4. Pokój
16,21
18,71
5. Łazienka
8,36
10,16
Razem
53,86
62,05

Natychmiast, otrzymasz PDF-y
z rzutami wszystkich kondygnacji

Oznaczenia na rzutach

Lodówka

Suszarka

Zmywarka

Suszarka nad pralką

Kuchenka

Pralka

Piekarnik

Szafa

Kocioł

Pompa ciepła

Kominek

Rekuperacja

Szerokość stolarki
Wysokość stolarki

Legenda Zobacz oznaczenia użyte na rzutach

Zamów rysunki szczegółowe

Zapoznaj się ze szczegółowymi rysunkami rzutów kondygnacji w PDF dla tego projektu.

Podobne projekty (2)

Zdjęcie 1 projektu Strzyżyk II z garażem 1-st. bliźniak [A-BL] WRF2039
259,60 m²
4
3
1

9 262 zł

Zdjęcie 1 projektu Paprotka z garażem 1-st. bliźniak [A-BL] WRF2419
245 m²
3
2
1

8 692 zł

Projekt z budową

Budowa Projekt z budową

Zbuduj ten dom z naszym Partnerem - wygodnie, szybko i bezpiecznie

Projekt z budową to:

  • gwarancja niezmiennego kosztu budowy

  • krótki czas realizacji - dom gotowy nawet w 6 miesięcy

  • wieloletnia gwarancja na konstrukcję domu

Elewacje

Frontowa
Tylna
Lewa
Prawa

Przekroje

Przekrój pionowy

Usytuowanie na działce

Czy ten projekt pasuje na
Twoją działkę?

Chętnie to sprawdzimy!

Czy ten projekt pasuje na
Twoją działkę?

Chętnie to sprawdzimy!

Dowiedz się:

  • czy zmieści się na niej wybrany przez Ciebie dom
  • jakie parametry musi spełniać dom według miejscowego planu zagospodarowania lub warunków zabudowy (np. kąt nachylenia i typ dachu, liczba kondygnacji itp.
  • jakie inne projekty pasują na Twoją działkę – znajdziemy je dla Ciebie!
Autor: Skala Projekt

Dane techniczne projektu

Powierzchnie i wymiary Powierzchnie i wymiary

Powierzchnia użytkowa
Tooltip
Suma powierzchni wszystkich pomieszczeń mieszkalnych, pomniejszona o pow. garażu, kotłowni, strychu, piwnicy. Jest liczona w 100% dla pomieszczeń o wysokości powyżej 2,2 m, w 50% dla pomieszczeń o wys. 2,2-1,4 m i niewliczana dla niższych niż 1,4 m.

217,18 m²

Powierzchnia zabudowy
Tooltip
Powierzchnia zajmowana przez część na- oraz nadziemną budynku liczona, jako rzut pionowy budynku na działkę.

258,36 m²

Kąt nachylenia dachu
Tooltip
Nachylenie połaci dachu głównego podawane w stopniach. Uwaga! W niektórych projektach występuje więcej niż jedno nachylenie dachu.

40°

Wysokość budynku
Tooltip
Wysokość liczona od części budynku położonej najniżej przy powierzchni terenu do najwyższego punktu dachu (kalenicy) z wyłączeniem kominów.

9,61 m

Szerokość elewacji

31,72 m

Długość elewacji

11,46 m

Min. szerokość działki
Tooltip
Najmniejsza możliwa szerokość działki niezbędna do wybudowania wybranego domu. Składa się z szerokości elewacji domu powiększonej z obu stron o 3 m dla ściany bez otworów drzwiowych/okiennych lub 4 m, dla ściany z otworami.

37,72 m

Min. długość działki
Tooltip
Najmniejsza możliwa długość działki niezbędna do wybudowania wybranego domu. Składa się z długości elewacji domu powiększonej z obu stron o 3 m dla ściany bez otworów drzwiowych/okiennych lub 4 m, dla ściany z otworami.

19,46 m

Energooszczędność Energooszczędność

Oze Czym jest OZE (Odnawialne Źródło Energii)?
Ogrzewanie główne

Gazowe - szczegóły

Interesuje Cię inne źródło ogrzewania? Wyślij zapytanie lub zadzwoń do doradcy

Wentylacja

Grawitacyjna - szczegóły

Warunki techniczne

Projekt zgody z WT 2021

Technologia i konstrukcja Technologia i konstrukcja

Konstrukcja

Murowana

PROJEKT Z BUDOWĄ Istnieje możliwość zaadaptowania tego projektu do technologii prefabrykowanej/modułowej i budowy nawet w 6 miesięcy ze stałym kosztem budowy

Dowiedz się więcej »
Opis szczegółowy

Budynek zaprojektowano w technologii tradycyjnej. Ściany zewnętrzne i wewnętrzne: murowane; Ławy fundamentowe: tradycyjne; Strop: Teriva; Dachówka: ceramiczna; Ogrzewanie: gazowe

Strop

Gęstożebrowy

Reklama
Okna i drzwi tarasowe

Nowoczesne okna PVC i aluminiowe WIŚNIOWSKI – doskonała izolacja, elegancki design i niezrównana trwałość.

Wiśniowski
Sprawdź parametry!
Okna dachowe

Oferujemy bezpłatne konsultacje w zakresie wszystkich rozwiązań VELUX. Wyceny, porady dotyczące doboru okien i rolet zewnętrznych - sprawdź!

Velux
Sprawdź szczegóły
Pompa ciepła

Wybierz pompę ciepła, która pasuje do Twojego domu. Niezależnie od tego, czy ustawienie wewnątrz czy na zewnątrz, pompy ciepła STIEBEL ELTRON dopasują się do każdej przestrzeni.

Stiebel
Dobierz pompę ciepła
Drzwi

Ciepłe drzwi WIŚNIOWSKI z kontrolą dostępu. Szeroka gama wzorów i kolorów.

Wiśniowski
Wybierz najlepsze
Bramy garażowe

Automatyczne bramy garażowe segmentowe i uchylne WIŚNIOWSKI na wymiar i z systemem smart home w standardzie.

Wiśniowski
Sprawdź ofertę!
Rekuperacja

Alnor - kompletny system rekuperacji. Dobierz idealne rozwiązanie dla Twojego domu!

Alnor
Dobierz rekuperator
Dach

Producent stalowych pokryć dachowych i systemów elewacyjnych. Precyzja wykonania, trwałość na lata i szybki montaż doceniany przez dekarzy. Postaw na solidny dach Budmat.

Budmat
Sprawdź ofertę
Ogrodzenie

Nowoczesne stalowe ogrodzenia Budmat - estetyka, bezpieczeństwo i trwałość na lata. Systemowe rozwiązania na wymiar, dopasowane do każdego domu.

Budmat
Sprawdź ofertę

Gotowe domy - najszybszy sposób na dom (115)

Zobacz wszystkie
  • Stan deweloperski nawet w 6 miesięcy
  • Gwarancja stałej ceny
Skonfiguruj dom
Zdjęcie 1 projektu Bergen 130 HUS1002
130,40 m²
4
Stan deweloperski brutto
529 000 zł 4 057 zł/m²
Zdjęcie 1 projektu Dom prefabrykowany P.12 z okapem HPK1021
190,98 m²
5
Stan deweloperski brutto
916 500 zł 4 799 zł/m²
Zdjęcie 1 projektu Dom prefabrykowany P.12 bez okapu HPK1020
190,98 m²
5
Stan deweloperski brutto
886 500 zł 4 642 zł/m²
Zdjęcie 1 projektu Dom prefabrykowany P.6 HPK1005
176,69 m²
4
Stan deweloperski brutto
972 700 zł 5 505 zł/m²
Zdjęcie 1 projektu Dom prefabrykowany Stodoła 170A HFX1049
175,42 m²
3
Stan deweloperski brutto
650 000 zł 3 705 zł/m²
Zdjęcie 1 projektu Dom prefabrykowany Stodoła 170B HFX1050
175,12 m²
4
Stan deweloperski brutto
650 000 zł 3 712 zł/m²
Zdjęcie 1 projektu Dom szkieletowy Viking Smart 220 HHT1032
163,86 m²
4
Stan deweloperski brutto
1 095 606 zł 6 686 zł/m²
Zdjęcie 1 projektu Dom prefabrykowany DH174 HDH1009
162,97 m²
4
Stan deweloperski brutto
1 026 000 zł 6 296 zł/m²

Opis projektu domu
Twins 1

TWINS 1 to dwa domy mieszkalne jednorodzinne w zabudowie bliźniaczej. Charakteryzuje je tradycyjna bryła parterowa z poddaszem użytkowym i wysuniętym z bryły garażem jednostanowiskowym. Pomiędzy domami zaplanowano wiatę na dodatkowe 2 auta- po jednym na każdy dom. Elewacja, będąca kompozycją różnego koloru tynków tworzy harmonijną całość. Dodatkowym atutem, czyniącym domy opłacalną i niedrogą inwestycją jest ich prosta konstrukcja przykryta dwuspadowym dachem. Wnętrze, dzięki odpowiednio dobranym i zaplanowanym przeszkleniom jest jasne i tworzy otwartą kompozycję. Salon połączony z jadalnią i otwartą kuchnią prowadzi dużymi drzwiami balkonowymi na wyniesiony ponad grunt taras i ogród. Tarasy zwieńczone są również „wiatą”, umożliwiającą wykonanie nad nimi pełnego zadaszenia- w przypadku rezygnacji z tej konstrukcji istnieje możliwość usytuowania domów na działce o 3 m węższej. Kolejną zaletą projektu jest funkcjonalny pokój gościnny w kondygnacji parteru, niejako ukryty za klatką schodową, który wraz z pobliską łazienką tworzy swoistą enklawę. Każdy z budynków ogrzewany jest piecem gazowym dwufunkcyjnym zainstalowanym w łazience. Poddasze obu komfortowych domów stanowią trzy przestronne sypialnie oraz łazienka. Jest to inwestycja stworzona dla Inwestorów ceniących komfort użytkowania, a jednocześnie zwracających uwagę na niewysokie koszta budowy. Budynki  zaprojektowano w technologii murowanej ze stropem teriva. Dokumentacja zawiera podstawowe zestawienia materiałów, w tym zestawienie stolarki, elementów więźby dachowej i stali zbrojeniowe.
Czytaj więcej

Polecani producenci

Kompletne systemy rekuperacji

tło producenta

Alnor

Dowiedz się więcej

Dachy modułowe ze stali

tło producenta

Budmat

Poznaj szczegóły oferty

Prefabrykowane konstrukcje dachowe

tło producenta

WIĄZAR POLSKA

Zobacz więcej
Zobacz więcej

Społeczność projektu domu
Twins 1 w budowie

Dołącz do społeczności osób, które budują ten dom lub są zainteresowane jego budową.

  • Oglądaj zdjęcia z budowy
  • Zadawaj pytania
  • Wymieniaj się doświadczeniami

Opinie o projekcie domu
Twins 1

Opinie niezweryfikowane

Bądź pierwszy!
Ten projekt nie ma jeszcze opinii, bądź pierwszy!

ikona Dodaj opinię o projekcie

ASYSTENT WYBORU PROJEKTU

Szukasz idealnego projektu? Znajdziemy go dla Ciebie!

Doradca na podstawie Twoich wskazówek przygotuje spersonalizowaną listę projektów

Graficzne opracowanie rzutów poglądowych widocznych na karcie projektu zostało wykonane przez Extradom.pl. Prezentowane przez Extradom.pl wizualizacje wykonane zostały przez autora projektu i należy poczytywać je jedynie za przykład i propozycję wykończenia, wizję architektoniczną autora projektu. Ostateczne wykończenie budynku może nastąpić na wiele sposobów. Szczegółowe rozwiązania zastosowane w oferowanej dokumentacji - w tym również ilość, lokalizacje i wygląd okien, drzwi, kominów - mogą w niewielkim stopniu różnić się od prezentowanej wizualizacji budynku.

Extradom.pl Spółka z ograniczoną odpowiedzialnością z siedzibą przy ul. Jaworskiej 13, 53-612 Wrocław, wpisana do rejestru przedsiębiorców Krajowego Rejestru Sądowego przez Sąd Rejonowy dla Wrocławia-Fabrycznej we Wrocławiu, VI Wydział Gospodarczy Krajowego Rejestru Sądowego do pod numerem KRS 0000648746, numer NIP 895-17-18-333, o kapitale zakładowym 708 150,00 zł uprzejmie informuje, iż poprzez serwis Extradom.pl umożliwia m.in. zapoznanie się przez konsumentów z ofertą handlową Partnerów Extradom.pl, którzy stosują metody budowy domów przy wykorzystaniu różnego rodzaju technologie prefabrykacji bądź modułowe (tzw. „Gotowe domy”).

Extradom.pl nie prowadzi jednakże sprzedaży ani nie oferuje usług polegających na doradztwie finansowym, prawnym ani podatkowym w zakresie inwestycji realizowanych w technologiach tzw. „Gotowych domów”. Informacje prezentowane w serwisie Extradom.pl dotyczące Partnerów Extradom.pl oferujących realizację inwestycji w technologiach „Gotowych domów” lub podobnych mają charakter informacyjny i reklamowy.

Prezentowane w serwisie Extradom.pl informacje dotyczące stosowanych przez Partnerów metod budowy domów w technologii prefabrykacji bądź modułowej pochodzą od Partnerów Extradom.pl.

Extradom.pl sp. z o.o. jedynie umożliwia nawiązanie kontaktu przez Użytkownika z Partnerem Extradom.pl stosującym tego rodzaju technologie budowy domów i nie jest stroną umowy o roboty budowlane zawieranej przez Użytkownika Extradom.pl z Partnerem Extradom.pl.

REKLAMA
Zamknij