Projekty nawet 500 zł taniej ❄️

Koniec oferty za:

0dni

00godz.

00min.

00sek.

Sprawdź

Projekt domu Stylowy 2 WAW1019

Dodano!
Dodano!

Warstwy

Warstwy

Rzut parteru

Powierzchnia (m²)
Tooltip
Powierzchnia pomieszczenia
to ta, z której faktycznie możesz korzystać – skosy i niskie części poddasza są liczone częściowo lub wcale.
  1. 100% dla wysokości powyżej 2,2 m,
  2. 50% dla wysokości 1,4–2,2 m,
  3. nie liczymy poniżej 1,4 m.

Powierzchnia podłogi
Liczymy po obrysie pomieszczenia, bez względu na jego wysokość/skosy. Jeśli nie ma skosów to powierzchnia podłogi i pomieszczenia jest taka sama.
pomieszczenia i podłogi
podłogi
1. Wiatrołap
3,80
2. Hall + schody
17,20
3. Garderoba
6,90
4. Pokój
11,10
5. Łazienka
3,70
6. Kuchnia
8,90
7. Jadalnia
8,40
8. Pokój dzienny
34,60
9. Kotłownia
8,40
10. Garaż dwustanowiskowy
32,50
Razem
135,50
135,50
Powierzchnia (m²)
Tooltip
Powierzchnia pomieszczenia
to ta, z której faktycznie możesz korzystać – skosy i niskie części poddasza są liczone częściowo lub wcale.
  1. 100% dla wysokości powyżej 2,2 m,
  2. 50% dla wysokości 1,4–2,2 m,
  3. nie liczymy poniżej 1,4 m.

Powierzchnia podłogi
Liczymy po obrysie pomieszczenia, bez względu na jego wysokość/skosy. Jeśli nie ma skosów to powierzchnia podłogi i pomieszczenia jest taka sama.
pomieszczenia
podłogi
1. Hall
13,10
14,30
2. Antresola
9,20
9,70
3. Pokój
13,40
18,10
4. Łazienka
4,90
8,20
5. Pokój
16,50
26,40
6. Łazienka
5,80
7,80
7. Garderoba
7,30
8,30
8. Pokój
13,30
20,10
Razem
83,50
112,90

    Usytuowanie na działce

    Czy ten projekt pasuje na
    Twoją działkę?

    Chętnie to sprawdzimy!

    Dowiedz się:

    • czy zmieści się na niej wybrany przez Ciebie dom
    • jakie parametry musi spełniać dom według miejscowego planu zagospodarowania lub warunków zabudowy (np. kąt nachylenia i typ dachu, liczba kondygnacji itp.
    • jakie inne projekty pasują na Twoją działkę – znajdziemy je dla Ciebie!

Pow. użytkowa

178,10 m²

Pokoje

4

Łazienki i WC

3

Garaż

2

Min. szer. i dł. działki

23,48 x 23,68 m

Kąt dachu

40°

Konstrukcja

Murowana
więcej

Stylowy 2 - WAW1019

ikona 178,10 m²
Powierzchnia użytkowa
ikona4
Pokoje (bez salonu)
ikona 3
Łazienki (z toaletami)
ikona 2
Liczba stanowisk garażowych
(z wiatą garażową)
ikona
Konstrukcja: Murowana

Projekt został
wycofany z oferty

W razie pytań prosimy o kontakt
z Centrum Obsługi Klienta
Konsultant Masz pytania?
Zadzwoń
71 715 20 60

pon.-pt. 8-21, sob. 9-17

Parter - 135,50 m²

Parter projektu Stylowy 2

Zapytaj, co możesz zmienić

Powierzchnia (m²)
Tooltip
Powierzchnia pomieszczenia
to ta, z której faktycznie możesz korzystać – skosy i niskie części poddasza są liczone częściowo lub wcale.
  1. 100% dla wysokości powyżej 2,2 m,
  2. 50% dla wysokości 1,4–2,2 m,
  3. nie liczymy poniżej 1,4 m.

Powierzchnia podłogi
Liczymy po obrysie pomieszczenia, bez względu na jego wysokość/skosy. Jeśli nie ma skosów to powierzchnia podłogi i pomieszczenia jest taka sama.
pomieszczenia i podłogi
podłogi
1. Wiatrołap
3,80
2. Hall + schody
17,20
3. Garderoba
6,90
4. Pokój
11,10
5. Łazienka
3,70
6. Kuchnia
8,90
7. Jadalnia
8,40
8. Pokój dzienny
34,60
9. Kotłownia
8,40
10. Garaż dwustanowiskowy
32,50
Razem
135,50
135,50

Poddasze - 83,50 m²

Poddasze projektu Stylowy 2

Zapytaj, co możesz zmienić

Powierzchnia (m²)
Tooltip
Powierzchnia pomieszczenia
to ta, z której faktycznie możesz korzystać – skosy i niskie części poddasza są liczone częściowo lub wcale.
  1. 100% dla wysokości powyżej 2,2 m,
  2. 50% dla wysokości 1,4–2,2 m,
  3. nie liczymy poniżej 1,4 m.

Powierzchnia podłogi
Liczymy po obrysie pomieszczenia, bez względu na jego wysokość/skosy. Jeśli nie ma skosów to powierzchnia podłogi i pomieszczenia jest taka sama.
pomieszczenia
podłogi
1. Hall
13,10
14,30
2. Antresola
9,20
9,70
3. Pokój
13,40
18,10
4. Łazienka
4,90
8,20
5. Pokój
16,50
26,40
6. Łazienka
5,80
7,80
7. Garderoba
7,30
8,30
8. Pokój
13,30
20,10
Razem
83,50
112,90

Podobne projekty (7163)

Zobacz wszystkie
NIŻSZA CENA❄️
Zdjęcie 1 projektu Perfetto WOF1151
Perfetto
Dodano!
Dodano!
148,19 m²
4
2
2

4 499 zł

4 699 zł

Tooltip

Cena regularna

4 399 zł najniższa cena
Tooltip

Najniższa cena z 30 dni
przed obniżką

Nowość
Zdjęcie 1 projektu NewHouse 790 w3 KRZ1136
NewHouse 790 w3
Dodano!
Dodano!
172,58 m²
4
3
2

6 590 zł

NIŻSZA CENA❄️
Zdjęcie 1 projektu A-49 PZB1079
A-49
Dodano!
Dodano!
183,88 m²
5
3
2

10 384 zł

10 930 zł

Tooltip

Cena regularna

7 677 zł najniższa cena
Tooltip

Najniższa cena z 30 dni
przed obniżką

NIŻSZA CENA❄️
Nowość
Zdjęcie 1 projektu A-166 PZB1096
A-166
Dodano!
Dodano!
197,19 m²
5
2
0

8 978 zł

9 450 zł

Tooltip

Cena regularna

9 450 zł najniższa cena
Tooltip

Najniższa cena z 30 dni
przed obniżką

NIŻSZA CENA❄️
Zdjęcie 1 projektu AJR 09 A2 a WOJ1029
AJR 09 A2 a
Dodano!
Dodano!
156,50 m²
5
3
2

4 600 zł

4 900 zł

Tooltip

Cena regularna

4 500 zł najniższa cena
Tooltip

Najniższa cena z 30 dni
przed obniżką

NIŻSZA CENA❄️
Zdjęcie 1 projektu Rozsądny WAH1539
Rozsądny
Dodano!
Dodano!
165,45 m²
5
2
1

5 080 zł

6 350 zł

Tooltip

Cena regularna

4 762 zł najniższa cena
Tooltip

Najniższa cena z 30 dni
przed obniżką

Zdjęcie 1 projektu Gerda WOW1031
Gerda
Dodano!
Dodano!
169,20 m²
6
2
2

4 200 zł

NIŻSZA CENA❄️
Zdjęcie 1 projektu A-36 PZB1052
A-36
Dodano!
Dodano!
197,64 m²
5
3
2

9 481 zł

9 980 zł

Tooltip

Cena regularna

8 496 zł najniższa cena
Tooltip

Najniższa cena z 30 dni
przed obniżką

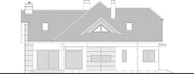
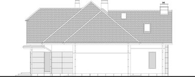
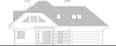
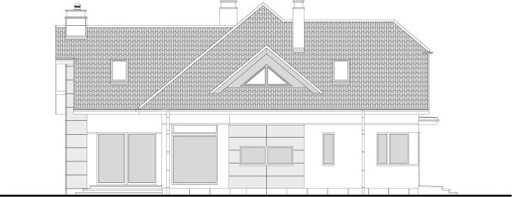
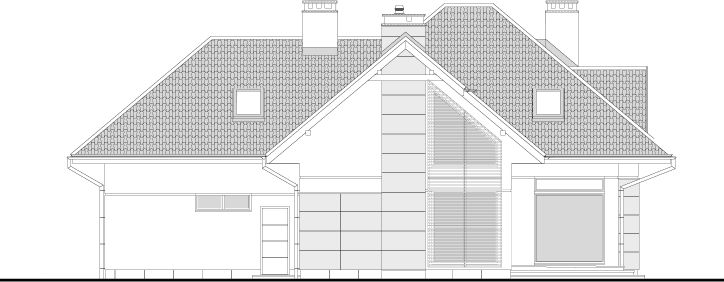
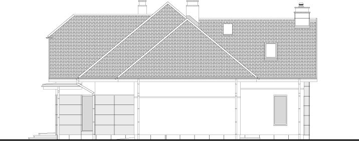
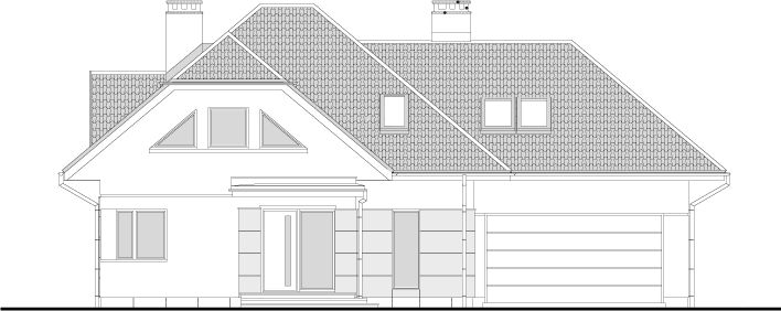
Elewacje

Frontowa
Tylna
Lewa
Prawa

Usytuowanie na działce

Czy ten projekt pasuje na
Twoją działkę?

Chętnie to sprawdzimy!

Czy ten projekt pasuje na
Twoją działkę?

Chętnie to sprawdzimy!

Dowiedz się:

  • czy zmieści się na niej wybrany przez Ciebie dom
  • jakie parametry musi spełniać dom według miejscowego planu zagospodarowania lub warunków zabudowy (np. kąt nachylenia i typ dachu, liczba kondygnacji itp.
  • jakie inne projekty pasują na Twoją działkę – znajdziemy je dla Ciebie!
Autor: Domy z Wizją

Dane techniczne projektu

Powierzchnie i wymiary Powierzchnie i wymiary

Powierzchnia użytkowa
Tooltip
Suma powierzchni wszystkich pomieszczeń mieszkalnych, pomniejszona o pow. garażu, kotłowni, strychu, piwnicy. Jest liczona w 100% dla pomieszczeń o wysokości powyżej 2,2 m, w 50% dla pomieszczeń o wys. 2,2-1,4 m i niewliczana dla niższych niż 1,4 m.

178,10 m²

Powierzchnia zabudowy
Tooltip
Powierzchnia zajmowana przez część na- oraz nadziemną budynku liczona, jako rzut pionowy budynku na działkę.

173,10 m²

Kubatura brutto
Tooltip
Zazwyczaj jest to suma kubatur (objętości) wszystkich pomieszczeń budynku, liczonych po zewnętrznym obrysie murów (z ociepleniem).

900 m³

Powierzchnia dachu

312 m²

Kąt nachylenia dachu
Tooltip
Nachylenie połaci dachu głównego podawane w stopniach. Uwaga! W niektórych projektach występuje więcej niż jedno nachylenie dachu.

40°

Wysokość budynku
Tooltip
Wysokość liczona od części budynku położonej najniżej przy powierzchni terenu do najwyższego punktu dachu (kalenicy) z wyłączeniem kominów.

8,53 m

Min. szerokość działki
Tooltip
Najmniejsza możliwa szerokość działki niezbędna do wybudowania wybranego domu. Składa się z szerokości elewacji domu powiększonej z obu stron o 3 m dla ściany bez otworów drzwiowych/okiennych lub 4 m, dla ściany z otworami.

23,48 m

Min. długość działki
Tooltip
Najmniejsza możliwa długość działki niezbędna do wybudowania wybranego domu. Składa się z długości elewacji domu powiększonej z obu stron o 3 m dla ściany bez otworów drzwiowych/okiennych lub 4 m, dla ściany z otworami.

23,68 m

Energooszczędność Energooszczędność

Oze Czym jest OZE (Odnawialne Źródło Energii)?
Warunki techniczne

Projekt zgody z WT 2021

Technologia i konstrukcja Technologia i konstrukcja

Konstrukcja

Murowana

Opis szczegółowy

Ściany: pustak ceramiczny + styropian - na etapie adaptacji projektu istnieje możliwość zamiany pustaka ceramicznego na inny materiał o podobnych parametrach wytrzymałosciowych, np. na bloczek silikatowy. Elewacja: tynk, wielkoformatowe płyty kamienne - wielkoformatowe płyty kamienne wykorzystane jako materiał dekoracyjny można zamienić na etapie adaptacji projektu na inny, np. na płytkę klinkierową. Stropy: żelbetowe wylewane - na etapie adaptacji projektu istnieje możliwość zmiany technologii stropu na gęstożebrowy lub prefabrykowany. Schody: konstrukcji lekkiej - konstrukcja oraz materiały wykończeniowe schodów przewidziane do indywidualnej aranżacji. Dach: dachówka ceramiczna lub cementowa - konstrukcja więźby przewidziana pod pokrycie ciężkie dla I strefy wiatrowej i II strefy śniegowej.

Strop

Żelbetowy

Reklama
Okna i drzwi tarasowe

Nowoczesne okna PVC i aluminiowe WIŚNIOWSKI – doskonała izolacja, elegancki design i niezrównana trwałość.

Wiśniowski
Sprawdź parametry!
Okna dachowe

Oferujemy bezpłatne konsultacje w zakresie wszystkich rozwiązań VELUX. Wyceny, porady dotyczące doboru okien i rolet zewnętrznych - sprawdź!

Velux
Sprawdź szczegóły
Płytki ceramiczne i gresy

Od małych formatów po wielkoformatowe gresy. Marmur, beton, drewno, kamień, lastryko czy cegiełki zamówisz wygodnie online z szybką dostawą.

Ceramzet
Sprawdź ofertę
Drzwi

Ciepłe drzwi WIŚNIOWSKI z kontrolą dostępu. Szeroka gama wzorów i kolorów.

Wiśniowski
Wybierz najlepsze
Bramy garażowe

Automatyczne bramy garażowe segmentowe i uchylne WIŚNIOWSKI na wymiar i z systemem smart home w standardzie.

Wiśniowski
Sprawdź ofertę!
Armatura i ceramika łazienkowa

Topowi producenci. Baterie łazienkowe, zestawy natynkowe i podtynkowe, umywalki, wanny, miski WC oraz kabiny zamówisz kompleksowo online.

Ceramzet II
Dowiedz się więcej
Rekuperacja

Alnor - kompletny system rekuperacji. Dobierz idealne rozwiązanie dla Twojego domu!

Alnor
Dobierz rekuperator
Gruntowe pompy ciepła

Przeprowadzimy kompletną instalację najbardziej oszczędnego źródła ciepła w Twoim nowym domu - gruntowej pompy ciepła. Od dokumentacji, pozwoleń, po odwierty i instalację.

Geothermal Solutions
Dowiedz się więcej

Gotowe domy modułowe (113)

Zobacz wszystkie
Stan deweloperski nawet w 6 miesięcy Gwarancja stałej ceny
Zdjęcie 1 projektu Dom prefabrykowany P.6 HPK1005
Pow. użytkowa
176,69 m²
Pokoje
4
916 600 zł 5 188 zł/m²
Zdjęcie 1 projektu Dom prefabrykowany Stodoła 180B HFX1028
Pow. użytkowa
185,90 m²
Pokoje
5
659 000 zł 3 545 zł/m²
Zdjęcie 1 projektu Dom prefabrykowany Stodoła 180C HFX1029
Pow. użytkowa
186,60 m²
Pokoje
5
659 000 zł 3 532 zł/m²
Zdjęcie 1 projektu Dom prefabrykowany Stodoła 180A HFX1027
Pow. użytkowa
186,60 m²
Pokoje
5
659 000 zł 3 532 zł/m²
Zdjęcie 1 projektu Dom prefabrykowany P.12 z okapem HPK1021
Pow. użytkowa
190,98 m²
Pokoje
5
887 600 zł 4 648 zł/m²
Zdjęcie 1 projektu Dom prefabrykowany P.12 bez okapu HPK1020
Pow. użytkowa
190,98 m²
Pokoje
5
858 100 zł 4 493 zł/m²
Zdjęcie 1 projektu Dom szkieletowy Viking Smart 220 HHT1032
Pow. użytkowa
163,86 m²
Pokoje
4
1 095 606 zł 6 686 zł/m²
Zdjęcie 1 projektu Dom prefabrykowany P.4 bez okapu HPK1003
Pow. użytkowa
162,18 m²
Pokoje
4
701 000 zł 4 322 zł/m²

Opis projektu domu
Stylowy 2

Budynek Stylowy 2 jest modyfikacją popularnego projektu Stylowy 1. W odróżnieniu od podstawowej wersji projekt ma mniej pokoi, większą powierzchnię, więcej stanowisk garażowych. Projekt domu Stylowy 2 odpowiedni do zrealizowania na średniej szerokości działkę. Dom posiada prostą bryłę, co znacznie ułatwia proces budowy. W tym projekcie kalenica usytuowana jest równolegle do drogi, co jest istotne ze względu na wymagania określone w warunkach zabudowy. Jest przeznaczony do zabudowy wolnostojącej. W projekcie przewidziano garaż dwustanowiskowy w linii budynku. Jest to również doskonała propozycja dla osób szukających domu z dachem czterospadowym, który charakteryzuje się dużą odpornością na działanie niesprzyjających warunków pogodowych. Projekt Stylowy 2 to dom parterowy z poddaszem użytkowym, co sprawia, że strefa dzienna i nocna są od siebie wyraźnie oddzielone. Warto zwrócić uwagę na przestronną część dzienną. Doskonale przemyślane rozwiązania w kuchni dają wiele możliwości aranżacyjnych oraz ułatwią codzienne korzystanie. Architekt przewidział również miejsce na jadalnię, dzięki czemu wspólne posiłki będą doskonałą okazją do rozmów w rodzinnej atmosferze. W salonie znajduje się nastrojowy kominek dający przyjemne ciepło i nadający wnętrzu przyjemnej atmosfery. Projekt uwzględnia jedną łazienkę na parterze i dwie na poddaszu. Potrzeby 4-6 osobowej rodziny spełnią przewidziane w projekcie cztery przestronne sypialnie. Przestrzeń można wykorzystać także jako pokój dla gości lub gabinet. Z pewnością każda Pani domu doceni zalety przewidzianej w projekcie garderoby. W projekcie uwzględniono antresolę, która nadaje wnętrzu większej przestronności. Doskonałym miejscem do wypoczynku jest zaprojektowany przy domu taras. Zalecana przez architekta technologia murowana zapewnia trwałość i solidność konstrukcji. Jego wygląd zewnętrzny uwydatnia cechy charakterystyczne dla stylu tradycyjnego, co jest idealnym rozwiązaniem dla osób ceniących klasykę i prostotę.
Czytaj więcej

Informacje dodatkowe

Projekt stanowi aktualną i pełną dokumentację zawierającą część architektoniczno - budowlaną, konstrukcyjną wykonawczą, instalacji wewnętrznych, elektrycznych i teletechnicznych, charakterystykę energetyczną oraz uprawnienia projektantów. Dokumentacja zabezpieczona jest specjalną plombą, której usunięcie uniemożliwi jej zwrot oraz wymianę. Zapraszamy do zamówienia przed zakupem rysunków szczegółowych projektu oraz analizy posiadanej działki w celu upewnienia się, że wybrany projekt domu idealnie na nią pasuje.

Czytaj więcej

Polecani producenci

Prefabrykowane konstrukcje dachowe

tło producenta

WIĄZAR POLSKA

Zobacz więcej

Sprawdź nową generację okien GREENVIEW

tło producenta

FAKRO

Sprawdź nową generację okien GREENVIEW

Styropian, tynki, farby, kleje

tło producenta

Termo Organika

Poznaj super jakość

Okna, drzwi, osłony przeciwsłoneczne

tło producenta

Aluprof

Sprawdź ofertę

Kompletne systemy rekuperacji

tło producenta

Alnor

Dowiedz się więcej

Sprawdź nowy system DACHRYNNA

tło producenta

Galeco

Sprawdź ofertę
Zobacz więcej

Społeczność projektu domu
Stylowy 2 w budowie

Dołącz do społeczności osób, które budują ten dom lub są zainteresowane jego budową.

  • Oglądaj zdjęcia z budowy
  • Zadawaj pytania
  • Wymieniaj się doświadczeniami

Opinie o projekcie domu Stylowy 2

Ocena

Ten projekt nie ma jeszcze opinii, bądź pierwszy!

Dodaj opinię

ASYSTENT WYBORU PROJEKTU

Szukasz idealnego projektu? Znajdziemy go dla Ciebie!

Doradca na podstawie Twoich wskazówek przygotuje spersonalizowaną listę projektów

Graficzne opracowanie rzutów poglądowych widocznych na karcie projektu zostało wykonane przez Extradom.pl. Prezentowane przez Extradom.pl wizualizacje wykonane zostały przez autora projektu i należy poczytywać je jedynie za przykład i propozycję wykończenia, wizję architektoniczną autora projektu. Ostateczne wykończenie budynku może nastąpić na wiele sposobów. Szczegółowe rozwiązania zastosowane w oferowanej dokumentacji - w tym również ilość, lokalizacje i wygląd okien, drzwi, kominów - mogą w niewielkim stopniu różnić się od prezentowanej wizualizacji budynku.

REKLAMA
Zamknij