Projekty nawet 500 zł taniej ❄️

Koniec oferty za:

00godz.

00min.

00sek.

Sprawdź

Projekt domu Simon 01 (dwulokalowy) WRC2641

Dodano!
Dodano!

Warstwy

Warstwy

Rzut parteru

Powierzchnia (m²)
Tooltip
Powierzchnia pomieszczenia
to ta, z której faktycznie możesz korzystać – skosy i niskie części poddasza są liczone częściowo lub wcale.
  1. 100% dla wysokości powyżej 2,2 m,
  2. 50% dla wysokości 1,4–2,2 m,
  3. nie liczymy poniżej 1,4 m.

Powierzchnia podłogi
Liczymy po obrysie pomieszczenia, bez względu na jego wysokość/skosy. Jeśli nie ma skosów to powierzchnia podłogi i pomieszczenia jest taka sama.
pomieszczenia i podłogi
podłogi
1. Wiatrołap
4,32
2. Hall + schody
14,40
3. Kuchnia
11
4. Spiżarnia
2,34
5. Pokój dzienny
34,08
6. Wc
1,54
7. Korytarz
6,24
8. Pokój
15,19
9. Pokój
10,49
10. Pomieszczenie gospodarcze
9,22
11. Łazienka
7,57
12. Hall
2,89
13. Garderoba
4,94
14. Pokój + kuchnia
17,84
15. Pokój
13,03
16. Łazienka
4,85
17. Kotłownia
7,09
Razem
167,03
167,03
Powierzchnia (m²)
Tooltip
Powierzchnia pomieszczenia
to ta, z której faktycznie możesz korzystać – skosy i niskie części poddasza są liczone częściowo lub wcale.
  1. 100% dla wysokości powyżej 2,2 m,
  2. 50% dla wysokości 1,4–2,2 m,
  3. nie liczymy poniżej 1,4 m.

Powierzchnia podłogi
Liczymy po obrysie pomieszczenia, bez względu na jego wysokość/skosy. Jeśli nie ma skosów to powierzchnia podłogi i pomieszczenia jest taka sama.
pomieszczenia i podłogi
podłogi
1. Poddasze do adaptacji
50,20
Razem
50,20
50,20

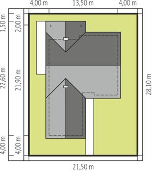
    Usytuowanie na działce

    Czy ten projekt pasuje na
    Twoją działkę?

    Chętnie to sprawdzimy!

    Dowiedz się:

    • czy zmieści się na niej wybrany przez Ciebie dom
    • jakie parametry musi spełniać dom według miejscowego planu zagospodarowania lub warunków zabudowy (np. kąt nachylenia i typ dachu, liczba kondygnacji itp.
    • jakie inne projekty pasują na Twoją działkę – znajdziemy je dla Ciebie!

Pow. użytkowa

159,94 m²

Pokoje

3

Łazienki i WC

3

Garaż

0

Min. szer. i dł. działki

21,5 x 28,10 m

Kąt dachu

30°

Konstrukcja

Murowana
więcej

Simon 01 (dwulokalowy) - WRC2641

ikona 159,94 m²
Powierzchnia użytkowa
ikona3
Pokoje (bez salonu)
ikona 3
Łazienki (z toaletami)
ikona 0
Liczba stanowisk garażowych
(z wiatą garażową)
ikona
Konstrukcja: Murowana

Projekt został
wycofany z oferty

W razie pytań prosimy o kontakt
z Centrum Obsługi Klienta
Konsultant Masz pytania?
Zadzwoń
71 715 20 60

pon.-pt. 8-21, sob. 9-17

Parter - 167,03 m²

Parter projektu Simon 01 (dwulokalowy)

Zapytaj, co możesz zmienić

Powierzchnia (m²)
Tooltip
Powierzchnia pomieszczenia
to ta, z której faktycznie możesz korzystać – skosy i niskie części poddasza są liczone częściowo lub wcale.
  1. 100% dla wysokości powyżej 2,2 m,
  2. 50% dla wysokości 1,4–2,2 m,
  3. nie liczymy poniżej 1,4 m.

Powierzchnia podłogi
Liczymy po obrysie pomieszczenia, bez względu na jego wysokość/skosy. Jeśli nie ma skosów to powierzchnia podłogi i pomieszczenia jest taka sama.
pomieszczenia i podłogi
podłogi
1. Wiatrołap
4,32
2. Hall + schody
14,40
3. Kuchnia
11
4. Spiżarnia
2,34
5. Pokój dzienny
34,08
6. Wc
1,54
7. Korytarz
6,24
8. Pokój
15,19
9. Pokój
10,49
10. Pomieszczenie gospodarcze
9,22
11. Łazienka
7,57
12. Hall
2,89
13. Garderoba
4,94
14. Pokój + kuchnia
17,84
15. Pokój
13,03
16. Łazienka
4,85
17. Kotłownia
7,09
Razem
167,03
167,03

Poddasze - 50,20 m²

Poddasze projektu Simon 01 (dwulokalowy)

Zapytaj, co możesz zmienić

Powierzchnia (m²)
Tooltip
Powierzchnia pomieszczenia
to ta, z której faktycznie możesz korzystać – skosy i niskie części poddasza są liczone częściowo lub wcale.
  1. 100% dla wysokości powyżej 2,2 m,
  2. 50% dla wysokości 1,4–2,2 m,
  3. nie liczymy poniżej 1,4 m.

Powierzchnia podłogi
Liczymy po obrysie pomieszczenia, bez względu na jego wysokość/skosy. Jeśli nie ma skosów to powierzchnia podłogi i pomieszczenia jest taka sama.
pomieszczenia i podłogi
podłogi
1. Poddasze do adaptacji
50,20
Razem
50,20
50,20

Warianty projektu (10)

PROMOCJA
Projekt domu Simon III G2 energo
Simon III G2 energo
Dodano!
Dodano!
126,16 m²
4
3
2

4 240 zł

5 300 zł

Tooltip

Cena regularna

4 240 zł najniższa cena
Tooltip

Najniższa cena z 30 dni
przed obniżką

PROMOCJA
Projekt domu Simon G2
Simon G2
Dodano!
Dodano!
116,39 m²
3
2
2

4 160 zł

5 200 zł

Tooltip

Cena regularna

4 160 zł najniższa cena
Tooltip

Najniższa cena z 30 dni
przed obniżką

PROMOCJA
Projekt domu Simon III energo
Simon III energo
Dodano!
Dodano!
134,21 m²
4
3
0

3 840 zł

4 800 zł

Tooltip

Cena regularna

3 840 zł najniższa cena
Tooltip

Najniższa cena z 30 dni
przed obniżką

PROMOCJA
Projekt domu Simon
Simon
Dodano!
Dodano!
118,05 m²
3
2
0

3 680 zł

4 600 zł

Tooltip

Cena regularna

3 680 zł najniższa cena
Tooltip

Najniższa cena z 30 dni
przed obniżką

PROMOCJA
Projekt domu Simon IV G2 energo
Simon IV G2 energo
Dodano!
Dodano!
112,31 m²
3
2
2

4 160 zł

5 200 zł

Tooltip

Cena regularna

4 160 zł najniższa cena
Tooltip

Najniższa cena z 30 dni
przed obniżką

PROMOCJA
Projekt domu Simon II G2 energo
Simon II G2 energo
Dodano!
Dodano!
157,39 m²
4
3
2

4 720 zł

5 900 zł

Tooltip

Cena regularna

4 720 zł najniższa cena
Tooltip

Najniższa cena z 30 dni
przed obniżką

PROMOCJA
Projekt domu Simon IV G2 energo plus
Simon IV G2 energo plus
Dodano!
Dodano!
112,31 m²
3
2
2

5 440 zł

6 800 zł

Tooltip

Cena regularna

5 440 zł najniższa cena
Tooltip

Najniższa cena z 30 dni
przed obniżką

PROMOCJA
Projekt domu Simon IV G2 (bliźniak) energo
112,31 m²
3
2
2

8 000 zł

10 000 zł

Tooltip

Cena regularna

8 000 zł najniższa cena
Tooltip

Najniższa cena z 30 dni
przed obniżką

PROMOCJA
Projekt domu Simon G2 energo plus
Simon G2 energo plus
Dodano!
Dodano!
116,39 m²
3
2
2

5 600 zł

7 000 zł

Tooltip

Cena regularna

5 600 zł najniższa cena
Tooltip

Najniższa cena z 30 dni
przed obniżką

PROMOCJA
Projekt domu Simon G2 (mały) energo
Simon G2 (mały) energo
Dodano!
Dodano!
99,72 m²
3
2
2

4 160 zł

5 200 zł

Tooltip

Cena regularna

4 160 zł najniższa cena
Tooltip

Najniższa cena z 30 dni
przed obniżką

Podobne projekty (6193)

Zobacz wszystkie
Zdjęcie 1 projektu NewHouse 761 w3 KRZ1132
NewHouse 761 w3
Dodano!
Dodano!
153,74 m²
4
3
2

5 890 zł

Zdjęcie 1 projektu NewHouse 761 KRZ1109
NewHouse 761
Dodano!
Dodano!
135,52 m²
3
3
2

5 690 zł

NIŻSZA CENA❄️
Zdjęcie 1 projektu HomeKoncept 133 KRX1268
HomeKoncept 133
Dodano!
Dodano!
130,02 m²
4
2
2

6 190 zł

6 690 zł

Tooltip

Cena regularna

5 686 zł najniższa cena
Tooltip

Najniższa cena z 30 dni
przed obniżką

Zdjęcie 1 projektu NewHouse 761 w1 KRZ1122
NewHouse 761 w1
Dodano!
Dodano!
138,73 m²
3
2
2

5 690 zł

NIŻSZA CENA❄️
Nowość
Zdjęcie 1 projektu APS 401 wariant 4 LUA1681
APS 401 wariant 4
Dodano!
Dodano!
140 m²
4
2
2

5 099 zł

5 599 zł

Tooltip

Cena regularna

5 099 zł najniższa cena
Tooltip

Najniższa cena z 30 dni
przed obniżką

NIŻSZA CENA❄️
Nowość
Zdjęcie 1 projektu Thoth BBI1022
Thoth
Dodano!
Dodano!
144,58 m²
3
2
0

5 900 zł

6 200 zł

Tooltip

Cena regularna

5 950 zł najniższa cena
Tooltip

Najniższa cena z 30 dni
przed obniżką

NIŻSZA CENA❄️
Zdjęcie 1 projektu Willa Parterowa 4 wariant B WAH2097
Willa Parterowa 4 wariant B
Dodano!
Dodano!
146,83 m²
4
3
2

5 272 zł

6 590 zł

Tooltip

Cena regularna

4 942 zł najniższa cena
Tooltip

Najniższa cena z 30 dni
przed obniżką

NIŻSZA CENA❄️
Zdjęcie 1 projektu Sej-pro 071/1 energo ELW1045
Sej-pro 071/1 energo
Dodano!
Dodano!
136,16 m²
4
2
0

4 997 zł

5 297 zł

Tooltip

Cena regularna

4 697 zł najniższa cena
Tooltip

Najniższa cena z 30 dni
przed obniżką

Elewacje

Frontowa
Tylna
Lewa
Prawa

Przekroje

Przekrój pionowy

Usytuowanie na działce

Czy ten projekt pasuje na
Twoją działkę?

Chętnie to sprawdzimy!

Czy ten projekt pasuje na
Twoją działkę?

Chętnie to sprawdzimy!

Dowiedz się:

  • czy zmieści się na niej wybrany przez Ciebie dom
  • jakie parametry musi spełniać dom według miejscowego planu zagospodarowania lub warunków zabudowy (np. kąt nachylenia i typ dachu, liczba kondygnacji itp.
  • jakie inne projekty pasują na Twoją działkę – znajdziemy je dla Ciebie!
Autor: Pracownia Projektowa ARCHIPELAG

Dane techniczne projektu

Powierzchnie i wymiary Powierzchnie i wymiary

Powierzchnia użytkowa
Tooltip
Suma powierzchni wszystkich pomieszczeń mieszkalnych, pomniejszona o pow. garażu, kotłowni, strychu, piwnicy. Jest liczona w 100% dla pomieszczeń o wysokości powyżej 2,2 m, w 50% dla pomieszczeń o wys. 2,2-1,4 m i niewliczana dla niższych niż 1,4 m.

159,94 m²

Powierzchnia zabudowy
Tooltip
Powierzchnia zajmowana przez część na- oraz nadziemną budynku liczona, jako rzut pionowy budynku na działkę.

226,87 m²

Powierzchnia netto
Tooltip
Powierzchna wszystkich pomieszczeń w budynku mierzona na wysokości podłogi.

193,75 m²

Kubatura netto
Tooltip
Zazwyczaj jest to suma kubatur (objętości) pomieszczeń budynku, bez strychu, liczonych po zewnętrznym obrysie murów (z ociepleniem).

544,40 m³

Powierzchnia dachu

316 m²

Kąt nachylenia dachu
Tooltip
Nachylenie połaci dachu głównego podawane w stopniach. Uwaga! W niektórych projektach występuje więcej niż jedno nachylenie dachu.

30°

Wysokość budynku
Tooltip
Wysokość liczona od części budynku położonej najniżej przy powierzchni terenu do najwyższego punktu dachu (kalenicy) z wyłączeniem kominów.

7,22 m

Szerokość elewacji

13,50 m

Długość elewacji

21,90 m

Min. szerokość działki
Tooltip
Najmniejsza możliwa szerokość działki niezbędna do wybudowania wybranego domu. Składa się z szerokości elewacji domu powiększonej z obu stron o 3 m dla ściany bez otworów drzwiowych/okiennych lub 4 m, dla ściany z otworami.

21,50 m

Min. długość działki
Tooltip
Najmniejsza możliwa długość działki niezbędna do wybudowania wybranego domu. Składa się z długości elewacji domu powiększonej z obu stron o 3 m dla ściany bez otworów drzwiowych/okiennych lub 4 m, dla ściany z otworami.

28,10 m

Energooszczędność Energooszczędność

Oze Czym jest OZE (Odnawialne Źródło Energii)?
Ep
Tooltip
Energia pierwotna określa ilość energii nieodnawialnej potrzebnej w ciągu roku do ogrzewania czy też ogrzania wody użytkowej z uwzględnieniem kosztów produkcji i transportu surowców energetycznych.

68,71 kWh/(m²rok)

Euco
Tooltip
Energia użytkowa potrzebna do ogrzewania i wentylacji. Im parametr jest niższy tym budynek bardziej energooszczędny.

48 kWh/(m²rok)

Ogrzewanie główne

Gazowe - szczegóły

Interesuje Cię inne źródło ogrzewania? Wyślij zapytanie lub zadzwoń do doradcy

Wentylacja

Grawitacyjna - szczegóły

Warunki techniczne

Projekt zgody z WT 2021

Technologia i konstrukcja Technologia i konstrukcja

Konstrukcja

Murowana

Opis szczegółowy

Fundamenty: ławy, bloczki betonowe 24 cm, ocieplenie styropian 15 cm. Ściany zewnętrzne: murowane, dwuwarstwowe, beton komórkowy firmy H+H 24 cm, ocieplenie 20 cm. Ściany wewnętrzne: murowane, bloczki betonu komórkowego firmy H+H 24 cm i 11,5 cm. Strop: gęstożebrowy Teriva, ocieplenie wełna mineralna 30 cm. Dach: konstrukcja drewniana, ocieplenie wełna mineralna 30 cm, dachówka ceramiczna płaska Bergamo firmy Röben w kolorze antracytowym. Inne: w przypadku wykorzystania poddasza jako mieszkalne – schody wewnętrzne drewniane. Ogrzewanie: kocioł gazowy kondensacyjny, rozprowadzenie ciepła: grzejniki. Wentylacja: grawitacyjna. Elewacje: tynk cienkowarstwowy mineralny w kolorze TO-PA001 z palety firmy Termo Organika. Stolarka: drewniana, PVC lub aluminiowa, rolety zewnętrzne w systemie CleverBox firmy BeClever, drzwi wejściowe firmy Hörmann.

Strop

Gęstożebrowy

Reklama
Okna i drzwi tarasowe

Nowoczesne okna PVC i aluminiowe WIŚNIOWSKI – doskonała izolacja, elegancki design i niezrównana trwałość.

Wiśniowski
Sprawdź parametry!
Okna dachowe

Oferujemy bezpłatne konsultacje w zakresie wszystkich rozwiązań VELUX. Wyceny, porady dotyczące doboru okien i rolet zewnętrznych - sprawdź!

Velux
Sprawdź szczegóły
Płytki ceramiczne i gresy

Od małych formatów po wielkoformatowe gresy. Marmur, beton, drewno, kamień, lastryko czy cegiełki zamówisz wygodnie online z szybką dostawą.

Ceramzet
Sprawdź ofertę
Drzwi

Ciepłe drzwi WIŚNIOWSKI z kontrolą dostępu. Szeroka gama wzorów i kolorów.

Wiśniowski
Wybierz najlepsze
Bramy garażowe

Automatyczne bramy garażowe segmentowe i uchylne WIŚNIOWSKI na wymiar i z systemem smart home w standardzie.

Wiśniowski
Sprawdź ofertę!
Armatura i ceramika łazienkowa

Topowi producenci. Baterie łazienkowe, zestawy natynkowe i podtynkowe, umywalki, wanny, miski WC oraz kabiny zamówisz kompleksowo online.

Ceramzet II
Dowiedz się więcej
Rekuperacja

Alnor - kompletny system rekuperacji. Dobierz idealne rozwiązanie dla Twojego domu!

Alnor
Dobierz rekuperator
Gruntowe pompy ciepła

Przeprowadzimy kompletną instalację najbardziej oszczędnego źródła ciepła w Twoim nowym domu - gruntowej pompy ciepła. Od dokumentacji, pozwoleń, po odwierty i instalację.

Geothermal Solutions
Dowiedz się więcej

Gotowe domy modułowe (114)

Zobacz wszystkie
Stan deweloperski nawet w 6 miesięcy Gwarancja stałej ceny
Zdjęcie 1 projektu Dom prefabrykowany P.2 HPK1001
Pow. użytkowa
159,18 m²
Pokoje
5
832 200 zł 5 228 zł/m²
Zdjęcie 1 projektu Dom prefabrykowany P.4 bez okapu HPK1003
Pow. użytkowa
162,18 m²
Pokoje
4
701 000 zł 4 322 zł/m²
Zdjęcie 1 projektu Dom prefabrykowany P.4 z okapem HPK1014
Pow. użytkowa
162,18 m²
Pokoje
5
710 500 zł 4 381 zł/m²
Zdjęcie 1 projektu Dom prefabrykowany DH174 HDH1009
Pow. użytkowa
162,97 m²
Pokoje
4
1 026 000 zł 5 796 zł/m²
Zdjęcie 1 projektu Dom szkieletowy Viking Smart 220 HHT1032
Pow. użytkowa
163,86 m²
Pokoje
4
1 095 606 zł 6 686 zł/m²
Zdjęcie 1 projektu Dom prefabrykowany Stodoła 150C HFX1026
Pow. użytkowa
152,90 m²
Pokoje
5
589 000 zł 3 852 zł/m²
Zdjęcie 1 projektu Dom prefabrykowany Stodoła 150A HFX1024
Pow. użytkowa
152,20 m²
Pokoje
5
589 000 zł 3 870 zł/m²
Zdjęcie 1 projektu Dom prefabrykowany Stodoła 150B HFX1025
Pow. użytkowa
151,30 m²
Pokoje
4
589 000 zł 3 893 zł/m²

Opis projektu domu
Simon 01 (dwulokalowy)

Projekt domu Simon 01 (dwulokalowy) został stworzony na wzór znanego projektu Simon G2. W przeciwieństwie do pierwotnej wersji projekt ma większą powierzchnię, Jednak nie posiada garażu. Projekt domu Simon 01 (dwulokalowy) to ciekawa propozycja dla osób posiadających średniej szerokości działkę. Odznacza się bryłą w kształcie litery L, co jest bardzo funkcjonalne, ze względu na wyraźny podział domu na strefy. Projekt należy do kategorii domów z kalenicą skierowaną równolegle do drogi, co jest istotne ze względu na wymagania określone w planie zagospodarowania przestrzennego. Dom został stworzony do zabudowy wolnostojącej. Jest to również doskonała propozycja dla osób szukających domu z dachem dwuspadowym, co pozwala na ograniczenie kosztów. Projekt Simon 01 (dwulokalowy) to dom parterowy, co jest z pewnością ogromnym plusem w przypadku osób starszych, niepełnosprawnych oraz małżeństw z małymi dziećmi. Dodatkowo jest możliwość zaadaptowania poddasza, więc jeśli w przyszłości zajdzie taka potrzeba, można wykonać na tej kondygnacji dodatkowe pokoje. Zwolenników przestronnych przestrzeni z pewnością ucieszy przewidziana w projekcie część dzienna. Doskonale przemyślane rozwiązania w kuchni dają wiele możliwości aranżacyjnych oraz ułatwią codzienne korzystanie. Uwzględniona w projekcie spiżarka znacznie ułatwi zachowanie porządku. Ciekawym elementem jest z pewnością usytuowany w salonie kominek, który nada wnętrzu niepowtarzalny klimat. Uwzględnione w domu trzy przestronne sypialnie to optymalna opcja dla 2-4 osobowej rodziny. Przestrzeń można wykorzystać także jako pokój dla gości lub gabinet. Dla osób ceniących sobie dobrą organizację, istotnym pomieszczeniem jest przewidziana w projekcie garderoba. W projekcie nie mogło również zabraknąć miejsca na wyjątkowo przydatne pomieszczenie gospodarcze. Efektowny taras pozwala na kontakt z naturą bez zbytniego oddalania się od domowego zacisza. Projekt powstał z myślą o Inwestorach, którzy planują zbudować dom w technologii murowanej. Jego wygląd nawiązuje do stylu tradycyjnego, dzięki czemu idealnie wpisze się w dowolny krajobraz.
Czytaj więcej

Polecani producenci

Prefabrykowane konstrukcje dachowe

tło producenta

WIĄZAR POLSKA

Zobacz więcej

Sprawdź nową generację okien GREENVIEW

tło producenta

FAKRO

Sprawdź nową generację okien GREENVIEW

Styropian, tynki, farby, kleje

tło producenta

Termo Organika

Poznaj super jakość

Okna, drzwi, osłony przeciwsłoneczne

tło producenta

Aluprof

Sprawdź ofertę

Kompletne systemy rekuperacji

tło producenta

Alnor

Dowiedz się więcej

Sprawdź nowy system DACHRYNNA

tło producenta

Galeco

Sprawdź ofertę
Zobacz więcej

Społeczność projektu domu
Simon 01 (dwulokalowy) w budowie

Dołącz do społeczności osób, które budują ten dom lub są zainteresowane jego budową.

  • Oglądaj zdjęcia z budowy
  • Zadawaj pytania
  • Wymieniaj się doświadczeniami

Opinie o projekcie domu Simon 01 (dwulokalowy)

Ocena

Ten projekt nie ma jeszcze opinii, bądź pierwszy!

Dodaj opinię

ASYSTENT WYBORU PROJEKTU

Szukasz idealnego projektu? Znajdziemy go dla Ciebie!

Doradca na podstawie Twoich wskazówek przygotuje spersonalizowaną listę projektów

Graficzne opracowanie rzutów poglądowych widocznych na karcie projektu zostało wykonane przez Extradom.pl. Prezentowane przez Extradom.pl wizualizacje wykonane zostały przez autora projektu i należy poczytywać je jedynie za przykład i propozycję wykończenia, wizję architektoniczną autora projektu. Ostateczne wykończenie budynku może nastąpić na wiele sposobów. Szczegółowe rozwiązania zastosowane w oferowanej dokumentacji - w tym również ilość, lokalizacje i wygląd okien, drzwi, kominów - mogą w niewielkim stopniu różnić się od prezentowanej wizualizacji budynku.

REKLAMA
Zamknij