Projekty nawet 500 zł taniej ❄️

Koniec oferty za:

00godz.

00min.

00sek.

Sprawdź

Projekt domu ROMEO I JULIA 3 KRD1202

Dodano!
Dodano!

Warstwy

Warstwy

Warstwy

Rzut parteru

Powierzchnia (m²)
Tooltip
Powierzchnia pomieszczenia
to ta, z której faktycznie możesz korzystać – skosy i niskie części poddasza są liczone częściowo lub wcale.
  1. 100% dla wysokości powyżej 2,2 m,
  2. 50% dla wysokości 1,4–2,2 m,
  3. nie liczymy poniżej 1,4 m.

Powierzchnia podłogi
Liczymy po obrysie pomieszczenia, bez względu na jego wysokość/skosy. Jeśli nie ma skosów to powierzchnia podłogi i pomieszczenia jest taka sama.
pomieszczenia i podłogi
podłogi
1. Pomieszczenie gospodarcze
34,50
2. Korytarz
4,70
3. Kotłownia
14,40
4. Pomieszczenie gospodarcze
12,40
Razem
66
66
Powierzchnia (m²)
Tooltip
Powierzchnia pomieszczenia
to ta, z której faktycznie możesz korzystać – skosy i niskie części poddasza są liczone częściowo lub wcale.
  1. 100% dla wysokości powyżej 2,2 m,
  2. 50% dla wysokości 1,4–2,2 m,
  3. nie liczymy poniżej 1,4 m.

Powierzchnia podłogi
Liczymy po obrysie pomieszczenia, bez względu na jego wysokość/skosy. Jeśli nie ma skosów to powierzchnia podłogi i pomieszczenia jest taka sama.
pomieszczenia i podłogi
podłogi
1. Pokój
13,80
2. Pokój dzienny
32,50
3. Hall
15,10
4. Kuchnia
13,80
5. Wiatrołap
4,20
6. Wc
1,80
7. Pokój
12,60
8. Przedpokój
3,70
9. Łazienka
3,10
Razem
100,60
100,60
Powierzchnia (m²)
Tooltip
Powierzchnia pomieszczenia
to ta, z której faktycznie możesz korzystać – skosy i niskie części poddasza są liczone częściowo lub wcale.
  1. 100% dla wysokości powyżej 2,2 m,
  2. 50% dla wysokości 1,4–2,2 m,
  3. nie liczymy poniżej 1,4 m.

Powierzchnia podłogi
Liczymy po obrysie pomieszczenia, bez względu na jego wysokość/skosy. Jeśli nie ma skosów to powierzchnia podłogi i pomieszczenia jest taka sama.
pomieszczenia i podłogi
podłogi
1. Pokój
15,60
2. Pokój
14,10
3. Przedpokój
6,80
4. Łazienka
6,80
5. Pracownia
9
6. Antresola
8
Razem
60,30
60,30

    Usytuowanie na działce

    Czy ten projekt pasuje na
    Twoją działkę?

    Chętnie to sprawdzimy!

    Dowiedz się:

    • czy zmieści się na niej wybrany przez Ciebie dom
    • jakie parametry musi spełniać dom według miejscowego planu zagospodarowania lub warunków zabudowy (np. kąt nachylenia i typ dachu, liczba kondygnacji itp.
    • jakie inne projekty pasują na Twoją działkę – znajdziemy je dla Ciebie!

Pokoje

4

Łazienki i WC

3

Garaż

0
więcej

ROMEO I JULIA 3 - KRD1202

ikona4
Pokoje (bez salonu)
ikona 3
Łazienki (z toaletami)
ikona 0
Liczba stanowisk garażowych
(z wiatą garażową)

Projekt został
wycofany z oferty

W razie pytań prosimy o kontakt
z Centrum Obsługi Klienta
Konsultant Masz pytania?
Zadzwoń
71 715 20 60

pon.-pt. 8-21, sob. 9-17

Piwnica - 66 m²

Piwnica projektu ROMEO I JULIA 3

Zapytaj, co możesz zmienić

Powierzchnia (m²)
Tooltip
Powierzchnia pomieszczenia
to ta, z której faktycznie możesz korzystać – skosy i niskie części poddasza są liczone częściowo lub wcale.
  1. 100% dla wysokości powyżej 2,2 m,
  2. 50% dla wysokości 1,4–2,2 m,
  3. nie liczymy poniżej 1,4 m.

Powierzchnia podłogi
Liczymy po obrysie pomieszczenia, bez względu na jego wysokość/skosy. Jeśli nie ma skosów to powierzchnia podłogi i pomieszczenia jest taka sama.
pomieszczenia i podłogi
podłogi
1. Pomieszczenie gospodarcze
34,50
2. Korytarz
4,70
3. Kotłownia
14,40
4. Pomieszczenie gospodarcze
12,40
Razem
66
66

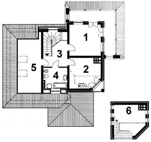
Parter - 100,60 m²

Parter projektu ROMEO I JULIA 3

Zapytaj, co możesz zmienić

Powierzchnia (m²)
Tooltip
Powierzchnia pomieszczenia
to ta, z której faktycznie możesz korzystać – skosy i niskie części poddasza są liczone częściowo lub wcale.
  1. 100% dla wysokości powyżej 2,2 m,
  2. 50% dla wysokości 1,4–2,2 m,
  3. nie liczymy poniżej 1,4 m.

Powierzchnia podłogi
Liczymy po obrysie pomieszczenia, bez względu na jego wysokość/skosy. Jeśli nie ma skosów to powierzchnia podłogi i pomieszczenia jest taka sama.
pomieszczenia i podłogi
podłogi
1. Pokój
13,80
2. Pokój dzienny
32,50
3. Hall
15,10
4. Kuchnia
13,80
5. Wiatrołap
4,20
6. Wc
1,80
7. Pokój
12,60
8. Przedpokój
3,70
9. Łazienka
3,10
Razem
100,60
100,60

Poddasze - 60,30 m²

Poddasze projektu ROMEO I JULIA 3

Zapytaj, co możesz zmienić

Powierzchnia (m²)
Tooltip
Powierzchnia pomieszczenia
to ta, z której faktycznie możesz korzystać – skosy i niskie części poddasza są liczone częściowo lub wcale.
  1. 100% dla wysokości powyżej 2,2 m,
  2. 50% dla wysokości 1,4–2,2 m,
  3. nie liczymy poniżej 1,4 m.

Powierzchnia podłogi
Liczymy po obrysie pomieszczenia, bez względu na jego wysokość/skosy. Jeśli nie ma skosów to powierzchnia podłogi i pomieszczenia jest taka sama.
pomieszczenia i podłogi
podłogi
1. Pokój
15,60
2. Pokój
14,10
3. Przedpokój
6,80
4. Łazienka
6,80
5. Pracownia
9
6. Antresola
8
Razem
60,30
60,30

Podobne projekty (9774)

Zobacz wszystkie
NIŻSZA CENA❄️
Zdjęcie 1 projektu N-111 PZB1004
N-111
Dodano!
Dodano!
114,80 m²
3
2
0

7 781 zł

8 190 zł

Tooltip

Cena regularna

5 751 zł najniższa cena
Tooltip

Najniższa cena z 30 dni
przed obniżką

NIŻSZA CENA❄️
Zdjęcie 1 projektu BK-19 wariant II segment WWC1066
BK-19 wariant II segment
Dodano!
Dodano!
105,34 m²
4
2
0

3 699 zł

3 999 zł

Tooltip

Cena regularna

3 499 zł najniższa cena
Tooltip

Najniższa cena z 30 dni
przed obniżką

NIŻSZA CENA❄️
Zdjęcie 1 projektu BK-19 wariant II WWC1065
BK-19 wariant II
Dodano!
Dodano!
105,34 m²
4
2
0

6 799 zł

7 099 zł

Tooltip

Cena regularna

6 599 zł najniższa cena
Tooltip

Najniższa cena z 30 dni
przed obniżką

Zdjęcie 1 projektu House 09 WRG1074
House 09
Dodano!
Dodano!
126,13 m²
3
2
0

5 690 zł

Zdjęcie 1 projektu House 05 WRG1067
House 05
Dodano!
Dodano!
104,61 m²
3
2
0

5 190 zł

NIŻSZA CENA❄️
Zdjęcie 1 projektu Przytulny D25 WWB1021
Przytulny D25
Dodano!
Dodano!
109,89 m²
4
2
1

3 799 zł

4 099 zł

Tooltip

Cena regularna

3 599 zł najniższa cena
Tooltip

Najniższa cena z 30 dni
przed obniżką

NIŻSZA CENA❄️
Zdjęcie 1 projektu EG-88 segment skrajny WWB1119
EG-88 segment skrajny
Dodano!
Dodano!
97,79 m²
3
2
1

4 049 zł

4 299 zł

Tooltip

Cena regularna

3 899 zł najniższa cena
Tooltip

Najniższa cena z 30 dni
przed obniżką

Zdjęcie 1 projektu Ronin 1 SLT1000
Ronin 1
Dodano!
Dodano!
106,36 m²
3
2
2

5 000 zł

Przekroje

Przekrój pionowy
Autor: Archeton

Dane techniczne projektu

Powierzchnie i wymiary Powierzchnie i wymiary

Energooszczędność Energooszczędność

Oze Czym jest OZE (Odnawialne Źródło Energii)?
Warunki techniczne

Projekt zgody z WT 2021

Opis projektu domu
ROMEO I JULIA 3

Wejście przez sień do hallu, na wprost klatka schodowa, po lewej 2 pokoje i łazienka. Po prawej stronie kuchnia i pokój dzienny. WC dostępne z hallu obok wejścia. W piwnicach pomieszczenia gospodarcze i kotłownia. Na poddaszu 2 pokoje, łazienka i pracownia. W pokoju w wieży antresola, na którą prowadzą drewniane schody. Bardzo malowniczy dom z interesującym układem wnętrz. Charakterystyczna wieża i galeria oraz drewniany ganek wejściowy stanowią o oryginalności i niepowtarzalności domu. Wykończenie fragmentów elewacji okładziną kamienną nadaje dodatkowo obiektowi charakteru małego zamku.
Czytaj więcej

Polecani producenci

Prefabrykowane konstrukcje dachowe

tło producenta

WIĄZAR POLSKA

Zobacz więcej

Sprawdź nową generację okien GREENVIEW

tło producenta

FAKRO

Sprawdź nową generację okien GREENVIEW

Styropian, tynki, farby, kleje

tło producenta

Termo Organika

Poznaj super jakość

Okna, drzwi, osłony przeciwsłoneczne

tło producenta

Aluprof

Sprawdź ofertę

Kompletne systemy rekuperacji

tło producenta

Alnor

Dowiedz się więcej

Sprawdź nowy system DACHRYNNA

tło producenta

Galeco

Sprawdź ofertę
Zobacz więcej

Społeczność projektu domu
ROMEO I JULIA 3 w budowie

Dołącz do społeczności osób, które budują ten dom lub są zainteresowane jego budową.

  • Oglądaj zdjęcia z budowy
  • Zadawaj pytania
  • Wymieniaj się doświadczeniami

Opinie o projekcie domu ROMEO I JULIA 3

Ocena

Ten projekt nie ma jeszcze opinii, bądź pierwszy!

Dodaj opinię

ASYSTENT WYBORU PROJEKTU

Szukasz idealnego projektu? Znajdziemy go dla Ciebie!

Doradca na podstawie Twoich wskazówek przygotuje spersonalizowaną listę projektów

Graficzne opracowanie rzutów poglądowych widocznych na karcie projektu zostało wykonane przez Extradom.pl. Prezentowane przez Extradom.pl wizualizacje wykonane zostały przez autora projektu i należy poczytywać je jedynie za przykład i propozycję wykończenia, wizję architektoniczną autora projektu. Ostateczne wykończenie budynku może nastąpić na wiele sposobów. Szczegółowe rozwiązania zastosowane w oferowanej dokumentacji - w tym również ilość, lokalizacje i wygląd okien, drzwi, kominów - mogą w niewielkim stopniu różnić się od prezentowanej wizualizacji budynku.

REKLAMA
Zamknij