Projekty nawet 500 zł taniej ❄️

Koniec oferty za:

0dni

00godz.

00min.

00sek.

Sprawdź

Projekt domu Rezydencja Parkowa 2 WAH1590

Dodano!
Dodano!

Warstwy

Warstwy

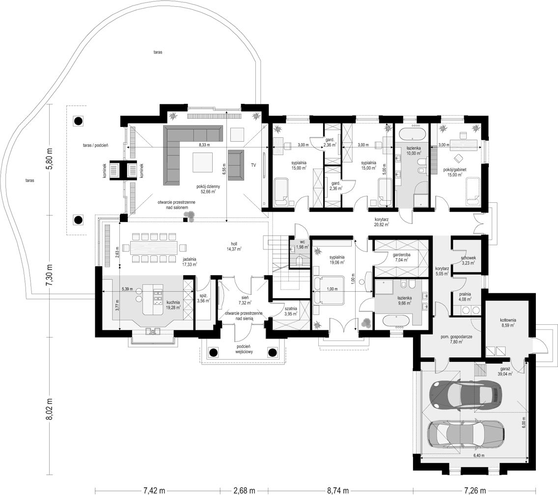
Rzut parteru

Powierzchnia (m²)
Tooltip
Powierzchnia pomieszczenia
to ta, z której faktycznie możesz korzystać – skosy i niskie części poddasza są liczone częściowo lub wcale.
  1. 100% dla wysokości powyżej 2,2 m,
  2. 50% dla wysokości 1,4–2,2 m,
  3. nie liczymy poniżej 1,4 m.

Powierzchnia podłogi
Liczymy po obrysie pomieszczenia, bez względu na jego wysokość/skosy. Jeśli nie ma skosów to powierzchnia podłogi i pomieszczenia jest taka sama.
pomieszczenia i podłogi
podłogi
1. Wiatrołap
7,32
2. Hall
14,37
3. Jadalnia
17,33
4. Kuchnia
19,28
5. Spiżarnia
3,56
6. Pokój dzienny
52,66
7. Korytarz
20,82
8. Pokój
15
9. Garderoba
2,36
10. Pokój
15
11. Garderoba
2,36
12. Łazienka
10
13. Pokój
15
14. Pokój
19,06
15. Garderoba
7,04
16. Łazienka
9,66
17. Wc
1,98
18. Garderoba
3,95
19. Korytarz
5,05
20. Pomieszczenie gospodarcze
3,23
21. Pralnia
4,08
22. Pomieszczenie gospodarcze
7,80
23. Kotłownia
8,59
24. Garaż dwustanowiskowy
39,04
Razem
304,54
304,54
Powierzchnia (m²)
Tooltip
Powierzchnia pomieszczenia
to ta, z której faktycznie możesz korzystać – skosy i niskie części poddasza są liczone częściowo lub wcale.
  1. 100% dla wysokości powyżej 2,2 m,
  2. 50% dla wysokości 1,4–2,2 m,
  3. nie liczymy poniżej 1,4 m.

Powierzchnia podłogi
Liczymy po obrysie pomieszczenia, bez względu na jego wysokość/skosy. Jeśli nie ma skosów to powierzchnia podłogi i pomieszczenia jest taka sama.
pomieszczenia
podłogi
1. Strych
70,78
129,15
2. Strych
Razem
70,78
129,15

    Usytuowanie na działce

    Czy ten projekt pasuje na
    Twoją działkę?

    Chętnie to sprawdzimy!

    Dowiedz się:

    • czy zmieści się na niej wybrany przez Ciebie dom
    • jakie parametry musi spełniać dom według miejscowego planu zagospodarowania lub warunków zabudowy (np. kąt nachylenia i typ dachu, liczba kondygnacji itp.
    • jakie inne projekty pasują na Twoją działkę – znajdziemy je dla Ciebie!

Pow. użytkowa

256,91 m²

Pokoje

4

Łazienki i WC

3

Garaż

2

Min. szer. i dł. działki

34,3 x 29,92 m

Kąt dachu

30°

Szacunkowy koszt SSZ

851 000 zł
Szacunkowy koszt budowy do stanu surowego zamkniętego (SSZ) metodą gospodarczą - większość prac wykonuje inwestor.

Konstrukcja

Murowana
więcej

Rezydencja Parkowa 2 - WAH1590

ikona 256,91 m²
Powierzchnia użytkowa
ikona4
Pokoje (bez salonu)
ikona 3
Łazienki (z toaletami)
ikona 2
Liczba stanowisk garażowych
(z wiatą garażową)
ikona
Konstrukcja: Murowana

Promocja od 18.12.2025, koniec za:

0 dni

00 00 00

8 712 zł

Tooltip

Cena regularna obowiązywała od 15.12.2025 do 17.12.2025

Cena regularna: 10 890 zł
Najniższa cena z 30 dni przed obniżką: 8 167 zł
Gwarancja najniższej ceny Gwarancja najniższej ceny Tooltip

Projekt jest dostępny Tooltip

GRATIS 10% rabatu do LEROY MERLIN

GRATIS Przydatne Extradodatki

GRATIS Poradnik Dach Solarny

100 dni na wymianę, 30 dni na zwrot

Darmowa dostawa - kurier, paczkomaty

Bezpłatne pozwolenie na zmiany

Dokumentacja zgodna z WT2021

Pokaż więcej (5)
Konsultant Masz pytania?
Zadzwoń
71 715 20 60

pon.-pt. 8-21, sob. 9-17

Szukasz wykonawcy godnego zaufania?
Zleć budowę w Extradom.pl!

  • Z góry znasz koszt budowy domu
  • Dom odbierasz zgodnie z ustalonym harmonogramem - nawet w 6 miesięcy
  • Zabezpiecza Cię jedna kompleksowa umowa z jednym wykonawcą
  • Otrzymujesz nawet 30-letnią gwarancję na konstrukcję domu
  • Oszczędzasz swój czas dzięki pewnej i kompletnej usłudze
Cena brutto stanu
deweloperskiego od
Tooltip
Cena brutto stanu deweloperskiego od 4 109 do 5 179 zł/m2.
Cena jest uzależniona m.in. od lokalizacji, wybranej technologii, kubatury budynku, skomplikowania projektu i ewentualnych zmian, na które zdecyduje się inwestor.
Cena za m2 powierzchni netto, czyli wszystkich pomieszczeń mierzonych na wysokości podłogi.
4 109 zł/m2
Dowiedz się więcej
Konsultant Masz pytania?
Zadzwoń
71 715 20 70

pon.-pt. 8-19

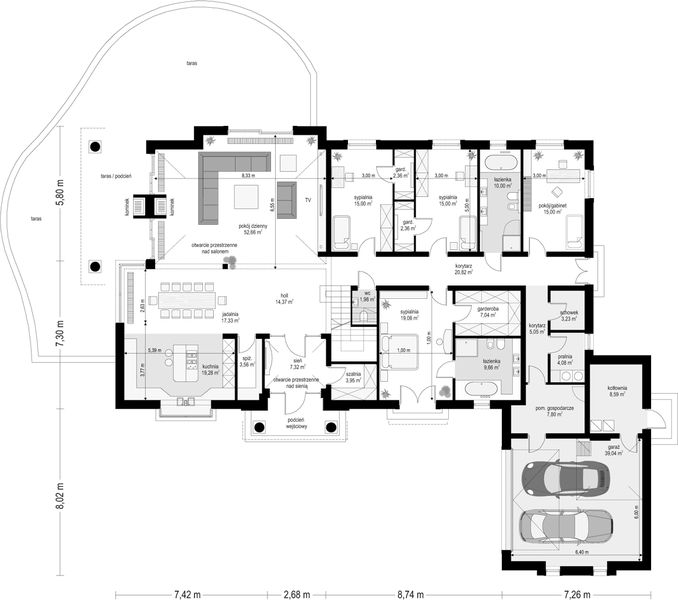
Parter - 304,54 m²

Parter projektu Rezydencja Parkowa 2

Zapytaj, co możesz zmienić

Powierzchnia (m²)
Tooltip
Powierzchnia pomieszczenia
to ta, z której faktycznie możesz korzystać – skosy i niskie części poddasza są liczone częściowo lub wcale.
  1. 100% dla wysokości powyżej 2,2 m,
  2. 50% dla wysokości 1,4–2,2 m,
  3. nie liczymy poniżej 1,4 m.

Powierzchnia podłogi
Liczymy po obrysie pomieszczenia, bez względu na jego wysokość/skosy. Jeśli nie ma skosów to powierzchnia podłogi i pomieszczenia jest taka sama.
pomieszczenia i podłogi
podłogi
1. Wiatrołap
7,32
2. Hall
14,37
3. Jadalnia
17,33
4. Kuchnia
19,28
5. Spiżarnia
3,56
6. Pokój dzienny
52,66
7. Korytarz
20,82
8. Pokój
15
9. Garderoba
2,36
10. Pokój
15
11. Garderoba
2,36
12. Łazienka
10
13. Pokój
15
14. Pokój
19,06
15. Garderoba
7,04
16. Łazienka
9,66
17. Wc
1,98
18. Garderoba
3,95
19. Korytarz
5,05
20. Pomieszczenie gospodarcze
3,23
21. Pralnia
4,08
22. Pomieszczenie gospodarcze
7,80
23. Kotłownia
8,59
24. Garaż dwustanowiskowy
39,04
Razem
304,54
304,54

Natychmiast, otrzymasz PDF-y
z rzutami wszystkich kondygnacji

Poddasze - 70,78 m²

Poddasze projektu Rezydencja Parkowa 2

Zapytaj, co możesz zmienić

Powierzchnia (m²)
Tooltip
Powierzchnia pomieszczenia
to ta, z której faktycznie możesz korzystać – skosy i niskie części poddasza są liczone częściowo lub wcale.
  1. 100% dla wysokości powyżej 2,2 m,
  2. 50% dla wysokości 1,4–2,2 m,
  3. nie liczymy poniżej 1,4 m.

Powierzchnia podłogi
Liczymy po obrysie pomieszczenia, bez względu na jego wysokość/skosy. Jeśli nie ma skosów to powierzchnia podłogi i pomieszczenia jest taka sama.
pomieszczenia
podłogi
1. Strych
70,78
129,15
2. Strych
Razem
70,78
129,15

Natychmiast, otrzymasz PDF-y
z rzutami wszystkich kondygnacji

Zamów rysunki szczegółowe

Zapoznaj się ze szczegółowymi rysunkami rzutów kondygnacji w PDF dla tego projektu.

Warianty projektu (25)

PROMOCJA
Projekt domu Rezydencja parkowa 4
Rezydencja parkowa 4
Dodano!
Dodano!
215,15 m²
4
2
2

8 712 zł

10 890 zł

Tooltip

Cena regularna

8 167 zł najniższa cena
Tooltip

Najniższa cena z 30 dni
przed obniżką

PROMOCJA
Projekt domu Rezydencja Parkowa 3
Rezydencja Parkowa 3
Dodano!
Dodano!
259,28 m²
5
4
2

8 712 zł

10 890 zł

Tooltip

Cena regularna

8 167 zł najniższa cena
Tooltip

Najniższa cena z 30 dni
przed obniżką

PROMOCJA
Projekt domu Rezydencja Parkowa 3 D
Rezydencja Parkowa 3 D
Dodano!
Dodano!
253,71 m²
5
4
2

8 712 zł

10 890 zł

Tooltip

Cena regularna

8 168 zł najniższa cena
Tooltip

Najniższa cena z 30 dni
przed obniżką

PROMOCJA
Projekt domu Rezydencja parkowa 3 B
Rezydencja parkowa 3 B
Dodano!
Dodano!
260,87 m²
5
4
2

8 712 zł

10 890 zł

Tooltip

Cena regularna

8 167 zł najniższa cena
Tooltip

Najniższa cena z 30 dni
przed obniżką

PROMOCJA
Projekt domu Rezydencja Parkowa 3 C
Rezydencja Parkowa 3 C
Dodano!
Dodano!
201,36 m²
2
2
2

8 520 zł

10 650 zł

Tooltip

Cena regularna

7 987 zł najniższa cena
Tooltip

Najniższa cena z 30 dni
przed obniżką

PROMOCJA
Projekt domu Rezydencja Parkowa
Rezydencja Parkowa
Dodano!
Dodano!
258,96 m²
4
3
2

8 712 zł

10 890 zł

Tooltip

Cena regularna

8 167 zł najniższa cena
Tooltip

Najniższa cena z 30 dni
przed obniżką

PROMOCJA
Projekt domu Rezydencja parkowa 2 wariant B
Rezydencja parkowa 2 wariant B
244,62 m²

9 192 zł

11 490 zł

Tooltip

Cena regularna

8 617 zł najniższa cena
Tooltip

Najniższa cena z 30 dni
przed obniżką

PROMOCJA
Projekt domu Rezydencja parkowa 2 wariant C
Rezydencja parkowa 2 wariant C
255 m²

8 712 zł

10 890 zł

Tooltip

Cena regularna

8 167 zł najniższa cena
Tooltip

Najniższa cena z 30 dni
przed obniżką

PROMOCJA
Projekt domu Rezydencja parkowa 2 wariant D
Rezydencja parkowa 2 wariant D
303,07 m²

8 712 zł

10 890 zł

Tooltip

Cena regularna

8 167 zł najniższa cena
Tooltip

Najniższa cena z 30 dni
przed obniżką

PROMOCJA
Projekt domu Rezydencja parkowa 3 wariant E
Rezydencja parkowa 3 wariant E
267,72 m²

8 712 zł

10 890 zł

Tooltip

Cena regularna

8 167 zł najniższa cena
Tooltip

Najniższa cena z 30 dni
przed obniżką

PROMOCJA
Projekt domu Rezydencja parkowa 3 wariant F
Rezydencja parkowa 3 wariant F
244,46 m²

8 872 zł

11 090 zł

Tooltip

Cena regularna

8 317 zł najniższa cena
Tooltip

Najniższa cena z 30 dni
przed obniżką

PROMOCJA
Projekt domu Rezydencja parkowa 3 wariant G
Rezydencja parkowa 3 wariant G
201,36 m²

8 712 zł

10 890 zł

Tooltip

Cena regularna

8 167 zł najniższa cena
Tooltip

Najniższa cena z 30 dni
przed obniżką

PROMOCJA
Projekt domu Rezydencja parkowa 3 wariant H
Rezydencja parkowa 3 wariant H
276,79 m²

8 712 zł

10 890 zł

Tooltip

Cena regularna

8 167 zł najniższa cena
Tooltip

Najniższa cena z 30 dni
przed obniżką

PROMOCJA
Projekt domu Rezydencja parkowa 3 wariant I
Rezydencja parkowa 3 wariant I
285,78 m²

8 872 zł

11 090 zł

Tooltip

Cena regularna

8 317 zł najniższa cena
Tooltip

Najniższa cena z 30 dni
przed obniżką

PROMOCJA
Projekt domu Rezydencja parkowa 3 wariant J
Rezydencja parkowa 3 wariant J
287,35 m²

8 712 zł

10 890 zł

Tooltip

Cena regularna

8 167 zł najniższa cena
Tooltip

Najniższa cena z 30 dni
przed obniżką

PROMOCJA
Projekt domu Rezydencja parkowa 3 wariant K
Rezydencja parkowa 3 wariant K
303,21 m²

10 360 zł

12 950 zł

Tooltip

Cena regularna

9 712 zł najniższa cena
Tooltip

Najniższa cena z 30 dni
przed obniżką

PROMOCJA
Projekt domu Rezydencja parkowa wariant B
Rezydencja parkowa wariant B
239,03 m²

8 520 zł

10 650 zł

Tooltip

Cena regularna

7 987 zł najniższa cena
Tooltip

Najniższa cena z 30 dni
przed obniżką

PROMOCJA
Projekt domu Rezydencja parkowa wariant C
Rezydencja parkowa wariant C
327,46 m²

8 520 zł

10 650 zł

Tooltip

Cena regularna

7 987 zł najniższa cena
Tooltip

Najniższa cena z 30 dni
przed obniżką

PROMOCJA
Projekt domu Rezydencja parkowa wariant D
Rezydencja parkowa wariant D
342,25 m²

9 272 zł

11 590 zł

Tooltip

Cena regularna

8 692 zł najniższa cena
Tooltip

Najniższa cena z 30 dni
przed obniżką

PROMOCJA
Projekt domu Rezydencja parkowa wariant E
Rezydencja parkowa wariant E
248,38 m²

8 712 zł

10 890 zł

Tooltip

Cena regularna

8 167 zł najniższa cena
Tooltip

Najniższa cena z 30 dni
przed obniżką

PROMOCJA
Projekt domu Rezydencja parkowa wariant F
Rezydencja parkowa wariant F
246,65 m²

8 520 zł

10 650 zł

Tooltip

Cena regularna

7 987 zł najniższa cena
Tooltip

Najniższa cena z 30 dni
przed obniżką

PROMOCJA
Projekt domu Rezydencja parkowa wariant G
Rezydencja parkowa wariant G
291,51 m²

8 712 zł

10 890 zł

Tooltip

Cena regularna

8 167 zł najniższa cena
Tooltip

Najniższa cena z 30 dni
przed obniżką

PROMOCJA
Projekt domu Rezydencja parkowa wariant H
Rezydencja parkowa wariant H
319,94 m²

9 272 zł

11 590 zł

Tooltip

Cena regularna

8 692 zł najniższa cena
Tooltip

Najniższa cena z 30 dni
przed obniżką

PROMOCJA
Projekt domu Rezydencja parkowa wariant I
Rezydencja parkowa wariant I
275,66 m²

8 712 zł

10 890 zł

Tooltip

Cena regularna

8 167 zł najniższa cena
Tooltip

Najniższa cena z 30 dni
przed obniżką

PROMOCJA
Projekt domu Rezydencja parkowa wariant J
Rezydencja parkowa wariant J
275,66 m²

8 712 zł

10 890 zł

Tooltip

Cena regularna

8 167 zł najniższa cena
Tooltip

Najniższa cena z 30 dni
przed obniżką

Podobne projekty (193)

Zobacz wszystkie
NIŻSZA CENA❄️
Zdjęcie 1 projektu Uroczy WAH1080
Uroczy
Dodano!
Dodano!
146,47 m²
4
3
2

5 432 zł

6 790 zł

Tooltip

Cena regularna

5 092 zł najniższa cena
Tooltip

Najniższa cena z 30 dni
przed obniżką

NIŻSZA CENA❄️
Zdjęcie 1 projektu Willa Parterowa WAH1882
Willa Parterowa
Dodano!
Dodano!
172,05 m²
4
3
2

6 072 zł

7 590 zł

Tooltip

Cena regularna

5 692 zł najniższa cena
Tooltip

Najniższa cena z 30 dni
przed obniżką

NIŻSZA CENA❄️
Zdjęcie 1 projektu Odpowiedni D66 WWB1075
Odpowiedni D66
Dodano!
Dodano!
162,02 m²
4
2
2

4 499 zł

4 749 zł

Tooltip

Cena regularna

4 349 zł najniższa cena
Tooltip

Najniższa cena z 30 dni
przed obniżką

NIŻSZA CENA❄️
Zdjęcie 1 projektu APS 312 LUA1453
APS 312
Dodano!
Dodano!
173,20 m²
4
3
2

5 399 zł

5 899 zł

Tooltip

Cena regularna

5 349 zł najniższa cena
Tooltip

Najniższa cena z 30 dni
przed obniżką

NIŻSZA CENA❄️
Zdjęcie 1 projektu Wyjątkowy 2 WAH1848
Wyjątkowy 2
Dodano!
Dodano!
201,09 m²
4
3
2

7 192 zł

8 990 zł

Tooltip

Cena regularna

6 742 zł najniższa cena
Tooltip

Najniższa cena z 30 dni
przed obniżką

NIŻSZA CENA❄️
Zdjęcie 1 projektu Hiacynt 2 WAH1954
Hiacynt 2
Dodano!
Dodano!
157,32 m²
4
2
2

5 960 zł

7 450 zł

Tooltip

Cena regularna

5 587 zł najniższa cena
Tooltip

Najniższa cena z 30 dni
przed obniżką

NIŻSZA CENA❄️
Zdjęcie 1 projektu Dosadny D75 WWB1089
Dosadny D75
Dodano!
Dodano!
150,69 m²
4
2
2

4 799 zł

5 049 zł

Tooltip

Cena regularna

4 649 zł najniższa cena
Tooltip

Najniższa cena z 30 dni
przed obniżką

NIŻSZA CENA❄️
Zdjęcie 1 projektu Dom na parkowej 7 C WAH2007
Dom na parkowej 7 C
Dodano!
Dodano!
142,60 m²
3
2
2

5 992 zł

7 490 zł

Tooltip

Cena regularna

5 617 zł najniższa cena
Tooltip

Najniższa cena z 30 dni
przed obniżką

Metody i koszt budowy

Ten dom możesz budować metodą gospodarczą, systemem zleconym lub skorzystać z naszej oferty Projekt z Budową. Przy porównaniu weź pod uwagę nie tylko koszt, ale też różny zakres prac i standard wykonania.

Metoda gospodarcza

Najtańsza metoda - większość prac
budowlanych wykonuje inwestor

Stan surowy zamknięty (SSZ)

851 000 zł netto

Szacunkowy koszt materiałów na III kwartał 2025
  • Prace ziemne i fundamenty

    156 000 zł
  • Konstrukcja, strop oraz dach

    521 000 zł
  • Stolarka okienna i drzwiowa

    174 000 zł
  • Instalacje

    nie obejmuje
  • Prace wykończeniowe

    nie obejmuje
  • Możesz budować etapami, pamiętając jednak o zmianie kosztów w czasie
  • Możesz rozpocząć budowę z częścią niezbędnych środków
  • Sam ustalasz harmonogram, koordynujesz budowę i zapewniasz materiały
Czy da się obniżyć koszty budowy?
Zobacz nasz film jak obniżyć koszt budowy

Projekt z Budową

Najszybsza i najwygodniejsza metoda -
całą budowę domu realizuje jedna firma

Stan deweloperski
Gwarancja stałego kosztu budowy

Gwarancja stałego
kosztu budowy

  • Prace ziemne i fundamenty
  • Konstrukcja, strop oraz dach
  • Stolarka okienna i drzwiowa
  • Instalacje  
    Tooltip

    Obejmuje wykonanie instalacji:

    • wodno-kanalizacyjnej
    • centralnego ogrzewania
    • gazowej
    • elektrycznej
  • Prace wykończeniowe  
    Tooltip

    Prace wykończeniowe obejmują:

    • sufity i ściany wewnętrzne
    • tynki i okładziny ścian wewnętrznych
    • wylewki i posadzkę
    • ocieplenie ścian zewnętrznych i elewację

Budowa
nawet w
6mies.

  • Kompleksowa umowa i znany z góry koszt budowy
  • Logistyka, organizacja budowy i zakupy po stronie firmy budowlanej
  • Formalności i dokumentacje po stronie firmy budowlanej
  • Różne technologie budowy dopasowane do projektu i budżetu
Szczegóły i dostępne technologie
icon

Darmowe

Zestawienie materiałów budowlanych

icon

Polecamy

Kosztorys

Zawiera zestawienie wszystkich potrzebnych materiałów wraz z ich cenami, uwzględnia koszty sprzętu i transportu. Z kosztorysem:

  • poznasz całkowite koszty budowy
  • zaplanujesz prace na budowie
  • łatwiej ocenisz konkurencyjność ofert podwykonawców
  • otrzymasz dokument wymagany w procesie kredytowym

Elewacje

Frontowa
Tylna
Lewa
Prawa

Usytuowanie na działce

Czy ten projekt pasuje na
Twoją działkę?

Chętnie to sprawdzimy!

Czy ten projekt pasuje na
Twoją działkę?

Chętnie to sprawdzimy!

Dowiedz się:

  • czy zmieści się na niej wybrany przez Ciebie dom
  • jakie parametry musi spełniać dom według miejscowego planu zagospodarowania lub warunków zabudowy (np. kąt nachylenia i typ dachu, liczba kondygnacji itp.
  • jakie inne projekty pasują na Twoją działkę – znajdziemy je dla Ciebie!
Autor: MG Projekt

Dane techniczne projektu

Powierzchnie i wymiary Powierzchnie i wymiary

Powierzchnia użytkowa
Tooltip
Suma powierzchni wszystkich pomieszczeń mieszkalnych, pomniejszona o pow. garażu, kotłowni, strychu, piwnicy. Jest liczona w 100% dla pomieszczeń o wysokości powyżej 2,2 m, w 50% dla pomieszczeń o wys. 2,2-1,4 m i niewliczana dla niższych niż 1,4 m.

256,91 m²

Powierzchnia zabudowy
Tooltip
Powierzchnia zajmowana przez część na- oraz nadziemną budynku liczona, jako rzut pionowy budynku na działkę.

390,28 m²

Powierzchnia całkowita
Tooltip
Całkowita powierzchnia wszystkich kondygnacji budynku łącznie z elementami nośnymi, takimi jak ściany zewnętrzne (z ociepleniem), słupy, tarasy, itp.

366,87 m²

Kubatura brutto
Tooltip
Zazwyczaj jest to suma kubatur (objętości) wszystkich pomieszczeń budynku, liczonych po zewnętrznym obrysie murów (z ociepleniem).

1 570 m³

Powierzchnia dachu

520,04 m²

Kąt nachylenia dachu
Tooltip
Nachylenie połaci dachu głównego podawane w stopniach. Uwaga! W niektórych projektach występuje więcej niż jedno nachylenie dachu.

30°

Wysokość budynku
Tooltip
Wysokość liczona od części budynku położonej najniżej przy powierzchni terenu do najwyższego punktu dachu (kalenicy) z wyłączeniem kominów.

7,68 m

Szerokość elewacji

27,30 m

Długość elewacji

21,92 m

Min. szerokość działki
Tooltip
Najmniejsza możliwa szerokość działki niezbędna do wybudowania wybranego domu. Składa się z szerokości elewacji domu powiększonej z obu stron o 3 m dla ściany bez otworów drzwiowych/okiennych lub 4 m, dla ściany z otworami.

34,30 m

Min. długość działki
Tooltip
Najmniejsza możliwa długość działki niezbędna do wybudowania wybranego domu. Składa się z długości elewacji domu powiększonej z obu stron o 3 m dla ściany bez otworów drzwiowych/okiennych lub 4 m, dla ściany z otworami.

29,92 m

Energooszczędność Energooszczędność

Oze Czym jest OZE (Odnawialne Źródło Energii)?
Ep
Tooltip
Energia pierwotna określa ilość energii nieodnawialnej potrzebnej w ciągu roku do ogrzewania czy też ogrzania wody użytkowej z uwzględnieniem kosztów produkcji i transportu surowców energetycznych.

66,30 kWh/(m²rok)

Ek
Tooltip
Energia końcowa określa zapotrzebowanie budynku na energię niezbędną do uzyskania założonych parametrów, jak np. temperatura wewnątrz budynku.

61,50 kWh/(m²rok)

Euco
Tooltip
Energia użytkowa potrzebna do ogrzewania i wentylacji. Im parametr jest niższy tym budynek bardziej energooszczędny.

47,70 kWh/(m²rok)

Ogrzewanie główne

Gazowe - szczegóły

Dodatkowo istnieje możliwość zamówienia projektu z

Aneks na paliwo stałe

Gruntowa pompa ciepła

Powietrzna pompa ciepła

Interesuje Cię inne źródło ogrzewania? Wyślij zapytanie lub zadzwoń do doradcy

Wentylacja

Mechaniczna nawiewno-wywiewna z rekuperacją - szczegóły

Warunki techniczne

Projekt zgody z WT 2021

Technologia i konstrukcja Technologia i konstrukcja

Konstrukcja

Murowana

PROJEKT Z BUDOWĄ Istnieje możliwość zaadaptowania tego projektu do technologii prefabrykowanej/modułowej i budowy nawet w 6 miesięcy ze stałym kosztem budowy

Dowiedz się więcej »
Opis szczegółowy

Fundamenty: betonowe ławy i ściany fundamentowe z bloczków betonowych. Ściany zewnętrzne: ściany murowane - pustaki porotherm 25 + styropian + tynk cienkowarstwowy. Strop: żelbetowy monolityczny. Elewacje: tynk cienkowarstwowy na styropianie. Pokrycie dachu: dachówka ceramiczna. Nachylenie dachu: 30 stopni.

Strop

Żelbetowy

Reklama
Okna i drzwi tarasowe

Nowoczesne okna PVC i aluminiowe WIŚNIOWSKI – doskonała izolacja, elegancki design i niezrównana trwałość.

Wiśniowski
Sprawdź parametry!
Okna dachowe

Oferujemy bezpłatne konsultacje w zakresie wszystkich rozwiązań VELUX. Wyceny, porady dotyczące doboru okien i rolet zewnętrznych - sprawdź!

Velux
Sprawdź szczegóły
Płytki ceramiczne i gresy

Od małych formatów po wielkoformatowe gresy. Marmur, beton, drewno, kamień, lastryko czy cegiełki zamówisz wygodnie online z szybką dostawą.

Ceramzet
Sprawdź ofertę
Drzwi

Ciepłe drzwi WIŚNIOWSKI z kontrolą dostępu. Szeroka gama wzorów i kolorów.

Wiśniowski
Wybierz najlepsze
Bramy garażowe

Automatyczne bramy garażowe segmentowe i uchylne WIŚNIOWSKI na wymiar i z systemem smart home w standardzie.

Wiśniowski
Sprawdź ofertę!
Armatura i ceramika łazienkowa

Topowi producenci. Baterie łazienkowe, zestawy natynkowe i podtynkowe, umywalki, wanny, miski WC oraz kabiny zamówisz kompleksowo online.

Ceramzet II
Dowiedz się więcej
Rekuperacja

Alnor - kompletny system rekuperacji. Dobierz idealne rozwiązanie dla Twojego domu!

Alnor
Dobierz rekuperator
Gruntowe pompy ciepła

Przeprowadzimy kompletną instalację najbardziej oszczędnego źródła ciepła w Twoim nowym domu - gruntowej pompy ciepła. Od dokumentacji, pozwoleń, po odwierty i instalację.

Geothermal Solutions
Dowiedz się więcej

Gotowe domy modułowe (114)

Zobacz wszystkie
Stan deweloperski nawet w 6 miesięcy Gwarancja stałej ceny
Zdjęcie 1 projektu Dom prefabrykowany P.11 bliźniak HPK1016
Pow. użytkowa
245,76 m²
Pokoje
3
1 362 600 zł 5 544 zł/m²
Zdjęcie 1 projektu Dom prefabrykowany P.12 z okapem HPK1021
Pow. użytkowa
190,98 m²
Pokoje
5
887 600 zł 4 648 zł/m²
Zdjęcie 1 projektu Dom prefabrykowany P.12 bez okapu HPK1020
Pow. użytkowa
190,98 m²
Pokoje
5
858 100 zł 4 493 zł/m²
Zdjęcie 1 projektu Dom prefabrykowany Stodoła 180C HFX1029
Pow. użytkowa
186,60 m²
Pokoje
5
659 000 zł 3 532 zł/m²
Zdjęcie 1 projektu Dom prefabrykowany Stodoła 180A HFX1027
Pow. użytkowa
186,60 m²
Pokoje
5
659 000 zł 3 532 zł/m²
Zdjęcie 1 projektu Dom prefabrykowany Stodoła 180B HFX1028
Pow. użytkowa
185,90 m²
Pokoje
5
659 000 zł 3 545 zł/m²
Zdjęcie 1 projektu Dom prefabrykowany P.6 HPK1005
Pow. użytkowa
176,69 m²
Pokoje
4
916 600 zł 5 188 zł/m²
Zdjęcie 1 projektu Dom szkieletowy Viking Smart 220 HHT1032
Pow. użytkowa
163,86 m²
Pokoje
4
1 095 606 zł 6 686 zł/m²

Dodatki do projektu

Dodatki możesz zamówić w koszyku lub telefonicznie u naszego Doradcy.

Czym jest OZE (Odnawialne Źródło Energii)?

Ikona

Bestseller

Kosztorys

600 zł

Ikona

Bestseller

Dodatkowy egzemplarz projektu

650 zł

Ikona

Bestseller

Elektroniczna wersja projektu

600 zł

Ikona

Ogrzewanie podłogowe

550 zł

Ikona

Oze

Aneks na paliwo stałe

550 zł

Ikona

Oze

Gruntowa pompa ciepła

550 zł

Pokaż więcej (8)

Opis projektu domu
Rezydencja Parkowa 2

Budynek Rezydencja Parkowa 2 został stworzony na wzór znanego projektu Rezydencja Parkowa. W przeciwieństwie do pierwotnej wersji projekt ma mniejszą powierzchnię. Projekt domu Rezydencja Parkowa 2 jest idealny na szeroką działkę, dzięki czemu będzie prezentować się na niej bardzo okazale. Dom charakteryzuje się typową bryłą, więc będzie się dobrze prezentował niezależnie od otoczenia. Projekt należy do kategorii domów z kalenicą skierowaną równolegle do drogi, co jest bardzo istotne, gdy wymagają tego warunki zabudowy. Dom został stworzony do zabudowy wolnostojącej. W projekcie zaplanowano garaż dwustanowiskowy wysunięty do przodu. Konstrukcja budynku zwieńczona jest dachem wielospadowym, który wyjątkowo się prezentuje. Projekt Rezydencja Parkowa 2 to dom parterowy, co jest z pewnością ogromnym plusem w przypadku osób starszych, niepełnosprawnych oraz małżeństw z małymi dziećmi. Architekt uwzględnił możliwość zagospodarowania poddasza, co sprawia, że w łatwy sposób możemy powiększyć metraż domu. Autor projektu przewidział w nim ciekawie prezentującą się strefę dzienną. Kuchnia otwarta na salon to doskonałe miejsce dla osób lubiących połączenie funkcjonalności z atrakcyjnym i nowoczesnym wyglądem. Architekt przewidział miejsce w kuchni na praktyczną wyspę, co jest nowoczesnym i bardzo wygodnym rozwiązaniem. W kuchni znajduje się stół, który jest doskonałym miejscem na rodzinne spotkania i wspólne posiłki. Zwolenników praktycznych rozwiązań niewątpliwie ucieszy fakt, iż przewidziano także miejsce na spiżarkę. Uwzględniona w projekcie jadalnia to doskonałe rozwiązanie dla osób lubiących przyjmować gości i organizować rodzinne, kameralne przyjęcia.Dodatkowo w salonie przewidziano kominek, nadający wnętrzu niepowtarzalny klimat. Potrzeby 4-6 osobowej rodziny spełnią przewidziane w projekcie cztery przestronne sypialnie. Przestrzeń można wykorzystać także jako pokój dla gości lub gabinet. Osoby ceniące funkcjonalne rozwiązania z pewnością docenią obecność garderób. W utrzymaniu porządku z pewnością pomoże nam przewidziane w projekcie pomieszczenie gospodarcze. Rodzinne spotkania w słonecznie dni uprzyjemni przewidziany przy domu taras. Z pewnością każdy Inwestor doceni także werandę, dzięki której projekt jest oryginalny i urokliwy. Projekt został wykonany w technologii murowanej, dzięki czemu podczas upałów dom utrzymuje przyjemny chłód. willi.
Czytaj więcej

Polecani producenci

Prefabrykowane konstrukcje dachowe

tło producenta

WIĄZAR POLSKA

Zobacz więcej

Sprawdź nową generację okien GREENVIEW

tło producenta

FAKRO

Sprawdź nową generację okien GREENVIEW

Styropian, tynki, farby, kleje

tło producenta

Termo Organika

Poznaj super jakość

Okna, drzwi, osłony przeciwsłoneczne

tło producenta

Aluprof

Sprawdź ofertę

Kompletne systemy rekuperacji

tło producenta

Alnor

Dowiedz się więcej

Sprawdź nowy system DACHRYNNA

tło producenta

Galeco

Sprawdź ofertę
Zobacz więcej

Społeczność projektu domu
Rezydencja Parkowa 2 w budowie

Dołącz do społeczności osób, które budują ten dom lub są zainteresowane jego budową.

  • Oglądaj zdjęcia z budowy
  • Zadawaj pytania
  • Wymieniaj się doświadczeniami

Opinie o projekcie domu Rezydencja Parkowa 2

Ocena

Ten projekt nie ma jeszcze opinii, bądź pierwszy!

Dodaj opinię

ASYSTENT WYBORU PROJEKTU

Szukasz idealnego projektu? Znajdziemy go dla Ciebie!

Doradca na podstawie Twoich wskazówek przygotuje spersonalizowaną listę projektów

Graficzne opracowanie rzutów poglądowych widocznych na karcie projektu zostało wykonane przez Extradom.pl. Prezentowane przez Extradom.pl wizualizacje wykonane zostały przez autora projektu i należy poczytywać je jedynie za przykład i propozycję wykończenia, wizję architektoniczną autora projektu. Ostateczne wykończenie budynku może nastąpić na wiele sposobów. Szczegółowe rozwiązania zastosowane w oferowanej dokumentacji - w tym również ilość, lokalizacje i wygląd okien, drzwi, kominów - mogą w niewielkim stopniu różnić się od prezentowanej wizualizacji budynku.

Extradom.pl Spółka z ograniczoną odpowiedzialnością z siedzibą przy ul. Jaworskiej 13, 53-612 Wrocław, wpisana do rejestru przedsiębiorców Krajowego Rejestru Sądowego przez Sąd Rejonowy dla Wrocławia-Fabrycznej we Wrocławiu, VI Wydział Gospodarczy Krajowego Rejestru Sądowego do pod numerem KRS 0000648746, numer NIP 895-17-18-333, o kapitale zakładowym 708 150,00 zł uprzejmie informuje, iż poprzez serwis Extradom.pl umożliwia m.in. zapoznanie się przez konsumentów z ofertą handlową Partnerów Extradom.pl, którzy stosują metody budowy domów przy wykorzystaniu różnego rodzaju technologie prefabrykacji bądź modułowe (tzw. „Gotowe domy”).

Extradom.pl nie prowadzi jednakże sprzedaży ani nie oferuje usług polegających na doradztwie finansowym, prawnym ani podatkowym w zakresie inwestycji realizowanych w technologiach tzw. „Gotowych domów”. Informacje prezentowane w serwisie Extradom.pl dotyczące Partnerów Extradom.pl oferujących realizację inwestycji w technologiach „Gotowych domów” lub podobnych mają charakter informacyjny i reklamowy.

Prezentowane w serwisie Extradom.pl informacje dotyczące stosowanych przez Partnerów metod budowy domów w technologii prefabrykacji bądź modułowej pochodzą od Partnerów Extradom.pl.

Extradom.pl sp. z o.o. jedynie umożliwia nawiązanie kontaktu przez Użytkownika z Partnerem Extradom.pl stosującym tego rodzaju technologie budowy domów i nie jest stroną umowy o roboty budowlane zawieranej przez Użytkownika Extradom.pl z Partnerem Extradom.pl.

REKLAMA
Zamknij