👉 Niższe ceny + karta allegro 200 zł! 🔥

Projekt domu Radosny WAH1055

Dodano!
Dodano!

Warstwy

Warstwy

Rzut parteru

Powierzchnia (m²)
Tooltip
Powierzchnia pomieszczenia
to ta, z której faktycznie możesz korzystać – skosy i niskie części poddasza są liczone częściowo lub wcale.
  1. 100% dla wysokości powyżej 2,2 m,
  2. 50% dla wysokości 1,4–2,2 m,
  3. nie liczymy poniżej 1,4 m.

Powierzchnia podłogi
Liczymy po obrysie pomieszczenia, bez względu na jego wysokość/skosy. Jeśli nie ma skosów to powierzchnia podłogi i pomieszczenia jest taka sama.
pomieszczenia i podłogi
podłogi
1. Wiatrołap
2,34
2. Hall
9,29
3. Kuchnia + jadalnia
17,40
4. Łazienka
3,09
5. Kotłownia
2,83
6. Pokój dzienny
25,57
Razem
60,52
60,52
Powierzchnia (m²)
Tooltip
Powierzchnia pomieszczenia
to ta, z której faktycznie możesz korzystać – skosy i niskie części poddasza są liczone częściowo lub wcale.
  1. 100% dla wysokości powyżej 2,2 m,
  2. 50% dla wysokości 1,4–2,2 m,
  3. nie liczymy poniżej 1,4 m.

Powierzchnia podłogi
Liczymy po obrysie pomieszczenia, bez względu na jego wysokość/skosy. Jeśli nie ma skosów to powierzchnia podłogi i pomieszczenia jest taka sama.
pomieszczenia i podłogi
podłogi
1. Pokój
9,54
2. Pokój
8,77
3. Łazienka
3,88
4. Pokój
10,57
5. Hall
3,22
Razem
35,98
35,98

    Usytuowanie na działce

    Czy ten projekt pasuje na
    Twoją działkę?

    Chętnie to sprawdzimy!

    Dowiedz się:

    • czy zmieści się na niej wybrany przez Ciebie dom
    • jakie parametry musi spełniać dom według miejscowego planu zagospodarowania lub warunków zabudowy (np. kąt nachylenia i typ dachu, liczba kondygnacji itp.
    • jakie inne projekty pasują na Twoją działkę – znajdziemy je dla Ciebie!

Pow. użytkowa

93,30 m²

Pokoje

3

Łazienki i WC

2

Garaż

0

Min. szer. i dł. działki

18,39 x 15,86 m

Kąt dachu

42°

Szacunkowy koszt SSZ

227 000 zł
Szacunkowy koszt budowy do stanu surowego zamkniętego (SSZ) metodą gospodarczą - większość prac wykonuje inwestor.

Konstrukcja

Murowana
więcej

Radosny - WAH1055

ikona 93,30 m²
Powierzchnia użytkowa
ikona3
Pokoje (bez salonu)
ikona 2
Łazienki (z toaletami)
ikona 0
Liczba stanowisk garażowych
(z wiatą garażową)
ikona
Konstrukcja: Murowana

Promocja od 12.03.2026, koniec za:

0 dni

00 00 00

4 160 zł

Tooltip

Cena regularna obowiązywała od 05.03.2026 do 11.03.2026

Cena regularna: 5 200 zł
Najniższa cena z 30 dni przed obniżką: 4 160 zł
Gwarancja najniższej ceny Gwarancja najniższej ceny Tooltip

Projekt jest dostępny Tooltip

GRATIS 15% rabatu do LEROY MERLIN

GRATIS 16% rabatu w SELSEY

GRATIS Przydatne Extradodatki

GRATIS Poradnik Dach Solarny

100 dni na wymianę, 30 dni na zwrot

Darmowa dostawa - kurier, paczkomaty

Bezpłatne pozwolenie na zmiany

Dokumentacja zgodna z WT2021

Pokaż więcej (6)
Konsultant Masz pytania?
Zadzwoń
71 715 20 60

pon.-pt. 8-21, sob. 9-17

Szukasz wykonawcy godnego zaufania?
Zleć budowę w Extradom.pl!

  • Z góry znasz koszt budowy domu
  • Dom odbierasz zgodnie z ustalonym harmonogramem - nawet w 6 miesięcy
  • Zabezpiecza Cię jedna kompleksowa umowa z jednym wykonawcą
  • Otrzymujesz nawet 30-letnią gwarancję na konstrukcję domu
  • Oszczędzasz swój czas dzięki pewnej i kompletnej usłudze
Cena brutto stanu
deweloperskiego od
Tooltip
Cena brutto stanu deweloperskiego od 4 629 do 5 979 zł/m2.
Cena jest uzależniona m.in. od lokalizacji, wybranej technologii, kubatury budynku, skomplikowania projektu i ewentualnych zmian, na które zdecyduje się inwestor.
Cena za m2 powierzchni netto, czyli wszystkich pomieszczeń mierzonych na wysokości podłogi.
4 629 zł/m2
Dowiedz się więcej
Konsultant Masz pytania?
Zadzwoń
71 718 89 70

pon.-pt. 8-19

Parter - 60,52 m²

Parter projektu Radosny

Zapytaj, co możesz zmienić

Powierzchnia (m²)
Tooltip
Powierzchnia pomieszczenia
to ta, z której faktycznie możesz korzystać – skosy i niskie części poddasza są liczone częściowo lub wcale.
  1. 100% dla wysokości powyżej 2,2 m,
  2. 50% dla wysokości 1,4–2,2 m,
  3. nie liczymy poniżej 1,4 m.

Powierzchnia podłogi
Liczymy po obrysie pomieszczenia, bez względu na jego wysokość/skosy. Jeśli nie ma skosów to powierzchnia podłogi i pomieszczenia jest taka sama.
pomieszczenia i podłogi
podłogi
1. Wiatrołap
2,34
2. Hall
9,29
3. Kuchnia + jadalnia
17,40
4. Łazienka
3,09
5. Kotłownia
2,83
6. Pokój dzienny
25,57
Razem
60,52
60,52

Natychmiast, otrzymasz PDF-y
z rzutami wszystkich kondygnacji

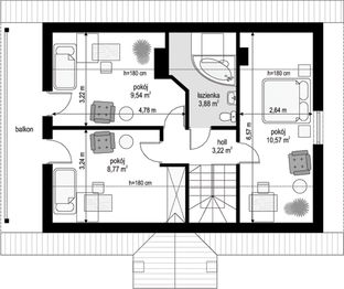
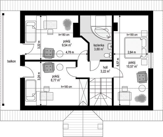
Poddasze - 35,98 m²

Poddasze projektu Radosny

Zapytaj, co możesz zmienić

Powierzchnia (m²)
Tooltip
Powierzchnia pomieszczenia
to ta, z której faktycznie możesz korzystać – skosy i niskie części poddasza są liczone częściowo lub wcale.
  1. 100% dla wysokości powyżej 2,2 m,
  2. 50% dla wysokości 1,4–2,2 m,
  3. nie liczymy poniżej 1,4 m.

Powierzchnia podłogi
Liczymy po obrysie pomieszczenia, bez względu na jego wysokość/skosy. Jeśli nie ma skosów to powierzchnia podłogi i pomieszczenia jest taka sama.
pomieszczenia i podłogi
podłogi
1. Pokój
9,54
2. Pokój
8,77
3. Łazienka
3,88
4. Pokój
10,57
5. Hall
3,22
Razem
35,98
35,98

Natychmiast, otrzymasz PDF-y
z rzutami wszystkich kondygnacji

Zamów rysunki szczegółowe

Zapoznaj się ze szczegółowymi rysunkami rzutów kondygnacji w PDF dla tego projektu.

Warianty projektu (1)

PROMOCJA
Projekt domu Radosny z garażem
Radosny z garażem
Dodano!
Dodano!
93,35 m²
3
2
1

4 160 zł

5 200 zł

Tooltip

Cena regularna

4 160 zł najniższa cena
Tooltip

Najniższa cena z 30 dni
przed obniżką

Podobne projekty (373)

Zobacz wszystkie
NIŻSZA CENA 🔥
Nowość
Zdjęcie 1 projektu Jestem u siebie 90 GDF1011
Jestem u siebie 90
Dodano!
Dodano!
89,09 m²
4
2
0

3 980 zł

4 350 zł

Tooltip

Cena regularna

4 350 zł najniższa cena
Tooltip

Najniższa cena z 30 dni
przed obniżką

NIŻSZA CENA 🔥
Zdjęcie 1 projektu Drops Bobo (1904) KRD3044
Drops Bobo (1904)
Dodano!
Dodano!
93,20 m²
4
2
0

3 840 zł

4 190 zł

Tooltip

Cena regularna

3 810 zł najniższa cena
Tooltip

Najniższa cena z 30 dni
przed obniżką

NIŻSZA CENA 🔥
Zdjęcie 1 projektu Sambor Bobo (1355) KRD2510
Sambor Bobo (1355)
Dodano!
Dodano!
91,10 m²
4
2
0

3 840 zł

4 190 zł

Tooltip

Cena regularna

3 810 zł najniższa cena
Tooltip

Najniższa cena z 30 dni
przed obniżką

NIŻSZA CENA 🔥
Zdjęcie 1 projektu Benon Sto (1917) KRD3058
Benon Sto (1917)
Dodano!
Dodano!
99,90 m²
4
2
0

3 840 zł

4 190 zł

Tooltip

Cena regularna

3 810 zł najniższa cena
Tooltip

Najniższa cena z 30 dni
przed obniżką

NIŻSZA CENA 🔥
Zdjęcie 1 projektu Lisek 2 BSA2342
Lisek 2
Dodano!
Dodano!
89,58 m²
4
2
0

4 499 zł

5 649 zł

Tooltip

Cena regularna

4 849 zł najniższa cena
Tooltip

Najniższa cena z 30 dni
przed obniżką

Nowość
Zdjęcie 1 projektu Domena 207 C1 WRW1417
Domena 207 C1
Dodano!
Dodano!
86,20 m²
4
2
0

4 290 zł

NIŻSZA CENA 🔥
Zdjęcie 1 projektu Porfir 2 BSA2314
Porfir 2
Dodano!
Dodano!
84,39 m²
3
2
0

4 999 zł

5 349 zł

Tooltip

Cena regularna

4 802 zł najniższa cena
Tooltip

Najniższa cena z 30 dni
przed obniżką

NIŻSZA CENA 🔥
Zdjęcie 1 projektu Celia Mini (1880) KRD3018
Celia Mini (1880)
Dodano!
Dodano!
84,70 m²
3
2
0

3 640 zł

3 990 zł

Tooltip

Cena regularna

3 610 zł najniższa cena
Tooltip

Najniższa cena z 30 dni
przed obniżką

Metody i koszt budowy

Ten dom możesz budować metodą gospodarczą, systemem zleconym lub skorzystać z naszej oferty Projekt z Budową. Przy porównaniu weź pod uwagę nie tylko koszt, ale też różny zakres prac i standard wykonania.

Metoda gospodarcza

Najtańsza metoda - większość prac
budowlanych wykonuje inwestor

Stan surowy zamknięty (SSZ)

227 000 zł netto

Szacunkowy koszt materiałów na IV kwartał 2025
  • Prace ziemne i fundamenty

    29 000 zł
  • Konstrukcja, strop oraz dach

    165 000 zł
  • Stolarka okienna i drzwiowa

    33 000 zł
  • Instalacje

    nie obejmuje
  • Prace wykończeniowe

    nie obejmuje
  • Możesz budować etapami, pamiętając jednak o zmianie kosztów w czasie
  • Możesz rozpocząć budowę z częścią niezbędnych środków
  • Sam ustalasz harmonogram, koordynujesz budowę i zapewniasz materiały
Czy da się obniżyć koszty budowy?
Zobacz nasz film jak obniżyć koszt budowy

Projekt z Budową

Najszybsza i najwygodniejsza metoda -
całą budowę domu realizuje jedna firma

Stan deweloperski
Gwarancja stałego kosztu budowy

Gwarancja stałego
kosztu budowy

  • Prace ziemne i fundamenty
  • Konstrukcja, strop oraz dach
  • Stolarka okienna i drzwiowa
  • Instalacje  
    Tooltip

    Obejmuje wykonanie instalacji:

    • wodno-kanalizacyjnej
    • centralnego ogrzewania
    • gazowej
    • elektrycznej
  • Prace wykończeniowe  
    Tooltip

    Prace wykończeniowe obejmują:

    • sufity i ściany wewnętrzne
    • tynki i okładziny ścian wewnętrznych
    • wylewki i posadzkę
    • ocieplenie ścian zewnętrznych i elewację

Budowa
nawet w
6mies.

  • Kompleksowa umowa i znany z góry koszt budowy
  • Logistyka, organizacja budowy i zakupy po stronie firmy budowlanej
  • Formalności i dokumentacje po stronie firmy budowlanej
  • Różne technologie budowy dopasowane do projektu i budżetu
Szczegóły i dostępne technologie
icon

Darmowe

Zestawienie materiałów budowlanych

icon

Polecamy

Kosztorys

Zawiera zestawienie wszystkich potrzebnych materiałów wraz z ich cenami, uwzględnia koszty sprzętu i transportu. Z kosztorysem:

  • poznasz całkowite koszty budowy
  • zaplanujesz prace na budowie
  • łatwiej ocenisz konkurencyjność ofert podwykonawców
  • otrzymasz dokument wymagany w procesie kredytowym

Elewacje

Frontowa
Tylna
Lewa
Prawa

Usytuowanie na działce

Czy ten projekt pasuje na
Twoją działkę?

Chętnie to sprawdzimy!

Czy ten projekt pasuje na
Twoją działkę?

Chętnie to sprawdzimy!

Dowiedz się:

  • czy zmieści się na niej wybrany przez Ciebie dom
  • jakie parametry musi spełniać dom według miejscowego planu zagospodarowania lub warunków zabudowy (np. kąt nachylenia i typ dachu, liczba kondygnacji itp.
  • jakie inne projekty pasują na Twoją działkę – znajdziemy je dla Ciebie!
Autor: MG Projekt

Dane techniczne projektu

Powierzchnie i wymiary Powierzchnie i wymiary

Powierzchnia użytkowa
Tooltip
Suma powierzchni wszystkich pomieszczeń mieszkalnych, pomniejszona o pow. garażu, kotłowni, strychu, piwnicy. Jest liczona w 100% dla pomieszczeń o wysokości powyżej 2,2 m, w 50% dla pomieszczeń o wys. 2,2-1,4 m i niewliczana dla niższych niż 1,4 m.

93,30 m²

Powierzchnia zabudowy
Tooltip
Powierzchnia zajmowana przez część na- oraz nadziemną budynku liczona, jako rzut pionowy budynku na działkę.

72,90 m²

Powierzchnia całkowita
Tooltip
Całkowita powierzchnia wszystkich kondygnacji budynku łącznie z elementami nośnymi, takimi jak ściany zewnętrzne (z ociepleniem), słupy, tarasy, itp.

120,70 m²

Kubatura brutto
Tooltip
Zazwyczaj jest to suma kubatur (objętości) wszystkich pomieszczeń budynku, liczonych po zewnętrznym obrysie murów (z ociepleniem).

322 m³

Powierzchnia dachu

157,87 m²

Kąt nachylenia dachu
Tooltip
Nachylenie połaci dachu głównego podawane w stopniach. Uwaga! W niektórych projektach występuje więcej niż jedno nachylenie dachu.

42°

Wysokość budynku
Tooltip
Wysokość liczona od części budynku położonej najniżej przy powierzchni terenu do najwyższego punktu dachu (kalenicy) z wyłączeniem kominów.

7,40 m

Szerokość elewacji

10,04 m

Długość elewacji

7,27 m

Min. szerokość działki
Tooltip
Najmniejsza możliwa szerokość działki niezbędna do wybudowania wybranego domu. Składa się z szerokości elewacji domu powiększonej z obu stron o 3 m dla ściany bez otworów drzwiowych/okiennych lub 4 m, dla ściany z otworami.

18,39 m

Min. długość działki
Tooltip
Najmniejsza możliwa długość działki niezbędna do wybudowania wybranego domu. Składa się z długości elewacji domu powiększonej z obu stron o 3 m dla ściany bez otworów drzwiowych/okiennych lub 4 m, dla ściany z otworami.

15,86 m

Energooszczędność Energooszczędność

Oze Czym jest OZE (Odnawialne Źródło Energii)?
Ep
Tooltip
Energia pierwotna określa ilość energii nieodnawialnej potrzebnej w ciągu roku do ogrzewania czy też ogrzania wody użytkowej z uwzględnieniem kosztów produkcji i transportu surowców energetycznych.

66,80 kWh/(m²rok)

Ek
Tooltip
Energia końcowa określa zapotrzebowanie budynku na energię niezbędną do uzyskania założonych parametrów, jak np. temperatura wewnątrz budynku.

62,60 kWh/(m²rok)

Euco
Tooltip
Energia użytkowa potrzebna do ogrzewania i wentylacji. Im parametr jest niższy tym budynek bardziej energooszczędny.

49,20 kWh/(m²rok)

Ogrzewanie główne

Gazowe - szczegóły

Dodatkowo istnieje możliwość zamówienia projektu z

Aneks na paliwo stałe

Gruntowa pompa ciepła

Powietrzna pompa ciepła

Interesuje Cię inne źródło ogrzewania? Wyślij zapytanie lub zadzwoń do doradcy

Wentylacja

Grawitacyjna - szczegóły

Warunki techniczne

Projekt zgody z WT 2021

Technologia i konstrukcja Technologia i konstrukcja

Konstrukcja

Murowana

PROJEKT Z BUDOWĄ Istnieje możliwość zaadaptowania tego projektu do technologii prefabrykowanej/modułowej i budowy nawet w 6 miesięcy ze stałym kosztem budowy

Dowiedz się więcej »
Opis szczegółowy

Fundamenty: betonowe. Ściany: gazobeton + styropian. Strop: Teriva. Elewacje: tynk cienkopowłokowy. Pokrycie dachu: dachówka ceramiczna lub blachodachówka. Nachylenie dachu: 42 stopnie.

Strop

Gęstożebrowy

Reklama
Okna i drzwi tarasowe

Nowoczesne okna PVC i aluminiowe WIŚNIOWSKI – doskonała izolacja, elegancki design i niezrównana trwałość.

Wiśniowski
Sprawdź parametry!
Okna dachowe

Oferujemy bezpłatne konsultacje w zakresie wszystkich rozwiązań VELUX. Wyceny, porady dotyczące doboru okien i rolet zewnętrznych - sprawdź!

Velux
Sprawdź szczegóły
Płytki ceramiczne i gresy

Od małych formatów po wielkoformatowe gresy. Marmur, beton, drewno, kamień, lastryko czy cegiełki zamówisz wygodnie online z szybką dostawą.

Ceramzet
Sprawdź ofertę
Elewacja

Kup przez internet wszystkie materiały potrzebne do wykonania elewacji: styropian, płyty PIR, XPS, kleje, tynki. Najlepsze marki w super cenach z dostawą pod dom.

Hurtownia styropianu
Sprawdź ofertę!
Drzwi

Ciepłe drzwi WIŚNIOWSKI z kontrolą dostępu. Szeroka gama wzorów i kolorów.

Wiśniowski
Wybierz najlepsze
Bramy garażowe

Automatyczne bramy garażowe segmentowe i uchylne WIŚNIOWSKI na wymiar i z systemem smart home w standardzie.

Wiśniowski
Sprawdź ofertę!
Armatura i ceramika łazienkowa

Topowi producenci. Baterie łazienkowe, zestawy natynkowe i podtynkowe, umywalki, wanny, miski WC oraz kabiny zamówisz kompleksowo online.

Ceramzet II
Dowiedz się więcej
Rekuperacja

Alnor - kompletny system rekuperacji. Dobierz idealne rozwiązanie dla Twojego domu!

Alnor
Dobierz rekuperator
Dach

Producent stalowych pokryć dachowych i systemów elewacyjnych. Precyzja wykonania, trwałość na lata i szybki montaż doceniany przez dekarzy. Postaw na solidny dach Budmat.

Budmat
Sprawdź ofertę
Ogrodzenie

Nowoczesne stalowe ogrodzenia Budmat - estetyka, bezpieczeństwo i trwałość na lata. Systemowe rozwiązania na wymiar, dopasowane do każdego domu.

Budmat
Sprawdź ofertę

Gotowe domy modułowe (118)

Zobacz wszystkie
Stan deweloperski nawet w 6 miesięcy Gwarancja stałej ceny
Zdjęcie 1 projektu Dom prefabrykowany DH115 HDH1007
Pow. użytkowa
93,90 m²
Pokoje
2
564 678 zł 6 014 zł/m²
Zdjęcie 1 projektu Dom modułowy Flow HMD1002
Gotowy dom modułowy Flow
Dodano!
Dodano!
Pow. użytkowa
92,67 m²
Pokoje
3
508 000 zł 5 482 zł/m²
Zdjęcie 1 projektu Dom prefabrykowany DH110 biurowy HDH1011
Pow. użytkowa
94,18 m²
Pokoje
0
553 500 zł 5 877 zł/m²
Zdjęcie 1 projektu Dom prefabrykowany Parterowy 90D HFX1008
Pow. użytkowa
91,35 m²
Pokoje
3
415 000 zł 4 543 zł/m²
Zdjęcie 1 projektu Dom szkieletowy Prime Smart 120 HHT1033
Pow. użytkowa
95,36 m²
Pokoje
3
507 946 zł 5 263 zł/m²
Zdjęcie 1 projektu Dom prefabrykowany DH110 HDH1006
Pow. użytkowa
91,17 m²
Pokoje
3
553 500 zł 6 071 zł/m²
Zdjęcie 1 projektu Dom prefabrykowany Piętrowy 95A HFX1018
Pow. użytkowa
95,80 m²
Pokoje
3
469 000 zł 4 896 zł/m²
Zdjęcie 1 projektu Dom keramzytowy Essenzia 110G HRK1002
Pow. użytkowa
95,83 m²
Pokoje
2
495 720 zł 5 173 zł/m²

Dodatki do projektu

Dodatki możesz zamówić w koszyku lub telefonicznie u naszego Doradcy.

Czym jest OZE (Odnawialne Źródło Energii)?

Ikona

Bestseller

Kosztorys

600 zł

Ikona

Bestseller

Dodatkowy egzemplarz projektu

650 zł

Ikona

Bestseller

Elektroniczna wersja projektu

600 zł

Ikona

Ogrzewanie podłogowe

550 zł

Ikona

Oze

Aneks na paliwo stałe

750 zł

Ikona

Oze

Gruntowa pompa ciepła

750 zł

Pokaż więcej (8)

Opis projektu domu
Radosny

Radosny jest niewielkim, wyposażonym w poddasze użytkowe domem jednorodzinnym. Drobne gabaryty budynku usatysfakcjonują właścicieli średnich i małych działek, a jednocześnie zapewnią komfort nawet czteroosobowej rodzinie. Kryta dachem dwuspadowym tradycyjna bryła ułożona jest równolegle do drogi. W centrum fasady zaprojektowano wsparty na dwóch filarach dwuspadowy daszek, który osłania drzwi wejściowe. Wydłużony z jednej strony dach osłania duży, wkomponowany w przekrój więźby balkon. Ten z kolei, opierając się na parze belek i drewnianych słupów, tworzy zadaszenie nad przylegającym do całej ściany szczytowej tarasem. Całość stanowi spójną wizualnie konstrukcję, będącą zewnętrznym przedłużeniem obydwu kondygnacji. Układ pomieszczeń przystosowano do lokalizacji wejścia po południowej stronie. Niewielką przestrzeń domu wykorzystano w najbardziej optymalny sposób. Niemal cały parter poświęcono na stworzenie przestronnej strefy dziennej. Wzdłuż ścian szczytowych rozkładają się dwa obszerne pomieszczenia: po jednej stronie otwarta kuchnia wraz z jadalnią, po drugiej połączony z zadaszonym tarasem pokój dzienny. Obie części łączą się bezpośrednio z centralnym hallem, tworząc dużą otwartą przestrzeń. W całej jej szerokości przy tylnej ścianie wydzielono obsługującą parter łazienkę, przy której znajduje się kotłownia o bliźniaczej powierzchni. Na drugim końcu hallu zaprojektowano otwarte schody zabiegowe - ich górna część tworzy sklepienie nad zlokalizowaną przy wejściu wnęką na ubrania. Wszystkie pomieszczenia nocne znalazły się na poddaszu i są dostępne z centralnego hallu. Największy pokój przylega do ściany szczytowej na całej jej długości, dzięki czemu jest bardziej ustawny. Dwa mniejsze sąsiadują ze sobą po drugiej stronie kondygnacji i mają dostęp do dużego, wspólnego balkonu. Łazienka znalazła się naprzeciwko klatki schodowej - bliżej połaci rozszerza się, tworząc wygodną wnękę. Kompaktowy i przytulny dom Radosny okazuje się niezwykle funkcjonalnym budynkiem, którego wnętrze zapewni mieszkańcom odpowiednią swobodę i komfort. Niemal całkowicie otwarty, wyjątkowo przestronny parter pozostaje w kontakcie z otoczeniem. Duży, zadaszony taras stanowi przedłużenie pokoju dziennego - podobną funkcję pełni położony wyżej balkon. Umieszczenie kuchni z jadalnią przy drugiej ścianie poprawia komfort użytkowania domu, bez konieczności wprowadzania niepotrzebnych przegród. Sprawiedliwy podział poddasza pozwoli każdemu z domowników cieszyć się prywatnym, ustawnym pokojem. Niskie koszty budowy i eksploatacji wynikają z niewielkich gabarytów domu, które dodatkowo zadowolą właścicieli małych działek. Tradycyjna forma eksponuje drewniane elementy konstrukcji, dzięki czemu budynek nabiera jeszcze bardziej sielskiego charakteru i dobrze wkomponuje się w podmiejskie lub wiejskie otoczenie.
Czytaj więcej

Polecani producenci

Kompletne systemy rekuperacji

tło producenta

Alnor

Dowiedz się więcej

Prefabrykowane konstrukcje dachowe

tło producenta

WIĄZAR POLSKA

Zobacz więcej

Sprawdź nową generację okien GREENVIEW

tło producenta

FAKRO

Sprawdź nową generację okien GREENVIEW

Styropian, tynki, farby, kleje

tło producenta

Termo Organika

Poznaj super jakość

Okna, drzwi, osłony przeciwsłoneczne

tło producenta

Aluprof

Sprawdź ofertę
Zobacz więcej

Społeczność projektu domu
Radosny w budowie

Dołącz do społeczności osób, które budują ten dom lub są zainteresowane jego budową.

  • Oglądaj zdjęcia z budowy
  • Zadawaj pytania
  • Wymieniaj się doświadczeniami

Opinie o projekcie domu Radosny

Ocena

Ten projekt nie ma jeszcze opinii, bądź pierwszy!

Dodaj opinię

Wywiady mieszkańców domu Radosny

Zdjęcie profilowe użytkownika mwkora mwkora

Od początku szukaliśmy projektu niedużego domku o prostej formie - te kryteria były priorytetowe w kwestii naszego wyboru. Oprócz tego, nie mieliśmy szczególnie wymyślnych wymagań. Zależało nam przede wszystkim na widocznym podziale przeznaczenia części mieszkalnej. Chcieliśmy aby parter był strefą dzienną - z kuchnią, łazienką oraz salonem, w którym będziemy przyjmować gości, zaś poddasze częścią prywatną z sypialniami domowników. Wszystkie te oczekiwania spełniał projekt Radosny WAH1055, dlatego też zdecydowaliśmy się na jego realizację.Na szczęście podczas budowy nie natrafiliśmy na żadne problemy, a wszystko przebiegło bardzo sprawnie. Inwestycję udało nam się zrealizować w naprawdę krótkim czasie, gdyż już po zaledwie 11 miesiącach od rozpoczęcia pierwszych prac budowlanych, mogliśmy wprowadzić się do nowego, w pełni wykończonego domu. Budynek został wymurowany z bloczków Ytong, strop tradycyjnie wylaliśmy betonem, a dach pokryliśmy blachodachówką. Uważam, iż architekt poprawnie oszacował koszty postawienia domu w stanie surowym zamkniętym i myślę, że śmiało można się nim sugerować. Nam bez problemu udało zmieścić się w podanej kwocie.Ściany z zewnątrz ociepliliśmy 15 cm warstwą styropianu. Na całej powierzchni domu zastosowaliśmy system ogrzewania podłogowego, rezygnując tym samym z wszelkich grzejników. Za nami pierwsza zima od zamieszkania, a takie rozwiązanie sprawdza się rewelacyjnie. Ogrzewamy gazem, a jego zużycie jest naprawdę niewielkie. Rachunki za gaz wynosiły w tym okresie ok. 300 zł na dwa miesiące. Jesteśmy bardzo zadowoleni z tak korzystnych kosztów, tym bardziej że była to pierwsza zima w nowym domu i mury musiały się jeszcze odpowiednio nagrzać.Układ pomieszczeń uwzględniony w projekcie Radosny WAH1055 od początku nam odpowiadał, dlatego też nie mieliśmy potrzeby wprowadzania do niego jakichkolwiek poprawek. Pewne modyfikacje nanieśliśmy jednak do układu okien. W salonie zrezygnowaliśmy z jednego przeszklenia, a zamiast tego powiększyliśmy drzwi tarasowe, które obecnie są potrójne. Nie wstawialiśmy również okna połaciowego w jednej z sypialni. Piecyk gazowy zajmuje niewiele miejsca, dlatego kotłownię przeznaczyliśmy na zrobienie pralni. Z tego względu postanowiliśmy ją oświetlić, dokładając tam nieduże przeszklenie. Oprócz tego przeniosłam kuchnię na przeciwległą stronę domu, tak aby znajdujące się w niej okna wychodziły na południe. Wiele osób unika takiego rozmieszczenia w obawie iż będzie się ona nagrzewać, jednak ja wolałam aby kuchnia była jasna i słoneczna. Innych zmian nie wprowadzaliśmy, aczkolwiek teraz zdecydowałabym się na jedną. Myślę, że świetnym pomysłem byłoby przyłączenie do hallu na górze powierzchni garderoby znajdującej się w jednym z pokoi. Tak uzyskaną wnękę w korytarzu przeznaczyłabym na zrobienie małego, gospodarczego schowka.Jesteśmy bardzo zadowoleni z wyboru projektu domu parterowego z poddaszem użytkowym Radosny WAH1055 i z czystym sumieniem możemy polecić go innym Inwestorom. Przewidziany w nim układ pomieszczeń jest moim zdaniem rewelacyjny. Mimo iż metraż domu nie jest duży, wnętrze jest otwarte i bardzo przestronne, a pokoje ustawne. Taka powierzchnia jest idealna dla naszej 4-osobowej rodziny. Projekt w całości spełnił nasze oczekiwania - właśnie takiego szukaliśmy od samego początku. Pozdrawiam.

ASYSTENT WYBORU PROJEKTU

Szukasz idealnego projektu? Znajdziemy go dla Ciebie!

Doradca na podstawie Twoich wskazówek przygotuje spersonalizowaną listę projektów

Graficzne opracowanie rzutów poglądowych widocznych na karcie projektu zostało wykonane przez Extradom.pl. Prezentowane przez Extradom.pl wizualizacje wykonane zostały przez autora projektu i należy poczytywać je jedynie za przykład i propozycję wykończenia, wizję architektoniczną autora projektu. Ostateczne wykończenie budynku może nastąpić na wiele sposobów. Szczegółowe rozwiązania zastosowane w oferowanej dokumentacji - w tym również ilość, lokalizacje i wygląd okien, drzwi, kominów - mogą w niewielkim stopniu różnić się od prezentowanej wizualizacji budynku.

Extradom.pl Spółka z ograniczoną odpowiedzialnością z siedzibą przy ul. Jaworskiej 13, 53-612 Wrocław, wpisana do rejestru przedsiębiorców Krajowego Rejestru Sądowego przez Sąd Rejonowy dla Wrocławia-Fabrycznej we Wrocławiu, VI Wydział Gospodarczy Krajowego Rejestru Sądowego do pod numerem KRS 0000648746, numer NIP 895-17-18-333, o kapitale zakładowym 708 150,00 zł uprzejmie informuje, iż poprzez serwis Extradom.pl umożliwia m.in. zapoznanie się przez konsumentów z ofertą handlową Partnerów Extradom.pl, którzy stosują metody budowy domów przy wykorzystaniu różnego rodzaju technologie prefabrykacji bądź modułowe (tzw. „Gotowe domy”).

Extradom.pl nie prowadzi jednakże sprzedaży ani nie oferuje usług polegających na doradztwie finansowym, prawnym ani podatkowym w zakresie inwestycji realizowanych w technologiach tzw. „Gotowych domów”. Informacje prezentowane w serwisie Extradom.pl dotyczące Partnerów Extradom.pl oferujących realizację inwestycji w technologiach „Gotowych domów” lub podobnych mają charakter informacyjny i reklamowy.

Prezentowane w serwisie Extradom.pl informacje dotyczące stosowanych przez Partnerów metod budowy domów w technologii prefabrykacji bądź modułowej pochodzą od Partnerów Extradom.pl.

Extradom.pl sp. z o.o. jedynie umożliwia nawiązanie kontaktu przez Użytkownika z Partnerem Extradom.pl stosującym tego rodzaju technologie budowy domów i nie jest stroną umowy o roboty budowlane zawieranej przez Użytkownika Extradom.pl z Partnerem Extradom.pl.

REKLAMA
Zamknij