Projekty nawet 500 zł taniej ❄️

Koniec oferty za:

0dni

00godz.

00min.

00sek.

Sprawdź

Projekt domu At-170 BSK1037

Dodano!
Dodano!

Warstwy

Warstwy

Warstwy

Rzut parteru

Powierzchnia (m²)
Tooltip
Powierzchnia pomieszczenia
to ta, z której faktycznie możesz korzystać – skosy i niskie części poddasza są liczone częściowo lub wcale.
  1. 100% dla wysokości powyżej 2,2 m,
  2. 50% dla wysokości 1,4–2,2 m,
  3. nie liczymy poniżej 1,4 m.

Powierzchnia podłogi
Liczymy po obrysie pomieszczenia, bez względu na jego wysokość/skosy. Jeśli nie ma skosów to powierzchnia podłogi i pomieszczenia jest taka sama.
pomieszczenia i podłogi
podłogi
1. Schody
12,49
2. Korytarz
34,55
3. Pomieszczenie gospodarcze
13,26
4. Winda
4,37
5. Wentylatornia
82,11
6. Magazyn bielizny brudnej, sortowania bielizny
17,39
7. Pralnia
19,41
8. Prasowalnia
6,05
9. Magazyn bielizny czystej
16,76
10. Pomieszczenie gospodarcze
10,84
Razem
217,23
217,23
Powierzchnia (m²)
Tooltip
Powierzchnia pomieszczenia
to ta, z której faktycznie możesz korzystać – skosy i niskie części poddasza są liczone częściowo lub wcale.
  1. 100% dla wysokości powyżej 2,2 m,
  2. 50% dla wysokości 1,4–2,2 m,
  3. nie liczymy poniżej 1,4 m.

Powierzchnia podłogi
Liczymy po obrysie pomieszczenia, bez względu na jego wysokość/skosy. Jeśli nie ma skosów to powierzchnia podłogi i pomieszczenia jest taka sama.
pomieszczenia i podłogi
podłogi
1. Wiatrołap
10,71
2. Schody
27,75
3. Hall
46,32
4. Recepcja
10,32
5. Zaplecze recepcji
8,04
6. Szatnia
3,47
7. Kotłownia
22,45
8. Pokój medyczny pomocy doraźnej
16,69
9. Pomieszczenie terapii i rehabilitacji
31,49
10. Korytarz
29,19
11. Winda
4,37
12. Wc dla niepełnosprawnych
5,55
13. Wc dla niepełnosprawnych
5,55
14. Sala dziennego pobytu, biblioteka
39,97
15. Jadalnia
72,12
16. Korytarz
26,49
17. Kuchnia
39,43
18. Zmywalnia naczyń stołowych
8,24
19. Pomieszczenie socjalne pracowników
7,77
20. Magazyn chłodniczy
11,63
21. Magazyn produktów suchych i zasobów, sprzętu kuchennego
5,89
22. Magazyn warzyw
5,20
23. Obróbka warzyw i jaj
7,18
24. Obróbka mięsa
8,21
25. Wc pracowników
3,11
26. Pomieszczenie porządkowe + mycie i suszenie wózków
3,67
27. Korytarz
152,19
28. Pro-morte
7,28
29. Brudownik
6,60
30. Pokój
22,86
31. Łazienka
4,36
32. Pokój
22,86
33. Łazienka
4,36
34. Pokój
22,86
35. Łazienka
4,36
36. Pokój
22,86
37. Łazienka
4,36
38. Pokój
22,86
39. Łazienka
4,36
40. Pokój
22,86
41. Łazienka
4,36
42. Pokój
22,86
43. Łazienka
4,36
44. Pokój
22,86
45. Łazienka
4,36
46. Pokój
22,86
47. Łazienka
4,36
48. Pokój
22,86
49. Łazienka
4,36
50. Pokój
22,86
Razem
921,94
921,94
Powierzchnia (m²)
Tooltip
Powierzchnia pomieszczenia
to ta, z której faktycznie możesz korzystać – skosy i niskie części poddasza są liczone częściowo lub wcale.
  1. 100% dla wysokości powyżej 2,2 m,
  2. 50% dla wysokości 1,4–2,2 m,
  3. nie liczymy poniżej 1,4 m.

Powierzchnia podłogi
Liczymy po obrysie pomieszczenia, bez względu na jego wysokość/skosy. Jeśli nie ma skosów to powierzchnia podłogi i pomieszczenia jest taka sama.
pomieszczenia i podłogi
podłogi
1. Schody
31,32
2. Hall
35,85
3. Biuro
25,09
4. Pomieszczenie fizykoterpaii
77,75
5. Archiwum
22,48
6. Korytarz
12,96
7. Pomieszczenie porządkowe
6,60
8. Szatnia pracowników
10,49
9. Pomieszczenie socjalne pracowników
14,57
10. Łazienka pracowników
5,28
11. Winda
4,37
12. Pokój
18,54
13. Łazienka
4,64
14. Pokój
30,81
15. Łazienka
5,27
16. Wc dla niepełnosprawnych
5,55
Razem
311,57
311,57

    Usytuowanie na działce

    Czy ten projekt pasuje na
    Twoją działkę?

    Chętnie to sprawdzimy!

    Dowiedz się:

    • czy zmieści się na niej wybrany przez Ciebie dom
    • jakie parametry musi spełniać dom według miejscowego planu zagospodarowania lub warunków zabudowy (np. kąt nachylenia i typ dachu, liczba kondygnacji itp.
    • jakie inne projekty pasują na Twoją działkę – znajdziemy je dla Ciebie!

Pow. użytkowa

1 772 m²

Pokoje

13

Łazienki i WC

17

Garaż

0

Min. szer. i dł. działki

42 x 77 m

Kąt dachu

22°

Konstrukcja

Murowana
więcej

At-170 - BSK1037

ikona 1 772 m²
Powierzchnia użytkowa
ikona13
Pokoje (bez salonu)
ikona 17
Łazienki (z toaletami)
ikona 0
Liczba stanowisk garażowych
(z wiatą garażową)
ikona
Konstrukcja: Murowana

Projekt został
wycofany z oferty

W razie pytań prosimy o kontakt
z Centrum Obsługi Klienta
Konsultant Masz pytania?
Zadzwoń
71 715 20 60

pon.-pt. 8-21, sob. 9-17

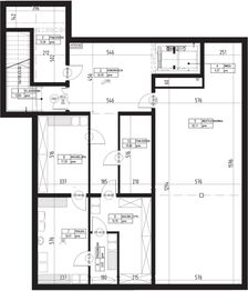
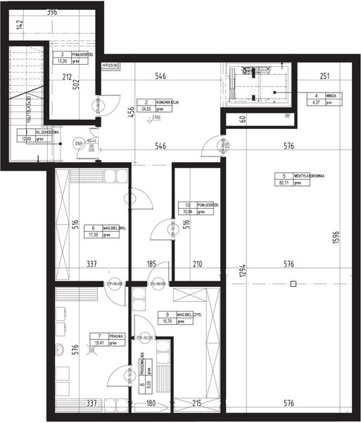
Piwnica - 217,23 m²

Piwnica projektu At-170

Zapytaj, co możesz zmienić

Powierzchnia (m²)
Tooltip
Powierzchnia pomieszczenia
to ta, z której faktycznie możesz korzystać – skosy i niskie części poddasza są liczone częściowo lub wcale.
  1. 100% dla wysokości powyżej 2,2 m,
  2. 50% dla wysokości 1,4–2,2 m,
  3. nie liczymy poniżej 1,4 m.

Powierzchnia podłogi
Liczymy po obrysie pomieszczenia, bez względu na jego wysokość/skosy. Jeśli nie ma skosów to powierzchnia podłogi i pomieszczenia jest taka sama.
pomieszczenia i podłogi
podłogi
1. Schody
12,49
2. Korytarz
34,55
3. Pomieszczenie gospodarcze
13,26
4. Winda
4,37
5. Wentylatornia
82,11
6. Magazyn bielizny brudnej, sortowania bielizny
17,39
7. Pralnia
19,41
8. Prasowalnia
6,05
9. Magazyn bielizny czystej
16,76
10. Pomieszczenie gospodarcze
10,84
Razem
217,23
217,23

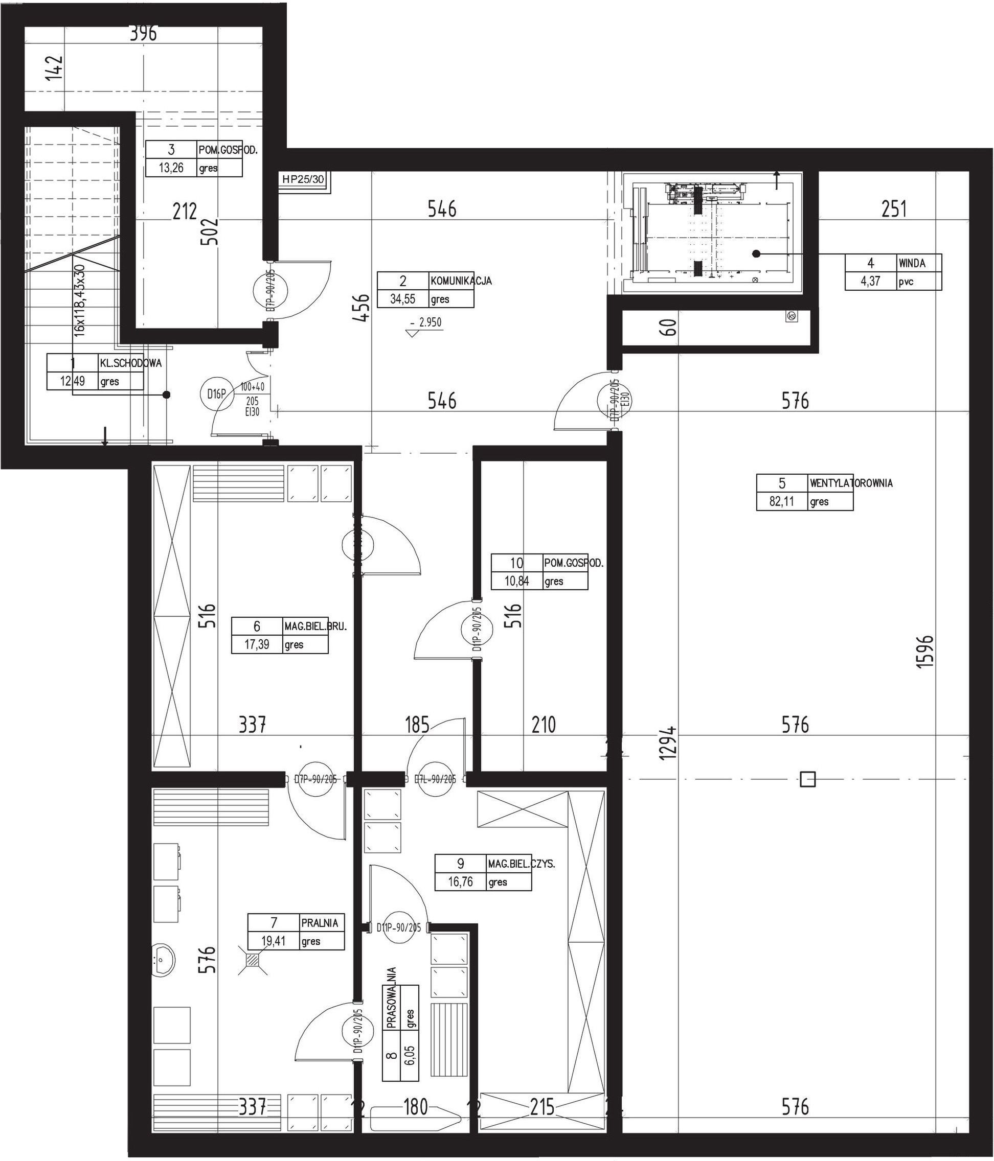
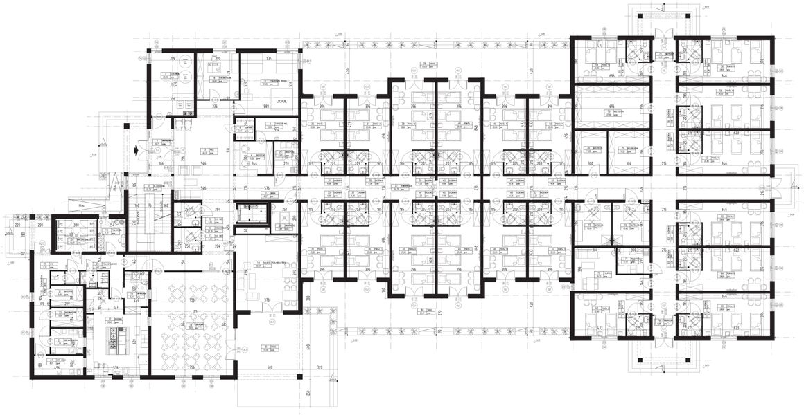
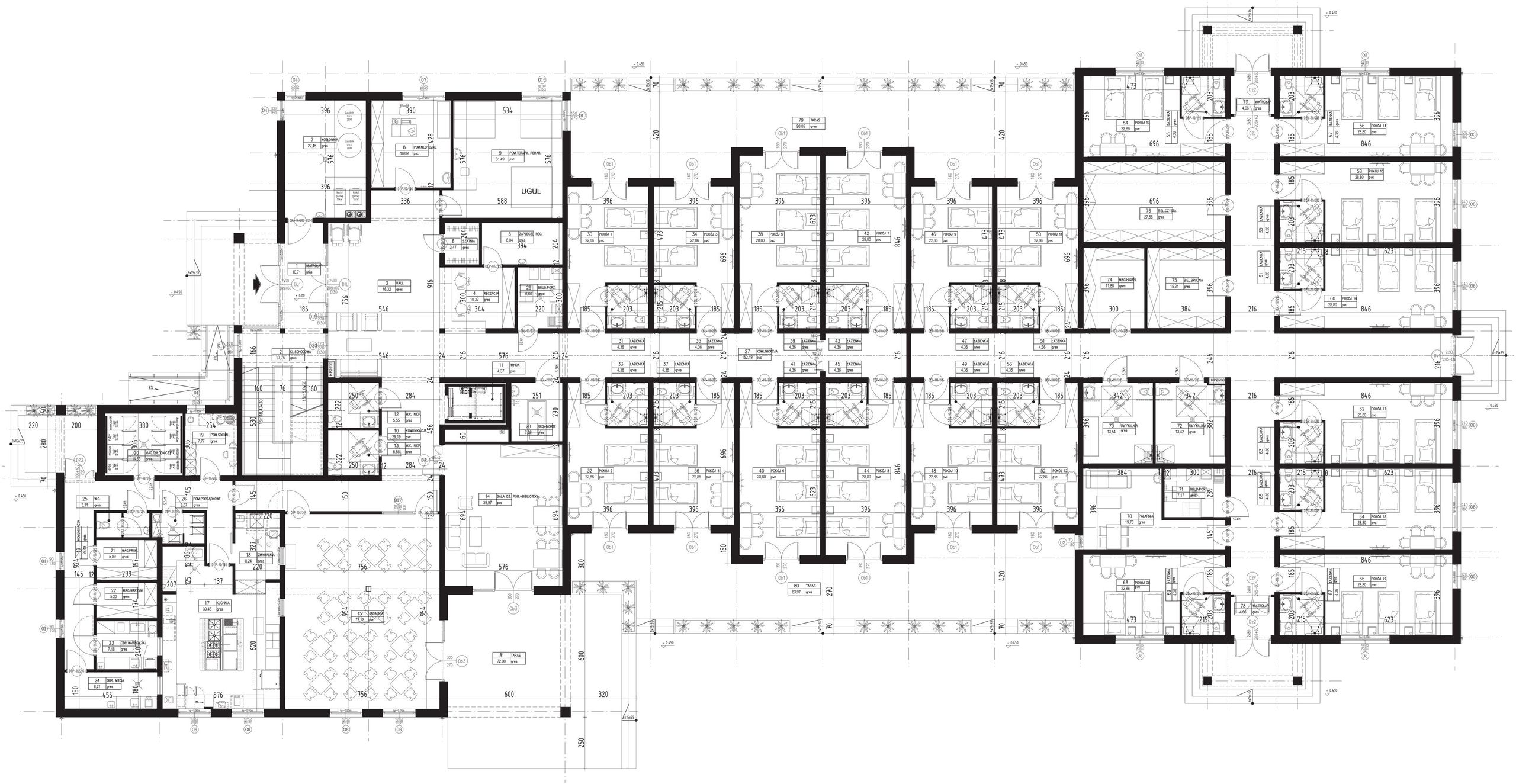
Parter - 921,94 m²

Parter projektu At-170

Zapytaj, co możesz zmienić

Powierzchnia (m²)
Tooltip
Powierzchnia pomieszczenia
to ta, z której faktycznie możesz korzystać – skosy i niskie części poddasza są liczone częściowo lub wcale.
  1. 100% dla wysokości powyżej 2,2 m,
  2. 50% dla wysokości 1,4–2,2 m,
  3. nie liczymy poniżej 1,4 m.

Powierzchnia podłogi
Liczymy po obrysie pomieszczenia, bez względu na jego wysokość/skosy. Jeśli nie ma skosów to powierzchnia podłogi i pomieszczenia jest taka sama.
pomieszczenia i podłogi
podłogi
1. Wiatrołap
10,71
2. Schody
27,75
3. Hall
46,32
4. Recepcja
10,32
5. Zaplecze recepcji
8,04
6. Szatnia
3,47
7. Kotłownia
22,45
8. Pokój medyczny pomocy doraźnej
16,69
9. Pomieszczenie terapii i rehabilitacji
31,49
10. Korytarz
29,19
11. Winda
4,37
12. Wc dla niepełnosprawnych
5,55
13. Wc dla niepełnosprawnych
5,55
14. Sala dziennego pobytu, biblioteka
39,97
15. Jadalnia
72,12
16. Korytarz
26,49
17. Kuchnia
39,43
18. Zmywalnia naczyń stołowych
8,24
19. Pomieszczenie socjalne pracowników
7,77
20. Magazyn chłodniczy
11,63
21. Magazyn produktów suchych i zasobów, sprzętu kuchennego
5,89
22. Magazyn warzyw
5,20
23. Obróbka warzyw i jaj
7,18
24. Obróbka mięsa
8,21
25. Wc pracowników
3,11
26. Pomieszczenie porządkowe + mycie i suszenie wózków
3,67
27. Korytarz
152,19
28. Pro-morte
7,28
29. Brudownik
6,60
30. Pokój
22,86
31. Łazienka
4,36
32. Pokój
22,86
33. Łazienka
4,36
34. Pokój
22,86
35. Łazienka
4,36
36. Pokój
22,86
37. Łazienka
4,36
38. Pokój
22,86
39. Łazienka
4,36
40. Pokój
22,86
41. Łazienka
4,36
42. Pokój
22,86
43. Łazienka
4,36
44. Pokój
22,86
45. Łazienka
4,36
46. Pokój
22,86
47. Łazienka
4,36
48. Pokój
22,86
49. Łazienka
4,36
50. Pokój
22,86
Razem
921,94
921,94

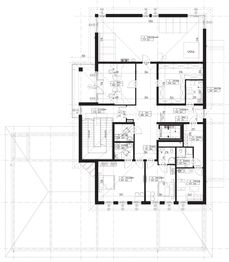
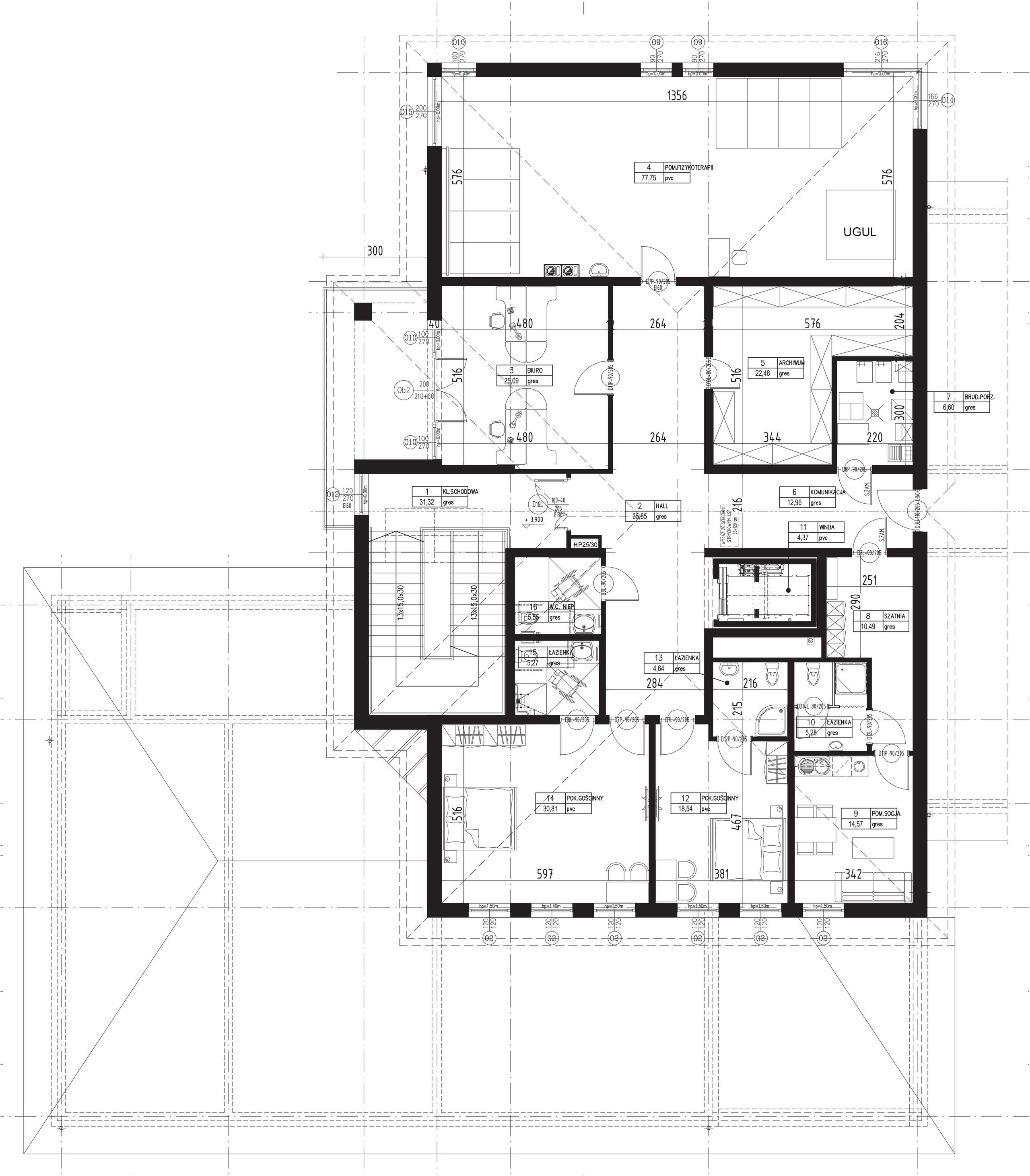
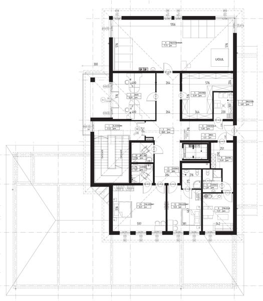
Piętro 1 - 311,57 m²

Piętro 1 projektu At-170

Zapytaj, co możesz zmienić

Powierzchnia (m²)
Tooltip
Powierzchnia pomieszczenia
to ta, z której faktycznie możesz korzystać – skosy i niskie części poddasza są liczone częściowo lub wcale.
  1. 100% dla wysokości powyżej 2,2 m,
  2. 50% dla wysokości 1,4–2,2 m,
  3. nie liczymy poniżej 1,4 m.

Powierzchnia podłogi
Liczymy po obrysie pomieszczenia, bez względu na jego wysokość/skosy. Jeśli nie ma skosów to powierzchnia podłogi i pomieszczenia jest taka sama.
pomieszczenia i podłogi
podłogi
1. Schody
31,32
2. Hall
35,85
3. Biuro
25,09
4. Pomieszczenie fizykoterpaii
77,75
5. Archiwum
22,48
6. Korytarz
12,96
7. Pomieszczenie porządkowe
6,60
8. Szatnia pracowników
10,49
9. Pomieszczenie socjalne pracowników
14,57
10. Łazienka pracowników
5,28
11. Winda
4,37
12. Pokój
18,54
13. Łazienka
4,64
14. Pokój
30,81
15. Łazienka
5,27
16. Wc dla niepełnosprawnych
5,55
Razem
311,57
311,57

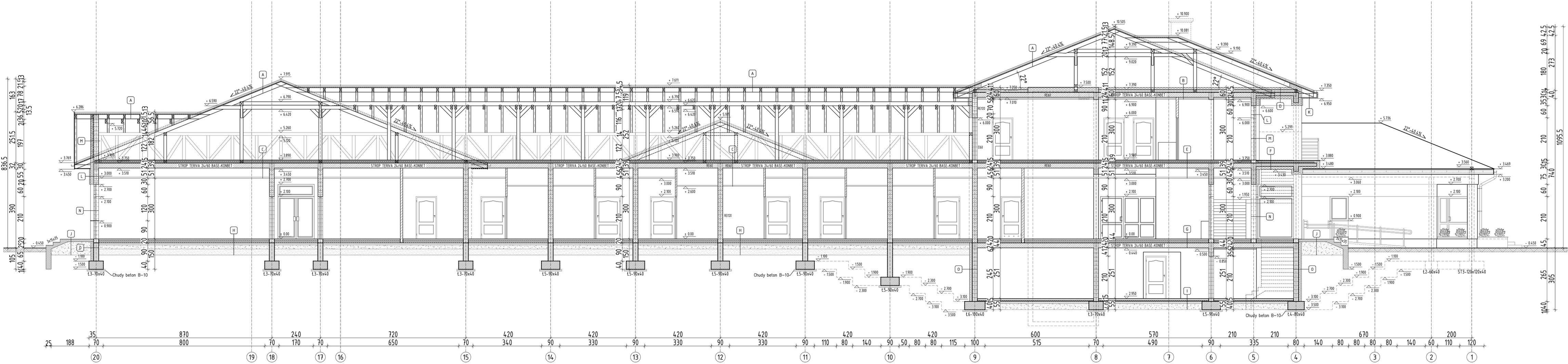
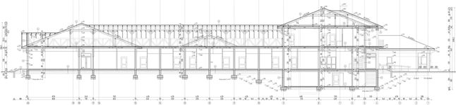
Przekroje

Przekrój pionowy
Autor: AT Studio Projekt

Dane techniczne projektu

Powierzchnie i wymiary Powierzchnie i wymiary

Powierzchnia użytkowa
Tooltip
Suma powierzchni wszystkich pomieszczeń mieszkalnych, pomniejszona o pow. garażu, kotłowni, strychu, piwnicy. Jest liczona w 100% dla pomieszczeń o wysokości powyżej 2,2 m, w 50% dla pomieszczeń o wys. 2,2-1,4 m i niewliczana dla niższych niż 1,4 m.

1 772 m²

Powierzchnia zabudowy
Tooltip
Powierzchnia zajmowana przez część na- oraz nadziemną budynku liczona, jako rzut pionowy budynku na działkę.

1 626,41 m²

Powierzchnia netto
Tooltip
Powierzchna wszystkich pomieszczeń w budynku mierzona na wysokości podłogi.

1 876,16 m²

Kąt nachylenia dachu
Tooltip
Nachylenie połaci dachu głównego podawane w stopniach. Uwaga! W niektórych projektach występuje więcej niż jedno nachylenie dachu.

22°

Wysokość budynku
Tooltip
Wysokość liczona od części budynku położonej najniżej przy powierzchni terenu do najwyższego punktu dachu (kalenicy) z wyłączeniem kominów.

10,96 m

Szerokość elewacji

33,78 m

Długość elewacji

68,66 m

Min. szerokość działki
Tooltip
Najmniejsza możliwa szerokość działki niezbędna do wybudowania wybranego domu. Składa się z szerokości elewacji domu powiększonej z obu stron o 3 m dla ściany bez otworów drzwiowych/okiennych lub 4 m, dla ściany z otworami.

42 m

Min. długość działki
Tooltip
Najmniejsza możliwa długość działki niezbędna do wybudowania wybranego domu. Składa się z długości elewacji domu powiększonej z obu stron o 3 m dla ściany bez otworów drzwiowych/okiennych lub 4 m, dla ściany z otworami.

77 m

Energooszczędność Energooszczędność

Oze Czym jest OZE (Odnawialne Źródło Energii)?
Warunki techniczne

Projekt zgody z WT 2021

Technologia i konstrukcja Technologia i konstrukcja

Konstrukcja

Murowana

Opis szczegółowy

Ściany zewnętrzne: ytong gr. 24cm ocieplone styropianem 16cm . Ściany wewnętrzne: silka 24cm . Strop: teriva . Konstrukcja dachu:płatwiowo-kleszczowa . Dach: blacha płaska na rąbek stojący, blachodachówka . połać dachu pod kątem – 15o . Ogrzewanie: na paliwo stałe lub gazowe .

Strop

Gęstożebrowy

Reklama
Okna i drzwi tarasowe

Nowoczesne okna PVC i aluminiowe WIŚNIOWSKI – doskonała izolacja, elegancki design i niezrównana trwałość.

Wiśniowski
Sprawdź parametry!
Okna dachowe

Oferujemy bezpłatne konsultacje w zakresie wszystkich rozwiązań VELUX. Wyceny, porady dotyczące doboru okien i rolet zewnętrznych - sprawdź!

Velux
Sprawdź szczegóły
Płytki ceramiczne i gresy

Od małych formatów po wielkoformatowe gresy. Marmur, beton, drewno, kamień, lastryko czy cegiełki zamówisz wygodnie online z szybką dostawą.

Ceramzet
Sprawdź ofertę
Drzwi

Ciepłe drzwi WIŚNIOWSKI z kontrolą dostępu. Szeroka gama wzorów i kolorów.

Wiśniowski
Wybierz najlepsze
Bramy garażowe

Automatyczne bramy garażowe segmentowe i uchylne WIŚNIOWSKI na wymiar i z systemem smart home w standardzie.

Wiśniowski
Sprawdź ofertę!
Armatura i ceramika łazienkowa

Topowi producenci. Baterie łazienkowe, zestawy natynkowe i podtynkowe, umywalki, wanny, miski WC oraz kabiny zamówisz kompleksowo online.

Ceramzet II
Dowiedz się więcej
Rekuperacja

Alnor - kompletny system rekuperacji. Dobierz idealne rozwiązanie dla Twojego domu!

Alnor
Dobierz rekuperator
Gruntowe pompy ciepła

Przeprowadzimy kompletną instalację najbardziej oszczędnego źródła ciepła w Twoim nowym domu - gruntowej pompy ciepła. Od dokumentacji, pozwoleń, po odwierty i instalację.

Geothermal Solutions
Dowiedz się więcej

Opis projektu domu
At-170

Projekt budynku użyteczności publicznej zakładu opiekuńczo-leczniczego. Budynek dostosowany do wymogów i norm dla prowadzenia działalności w zakresie opieki medycznej. Projektowany budynek zakładu opiekuńczo-leczniczego wykonany jest w technologii tradycyjnej murowanej z bloczków YTONG PP 3/0,5 S+GT gr. 24cm ocieplone od zewnątrz fasadową wełną mineralną skalną Rockwool Frontrock Max E gr. 16cm metodą lekką mokrą. Budynek dwu-kondygnacyjny częściowo podpiwniczony z dachem wielospadowym konstrukcji drewnianej kryty blachą płaską Ruukki Classic na rąbek stojący, strop gęsto żebrowy belkowo-pustakowy typu Konbet Teriva 24/60 Base o wysokości konstrukcyjnej 24cm, wypełnienie między belkami kratowymi pustakami stropowymi Termo 10-komorowymi Konbet. Elewację wykonano z tynku silikatowego z elementami z deski elewacyjnej oraz płytek kamiennych elewacyjnych, cokół wykonano z płytek kamiennych elewacyjnych. Stolarka okienna i drzwiowa PCV lub aluminiowa Budynek przystosowany jest dla osób niepełnosprawnych poruszających się na wózkach inwalidzkich. Wjazd na parter odbywa się po pochylni dla osób niepełnosprawnych, natomiast na piętro oraz pomieszczenia zlokalizowane w piwnicy wjazd odbywa się za pośrednictwem windy osobowej. Projektowany budynek wg kategorii obiektów budowlanych zakwalifikowany został do XI kategorii. Budynek projektowany przeznaczony jest dla 50 pacjentów, którzy umieszczeni zostaną głównie w pokojach 2-, 3-osobowych, wyposażonych w oddzielne sanitariaty. Zakład Opiekuńczo Leczniczy będzie udzielał całodobowych świadczeń zdrowotnych obejmujących leczenie, pielęgnację i rehabilitację osób nie wymagających hospitalizacji, które ze względu na stan zdrowia i stopień niepełnosprawności oraz brak możliwości funkcjonowania w środowisku domowym wymagają stałego fachowego nadzoru lekarskiego i pielęgniarskiego. Ze względu na funkcję i przeznaczenie obiektu wybudowane zostaną wraz z wyposażeniem następujące sale: sala kinezyterapii, sala fizykoterapii, sala gimnastyczna, sala hydroterapii, gabinet masażu, gabinety zabiegowe a także pomieszczenie kuchni oddziałowej z pomieszczeniami pomocniczymi, pokoje dla pacjentów, pomieszczenia biurowe, pomieszczenia porządkowe, kotłownia.
Czytaj więcej

Polecani producenci

Prefabrykowane konstrukcje dachowe

tło producenta

WIĄZAR POLSKA

Zobacz więcej

Sprawdź nową generację okien GREENVIEW

tło producenta

FAKRO

Sprawdź nową generację okien GREENVIEW

Styropian, tynki, farby, kleje

tło producenta

Termo Organika

Poznaj super jakość

Okna, drzwi, osłony przeciwsłoneczne

tło producenta

Aluprof

Sprawdź ofertę

Kompletne systemy rekuperacji

tło producenta

Alnor

Dowiedz się więcej

Sprawdź nowy system DACHRYNNA

tło producenta

Galeco

Sprawdź ofertę
Zobacz więcej

Społeczność projektu domu
At-170 w budowie

Dołącz do społeczności osób, które budują ten dom lub są zainteresowane jego budową.

  • Oglądaj zdjęcia z budowy
  • Zadawaj pytania
  • Wymieniaj się doświadczeniami

Opinie o projekcie domu At-170

Ocena

Ten projekt nie ma jeszcze opinii, bądź pierwszy!

Dodaj opinię

ASYSTENT WYBORU PROJEKTU

Szukasz idealnego projektu? Znajdziemy go dla Ciebie!

Doradca na podstawie Twoich wskazówek przygotuje spersonalizowaną listę projektów

Graficzne opracowanie rzutów poglądowych widocznych na karcie projektu zostało wykonane przez Extradom.pl. Prezentowane przez Extradom.pl wizualizacje wykonane zostały przez autora projektu i należy poczytywać je jedynie za przykład i propozycję wykończenia, wizję architektoniczną autora projektu. Ostateczne wykończenie budynku może nastąpić na wiele sposobów. Szczegółowe rozwiązania zastosowane w oferowanej dokumentacji - w tym również ilość, lokalizacje i wygląd okien, drzwi, kominów - mogą w niewielkim stopniu różnić się od prezentowanej wizualizacji budynku.

REKLAMA
Zamknij