Projekty nawet 500 zł taniej ❄️

Koniec oferty za:

00godz.

00min.

00sek.

Sprawdź

Projekt domu Miki II BSB1073

Dodano!
Dodano!

Warstwy

Warstwy

Rzut parteru

Powierzchnia (m²)
Tooltip
Powierzchnia pomieszczenia
to ta, z której faktycznie możesz korzystać – skosy i niskie części poddasza są liczone częściowo lub wcale.
  1. 100% dla wysokości powyżej 2,2 m,
  2. 50% dla wysokości 1,4–2,2 m,
  3. nie liczymy poniżej 1,4 m.

Powierzchnia podłogi
Liczymy po obrysie pomieszczenia, bez względu na jego wysokość/skosy. Jeśli nie ma skosów to powierzchnia podłogi i pomieszczenia jest taka sama.
pomieszczenia i podłogi
podłogi
1. Wiatrołap
3,17
2. Hall
5,23
3. Wc
2,15
4. Pokój
8,99
5. Pokój dzienny + schody
24,65
6. Kuchnia
6,63
7. Kotłownia
5,10
8. Garaż jednostanowiskowy
16,31
Razem
72,23
72,23
9. Taras
9,12
Powierzchnia (m²)
Tooltip
Powierzchnia pomieszczenia
to ta, z której faktycznie możesz korzystać – skosy i niskie części poddasza są liczone częściowo lub wcale.
  1. 100% dla wysokości powyżej 2,2 m,
  2. 50% dla wysokości 1,4–2,2 m,
  3. nie liczymy poniżej 1,4 m.

Powierzchnia podłogi
Liczymy po obrysie pomieszczenia, bez względu na jego wysokość/skosy. Jeśli nie ma skosów to powierzchnia podłogi i pomieszczenia jest taka sama.
pomieszczenia
podłogi
1. Hall
5,23
5,23
2. Pokój
10,11
14,16
3. Pokój
7,95
11,94
4. Garderoba
0,65
2,59
5. Łazienka
3,79
6,50
6. Pokój
8,25
10,96
Razem
35,98
51,38
7. Taras
17,89
8. Balkon
4,17

    Usytuowanie na działce

    Czy ten projekt pasuje na
    Twoją działkę?

    Chętnie to sprawdzimy!

    Dowiedz się:

    • czy zmieści się na niej wybrany przez Ciebie dom
    • jakie parametry musi spełniać dom według miejscowego planu zagospodarowania lub warunków zabudowy (np. kąt nachylenia i typ dachu, liczba kondygnacji itp.
    • jakie inne projekty pasują na Twoją działkę – znajdziemy je dla Ciebie!

Pow. użytkowa

86,80 m²

Pokoje

4

Łazienki i WC

2

Garaż

1

Min. szer. i dł. działki

20,85 x 16,55 m

Kąt dachu

40°

Konstrukcja

Murowana
więcej

Miki II - BSB1073

ikona 86,80 m²
Powierzchnia użytkowa
ikona4
Pokoje (bez salonu)
ikona 2
Łazienki (z toaletami)
ikona 1
Liczba stanowisk garażowych
(z wiatą garażową)
ikona
Konstrukcja: Murowana

Projekt został
wycofany z oferty

W razie pytań prosimy o kontakt
z Centrum Obsługi Klienta
Konsultant Masz pytania?
Zadzwoń
71 715 20 60

pon.-pt. 8-21, sob. 9-17

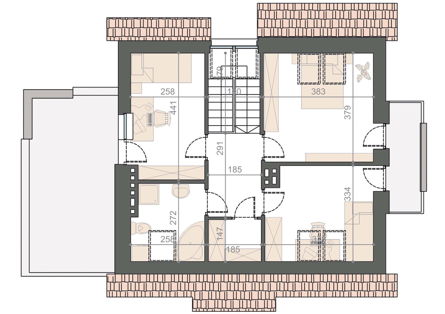
Parter - 72,23 m²

Parter projektu Miki II

Zapytaj, co możesz zmienić

Powierzchnia (m²)
Tooltip
Powierzchnia pomieszczenia
to ta, z której faktycznie możesz korzystać – skosy i niskie części poddasza są liczone częściowo lub wcale.
  1. 100% dla wysokości powyżej 2,2 m,
  2. 50% dla wysokości 1,4–2,2 m,
  3. nie liczymy poniżej 1,4 m.

Powierzchnia podłogi
Liczymy po obrysie pomieszczenia, bez względu na jego wysokość/skosy. Jeśli nie ma skosów to powierzchnia podłogi i pomieszczenia jest taka sama.
pomieszczenia i podłogi
podłogi
1. Wiatrołap
3,17
2. Hall
5,23
3. Wc
2,15
4. Pokój
8,99
5. Pokój dzienny + schody
24,65
6. Kuchnia
6,63
7. Kotłownia
5,10
8. Garaż jednostanowiskowy
16,31
Razem
72,23
72,23
9. Taras
9,12

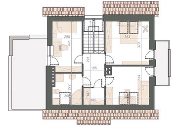
Poddasze - 35,98 m²

Poddasze projektu Miki II

Zapytaj, co możesz zmienić

Powierzchnia (m²)
Tooltip
Powierzchnia pomieszczenia
to ta, z której faktycznie możesz korzystać – skosy i niskie części poddasza są liczone częściowo lub wcale.
  1. 100% dla wysokości powyżej 2,2 m,
  2. 50% dla wysokości 1,4–2,2 m,
  3. nie liczymy poniżej 1,4 m.

Powierzchnia podłogi
Liczymy po obrysie pomieszczenia, bez względu na jego wysokość/skosy. Jeśli nie ma skosów to powierzchnia podłogi i pomieszczenia jest taka sama.
pomieszczenia
podłogi
1. Hall
5,23
5,23
2. Pokój
10,11
14,16
3. Pokój
7,95
11,94
4. Garderoba
0,65
2,59
5. Łazienka
3,79
6,50
6. Pokój
8,25
10,96
Razem
35,98
51,38
7. Taras
17,89
8. Balkon
4,17

Podobne projekty (4343)

Zobacz wszystkie
NIŻSZA CENA❄️
Zdjęcie 1 projektu Lungo 4 WOF1135
Lungo 4
Dodano!
Dodano!
99,91 m²
4
2
0

3 399 zł

3 599 zł

Tooltip

Cena regularna

3 299 zł najniższa cena
Tooltip

Najniższa cena z 30 dni
przed obniżką

NIŻSZA CENA❄️
Zdjęcie 1 projektu Stodoła z antresolą KNT1007
Stodoła z antresolą
Dodano!
Dodano!
98,90 m²
3
3
0

4 350 zł

4 800 zł

Tooltip

Cena regularna

4 000 zł najniższa cena
Tooltip

Najniższa cena z 30 dni
przed obniżką

NIŻSZA CENA❄️
Zdjęcie 1 projektu Domidea 58 mG WAC1030
Domidea 58 mG
Dodano!
Dodano!
96,62 m²
4
2
1

5 235 zł

5 535 zł

Tooltip

Cena regularna

5 235 zł najniższa cena
Tooltip

Najniższa cena z 30 dni
przed obniżką

Zdjęcie 1 projektu House 02 WRG1082
House 02
Dodano!
Dodano!
96,72 m²
4
2
1

5 190 zł

NIŻSZA CENA❄️
Zdjęcie 1 projektu Giewont KNT1000
Giewont
Dodano!
Dodano!
88,90 m²
2
2
0

4 750 zł

5 200 zł

Tooltip

Cena regularna

4 400 zł najniższa cena
Tooltip

Najniższa cena z 30 dni
przed obniżką

NIŻSZA CENA❄️
Zdjęcie 1 projektu Reksio N+ BSB1136
Reksio N+
Dodano!
Dodano!
103,37 m²
4
2
1

4 712 zł

4 960 zł

Tooltip

Cena regularna

4 464 zł najniższa cena
Tooltip

Najniższa cena z 30 dni
przed obniżką

NIŻSZA CENA❄️
Zdjęcie 1 projektu Amor 4 WOE1188
Amor 4
Dodano!
Dodano!
100,90 m²
4
2
0

3 899 zł

3 999 zł

Tooltip

Cena regularna

3 799 zł najniższa cena
Tooltip

Najniższa cena z 30 dni
przed obniżką

NIŻSZA CENA❄️
Zdjęcie 1 projektu Lungo 5 WOF1142
Lungo 5
Dodano!
Dodano!
97,77 m²
4
2
0

3 499 zł

3 699 zł

Tooltip

Cena regularna

3 399 zł najniższa cena
Tooltip

Najniższa cena z 30 dni
przed obniżką

Elewacje

Frontowa
Tylna
Lewa
Prawa

Przekroje

Przekrój pionowy

Usytuowanie na działce

Czy ten projekt pasuje na
Twoją działkę?

Chętnie to sprawdzimy!

Czy ten projekt pasuje na
Twoją działkę?

Chętnie to sprawdzimy!

Dowiedz się:

  • czy zmieści się na niej wybrany przez Ciebie dom
  • jakie parametry musi spełniać dom według miejscowego planu zagospodarowania lub warunków zabudowy (np. kąt nachylenia i typ dachu, liczba kondygnacji itp.
  • jakie inne projekty pasują na Twoją działkę – znajdziemy je dla Ciebie!
Autor: DOMINANTA K.SUTUŁA, K.BURZYŃSKI, K.MARKIEWICZ s.j.

Dane techniczne projektu

Powierzchnie i wymiary Powierzchnie i wymiary

Powierzchnia użytkowa
Tooltip
Suma powierzchni wszystkich pomieszczeń mieszkalnych, pomniejszona o pow. garażu, kotłowni, strychu, piwnicy. Jest liczona w 100% dla pomieszczeń o wysokości powyżej 2,2 m, w 50% dla pomieszczeń o wys. 2,2-1,4 m i niewliczana dla niższych niż 1,4 m.

86,80 m²

Powierzchnia zabudowy
Tooltip
Powierzchnia zajmowana przez część na- oraz nadziemną budynku liczona, jako rzut pionowy budynku na działkę.

99,48 m²

Powierzchnia całkowita
Tooltip
Całkowita powierzchnia wszystkich kondygnacji budynku łącznie z elementami nośnymi, takimi jak ściany zewnętrzne (z ociepleniem), słupy, tarasy, itp.

202,05 m²

Kubatura brutto
Tooltip
Zazwyczaj jest to suma kubatur (objętości) wszystkich pomieszczeń budynku, liczonych po zewnętrznym obrysie murów (z ociepleniem).

539 m³

Powierzchnia dachu

133 m²

Kąt nachylenia dachu
Tooltip
Nachylenie połaci dachu głównego podawane w stopniach. Uwaga! W niektórych projektach występuje więcej niż jedno nachylenie dachu.

40°

Wysokość budynku
Tooltip
Wysokość liczona od części budynku położonej najniżej przy powierzchni terenu do najwyższego punktu dachu (kalenicy) z wyłączeniem kominów.

7,70 m

Szerokość elewacji

12,85 m

Długość elewacji

8,35 m

Min. szerokość działki
Tooltip
Najmniejsza możliwa szerokość działki niezbędna do wybudowania wybranego domu. Składa się z szerokości elewacji domu powiększonej z obu stron o 3 m dla ściany bez otworów drzwiowych/okiennych lub 4 m, dla ściany z otworami.

20,85 m

Min. długość działki
Tooltip
Najmniejsza możliwa długość działki niezbędna do wybudowania wybranego domu. Składa się z długości elewacji domu powiększonej z obu stron o 3 m dla ściany bez otworów drzwiowych/okiennych lub 4 m, dla ściany z otworami.

16,55 m

Energooszczędność Energooszczędność

Oze Czym jest OZE (Odnawialne Źródło Energii)?
Euco
Tooltip
Energia użytkowa potrzebna do ogrzewania i wentylacji. Im parametr jest niższy tym budynek bardziej energooszczędny.

30 kWh/(m²rok)

Warunki techniczne

Projekt zgody z WT 2021

Technologia i konstrukcja Technologia i konstrukcja

Konstrukcja

Murowana

Opis szczegółowy

Ściany zewnętrzne: tradycyjne dwu i trzywarstwowe (cegła licowa), na fragmentach szalówka drewniana. Stropy: żelbetowe monolityczne. Schody wewnętrzne: schody ażurowe drewniane na konstrukcji drewnianej lub stalowej. Dach: dwuspadowy o konstrukcji drewnianej z pokryciem z dachówki ceramicznej, cementowej lub blachodachówki.

Strop

Żelbetowy

Reklama
Okna i drzwi tarasowe

Nowoczesne okna PVC i aluminiowe WIŚNIOWSKI – doskonała izolacja, elegancki design i niezrównana trwałość.

Wiśniowski
Sprawdź parametry!
Okna dachowe

Oferujemy bezpłatne konsultacje w zakresie wszystkich rozwiązań VELUX. Wyceny, porady dotyczące doboru okien i rolet zewnętrznych - sprawdź!

Velux
Sprawdź szczegóły
Płytki ceramiczne i gresy

Od małych formatów po wielkoformatowe gresy. Marmur, beton, drewno, kamień, lastryko czy cegiełki zamówisz wygodnie online z szybką dostawą.

Ceramzet
Sprawdź ofertę
Drzwi

Ciepłe drzwi WIŚNIOWSKI z kontrolą dostępu. Szeroka gama wzorów i kolorów.

Wiśniowski
Wybierz najlepsze
Bramy garażowe

Automatyczne bramy garażowe segmentowe i uchylne WIŚNIOWSKI na wymiar i z systemem smart home w standardzie.

Wiśniowski
Sprawdź ofertę!
Armatura i ceramika łazienkowa

Topowi producenci. Baterie łazienkowe, zestawy natynkowe i podtynkowe, umywalki, wanny, miski WC oraz kabiny zamówisz kompleksowo online.

Ceramzet II
Dowiedz się więcej
Rekuperacja

Alnor - kompletny system rekuperacji. Dobierz idealne rozwiązanie dla Twojego domu!

Alnor
Dobierz rekuperator
Gruntowe pompy ciepła

Przeprowadzimy kompletną instalację najbardziej oszczędnego źródła ciepła w Twoim nowym domu - gruntowej pompy ciepła. Od dokumentacji, pozwoleń, po odwierty i instalację.

Geothermal Solutions
Dowiedz się więcej

Gotowe domy modułowe (114)

Zobacz wszystkie
Stan deweloperski nawet w 6 miesięcy Gwarancja stałej ceny
Zdjęcie 1 projektu ExtraBetonowy 2 HPK1018
Gotowy extraBetonowy 2
Dodano!
Dodano!
Pow. użytkowa
88,25 m²
Pokoje
4
502 980 zł 5 699 zł/m²
Zdjęcie 1 projektu Dom szkieletowy Double Family Smart 140 HHT1024
Pow. użytkowa
88,78 m²
Pokoje
4
1 216 900 zł 13 707 zł/m²
Zdjęcie 1 projektu Dom prefabrykowany P.10a HPK1010
Pow. użytkowa
84,54 m²
Pokoje
3
474 900 zł 5 617 zł/m²
Zdjęcie 1 projektu Dom prefabrykowany P.10 HPK1009
Pow. użytkowa
84,54 m²
Pokoje
3
474 900 zł 5 617 zł/m²
Zdjęcie 1 projektu Dom prefabrykowany Parterowy 90C HFX1007
Pow. użytkowa
90,04 m²
Pokoje
4
415 000 zł 4 609 zł/m²
Zdjęcie 1 projektu Dom prefabrykowany Parterowy 90B HFX1006
Pow. użytkowa
90,04 m²
Pokoje
3
415 000 zł 4 609 zł/m²
Zdjęcie 1 projektu Dom modułowy Energy HMD1003
Gotowy dom modułowy Energy
Dodano!
Dodano!
Pow. użytkowa
83,28 m²
Pokoje
3
473 000 zł 5 680 zł/m²
Zdjęcie 1 projektu Dom keramzytowy Bella 90 HRK1000
Pow. użytkowa
90,52 m²
Pokoje
3
398 520 zł 4 403 zł/m²

Opis projektu domu
Miki II

Budynek Miki II jest opcją znanego projektu Miki. W przeciwieństwie do podstawowej wersji projekt ma mniejszą powierzchnię, garaż. Projekt domu Miki II odpowiedni do zrealizowania na średniej szerokości działkę. Bryła budynku posiada formę typową, przez co jest tani w budowie. Projekt należy do kategorii domów z kalenicą usytuowaną równolegle do drogi, co jest istotne ze względu na wymagania określone w planie zagospodarowania przestrzennego. Dom został zaprojektowany do zabudowy wolnostojącej. W projekcie zaproponowano garaż jednostanowiskowy w linii budynku. Jest to również doskonała propozycja dla osób szukających domu z dachem dwuspadowym, dzięki czemu jest to tanie i proste rozwiązanie. Projekt Miki II to dom parterowy z poddaszem użytkowym, dzięki czemu domownicy mogą cieszyć się większą prywatnością.Projekt domu charakteryzuje się przestronną strefą dzienną. W domu uwzględniono kuchnię otwartą, co jest nowoczesnym i praktycznym rozwiązaniem. Usytuowany w salonie kominek sprawi, iż wnętrze stanie się bardziej przytulne. Na parterze znajduje się toaleta, a na poddaszu architekt przewidział funkcjonalną łazienkę. Uwzględnione w domu cztery przestronne sypialnie to optymalna opcja dla 4-6 osobowej rodziny. Przestrzeń można wykorzystać także jako pokój dla gości lub gabinet. Taras przy domu sprzyja spędzaniu czasu na świeżym powietrzu. Budynek został zaprojektowany w technologii murowanej. W jego bryle widoczne są rozwiązania nawiązujące do stylu nowoczesnego, co jest idealnym rozwiązaniem dla osób ceniących najnowsze rozwiązania.
Czytaj więcej

Polecani producenci

Prefabrykowane konstrukcje dachowe

tło producenta

WIĄZAR POLSKA

Zobacz więcej

Sprawdź nową generację okien GREENVIEW

tło producenta

FAKRO

Sprawdź nową generację okien GREENVIEW

Styropian, tynki, farby, kleje

tło producenta

Termo Organika

Poznaj super jakość

Okna, drzwi, osłony przeciwsłoneczne

tło producenta

Aluprof

Sprawdź ofertę

Kompletne systemy rekuperacji

tło producenta

Alnor

Dowiedz się więcej

Sprawdź nowy system DACHRYNNA

tło producenta

Galeco

Sprawdź ofertę
Zobacz więcej

Społeczność projektu domu
Miki II w budowie

Dołącz do społeczności osób, które budują ten dom lub są zainteresowane jego budową.

  • Oglądaj zdjęcia z budowy
  • Zadawaj pytania
  • Wymieniaj się doświadczeniami

Opinie o projekcie domu Miki II

Ocena

Ten projekt nie ma jeszcze opinii, bądź pierwszy!

Dodaj opinię

Wywiady mieszkańców domu Miki II

Zdjęcie profilowe użytkownika Jerzy1073 Jerzy1073

Muszę przyznać, że projekt Miki II BSB1073 szczególnie do gustu przypadł mojej żonie. Najbardziej z wszystkich elementów spodobał się jej kształt bryły oraz duży taras nad powierzchnią garażu. Podczas budowy natrafiliśmy na jedną przeszkodę. Mianowicie, okazało się, że wymiary komina gazowego nad kotłownią nie zostały prawidłowo przeliczone i komin nie pasował do otworu kanalizacyjnego przy górnej łazience. Fachowiec musiał zmienić założoną koncepcję i w efekcie trzeba było przesunąć rurę kanalizacyjną. Pozostałe etapy prac budowlanych na szczęście przebiegły bez problemów. Budynek wymurowaliśmy z pustaków Porotherm, zaś większość ścianek działowych postawiliśmy z 12 cm gazobetonowych bloczków. Myślę jednak, że obecnie beton komórkowy zastąpiłbym innym materiałem, ponieważ w jednym miejscu pojawiło się duże pęknięcie. Nie wiem czy jest to wina wadliwych bloczków czy też osiadania budynku, ale do wykonania ścian wewnętrznych radzę użyć ceramiki. Projekt zalecał ocieplenie bryły 18 cm warstwą izolacyjną, aczkolwiek ja zmniejszyłem jej grubość do 15 cm i zastosowałem styropian o lambdzie 0,031 czyli o lepszym współczynniku przenikania ciepła. Dach natomiast pokryłem dachówką ceramiczną. Cena postawienia naszego domu w stanie surowym zamkniętym była dużo wyższa, niż ta oszacowana w kosztorysie. Na wspomnianym etapie inwestycja wyniosła ok. 220 tys. zł. Myślę, że należy liczyć się z większymi kosztami, tym bardziej że podczas mojej budowy Porotherm dwukrotnie podrożał. Nasz dom usytuowany jest na działce w ten sposób, iż duże przeszklenie w salonie wychodzi na południowy-wschód. W części dziennej mamy naprawdę jasno, jednak aby ją doświetlić zastosowałem niewielką poprawkę i skróciłem balkon o 60 cm. Małe okienka w salonie znajdują się po słonecznej stronie i nic ich nie przyszłania. W pokojach na górze słońca mamy wystarczająco. Myślę nawet, że można byłoby zrezygnować z okien dachowych w miejscach, gdzie znajdują się one podwójnie. Trzeba przyznać, że ich koszt nie należy do niskich, a sypialnie mimo to są doświetlane dzięki dużym drzwiom balkonowym. Jedyną rzeczą, jaką mogę jeszcze doradzić przyszłym inwestorom, jest obłożenia kominka płytkami klinkierowymi zgodnie z projektem. My obudowaliśmy go cegłą dziurawką, która jest dosyć gruba i nie wygląda to do końca estetycznie. Wybór projekt domu parterowego z poddaszem użytkowym Miki II BSB1073 nie był do końca moją decyzją, ale teraz gdy dom jest już wykończony, naprawdę mi się podoba i jestem zadowolony z jego realizacji. Pozdrawiam.

Zdjęcie profilowe użytkownika misiek-23k@wp.pl misiek-23k@wp.pl

Nasz dom właściwie wybrała żona, a zależało nam na małym domku, tanim w budowie. Projekt domu Miki II BSB1073 taki był. Miał ciekawą bryłę, dużo pomieszczeń i jest bardzo funkcjonalny. Wzięliśmy odbicie lustrzane, tak bardziej nam pasowało do działki. Teraz garaż mamy na wschodzie, a salon jest od zachodu, przy takim umieszczeniu domu na działce, pomieszczenia są bardzo jasne. Budowa przebiegła bardzo sprawnie oczywiście fachowcy są różni i zdarzały nam się różne zawirowania z nimi. Na niektórych musieliśmy trochę poczekać, ale jak już przyszli, to wszystko szło sprawnie. Nie mieli także problemu z odczytem projektu domu Miki II BSB1073, co bardzo nas cieszyło. Piec mamy na węgiel i drewno. Przy takim ogrzewaniu, nasze rachunki są bardzo korzystne i jesteśmy z nich zadowoleni. Kilka modyfikacji musieliśmy wprowadzić, żeby lepiej nam się funkcjonowało. I tak zlikwidowaliśmy garaż, a w jego miejscu jest kotłownia (od północy). Natomiast od frontu znajduje się pralnia, bardzo przydatne i funkcjonalne pomieszczenie. Układ pomieszczeń jest bardzo dobry, mamy sporo miejsca w salonie tym bardziej, że zrobiliśmy schody zabiegowe. Nasz narożnik jest pod nimi- oszczędzamy tym miejsce, a użytkuje się bardzo dobrze. W naszym salonie połączonym z kuchnia jest dużo miejsca na przyjęcie gości, w poprzednim roku mieliśmy wigilię na 15 osób i bardzo dobrze sprawdził się ten układ. W domu na stałe mieszkają trzy osoby i miejsca mamy naprawdę ogrom. Sądzę, że w tym domu bardzo dobrze odnalazłaby się także pięcioosobowa rodzina. Nasz największy sukces to na pewno kuchnia- jest zachwycająca, a połączenie jej z salonem i otwarta przestrzeń to strzał w dziesiątkę. Jesteśmy bardzo zadowoleni z wyboru projektu domu parterowego z poddaszem użytkowym Miki II BSB1073, teraz wiemy, że był to wybór idealny. Z pewnością drugi raz też wybralibyśmy ten dom. Polecam i pozdrawiam.

ASYSTENT WYBORU PROJEKTU

Szukasz idealnego projektu? Znajdziemy go dla Ciebie!

Doradca na podstawie Twoich wskazówek przygotuje spersonalizowaną listę projektów

Graficzne opracowanie rzutów poglądowych widocznych na karcie projektu zostało wykonane przez Extradom.pl. Prezentowane przez Extradom.pl wizualizacje wykonane zostały przez autora projektu i należy poczytywać je jedynie za przykład i propozycję wykończenia, wizję architektoniczną autora projektu. Ostateczne wykończenie budynku może nastąpić na wiele sposobów. Szczegółowe rozwiązania zastosowane w oferowanej dokumentacji - w tym również ilość, lokalizacje i wygląd okien, drzwi, kominów - mogą w niewielkim stopniu różnić się od prezentowanej wizualizacji budynku.

REKLAMA
Zamknij