Projekty nawet 500 zł taniej ❄️

Koniec oferty za:

00godz.

00min.

00sek.

Sprawdź

Projekt domu letniskowego Klif dr-S BSA1256

Dodano!
Dodano!

Warstwy

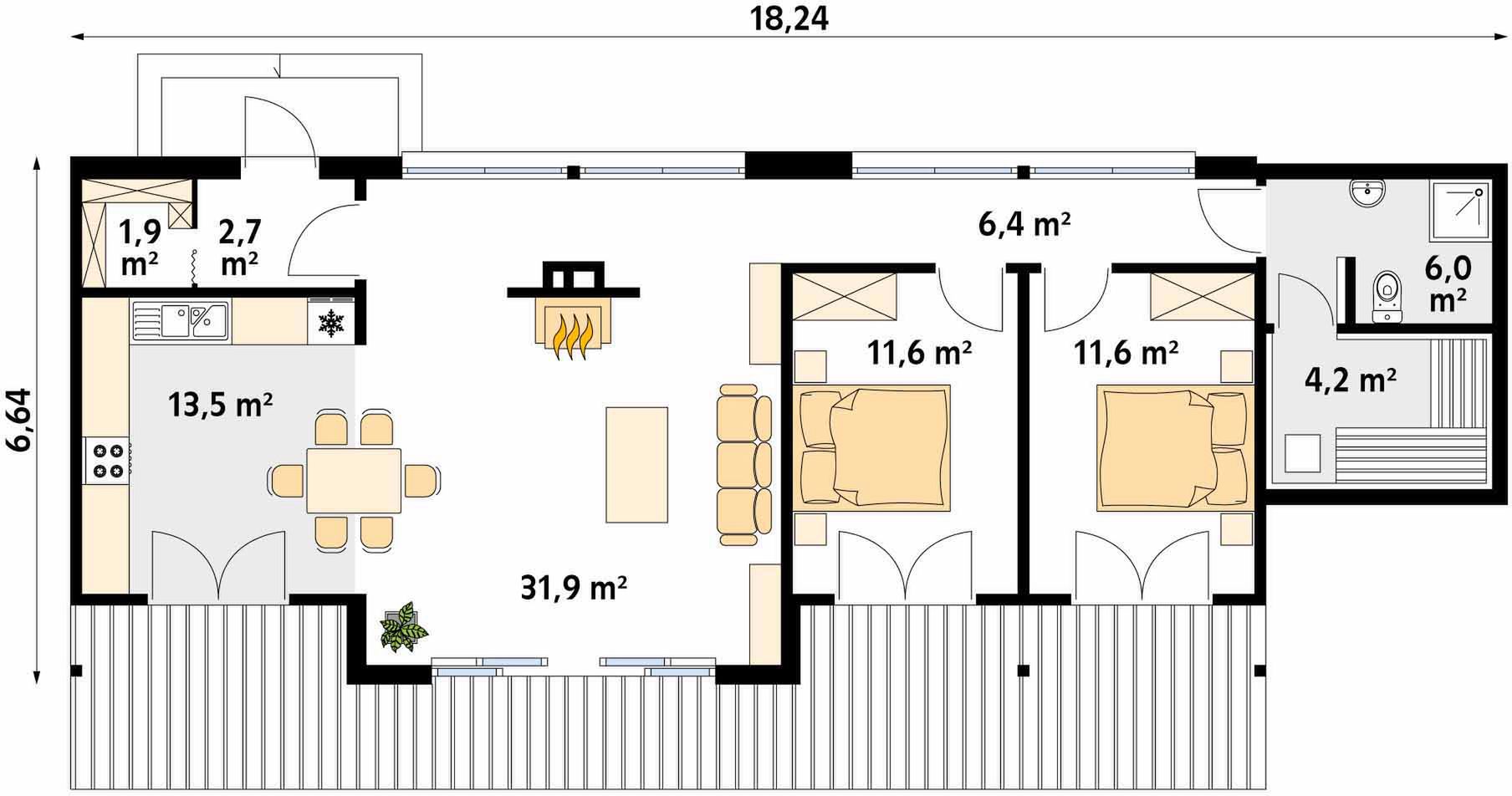
Rzut parteru

Powierzchnia (m²)
Tooltip
Powierzchnia pomieszczenia
to ta, z której faktycznie możesz korzystać – skosy i niskie części poddasza są liczone częściowo lub wcale.
  1. 100% dla wysokości powyżej 2,2 m,
  2. 50% dla wysokości 1,4–2,2 m,
  3. nie liczymy poniżej 1,4 m.

Powierzchnia podłogi
Liczymy po obrysie pomieszczenia, bez względu na jego wysokość/skosy. Jeśli nie ma skosów to powierzchnia podłogi i pomieszczenia jest taka sama.
pomieszczenia i podłogi
podłogi
1. Wiatrołap
2,70
2. Garderoba
1,90
3. Korytarz
6,40
4. Łazienka
6
5. Sauna
4,20
6. Pokój
11,60
7. Pokój
11,60
8. Pokój dzienny
31,90
9. Kuchnia
13,50
Razem
89,80
89,80

    Usytuowanie na działce

    Czy ten projekt pasuje na
    Twoją działkę?

    Chętnie to sprawdzimy!

    Dowiedz się:

    • czy zmieści się na niej wybrany przez Ciebie dom
    • jakie parametry musi spełniać dom według miejscowego planu zagospodarowania lub warunków zabudowy (np. kąt nachylenia i typ dachu, liczba kondygnacji itp.
    • jakie inne projekty pasują na Twoją działkę – znajdziemy je dla Ciebie!

Pow. użytkowa

89,80 m²

Pokoje

2

Łazienki i WC

1

Garaż

0

Min. szer. i dł. działki

27,24 x 17,64 m

Kąt dachu

Konstrukcja

Szkieletowa
więcej

Klif dr-S - BSA1256

ikona 89,80 m²
Powierzchnia użytkowa
ikona2
Pokoje (bez salonu)
ikona 1
Łazienki (z toaletami)
ikona 0
Liczba stanowisk garażowych
(z wiatą garażową)
ikona
Konstrukcja: Szkieletowa

Projekt został
wycofany z oferty

W razie pytań prosimy o kontakt
z Centrum Obsługi Klienta
Konsultant Masz pytania?
Zadzwoń
71 715 20 02

pon.-pt. 8-21, sob. 9-17

Parter - 89,80 m²

Parter projektu Klif dr-S

Zapytaj, co możesz zmienić

Powierzchnia (m²)
Tooltip
Powierzchnia pomieszczenia
to ta, z której faktycznie możesz korzystać – skosy i niskie części poddasza są liczone częściowo lub wcale.
  1. 100% dla wysokości powyżej 2,2 m,
  2. 50% dla wysokości 1,4–2,2 m,
  3. nie liczymy poniżej 1,4 m.

Powierzchnia podłogi
Liczymy po obrysie pomieszczenia, bez względu na jego wysokość/skosy. Jeśli nie ma skosów to powierzchnia podłogi i pomieszczenia jest taka sama.
pomieszczenia i podłogi
podłogi
1. Wiatrołap
2,70
2. Garderoba
1,90
3. Korytarz
6,40
4. Łazienka
6
5. Sauna
4,20
6. Pokój
11,60
7. Pokój
11,60
8. Pokój dzienny
31,90
9. Kuchnia
13,50
Razem
89,80
89,80

Podobne projekty (43)

Zobacz wszystkie
PROMOCJA
Zdjęcie 1 projektu Alikante 3 BSA2337
Alikante 3
Dodano!
Dodano!
87,63 m²
4
2
0

3 949 zł

4 449 zł

Tooltip

Cena regularna

3 949 zł najniższa cena
Tooltip

Najniższa cena z 30 dni
przed obniżką

Zdjęcie 1 projektu WB-3333 KRA1011
WB-3333
Dodano!
Dodano!
67,05 m²
3
1
0

2 750 zł

Zdjęcie 1 projektu WB-3383 KRA3679
WB-3383
Dodano!
Dodano!
49 m²
1
1
0

2 950 zł

Zdjęcie 1 projektu WB-3384 KRA1266
WB-3384
Dodano!
Dodano!
74,40 m²
3
2
0

2 950 zł

Zdjęcie 1 projektu Pilawa 03 KZB1026
Pilawa 03
Dodano!
Dodano!
55,25 m²
3
1
0

2 400 zł

PROMOCJA
Zdjęcie 1 projektu Śmiałek 2 dr-S BSA2392
Śmiałek 2 dr-S
Dodano!
Dodano!
75,16 m²
1
1
0

2 349 zł

2 849 zł

Tooltip

Cena regularna

2 349 zł najniższa cena
Tooltip

Najniższa cena z 30 dni
przed obniżką

PROMOCJA
Zdjęcie 1 projektu Borówka bal BSA1203
Borówka bal
Dodano!
Dodano!
83,07 m²
2
1
0

3 249 zł

3 749 zł

Tooltip

Cena regularna

3 249 zł najniższa cena
Tooltip

Najniższa cena z 30 dni
przed obniżką

PROMOCJA
Zdjęcie 1 projektu Traper 2 bal BSA2272
Traper 2 bal
Dodano!
Dodano!
53,46 m²
1
1
0

3 849 zł

4 349 zł

Tooltip

Cena regularna

3 849 zł najniższa cena
Tooltip

Najniższa cena z 30 dni
przed obniżką

Elewacje

Frontowa
Tylna
Lewa
Prawa

Usytuowanie na działce

Czy ten projekt pasuje na
Twoją działkę?

Chętnie to sprawdzimy!

Czy ten projekt pasuje na
Twoją działkę?

Chętnie to sprawdzimy!

Dowiedz się:

  • czy zmieści się na niej wybrany przez Ciebie dom
  • jakie parametry musi spełniać dom według miejscowego planu zagospodarowania lub warunków zabudowy (np. kąt nachylenia i typ dachu, liczba kondygnacji itp.
  • jakie inne projekty pasują na Twoją działkę – znajdziemy je dla Ciebie!
Autor: Domy w Stylu

Dane techniczne projektu

Powierzchnie i wymiary Powierzchnie i wymiary

Powierzchnia użytkowa
Tooltip
Suma powierzchni wszystkich pomieszczeń mieszkalnych, pomniejszona o pow. garażu, kotłowni, strychu, piwnicy. Jest liczona w 100% dla pomieszczeń o wysokości powyżej 2,2 m, w 50% dla pomieszczeń o wys. 2,2-1,4 m i niewliczana dla niższych niż 1,4 m.

89,80 m²

Powierzchnia zabudowy
Tooltip
Powierzchnia zajmowana przez część na- oraz nadziemną budynku liczona, jako rzut pionowy budynku na działkę.

105,50 m²

Kubatura netto
Tooltip
Zazwyczaj jest to suma kubatur (objętości) pomieszczeń budynku, bez strychu, liczonych po zewnętrznym obrysie murów (z ociepleniem).

405 m³

Powierzchnia dachu

160 m²

Kąt nachylenia dachu
Tooltip
Nachylenie połaci dachu głównego podawane w stopniach. Uwaga! W niektórych projektach występuje więcej niż jedno nachylenie dachu.

Wysokość budynku
Tooltip
Wysokość liczona od części budynku położonej najniżej przy powierzchni terenu do najwyższego punktu dachu (kalenicy) z wyłączeniem kominów.

4,03 m

Szerokość elewacji

18,24 m

Długość elewacji

6,64 m

Min. szerokość działki
Tooltip
Najmniejsza możliwa szerokość działki niezbędna do wybudowania wybranego domu. Składa się z szerokości elewacji domu powiększonej z obu stron o 3 m dla ściany bez otworów drzwiowych/okiennych lub 4 m, dla ściany z otworami.

27,24 m

Min. długość działki
Tooltip
Najmniejsza możliwa długość działki niezbędna do wybudowania wybranego domu. Składa się z długości elewacji domu powiększonej z obu stron o 3 m dla ściany bez otworów drzwiowych/okiennych lub 4 m, dla ściany z otworami.

17,64 m

Energooszczędność Energooszczędność

Oze Czym jest OZE (Odnawialne Źródło Energii)?
Wentylacja

Grawitacyjna - szczegóły

Technologia i konstrukcja Technologia i konstrukcja

Konstrukcja

Szkieletowa

Opis szczegółowy

Ściany: szkielet drewniany. Stropy: na belkach drewnianych. Dach: papa termozgrzewalna, kąt nachylenia 5°. Ogrzewanie: elektryczne, gazowe.

Strop

Drewniany

Reklama
Okna i drzwi tarasowe

Nowoczesne okna PVC i aluminiowe WIŚNIOWSKI – doskonała izolacja, elegancki design i niezrównana trwałość.

Wiśniowski
Sprawdź parametry!
Okna dachowe

Oferujemy bezpłatne konsultacje w zakresie wszystkich rozwiązań VELUX. Wyceny, porady dotyczące doboru okien i rolet zewnętrznych - sprawdź!

Velux
Sprawdź szczegóły
Płytki ceramiczne i gresy

Od małych formatów po wielkoformatowe gresy. Marmur, beton, drewno, kamień, lastryko czy cegiełki zamówisz wygodnie online z szybką dostawą.

Ceramzet
Sprawdź ofertę
Drzwi

Ciepłe drzwi WIŚNIOWSKI z kontrolą dostępu. Szeroka gama wzorów i kolorów.

Wiśniowski
Wybierz najlepsze
Bramy garażowe

Automatyczne bramy garażowe segmentowe i uchylne WIŚNIOWSKI na wymiar i z systemem smart home w standardzie.

Wiśniowski
Sprawdź ofertę!
Armatura i ceramika łazienkowa

Topowi producenci. Baterie łazienkowe, zestawy natynkowe i podtynkowe, umywalki, wanny, miski WC oraz kabiny zamówisz kompleksowo online.

Ceramzet II
Dowiedz się więcej
Rekuperacja

Alnor - kompletny system rekuperacji. Dobierz idealne rozwiązanie dla Twojego domu!

Alnor
Dobierz rekuperator
Gruntowe pompy ciepła

Przeprowadzimy kompletną instalację najbardziej oszczędnego źródła ciepła w Twoim nowym domu - gruntowej pompy ciepła. Od dokumentacji, pozwoleń, po odwierty i instalację.

Geothermal Solutions
Dowiedz się więcej

Gotowe domy modułowe (114)

Zobacz wszystkie
Stan deweloperski nawet w 6 miesięcy Gwarancja stałej ceny
Zdjęcie 1 projektu Dom prefabrykowany Parterowy 90C HFX1007
Pow. użytkowa
90,04 m²
Pokoje
4
415 000 zł 4 609 zł/m²
Zdjęcie 1 projektu Dom prefabrykowany Parterowy 90B HFX1006
Pow. użytkowa
90,04 m²
Pokoje
3
415 000 zł 4 609 zł/m²
Zdjęcie 1 projektu Dom keramzytowy Bella 90 HRK1000
Pow. użytkowa
90,52 m²
Pokoje
3
398 520 zł 4 403 zł/m²
Zdjęcie 1 projektu Dom szkieletowy Double Family Smart 140 HHT1024
Pow. użytkowa
88,78 m²
Pokoje
4
1 216 900 zł 13 707 zł/m²
Zdjęcie 1 projektu Dom prefabrykowany Parterowy 90D HFX1008
Pow. użytkowa
91,35 m²
Pokoje
3
415 000 zł 4 543 zł/m²
Zdjęcie 1 projektu ExtraBetonowy 2 HPK1018
Gotowy extraBetonowy 2
Dodano!
Dodano!
Pow. użytkowa
88,25 m²
Pokoje
4
502 980 zł 5 699 zł/m²
Zdjęcie 1 projektu Dom prefabrykowany P.7 bez okapu HPK1006
Pow. użytkowa
91,53 m²
Pokoje
4
519 400 zł 5 675 zł/m²
Zdjęcie 1 projektu Dom prefabrykowany P.7 z okapem HPK1015
Pow. użytkowa
91,53 m²
Pokoje
4
542 000 zł 5 922 zł/m²

Opis projektu domu letniskowego
Klif dr-S

Dom letniskowy dla czterech osób. W awangardowej bryle zaprojektowano nowoczesne wnętrze. W aneksie łazienkowym zaprojektowano miejsce na saunę. Istnieje możliwość adaptacji na dom mieszkalny, jednorodzinny.
Czytaj więcej

Informacje dodatkowe

Dokumentacja zabezpieczona jest specjalną plombą, której usunięcie uniemożliwi zwrot oraz wymianę projektu. Zapraszamy do zamówienia przed zakupem rysunków szczegółowych projektu oraz analizy posiadanej działki w celu upewnienia się, że wybrany projekt domu idealnie na nią pasuje. Do projektu zostanie dołączony egzemplarz okazowy w formacie A4 (część architektoniczna), służący do weryfikacji projektu po odbiorze zamówienia bez konieczności otwierania pełnej dokumentacji projektowej.

Czytaj więcej

Polecani producenci

Prefabrykowane konstrukcje dachowe

tło producenta

WIĄZAR POLSKA

Zobacz więcej

Sprawdź nową generację okien GREENVIEW

tło producenta

FAKRO

Sprawdź nową generację okien GREENVIEW

Styropian, tynki, farby, kleje

tło producenta

Termo Organika

Poznaj super jakość

Okna, drzwi, osłony przeciwsłoneczne

tło producenta

Aluprof

Sprawdź ofertę

Kompletne systemy rekuperacji

tło producenta

Alnor

Dowiedz się więcej

Sprawdź nowy system DACHRYNNA

tło producenta

Galeco

Sprawdź ofertę
Zobacz więcej

Społeczność projektu domu letniskowego
Klif dr-S w budowie

Dołącz do społeczności osób, które budują ten dom lub są zainteresowane jego budową.

  • Oglądaj zdjęcia z budowy
  • Zadawaj pytania
  • Wymieniaj się doświadczeniami

Opinie o projekcie domu letniskowego Klif dr-S

Ocena

Ten projekt nie ma jeszcze opinii, bądź pierwszy!

Dodaj opinię

ASYSTENT WYBORU PROJEKTU

Szukasz idealnego projektu? Znajdziemy go dla Ciebie!

Doradca na podstawie Twoich wskazówek przygotuje spersonalizowaną listę projektów

Graficzne opracowanie rzutów poglądowych widocznych na karcie projektu zostało wykonane przez Extradom.pl. Prezentowane przez Extradom.pl wizualizacje wykonane zostały przez autora projektu i należy poczytywać je jedynie za przykład i propozycję wykończenia, wizję architektoniczną autora projektu. Ostateczne wykończenie budynku może nastąpić na wiele sposobów. Szczegółowe rozwiązania zastosowane w oferowanej dokumentacji - w tym również ilość, lokalizacje i wygląd okien, drzwi, kominów - mogą w niewielkim stopniu różnić się od prezentowanej wizualizacji budynku.

REKLAMA
Zamknij