👉 Złap prezent 🎁

Koniec oferty za:

0dni

00godz.

00min.

00sek.

Sprawdź

Projekt domu Klara VII z garażem 1-st. [A] WRF2479

Dodano!
Dodano!

Warstwy

Rzut parteru

Powierzchnia (m²)
Tooltip
Powierzchnia pomieszczenia
to ta, z której faktycznie możesz korzystać – skosy i niskie części poddasza są liczone częściowo lub wcale.
  1. 100% dla wysokości powyżej 2,2 m,
  2. 50% dla wysokości 1,4–2,2 m,
  3. nie liczymy poniżej 1,4 m.

Powierzchnia podłogi
Liczymy po obrysie pomieszczenia, bez względu na jego wysokość/skosy. Jeśli nie ma skosów to powierzchnia podłogi i pomieszczenia jest taka sama.
pomieszczenia i podłogi
podłogi
1. Wiatrołap
4,10
2. Hall
8,10
3. Wc
1,90
4. Korytarz
9,20
5. Pralnia
4,60
6. Łazienka
6
7. Pokój
11,30
8. Pokój
12
9. Pokój + garderoba
18,50
10. Łazienka
3,10
11. Kotłownia
5,90
12. Pokój dzienny + jadalnia
29,80
13. Kuchnia
8,20
14. Spiżarnia
2,50
15. Garaż jednostanowiskowy
24,80
Razem
150
150

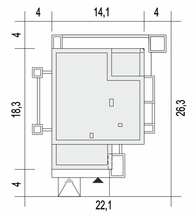
    Usytuowanie na działce

    Czy ten projekt pasuje na
    Twoją działkę?

    Chętnie to sprawdzimy!

    Dowiedz się:

    • czy zmieści się na niej wybrany przez Ciebie dom
    • jakie parametry musi spełniać dom według miejscowego planu zagospodarowania lub warunków zabudowy (np. kąt nachylenia i typ dachu, liczba kondygnacji itp.
    • jakie inne projekty pasują na Twoją działkę – znajdziemy je dla Ciebie!

Pow. użytkowa

114,70 m²

Pokoje

3

Łazienki i WC

3

Garaż

1

Min. szer. i dł. działki

22,1 x 26,30 m

Kąt dachu

Szacunkowy koszt SSZ

362 000 zł
Szacunkowy koszt budowy do stanu surowego zamkniętego (SSZ) metodą gospodarczą - większość prac wykonuje inwestor.

Konstrukcja

Murowana
więcej

Klara VII z garażem 1-st. [A] - WRF2479

ikona 114,70 m²
Powierzchnia użytkowa
ikona3
Pokoje (bez salonu)
ikona 3
Łazienki (z toaletami)
ikona 1
Liczba stanowisk garażowych
(z wiatą garażową)
ikona
Konstrukcja: Murowana

Cena projektu:

5 190 zł

Gwarancja najniższej ceny Gwarancja najniższej ceny Tooltip

Wydłużony czas realizacji Tooltip

Projekt jest koncepcją

GRATIS 16% rabatu w SELSEY

GRATIS 15% rabatu do LEROY MERLIN

GRATIS Przydatne Extradodatki

GRATIS Poradnik Dach Solarny

100 dni na wymianę, 30 dni na zwrot

Darmowa dostawa - kurier, paczkomaty

Bezpłatne pozwolenie na zmiany

Dokumentacja zgodna z WT2021

Pokaż więcej (6)
Konsultant Masz pytania?
Zadzwoń
71 715 20 60

pon.-pt. 8-21, sob. 9-17

Szukasz wykonawcy godnego zaufania?
Zleć budowę w Extradom.pl!

  • Z góry znasz koszt budowy domu
  • Dom odbierasz zgodnie z ustalonym harmonogramem - nawet w 6 miesięcy
  • Zabezpiecza Cię jedna kompleksowa umowa z jednym wykonawcą
  • Otrzymujesz nawet 30-letnią gwarancję na konstrukcję domu
  • Oszczędzasz swój czas dzięki pewnej i kompletnej usłudze
Cena brutto stanu
deweloperskiego od
Tooltip
Cena brutto stanu deweloperskiego od 4 529 do 5 829 zł/m2.
Cena jest uzależniona m.in. od lokalizacji, wybranej technologii, kubatury budynku, skomplikowania projektu i ewentualnych zmian, na które zdecyduje się inwestor.
Cena za m2 powierzchni netto, czyli wszystkich pomieszczeń mierzonych na wysokości podłogi.
4 529 zł/m2
Dowiedz się więcej
Konsultant Masz pytania?
Zadzwoń
71 718 89 70

pon.-pt. 8-19

Parter - 150 m²

Parter projektu Klara VII z garażem 1-st. [A]

Zapytaj, co możesz zmienić

Powierzchnia (m²)
Tooltip
Powierzchnia pomieszczenia
to ta, z której faktycznie możesz korzystać – skosy i niskie części poddasza są liczone częściowo lub wcale.
  1. 100% dla wysokości powyżej 2,2 m,
  2. 50% dla wysokości 1,4–2,2 m,
  3. nie liczymy poniżej 1,4 m.

Powierzchnia podłogi
Liczymy po obrysie pomieszczenia, bez względu na jego wysokość/skosy. Jeśli nie ma skosów to powierzchnia podłogi i pomieszczenia jest taka sama.
pomieszczenia i podłogi
podłogi
1. Wiatrołap
4,10
2. Hall
8,10
3. Wc
1,90
4. Korytarz
9,20
5. Pralnia
4,60
6. Łazienka
6
7. Pokój
11,30
8. Pokój
12
9. Pokój + garderoba
18,50
10. Łazienka
3,10
11. Kotłownia
5,90
12. Pokój dzienny + jadalnia
29,80
13. Kuchnia
8,20
14. Spiżarnia
2,50
15. Garaż jednostanowiskowy
24,80
Razem
150
150

Warianty projektu (8)

Projekt domu Klara bez garażu [B1]
Klara bez garażu [B1]
Dodano!
Dodano!
112,30 m²
3
3
0

5 390 zł

Projekt domu Klara bez garażu [B]
Klara bez garażu [B]
Dodano!
Dodano!
112,30 m²
3
3
0

5 390 zł

PROMOCJA
Projekt domu Klara V z garażem 1-st. [A]
123,60 m²
4
3
1

5 190 zł

5 390 zł

Tooltip

Cena regularna

5 190 zł najniższa cena
Tooltip

Najniższa cena z 30 dni
przed obniżką

PROMOCJA
Projekt domu Klara IV z garażem 1-st. [A]
114,70 m²
3
3
1

5 190 zł

5 390 zł

Tooltip

Cena regularna

5 190 zł najniższa cena
Tooltip

Najniższa cena z 30 dni
przed obniżką

PROMOCJA
Projekt domu Klara III z garażem 1-st. [A]
114,80 m²
3
3
1

5 190 zł

5 390 zł

Tooltip

Cena regularna

5 190 zł najniższa cena
Tooltip

Najniższa cena z 30 dni
przed obniżką

PROMOCJA
Projekt domu Klara VI bez garażu [B2]
Klara VI bez garażu [B2]
Dodano!
Dodano!
104,30 m²
3
2
0

5 190 zł

5 390 zł

Tooltip

Cena regularna

5 190 zł najniższa cena
Tooltip

Najniższa cena z 30 dni
przed obniżką

PROMOCJA
Projekt domu Klara VI bez garażu [B1]
Klara VI bez garażu [B1]
Dodano!
Dodano!
104,30 m²
3
2
0

5 190 zł

5 390 zł

Tooltip

Cena regularna

5 190 zł najniższa cena
Tooltip

Najniższa cena z 30 dni
przed obniżką

Projekt domu Klara VI bez garażu [B]
Klara VI bez garażu [B]
Dodano!
Dodano!
100,90 m²
3
2
0

5 190 zł

Podobne projekty (26)

Zobacz wszystkie
PREZENT 🎁
Zdjęcie 1 projektu Przejrzysty D27 WWB1025
Przejrzysty D27
Dodano!
Dodano!
129,99 m²
3
2
2

4 949 zł

PROMOCJA
Zdjęcie 1 projektu HomeKoncept 122 G2 KRX1282
HomeKoncept 122 G2
Dodano!
Dodano!
107,62 m²
3
2
2

5 771 zł

6 790 zł

Tooltip

Cena regularna

6 290 zł najniższa cena
Tooltip

Najniższa cena z 30 dni
przed obniżką

PREZENT 🎁
Zdjęcie 1 projektu Eksponowany D69 WWB1078
Eksponowany D69
Dodano!
Dodano!
133,92 m²
4
2
2

5 299 zł

PREZENT 🎁
Zdjęcie 1 projektu Nila 2 BSE1160
Nila 2
Dodano!
Dodano!
116,51 m²
3
3
1

5 500 zł

PREZENT 🎁
Zdjęcie 1 projektu Otwarty D42 wariant III WWB1071
Otwarty D42 wariant III
Dodano!
Dodano!
119,47 m²
3
2
1

4 949 zł

PREZENT 🎁
Zdjęcie 1 projektu E-205a WAX1205
E-205a
Dodano!
Dodano!
125,60 m²
3
2
2

6 190 zł

PREZENT 🎁
Zdjęcie 1 projektu Otwarty D42 WWB1040
Otwarty D42
Dodano!
Dodano!
121,67 m²
3
2
2

4 949 zł

PREZENT 🎁
Zdjęcie 1 projektu Ronin WOE1156
Ronin
Dodano!
Dodano!
132,88 m²
3
3
2

5 099 zł

Metody i koszt budowy

Ten dom możesz budować metodą gospodarczą, systemem zleconym lub skorzystać z naszej oferty Projekt z Budową. Przy porównaniu weź pod uwagę nie tylko koszt, ale też różny zakres prac i standard wykonania.

Metoda gospodarcza

Najtańsza metoda - większość prac
budowlanych wykonuje inwestor

Stan surowy zamknięty (SSZ)

362 000 zł netto

Szacunkowy koszt materiałów na IV kwartał 2025
  • Prace ziemne i fundamenty

    85 000 zł
  • Konstrukcja, strop oraz dach

    203 000 zł
  • Stolarka okienna i drzwiowa

    74 000 zł
  • Instalacje

    nie obejmuje
  • Prace wykończeniowe

    nie obejmuje
  • Możesz budować etapami, pamiętając jednak o zmianie kosztów w czasie
  • Możesz rozpocząć budowę z częścią niezbędnych środków
  • Sam ustalasz harmonogram, koordynujesz budowę i zapewniasz materiały
Czy da się obniżyć koszty budowy?
Zobacz nasz film jak obniżyć koszt budowy

Projekt z Budową

Najszybsza i najwygodniejsza metoda -
całą budowę domu realizuje jedna firma

Stan deweloperski
Gwarancja stałego kosztu budowy

Gwarancja stałego
kosztu budowy

  • Prace ziemne i fundamenty
  • Konstrukcja, strop oraz dach
  • Stolarka okienna i drzwiowa
  • Instalacje  
    Tooltip

    Obejmuje wykonanie instalacji:

    • wodno-kanalizacyjnej
    • centralnego ogrzewania
    • gazowej
    • elektrycznej
  • Prace wykończeniowe  
    Tooltip

    Prace wykończeniowe obejmują:

    • sufity i ściany wewnętrzne
    • tynki i okładziny ścian wewnętrznych
    • wylewki i posadzkę
    • ocieplenie ścian zewnętrznych i elewację

Budowa
nawet w
6mies.

  • Kompleksowa umowa i znany z góry koszt budowy
  • Logistyka, organizacja budowy i zakupy po stronie firmy budowlanej
  • Formalności i dokumentacje po stronie firmy budowlanej
  • Różne technologie budowy dopasowane do projektu i budżetu
Szczegóły i dostępne technologie

Elewacje

Frontowa
Tylna
Lewa
Prawa

Przekroje

Przekrój pionowy

Usytuowanie na działce

Czy ten projekt pasuje na
Twoją działkę?

Chętnie to sprawdzimy!

Czy ten projekt pasuje na
Twoją działkę?

Chętnie to sprawdzimy!

Dowiedz się:

  • czy zmieści się na niej wybrany przez Ciebie dom
  • jakie parametry musi spełniać dom według miejscowego planu zagospodarowania lub warunków zabudowy (np. kąt nachylenia i typ dachu, liczba kondygnacji itp.
  • jakie inne projekty pasują na Twoją działkę – znajdziemy je dla Ciebie!
Autor: Archeco Dom dla Ciebie

Dane techniczne projektu

Powierzchnie i wymiary Powierzchnie i wymiary

Powierzchnia użytkowa
Tooltip
Suma powierzchni wszystkich pomieszczeń mieszkalnych, pomniejszona o pow. garażu, kotłowni, strychu, piwnicy. Jest liczona w 100% dla pomieszczeń o wysokości powyżej 2,2 m, w 50% dla pomieszczeń o wys. 2,2-1,4 m i niewliczana dla niższych niż 1,4 m.

114,70 m²

Powierzchnia zabudowy
Tooltip
Powierzchnia zajmowana przez część na- oraz nadziemną budynku liczona, jako rzut pionowy budynku na działkę.

213,20 m²

Powierzchnia netto
Tooltip
Powierzchna wszystkich pomieszczeń w budynku mierzona na wysokości podłogi.

150 m²

Kubatura brutto
Tooltip
Zazwyczaj jest to suma kubatur (objętości) wszystkich pomieszczeń budynku, liczonych po zewnętrznym obrysie murów (z ociepleniem).

405 m³

Kąt nachylenia dachu
Tooltip
Nachylenie połaci dachu głównego podawane w stopniach. Uwaga! W niektórych projektach występuje więcej niż jedno nachylenie dachu.

Wysokość budynku
Tooltip
Wysokość liczona od części budynku położonej najniżej przy powierzchni terenu do najwyższego punktu dachu (kalenicy) z wyłączeniem kominów.

4,50 m

Szerokość elewacji

14,10 m

Długość elewacji

18,30 m

Min. szerokość działki
Tooltip
Najmniejsza możliwa szerokość działki niezbędna do wybudowania wybranego domu. Składa się z szerokości elewacji domu powiększonej z obu stron o 3 m dla ściany bez otworów drzwiowych/okiennych lub 4 m, dla ściany z otworami.

22,10 m

Min. długość działki
Tooltip
Najmniejsza możliwa długość działki niezbędna do wybudowania wybranego domu. Składa się z długości elewacji domu powiększonej z obu stron o 3 m dla ściany bez otworów drzwiowych/okiennych lub 4 m, dla ściany z otworami.

26,30 m

Energooszczędność Energooszczędność

Oze Czym jest OZE (Odnawialne Źródło Energii)?
Ogrzewanie główne

Gazowe - szczegóły

Interesuje Cię inne źródło ogrzewania? Wyślij zapytanie lub zadzwoń do doradcy

Wentylacja

Grawitacyjna - szczegóły

Instalacje w projekcie

Ogrzewanie kominkowe z płaszczem wodnym
Kolektory słoneczne

Warunki techniczne

Projekt zgody z WT 2021

Technologia i konstrukcja Technologia i konstrukcja

Konstrukcja

Murowana

PROJEKT Z BUDOWĄ Istnieje możliwość zaadaptowania tego projektu do technologii prefabrykowanej/modułowej i budowy nawet w 6 miesięcy ze stałym kosztem budowy

Dowiedz się więcej »
Opis szczegółowy

Fundamenty: betonowe. Ściany zewnętrzne: porotherm+styropian termo organika. Rodzaj stropu: Teriva I. Elewacje: tynk strukturalny. Pokrycie dachu: membrana epdm.

Strop

Gęstożebrowy

Reklama
Okna i drzwi tarasowe

Nowoczesne okna PVC i aluminiowe WIŚNIOWSKI – doskonała izolacja, elegancki design i niezrównana trwałość.

Wiśniowski
Sprawdź parametry!
Okna dachowe

Oferujemy bezpłatne konsultacje w zakresie wszystkich rozwiązań VELUX. Wyceny, porady dotyczące doboru okien i rolet zewnętrznych - sprawdź!

Velux
Sprawdź szczegóły
Płytki ceramiczne i gresy

Od małych formatów po wielkoformatowe gresy. Marmur, beton, drewno, kamień, lastryko czy cegiełki zamówisz wygodnie online z szybką dostawą.

Ceramzet
Sprawdź ofertę
Elewacja

Kup przez internet wszystkie materiały potrzebne do wykonania elewacji: styropian, płyty PIR, XPS, kleje, tynki. Najlepsze marki w super cenach z dostawą pod dom.

Hurtownia styropianu
Sprawdź ofertę!
Drzwi

Ciepłe drzwi WIŚNIOWSKI z kontrolą dostępu. Szeroka gama wzorów i kolorów.

Wiśniowski
Wybierz najlepsze
Bramy garażowe

Automatyczne bramy garażowe segmentowe i uchylne WIŚNIOWSKI na wymiar i z systemem smart home w standardzie.

Wiśniowski
Sprawdź ofertę!
Armatura i ceramika łazienkowa

Topowi producenci. Baterie łazienkowe, zestawy natynkowe i podtynkowe, umywalki, wanny, miski WC oraz kabiny zamówisz kompleksowo online.

Ceramzet II
Dowiedz się więcej
Rekuperacja

Alnor - kompletny system rekuperacji. Dobierz idealne rozwiązanie dla Twojego domu!

Alnor
Dobierz rekuperator
Dach

Producent stalowych pokryć dachowych i systemów elewacyjnych. Precyzja wykonania, trwałość na lata i szybki montaż doceniany przez dekarzy. Postaw na solidny dach Budmat.

Budmat
Sprawdź ofertę
Ogrodzenie

Nowoczesne stalowe ogrodzenia Budmat - estetyka, bezpieczeństwo i trwałość na lata. Systemowe rozwiązania na wymiar, dopasowane do każdego domu.

Budmat
Sprawdź ofertę

Gotowe domy - najszybszy sposób na dom (124)

Zobacz wszystkie
  • Stan deweloperski nawet w 6 miesięcy
  • Gwarancja stałej ceny
Skonfiguruj dom
Zdjęcie 1 projektu Bergen 110 HUS1001
110,80 m²
3
Stan deweloperski brutto
449 000 zł 4 052 zł/m²
Zdjęcie 1 projektu Dom modułowy Harmony HMD1000
114,80 m²
4
Stan deweloperski brutto
512 000 zł 3 853 zł/m²
Zdjęcie 1 projektu Dom prefabrykowany P.13 z dachem płaskim bez garażu HPK1022
115,39 m²
3
Stan deweloperski brutto
627 300 zł 5 436 zł/m²
Zdjęcie 1 projektu Dom prefabrykowany P.13 z dachem kopertowym bez garażu HPK1024
115,39 m²
3
Stan deweloperski brutto
627 300 zł 5 436 zł/m²
Zdjęcie 1 projektu Dom prefabrykowany P.13 z dachem kopertowym z garażem HPK1025
115,39 m²
3
Stan deweloperski brutto
743 500 zł 6 443 zł/m²
Zdjęcie 1 projektu Dom prefabrykowany P.13 z dachem płaskim z garażem HPK1023
115,39 m²
3
Stan deweloperski brutto
743 500 zł 6 443 zł/m²
Zdjęcie 1 projektu Dom szkieletowy Forest Smart 120 HHT1017
113,18 m²
4
Stan deweloperski brutto
535 459 zł 4 730 zł/m²
Zdjęcie 1 projektu Dom prefabrykowany DH127U z garażem HDH1012
113,05 m²
3
Stan deweloperski brutto
874 908 zł 7 739 zł/m²

Opis projektu domu
Klara VII z garażem 1-st. [A]

Projekt domu Klara VII z garażem to nowoczesny, parterowy dom z płaskim dachem dla 4–5-osobowej rodziny. Bazuje na układzie projektu Klara IV, różniąc się jedynie dachem. Zbudowany w technologii murowanej, jest funkcjonalny i łączy strefę dzienną z prywatną na jednym poziomie. Wejście prowadzi przez wiatrołap i hol z szafami wnękowymi, obok znajduje się pralnia i toaleta. Część dzienna obejmuje przestronny, jasny salon z jadalnią i widokiem na ogród oraz dostępem do zadaszonego tarasu przez duże drzwi tarasowe. Kuchnia z wyspą i spiżarnią ma układ w kształcie litery "L" i jest dobrze doświetlona dzięki narożnemu oknu. Część prywatna, dostępna z holu, składa się z czterech sypialni, w tym jednej głównej z garderobą i łazienką, oraz wspólnej łazienki z wanną. Jest też pomieszczenie techniczne z piecem CO.
Czytaj więcej

Informacje dodatkowe

Projekt jest w fazie koncepcji. Przy zakupie projektu należy zapłacić 50% zaliczki. Zaliczka jest bezzwrotna w przypadku zwrotu lub rezygnacji z zamówienia

Czytaj więcej

Polecani producenci

Kompletne systemy rekuperacji

tło producenta

Alnor

Dowiedz się więcej

Prefabrykowane konstrukcje dachowe

tło producenta

WIĄZAR POLSKA

Zobacz więcej

Sprawdź nową generację okien GREENVIEW

tło producenta

FAKRO

Sprawdź nową generację okien GREENVIEW

Styropian, tynki, farby, kleje

tło producenta

Termo Organika

Poznaj super jakość

Okna, drzwi, osłony przeciwsłoneczne

tło producenta

Aluprof

Sprawdź ofertę
Zobacz więcej

Społeczność projektu domu
Klara VII z garażem 1-st. [A] w budowie

Dołącz do społeczności osób, które budują ten dom lub są zainteresowane jego budową.

  • Oglądaj zdjęcia z budowy
  • Zadawaj pytania
  • Wymieniaj się doświadczeniami

Opinie o projekcie domu Klara VII z garażem 1-st. [A]

Ocena

Ten projekt nie ma jeszcze opinii, bądź pierwszy!

Dodaj opinię

ASYSTENT WYBORU PROJEKTU

Szukasz idealnego projektu? Znajdziemy go dla Ciebie!

Doradca na podstawie Twoich wskazówek przygotuje spersonalizowaną listę projektów

Graficzne opracowanie rzutów poglądowych widocznych na karcie projektu zostało wykonane przez Extradom.pl. Prezentowane przez Extradom.pl wizualizacje wykonane zostały przez autora projektu i należy poczytywać je jedynie za przykład i propozycję wykończenia, wizję architektoniczną autora projektu. Ostateczne wykończenie budynku może nastąpić na wiele sposobów. Szczegółowe rozwiązania zastosowane w oferowanej dokumentacji - w tym również ilość, lokalizacje i wygląd okien, drzwi, kominów - mogą w niewielkim stopniu różnić się od prezentowanej wizualizacji budynku.

Extradom.pl Spółka z ograniczoną odpowiedzialnością z siedzibą przy ul. Jaworskiej 13, 53-612 Wrocław, wpisana do rejestru przedsiębiorców Krajowego Rejestru Sądowego przez Sąd Rejonowy dla Wrocławia-Fabrycznej we Wrocławiu, VI Wydział Gospodarczy Krajowego Rejestru Sądowego do pod numerem KRS 0000648746, numer NIP 895-17-18-333, o kapitale zakładowym 708 150,00 zł uprzejmie informuje, iż poprzez serwis Extradom.pl umożliwia m.in. zapoznanie się przez konsumentów z ofertą handlową Partnerów Extradom.pl, którzy stosują metody budowy domów przy wykorzystaniu różnego rodzaju technologie prefabrykacji bądź modułowe (tzw. „Gotowe domy”).

Extradom.pl nie prowadzi jednakże sprzedaży ani nie oferuje usług polegających na doradztwie finansowym, prawnym ani podatkowym w zakresie inwestycji realizowanych w technologiach tzw. „Gotowych domów”. Informacje prezentowane w serwisie Extradom.pl dotyczące Partnerów Extradom.pl oferujących realizację inwestycji w technologiach „Gotowych domów” lub podobnych mają charakter informacyjny i reklamowy.

Prezentowane w serwisie Extradom.pl informacje dotyczące stosowanych przez Partnerów metod budowy domów w technologii prefabrykacji bądź modułowej pochodzą od Partnerów Extradom.pl.

Extradom.pl sp. z o.o. jedynie umożliwia nawiązanie kontaktu przez Użytkownika z Partnerem Extradom.pl stosującym tego rodzaju technologie budowy domów i nie jest stroną umowy o roboty budowlane zawieranej przez Użytkownika Extradom.pl z Partnerem Extradom.pl.

REKLAMA
Zamknij