Projekty nawet 500 zł taniej ❄️

Koniec oferty za:

00godz.

00min.

00sek.

Sprawdź

Projekt domu Karmel BL WRY1086

Dodano!
Dodano!

Warstwy

Warstwy

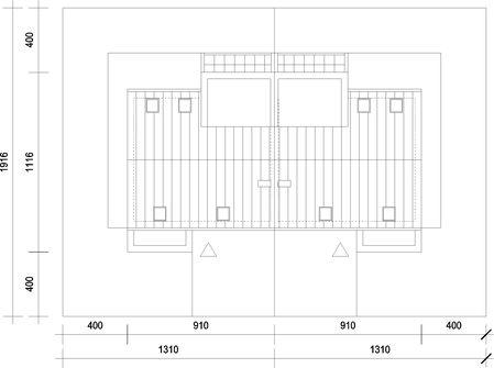
Rzut parteru

Powierzchnia (m²)
Tooltip
Powierzchnia pomieszczenia
to ta, z której faktycznie możesz korzystać – skosy i niskie części poddasza są liczone częściowo lub wcale.
  1. 100% dla wysokości powyżej 2,2 m,
  2. 50% dla wysokości 1,4–2,2 m,
  3. nie liczymy poniżej 1,4 m.

Powierzchnia podłogi
Liczymy po obrysie pomieszczenia, bez względu na jego wysokość/skosy. Jeśli nie ma skosów to powierzchnia podłogi i pomieszczenia jest taka sama.
pomieszczenia i podłogi
podłogi
1. Wiatrołap
5,10
2. Hall
3,30
3. Wc
2,10
4. Kuchnia
10,50
5. Pokój dzienny + jadalnia
30,20
6. Pokój
16,20
7. Kotłownia + pomieszczenie gospodarcze
6,30
Razem
73,70
73,70
Powierzchnia (m²)
Tooltip
Powierzchnia pomieszczenia
to ta, z której faktycznie możesz korzystać – skosy i niskie części poddasza są liczone częściowo lub wcale.
  1. 100% dla wysokości powyżej 2,2 m,
  2. 50% dla wysokości 1,4–2,2 m,
  3. nie liczymy poniżej 1,4 m.

Powierzchnia podłogi
Liczymy po obrysie pomieszczenia, bez względu na jego wysokość/skosy. Jeśli nie ma skosów to powierzchnia podłogi i pomieszczenia jest taka sama.
pomieszczenia i podłogi
podłogi
1. Hall
4,60
2. Pokój
16,70
3. Pokój
11,70
4. Pokój
11,70
5. Łazienka
6
Razem
50,70
50,70

    Usytuowanie na działce

    Czy ten projekt pasuje na
    Twoją działkę?

    Chętnie to sprawdzimy!

    Dowiedz się:

    • czy zmieści się na niej wybrany przez Ciebie dom
    • jakie parametry musi spełniać dom według miejscowego planu zagospodarowania lub warunków zabudowy (np. kąt nachylenia i typ dachu, liczba kondygnacji itp.
    • jakie inne projekty pasują na Twoją działkę – znajdziemy je dla Ciebie!

Pow. użytkowa

124,50 m²

Pokoje

4

Łazienki i WC

2

Garaż

0

Min. szer. i dł. działki

13,1 x 19,16 m

Kąt dachu

43°

Konstrukcja

Murowana
więcej

Karmel BL - WRY1086

ikona 124,50 m²
Powierzchnia użytkowa
ikona4
Pokoje (bez salonu)
ikona 2
Łazienki (z toaletami)
ikona 0
Liczba stanowisk garażowych
(z wiatą garażową)
ikona
Konstrukcja: Murowana

Projekt został
wycofany z oferty

W razie pytań prosimy o kontakt
z Centrum Obsługi Klienta
Konsultant Masz pytania?
Zadzwoń
71 715 20 60

pon.-pt. 8-21, sob. 9-17

Parter - 73,70 m²

Parter projektu Karmel BL

Zapytaj, co możesz zmienić

Powierzchnia (m²)
Tooltip
Powierzchnia pomieszczenia
to ta, z której faktycznie możesz korzystać – skosy i niskie części poddasza są liczone częściowo lub wcale.
  1. 100% dla wysokości powyżej 2,2 m,
  2. 50% dla wysokości 1,4–2,2 m,
  3. nie liczymy poniżej 1,4 m.

Powierzchnia podłogi
Liczymy po obrysie pomieszczenia, bez względu na jego wysokość/skosy. Jeśli nie ma skosów to powierzchnia podłogi i pomieszczenia jest taka sama.
pomieszczenia i podłogi
podłogi
1. Wiatrołap
5,10
2. Hall
3,30
3. Wc
2,10
4. Kuchnia
10,50
5. Pokój dzienny + jadalnia
30,20
6. Pokój
16,20
7. Kotłownia + pomieszczenie gospodarcze
6,30
Razem
73,70
73,70

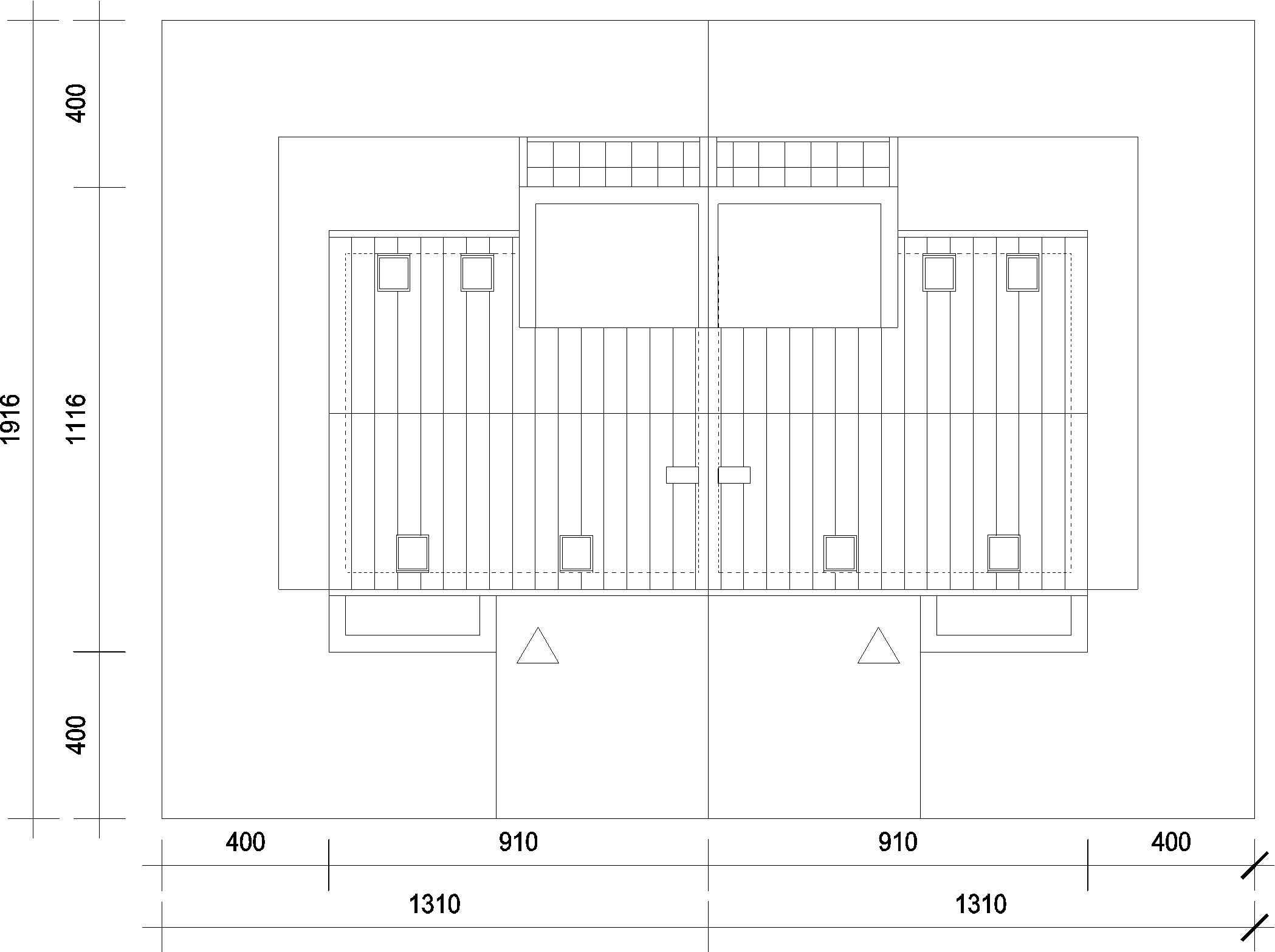
Poddasze - 50,70 m²

Poddasze projektu Karmel BL

Zapytaj, co możesz zmienić

Powierzchnia (m²)
Tooltip
Powierzchnia pomieszczenia
to ta, z której faktycznie możesz korzystać – skosy i niskie części poddasza są liczone częściowo lub wcale.
  1. 100% dla wysokości powyżej 2,2 m,
  2. 50% dla wysokości 1,4–2,2 m,
  3. nie liczymy poniżej 1,4 m.

Powierzchnia podłogi
Liczymy po obrysie pomieszczenia, bez względu na jego wysokość/skosy. Jeśli nie ma skosów to powierzchnia podłogi i pomieszczenia jest taka sama.
pomieszczenia i podłogi
podłogi
1. Hall
4,60
2. Pokój
16,70
3. Pokój
11,70
4. Pokój
11,70
5. Łazienka
6
Razem
50,70
50,70

Podobne projekty (4750)

Zobacz wszystkie
NIŻSZA CENA❄️
Zdjęcie 1 projektu BW-27 wariant 4 JGC1252
BW-27 wariant 4
Dodano!
Dodano!
123 m²
4
2
0

3 670 zł

3 770 zł

Tooltip

Cena regularna

3 570 zł najniższa cena
Tooltip

Najniższa cena z 30 dni
przed obniżką

NIŻSZA CENA❄️
Zdjęcie 1 projektu Niki (wersja B) energo WRC2383
Niki (wersja B) energo
Dodano!
Dodano!
112,72 m²
3
2
0

3 440 zł

4 300 zł

Tooltip

Cena regularna

3 440 zł najniższa cena
Tooltip

Najniższa cena z 30 dni
przed obniżką

NIŻSZA CENA❄️
Zdjęcie 1 projektu Dom na Sosnowej WBF1002
Dom na Sosnowej
Dodano!
Dodano!
113,08 m²
4
2
1

3 790 zł

4 290 zł

Tooltip

Cena regularna

3 590 zł najniższa cena
Tooltip

Najniższa cena z 30 dni
przed obniżką

NIŻSZA CENA❄️
Zdjęcie 1 projektu Celina Solo (1910) KRD3050
Celina Solo (1910)
Dodano!
Dodano!
107,30 m²
4
2
0

4 740 zł

5 090 zł

Tooltip

Cena regularna

4 540 zł najniższa cena
Tooltip

Najniższa cena z 30 dni
przed obniżką

NIŻSZA CENA❄️
Zdjęcie 1 projektu A-150 Dom jodłowa szkieletowy BBD1278
115,40 m²
5
2
0

3 799 zł

4 099 zł

Tooltip

Cena regularna

3 599 zł najniższa cena
Tooltip

Najniższa cena z 30 dni
przed obniżką

NIŻSZA CENA❄️
Zdjęcie 1 projektu Na swoim 2 WAH1673
Na swoim 2
Dodano!
Dodano!
112,42 m²
4
2
0

4 072 zł

5 090 zł

Tooltip

Cena regularna

3 817 zł najniższa cena
Tooltip

Najniższa cena z 30 dni
przed obniżką

NIŻSZA CENA❄️
Zdjęcie 1 projektu Dom przy Alabastrowej 20 KRK1335
Dom przy Alabastrowej 20
Dodano!
Dodano!
115 m²
4
3
0

3 490 zł

3 990 zł

Tooltip

Cena regularna

3 390 zł najniższa cena
Tooltip

Najniższa cena z 30 dni
przed obniżką

NIŻSZA CENA❄️
Zdjęcie 1 projektu Dom przy Alabastrowej 29 KRK1387
Dom przy Alabastrowej 29
Dodano!
Dodano!
108,07 m²
4
3
0

3 490 zł

3 990 zł

Tooltip

Cena regularna

3 390 zł najniższa cena
Tooltip

Najniższa cena z 30 dni
przed obniżką

Elewacje

Frontowa
Tylna
Lewa
Prawa

Usytuowanie na działce

Czy ten projekt pasuje na
Twoją działkę?

Chętnie to sprawdzimy!

Czy ten projekt pasuje na
Twoją działkę?

Chętnie to sprawdzimy!

Dowiedz się:

  • czy zmieści się na niej wybrany przez Ciebie dom
  • jakie parametry musi spełniać dom według miejscowego planu zagospodarowania lub warunków zabudowy (np. kąt nachylenia i typ dachu, liczba kondygnacji itp.
  • jakie inne projekty pasują na Twoją działkę – znajdziemy je dla Ciebie!
Autor: OPUSDOM

Dane techniczne projektu

Powierzchnie i wymiary Powierzchnie i wymiary

Powierzchnia użytkowa
Tooltip
Suma powierzchni wszystkich pomieszczeń mieszkalnych, pomniejszona o pow. garażu, kotłowni, strychu, piwnicy. Jest liczona w 100% dla pomieszczeń o wysokości powyżej 2,2 m, w 50% dla pomieszczeń o wys. 2,2-1,4 m i niewliczana dla niższych niż 1,4 m.

124,50 m²

Powierzchnia zabudowy
Tooltip
Powierzchnia zajmowana przez część na- oraz nadziemną budynku liczona, jako rzut pionowy budynku na działkę.

93,90 m²

Powierzchnia dachu

88 m²

Kąt nachylenia dachu
Tooltip
Nachylenie połaci dachu głównego podawane w stopniach. Uwaga! W niektórych projektach występuje więcej niż jedno nachylenie dachu.

43°

Wysokość budynku
Tooltip
Wysokość liczona od części budynku położonej najniżej przy powierzchni terenu do najwyższego punktu dachu (kalenicy) z wyłączeniem kominów.

8,72 m

Szerokość elewacji

9,10 m

Długość elewacji

11,16 m

Min. szerokość działki
Tooltip
Najmniejsza możliwa szerokość działki niezbędna do wybudowania wybranego domu. Składa się z szerokości elewacji domu powiększonej z obu stron o 3 m dla ściany bez otworów drzwiowych/okiennych lub 4 m, dla ściany z otworami.

13,10 m

Min. długość działki
Tooltip
Najmniejsza możliwa długość działki niezbędna do wybudowania wybranego domu. Składa się z długości elewacji domu powiększonej z obu stron o 3 m dla ściany bez otworów drzwiowych/okiennych lub 4 m, dla ściany z otworami.

19,16 m

Energooszczędność Energooszczędność

Oze Czym jest OZE (Odnawialne Źródło Energii)?
Warunki techniczne

Projekt zgody z WT 2021

Technologia i konstrukcja Technologia i konstrukcja

Konstrukcja

Murowana

Opis szczegółowy

Fundamenty: ławy fundamentowe wylewane i ściany fundamentowe z bloczków betonowych. Ściany: dwuwarstwowe o podwyższonych parametrach energooszczędności – bloczki z betonu komórkowego + wełna mineralna. Strop: gęstożebrowy. Pokrycie dachu: dachówka ceramiczna. Elewacja: tynk silikonowy. Stolarka okienna o podwyższonych parametrach cieplnych.

Strop

Gęstożebrowy

Reklama
Okna i drzwi tarasowe

Nowoczesne okna PVC i aluminiowe WIŚNIOWSKI – doskonała izolacja, elegancki design i niezrównana trwałość.

Wiśniowski
Sprawdź parametry!
Okna dachowe

Oferujemy bezpłatne konsultacje w zakresie wszystkich rozwiązań VELUX. Wyceny, porady dotyczące doboru okien i rolet zewnętrznych - sprawdź!

Velux
Sprawdź szczegóły
Płytki ceramiczne i gresy

Od małych formatów po wielkoformatowe gresy. Marmur, beton, drewno, kamień, lastryko czy cegiełki zamówisz wygodnie online z szybką dostawą.

Ceramzet
Sprawdź ofertę
Drzwi

Ciepłe drzwi WIŚNIOWSKI z kontrolą dostępu. Szeroka gama wzorów i kolorów.

Wiśniowski
Wybierz najlepsze
Bramy garażowe

Automatyczne bramy garażowe segmentowe i uchylne WIŚNIOWSKI na wymiar i z systemem smart home w standardzie.

Wiśniowski
Sprawdź ofertę!
Armatura i ceramika łazienkowa

Topowi producenci. Baterie łazienkowe, zestawy natynkowe i podtynkowe, umywalki, wanny, miski WC oraz kabiny zamówisz kompleksowo online.

Ceramzet II
Dowiedz się więcej
Rekuperacja

Alnor - kompletny system rekuperacji. Dobierz idealne rozwiązanie dla Twojego domu!

Alnor
Dobierz rekuperator
Gruntowe pompy ciepła

Przeprowadzimy kompletną instalację najbardziej oszczędnego źródła ciepła w Twoim nowym domu - gruntowej pompy ciepła. Od dokumentacji, pozwoleń, po odwierty i instalację.

Geothermal Solutions
Dowiedz się więcej

Gotowe domy modułowe (114)

Zobacz wszystkie
Stan deweloperski nawet w 6 miesięcy Gwarancja stałej ceny
Zdjęcie 1 projektu Dom prefabrykowany P.11 HPK1011
Pow. użytkowa
122,88 m²
Pokoje
3
681 300 zł 5 544 zł/m²
Zdjęcie 1 projektu Dom prefabrykowany Parterowy 120B HFX1016
Pow. użytkowa
122,36 m²
Pokoje
3
489 000 zł 3 996 zł/m²
Zdjęcie 1 projektu Dom szkieletowy Twin Smart 170 HHT1031
Pow. użytkowa
121,95 m²
Pokoje
5
1 650 700 zł 13 536 zł/m²
Zdjęcie 1 projektu Dom prefabrykowany P.3 z okapem HPK1013
Pow. użytkowa
121,46 m²
Pokoje
5
600 100 zł 4 941 zł/m²
Zdjęcie 1 projektu Dom prefabrykowany P.3 bez okapu HPK1002
Pow. użytkowa
121,46 m²
Pokoje
5
594 000 zł 4 890 zł/m²
Zdjęcie 1 projektu Dom prefabrykowany Parterowy 120A HFX1015
Pow. użytkowa
121,44 m²
Pokoje
4
489 000 zł 4 027 zł/m²
Zdjęcie 1 projektu Dom prefabrykowany Parterowy 120C HFX1017
Pow. użytkowa
120,06 m²
Pokoje
4
489 000 zł 4 073 zł/m²
Zdjęcie 1 projektu Dom szkieletowy Emily Smart 120 HHT1026
Pow. użytkowa
120 m²
Pokoje
3
592 512 zł 4 938 zł/m²

Opis projektu domu
Karmel BL

KARMEL BL jest wygodnym parterowym domem w zabudowie bliźniaczej lub wolno stojącej. Dom posiada użytkowe poddasze i jest polecanym dla rodziny o schemacie 2+2. Karmel to dom który został zaprojektowany z naciskiem na nowoczesny wygląd, funkcjonalność, prostotę rozwiązań i konstrukcji oraz zastosowanie rozwiązań energooszczędnych. Poprzez zastosowane rozwiązania i zwartą bryłę, dom wygląda efektownie, przy czym jest łatwy w realizacji. Część dzienna na parterze składa się z wiatrołapu, hallu, wygodnej kuchni z wyspą , jadalni i przestronnego pokoju dziennego. Oprócz tego na parterze znajduje się duży gabinet z otwarciem na taras, kotłownia z pom. gospodarczym oraz wc. Część nocną na poddaszu tworzą: trzy wygodne sypialnie, hall oraz funkcjonalna łazienka. Jedna s sypialni ma własny balkon z widokiem na ogród, pozostałe dwie doświetlone są oknami w ścianach szczytowych i oknami połaciowymi. Istnieje wersja z garażem, jest możliwość wybudowania domu w zabudowie wolno stojącej, bliźniaczej lub szeregowej.
Czytaj więcej

Polecani producenci

Prefabrykowane konstrukcje dachowe

tło producenta

WIĄZAR POLSKA

Zobacz więcej

Sprawdź nową generację okien GREENVIEW

tło producenta

FAKRO

Sprawdź nową generację okien GREENVIEW

Styropian, tynki, farby, kleje

tło producenta

Termo Organika

Poznaj super jakość

Okna, drzwi, osłony przeciwsłoneczne

tło producenta

Aluprof

Sprawdź ofertę

Kompletne systemy rekuperacji

tło producenta

Alnor

Dowiedz się więcej

Sprawdź nowy system DACHRYNNA

tło producenta

Galeco

Sprawdź ofertę
Zobacz więcej

Społeczność projektu domu
Karmel BL w budowie

Dołącz do społeczności osób, które budują ten dom lub są zainteresowane jego budową.

  • Oglądaj zdjęcia z budowy
  • Zadawaj pytania
  • Wymieniaj się doświadczeniami

Opinie o projekcie domu Karmel BL

Ocena

Ten projekt nie ma jeszcze opinii, bądź pierwszy!

Dodaj opinię

ASYSTENT WYBORU PROJEKTU

Szukasz idealnego projektu? Znajdziemy go dla Ciebie!

Doradca na podstawie Twoich wskazówek przygotuje spersonalizowaną listę projektów

Graficzne opracowanie rzutów poglądowych widocznych na karcie projektu zostało wykonane przez Extradom.pl. Prezentowane przez Extradom.pl wizualizacje wykonane zostały przez autora projektu i należy poczytywać je jedynie za przykład i propozycję wykończenia, wizję architektoniczną autora projektu. Ostateczne wykończenie budynku może nastąpić na wiele sposobów. Szczegółowe rozwiązania zastosowane w oferowanej dokumentacji - w tym również ilość, lokalizacje i wygląd okien, drzwi, kominów - mogą w niewielkim stopniu różnić się od prezentowanej wizualizacji budynku.

REKLAMA
Zamknij