👉 Wiosenne rabaty + karta allegro 200 zł! 🔥

Koniec oferty za:

0dni

00godz.

00min.

00sek.

Sprawdź

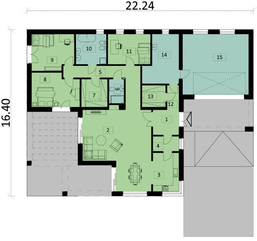
Projekt domu KA49 PKT1050

Zapisz Dodano!
Porównaj Dodano!
ikona Pobierz i drukuj
Dodaj opinię

Warstwy

Rzut parteru

Powierzchnia (m²)
Tooltip
Powierzchnia pomieszczenia
to ta, z której faktycznie możesz korzystać – skosy i niskie części poddasza są liczone częściowo lub wcale.
  1. 100% dla wysokości powyżej 2,2 m,
  2. 50% dla wysokości 1,4–2,2 m,
  3. nie liczymy poniżej 1,4 m.

Powierzchnia podłogi
Liczymy po obrysie pomieszczenia, bez względu na jego wysokość/skosy. Jeśli nie ma skosów to powierzchnia podłogi i pomieszczenia jest taka sama.
pomieszczenia i podłogi
podłogi
1. Wiatrołap
6,50
2. Pokój dzienny + jadalnia
44,91
3. Kuchnia
9,93
4. Spiżarnia
3,90
5. Korytarz
13,84
6. Łazienka
3,65
7. Garderoba
7,22
8. Pokój
15,18
9. Pokój
14,67
10. Łazienka
9,10
11. Pokój
12,70
12. Korytarz
2,90
13. Garderoba
5,12
14. Pomieszczenie gospodarcze
14,97
15. Garaż dwustanowiskowy
39
Razem
203,59
203,59

    Usytuowanie na działce

    Czy ten projekt pasuje na
    Twoją działkę?

    Chętnie to sprawdzimy!

    Dowiedz się:

    • czy zmieści się na niej wybrany przez Ciebie dom
    • jakie parametry musi spełniać dom według miejscowego planu zagospodarowania lub warunków zabudowy (np. kąt nachylenia i typ dachu, liczba kondygnacji itp.
    • jakie inne projekty pasują na Twoją działkę – znajdziemy je dla Ciebie!

Pow. użytkowa

149,62 m²

Pokoje

3

Łazienki i WC

2

Garaż

2

Min. szer. i dł. działki

29,24 x 24,40 m

Kąt dachu

Szacunkowy koszt SSZ

423 000 zł
Szacunkowy koszt budowy do stanu surowego zamkniętego (SSZ) metodą gospodarczą - większość prac wykonuje inwestor.

Konstrukcja

Murowana
więcej
Zapisz Dodano!
Porównaj Dodano!
ikona Pobierz i drukuj

KA49 - PKT1050

ikona 149,62 m²
Powierzchnia użytkowa
ikona3
Pokoje (bez salonu)
ikona 2
Łazienki (z toaletami)
ikona 2
Liczba stanowisk garażowych
(z wiatą garażową)
ikona
Konstrukcja: Murowana

Promocja

od 05.05.2026 do 07.05.2026

0dni

00 00 00

4 499 zł

4 949 zł - cena regularna
Tooltip

Cena regularna obowiązywała od 28.04.2026 do 05.05.2026

4 449 zł - najniższa cena z 30 dni przed obniżką

Projekt jest dostępny

Gwarancja najniższej ceny
ikona
Darmowa dostawa
Paczkomaty, kurier
ikona
100 dni na wymianę,
30 dni na zwrot
ikona Zyskaj najwięcej! Extradodatki GRATIS:

15% rabatu do LEROY MERLIN

10% rabatu w CASTORAMIE

16% rabatu w SELSEY

Pakiet Formalności 2026

Przydatne Extradodatki

Poradnik Dach Solarny

ikona Co zawiera projekt?
  • Projekt zgodny z WT2021
  • Bezpłatne pozwolenie na zmiany
  • Charakterystyka energetyczna
Konsultant
71 715 20 60

pon.-pt. 8-21, sob. 9-17

Szukasz wykonawcy godnego zaufania?
Zleć budowę w Extradom.pl!

  • Z góry znasz koszt budowy domu
  • Dom odbierasz zgodnie z ustalonym harmonogramem - nawet w 6 miesięcy
  • Zabezpiecza Cię jedna kompleksowa umowa z jednym wykonawcą
  • Otrzymujesz nawet 30-letnią gwarancję na konstrukcję domu
  • Oszczędzasz swój czas dzięki pewnej i kompletnej usłudze
  • Odbiór techniczny GRATIS - Gwarantujemy najwyższą jakość
Cena brutto stanu
deweloperskiego od
Tooltip
Cena brutto stanu deweloperskiego od 4 529 do 5 829 zł/m2.
Cena jest uzależniona m.in. od lokalizacji, wybranej technologii, kubatury budynku, skomplikowania projektu i ewentualnych zmian, na które zdecyduje się inwestor.
Cena za m2 powierzchni netto, czyli wszystkich pomieszczeń mierzonych na wysokości podłogi.
4 529 zł/m2
Dowiedz się więcej
Konsultant Masz pytania?
Zadzwoń
71 715 20 09

pon.-pt. 8-19

Parter - 203,59 m²

Parter projektu KA49

Zapytaj, co możesz zmienić

Powierzchnia (m²)
Tooltip
Powierzchnia pomieszczenia
to ta, z której faktycznie możesz korzystać – skosy i niskie części poddasza są liczone częściowo lub wcale.
  1. 100% dla wysokości powyżej 2,2 m,
  2. 50% dla wysokości 1,4–2,2 m,
  3. nie liczymy poniżej 1,4 m.

Powierzchnia podłogi
Liczymy po obrysie pomieszczenia, bez względu na jego wysokość/skosy. Jeśli nie ma skosów to powierzchnia podłogi i pomieszczenia jest taka sama.
pomieszczenia i podłogi
podłogi
1. Wiatrołap
6,50
2. Pokój dzienny + jadalnia
44,91
3. Kuchnia
9,93
4. Spiżarnia
3,90
5. Korytarz
13,84
6. Łazienka
3,65
7. Garderoba
7,22
8. Pokój
15,18
9. Pokój
14,67
10. Łazienka
9,10
11. Pokój
12,70
12. Korytarz
2,90
13. Garderoba
5,12
14. Pomieszczenie gospodarcze
14,97
15. Garaż dwustanowiskowy
39
Razem
203,59
203,59

Natychmiast, otrzymasz PDF-y
z rzutami wszystkich kondygnacji

Zamów rysunki szczegółowe

Zapoznaj się ze szczegółowymi rysunkami rzutów kondygnacji w PDF dla tego projektu.

Warianty projektu (1)

PROMOCJA
Projekt domu KA49 SZ
KA49 SZ
Dodano!
Dodano!
149,62 m²
3
2
2

4 699 zł

5 149 zł

Tooltip

Cena regularna

4 649 zł najniższa cena
Tooltip

Najniższa cena z 30 dni
przed obniżką

Podobne projekty (17)

Zobacz wszystkie
Zdjęcie 1 projektu HomeKoncept 106 KRX1234
HomeKoncept 106
Dodano!
Dodano!
166,50 m²
4
2
2

7 990 zł

Zdjęcie 1 projektu Nokia II DCB84a WOB1486
Nokia II DCB84a
Dodano!
Dodano!
119,86 m²
3
2
2

5 470 zł

NIŻSZA CENA 🔥
Zdjęcie 1 projektu Dosadny D75 wariant I WWB1090
Dosadny D75 wariant I
Dodano!
Dodano!
150,57 m²
4
2
2

5 049 zł

5 299 zł

Tooltip

Cena regularna

4 999 zł najniższa cena
Tooltip

Najniższa cena z 30 dni
przed obniżką

Zdjęcie 1 projektu Dom z patio 2 WAW1161
Dom z patio 2
Dodano!
Dodano!
149 m²
3
3
2

9 830 zł

Zdjęcie 1 projektu HomeKoncept 105 KRX1233
HomeKoncept 105
Dodano!
Dodano!
149,53 m²
3
2
2

7 690 zł

NIŻSZA CENA 🔥
Zdjęcie 1 projektu Magneticus IV G2 SLS1112
Magneticus IV G2
Dodano!
Dodano!
150,73 m²
3
2
2

4 400 zł

5 400 zł

Tooltip

Cena regularna

4 400 zł najniższa cena
Tooltip

Najniższa cena z 30 dni
przed obniżką

NIŻSZA CENA 🔥
Zdjęcie 1 projektu Magneticus III G2 SLS1056
Magneticus III G2
Dodano!
Dodano!
135,23 m²
3
2
2

4 400 zł

5 400 zł

Tooltip

Cena regularna

4 400 zł najniższa cena
Tooltip

Najniższa cena z 30 dni
przed obniżką

NIŻSZA CENA 🔥
Zdjęcie 1 projektu Infinitus I G2 SLS1087
Infinitus I G2
Dodano!
Dodano!
149,44 m²
4
2
2

4 600 zł

5 600 zł

Tooltip

Cena regularna

4 600 zł najniższa cena
Tooltip

Najniższa cena z 30 dni
przed obniżką

Metody i koszt budowy

Ten dom możesz budować metodą gospodarczą, systemem zleconym lub skorzystać z naszej oferty Projekt z Budową. Przy porównaniu weź pod uwagę nie tylko koszt, ale też różny zakres prac i standard wykonania.

Metoda gospodarcza

Najtańsza metoda - większość prac
budowlanych wykonuje inwestor

Stan surowy zamknięty (SSZ)

423 000 zł netto

Szacunkowy koszt materiałów na I kwartał 2026
  • Prace ziemne i fundamenty

    99 000 zł
  • Konstrukcja, strop oraz dach

    262 000 zł
  • Stolarka okienna i drzwiowa

    62 000 zł
  • Instalacje

    nie obejmuje
  • Prace wykończeniowe

    nie obejmuje
  • Możesz budować etapami, pamiętając jednak o zmianie kosztów w czasie
  • Możesz rozpocząć budowę z częścią niezbędnych środków
  • Sam ustalasz harmonogram, koordynujesz budowę i zapewniasz materiały
Czy da się obniżyć koszty budowy?
Zobacz nasz film jak obniżyć koszt budowy

Projekt z Budową

Najszybsza i najwygodniejsza metoda -
całą budowę domu realizuje jedna firma

Stan deweloperski
Gwarancja stałego kosztu budowy

Gwarancja stałego
kosztu budowy

  • Prace ziemne i fundamenty
  • Konstrukcja, strop oraz dach
  • Stolarka okienna i drzwiowa
  • Instalacje  
    Tooltip

    Obejmuje wykonanie instalacji:

    • wodno-kanalizacyjnej
    • centralnego ogrzewania
    • gazowej
    • elektrycznej
  • Prace wykończeniowe  
    Tooltip

    Prace wykończeniowe obejmują:

    • sufity i ściany wewnętrzne
    • tynki i okładziny ścian wewnętrznych
    • wylewki i posadzkę
    • ocieplenie ścian zewnętrznych i elewację

Budowa
nawet w
6mies.

  • Kompleksowa umowa i znany z góry koszt budowy
  • Logistyka, organizacja budowy i zakupy po stronie firmy budowlanej
  • Formalności i dokumentacje po stronie firmy budowlanej
  • Różne technologie budowy dopasowane do projektu i budżetu
Szczegóły i dostępne technologie
icon

Polecamy

Kosztorys

Zawiera zestawienie wszystkich potrzebnych materiałów wraz z ich cenami, uwzględnia koszty sprzętu i transportu. Z kosztorysem:

  • poznasz całkowite koszty budowy
  • zaplanujesz prace na budowie
  • łatwiej ocenisz konkurencyjność ofert podwykonawców
  • otrzymasz dokument wymagany w procesie kredytowym

Elewacje

Frontowa
Tylna
Lewa
Prawa

Usytuowanie na działce

Czy ten projekt pasuje na
Twoją działkę?

Chętnie to sprawdzimy!

Czy ten projekt pasuje na
Twoją działkę?

Chętnie to sprawdzimy!

Dowiedz się:

  • czy zmieści się na niej wybrany przez Ciebie dom
  • jakie parametry musi spełniać dom według miejscowego planu zagospodarowania lub warunków zabudowy (np. kąt nachylenia i typ dachu, liczba kondygnacji itp.
  • jakie inne projekty pasują na Twoją działkę – znajdziemy je dla Ciebie!
Autor: Projektyka

Dane techniczne projektu

Powierzchnie i wymiary Powierzchnie i wymiary

Powierzchnia użytkowa
Tooltip
Suma powierzchni wszystkich pomieszczeń mieszkalnych, pomniejszona o pow. garażu, kotłowni, strychu, piwnicy. Jest liczona w 100% dla pomieszczeń o wysokości powyżej 2,2 m, w 50% dla pomieszczeń o wys. 2,2-1,4 m i niewliczana dla niższych niż 1,4 m.

149,62 m²

Powierzchnia zabudowy
Tooltip
Powierzchnia zajmowana przez część na- oraz nadziemną budynku liczona, jako rzut pionowy budynku na działkę.

248,23 m²

Powierzchnia całkowita
Tooltip
Całkowita powierzchnia wszystkich kondygnacji budynku łącznie z elementami nośnymi, takimi jak ściany zewnętrzne (z ociepleniem), słupy, tarasy, itp.

203,59 m²

Powierzchnia dachu

231,50 m²

Kąt nachylenia dachu
Tooltip
Nachylenie połaci dachu głównego podawane w stopniach. Uwaga! W niektórych projektach występuje więcej niż jedno nachylenie dachu.

Wysokość budynku
Tooltip
Wysokość liczona od części budynku położonej najniżej przy powierzchni terenu do najwyższego punktu dachu (kalenicy) z wyłączeniem kominów.

4,45 m

Szerokość elewacji

22,24 m

Długość elewacji

16,40 m

Min. szerokość działki
Tooltip
Najmniejsza możliwa szerokość działki niezbędna do wybudowania wybranego domu. Składa się z szerokości elewacji domu powiększonej z obu stron o 3 m dla ściany bez otworów drzwiowych/okiennych lub 4 m, dla ściany z otworami.

29,24 m

Min. długość działki
Tooltip
Najmniejsza możliwa długość działki niezbędna do wybudowania wybranego domu. Składa się z długości elewacji domu powiększonej z obu stron o 3 m dla ściany bez otworów drzwiowych/okiennych lub 4 m, dla ściany z otworami.

24,40 m

Energooszczędność Energooszczędność

Oze Czym jest OZE (Odnawialne Źródło Energii)?
Ogrzewanie główne

Gazowe - szczegóły

Dodatkowo istnieje możliwość zamówienia projektu z

Pompa ciepła + ogrzewanie podłogowe

Interesuje Cię inne źródło ogrzewania? Wyślij zapytanie lub zadzwoń do doradcy

Wentylacja

Grawitacyjna - szczegóły

Dodatkowo istnieje możliwość zamówienia projektu z

Wentylacja mechaniczna z rekuperacją

Warunki techniczne

Projekt zgody z WT 2021

Technologia i konstrukcja Technologia i konstrukcja

Konstrukcja

Murowana

PROJEKT Z BUDOWĄ Istnieje możliwość zaadaptowania tego projektu do technologii prefabrykowanej/modułowej i budowy nawet w 6 miesięcy ze stałym kosztem budowy

Dowiedz się więcej »
Opis szczegółowy

Fundamenty: ławy żelbetowe/stopy fundamentowe. Ściany zewnętrzne: gazobeton/porotherm/silka +20 cm styropianu. Strop: pas dolny dźwigara prefabrykowanego MiTek. Elewacje: tynk strukturalny, beton architektoniczny, okładzina drewniana.

Strop

Wiązary

Reklama
Okna i drzwi tarasowe

Nowoczesne okna PVC i aluminiowe WIŚNIOWSKI – doskonała izolacja, elegancki design i niezrównana trwałość.

Wiśniowski
Sprawdź parametry!
Okna dachowe

Oferujemy bezpłatne konsultacje w zakresie wszystkich rozwiązań VELUX. Wyceny, porady dotyczące doboru okien i rolet zewnętrznych - sprawdź!

Velux
Sprawdź szczegóły
Pompa ciepła

Wybierz pompę ciepła, która pasuje do Twojego domu. Niezależnie od tego, czy ustawienie wewnątrz czy na zewnątrz, pompy ciepła STIEBEL ELTRON dopasują się do każdej przestrzeni.

Stiebel
Dobierz pompę ciepła
Drzwi

Ciepłe drzwi WIŚNIOWSKI z kontrolą dostępu. Szeroka gama wzorów i kolorów.

Wiśniowski
Wybierz najlepsze
Bramy garażowe

Automatyczne bramy garażowe segmentowe i uchylne WIŚNIOWSKI na wymiar i z systemem smart home w standardzie.

Wiśniowski
Sprawdź ofertę!
Rekuperacja

Alnor - kompletny system rekuperacji. Dobierz idealne rozwiązanie dla Twojego domu!

Alnor
Dobierz rekuperator
Dach

Producent stalowych pokryć dachowych i systemów elewacyjnych. Precyzja wykonania, trwałość na lata i szybki montaż doceniany przez dekarzy. Postaw na solidny dach Budmat.

Budmat
Sprawdź ofertę
Ogrodzenie

Nowoczesne stalowe ogrodzenia Budmat - estetyka, bezpieczeństwo i trwałość na lata. Systemowe rozwiązania na wymiar, dopasowane do każdego domu.

Budmat
Sprawdź ofertę

Gotowe domy - najszybszy sposób na dom (115)

Zobacz wszystkie
  • Stan deweloperski nawet w 6 miesięcy
  • Gwarancja stałej ceny
Skonfiguruj dom
Zdjęcie 1 projektu Bergen 130 HUS1002
130,40 m²
4
Stan deweloperski brutto
529 000 zł 4 057 zł/m²
Zdjęcie 1 projektu Dom prefabrykowany Parterowy 150B HFX1039
150,50 m²
4
Stan deweloperski brutto
590 000 zł 3 920 zł/m²
Zdjęcie 1 projektu Dom prefabrykowany Parterowy 150A HFX1038
150,51 m²
4
Stan deweloperski brutto
590 000 zł 3 920 zł/m²
Zdjęcie 1 projektu Dom szkieletowy Open Sky 195 HHT1029
145,04 m²
4
Stan deweloperski brutto
940 300 zł 6 483 zł/m²
Zdjęcie 1 projektu Dom prefabrykowany P.2 HPK1001
159,18 m²
5
Stan deweloperski brutto
847 000 zł 5 321 zł/m²
Zdjęcie 1 projektu Dom prefabrykowany P.1 z okapem HPK1000
139,44 m²
3
Stan deweloperski brutto
734 000 zł 5 264 zł/m²
Zdjęcie 1 projektu Dom prefabrykowany P.1 bez okapu HPK1012
139,44 m²
3
Stan deweloperski brutto
712 400 zł 5 109 zł/m²
Zdjęcie 1 projektu Dom prefabrykowany P.5 HPK1004
138,67 m²
5
Stan deweloperski brutto
787 200 zł 5 677 zł/m²

Dodatki do projektu

Dodatki możesz zamówić w koszyku lub telefonicznie u naszego Doradcy.

Czym jest OZE (Odnawialne Źródło Energii)?

Ikona

Bestseller

Kosztorys

550 zł

Ikona

Bestseller

Dodatkowy egzemplarz projektu

600 zł

Ikona

Bestseller

Oze

Wentylacja mechaniczna z rekuperacją

1 200 zł

Ikona

Oze

Pompa ciepła + ogrzewanie podłogowe

800 zł

Ikona

Przydomowa oczyszczalnia ścieków

500 zł

Ikona

Projekt zbiornika na ścieki sanitarne

300 zł

Opis projektu domu
KA49

DomProjekt domu KA49

Nowoczesny dom parterowy z dwustanowiskowym garażem w bryle budynku to idealna propozycja dla 3- lub 4-osobowej rodziny, która poszukuje komfortu i funkcjonalności zamkniętych na jednym poziomie. Przestronne wnętrze i przemyślany układ pomieszczeń gwarantują wygodę codziennego życia w eleganckim stylu.

WyróżnieniaCo wyróżnia ten dom?

  • Otwarta strefa dzienna – Przestronny salon połączony z kuchnią i jadalnią sprzyja integracji i wspólnemu spędzaniu czasu.
  • Funkcjonalna kuchnia z narożnym oknem – Nowoczesne przeszklenie doskonale doświetla blat roboczy, a przylegająca spiżarnia ułatwia organizację i przechowywanie zapasów.
  • Dwustanowiskowy garaż w bryle budynku – Zapewnia wygodę i bezpieczeństwo dla dwóch samochodów oraz oferuje dodatkową przestrzeń do przechowywania.
  • Komfort życia na jednym poziomie – Brak schodów sprawia, że dom jest bezpieczny i wygodny dla rodzin z małymi dziećmi oraz osób starszych.

ArchitekturaArchitektura i wygląd

Projekt KA49 wyróżnia się nowoczesną architekturą i prostą, parterową bryłą zwieńczoną płaskim dachem. To rozwiązanie nadaje budynkowi minimalistyczny i elegancki charakter, a prosta forma przekłada się na efektywność budowy. W bryłę budynku harmonijnie wkomponowano dwustanowiskowy garaż, który tworzy spójną całość z częścią mieszkalną. Duże przeszklenia otwierają dom na otaczający ogród i zapewniają doskonałe doświetlenie wnętrz przez cały dzień.

WnętrzeWnętrze i układ funkcjonalny

Dom oferuje 149,62 m² starannie zaplanowanej powierzchni użytkowej. Wewnątrz znajdują się 3 pokoje, przestronna strefa dzienna oraz jedna komfortowa łazienka, tworząc idealne warunki do życia.

Parter – strefa dzienna i nocna

Całe życie domu toczy się na jednej, wygodnej kondygnacji. Po wejściu przez wiatrołap znajdujemy się w otwartej i jasnej przestrzeni dziennej, która jest sercem domu. Składa się na nią imponujący salon z jadalnią z bezpośrednim wyjściem na taras oraz funkcjonalna, otwarta kuchnia. Komfort gotowania podnosi praktyczna spiżarnia zlokalizowana tuż obok.

W dalszej części domu zaprojektowano wyraźnie oddzieloną strefę prywatną, gwarantującą spokój i intymność. Znajdują się tu dwie ustawne sypialnie, duża, wspólna łazienka oraz pojemna garderoba. Uzupełnieniem programu funkcjonalnego jest duże pomieszczenie gospodarcze oraz bezpośrednie przejście do dwustanowiskowego garażu, co znacznie podnosi komfort codziennego użytkowania.

Czytaj więcej

Informacje dodatkowe

Projekt stanowi aktualną, pełną dokumentację zawierającą część architektoniczno-budowlaną, konstrukcyjno-wykonawczą, instalacji wewnętrznych, elektrycznych, charakterystykę energetyczną oraz uprawnienia projektantów. Dokumentacja zabezpieczona jest specjalną plombą, której usunięcie uniemożliwi jej zwrot oraz wymianę. Zapraszamy do zamówienia przed zakupem rysunków szczegółowych projektu oraz analizy posiadanej działki w celu upewnienia się, że wybrany projekt domu idealnie na nią pasuje.

Czytaj więcej

Polecani producenci

Kompletne systemy rekuperacji

tło producenta

Alnor

Dowiedz się więcej

Dachy modułowe ze stali

tło producenta

Budmat

Poznaj szczegóły oferty

Prefabrykowane konstrukcje dachowe

tło producenta

WIĄZAR POLSKA

Zobacz więcej
Zobacz więcej

Społeczność projektu domu
KA49 w budowie

Dołącz do społeczności osób, które budują ten dom lub są zainteresowane jego budową.

  • Oglądaj zdjęcia z budowy
  • Zadawaj pytania
  • Wymieniaj się doświadczeniami

Opinie o projekcie domu
KA49

Opinie niezweryfikowane

Bądź pierwszy!
Ten projekt nie ma jeszcze opinii, bądź pierwszy!

ikona Dodaj opinię o projekcie

ASYSTENT WYBORU PROJEKTU

Szukasz idealnego projektu? Znajdziemy go dla Ciebie!

Doradca na podstawie Twoich wskazówek przygotuje spersonalizowaną listę projektów

Graficzne opracowanie rzutów poglądowych widocznych na karcie projektu zostało wykonane przez Extradom.pl. Prezentowane przez Extradom.pl wizualizacje wykonane zostały przez autora projektu i należy poczytywać je jedynie za przykład i propozycję wykończenia, wizję architektoniczną autora projektu. Ostateczne wykończenie budynku może nastąpić na wiele sposobów. Szczegółowe rozwiązania zastosowane w oferowanej dokumentacji - w tym również ilość, lokalizacje i wygląd okien, drzwi, kominów - mogą w niewielkim stopniu różnić się od prezentowanej wizualizacji budynku.

Extradom.pl Spółka z ograniczoną odpowiedzialnością z siedzibą przy ul. Jaworskiej 13, 53-612 Wrocław, wpisana do rejestru przedsiębiorców Krajowego Rejestru Sądowego przez Sąd Rejonowy dla Wrocławia-Fabrycznej we Wrocławiu, VI Wydział Gospodarczy Krajowego Rejestru Sądowego do pod numerem KRS 0000648746, numer NIP 895-17-18-333, o kapitale zakładowym 708 150,00 zł uprzejmie informuje, iż poprzez serwis Extradom.pl umożliwia m.in. zapoznanie się przez konsumentów z ofertą handlową Partnerów Extradom.pl, którzy stosują metody budowy domów przy wykorzystaniu różnego rodzaju technologie prefabrykacji bądź modułowe (tzw. „Gotowe domy”).

Extradom.pl nie prowadzi jednakże sprzedaży ani nie oferuje usług polegających na doradztwie finansowym, prawnym ani podatkowym w zakresie inwestycji realizowanych w technologiach tzw. „Gotowych domów”. Informacje prezentowane w serwisie Extradom.pl dotyczące Partnerów Extradom.pl oferujących realizację inwestycji w technologiach „Gotowych domów” lub podobnych mają charakter informacyjny i reklamowy.

Prezentowane w serwisie Extradom.pl informacje dotyczące stosowanych przez Partnerów metod budowy domów w technologii prefabrykacji bądź modułowej pochodzą od Partnerów Extradom.pl.

Extradom.pl sp. z o.o. jedynie umożliwia nawiązanie kontaktu przez Użytkownika z Partnerem Extradom.pl stosującym tego rodzaju technologie budowy domów i nie jest stroną umowy o roboty budowlane zawieranej przez Użytkownika Extradom.pl z Partnerem Extradom.pl.

REKLAMA
Zamknij