👉 Wiosenne rabaty + karta allegro 200 zł! 🔥

Koniec oferty za:

0dni

00godz.

00min.

00sek.

Sprawdź

Projekt domu Ka26 war.1 PKT1139

Zapisz Dodano!
Porównaj Dodano!
ikona Pobierz i drukuj
Dodaj opinię

Warstwy

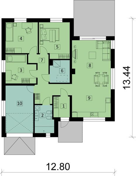
Rzut parteru

Powierzchnia (m²)
Tooltip
Powierzchnia pomieszczenia
to ta, z której faktycznie możesz korzystać – skosy i niskie części poddasza są liczone częściowo lub wcale.
  1. 100% dla wysokości powyżej 2,2 m,
  2. 50% dla wysokości 1,4–2,2 m,
  3. nie liczymy poniżej 1,4 m.

Powierzchnia podłogi
Liczymy po obrysie pomieszczenia, bez względu na jego wysokość/skosy. Jeśli nie ma skosów to powierzchnia podłogi i pomieszczenia jest taka sama.
pomieszczenia i podłogi
podłogi
1. Wiatrołap
4,41
2. Łazienka
6,70
3. Pokój
10,39
4. Pokój
12,86
5. Pokój
13,77
6. Pomieszczenie gospodarcze
5,66
7. Korytarz
12,70
8. Pokój dzienny + jadalnia
27,28
9. Kuchnia
10,96
10. Garaż jednostanowiskowy
17,01
Razem
121,74
121,74

    Usytuowanie na działce

    Czy ten projekt pasuje na
    Twoją działkę?

    Chętnie to sprawdzimy!

    Dowiedz się:

    • czy zmieści się na niej wybrany przez Ciebie dom
    • jakie parametry musi spełniać dom według miejscowego planu zagospodarowania lub warunków zabudowy (np. kąt nachylenia i typ dachu, liczba kondygnacji itp.
    • jakie inne projekty pasują na Twoją działkę – znajdziemy je dla Ciebie!

Pow. użytkowa

99,07 m²

Pokoje

3

Łazienki i WC

1

Garaż

1

Min. szer. i dł. działki

20,8 x 21,44 m

Kąt dachu

30°

Szacunkowy koszt SSZ

281 000 zł
Szacunkowy koszt budowy do stanu surowego zamkniętego (SSZ) metodą gospodarczą - większość prac wykonuje inwestor.

Konstrukcja

Murowana
więcej
Zapisz Dodano!
Porównaj Dodano!
ikona Pobierz i drukuj

Ka26 war.1 - PKT1139

ikona 99,07 m²
Powierzchnia użytkowa
ikona3
Pokoje (bez salonu)
ikona 1
Łazienki (z toaletami)
ikona 1
Liczba stanowisk garażowych
(z wiatą garażową)
ikona
Konstrukcja: Murowana

Promocja

od 05.05.2026 do 07.05.2026

0dni

00 00 00

4 199 zł

4 649 zł - cena regularna
Tooltip

Cena regularna obowiązywała od 30.04.2026 do 05.05.2026

4 149 zł - najniższa cena z 30 dni przed obniżką

Projekt jest dostępny

Gwarancja najniższej ceny
ikona
Darmowa dostawa
Paczkomaty, kurier
ikona
100 dni na wymianę,
30 dni na zwrot
ikona Zyskaj najwięcej! Extradodatki GRATIS:

15% rabatu do LEROY MERLIN

10% rabatu w CASTORAMIE

16% rabatu w SELSEY

Pakiet Formalności 2026

Przydatne Extradodatki

Poradnik Dach Solarny

ikona Co zawiera projekt?
  • Projekt zgodny z WT2021
  • Bezpłatne pozwolenie na zmiany
  • Charakterystyka energetyczna
Konsultant
71 715 20 60

pon.-pt. 8-21, sob. 9-17

Szukasz wykonawcy godnego zaufania?
Zleć budowę w Extradom.pl!

  • Z góry znasz koszt budowy domu
  • Dom odbierasz zgodnie z ustalonym harmonogramem - nawet w 6 miesięcy
  • Zabezpiecza Cię jedna kompleksowa umowa z jednym wykonawcą
  • Otrzymujesz nawet 30-letnią gwarancję na konstrukcję domu
  • Oszczędzasz swój czas dzięki pewnej i kompletnej usłudze
  • Odbiór techniczny GRATIS - Gwarantujemy najwyższą jakość
Cena brutto stanu
deweloperskiego od
Tooltip
Cena brutto stanu deweloperskiego od 4 629 do 5 979 zł/m2.
Cena jest uzależniona m.in. od lokalizacji, wybranej technologii, kubatury budynku, skomplikowania projektu i ewentualnych zmian, na które zdecyduje się inwestor.
Cena za m2 powierzchni netto, czyli wszystkich pomieszczeń mierzonych na wysokości podłogi.
4 629 zł/m2
Dowiedz się więcej
Konsultant Masz pytania?
Zadzwoń
71 715 20 09

pon.-pt. 8-19

Parter - 121,74 m²

Parter projektu Ka26 war.1

Zapytaj, co możesz zmienić

Powierzchnia (m²)
Tooltip
Powierzchnia pomieszczenia
to ta, z której faktycznie możesz korzystać – skosy i niskie części poddasza są liczone częściowo lub wcale.
  1. 100% dla wysokości powyżej 2,2 m,
  2. 50% dla wysokości 1,4–2,2 m,
  3. nie liczymy poniżej 1,4 m.

Powierzchnia podłogi
Liczymy po obrysie pomieszczenia, bez względu na jego wysokość/skosy. Jeśli nie ma skosów to powierzchnia podłogi i pomieszczenia jest taka sama.
pomieszczenia i podłogi
podłogi
1. Wiatrołap
4,41
2. Łazienka
6,70
3. Pokój
10,39
4. Pokój
12,86
5. Pokój
13,77
6. Pomieszczenie gospodarcze
5,66
7. Korytarz
12,70
8. Pokój dzienny + jadalnia
27,28
9. Kuchnia
10,96
10. Garaż jednostanowiskowy
17,01
Razem
121,74
121,74

Natychmiast, otrzymasz PDF-y
z rzutami wszystkich kondygnacji

Zamów rysunki szczegółowe

Zapoznaj się ze szczegółowymi rysunkami rzutów kondygnacji w PDF dla tego projektu.

Warianty projektu (2)

PROMOCJA
Projekt domu KA26
KA26
Dodano!
Dodano!
99,23 m²
3
1
1

4 199 zł

4 649 zł

Tooltip

Cena regularna

4 149 zł najniższa cena
Tooltip

Najniższa cena z 30 dni
przed obniżką

PROMOCJA
Projekt domu Ka26 war.1 Sz
Ka26 war.1 Sz
Dodano!
Dodano!
99,07 m²
3
1
1

4 499 zł

4 949 zł

Tooltip

Cena regularna

4 449 zł najniższa cena
Tooltip

Najniższa cena z 30 dni
przed obniżką

Podobne projekty (159)

Zobacz wszystkie
NIŻSZA CENA 🔥
Zdjęcie 1 projektu Fistaszek 3 BSA2180
Fistaszek 3
Dodano!
Dodano!
89,67 m²
2
1
1

4 749 zł

5 249 zł

Tooltip

Cena regularna

4 749 zł najniższa cena
Tooltip

Najniższa cena z 30 dni
przed obniżką

NIŻSZA CENA 🔥
Zdjęcie 1 projektu Aloes WOF1149
Aloes
Dodano!
Dodano!
100 m²
3
2
0

3 899 zł

4 099 zł

Tooltip

Cena regularna

3 899 zł najniższa cena
Tooltip

Najniższa cena z 30 dni
przed obniżką

NIŻSZA CENA 🔥
Zdjęcie 1 projektu Blanka (1618) KRD2768
Blanka (1618)
Dodano!
Dodano!
99,50 m²
3
2
1

3 840 zł

4 190 zł

Tooltip

Cena regularna

3 840 zł najniższa cena
Tooltip

Najniższa cena z 30 dni
przed obniżką

NIŻSZA CENA 🔥
Zdjęcie 1 projektu Wspaniały 2 WAH2021
Wspaniały 2
Dodano!
Dodano!
102,90 m²
3
2
0

5 112 zł

6 390 zł

Tooltip

Cena regularna

5 112 zł najniższa cena
Tooltip

Najniższa cena z 30 dni
przed obniżką

NIŻSZA CENA 🔥
Zdjęcie 1 projektu Wspaniały 3 WAH2022
Wspaniały 3
Dodano!
Dodano!
107,36 m²
3
2
0

5 112 zł

6 390 zł

Tooltip

Cena regularna

5 112 zł najniższa cena
Tooltip

Najniższa cena z 30 dni
przed obniżką

NIŻSZA CENA 🔥
Zdjęcie 1 projektu Mokka 4s WOF1183
Mokka 4s
Dodano!
Dodano!
99,05 m²
3
2
0

3 899 zł

4 099 zł

Tooltip

Cena regularna

3 899 zł najniższa cena
Tooltip

Najniższa cena z 30 dni
przed obniżką

NIŻSZA CENA 🔥
Zdjęcie 1 projektu Blanka Beta (1855) KRD2991
Blanka Beta (1855)
Dodano!
Dodano!
98,90 m²
4
2
1

3 840 zł

4 190 zł

Tooltip

Cena regularna

3 840 zł najniższa cena
Tooltip

Najniższa cena z 30 dni
przed obniżką

NIŻSZA CENA 🔥
Zdjęcie 1 projektu Blanka (1758) KRD2990
Blanka (1758)
Dodano!
Dodano!
99,50 m²
3
2
1

3 840 zł

4 190 zł

Tooltip

Cena regularna

3 840 zł najniższa cena
Tooltip

Najniższa cena z 30 dni
przed obniżką

Metody i koszt budowy

Ten dom możesz budować metodą gospodarczą, systemem zleconym lub skorzystać z naszej oferty Projekt z Budową. Przy porównaniu weź pod uwagę nie tylko koszt, ale też różny zakres prac i standard wykonania.

Metoda gospodarcza

Najtańsza metoda - większość prac
budowlanych wykonuje inwestor

Stan surowy zamknięty (SSZ)

281 000 zł netto

Szacunkowy koszt materiałów na I kwartał 2026
  • Prace ziemne i fundamenty

    60 000 zł
  • Konstrukcja, strop oraz dach

    174 000 zł
  • Stolarka okienna i drzwiowa

    47 000 zł
  • Instalacje

    nie obejmuje
  • Prace wykończeniowe

    nie obejmuje
  • Możesz budować etapami, pamiętając jednak o zmianie kosztów w czasie
  • Możesz rozpocząć budowę z częścią niezbędnych środków
  • Sam ustalasz harmonogram, koordynujesz budowę i zapewniasz materiały
Czy da się obniżyć koszty budowy?
Zobacz nasz film jak obniżyć koszt budowy

Projekt z Budową

Najszybsza i najwygodniejsza metoda -
całą budowę domu realizuje jedna firma

Stan deweloperski
Gwarancja stałego kosztu budowy

Gwarancja stałego
kosztu budowy

  • Prace ziemne i fundamenty
  • Konstrukcja, strop oraz dach
  • Stolarka okienna i drzwiowa
  • Instalacje  
    Tooltip

    Obejmuje wykonanie instalacji:

    • wodno-kanalizacyjnej
    • centralnego ogrzewania
    • gazowej
    • elektrycznej
  • Prace wykończeniowe  
    Tooltip

    Prace wykończeniowe obejmują:

    • sufity i ściany wewnętrzne
    • tynki i okładziny ścian wewnętrznych
    • wylewki i posadzkę
    • ocieplenie ścian zewnętrznych i elewację

Budowa
nawet w
6mies.

  • Kompleksowa umowa i znany z góry koszt budowy
  • Logistyka, organizacja budowy i zakupy po stronie firmy budowlanej
  • Formalności i dokumentacje po stronie firmy budowlanej
  • Różne technologie budowy dopasowane do projektu i budżetu
Szczegóły i dostępne technologie
icon

Polecamy

Kosztorys

Zawiera zestawienie wszystkich potrzebnych materiałów wraz z ich cenami, uwzględnia koszty sprzętu i transportu. Z kosztorysem:

  • poznasz całkowite koszty budowy
  • zaplanujesz prace na budowie
  • łatwiej ocenisz konkurencyjność ofert podwykonawców
  • otrzymasz dokument wymagany w procesie kredytowym

Elewacje

Frontowa
Tylna
Lewa
Prawa

Usytuowanie na działce

Czy ten projekt pasuje na
Twoją działkę?

Chętnie to sprawdzimy!

Czy ten projekt pasuje na
Twoją działkę?

Chętnie to sprawdzimy!

Dowiedz się:

  • czy zmieści się na niej wybrany przez Ciebie dom
  • jakie parametry musi spełniać dom według miejscowego planu zagospodarowania lub warunków zabudowy (np. kąt nachylenia i typ dachu, liczba kondygnacji itp.
  • jakie inne projekty pasują na Twoją działkę – znajdziemy je dla Ciebie!
Autor: Projektyka

Dane techniczne projektu

Powierzchnie i wymiary Powierzchnie i wymiary

Powierzchnia użytkowa
Tooltip
Suma powierzchni wszystkich pomieszczeń mieszkalnych, pomniejszona o pow. garażu, kotłowni, strychu, piwnicy. Jest liczona w 100% dla pomieszczeń o wysokości powyżej 2,2 m, w 50% dla pomieszczeń o wys. 2,2-1,4 m i niewliczana dla niższych niż 1,4 m.

99,07 m²

Powierzchnia zabudowy
Tooltip
Powierzchnia zajmowana przez część na- oraz nadziemną budynku liczona, jako rzut pionowy budynku na działkę.

151,15 m²

Powierzchnia całkowita
Tooltip
Całkowita powierzchnia wszystkich kondygnacji budynku łącznie z elementami nośnymi, takimi jak ściany zewnętrzne (z ociepleniem), słupy, tarasy, itp.

151,15 m²

Powierzchnia dachu

214 m²

Kąt nachylenia dachu
Tooltip
Nachylenie połaci dachu głównego podawane w stopniach. Uwaga! W niektórych projektach występuje więcej niż jedno nachylenie dachu.

30°

Wysokość budynku
Tooltip
Wysokość liczona od części budynku położonej najniżej przy powierzchni terenu do najwyższego punktu dachu (kalenicy) z wyłączeniem kominów.

6,35 m

Szerokość elewacji

13,44 m

Długość elewacji

12,80 m

Min. szerokość działki
Tooltip
Najmniejsza możliwa szerokość działki niezbędna do wybudowania wybranego domu. Składa się z szerokości elewacji domu powiększonej z obu stron o 3 m dla ściany bez otworów drzwiowych/okiennych lub 4 m, dla ściany z otworami.

20,80 m

Min. długość działki
Tooltip
Najmniejsza możliwa długość działki niezbędna do wybudowania wybranego domu. Składa się z długości elewacji domu powiększonej z obu stron o 3 m dla ściany bez otworów drzwiowych/okiennych lub 4 m, dla ściany z otworami.

21,44 m

Energooszczędność Energooszczędność

Oze Czym jest OZE (Odnawialne Źródło Energii)?
Ogrzewanie główne

Gazowe - szczegóły

Dodatkowo istnieje możliwość zamówienia projektu z

Pompa ciepła + ogrzewanie podłogowe

Interesuje Cię inne źródło ogrzewania? Wyślij zapytanie lub zadzwoń do doradcy

Wentylacja

Grawitacyjna - szczegóły

Dodatkowo istnieje możliwość zamówienia projektu z

Wentylacja mechaniczna z rekuperacją

Warunki techniczne

Projekt zgody z WT 2021

Technologia i konstrukcja Technologia i konstrukcja

Konstrukcja

Murowana

PROJEKT Z BUDOWĄ Istnieje możliwość zaadaptowania tego projektu do technologii prefabrykowanej/modułowej i budowy nawet w 6 miesięcy ze stałym kosztem budowy

Dowiedz się więcej »
Opis szczegółowy

Fundamenty: ławy fundamentowe, stopy fundamentowe. Ściany zewnętrzne: gazobeton +20 cm styropianu. Strop: pas dolny dźwigara prefabrykowanego MiTek. Elewacje: tynk cienkowarstwowy, deski elewacyjne, beton architektoniczny.

Strop

Wiązary

Reklama
Okna i drzwi tarasowe

Nowoczesne okna PVC i aluminiowe WIŚNIOWSKI – doskonała izolacja, elegancki design i niezrównana trwałość.

Wiśniowski
Sprawdź parametry!
Okna dachowe

Oferujemy bezpłatne konsultacje w zakresie wszystkich rozwiązań VELUX. Wyceny, porady dotyczące doboru okien i rolet zewnętrznych - sprawdź!

Velux
Sprawdź szczegóły
Pompa ciepła

Wybierz pompę ciepła, która pasuje do Twojego domu. Niezależnie od tego, czy ustawienie wewnątrz czy na zewnątrz, pompy ciepła STIEBEL ELTRON dopasują się do każdej przestrzeni.

Stiebel
Dobierz pompę ciepła
Drzwi

Ciepłe drzwi WIŚNIOWSKI z kontrolą dostępu. Szeroka gama wzorów i kolorów.

Wiśniowski
Wybierz najlepsze
Bramy garażowe

Automatyczne bramy garażowe segmentowe i uchylne WIŚNIOWSKI na wymiar i z systemem smart home w standardzie.

Wiśniowski
Sprawdź ofertę!
Rekuperacja

Alnor - kompletny system rekuperacji. Dobierz idealne rozwiązanie dla Twojego domu!

Alnor
Dobierz rekuperator
Dach

Producent stalowych pokryć dachowych i systemów elewacyjnych. Precyzja wykonania, trwałość na lata i szybki montaż doceniany przez dekarzy. Postaw na solidny dach Budmat.

Budmat
Sprawdź ofertę
Ogrodzenie

Nowoczesne stalowe ogrodzenia Budmat - estetyka, bezpieczeństwo i trwałość na lata. Systemowe rozwiązania na wymiar, dopasowane do każdego domu.

Budmat
Sprawdź ofertę

Gotowe domy - najszybszy sposób na dom (115)

Zobacz wszystkie
  • Stan deweloperski nawet w 6 miesięcy
  • Gwarancja stałej ceny
Skonfiguruj dom
Zdjęcie 1 projektu Bergen 90 HUS1003
90,83 m²
3
Stan deweloperski brutto
429 000 zł 4 723 zł/m²
Zdjęcie 1 projektu Dom keramzytowy Atrakcyjna Stodoła wariant 2 HAK1000
99,22 m²
3
Stan deweloperski brutto
494 900 zł 4 988 zł/m²
Zdjęcie 1 projektu Dom prefabrykowany FastHome 100 HFX1031
99,59 m²
3
Stan deweloperski brutto
479 000 zł 4 810 zł/m²
Zdjęcie 1 projektu Dom prefabrykowany P.9 HPK1008
97,80 m²
4
Stan deweloperski brutto
555 900 zł 5 684 zł/m²
Zdjęcie 1 projektu Dom prefabrykowany Parterowy 100A HFX1036
100,55 m²
4
Stan deweloperski brutto
449 000 zł 4 465 zł/m²
Zdjęcie 1 projektu Dom prefabrykowany Parterowy 100B HFX1044
100,63 m²
3
Stan deweloperski brutto
449 000 zł 4 462 zł/m²
Zdjęcie 1 projektu Dom prefabrykowany E.3 HPK1019
97,13 m²
3
Stan deweloperski brutto
496 033 zł 5 107 zł/m²
Zdjęcie 1 projektu Dom keramzytowy Essenzia 110G HRK1002
95,83 m²
2
Stan deweloperski brutto
495 720 zł 5 173 zł/m²

Dodatki do projektu

Dodatki możesz zamówić w koszyku lub telefonicznie u naszego Doradcy.

Czym jest OZE (Odnawialne Źródło Energii)?

Ikona

Bestseller

Kosztorys

550 zł

Ikona

Bestseller

Dodatkowy egzemplarz projektu

600 zł

Ikona

Bestseller

Ogrzewanie podłogowe

500 zł

Ikona

Oze

Wentylacja mechaniczna z rekuperacją

1 200 zł

Ikona

Oze

Pompa ciepła + ogrzewanie podłogowe

800 zł

Ikona

Projekt zbiornika na ścieki sanitarne

300 zł

Pokaż więcej (1)

Opis projektu domu
Ka26 war.1

DomProjekt domu Ka26 war.1

Ka26 war.1 to parterowy dom w tradycyjnym stylu, zaprojektowany z myślą o komforcie 3- lub 4-osobowej rodziny. Oferuje funkcjonalny układ pomieszczeń na jednym poziomie oraz jednostanowiskowy garaż wkomponowany w bryłę budynku, tworząc spójną i praktyczną całość idealną dla osób ceniących klasyczne i sprawdzone rozwiązania.

WyróżnieniaCo wyróżnia ten dom?

  • Funkcjonalność na jednym poziomie – wszystkie pomieszczenia zlokalizowano na parterze, co zapewnia wygodną komunikację bez barier i wyraźny podział na strefę dzienną oraz prywatną.
  • Otwarta strefa dzienna z kominkiem – przestronny salon połączony z jadalnią i otwartą kuchnią tworzy serce domu, a centralnie umieszczony kominek dodaje wnętrzu ciepła i przytulnego klimatu.
  • Praktyczne zaplecze gospodarcze – garaż w bryle budynku jest połączony z domem przez pomieszczenie gospodarcze, co ułatwia codzienne czynności i organizację przestrzeni.
  • Bezpośrednie wyjście na taras – z salonu można wyjść bezpośrednio na taras, co naturalnie łączy wnętrze z ogrodem i stwarza idealne miejsce do relaksu na świeżym powietrzu.

ArchitekturaArchitektura i wygląd

Projekt Ka26 war.1 charakteryzuje się tradycyjną, zwartą bryłą przykrytą wielospadowym dachem z klasycznym okapem, co nadaje mu ponadczasowy i elegancki wygląd. Jednostanowiskowy garaż został zgrabnie wkomponowany w strukturę budynku, tworząc estetyczną i harmonijną kompozycję. Stylistyka domu nawiązuje do klasycznych wzorców, dzięki czemu doskonale wpisze się w każde otoczenie, stanowiąc synonim domowego ciepła i solidności.

WnętrzeWnętrze i układ funkcjonalny

Dom oferuje 99,07 m² starannie zaplanowanej powierzchni użytkowej, na której rozmieszczono 3 pokoje oraz jedną łazienkę. Układ funkcjonalny został zaprojektowany z myślą o maksymalnej wygodzie mieszkańców.

Parter – strefa dzienna i nocna

Wnętrze domu zostało czytelnie podzielone na dwie główne strefy. Po wejściu przez wiatrołap znajdujemy się w części dziennej, której centrum stanowi przestronny pokój dzienny z jadalnią, kominkiem i wyjściem na taras. Jest on płynnie połączony z otwartą kuchnią, co sprzyja integracji życia rodzinnego.

Osobny korytarz prowadzi do zacisznej strefy prywatnej. Znajduje się tu komfortowy pokój, który doskonale sprawdzi się jako sypialnia lub gabinet, oraz w pełni wyposażona, duża łazienka. Program funkcjonalny uzupełnia zaplecze gospodarcze, składające się z garażu oraz przyległego do niego pomieszczenia gospodarczego, które może pełnić funkcję kotłowni i schowka.

Czytaj więcej

Informacje dodatkowe

Dokumentacja zabezpieczona jest specjalną plombą, której usunięcie uniemożliwi jej zwrot oraz wymianę. Zapraszamy do zamówienia przed zakupem rysunków szczegółowych projektu oraz analizy posiadanej działki w celu upewnienia się, że wybrany projekt domu idealnie na nią pasuje.

Czytaj więcej

Polecani producenci

Kompletne systemy rekuperacji

tło producenta

Alnor

Dowiedz się więcej

Dachy modułowe ze stali

tło producenta

Budmat

Poznaj szczegóły oferty

Prefabrykowane konstrukcje dachowe

tło producenta

WIĄZAR POLSKA

Zobacz więcej
Zobacz więcej

Społeczność projektu domu
Ka26 war.1 w budowie

Dołącz do społeczności osób, które budują ten dom lub są zainteresowane jego budową.

  • Oglądaj zdjęcia z budowy
  • Zadawaj pytania
  • Wymieniaj się doświadczeniami

Opinie o projekcie domu
Ka26 war.1

Opinie niezweryfikowane

Bądź pierwszy!
Ten projekt nie ma jeszcze opinii, bądź pierwszy!

ikona Dodaj opinię o projekcie

ASYSTENT WYBORU PROJEKTU

Szukasz idealnego projektu? Znajdziemy go dla Ciebie!

Doradca na podstawie Twoich wskazówek przygotuje spersonalizowaną listę projektów

Graficzne opracowanie rzutów poglądowych widocznych na karcie projektu zostało wykonane przez Extradom.pl. Prezentowane przez Extradom.pl wizualizacje wykonane zostały przez autora projektu i należy poczytywać je jedynie za przykład i propozycję wykończenia, wizję architektoniczną autora projektu. Ostateczne wykończenie budynku może nastąpić na wiele sposobów. Szczegółowe rozwiązania zastosowane w oferowanej dokumentacji - w tym również ilość, lokalizacje i wygląd okien, drzwi, kominów - mogą w niewielkim stopniu różnić się od prezentowanej wizualizacji budynku.

Extradom.pl Spółka z ograniczoną odpowiedzialnością z siedzibą przy ul. Jaworskiej 13, 53-612 Wrocław, wpisana do rejestru przedsiębiorców Krajowego Rejestru Sądowego przez Sąd Rejonowy dla Wrocławia-Fabrycznej we Wrocławiu, VI Wydział Gospodarczy Krajowego Rejestru Sądowego do pod numerem KRS 0000648746, numer NIP 895-17-18-333, o kapitale zakładowym 708 150,00 zł uprzejmie informuje, iż poprzez serwis Extradom.pl umożliwia m.in. zapoznanie się przez konsumentów z ofertą handlową Partnerów Extradom.pl, którzy stosują metody budowy domów przy wykorzystaniu różnego rodzaju technologie prefabrykacji bądź modułowe (tzw. „Gotowe domy”).

Extradom.pl nie prowadzi jednakże sprzedaży ani nie oferuje usług polegających na doradztwie finansowym, prawnym ani podatkowym w zakresie inwestycji realizowanych w technologiach tzw. „Gotowych domów”. Informacje prezentowane w serwisie Extradom.pl dotyczące Partnerów Extradom.pl oferujących realizację inwestycji w technologiach „Gotowych domów” lub podobnych mają charakter informacyjny i reklamowy.

Prezentowane w serwisie Extradom.pl informacje dotyczące stosowanych przez Partnerów metod budowy domów w technologii prefabrykacji bądź modułowej pochodzą od Partnerów Extradom.pl.

Extradom.pl sp. z o.o. jedynie umożliwia nawiązanie kontaktu przez Użytkownika z Partnerem Extradom.pl stosującym tego rodzaju technologie budowy domów i nie jest stroną umowy o roboty budowlane zawieranej przez Użytkownika Extradom.pl z Partnerem Extradom.pl.

REKLAMA
Zamknij