👉 Wiosenne rabaty + karta allegro 200 zł! 🔥

Koniec oferty za:

00godz.

00min.

00sek.

Sprawdź

Projekt domu Indiana BBE1025

Zapisz Dodano!
Porównaj Dodano!
ikona Pobierz i drukuj
4.0 2 opinie

Warstwy

Rzut parteru

Powierzchnia (m²)
Tooltip
Powierzchnia pomieszczenia
to ta, z której faktycznie możesz korzystać – skosy i niskie części poddasza są liczone częściowo lub wcale.
  1. 100% dla wysokości powyżej 2,2 m,
  2. 50% dla wysokości 1,4–2,2 m,
  3. nie liczymy poniżej 1,4 m.

Powierzchnia podłogi
Liczymy po obrysie pomieszczenia, bez względu na jego wysokość/skosy. Jeśli nie ma skosów to powierzchnia podłogi i pomieszczenia jest taka sama.
pomieszczenia i podłogi
podłogi
1. Wiatrołap
5,90
2. Pokój dzienny + jadalnia
34,70
3. Kuchnia
9,10
4. Korytarz
12,40
5. Wc
1,50
6. Łazienka
5,90
7. Pomieszczenie gospodarcze
2,10
8. Pokój
10
9. Pokój
13,80
10. Pokój
18,80
11. Pokój
12,70
12. Kotłownia
5,20
13. Garaż dwustanowiskowy
33,10
Razem
165,20
165,20

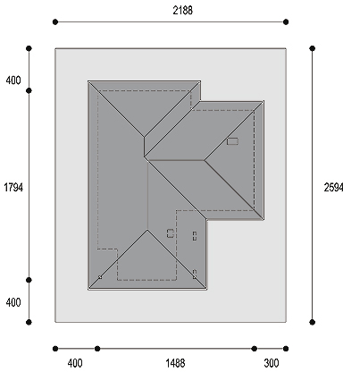
    Usytuowanie na działce

    Czy ten projekt pasuje na
    Twoją działkę?

    Chętnie to sprawdzimy!

    Dowiedz się:

    • czy zmieści się na niej wybrany przez Ciebie dom
    • jakie parametry musi spełniać dom według miejscowego planu zagospodarowania lub warunków zabudowy (np. kąt nachylenia i typ dachu, liczba kondygnacji itp.
    • jakie inne projekty pasują na Twoją działkę – znajdziemy je dla Ciebie!

Pow. użytkowa

124,80 m²

Pokoje

4

Łazienki i WC

2

Garaż

2

Kąt dachu

30°

Wysokość budynku

6,43 m

Powierzchnia zabudowy

201,40 m²

Min. szer. i dł. działki

21,88 x 25,94 m

Konstrukcja

Murowana

Szacunkowy koszt SSZ
netto na I kwartał 2026

377 000 zł

Pokaż więcej parametrów

Zapisz Dodano!
Porównaj Dodano!
ikona Pobierz i drukuj

Indiana - BBE1025

ikona 124,80 m²
Powierzchnia użytkowa
ikona4
Pokoje (bez salonu)
ikona 2
Łazienki (z toaletami)
ikona 2
Liczba stanowisk garażowych
(z wiatą garażową)
ikona
Konstrukcja: Murowana

4 400 zł

Projekt jest dostępny

Gwarancja najniższej ceny
ikona
Darmowa dostawa
Paczkomaty, kurier
ikona
100 dni na wymianę,
30 dni na zwrot
ikona Zyskaj najwięcej! Extradodatki GRATIS:

15% rabatu do LEROY MERLIN

10% rabatu w CASTORAMIE

16% rabatu w SELSEY

Kurs wideo dla planujących budowę

Pakiet Formalności 2026

Przydatne Extradodatki

Poradnik Dach Solarny

ikona Co zawiera projekt?
  • Projekt zgodny z WT2021
  • Bezpłatne pozwolenie na zmiany
  • Charakterystyka energetyczna
Konsultant
71 715 20 60

pon.-pt. 8-21, sob. 9-17

Szukasz wykonawcy godnego zaufania?
Zleć budowę w Extradom.pl!

  • Z góry znasz koszt budowy domu
  • Dom odbierasz zgodnie z ustalonym harmonogramem - nawet w 6 miesięcy
  • Zabezpiecza Cię jedna kompleksowa umowa z jednym wykonawcą
  • Otrzymujesz nawet 30-letnią gwarancję na konstrukcję domu
  • Oszczędzasz swój czas dzięki pewnej i kompletnej usłudze
  • Odbiór techniczny GRATIS - Gwarantujemy najwyższą jakość
Cena brutto stanu
deweloperskiego od
Tooltip
Cena brutto stanu deweloperskiego od 4 529 do 5 829 zł/m2.
Cena jest uzależniona m.in. od lokalizacji, wybranej technologii, kubatury budynku, skomplikowania projektu i ewentualnych zmian, na które zdecyduje się inwestor.
Cena za m2 powierzchni netto, czyli wszystkich pomieszczeń mierzonych na wysokości podłogi.
4 529 zł/m2
Dowiedz się więcej
Konsultant Masz pytania?
Zadzwoń
71 715 20 09

pon.-pt. 8-19

Parter - 165,20 m²

Parter projektu Indiana

Zapytaj, co możesz zmienić

Powierzchnia (m²)
Tooltip
Powierzchnia pomieszczenia
to ta, z której faktycznie możesz korzystać – skosy i niskie części poddasza są liczone częściowo lub wcale.
  1. 100% dla wysokości powyżej 2,2 m,
  2. 50% dla wysokości 1,4–2,2 m,
  3. nie liczymy poniżej 1,4 m.

Powierzchnia podłogi
Liczymy po obrysie pomieszczenia, bez względu na jego wysokość/skosy. Jeśli nie ma skosów to powierzchnia podłogi i pomieszczenia jest taka sama.
pomieszczenia i podłogi
podłogi
1. Wiatrołap
5,90
2. Pokój dzienny + jadalnia
34,70
3. Kuchnia
9,10
4. Korytarz
12,40
5. Wc
1,50
6. Łazienka
5,90
7. Pomieszczenie gospodarcze
2,10
8. Pokój
10
9. Pokój
13,80
10. Pokój
18,80
11. Pokój
12,70
12. Kotłownia
5,20
13. Garaż dwustanowiskowy
33,10
Razem
165,20
165,20

Natychmiast, otrzymasz PDF-y
z rzutami wszystkich kondygnacji

Zamów rysunki szczegółowe

Zapoznaj się ze szczegółowymi rysunkami rzutów kondygnacji w PDF dla tego projektu.

Podobne projekty (266)

Zobacz wszystkie
Nowość
Zdjęcie 1 projektu NewHouse 771 w3 KRZ1156
NewHouse 771 w3
Dodano!
Dodano!
116,98 m²
3
2
2

5 890 zł

Zdjęcie 1 projektu NewHouse 771 KRZ1147
NewHouse 771
Dodano!
Dodano!
133,61 m²
4
2
2

5 890 zł

NIŻSZA CENA 🔥
Zdjęcie 1 projektu Adela Prima (1944) KRD3078
Adela Prima (1944)
Dodano!
Dodano!
121,50 m²
4
2
2

4 140 zł

4 490 zł

Tooltip

Cena regularna

4 140 zł najniższa cena
Tooltip

Najniższa cena z 30 dni
przed obniżką

NIŻSZA CENA 🔥
Zdjęcie 1 projektu Kordian (1613) KRD2763
Kordian (1613)
Dodano!
Dodano!
133,30 m²
4
2
2

4 540 zł

4 890 zł

Tooltip

Cena regularna

4 540 zł najniższa cena
Tooltip

Najniższa cena z 30 dni
przed obniżką

NIŻSZA CENA 🔥
Zdjęcie 1 projektu Dom na Platynowej WBF1004
Dom na Platynowej
Dodano!
Dodano!
119,80 m²
3
2
2

3 999 zł

4 499 zł

Tooltip

Cena regularna

3 999 zł najniższa cena
Tooltip

Najniższa cena z 30 dni
przed obniżką

NIŻSZA CENA 🔥
Zdjęcie 1 projektu Kordian Alfa (1679) KRD2821
Kordian Alfa (1679)
Dodano!
Dodano!
115 m²
4
2
2

4 140 zł

4 490 zł

Tooltip

Cena regularna

4 140 zł najniższa cena
Tooltip

Najniższa cena z 30 dni
przed obniżką

Zdjęcie 1 projektu NewHouse 771 w1 KRZ1150
NewHouse 771 w1
Dodano!
Dodano!
133,61 m²
4
2
2

5 890 zł

NIŻSZA CENA 🔥
Zdjęcie 1 projektu Przejrzysty D27 wariant I WWB1052
Przejrzysty D27 wariant I
Dodano!
Dodano!
129,99 m²
3
2
2

4 649 zł

4 949 zł

Tooltip

Cena regularna

4 649 zł najniższa cena
Tooltip

Najniższa cena z 30 dni
przed obniżką

Metody i koszt budowy

Ten dom możesz budować metodą gospodarczą, systemem zleconym lub skorzystać z naszej oferty Projekt z Budową. Przy porównaniu weź pod uwagę nie tylko koszt, ale też różny zakres prac i standard wykonania.

Metoda gospodarcza

Najtańsza metoda - większość prac
budowlanych wykonuje inwestor

Stan surowy zamknięty (SSZ)

377 000 zł netto

Szacunkowy koszt materiałów na I kwartał 2026
  • Prace ziemne i fundamenty

    81 000 zł
  • Konstrukcja, strop oraz dach

    219 000 zł
  • Stolarka okienna i drzwiowa

    77 000 zł
  • Instalacje

    nie obejmuje
  • Prace wykończeniowe

    nie obejmuje
  • Możesz budować etapami, pamiętając jednak o zmianie kosztów w czasie
  • Możesz rozpocząć budowę z częścią niezbędnych środków
  • Sam ustalasz harmonogram, koordynujesz budowę i zapewniasz materiały
Czy da się obniżyć koszty budowy?
Zobacz nasz film jak obniżyć koszt budowy

Projekt z Budową

Najszybsza i najwygodniejsza metoda -
całą budowę domu realizuje jedna firma

Stan deweloperski
Gwarancja stałego kosztu budowy

Gwarancja stałego
kosztu budowy

  • Prace ziemne i fundamenty
  • Konstrukcja, strop oraz dach
  • Stolarka okienna i drzwiowa
  • Instalacje  
    Tooltip

    Obejmuje wykonanie instalacji:

    • wodno-kanalizacyjnej
    • centralnego ogrzewania
    • gazowej
    • elektrycznej
  • Prace wykończeniowe  
    Tooltip

    Prace wykończeniowe obejmują:

    • sufity i ściany wewnętrzne
    • tynki i okładziny ścian wewnętrznych
    • wylewki i posadzkę
    • ocieplenie ścian zewnętrznych i elewację

Budowa
nawet w
6mies.

  • Kompleksowa umowa i znany z góry koszt budowy
  • Logistyka, organizacja budowy i zakupy po stronie firmy budowlanej
  • Formalności i dokumentacje po stronie firmy budowlanej
  • Różne technologie budowy dopasowane do projektu i budżetu
Szczegóły i dostępne technologie
icon

Polecamy

Kosztorys

Zawiera zestawienie wszystkich potrzebnych materiałów wraz z ich cenami, uwzględnia koszty sprzętu i transportu. Z kosztorysem:

  • poznasz całkowite koszty budowy
  • zaplanujesz prace na budowie
  • łatwiej ocenisz konkurencyjność ofert podwykonawców
  • otrzymasz dokument wymagany w procesie kredytowym

Elewacje

Frontowa
Tylna
Lewa
Prawa

Usytuowanie na działce

Czy ten projekt pasuje na
Twoją działkę?

Chętnie to sprawdzimy!

Czy ten projekt pasuje na
Twoją działkę?

Chętnie to sprawdzimy!

Dowiedz się:

  • czy zmieści się na niej wybrany przez Ciebie dom
  • jakie parametry musi spełniać dom według miejscowego planu zagospodarowania lub warunków zabudowy (np. kąt nachylenia i typ dachu, liczba kondygnacji itp.
  • jakie inne projekty pasują na Twoją działkę – znajdziemy je dla Ciebie!
Autor: Dompasja

Dane techniczne projektu

Powierzchnie i wymiary Powierzchnie i wymiary

Powierzchnia użytkowa
Tooltip
Suma powierzchni wszystkich pomieszczeń mieszkalnych, pomniejszona o pow. garażu, kotłowni, strychu, piwnicy. Jest liczona w 100% dla pomieszczeń o wysokości powyżej 2,2 m, w 50% dla pomieszczeń o wys. 2,2-1,4 m i niewliczana dla niższych niż 1,4 m.

124,80 m²

Powierzchnia zabudowy
Tooltip
Powierzchnia zajmowana przez część na- oraz nadziemną budynku liczona, jako rzut pionowy budynku na działkę.

201,40 m²

Kubatura netto
Tooltip
Zazwyczaj jest to suma kubatur (objętości) pomieszczeń budynku, bez strychu, liczonych po zewnętrznym obrysie murów (z ociepleniem).

446 m³

Kubatura brutto
Tooltip
Zazwyczaj jest to suma kubatur (objętości) wszystkich pomieszczeń budynku, liczonych po zewnętrznym obrysie murów (z ociepleniem).

1 087 m³

Kąt nachylenia dachu
Tooltip
Nachylenie połaci dachu głównego podawane w stopniach. Uwaga! W niektórych projektach występuje więcej niż jedno nachylenie dachu.

30°

Wysokość budynku
Tooltip
Wysokość liczona od części budynku położonej najniżej przy powierzchni terenu do najwyższego punktu dachu (kalenicy) z wyłączeniem kominów.

6,43 m

Szerokość elewacji

14,88 m

Długość elewacji

17,94 m

Min. szerokość działki
Tooltip
Najmniejsza możliwa szerokość działki niezbędna do wybudowania wybranego domu. Składa się z szerokości elewacji domu powiększonej z obu stron o 3 m dla ściany bez otworów drzwiowych/okiennych lub 4 m, dla ściany z otworami.

21,88 m

Min. długość działki
Tooltip
Najmniejsza możliwa długość działki niezbędna do wybudowania wybranego domu. Składa się z długości elewacji domu powiększonej z obu stron o 3 m dla ściany bez otworów drzwiowych/okiennych lub 4 m, dla ściany z otworami.

25,94 m

Energooszczędność Energooszczędność

Oze Czym jest OZE (Odnawialne Źródło Energii)?
Ogrzewanie główne

Gazowe - szczegóły

Interesuje Cię inne źródło ogrzewania? Wyślij zapytanie lub zadzwoń do doradcy

Wentylacja

Grawitacyjna - szczegóły

Warunki techniczne

Projekt zgody z WT 2021

Technologia i konstrukcja Technologia i konstrukcja

Konstrukcja

Murowana

PROJEKT Z BUDOWĄ Istnieje możliwość zaadaptowania tego projektu do technologii prefabrykowanej/modułowej i budowy nawet w 6 miesięcy ze stałym kosztem budowy

Dowiedz się więcej »
Opis szczegółowy

Ściany zewnętrzne: pustak ceramiczny + styropian (aleternatywnie silikaty, gazobeton). Strop: płyta żelbetowa. Ogrzewanie: kocioł gazowy lub na paliwo stałe - możliowść dostoswania na etapie adaptacji projektu. Dach: dachówka ceramiczny lub cementowa lub blachodachówka.

Strop

Żelbetowy

Reklama
Okna i drzwi tarasowe

Nowoczesne okna PVC i aluminiowe WIŚNIOWSKI – doskonała izolacja, elegancki design i niezrównana trwałość.

Wiśniowski
Sprawdź parametry!
Okna dachowe

Oferujemy bezpłatne konsultacje w zakresie wszystkich rozwiązań VELUX. Wyceny, porady dotyczące doboru okien i rolet zewnętrznych - sprawdź!

Velux
Sprawdź szczegóły
Pompa ciepła

Wybierz pompę ciepła, która pasuje do Twojego domu. Niezależnie od tego, czy ustawienie wewnątrz czy na zewnątrz, pompy ciepła STIEBEL ELTRON dopasują się do każdej przestrzeni.

Stiebel
Dobierz pompę ciepła
Drzwi

Ciepłe drzwi WIŚNIOWSKI z kontrolą dostępu. Szeroka gama wzorów i kolorów.

Wiśniowski
Wybierz najlepsze
Bramy garażowe

Automatyczne bramy garażowe segmentowe i uchylne WIŚNIOWSKI na wymiar i z systemem smart home w standardzie.

Wiśniowski
Sprawdź ofertę!
Rekuperacja

Alnor - kompletny system rekuperacji. Dobierz idealne rozwiązanie dla Twojego domu!

Alnor
Dobierz rekuperator
Dach

Producent stalowych pokryć dachowych i systemów elewacyjnych. Precyzja wykonania, trwałość na lata i szybki montaż doceniany przez dekarzy. Postaw na solidny dach Budmat.

Budmat
Sprawdź ofertę
Ogrodzenie

Nowoczesne stalowe ogrodzenia Budmat - estetyka, bezpieczeństwo i trwałość na lata. Systemowe rozwiązania na wymiar, dopasowane do każdego domu.

Budmat
Sprawdź ofertę

Gotowe domy - najszybszy sposób na dom (115)

Zobacz wszystkie
  • Stan deweloperski nawet w 6 miesięcy
  • Gwarancja stałej ceny
Skonfiguruj dom
Zdjęcie 1 projektu Bergen 130 HUS1002
130,40 m²
4
Stan deweloperski brutto
529 000 zł 4 057 zł/m²
Zdjęcie 1 projektu Dom prefabrykowany Parterowy 120B HFX1048
123,51 m²
4
Stan deweloperski brutto
515 000 zł 4 170 zł/m²
Zdjęcie 1 projektu Dom prefabrykowany Parterowy 120A HFX1047
122,73 m²
3
Stan deweloperski brutto
515 000 zł 4 196 zł/m²
Zdjęcie 1 projektu Dom szkieletowy Twin Smart 170 HHT1031
121,95 m²
5
Stan deweloperski brutto
1 650 700 zł 13 536 zł/m²
Zdjęcie 1 projektu Dom prefabrykowany P.3 z okapem HPK1013
121,46 m²
5
Stan deweloperski brutto
630 000 zł 5 187 zł/m²
Zdjęcie 1 projektu Dom prefabrykowany P.3 bez okapu HPK1002
121,46 m²
5
Stan deweloperski brutto
617 300 zł 5 082 zł/m²
Zdjęcie 1 projektu Dom prefabrykowany FastHome 120 HFX1033
120,04 m²
4
Stan deweloperski brutto
530 000 zł 4 415 zł/m²
Zdjęcie 1 projektu Dom szkieletowy Emily Smart 120 HHT1026
120 m²
3
Stan deweloperski brutto
592 512 zł 4 938 zł/m²

Dodatki do projektu

Dodatki możesz zamówić w koszyku lub telefonicznie u naszego Doradcy.

Ikona

Bestseller

Kosztorys

400 zł

Ikona

Bestseller

Dodatkowy egzemplarz projektu

500 zł

Opis projektu domu
Indiana

Nowoczesny dom jednorodzinny Indiana rozwiązano w formie domu parterowego. Pomieszczenia mieszkalne ułożone na planie litery L uzupełnia duży, dwustanowiskowy garaż. Ten niski, rozłożysty budynek pokrywa wielospadowy dach o niewielkim nachyleniu i wysuniętych okapach. Odpowiednie operowanie bryłą umożliwiło stworzenie pod nim zadaszonych przestrzeni, które stanowią strefę przejściową między wnętrzem a ogrodem. Gabaryty obiektu zapewnią komfort 4-5-cio osobowej rodzinie, ale jednocześnie wymagają dość dużej działki. Projekt zakłada wejście od południa, co może okazać się dobrym rozwiązaniem dla osób borykających się z problematycznym ułożeniem działki względem drogi dojazdowej. Wysunięta w stronę ulicy strefa dzienna obejmuje przestronny salon połączony z jadalnią oraz otwartą kuchnię z wyspą. Duże przeszklenia, zwłaszcza okno narożne, zapewniają dobre doświetlenie i optycznie łączą wnętrze z ogrodem. W pomieszczeniu znajduje się kominek, który może stanowić uzupełnienie podstawowej metody ogrzewania. Przeciwległa ściana jest nieco cofnięta, co zapewnia pewną niezależność salonu, a jednocześnie tworzy na tarasie zadaszone przedłużenie jadalni. Wejście do budynku, znajdujące się na wysokości kuchni, prowadzi do dużego wiatrołapu z miejscem na szafy i wieszaki. Ten łączy się z garażem i bezpośrednio z pokojem dziennym; znaczne wysunięcie go przed lico ściany, zaznacza granicę między wspólną a prywatną częścią domu. W centrum zlokalizowano sanitariaty i niewielkie pomieszczenie gospodarcze, w którym można zorganizować pralnię. Mała, ogólnodostępna toaleta, sąsiaduje z komfortową łazienką w głębi strefy nocnej. Trzy obszerne sypialnie z oknami na posesję rozmieszczone są w obrębie głównej bryły, natomiast najmniejsza z nich znalazła się w nieco cofniętej części za załamaniem. W największym pokoju wydzielono wygodną wnękę z miejscem na szafy i regały. Do najmniejszej sypialni przylega dostępna z garażu, spora kotłownia. Projekt zakłada kilka alternatywnych technologii wykonania ścian i pokrycia dachu, dzięki czemu mieszkańcy mogą wybrać optymalne dla siebie rozwiązanie. Dach może być kryty dachówką betonową, ceramiczną lub blaszaną, natomiast murowane ściany zewnętrzne można wykonać - zależnie od preferencji - z ocieplonych warstwą styropianu pustaków ceramicznych, gazobetonu lub silikatów. Ogromną zaletą domu Indiana jest nietypowe usytuowanie strefy wejściowej, które pozwoli posadowić go na niekorzystnie lub nietypowo położonej działce. Bardzo duży garaż znajduje się tuż przy prowadzącym do wejścia podcieniu, co znacznie upraszcza codzienną logistykę. Częściowo zadaszony taras może służyć jako przedłużenie jadalni, a dzięki licznym i dużym oknom, zarówno pomieszczenia dzienne jak i sypialnie są dobrze doświetlone. Nie bez znaczenia pozostaje też fakt, że użytkownicy mogą wybierać spośród kilku dostępnych technologii budowania. Prosta, nowoczesna bryła dobrze wkomponuje się zarówno w otwarty krajobraz, jak i w miejskie osiedle.
Czytaj więcej

Informacje dodatkowe

Projekt stanowi aktualną i pełną dokumentację zawierającą część architektoniczno - budowlaną, konstrukcyjną wykonawczą, instalacji wewnętrznych, elektrycznych i teletechnicznych, charakterystykę energetyczną oraz uprawnienia projektantów. Dokumentacja zabezpieczona jest specjalną plombą, której usunięcie uniemożliwi jej zwrot. Zapraszamy do zamówienia przed zakupem rysunków szczegółowych projektu oraz analizy posiadanej działki w celu upewnienia się, że wybrany projekt domu idealnie na nią pasuje.

Czytaj więcej

Polecani producenci

Kompletne systemy rekuperacji

tło producenta

Alnor

Dowiedz się więcej

Dachy modułowe ze stali

tło producenta

Budmat

Poznaj szczegóły oferty

Prefabrykowane konstrukcje dachowe

tło producenta

WIĄZAR POLSKA

Zobacz więcej
Zobacz więcej

Społeczność projektu domu
Indiana w budowie

Dołącz do społeczności osób, które budują ten dom lub są zainteresowane jego budową.

  • Oglądaj zdjęcia z budowy
  • Zadawaj pytania
  • Wymieniaj się doświadczeniami

Zdjęcia realizacji domu Indiana (5)

Zobacz wszystkie

Opinie o projekcie domu
Indiana

Opinie niezweryfikowane

4.0

Na podstawie 2 opinii

S
Sławomir3567
06.02.2018
W
Wioletta202
27.04.2017

Wywiady mieszkańców domu Indiana

Zdjęcie profilowe użytkownika joannakocaj joannakocaj

Wybierając odpowiedni projekt najbardziej zależało mi na tym, aby dostosować budynek do położenia naszej działki względem stron świata. Zasadniczą kwestią było to, aby pokój dzienny i taras były usytuowane po stronie południowej. Zdecydowałam się więc na projekt domu Indiana BBE1025, gdyż idealnie pasował do moich oczekiwań pod tym względem. Nasz dom został wybudowany z pustaków Porotherm, a na dachu zastosowaliśmy ceramiczną dachówkę angobowaną. Cała realizacja odbyła się zgodnie z planem i bez żadnych przeszkód. Ze względu na dobre podłączenie gazu ziemnego do naszej działki, zdecydowaliśmy się na ten rodzaj ogrzewania. Nie mieliśmy potrzeby, aby cokolwiek modyfikować w projekcie domu Indiana BBE1025. Żadne ściany działowe nie zostały w naszym przypadku zlikwidowane ani nawet przesunięte. Zmieniliśmy natomiast przeznaczenie pomieszczeń. Z racji tego, iż brakowało nam nieco spiżarni, postanowiliśmy zlokalizować ją w miejscu łazienki. Tą z kolei przenieśliśmy obok kotłowni, tam gdzie pierwotnie miała znajdować się sypialnia. Dom położony jest na działce dokładnie tak, jak chciałam. Salon i taras znajdują się po stronie południowej, więc cała część dzienna jest bardzo słoneczna praktycznie przez cały dzień. Osobiście jestem zadowolona z całej realizacji naszego nowego domu i cieszy mnie w nim każde pomieszczenie. Mojemu mężowi natomiast, najbardziej podoba się duży garaż. Wybór projektu domu parterowego Indiana BBE1025 był zdecydowanie dobrą decyzją. Trzeba przyznać, że jego układ pomieszczeń jest naprawdę funkcjonalny. W naszym domu mieszkamy już jakiś czas i póki co nie chciałabym niczego w nim zmieniać. Polecam i pozdrawiam.

Zdjęcie profilowe użytkownika Wioletta202 Wioletta202

Wraz z mężem zdecydowaliśmy się na realizację projektu domu parterowego Indiana BBE1025. Głównym powodem naszej decyzji była duża ilość przeszkleń zlokalizowanych od frontowej strony, ponieważ nasza działka usytuowana jest wjazdem od strony południowej. Zwracaliśmy na to szczególną uwagę, tym bardziej że w większości domów okna w salonie znajdują się na jego tyłach. Przy takim układzie przeszkleń część dzienną mamy doskonale oświetloną właściwie przez cały dzień, a dodatkowo dzięki tym elementom budynek z przodu świetnie się prezentuje. Oprócz tego, w projekcie domu Indiana BBE1025 spodobał się nam również zaproponowany układ wnętrza. Wszystkie etapy budowy przebiegły po naszej myśli. Nie współpracowaliśmy z jedną firmą, a kilkoma ekipami wykonawców, którzy ze wszystkim bardzo sprawnie sobie poradzili. Dzięki realizacji systemem gospodarczym udało nam się sporo zaoszczędzić na robociźnie i tym samym koszty inwestycji były w naszym przypadku niższe od oszacowanych przez architekta. Rozmieszczenie wnętrza przewidziane w projekcie domu Indiana BBE1025 od początku wydało się nam funkcjonalnie przemyślane, więc w znacznej większości cały układ pozostał zgodny z pierwotną wersją. Stwierdziłam jednak, że w oryginalnym układzie nieco brakuje mi spiżarki, a aby znajdowała się ona w nieznacznej odległości od kuchni, wygospodarowaliśmy ją kosztem małej toalety. Muszę przyznać, że był to naprawdę dobry pomysł i szczerze polecam go innym inwestorom, oczywiście o ile w domu nie mieszka większa rodzina, gdyż w takim przypadku osobne wc może okazać się bardziej przydatne. Oprócz tego zrezygnowaliśmy z pralni, a jej powierzchnię przyłączyliśmy do łazienki, która dzięki temu dużo zyskała na przestronności.Innych modyfikacji nie wprowadzałam i w dalszym ciągu uważam, że obecny układ ścianek działowych jest jak najbardziej w porządku. Teraz ewentualnie zastanowiłabym się nad lekkim wydłużeniem części bryły tworzącej strefę dzienną, tak aby uzyskać więcej przestrzeni między dużym stołem jadalnianym a kompletem mebli wypoczynkowych. Decyzja o wyborze projektu domu Indiana BBE1025 okazała się dla nas trafiona i jesteśmy z niej zadowoleni. Pozdrawiam.

Zdjęcie profilowe użytkownika Sławomir3567 Sławomir3567

Przy wyborze odpowiedniego projektu domu, przede wszystkim kierowaliśmy się ułożeniem działki względem stron świata. Wjazd usytuowany jest od południowego-zachodu, a z racji tego, iż zależało nam na dobrze oświetlonej części dziennej, zwracaliśmy uwagę aby salon znajdował się od frontu. Spośród propozycji spełniających to założenie, do gustu najbardziej przypadł nam projekt Indiana BBE1025. W tym przypadku okna w salonie i jadalni wychodzą na południe i zachód, więc wiedzieliśmy, że słońce będzie dostawać się przez nie właściwie przez cały dzień. Układ pozostałych pomieszczeń wydał się nam funkcjonalnie przemyślany, a ponadto metraż ok. 125 m² odpowiadał potrzebom naszej rodziny. Budowa przebiegła sprawnie i zgodnie z planem. Projekt pod względem technicznym był dobrze sporządzony - fachowcy zwrócili uwagę jedynie na dosyć dużą grubość oryginalnego stropu, aczkolwiek z racji wykonania przez nas antresoli i tak zmodyfikowaliśmy jego konstrukcję. Realizację rozpoczęliśmy wiosną 2016 r., a obecnie (początek 2018 r.) do całkowitego zakończenia inwestycji zostały nam ostatnie prace wykończeniowe. Do wymurowania ścian użyliśmy bloczków z betonu komórkowego Solbet. Strop, zgodnie z zaleceniami architekta, wykonaliśmy w formie żelbetowej, a dach pokryliśmy dachówką Holenderka marki Braas. Postawienie budynku w stanie deweloperskim ( z wykonaniem tynków, posadzek, instalacji, regipsów na poddaszu oraz ociepleniem) wyniosło ok. 380 tys. zł. Projekt Indiana BBE1025 przewiduje funkcjonalny układ wnętrza, jednak chcąc dopasować go do wszystkich naszych oczekiwań, postanowiliśmy wprowadzić w nim kilka zmian. Zrezygnowaliśmy z osobnej ubikacji, a kosztem jej powierzchni nieco powiększyliśmy wiatrołap i wykonaliśmy spiżarkę z wejściem w pobliżu kuchni. Wnękę w dużej łazience oraz powierzchnie korytarza prowadzącego do najmniejszej sypialni przyłączyliśmy do pierwotnej pralni, która obecnie funkcjonuje jako druga spora łazienka. Znajduje się w niej wejście do sauny, którą wykonaliśmy kosztem małego pokoju. Jego pozostały metraż wykorzystaliśmy na zrobienie pomieszczenia technicznego przy kotłowni. Ponadto zaadaptowaliśmy poddasze nad częścią gospodarczą, tworząc na nim pralnio-suszarnię. Nad salonem oraz dwoma sypialniami zrobiliśmy antresole. Tym samym pokoje są dwupoziomowe, a w nich znajdują się lekkie drewniane schody.Jesteśmy zadowoleni z wyboru projektu Indiana BBE1025. Od początku bardzo nam się spodobał, a wprowadzone modyfikacje pozwoliły przystosować go do naszych indywidualnych preferencji. Obecnie być może pomyślałbym jeszcze nad przyłączeniem podcienia na tarasie do powierzchni części dziennej. Pozdrawiam.

ASYSTENT WYBORU PROJEKTU

Szukasz idealnego projektu? Znajdziemy go dla Ciebie!

Doradca na podstawie Twoich wskazówek przygotuje spersonalizowaną listę projektów

Graficzne opracowanie rzutów poglądowych widocznych na karcie projektu zostało wykonane przez Extradom.pl. Prezentowane przez Extradom.pl wizualizacje wykonane zostały przez autora projektu i należy poczytywać je jedynie za przykład i propozycję wykończenia, wizję architektoniczną autora projektu. Ostateczne wykończenie budynku może nastąpić na wiele sposobów. Szczegółowe rozwiązania zastosowane w oferowanej dokumentacji - w tym również ilość, lokalizacje i wygląd okien, drzwi, kominów - mogą w niewielkim stopniu różnić się od prezentowanej wizualizacji budynku.

Extradom.pl Spółka z ograniczoną odpowiedzialnością z siedzibą przy ul. Jaworskiej 13, 53-612 Wrocław, wpisana do rejestru przedsiębiorców Krajowego Rejestru Sądowego przez Sąd Rejonowy dla Wrocławia-Fabrycznej we Wrocławiu, VI Wydział Gospodarczy Krajowego Rejestru Sądowego do pod numerem KRS 0000648746, numer NIP 895-17-18-333, o kapitale zakładowym 708 150,00 zł uprzejmie informuje, iż poprzez serwis Extradom.pl umożliwia m.in. zapoznanie się przez konsumentów z ofertą handlową Partnerów Extradom.pl, którzy stosują metody budowy domów przy wykorzystaniu różnego rodzaju technologie prefabrykacji bądź modułowe (tzw. „Gotowe domy”).

Extradom.pl nie prowadzi jednakże sprzedaży ani nie oferuje usług polegających na doradztwie finansowym, prawnym ani podatkowym w zakresie inwestycji realizowanych w technologiach tzw. „Gotowych domów”. Informacje prezentowane w serwisie Extradom.pl dotyczące Partnerów Extradom.pl oferujących realizację inwestycji w technologiach „Gotowych domów” lub podobnych mają charakter informacyjny i reklamowy.

Prezentowane w serwisie Extradom.pl informacje dotyczące stosowanych przez Partnerów metod budowy domów w technologii prefabrykacji bądź modułowej pochodzą od Partnerów Extradom.pl.

Extradom.pl sp. z o.o. jedynie umożliwia nawiązanie kontaktu przez Użytkownika z Partnerem Extradom.pl stosującym tego rodzaju technologie budowy domów i nie jest stroną umowy o roboty budowlane zawieranej przez Użytkownika Extradom.pl z Partnerem Extradom.pl.

REKLAMA
Zamknij