Projekty nawet 500 zł taniej ❄️

Koniec oferty za:

00godz.

00min.

00sek.

Sprawdź

Projekt domu Ina SLB1152

Dodano!
Dodano!

Warstwy

Warstwy

Rzut parteru

Powierzchnia (m²)
Tooltip
Powierzchnia pomieszczenia
to ta, z której faktycznie możesz korzystać – skosy i niskie części poddasza są liczone częściowo lub wcale.
  1. 100% dla wysokości powyżej 2,2 m,
  2. 50% dla wysokości 1,4–2,2 m,
  3. nie liczymy poniżej 1,4 m.

Powierzchnia podłogi
Liczymy po obrysie pomieszczenia, bez względu na jego wysokość/skosy. Jeśli nie ma skosów to powierzchnia podłogi i pomieszczenia jest taka sama.
pomieszczenia i podłogi
podłogi
1. Wiatrołap
1,48
2. Pomieszczenie gospodarcze
4,68
3. Łazienka
5,06
4. Hall
9,31
5. Pokój dzienny
26,76
6. Kuchnia
11,36
7. Garaż jednostanowiskowy
10,55
Razem
69,20
69,20
Powierzchnia (m²)
Tooltip
Powierzchnia pomieszczenia
to ta, z której faktycznie możesz korzystać – skosy i niskie części poddasza są liczone częściowo lub wcale.
  1. 100% dla wysokości powyżej 2,2 m,
  2. 50% dla wysokości 1,4–2,2 m,
  3. nie liczymy poniżej 1,4 m.

Powierzchnia podłogi
Liczymy po obrysie pomieszczenia, bez względu na jego wysokość/skosy. Jeśli nie ma skosów to powierzchnia podłogi i pomieszczenia jest taka sama.
pomieszczenia i podłogi
podłogi
1. Hall
6,45
2. Pokój
21,56
3. Pokój
10,09
4. Pokój
10,08
5. Garderoba
1,52
Razem
49,70
49,70

    Usytuowanie na działce

    Czy ten projekt pasuje na
    Twoją działkę?

    Chętnie to sprawdzimy!

    Dowiedz się:

    • czy zmieści się na niej wybrany przez Ciebie dom
    • jakie parametry musi spełniać dom według miejscowego planu zagospodarowania lub warunków zabudowy (np. kąt nachylenia i typ dachu, liczba kondygnacji itp.
    • jakie inne projekty pasują na Twoją działkę – znajdziemy je dla Ciebie!

Pow. użytkowa

108,35 m²

Pokoje

3

Łazienki i WC

1

Garaż

1

Min. szer. i dł. działki

15,87 x 18,97 m

Kąt dachu

40°

Konstrukcja

Murowana
więcej

Ina - SLB1152

ikona 108,35 m²
Powierzchnia użytkowa
ikona3
Pokoje (bez salonu)
ikona 1
Łazienki (z toaletami)
ikona 1
Liczba stanowisk garażowych
(z wiatą garażową)
ikona
Konstrukcja: Murowana

Projekt został
wycofany z oferty

W razie pytań prosimy o kontakt
z Centrum Obsługi Klienta
Konsultant Masz pytania?
Zadzwoń
71 715 20 60

pon.-pt. 8-21, sob. 9-17

Parter - 69,20 m²

Parter projektu Ina

Zapytaj, co możesz zmienić

Powierzchnia (m²)
Tooltip
Powierzchnia pomieszczenia
to ta, z której faktycznie możesz korzystać – skosy i niskie części poddasza są liczone częściowo lub wcale.
  1. 100% dla wysokości powyżej 2,2 m,
  2. 50% dla wysokości 1,4–2,2 m,
  3. nie liczymy poniżej 1,4 m.

Powierzchnia podłogi
Liczymy po obrysie pomieszczenia, bez względu na jego wysokość/skosy. Jeśli nie ma skosów to powierzchnia podłogi i pomieszczenia jest taka sama.
pomieszczenia i podłogi
podłogi
1. Wiatrołap
1,48
2. Pomieszczenie gospodarcze
4,68
3. Łazienka
5,06
4. Hall
9,31
5. Pokój dzienny
26,76
6. Kuchnia
11,36
7. Garaż jednostanowiskowy
10,55
Razem
69,20
69,20

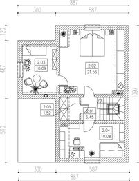
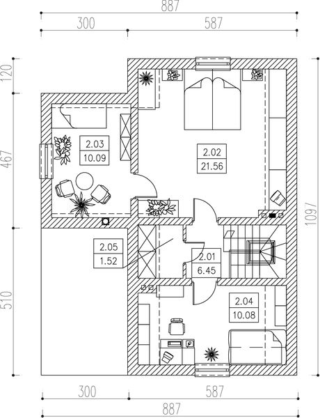
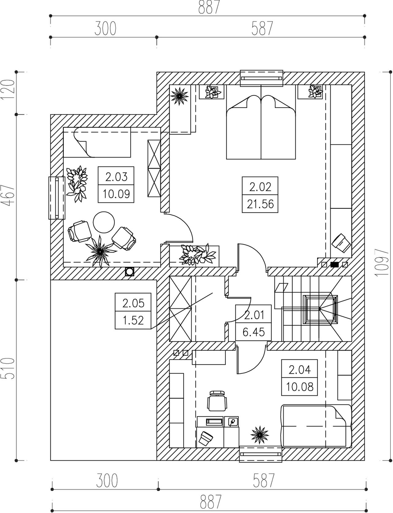
Poddasze - 49,70 m²

Poddasze projektu Ina

Zapytaj, co możesz zmienić

Powierzchnia (m²)
Tooltip
Powierzchnia pomieszczenia
to ta, z której faktycznie możesz korzystać – skosy i niskie części poddasza są liczone częściowo lub wcale.
  1. 100% dla wysokości powyżej 2,2 m,
  2. 50% dla wysokości 1,4–2,2 m,
  3. nie liczymy poniżej 1,4 m.

Powierzchnia podłogi
Liczymy po obrysie pomieszczenia, bez względu na jego wysokość/skosy. Jeśli nie ma skosów to powierzchnia podłogi i pomieszczenia jest taka sama.
pomieszczenia i podłogi
podłogi
1. Hall
6,45
2. Pokój
21,56
3. Pokój
10,09
4. Pokój
10,08
5. Garderoba
1,52
Razem
49,70
49,70

Podobne projekty (4718)

Zobacz wszystkie
NIŻSZA CENA❄️
Zdjęcie 1 projektu Sej-pro 072/2 energo ELW1065
Sej-pro 072/2 energo
Dodano!
Dodano!
98,47 m²
3
2
0

5 097 zł

5 397 zł

Tooltip

Cena regularna

4 797 zł najniższa cena
Tooltip

Najniższa cena z 30 dni
przed obniżką

Zdjęcie 1 projektu Arabeska WRN1556
Arabeska
Dodano!
Dodano!
105 m²
4
2
1

3 995 zł

Zdjęcie 1 projektu D21-1B WSA1010
D21-1B
Dodano!
Dodano!
87,85 m²
2
2
0

5 000 zł

NIŻSZA CENA❄️
Nowość
Zdjęcie 1 projektu APS 107 wariant 2 LUA1671
APS 107 wariant 2
Dodano!
Dodano!
118,80 m²
3
2
1

4 049 zł

4 599 zł

Tooltip

Cena regularna

3 999 zł najniższa cena
Tooltip

Najniższa cena z 30 dni
przed obniżką

NIŻSZA CENA❄️
Zdjęcie 1 projektu Alicja 2 BSA1839
Alicja 2
Dodano!
Dodano!
112,90 m²
4
2
1

4 249 zł

4 749 zł

Tooltip

Cena regularna

4 249 zł najniższa cena
Tooltip

Najniższa cena z 30 dni
przed obniżką

NIŻSZA CENA❄️
Zdjęcie 1 projektu Malina Alfa (1523) KRD2670
Malina Alfa (1523)
Dodano!
Dodano!
111 m²
4
2
1

4 340 zł

4 690 zł

Tooltip

Cena regularna

4 140 zł najniższa cena
Tooltip

Najniższa cena z 30 dni
przed obniżką

Zdjęcie 1 projektu Emil - segment lewy WRD1966
Emil - segment lewy
Dodano!
Dodano!
92 m²
3
2
1

3 563 zł

NIŻSZA CENA❄️
Zdjęcie 1 projektu Malutki 5 BSA2263
Malutki 5
Dodano!
Dodano!
119,58 m²
3
2
0

5 249 zł

5 749 zł

Tooltip

Cena regularna

5 249 zł najniższa cena
Tooltip

Najniższa cena z 30 dni
przed obniżką

Elewacje

Frontowa
Tylna
Lewa
Prawa
Autor: Pik

Dane techniczne projektu

Powierzchnie i wymiary Powierzchnie i wymiary

Powierzchnia użytkowa
Tooltip
Suma powierzchni wszystkich pomieszczeń mieszkalnych, pomniejszona o pow. garażu, kotłowni, strychu, piwnicy. Jest liczona w 100% dla pomieszczeń o wysokości powyżej 2,2 m, w 50% dla pomieszczeń o wys. 2,2-1,4 m i niewliczana dla niższych niż 1,4 m.

108,35 m²

Powierzchnia zabudowy
Tooltip
Powierzchnia zajmowana przez część na- oraz nadziemną budynku liczona, jako rzut pionowy budynku na działkę.

93,31 m²

Kąt nachylenia dachu
Tooltip
Nachylenie połaci dachu głównego podawane w stopniach. Uwaga! W niektórych projektach występuje więcej niż jedno nachylenie dachu.

40°

Min. szerokość działki
Tooltip
Najmniejsza możliwa szerokość działki niezbędna do wybudowania wybranego domu. Składa się z szerokości elewacji domu powiększonej z obu stron o 3 m dla ściany bez otworów drzwiowych/okiennych lub 4 m, dla ściany z otworami.

15,87 m

Min. długość działki
Tooltip
Najmniejsza możliwa długość działki niezbędna do wybudowania wybranego domu. Składa się z długości elewacji domu powiększonej z obu stron o 3 m dla ściany bez otworów drzwiowych/okiennych lub 4 m, dla ściany z otworami.

18,97 m

Energooszczędność Energooszczędność

Oze Czym jest OZE (Odnawialne Źródło Energii)?
Warunki techniczne

Projekt zgody z WT 2021

Technologia i konstrukcja Technologia i konstrukcja

Konstrukcja

Murowana

Opis szczegółowy

Ściany zewnętrzne zaprezentowano w technologii tradycyjnej - dwuwarstwowej. Pokrycie dachu - dachówka. Możliwe jest zastosowanie ogrzewania gazowego lub olejowego.

Reklama
Okna i drzwi tarasowe

Nowoczesne okna PVC i aluminiowe WIŚNIOWSKI – doskonała izolacja, elegancki design i niezrównana trwałość.

Wiśniowski
Sprawdź parametry!
Okna dachowe

Oferujemy bezpłatne konsultacje w zakresie wszystkich rozwiązań VELUX. Wyceny, porady dotyczące doboru okien i rolet zewnętrznych - sprawdź!

Velux
Sprawdź szczegóły
Płytki ceramiczne i gresy

Od małych formatów po wielkoformatowe gresy. Marmur, beton, drewno, kamień, lastryko czy cegiełki zamówisz wygodnie online z szybką dostawą.

Ceramzet
Sprawdź ofertę
Drzwi

Ciepłe drzwi WIŚNIOWSKI z kontrolą dostępu. Szeroka gama wzorów i kolorów.

Wiśniowski
Wybierz najlepsze
Bramy garażowe

Automatyczne bramy garażowe segmentowe i uchylne WIŚNIOWSKI na wymiar i z systemem smart home w standardzie.

Wiśniowski
Sprawdź ofertę!
Armatura i ceramika łazienkowa

Topowi producenci. Baterie łazienkowe, zestawy natynkowe i podtynkowe, umywalki, wanny, miski WC oraz kabiny zamówisz kompleksowo online.

Ceramzet II
Dowiedz się więcej
Rekuperacja

Alnor - kompletny system rekuperacji. Dobierz idealne rozwiązanie dla Twojego domu!

Alnor
Dobierz rekuperator
Gruntowe pompy ciepła

Przeprowadzimy kompletną instalację najbardziej oszczędnego źródła ciepła w Twoim nowym domu - gruntowej pompy ciepła. Od dokumentacji, pozwoleń, po odwierty i instalację.

Geothermal Solutions
Dowiedz się więcej

Gotowe domy modułowe (114)

Zobacz wszystkie
Stan deweloperski nawet w 6 miesięcy Gwarancja stałej ceny
Zdjęcie 1 projektu Dom keramzytowy Atrakcyjna Stodoła AS132G HAK1004
Pow. użytkowa
108,09 m²
Pokoje
3
635 500 zł 4 814 zł/m²
Zdjęcie 1 projektu Dom prefabrykowany P.8 HPK1007
Pow. użytkowa
108,05 m²
Pokoje
4
609 500 zł 5 641 zł/m²
Zdjęcie 1 projektu ExtraBetonowy 1 HPK1017
Gotowy extraBetonowy 1
Dodano!
Dodano!
Pow. użytkowa
107,27 m²
Pokoje
3
531 160 zł 4 952 zł/m²
Zdjęcie 1 projektu Dom keramzytowy Essenzia 110 HRK1001
Pow. użytkowa
107 m²
Pokoje
3
474 120 zł 4 431 zł/m²
Zdjęcie 1 projektu Dom keramzytowy Atrakcyjna Stodoła AS110 HAK1005
Pow. użytkowa
109,71 m²
Pokoje
4
532 520 zł 4 854 zł/m²
Zdjęcie 1 projektu Dom szkieletowy Functional Smart 110 HHT1018
Pow. użytkowa
110,12 m²
Pokoje
3
525 337 zł 4 771 zł/m²
Zdjęcie 1 projektu Dom keramzytowy EP1 HAK1006
Gotowy dom keramzytowy EP1
Dodano!
Dodano!
Pow. użytkowa
110,58 m²
Pokoje
3
473 700 zł 4 284 zł/m²
Zdjęcie 1 projektu Dom prefabrykowany DEX106 HDX1001
Pow. użytkowa
106 m²
Pokoje
3
685 000 zł 6 462 zł/m²

Opis projektu domu
Ina

Projekt domu Ina to w pełni komfortowy, przestronny dom, idealny do usytuowania na wąską działkę. Jest to również doskonała propozycja dla osób, decydujacych się na budowę systemem gospodarczym - Ina to budynek wyjątkowo łatwy i tani w realizacji. Dom charakteryzuje się prostą bryłą, co bezpośrednio wpływa na sprawny przebieg prac i niskie koszty. Na oczczędności pozwala również nieskomplikowana forma dachu dwuspadowego. Projekt ma usytuowaną kalenicę prostopadle do drogi, co jest bardzo istotnie, gdy wymaga tego plan zagospodarowania przestrzennego. Dom został zaprojektowany do zabudowy wolnostojącej. Posiada garaż jednostanowiskowy w linii budynku. Projekt Ina to dom parterowy z poddaszem użytkowym, co sprawia, że jego powierzchnia jest wyraźnie podzielona na strefy: dzienną i nocną.Warto zwrócić uwagę na przestronną część dzienną. Otwarta kuchnia to rozwiązanie dające wiele możliwości aranżacyjnych, zarówno nowoczesnych jak i tradycyjnych. Dodatkowo przewidziana spiżarnia to idealne miejsce na przechowywanie przetworów i zapasów żywności. W domu przewidziano jadalnię połączoną z salonem. Takie rozwiązanie daje wiele możliwości aranżacji strefy dziennej. Usytuowany w salonie kominek nie tylko świetnie się prezentuje, ale także zapewni przyjemne ciepło w chłodniejsze dni. Atutami projektu jest uwzględniona na dole, osobna ubikacja dla gości oraz przestronna i w pełni komfortowa łazienka przewidziana na wyższej kondygnacji. Część nocną tworzą trzy sypialnie, które dobrze sprawdzą się w przypadku 2-4 osobowej rodziny. Przestrzeń można wykorzystać także jako pokój dla gości lub gabinet. W domu nie zabrakło również miejsca na praktyczne zaplecze gospodarcze. Budynek został zaprojektowany w technologii murowanej. Jego wygląd nawiązuje do stylu tradycyjnego, co jest idealnym rozwiązaniem dla osób ceniących klasykę i prostotę.
Czytaj więcej

Polecani producenci

Prefabrykowane konstrukcje dachowe

tło producenta

WIĄZAR POLSKA

Zobacz więcej

Sprawdź nową generację okien GREENVIEW

tło producenta

FAKRO

Sprawdź nową generację okien GREENVIEW

Styropian, tynki, farby, kleje

tło producenta

Termo Organika

Poznaj super jakość

Okna, drzwi, osłony przeciwsłoneczne

tło producenta

Aluprof

Sprawdź ofertę

Kompletne systemy rekuperacji

tło producenta

Alnor

Dowiedz się więcej

Sprawdź nowy system DACHRYNNA

tło producenta

Galeco

Sprawdź ofertę
Zobacz więcej

Społeczność projektu domu
Ina w budowie

Dołącz do społeczności osób, które budują ten dom lub są zainteresowane jego budową.

  • Oglądaj zdjęcia z budowy
  • Zadawaj pytania
  • Wymieniaj się doświadczeniami

Opinie o projekcie domu Ina

Ocena

Ten projekt nie ma jeszcze opinii, bądź pierwszy!

Dodaj opinię

ASYSTENT WYBORU PROJEKTU

Szukasz idealnego projektu? Znajdziemy go dla Ciebie!

Doradca na podstawie Twoich wskazówek przygotuje spersonalizowaną listę projektów

Graficzne opracowanie rzutów poglądowych widocznych na karcie projektu zostało wykonane przez Extradom.pl. Prezentowane przez Extradom.pl wizualizacje wykonane zostały przez autora projektu i należy poczytywać je jedynie za przykład i propozycję wykończenia, wizję architektoniczną autora projektu. Ostateczne wykończenie budynku może nastąpić na wiele sposobów. Szczegółowe rozwiązania zastosowane w oferowanej dokumentacji - w tym również ilość, lokalizacje i wygląd okien, drzwi, kominów - mogą w niewielkim stopniu różnić się od prezentowanej wizualizacji budynku.

REKLAMA
Zamknij