Projekty nawet 500 zł taniej ❄️

Koniec oferty za:

00godz.

00min.

00sek.

Sprawdź

Projekt domu HomeKoncept-03 B KRX1060

Dodano!
Dodano!

Warstwy

Warstwy

Rzut parteru

Powierzchnia (m²)
Tooltip
Powierzchnia pomieszczenia
to ta, z której faktycznie możesz korzystać – skosy i niskie części poddasza są liczone częściowo lub wcale.
  1. 100% dla wysokości powyżej 2,2 m,
  2. 50% dla wysokości 1,4–2,2 m,
  3. nie liczymy poniżej 1,4 m.

Powierzchnia podłogi
Liczymy po obrysie pomieszczenia, bez względu na jego wysokość/skosy. Jeśli nie ma skosów to powierzchnia podłogi i pomieszczenia jest taka sama.
pomieszczenia i podłogi
podłogi
1. Wiatrołap
4,91
2. Kotłownia
4,08
3. Pokój dzienny + jadalnia
44,71
4. Korytarz
3,62
5. Kuchnia
9,44
6. Spiżarnia
3,25
7. Wc
2,09
8. Garaż jednostanowiskowy
21,78
Razem
93,88
93,88
9. Taras
39,25
Powierzchnia (m²)
Tooltip
Powierzchnia pomieszczenia
to ta, z której faktycznie możesz korzystać – skosy i niskie części poddasza są liczone częściowo lub wcale.
  1. 100% dla wysokości powyżej 2,2 m,
  2. 50% dla wysokości 1,4–2,2 m,
  3. nie liczymy poniżej 1,4 m.

Powierzchnia podłogi
Liczymy po obrysie pomieszczenia, bez względu na jego wysokość/skosy. Jeśli nie ma skosów to powierzchnia podłogi i pomieszczenia jest taka sama.
pomieszczenia
podłogi
1. Korytarz
12,04
12,04
2. Pokój
12,78
16,03
3. Pokój
14,82
18,60
4. Pokój
15,12
17,94
5. Łazienka
2,97
4,29
6. Łazienka
6,02
8,27
Razem
63,75
77,17
7. Balkon
8,46

    Usytuowanie na działce

    Czy ten projekt pasuje na
    Twoją działkę?

    Chętnie to sprawdzimy!

    Dowiedz się:

    • czy zmieści się na niej wybrany przez Ciebie dom
    • jakie parametry musi spełniać dom według miejscowego planu zagospodarowania lub warunków zabudowy (np. kąt nachylenia i typ dachu, liczba kondygnacji itp.
    • jakie inne projekty pasują na Twoją działkę – znajdziemy je dla Ciebie!

Pow. użytkowa

135,85 m²

Pokoje

3

Łazienki i WC

3

Garaż

1

Min. szer. i dł. działki

37,95 x 20,90 m

Kąt dachu

35°

Konstrukcja

Murowana
więcej

HomeKoncept-03 B - KRX1060

ikona 135,85 m²
Powierzchnia użytkowa
ikona3
Pokoje (bez salonu)
ikona 3
Łazienki (z toaletami)
ikona 1
Liczba stanowisk garażowych
(z wiatą garażową)
ikona
Konstrukcja: Murowana

Projekt został
wycofany z oferty

W razie pytań prosimy o kontakt
z Centrum Obsługi Klienta
Konsultant Masz pytania?
Zadzwoń
71 715 20 60

pon.-pt. 8-21, sob. 9-17

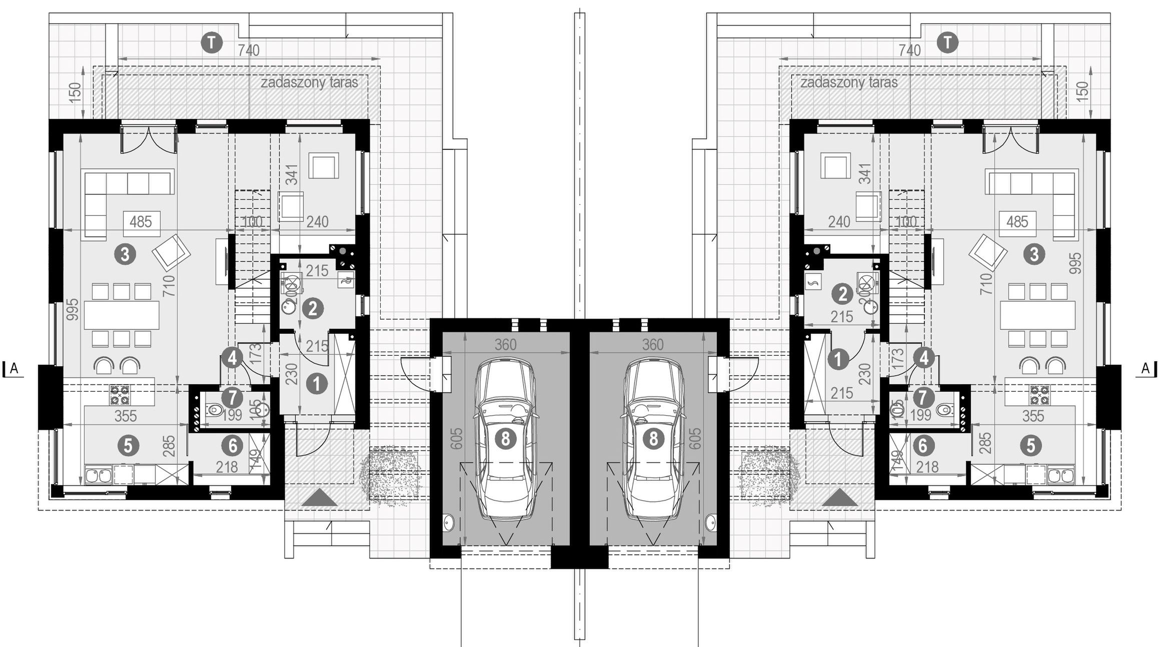
Parter - 93,88 m²

Parter projektu HomeKoncept-03 B

Zapytaj, co możesz zmienić

Powierzchnia (m²)
Tooltip
Powierzchnia pomieszczenia
to ta, z której faktycznie możesz korzystać – skosy i niskie części poddasza są liczone częściowo lub wcale.
  1. 100% dla wysokości powyżej 2,2 m,
  2. 50% dla wysokości 1,4–2,2 m,
  3. nie liczymy poniżej 1,4 m.

Powierzchnia podłogi
Liczymy po obrysie pomieszczenia, bez względu na jego wysokość/skosy. Jeśli nie ma skosów to powierzchnia podłogi i pomieszczenia jest taka sama.
pomieszczenia i podłogi
podłogi
1. Wiatrołap
4,91
2. Kotłownia
4,08
3. Pokój dzienny + jadalnia
44,71
4. Korytarz
3,62
5. Kuchnia
9,44
6. Spiżarnia
3,25
7. Wc
2,09
8. Garaż jednostanowiskowy
21,78
Razem
93,88
93,88
9. Taras
39,25

Poddasze - 63,75 m²

Poddasze projektu HomeKoncept-03 B

Zapytaj, co możesz zmienić

Powierzchnia (m²)
Tooltip
Powierzchnia pomieszczenia
to ta, z której faktycznie możesz korzystać – skosy i niskie części poddasza są liczone częściowo lub wcale.
  1. 100% dla wysokości powyżej 2,2 m,
  2. 50% dla wysokości 1,4–2,2 m,
  3. nie liczymy poniżej 1,4 m.

Powierzchnia podłogi
Liczymy po obrysie pomieszczenia, bez względu na jego wysokość/skosy. Jeśli nie ma skosów to powierzchnia podłogi i pomieszczenia jest taka sama.
pomieszczenia
podłogi
1. Korytarz
12,04
12,04
2. Pokój
12,78
16,03
3. Pokój
14,82
18,60
4. Pokój
15,12
17,94
5. Łazienka
2,97
4,29
6. Łazienka
6,02
8,27
Razem
63,75
77,17
7. Balkon
8,46

Warianty projektu (1)

PROMOCJA
Projekt domu HomeKoncept 03
HomeKoncept 03
Dodano!
Dodano!
138,76 m²
3
3
1

5 490 zł

5 990 zł

Tooltip

Cena regularna

5 091 zł najniższa cena
Tooltip

Najniższa cena z 30 dni
przed obniżką

Podobne projekty (5068)

Zobacz wszystkie
NIŻSZA CENA❄️
Nowość
Zdjęcie 1 projektu Mokka 20 plus 2 s2 WOF1266
Mokka 20 plus 2 s2
Dodano!
Dodano!
110,96 m²
3
2
2

3 799 zł

3 999 zł

Tooltip

Cena regularna

3 699 zł najniższa cena
Tooltip

Najniższa cena z 30 dni
przed obniżką

NIŻSZA CENA❄️
Zdjęcie 1 projektu HomeKoncept 36 wariant 02 KRX1109
HomeKoncept 36 wariant 02
Dodano!
Dodano!
132,62 m²
3
2
2

5 990 zł

6 490 zł

Tooltip

Cena regularna

5 516 zł najniższa cena
Tooltip

Najniższa cena z 30 dni
przed obniżką

Zdjęcie 1 projektu APS 264 wariant 2 ECO LUA1667
APS 264 wariant 2 ECO
Dodano!
Dodano!
134,20 m²
4
2
2

5 399 zł

Nowość
Zdjęcie 1 projektu APS 269 ECO LUA1679
APS 269 ECO
Dodano!
Dodano!
124,10 m²
3
2
2

5 199 zł

NIŻSZA CENA❄️
Zdjęcie 1 projektu Parterowy WAH1717
Parterowy
Dodano!
Dodano!
118,23 m²
3
2
1

4 952 zł

6 190 zł

Tooltip

Cena regularna

4 642 zł najniższa cena
Tooltip

Najniższa cena z 30 dni
przed obniżką

NIŻSZA CENA❄️
Zdjęcie 1 projektu Kordian Atu (1655) KRD2803
Kordian Atu (1655)
Dodano!
Dodano!
147,60 m²
4
2
2

4 740 zł

5 090 zł

Tooltip

Cena regularna

4 540 zł najniższa cena
Tooltip

Najniższa cena z 30 dni
przed obniżką

NIŻSZA CENA❄️
Zdjęcie 1 projektu Kordian (1749) KRD2997
Kordian (1749)
Dodano!
Dodano!
133,30 m²
4
2
2

4 540 zł

4 890 zł

Tooltip

Cena regularna

4 340 zł najniższa cena
Tooltip

Najniższa cena z 30 dni
przed obniżką

NIŻSZA CENA❄️
Zdjęcie 1 projektu Dom na szerokiej 3 WAH2045
Dom na szerokiej 3
Dodano!
Dodano!
134,81 m²
4
3
2

5 080 zł

6 350 zł

Tooltip

Cena regularna

4 762 zł najniższa cena
Tooltip

Najniższa cena z 30 dni
przed obniżką

Elewacje

Frontowa
Tylna
Lewa
Prawa

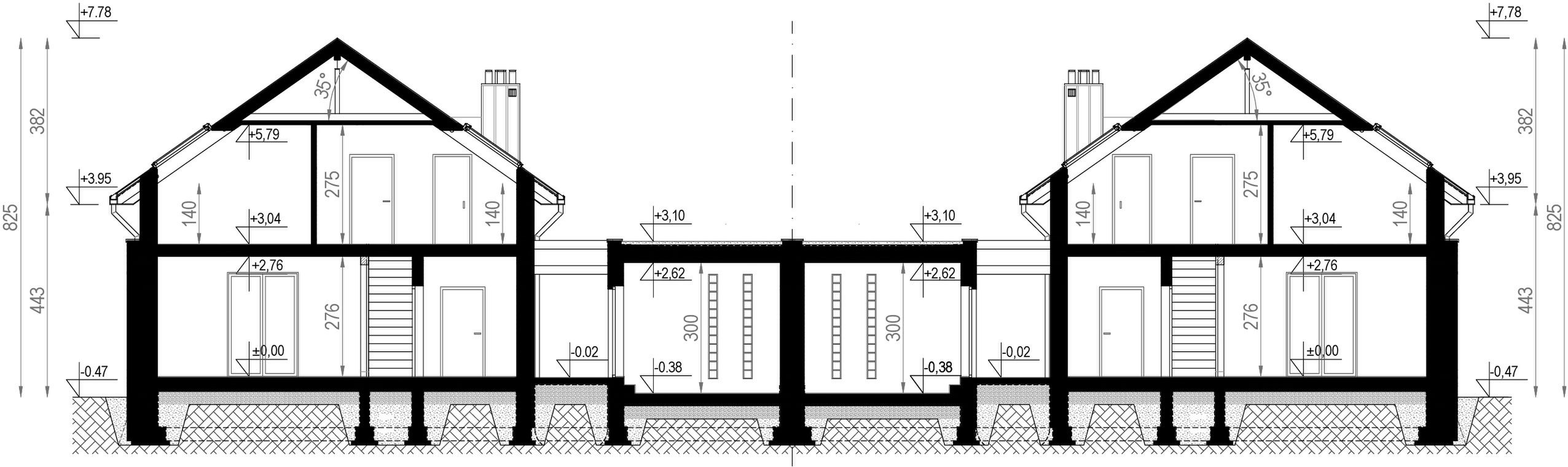
Przekroje

Przekrój pionowy

Usytuowanie na działce

Czy ten projekt pasuje na
Twoją działkę?

Chętnie to sprawdzimy!

Czy ten projekt pasuje na
Twoją działkę?

Chętnie to sprawdzimy!

Dowiedz się:

  • czy zmieści się na niej wybrany przez Ciebie dom
  • jakie parametry musi spełniać dom według miejscowego planu zagospodarowania lub warunków zabudowy (np. kąt nachylenia i typ dachu, liczba kondygnacji itp.
  • jakie inne projekty pasują na Twoją działkę – znajdziemy je dla Ciebie!
Autor: HOMEKONCEPT

Dane techniczne projektu

Powierzchnie i wymiary Powierzchnie i wymiary

Powierzchnia użytkowa
Tooltip
Suma powierzchni wszystkich pomieszczeń mieszkalnych, pomniejszona o pow. garażu, kotłowni, strychu, piwnicy. Jest liczona w 100% dla pomieszczeń o wysokości powyżej 2,2 m, w 50% dla pomieszczeń o wys. 2,2-1,4 m i niewliczana dla niższych niż 1,4 m.

135,85 m²

Powierzchnia zabudowy
Tooltip
Powierzchnia zajmowana przez część na- oraz nadziemną budynku liczona, jako rzut pionowy budynku na działkę.

253,36 m²

Powierzchnia całkowita
Tooltip
Całkowita powierzchnia wszystkich kondygnacji budynku łącznie z elementami nośnymi, takimi jak ściany zewnętrzne (z ociepleniem), słupy, tarasy, itp.

457,21 m²

Kubatura brutto
Tooltip
Zazwyczaj jest to suma kubatur (objętości) wszystkich pomieszczeń budynku, liczonych po zewnętrznym obrysie murów (z ociepleniem).

1 490 m³

Powierzchnia dachu

296 m²

Kąt nachylenia dachu
Tooltip
Nachylenie połaci dachu głównego podawane w stopniach. Uwaga! W niektórych projektach występuje więcej niż jedno nachylenie dachu.

35°

Wysokość budynku
Tooltip
Wysokość liczona od części budynku położonej najniżej przy powierzchni terenu do najwyższego punktu dachu (kalenicy) z wyłączeniem kominów.

8,25 m

Szerokość elewacji

30,55 m

Długość elewacji

14,20 m

Min. szerokość działki
Tooltip
Najmniejsza możliwa szerokość działki niezbędna do wybudowania wybranego domu. Składa się z szerokości elewacji domu powiększonej z obu stron o 3 m dla ściany bez otworów drzwiowych/okiennych lub 4 m, dla ściany z otworami.

37,95 m

Min. długość działki
Tooltip
Najmniejsza możliwa długość działki niezbędna do wybudowania wybranego domu. Składa się z długości elewacji domu powiększonej z obu stron o 3 m dla ściany bez otworów drzwiowych/okiennych lub 4 m, dla ściany z otworami.

20,90 m

Energooszczędność Energooszczędność

Oze Czym jest OZE (Odnawialne Źródło Energii)?
Ep
Tooltip
Energia pierwotna określa ilość energii nieodnawialnej potrzebnej w ciągu roku do ogrzewania czy też ogrzania wody użytkowej z uwzględnieniem kosztów produkcji i transportu surowców energetycznych.

90,30 kWh/(m²rok)

Euco
Tooltip
Energia użytkowa potrzebna do ogrzewania i wentylacji. Im parametr jest niższy tym budynek bardziej energooszczędny.

41,80 kWh/(m²rok)

Warunki techniczne

Projekt zgody z WT 2021

Technologia i konstrukcja Technologia i konstrukcja

Konstrukcja

Murowana

Opis szczegółowy

Fundamenty: tradycyjne - na ławach fundamentowych. Ściany: dwuwarstwowe - pustak ceramiczny 25 cm + styropian 15 cm/wełna mineralna. Stropy: żelbetowe wylewane schody jednobiegowe żelbetowe dach tradycyjna więźba dachowa pokryta dachówką ceramiczną lub cementową. Elewacja: płytka klinkierowa połączona z tynkiem i deskami elewacyjnymi thermory thermo jesion amerykański firmy komplex market. Ogrzewanie: gazowe - piec kondensacyjny. grzejniki kanałowe przy dużych przeszkleniach na parterze oraz tradycyjne grzejniki w pozostałych pomieszczeniac. Wentylacja grawitacyjna.

Strop

Żelbetowy

Reklama
Okna i drzwi tarasowe

Nowoczesne okna PVC i aluminiowe WIŚNIOWSKI – doskonała izolacja, elegancki design i niezrównana trwałość.

Wiśniowski
Sprawdź parametry!
Okna dachowe

Oferujemy bezpłatne konsultacje w zakresie wszystkich rozwiązań VELUX. Wyceny, porady dotyczące doboru okien i rolet zewnętrznych - sprawdź!

Velux
Sprawdź szczegóły
Płytki ceramiczne i gresy

Od małych formatów po wielkoformatowe gresy. Marmur, beton, drewno, kamień, lastryko czy cegiełki zamówisz wygodnie online z szybką dostawą.

Ceramzet
Sprawdź ofertę
Drzwi

Ciepłe drzwi WIŚNIOWSKI z kontrolą dostępu. Szeroka gama wzorów i kolorów.

Wiśniowski
Wybierz najlepsze
Bramy garażowe

Automatyczne bramy garażowe segmentowe i uchylne WIŚNIOWSKI na wymiar i z systemem smart home w standardzie.

Wiśniowski
Sprawdź ofertę!
Armatura i ceramika łazienkowa

Topowi producenci. Baterie łazienkowe, zestawy natynkowe i podtynkowe, umywalki, wanny, miski WC oraz kabiny zamówisz kompleksowo online.

Ceramzet II
Dowiedz się więcej
Rekuperacja

Alnor - kompletny system rekuperacji. Dobierz idealne rozwiązanie dla Twojego domu!

Alnor
Dobierz rekuperator
Gruntowe pompy ciepła

Przeprowadzimy kompletną instalację najbardziej oszczędnego źródła ciepła w Twoim nowym domu - gruntowej pompy ciepła. Od dokumentacji, pozwoleń, po odwierty i instalację.

Geothermal Solutions
Dowiedz się więcej

Gotowe domy modułowe (114)

Zobacz wszystkie
Stan deweloperski nawet w 6 miesięcy Gwarancja stałej ceny
Zdjęcie 1 projektu Dom prefabrykowany DEX136 HDX1002
Pow. użytkowa
136 m²
Pokoje
4
845 000 zł 6 213 zł/m²
Zdjęcie 1 projektu Dom prefabrykowany P.5 HPK1004
Pow. użytkowa
138,67 m²
Pokoje
5
772 700 zł 5 572 zł/m²
Zdjęcie 1 projektu Dom prefabrykowany P.1 z okapem HPK1000
Pow. użytkowa
139,44 m²
Pokoje
3
721 000 zł 5 171 zł/m²
Zdjęcie 1 projektu Dom prefabrykowany P.1 bez okapu HPK1012
Pow. użytkowa
139,44 m²
Pokoje
3
699 800 zł 5 019 zł/m²
Zdjęcie 1 projektu Dom prefabrykowany Piętrowy 130C HFX1023
Pow. użytkowa
132 m²
Pokoje
4
539 000 zł 4 083 zł/m²
Zdjęcie 1 projektu Dom prefabrykowany Piętrowy 130B HFX1022
Pow. użytkowa
131,60 m²
Pokoje
5
539 000 zł 4 096 zł/m²
Zdjęcie 1 projektu Dom prefabrykowany Piętrowy 130A HFX1021
Pow. użytkowa
130,40 m²
Pokoje
4
539 000 zł 4 133 zł/m²
Zdjęcie 1 projektu Dom szkieletowy Open Sky 195 HHT1029
Pow. użytkowa
145,04 m²
Pokoje
4
940 300 zł 6 483 zł/m²

Opis projektu domu
HomeKoncept-03 B

Projekt domu HomeKoncept 3 B to bardzo elegancki bliźniak o interesującym wyglądzie i funkcjonalnym rozkładzie pomieszczeń. Mimo niewielkiej powierzchni użytkowej każdego z segmentów (136,01 m2 + garaż 21,18 m2) może w nim zamieszkać 4 – osobowa rodzina. Prosta bryła została urozmaicona unikatowym belkowaniem okalającym budynek ze wszystkich stron. Szczególnie ciekawie została zaakcentowana strefa wejściowa, schowana pod niewielkim zadaszeniem. Garaż jednostanowiskowy został połączony z budynkiem mieszkalnym, tworząc z nim jednolitą stylistycznie całość. Gustowne elewacje zostały zaprojektowane z płytek klinkierowych, naturalnego drewna i tynku. Tworzą one razem z nowoczesnym pokryciem dachowym oraz chromowanymi balustradami tarasu i portfenetrów wyjątkową kompozycję. Dzięki dużym przeszkleniom na elewacji południowej, wnętrza domu są doskonale doświetlone oraz dobrze skomunikowane z ogrodem. Z dużego wiatrołapu wchodzi się do części dziennej domu. Wygodna kuchnia w kształcie prostokąta znakomicie sprawdza się w trakcie przygotowywania codziennych posiłków, a praktyczny blat oddzielający kuchnię od jadalni można wykorzystać na szybki posiłki, bez konieczności korzystania z jadalni. Spiżarnia obok kuchni przydaje się do przechowywania produktów żywnościowych oraz kuchennego sprzętu AGD. Jadalnia z salonem w kształcie litery L daje spore możliwości aranżacji przestrzeni, dopasowanej do preferencji mieszkańców. Można w części salonu urządzić domową bibliotekę lub salkę telewizyjną. Na parterze znajduje się również niewielka łazienka oraz kotłownia gazowa, pełniąca dodatkowo funkcję pralni. Na poddasze prowadzą schody jednobiegowe. Znajduje się tutaj strefa prywatna domowników. Na szczególną uwagę zasługuje sypialnia małżeńska z własną łazienką, sąsiadująca z dwoma pokojami dziecięcych. Na poddaszu zaprojektowano również dużą, ogólnodostępną łazienkę oraz balkon dostępny z korytarza i pokoju. HomeKoncept 3 B to doskonała propozycja dla deweloperów oraz osób indywidualnych, dysponujących niewielkimi działkami.
Czytaj więcej

Polecani producenci

Prefabrykowane konstrukcje dachowe

tło producenta

WIĄZAR POLSKA

Zobacz więcej

Sprawdź nową generację okien GREENVIEW

tło producenta

FAKRO

Sprawdź nową generację okien GREENVIEW

Styropian, tynki, farby, kleje

tło producenta

Termo Organika

Poznaj super jakość

Okna, drzwi, osłony przeciwsłoneczne

tło producenta

Aluprof

Sprawdź ofertę

Kompletne systemy rekuperacji

tło producenta

Alnor

Dowiedz się więcej

Sprawdź nowy system DACHRYNNA

tło producenta

Galeco

Sprawdź ofertę
Zobacz więcej

Społeczność projektu domu
HomeKoncept-03 B w budowie

Dołącz do społeczności osób, które budują ten dom lub są zainteresowane jego budową.

  • Oglądaj zdjęcia z budowy
  • Zadawaj pytania
  • Wymieniaj się doświadczeniami

Opinie o projekcie domu HomeKoncept-03 B

Ocena

Ten projekt nie ma jeszcze opinii, bądź pierwszy!

Dodaj opinię

ASYSTENT WYBORU PROJEKTU

Szukasz idealnego projektu? Znajdziemy go dla Ciebie!

Doradca na podstawie Twoich wskazówek przygotuje spersonalizowaną listę projektów

Graficzne opracowanie rzutów poglądowych widocznych na karcie projektu zostało wykonane przez Extradom.pl. Prezentowane przez Extradom.pl wizualizacje wykonane zostały przez autora projektu i należy poczytywać je jedynie za przykład i propozycję wykończenia, wizję architektoniczną autora projektu. Ostateczne wykończenie budynku może nastąpić na wiele sposobów. Szczegółowe rozwiązania zastosowane w oferowanej dokumentacji - w tym również ilość, lokalizacje i wygląd okien, drzwi, kominów - mogą w niewielkim stopniu różnić się od prezentowanej wizualizacji budynku.

REKLAMA
Zamknij