Projekty nawet 500 zł taniej ❄️

Koniec oferty za:

0dni

00godz.

00min.

00sek.

Sprawdź

Projekt domu DWOREK 2 KRD1055

Dodano!
Dodano!

Warstwy

Warstwy

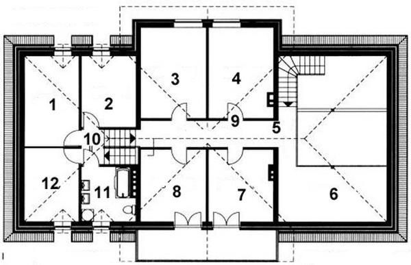
Rzut parteru

Powierzchnia (m²)
Tooltip
Powierzchnia pomieszczenia
to ta, z której faktycznie możesz korzystać – skosy i niskie części poddasza są liczone częściowo lub wcale.
  1. 100% dla wysokości powyżej 2,2 m,
  2. 50% dla wysokości 1,4–2,2 m,
  3. nie liczymy poniżej 1,4 m.

Powierzchnia podłogi
Liczymy po obrysie pomieszczenia, bez względu na jego wysokość/skosy. Jeśli nie ma skosów to powierzchnia podłogi i pomieszczenia jest taka sama.
pomieszczenia i podłogi
podłogi
1. Pracownia
7,70
2. Pomieszczenie gospodarcze
10,50
3. Pokój
16,90
4. Pokój
16,70
5. Pokój dzienny
33
6. Kuchnia+jadalnia
16
7. Aneks kuchenny
3,20
8. Spiżarnia
2,20
9. Wiatrołap
3,20
10. Hall
12,60
11. Łazienka
6,30
12. Korytarz
2,20
13. Kotłownia
7,30
14. Garaż
16,60
Razem
154,40
154,40
Powierzchnia (m²)
Tooltip
Powierzchnia pomieszczenia
to ta, z której faktycznie możesz korzystać – skosy i niskie części poddasza są liczone częściowo lub wcale.
  1. 100% dla wysokości powyżej 2,2 m,
  2. 50% dla wysokości 1,4–2,2 m,
  3. nie liczymy poniżej 1,4 m.

Powierzchnia podłogi
Liczymy po obrysie pomieszczenia, bez względu na jego wysokość/skosy. Jeśli nie ma skosów to powierzchnia podłogi i pomieszczenia jest taka sama.
pomieszczenia i podłogi
podłogi
1. Pokój
9
2. Pokój
8,90
3. Pokój
13,30
4. Pokój
13,10
5. Hall
3,20
6. Antresola
11,50
7. Pokój
11,10
8. Pokój
11,30
9. Przedpokój
10,10
10. Przedpokój
2,10
11. Łazienka
6
12. Pokój
6,90
Razem
106,50
106,50

    Usytuowanie na działce

    Czy ten projekt pasuje na
    Twoją działkę?

    Chętnie to sprawdzimy!

    Dowiedz się:

    • czy zmieści się na niej wybrany przez Ciebie dom
    • jakie parametry musi spełniać dom według miejscowego planu zagospodarowania lub warunków zabudowy (np. kąt nachylenia i typ dachu, liczba kondygnacji itp.
    • jakie inne projekty pasują na Twoją działkę – znajdziemy je dla Ciebie!

Pokoje

9

Łazienki i WC

2

Garaż

0
więcej

DWOREK 2 - KRD1055

ikona9
Pokoje (bez salonu)
ikona 2
Łazienki (z toaletami)
ikona 0
Liczba stanowisk garażowych
(z wiatą garażową)

Projekt został
wycofany z oferty

W razie pytań prosimy o kontakt
z Centrum Obsługi Klienta
Konsultant Masz pytania?
Zadzwoń
71 715 20 60

pon.-pt. 8-21, sob. 9-17

Parter - 154,40 m²

Parter projektu DWOREK 2

Zapytaj, co możesz zmienić

Powierzchnia (m²)
Tooltip
Powierzchnia pomieszczenia
to ta, z której faktycznie możesz korzystać – skosy i niskie części poddasza są liczone częściowo lub wcale.
  1. 100% dla wysokości powyżej 2,2 m,
  2. 50% dla wysokości 1,4–2,2 m,
  3. nie liczymy poniżej 1,4 m.

Powierzchnia podłogi
Liczymy po obrysie pomieszczenia, bez względu na jego wysokość/skosy. Jeśli nie ma skosów to powierzchnia podłogi i pomieszczenia jest taka sama.
pomieszczenia i podłogi
podłogi
1. Pracownia
7,70
2. Pomieszczenie gospodarcze
10,50
3. Pokój
16,90
4. Pokój
16,70
5. Pokój dzienny
33
6. Kuchnia+jadalnia
16
7. Aneks kuchenny
3,20
8. Spiżarnia
2,20
9. Wiatrołap
3,20
10. Hall
12,60
11. Łazienka
6,30
12. Korytarz
2,20
13. Kotłownia
7,30
14. Garaż
16,60
Razem
154,40
154,40

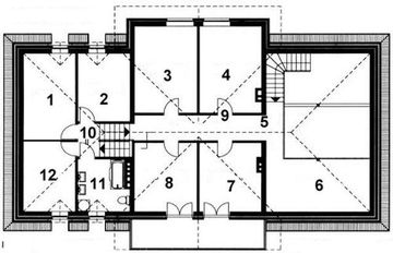
Poddasze - 106,50 m²

Poddasze projektu DWOREK 2

Zapytaj, co możesz zmienić

Powierzchnia (m²)
Tooltip
Powierzchnia pomieszczenia
to ta, z której faktycznie możesz korzystać – skosy i niskie części poddasza są liczone częściowo lub wcale.
  1. 100% dla wysokości powyżej 2,2 m,
  2. 50% dla wysokości 1,4–2,2 m,
  3. nie liczymy poniżej 1,4 m.

Powierzchnia podłogi
Liczymy po obrysie pomieszczenia, bez względu na jego wysokość/skosy. Jeśli nie ma skosów to powierzchnia podłogi i pomieszczenia jest taka sama.
pomieszczenia i podłogi
podłogi
1. Pokój
9
2. Pokój
8,90
3. Pokój
13,30
4. Pokój
13,10
5. Hall
3,20
6. Antresola
11,50
7. Pokój
11,10
8. Pokój
11,30
9. Przedpokój
10,10
10. Przedpokój
2,10
11. Łazienka
6
12. Pokój
6,90
Razem
106,50
106,50

Podobne projekty (9774)

Zobacz wszystkie
NIŻSZA CENA❄️
Nowość
Zdjęcie 1 projektu N-252 PZB1101
N-252
Dodano!
Dodano!
328,73 m²
6
3
2

13 063 zł

13 750 zł

Tooltip

Cena regularna

13 750 zł najniższa cena
Tooltip

Najniższa cena z 30 dni
przed obniżką

NIŻSZA CENA❄️
Zdjęcie 1 projektu N-231 PZB1053
N-231
Dodano!
Dodano!
183,86 m²
5
3
2

8 816 zł

9 280 zł

Tooltip

Cena regularna

7 074 zł najniższa cena
Tooltip

Najniższa cena z 30 dni
przed obniżką

Zdjęcie 1 projektu Dom Forma POZ1002
Dom Forma
Dodano!
Dodano!
282,63 m²
5
3
2

28 700 zł

Zdjęcie 1 projektu Dom Symetra POZ1011
Dom Symetra
Dodano!
Dodano!
244,40 m²
5
3
2

27 400 zł

NIŻSZA CENA❄️
Zdjęcie 1 projektu Willa moderna 2 WAH2026
Willa moderna 2
Dodano!
Dodano!
381,98 m²
5
4
2

13 560 zł

16 950 zł

Tooltip

Cena regularna

12 712 zł najniższa cena
Tooltip

Najniższa cena z 30 dni
przed obniżką

NIŻSZA CENA❄️
Zdjęcie 1 projektu Willa l' Azur WAH1263
Willa l' Azur
Dodano!
Dodano!
221,92 m²
4
3
2

8 392 zł

10 490 zł

Tooltip

Cena regularna

7 867 zł najniższa cena
Tooltip

Najniższa cena z 30 dni
przed obniżką

NIŻSZA CENA❄️
Zdjęcie 1 projektu EG-86 WWB1111
EG-86
Dodano!
Dodano!
164,67 m²
5
3
2

4 899 zł

5 149 zł

Tooltip

Cena regularna

4 749 zł najniższa cena
Tooltip

Najniższa cena z 30 dni
przed obniżką

NIŻSZA CENA❄️
Zdjęcie 1 projektu Villa Nova WAH1365
Villa Nova
Dodano!
Dodano!
374,23 m²
7
3
2

14 392 zł

17 990 zł

Tooltip

Cena regularna

13 493 zł najniższa cena
Tooltip

Najniższa cena z 30 dni
przed obniżką

Przekroje

Przekrój pionowy
Autor: Archeton

Dane techniczne projektu

Powierzchnie i wymiary Powierzchnie i wymiary

Energooszczędność Energooszczędność

Oze Czym jest OZE (Odnawialne Źródło Energii)?
Warunki techniczne

Projekt zgody z WT 2021

Opis projektu domu
DWOREK 2

Dom pietrowy, częściowo podpiwniczony, z garażem. Wejście przez sień do obszernego hallu. Z hallu dostępne są: 2 pokoje gościnne, pokój dzienny z antresolą, kuchnia z jadalnią, łazienka i spiżarnia. Po kilku stopniach zejście na poziom gospodarczy, gdzie zlokalizowano garaż, kotłownię, warsztat i pomieszczenie gospodarcze. Na poddaszu znajduje się 7 pokoi sypialnych, łazienka i antresola z galerią. Duży dom przeznaczony dla ośmio - dziesięcioosobowej rodziny. Forma budynku wywodząca się z tradycji dworkowej o współczesnym układzie funkcjonalnym. Malownicze lukarny, okiennice, podcień wejścia - to cechy charakterystczne tego obiektu. Idealny na działkę ze spadkiem terenu.
Czytaj więcej

Polecani producenci

Prefabrykowane konstrukcje dachowe

tło producenta

WIĄZAR POLSKA

Zobacz więcej

Sprawdź nową generację okien GREENVIEW

tło producenta

FAKRO

Sprawdź nową generację okien GREENVIEW

Styropian, tynki, farby, kleje

tło producenta

Termo Organika

Poznaj super jakość

Okna, drzwi, osłony przeciwsłoneczne

tło producenta

Aluprof

Sprawdź ofertę

Kompletne systemy rekuperacji

tło producenta

Alnor

Dowiedz się więcej

Sprawdź nowy system DACHRYNNA

tło producenta

Galeco

Sprawdź ofertę
Zobacz więcej

Społeczność projektu domu
DWOREK 2 w budowie

Dołącz do społeczności osób, które budują ten dom lub są zainteresowane jego budową.

  • Oglądaj zdjęcia z budowy
  • Zadawaj pytania
  • Wymieniaj się doświadczeniami

Opinie o projekcie domu DWOREK 2

Ocena

Ten projekt nie ma jeszcze opinii, bądź pierwszy!

Dodaj opinię

ASYSTENT WYBORU PROJEKTU

Szukasz idealnego projektu? Znajdziemy go dla Ciebie!

Doradca na podstawie Twoich wskazówek przygotuje spersonalizowaną listę projektów

Graficzne opracowanie rzutów poglądowych widocznych na karcie projektu zostało wykonane przez Extradom.pl. Prezentowane przez Extradom.pl wizualizacje wykonane zostały przez autora projektu i należy poczytywać je jedynie za przykład i propozycję wykończenia, wizję architektoniczną autora projektu. Ostateczne wykończenie budynku może nastąpić na wiele sposobów. Szczegółowe rozwiązania zastosowane w oferowanej dokumentacji - w tym również ilość, lokalizacje i wygląd okien, drzwi, kominów - mogą w niewielkim stopniu różnić się od prezentowanej wizualizacji budynku.

REKLAMA
Zamknij