👉 Rozgrzewające rabaty! 🔥

Projekt domu Dobrawa I WRH1181

Dodano!
Dodano!

Warstwy

Rzut parteru

Powierzchnia (m²)
Tooltip
Powierzchnia pomieszczenia
to ta, z której faktycznie możesz korzystać – skosy i niskie części poddasza są liczone częściowo lub wcale.
  1. 100% dla wysokości powyżej 2,2 m,
  2. 50% dla wysokości 1,4–2,2 m,
  3. nie liczymy poniżej 1,4 m.

Powierzchnia podłogi (wartość w nawiasie)
Liczymy po całym obrysie pomieszczenia, bez względu na jego wysokość.
137,54
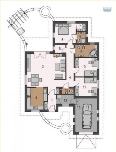
1. Wiatrołap
4,05
2. Kuchnia
11,38
3. Pokój dzienny + jadalnia
31,83
4. Korytarz
14,44
5. Spiżarnia
2,38
6. Pokój
11,49
7. Garderoba
1,91
8. Łazienka
2,79
9. Łazienka
7,37
10. Pokój
11,42
11. Pokój
11,42
12. Wc
1,92
13. Kotłownia
4,50
14. Garaż jednostanowiskowy
20,64

    Usytuowanie na działce

    Czy ten projekt pasuje na
    Twoją działkę?

    Chętnie to sprawdzimy!

    Dowiedz się:

    • czy zmieści się na niej wybrany przez Ciebie dom
    • jakie parametry musi spełniać dom według miejscowego planu zagospodarowania lub warunków zabudowy (np. kąt nachylenia i typ dachu, liczba kondygnacji itp.
    • jakie inne projekty pasują na Twoją działkę – znajdziemy je dla Ciebie!

Pow. użytkowa

116,90 m²

Pokoje

3

Łazienki i WC

3

Garaż

1

Min. szer. i dł. działki

20,48 x 28,93 m

Kąt dachu

25°

Konstrukcja

Murowana
więcej

Dobrawa I - WRH1181

ikona 116,90 m²
Powierzchnia użytkowa
ikona3
Pokoje (bez salonu)
ikona 3
Łazienki (z toaletami)
ikona 1
Liczba stanowisk garażowych
(z wiatą garażową)
ikona
Konstrukcja: Murowana

Projekt został
wycofany z oferty

W razie pytań prosimy o kontakt
z Centrum Obsługi Klienta
Konsultant Masz pytania?
Zadzwoń
71 715 20 60

pon.-pt. 8-21, sob. 9-17

Parter - 137,54 m²

Parter projektu Dobrawa I

Zapytaj, co możesz zmienić

Powierzchnia (m²)
Tooltip
Powierzchnia pomieszczenia
to ta, z której faktycznie możesz korzystać – skosy i niskie części poddasza są liczone częściowo lub wcale.
  1. 100% dla wysokości powyżej 2,2 m,
  2. 50% dla wysokości 1,4–2,2 m,
  3. nie liczymy poniżej 1,4 m.

Powierzchnia podłogi (wartość w nawiasie)
Liczymy po całym obrysie pomieszczenia, bez względu na jego wysokość.
(137,54)
137,54
1. Wiatrołap
4,05
2. Kuchnia
11,38
3. Pokój dzienny + jadalnia
31,83
4. Korytarz
14,44
5. Spiżarnia
2,38
6. Pokój
11,49
7. Garderoba
1,91
8. Łazienka
2,79
9. Łazienka
7,37
10. Pokój
11,42
11. Pokój
11,42
12. Wc
1,92
13. Kotłownia
4,50
14. Garaż jednostanowiskowy
20,64

Podobne projekty (7165)

Zobacz wszystkie
NIŻSZA CENA ✂️
Zdjęcie 1 projektu Simon III energo WRC2782
Simon III energo
Dodano!
Dodano!
134,21 m²
4
3
0

3 840 zł

4 800 zł

Tooltip

Cena regularna

3 840 zł najniższa cena
Tooltip

Najniższa cena z 30 dni
przed obniżką

NIŻSZA CENA ✂️
Zdjęcie 1 projektu Martyna Rex (1867) KRD3009
Martyna Rex (1867)
Dodano!
Dodano!
120,10 m²
4
2
2

4 340 zł

4 690 zł

Tooltip

Cena regularna

4 140 zł najniższa cena
Tooltip

Najniższa cena z 30 dni
przed obniżką

NIŻSZA CENA ✂️
Zdjęcie 1 projektu Aloes G1 WOF1221
Aloes G1
Dodano!
Dodano!
100,86 m²
3
2
1

3 799 zł

3 999 zł

Tooltip

Cena regularna

3 699 zł najniższa cena
Tooltip

Najniższa cena z 30 dni
przed obniżką

NIŻSZA CENA ✂️
Zdjęcie 1 projektu APS 337 wariant 2 LUA1583
APS 337 wariant 2
Dodano!
Dodano!
115,70 m²
3
2
1

3 899 zł

4 399 zł

Tooltip

Cena regularna

3 849 zł najniższa cena
Tooltip

Najniższa cena z 30 dni
przed obniżką

NIŻSZA CENA ✂️
Zdjęcie 1 projektu Domidea 3 w2 WAC1104
Domidea 3 w2
Dodano!
Dodano!
114,46 m²
3
3
2

4 989 zł

5 289 zł

Tooltip

Cena regularna

4 989 zł najniższa cena
Tooltip

Najniższa cena z 30 dni
przed obniżką

NIŻSZA CENA ✂️
Zdjęcie 1 projektu Aframon WOF1097
Aframon
Dodano!
Dodano!
95,01 m²
3
2
0

3 799 zł

3 999 zł

Tooltip

Cena regularna

3 699 zł najniższa cena
Tooltip

Najniższa cena z 30 dni
przed obniżką

NIŻSZA CENA ✂️
Zdjęcie 1 projektu Domidea 9 WAC1119
Domidea 9
Dodano!
Dodano!
98,80 m²
3
2
0

5 604 zł

5 904 zł

Tooltip

Cena regularna

5 604 zł najniższa cena
Tooltip

Najniższa cena z 30 dni
przed obniżką

NIŻSZA CENA ✂️
Zdjęcie 1 projektu APS 346 wariant 4 LUA1588
APS 346 wariant 4
Dodano!
Dodano!
108,50 m²
3
2
2

4 299 zł

4 799 zł

Tooltip

Cena regularna

4 249 zł najniższa cena
Tooltip

Najniższa cena z 30 dni
przed obniżką

Elewacje

Frontowa
Tylna
Lewa
Prawa

Przekroje

Przekrój pionowy

Usytuowanie na działce

Czy ten projekt pasuje na
Twoją działkę?

Chętnie to sprawdzimy!

Czy ten projekt pasuje na
Twoją działkę?

Chętnie to sprawdzimy!

Dowiedz się:

  • czy zmieści się na niej wybrany przez Ciebie dom
  • jakie parametry musi spełniać dom według miejscowego planu zagospodarowania lub warunków zabudowy (np. kąt nachylenia i typ dachu, liczba kondygnacji itp.
  • jakie inne projekty pasują na Twoją działkę – znajdziemy je dla Ciebie!
Autor: Domus

Dane techniczne projektu

Powierzchnie i wymiary Powierzchnie i wymiary

Powierzchnia użytkowa
Tooltip
Suma powierzchni wszystkich pomieszczeń mieszkalnych, pomniejszona o pow. garażu, kotłowni, strychu, piwnicy. Jest liczona w 100% dla pomieszczeń o wysokości powyżej 2,2 m, w 50% dla pomieszczeń o wys. 2,2-1,4 m i niewliczana dla niższych niż 1,4 m.

116,90 m²

Powierzchnia zabudowy
Tooltip
Powierzchnia zajmowana przez część na- oraz nadziemną budynku liczona, jako rzut pionowy budynku na działkę.

172,71 m²

Powierzchnia dachu

253,93 m²

Kąt nachylenia dachu
Tooltip
Nachylenie połaci dachu głównego podawane w stopniach. Uwaga! W niektórych projektach występuje więcej niż jedno nachylenie dachu.

25°

Wysokość budynku
Tooltip
Wysokość liczona od części budynku położonej najniżej przy powierzchni terenu do najwyższego punktu dachu (kalenicy) z wyłączeniem kominów.

6,06 m

Min. szerokość działki
Tooltip
Najmniejsza możliwa szerokość działki niezbędna do wybudowania wybranego domu. Składa się z szerokości elewacji domu powiększonej z obu stron o 3 m dla ściany bez otworów drzwiowych/okiennych lub 4 m, dla ściany z otworami.

20,48 m

Min. długość działki
Tooltip
Najmniejsza możliwa długość działki niezbędna do wybudowania wybranego domu. Składa się z długości elewacji domu powiększonej z obu stron o 3 m dla ściany bez otworów drzwiowych/okiennych lub 4 m, dla ściany z otworami.

28,93 m

Energooszczędność Energooszczędność

Oze Czym jest OZE (Odnawialne Źródło Energii)?
Warunki techniczne

Projekt zgody z WT 2021

Technologia i konstrukcja Technologia i konstrukcja

Konstrukcja

Murowana

Opis szczegółowy

Konstrukcja ściany zewnętrzne - beton komórkowy gr.24cm + styropian Termo Organika Termonium Plus gr. 12cm; ściany wewnetrzne - bloczki silikatowe gr.24cm; ściany fundamentowe - bloczek betonowy; strop - drewniany; konstrukcja dachu - drewniana Instalacje W projekcie przewidziano instalacjie: c.o. i c.w.u., grzejniki płytowe, instalacje wodno-kanalizacyjna oraz elektryczne, wentylacja grawitacyjna. Wykończenie pokrycie dachowe - dachówka cementowa (w ramach adaptacji inny materiał); ścianki działowe na parterze -cegła dziurawka, schody chowane w stropie - Fakro; okna - PVC; wyłaz dachowy - Fakro.

Strop

Drewniany

Reklama
Okna i drzwi tarasowe

Nowoczesne okna PVC i aluminiowe WIŚNIOWSKI – doskonała izolacja, elegancki design i niezrównana trwałość.

Wiśniowski
Sprawdź parametry!
Okna dachowe

Oferujemy bezpłatne konsultacje w zakresie wszystkich rozwiązań VELUX. Wyceny, porady dotyczące doboru okien i rolet zewnętrznych - sprawdź!

Velux
Sprawdź szczegóły
Dach

Producent stalowych pokryć dachowych i elewacyjnych - 40 lat doświadczenia. Zbuduj solidny dach z nami!

Blachy Pruszyński
Sprawdź szczegóły
Płytki ceramiczne i gresy

Od małych formatów po wielkoformatowe gresy. Marmur, beton, drewno, kamień, lastryko czy cegiełki zamówisz wygodnie online z szybką dostawą.

Ceramzet
Sprawdź ofertę
Drzwi

Ciepłe drzwi WIŚNIOWSKI z kontrolą dostępu. Szeroka gama wzorów i kolorów.

Wiśniowski
Wybierz najlepsze
Bramy garażowe

Automatyczne bramy garażowe segmentowe i uchylne WIŚNIOWSKI na wymiar i z systemem smart home w standardzie.

Wiśniowski
Sprawdź ofertę!
Armatura i ceramika łazienkowa

Topowi producenci. Baterie łazienkowe, zestawy natynkowe i podtynkowe, umywalki, wanny, miski WC oraz kabiny zamówisz kompleksowo online.

Ceramzet II
Dowiedz się więcej
Rekuperacja

Alnor - kompletny system rekuperacji. Dobierz idealne rozwiązanie dla Twojego domu!

Alnor
Dobierz rekuperator
Gruntowe pompy ciepła

Przeprowadzimy kompletną instalację najbardziej oszczędnego źródła ciepła w Twoim nowym domu - gruntowej pompy ciepła. Od dokumentacji, pozwoleń, po odwierty i instalację.

Geothermal Solutions
Dowiedz się więcej

Gotowe domy modułowe (113)

Zobacz wszystkie
Stan deweloperski nawet w 6 miesięcy Gwarancja stałej ceny
Zdjęcie 1 projektu Dom szkieletowy Creative Smart 160 HHT1023
Pow. użytkowa
118,35 m²
Pokoje
4
780 019 zł 6 591 zł/m²
Zdjęcie 1 projektu Dom prefabrykowany P.13 z dachem płaskim bez garażu HPK1022
Pow. użytkowa
115,39 m²
Pokoje
3
616 100 zł 5 339 zł/m²
Zdjęcie 1 projektu Dom prefabrykowany P.13 z dachem kopertowym bez garażu HPK1024
Pow. użytkowa
115,39 m²
Pokoje
3
616 100 zł 5 339 zł/m²
Zdjęcie 1 projektu Dom prefabrykowany P.13 z dachem kopertowym z garażem HPK1025
Pow. użytkowa
115,39 m²
Pokoje
3
730 400 zł 6 330 zł/m²
Zdjęcie 1 projektu Dom prefabrykowany P.13 z dachem płaskim z garażem HPK1023
Pow. użytkowa
115,39 m²
Pokoje
3
730 400 zł 6 330 zł/m²
Zdjęcie 1 projektu Dom prefabrykowany P.14 HPK1026
Pow. użytkowa
118,94 m²
Pokoje
3
694 700 zł 5 829 zł/m²
Zdjęcie 1 projektu Dom modułowy Soul HMD1001
Gotowy dom modułowy Soul
Dodano!
Dodano!
Pow. użytkowa
118,94 m²
Pokoje
4
518 000 zł 3 654 zł/m²
Zdjęcie 1 projektu Dom modułowy Harmony HMD1000
Pow. użytkowa
114,80 m²
Pokoje
4
512 000 zł 3 853 zł/m²

Opis projektu domu
Dobrawa I

Projekt domu Dobrawa I jest doskonałym rozwiązaniem dla osób posiadających średniej szerokości działkę. Odznacza się bryłą w kształcie litery L, co sprawia, że prezentuje się niebanalnie. W tym projekcie kalenica usytuowana jest równolegle do drogi, co jest istotne ze względu na wymagania określone w planie zagospodarowania przestrzennego. Dom został zaprojektowany do zabudowy wolnostojącej. W projekcie zaplanowano garaż jednostanowiskowy wysunięty do przodu. Jest to również doskonała propozycja dla osób szukających domu z dachem kopertowym, dzięki czemu budynek prezentuje są bardzo efektownie. Projekt Dobrawa I to dom parterowy, co sprawia, że komunikacja między pomieszczeniami jest bardzo wygodna. Projekt domu charakteryzuje się przestronną strefą dzienną. Tworzy ją między innymi kuchnia, która dzięki funkcjonalnym rozwiązaniom zapewni wygodę użytkowania przez długie lata. Dodatkowo przydatnym pomieszczeniem jest pojemna spiżarka. Projektant połączył salon i jadalnię w przestronną strefę dzienną, co jest nowoczesnym oraz bardzo funkcjonalnym rozwiązaniem. Strefa sypialniana składa się z trzech pokoi, co jest doskonałą opcją dla niedużej rodziny. Przestrzeń można wykorzystać także jako pokój dla gości lub gabinet. Bardzo praktycznym pomieszczeniem jest uwzględniona w domu garderoba. Taras jest idealnym miejscem do organizowania rodzinnych spotkań i chwili relaksu. Zalecana przez architekta technologia murowana zapewnia trwałość i solidność konstrukcji. W jego bryle widoczne są rozwiązania nawiązujące do stylu tradycyjnego, dzięki czemu idealnie wpisze się w dowolny krajobraz.
Czytaj więcej

Informacje dodatkowe

Projekt na etapie adaptacji należy dostosować do nowych przepisów.

Czytaj więcej

Polecani producenci

Prefabrykowane konstrukcje dachowe

tło producenta

WIĄZAR POLSKA

Zobacz więcej

Sprawdź nową generację okien GREENVIEW

tło producenta

FAKRO

Sprawdź nową generację okien GREENVIEW

Styropian, tynki, farby, kleje

tło producenta

Termo Organika

Poznaj super jakość

Okna, drzwi, osłony przeciwsłoneczne

tło producenta

Aluprof

Sprawdź ofertę

Kompletne systemy rekuperacji

tło producenta

Alnor

Dowiedz się więcej

Sprawdź nowy system DACHRYNNA

tło producenta

Galeco

Sprawdź ofertę
Zobacz więcej

Społeczność projektu domu
Dobrawa I w budowie

Dołącz do społeczności osób, które budują ten dom lub są zainteresowane jego budową.

  • Oglądaj zdjęcia z budowy
  • Zadawaj pytania
  • Wymieniaj się doświadczeniami

Opinie o projekcie domu Dobrawa I

Ocena

Ten projekt nie ma jeszcze opinii, bądź pierwszy!

Dodaj opinię

ASYSTENT WYBORU PROJEKTU

Szukasz idealnego projektu? Znajdziemy go dla Ciebie!

Doradca na podstawie Twoich wskazówek przygotuje spersonalizowaną listę projektów

Graficzne opracowanie rzutów poglądowych widocznych na karcie projektu zostało wykonane przez Extradom.pl. Prezentowane przez Extradom.pl wizualizacje wykonane zostały przez autora projektu i należy poczytywać je jedynie za przykład i propozycję wykończenia, wizję architektoniczną autora projektu. Ostateczne wykończenie budynku może nastąpić na wiele sposobów. Szczegółowe rozwiązania zastosowane w oferowanej dokumentacji - w tym również ilość, lokalizacje i wygląd okien, drzwi, kominów - mogą w niewielkim stopniu różnić się od prezentowanej wizualizacji budynku.

REKLAMA
Zamknij