👉 Kup projekt, odbierz grilla 🎁

Koniec oferty za:

0dni

00godz.

00min.

00sek.

Sprawdź

Projekt domu D448A WAI1530

Zapisz Dodano!
Porównaj Dodano!
ikona Pobierz i drukuj
Dodaj opinię

Warstwy

Warstwy

Rzut parteru

Powierzchnia (m²)
Tooltip
Powierzchnia pomieszczenia
to ta, z której faktycznie możesz korzystać – skosy i niskie części poddasza są liczone częściowo lub wcale.
  1. 100% dla wysokości powyżej 2,2 m,
  2. 50% dla wysokości 1,4–2,2 m,
  3. nie liczymy poniżej 1,4 m.

Powierzchnia podłogi
Liczymy po obrysie pomieszczenia, bez względu na jego wysokość/skosy. Jeśli nie ma skosów to powierzchnia podłogi i pomieszczenia jest taka sama.
pomieszczenia i podłogi
podłogi
1. Wiatrołap
3,31
2. Pokój dzienny + jadalnia
29,18
3. Kuchnia
9,96
4. Spiżarnia
1,66
5. Schody
4,16
6. Pokój
9,12
7. Korytarz
2,90
8. Łazienka
2,89
9. Pomieszczenie gospodarcze
5,98
10. Garaż jednostanowiskowy
25,54
Razem
94,70
94,70
11. Taras
9,83
12. Taras
16,57
Powierzchnia (m²)
Tooltip
Powierzchnia pomieszczenia
to ta, z której faktycznie możesz korzystać – skosy i niskie części poddasza są liczone częściowo lub wcale.
  1. 100% dla wysokości powyżej 2,2 m,
  2. 50% dla wysokości 1,4–2,2 m,
  3. nie liczymy poniżej 1,4 m.

Powierzchnia podłogi
Liczymy po obrysie pomieszczenia, bez względu na jego wysokość/skosy. Jeśli nie ma skosów to powierzchnia podłogi i pomieszczenia jest taka sama.
pomieszczenia
podłogi
1. Hall
8,78
8,78
2. Pokój
12,50
14,30
3. Pokój
11,44
13,23
4. Łazienka
4,13
4,53
5. Łazienka
6,74
7,25
6. Pralnia
4,37
5,49
7. Pokój
29,83
34,48
Razem
77,79
88,06

    Usytuowanie na działce

    Czy ten projekt pasuje na
    Twoją działkę?

    Chętnie to sprawdzimy!

    Dowiedz się:

    • czy zmieści się na niej wybrany przez Ciebie dom
    • jakie parametry musi spełniać dom według miejscowego planu zagospodarowania lub warunków zabudowy (np. kąt nachylenia i typ dachu, liczba kondygnacji itp.
    • jakie inne projekty pasują na Twoją działkę – znajdziemy je dla Ciebie!

Pow. użytkowa

172,49 m²

Pokoje

4

Łazienki i WC

3

Garaż

1

Min. szer. i dł. działki

22,96 x 15,86 m

Kąt dachu

40°

Szacunkowy koszt SSZ

408 000 zł
Szacunkowy koszt budowy do stanu surowego zamkniętego (SSZ) metodą gospodarczą - większość prac wykonuje inwestor.

Konstrukcja

Murowana
więcej
Zapisz Dodano!
Porównaj Dodano!
ikona Pobierz i drukuj

D448A - WAI1530

ikona 172,49 m²
Powierzchnia użytkowa
ikona4
Pokoje (bez salonu)
ikona 3
Łazienki (z toaletami)
ikona 1
Liczba stanowisk garażowych
(z wiatą garażową)
ikona
Konstrukcja: Murowana

5 400 zł

Wydłużony czas realizacji

NOWOŚĆ! Projekt w opracowaniu.

Zadzwoń i zapytaj o termin realizacji - 71 715 20 60

Gwarancja najniższej ceny
ikona
Darmowa dostawa
Paczkomaty, kurier
ikona
100 dni na wymianę,
30 dni na zwrot
ikona Zyskaj najwięcej! Extradodatki GRATIS:

15% rabatu do LEROY MERLIN

10% rabatu w CASTORAMIE

16% rabatu w SELSEY

Pakiet Formalności 2026

Przydatne Extradodatki

Poradnik Dach Solarny

ikona Co zawiera projekt?
  • Projekt zgodny z WT2021
  • Bezpłatne pozwolenie na zmiany
  • Charakterystyka energetyczna
Konsultant
71 715 20 60

pon.-pt. 8-21, sob. 9-17

Parter - 94,70 m²

Parter projektu D448A

Zapytaj, co możesz zmienić

Powierzchnia (m²)
Tooltip
Powierzchnia pomieszczenia
to ta, z której faktycznie możesz korzystać – skosy i niskie części poddasza są liczone częściowo lub wcale.
  1. 100% dla wysokości powyżej 2,2 m,
  2. 50% dla wysokości 1,4–2,2 m,
  3. nie liczymy poniżej 1,4 m.

Powierzchnia podłogi
Liczymy po obrysie pomieszczenia, bez względu na jego wysokość/skosy. Jeśli nie ma skosów to powierzchnia podłogi i pomieszczenia jest taka sama.
pomieszczenia i podłogi
podłogi
1. Wiatrołap
3,31
2. Pokój dzienny + jadalnia
29,18
3. Kuchnia
9,96
4. Spiżarnia
1,66
5. Schody
4,16
6. Pokój
9,12
7. Korytarz
2,90
8. Łazienka
2,89
9. Pomieszczenie gospodarcze
5,98
10. Garaż jednostanowiskowy
25,54
Razem
94,70
94,70
11. Taras
9,83
12. Taras
16,57

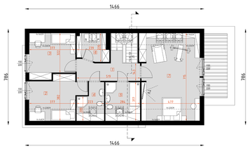
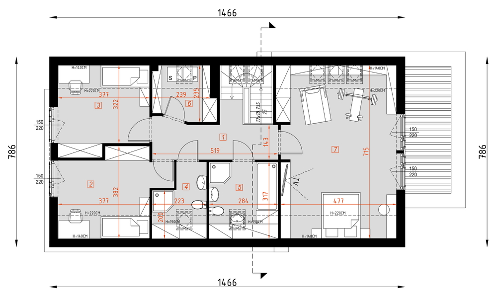
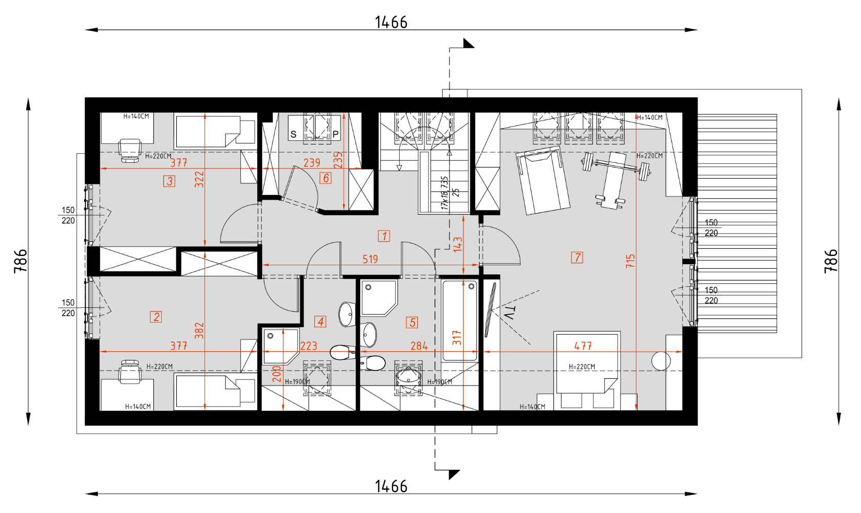
Poddasze - 77,79 m²

Poddasze projektu D448A

Zapytaj, co możesz zmienić

Powierzchnia (m²)
Tooltip
Powierzchnia pomieszczenia
to ta, z której faktycznie możesz korzystać – skosy i niskie części poddasza są liczone częściowo lub wcale.
  1. 100% dla wysokości powyżej 2,2 m,
  2. 50% dla wysokości 1,4–2,2 m,
  3. nie liczymy poniżej 1,4 m.

Powierzchnia podłogi
Liczymy po obrysie pomieszczenia, bez względu na jego wysokość/skosy. Jeśli nie ma skosów to powierzchnia podłogi i pomieszczenia jest taka sama.
pomieszczenia
podłogi
1. Hall
8,78
8,78
2. Pokój
12,50
14,30
3. Pokój
11,44
13,23
4. Łazienka
4,13
4,53
5. Łazienka
6,74
7,25
6. Pralnia
4,37
5,49
7. Pokój
29,83
34,48
Razem
77,79
88,06

Podobne projekty (166)

Zobacz wszystkie
PREZENT 🎁
Zdjęcie 1 projektu Pogodny BSA2203
Pogodny
Dodano!
Dodano!
137,62 m²
4
3
1

5 849 zł

PREZENT 🎁
Zdjęcie 1 projektu Komfort 1 KZM1003
Komfort 1
Dodano!
Dodano!
155,57 m²
5
3
1

5 590 zł

PREZENT 🎁
Zdjęcie 1 projektu Gala Lux (1008) KRD1966
Gala Lux (1008)
Dodano!
Dodano!
142,40 m²
5
2
1

5 090 zł

PREZENT 🎁
Zdjęcie 1 projektu Domena 212 A WRW1421
Domena 212 A
Dodano!
Dodano!
139 m²
4
3
1

5 600 zł

PREZENT 🎁
Zdjęcie 1 projektu HomeKoncept 89 KRX1151
HomeKoncept 89
Dodano!
Dodano!
157,38 m²
4
3
0

6 990 zł

PREZENT 🎁
Zdjęcie 1 projektu APS 289 w2 LUA1515
APS 289 w2
Dodano!
Dodano!
138,50 m²
4
2
1

5 599 zł

PREZENT 🎁
Zdjęcie 1 projektu uA345v1 WCB1508
uA345v1
Dodano!
Dodano!
158,81 m²
4
2
0

5 390 zł

PREZENT 🎁
Zdjęcie 1 projektu Domena 203 A1 WRW1335
Domena 203 A1
Dodano!
Dodano!
138,68 m²
5
2
1

4 500 zł

Nowy aktualny

Szacunkowy koszt budowy

Stan surowy zamknięty

Koszt aktualny na I kwartał 2026

408 000 zł netto

Prace ziemne i fundamenty

46 000 zł

Kompletna konstrukcja,
strop oraz dach

302 000 zł

Stolarka okienna i drzwiowa

60 000 zł

Czy da się obniżyć koszty budowy?
Czy da się obniżyć koszty budowy?

Oczywiście. Wyceniaj materiały budowlane w kilku miejsach (skorzystaj z gotowego zestawienia materiałów), szukaj promocji, negocjuj. Zobacz nasz film jak obniżyć koszt budowy.

Elewacje

Frontowa
Tylna
Lewa
Prawa

Przekroje

Przekrój pionowy

Usytuowanie na działce

Czy ten projekt pasuje na
Twoją działkę?

Chętnie to sprawdzimy!

Czy ten projekt pasuje na
Twoją działkę?

Chętnie to sprawdzimy!

Dowiedz się:

  • czy zmieści się na niej wybrany przez Ciebie dom
  • jakie parametry musi spełniać dom według miejscowego planu zagospodarowania lub warunków zabudowy (np. kąt nachylenia i typ dachu, liczba kondygnacji itp.
  • jakie inne projekty pasują na Twoją działkę – znajdziemy je dla Ciebie!
Autor: Artinex

Dane techniczne projektu

Powierzchnie i wymiary Powierzchnie i wymiary

Powierzchnia użytkowa
Tooltip
Suma powierzchni wszystkich pomieszczeń mieszkalnych, pomniejszona o pow. garażu, kotłowni, strychu, piwnicy. Jest liczona w 100% dla pomieszczeń o wysokości powyżej 2,2 m, w 50% dla pomieszczeń o wys. 2,2-1,4 m i niewliczana dla niższych niż 1,4 m.

172,49 m²

Powierzchnia zabudowy
Tooltip
Powierzchnia zajmowana przez część na- oraz nadziemną budynku liczona, jako rzut pionowy budynku na działkę.

116,15 m²

Kąt nachylenia dachu
Tooltip
Nachylenie połaci dachu głównego podawane w stopniach. Uwaga! W niektórych projektach występuje więcej niż jedno nachylenie dachu.

40°

Wysokość budynku
Tooltip
Wysokość liczona od części budynku położonej najniżej przy powierzchni terenu do najwyższego punktu dachu (kalenicy) z wyłączeniem kominów.

8,47 m

Szerokość elewacji

14,66 m

Długość elewacji

7,86 m

Min. szerokość działki
Tooltip
Najmniejsza możliwa szerokość działki niezbędna do wybudowania wybranego domu. Składa się z szerokości elewacji domu powiększonej z obu stron o 3 m dla ściany bez otworów drzwiowych/okiennych lub 4 m, dla ściany z otworami.

22,96 m

Min. długość działki
Tooltip
Najmniejsza możliwa długość działki niezbędna do wybudowania wybranego domu. Składa się z długości elewacji domu powiększonej z obu stron o 3 m dla ściany bez otworów drzwiowych/okiennych lub 4 m, dla ściany z otworami.

15,86 m

Energooszczędność Energooszczędność

Oze Czym jest OZE (Odnawialne Źródło Energii)?
Ogrzewanie główne

Pompa ciepła (OZE) - szczegóły

Interesuje Cię inne źródło ogrzewania? Wyślij zapytanie lub zadzwoń do doradcy

Wentylacja

Grawitacyjna - szczegóły

Warunki techniczne

Projekt zgody z WT 2021

Technologia i konstrukcja Technologia i konstrukcja

Konstrukcja

Murowana

Opis szczegółowy

Ściany zewnętrzne: murowane z ociepleniem. Strop: żelbetowy. Konstrukcja dachu: krokwiowo-jętkowy. Pokrycie dachu: blacha łączona na rąbek stojący. Elewacja: tynk cienkowarstwowy, okładzina elewacyjna. Ogrzewanie: pompa ciepła wentylacja - grawitacyjna EP70 kWh/m2.rok Projekt zgodny z Wt2021.

Strop

Żelbetowy

Reklama
Okna i drzwi tarasowe

Nowoczesne okna PVC i aluminiowe WIŚNIOWSKI – doskonała izolacja, elegancki design i niezrównana trwałość.

Wiśniowski
Sprawdź parametry!
Okna dachowe

Oferujemy bezpłatne konsultacje w zakresie wszystkich rozwiązań VELUX. Wyceny, porady dotyczące doboru okien i rolet zewnętrznych - sprawdź!

Velux
Sprawdź szczegóły
Pompa ciepła

Wybierz pompę ciepła, która pasuje do Twojego domu. Niezależnie od tego, czy ustawienie wewnątrz czy na zewnątrz, pompy ciepła STIEBEL ELTRON dopasują się do każdej przestrzeni.

Stiebel
Dobierz pompę ciepła
Drzwi

Ciepłe drzwi WIŚNIOWSKI z kontrolą dostępu. Szeroka gama wzorów i kolorów.

Wiśniowski
Wybierz najlepsze
Bramy garażowe

Automatyczne bramy garażowe segmentowe i uchylne WIŚNIOWSKI na wymiar i z systemem smart home w standardzie.

Wiśniowski
Sprawdź ofertę!
Rekuperacja

Alnor - kompletny system rekuperacji. Dobierz idealne rozwiązanie dla Twojego domu!

Alnor
Dobierz rekuperator
Dach

Producent stalowych pokryć dachowych i systemów elewacyjnych. Precyzja wykonania, trwałość na lata i szybki montaż doceniany przez dekarzy. Postaw na solidny dach Budmat.

Budmat
Sprawdź ofertę
Ogrodzenie

Nowoczesne stalowe ogrodzenia Budmat - estetyka, bezpieczeństwo i trwałość na lata. Systemowe rozwiązania na wymiar, dopasowane do każdego domu.

Budmat
Sprawdź ofertę

Gotowe domy - najszybszy sposób na dom (115)

Zobacz wszystkie
  • Stan deweloperski nawet w 6 miesięcy
  • Gwarancja stałej ceny
Skonfiguruj dom
Zdjęcie 1 projektu Bergen 130 HUS1002
130,40 m²
4
Stan deweloperski brutto
529 000 zł 4 057 zł/m²
Zdjęcie 1 projektu Dom prefabrykowany Stodoła 170B HFX1050
175,12 m²
4
Stan deweloperski brutto
650 000 zł 3 712 zł/m²
Zdjęcie 1 projektu Dom prefabrykowany Stodoła 170A HFX1049
175,42 m²
3
Stan deweloperski brutto
650 000 zł 3 705 zł/m²
Zdjęcie 1 projektu Dom prefabrykowany P.6 HPK1005
176,69 m²
4
Stan deweloperski brutto
972 700 zł 5 505 zł/m²
Zdjęcie 1 projektu Dom szkieletowy Viking Smart 220 HHT1032
163,86 m²
4
Stan deweloperski brutto
1 095 606 zł 6 686 zł/m²
Zdjęcie 1 projektu Dom prefabrykowany DH174 HDH1009
162,97 m²
4
Stan deweloperski brutto
1 026 000 zł 6 296 zł/m²
Zdjęcie 1 projektu Dom prefabrykowany P.4 bez okapu HPK1003
162,18 m²
5
Stan deweloperski brutto
723 500 zł 4 461 zł/m²
Zdjęcie 1 projektu Dom prefabrykowany P.4 z okapem HPK1014
162,18 m²
5
Stan deweloperski brutto
739 600 zł 4 560 zł/m²

Opis projektu domu
D448A

Dom jednorodzinny z poddaszem w technologii murowanej.
Czytaj więcej

Informacje dodatkowe

Przy zakupie projektu należy zapłacić 30% zadatku. Projekt stanowi aktualną i pełną dokumentację zawierającą część architektoniczno - budowlaną, konstrukcyjną wykonawczą, instalacji wewnętrznych, elektrycznych i teletechnicznych, charakterystykę energetyczną oraz uprawnienia projektantów. Dokumentacja zabezpieczona jest specjalną plombą, której usunięcie uniemożliwi jej zwrot oraz wymianę. Do zamówienia zostanie dołączony pakiet poglądowych rysunków szczegółowych, pozwalających zapoznać się z projektem bez konieczności zrywania plomby z właściwej dokumentacji projektowej.

Czytaj więcej

Polecani producenci

Kompletne systemy rekuperacji

tło producenta

Alnor

Dowiedz się więcej

Dachy modułowe ze stali

tło producenta

Budmat

Poznaj szczegóły oferty

Prefabrykowane konstrukcje dachowe

tło producenta

WIĄZAR POLSKA

Zobacz więcej
Zobacz więcej

Społeczność projektu domu
D448A w budowie

Dołącz do społeczności osób, które budują ten dom lub są zainteresowane jego budową.

  • Oglądaj zdjęcia z budowy
  • Zadawaj pytania
  • Wymieniaj się doświadczeniami

Opinie o projekcie domu
D448A

Opinie niezweryfikowane

Bądź pierwszy!
Ten projekt nie ma jeszcze opinii, bądź pierwszy!

ikona Dodaj opinię o projekcie

ASYSTENT WYBORU PROJEKTU

Szukasz idealnego projektu? Znajdziemy go dla Ciebie!

Doradca na podstawie Twoich wskazówek przygotuje spersonalizowaną listę projektów

Graficzne opracowanie rzutów poglądowych widocznych na karcie projektu zostało wykonane przez Extradom.pl. Prezentowane przez Extradom.pl wizualizacje wykonane zostały przez autora projektu i należy poczytywać je jedynie za przykład i propozycję wykończenia, wizję architektoniczną autora projektu. Ostateczne wykończenie budynku może nastąpić na wiele sposobów. Szczegółowe rozwiązania zastosowane w oferowanej dokumentacji - w tym również ilość, lokalizacje i wygląd okien, drzwi, kominów - mogą w niewielkim stopniu różnić się od prezentowanej wizualizacji budynku.

REKLAMA
Zamknij