👉 Wiosenne rabaty + karta allegro 200 zł! 🔥

Koniec oferty za:

0dni

00godz.

00min.

00sek.

Sprawdź

Projekt domu Chmielów dw 15 KRP1614

Zapisz Dodano!
Porównaj Dodano!
ikona Pobierz i drukuj
Dodaj opinię

Warstwy

Warstwy

Rzut parteru

Powierzchnia (m²)
Tooltip
Powierzchnia pomieszczenia
to ta, z której faktycznie możesz korzystać – skosy i niskie części poddasza są liczone częściowo lub wcale.
  1. 100% dla wysokości powyżej 2,2 m,
  2. 50% dla wysokości 1,4–2,2 m,
  3. nie liczymy poniżej 1,4 m.

Powierzchnia podłogi
Liczymy po obrysie pomieszczenia, bez względu na jego wysokość/skosy. Jeśli nie ma skosów to powierzchnia podłogi i pomieszczenia jest taka sama.
pomieszczenia i podłogi
podłogi
1. Wiatrołap
7,76
2. Pokój dzienny + kuchnia
39,60
3. Hall
4,58
4. Łazienka
7,05
5. Kotłownia
10,14
6. Pokój
16,54
Razem
85,67
85,67
Powierzchnia (m²)
Tooltip
Powierzchnia pomieszczenia
to ta, z której faktycznie możesz korzystać – skosy i niskie części poddasza są liczone częściowo lub wcale.
  1. 100% dla wysokości powyżej 2,2 m,
  2. 50% dla wysokości 1,4–2,2 m,
  3. nie liczymy poniżej 1,4 m.

Powierzchnia podłogi
Liczymy po obrysie pomieszczenia, bez względu na jego wysokość/skosy. Jeśli nie ma skosów to powierzchnia podłogi i pomieszczenia jest taka sama.
pomieszczenia
podłogi
1. Hall
5,77
10,95
2. Wc
5,52
14,28
3. Pokój
7,29
13,30
4. Pokój
9,19
18,82
5. Garderoba
5,10
10,49
6. Pokój
13,74
25,75
Razem
46,61
93,59

    Usytuowanie na działce

    Czy ten projekt pasuje na
    Twoją działkę?

    Chętnie to sprawdzimy!

    Dowiedz się:

    • czy zmieści się na niej wybrany przez Ciebie dom
    • jakie parametry musi spełniać dom według miejscowego planu zagospodarowania lub warunków zabudowy (np. kąt nachylenia i typ dachu, liczba kondygnacji itp.
    • jakie inne projekty pasują na Twoją działkę – znajdziemy je dla Ciebie!

Pow. użytkowa

122,11 m²

Pokoje

4

Łazienki i WC

2

Garaż

0

Min. szer. i dł. działki

20 x 18,20 m

Kąt dachu

40°

Konstrukcja

Z bali
więcej
Zapisz Dodano!
Porównaj Dodano!
ikona Pobierz i drukuj

Chmielów dw 15 - KRP1614

ikona 122,11 m²
Powierzchnia użytkowa
ikona4
Pokoje (bez salonu)
ikona 2
Łazienki (z toaletami)
ikona 0
Liczba stanowisk garażowych
(z wiatą garażową)
ikona
Konstrukcja: Z bali

Promocja

od 05.05.2026 do 07.05.2026

0dni

00 00 00

5 680 zł

5 880 zł - cena regularna
Tooltip

Cena regularna obowiązywała od 29.04.2026 do 04.05.2026

5 580 zł - najniższa cena z 30 dni przed obniżką

Projekt jest dostępny

Gwarancja najniższej ceny
ikona
Darmowa dostawa
Paczkomaty, kurier
ikona
100 dni na wymianę,
30 dni na zwrot
ikona Zyskaj najwięcej! Extradodatki GRATIS:

15% rabatu do LEROY MERLIN

10% rabatu w CASTORAMIE

16% rabatu w SELSEY

Pakiet Formalności 2026

Przydatne Extradodatki

Poradnik Dach Solarny

ikona Co zawiera projekt?
  • Projekt zgodny z WT2021
  • Bezpłatne pozwolenie na zmiany
  • Charakterystyka energetyczna
Konsultant
71 715 20 60

pon.-pt. 8-21, sob. 9-17

Szukasz wykonawcy godnego zaufania?
Zleć budowę w Extradom.pl!

  • Z góry znasz koszt budowy domu
  • Dom odbierasz zgodnie z ustalonym harmonogramem - nawet w 6 miesięcy
  • Zabezpiecza Cię jedna kompleksowa umowa z jednym wykonawcą
  • Otrzymujesz nawet 30-letnią gwarancję na konstrukcję domu
  • Oszczędzasz swój czas dzięki pewnej i kompletnej usłudze
  • Odbiór techniczny GRATIS - Gwarantujemy najwyższą jakość
Cena brutto stanu
deweloperskiego od
Tooltip
Cena brutto stanu deweloperskiego od 4 419 do 5 579 zł/m2.
Cena jest uzależniona m.in. od lokalizacji, wybranej technologii, kubatury budynku, skomplikowania projektu i ewentualnych zmian, na które zdecyduje się inwestor.
Cena za m2 powierzchni netto, czyli wszystkich pomieszczeń mierzonych na wysokości podłogi.
4 419 zł/m2
Dowiedz się więcej
Konsultant Masz pytania?
Zadzwoń
71 715 20 09

pon.-pt. 8-19

Parter - 85,67 m²

Parter projektu Chmielów dw 15

Zapytaj, co możesz zmienić

Powierzchnia (m²)
Tooltip
Powierzchnia pomieszczenia
to ta, z której faktycznie możesz korzystać – skosy i niskie części poddasza są liczone częściowo lub wcale.
  1. 100% dla wysokości powyżej 2,2 m,
  2. 50% dla wysokości 1,4–2,2 m,
  3. nie liczymy poniżej 1,4 m.

Powierzchnia podłogi
Liczymy po obrysie pomieszczenia, bez względu na jego wysokość/skosy. Jeśli nie ma skosów to powierzchnia podłogi i pomieszczenia jest taka sama.
pomieszczenia i podłogi
podłogi
1. Wiatrołap
7,76
2. Pokój dzienny + kuchnia
39,60
3. Hall
4,58
4. Łazienka
7,05
5. Kotłownia
10,14
6. Pokój
16,54
Razem
85,67
85,67

Natychmiast, otrzymasz PDF-y
z rzutami wszystkich kondygnacji

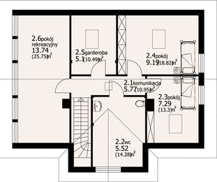
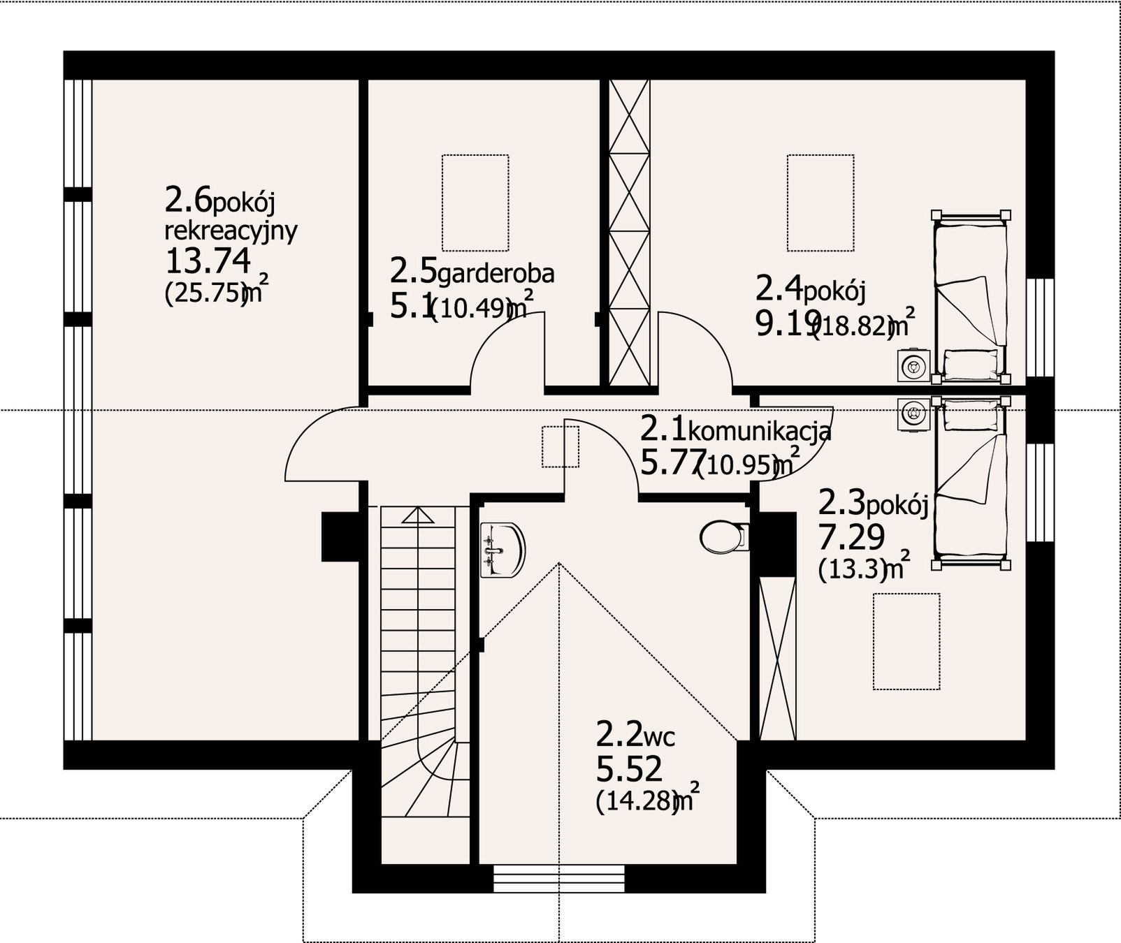
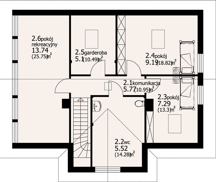
Poddasze - 46,61 m²

Poddasze projektu Chmielów dw 15

Zapytaj, co możesz zmienić

Powierzchnia (m²)
Tooltip
Powierzchnia pomieszczenia
to ta, z której faktycznie możesz korzystać – skosy i niskie części poddasza są liczone częściowo lub wcale.
  1. 100% dla wysokości powyżej 2,2 m,
  2. 50% dla wysokości 1,4–2,2 m,
  3. nie liczymy poniżej 1,4 m.

Powierzchnia podłogi
Liczymy po obrysie pomieszczenia, bez względu na jego wysokość/skosy. Jeśli nie ma skosów to powierzchnia podłogi i pomieszczenia jest taka sama.
pomieszczenia
podłogi
1. Hall
5,77
10,95
2. Wc
5,52
14,28
3. Pokój
7,29
13,30
4. Pokój
9,19
18,82
5. Garderoba
5,10
10,49
6. Pokój
13,74
25,75
Razem
46,61
93,59

Natychmiast, otrzymasz PDF-y
z rzutami wszystkich kondygnacji

Zamów rysunki szczegółowe

Zapoznaj się ze szczegółowymi rysunkami rzutów kondygnacji w PDF dla tego projektu.

Warianty projektu (18)

PROMOCJA
Projekt domu Chmielów
Chmielów
Dodano!
Dodano!
94,74 m²
3
1
0

4 680 zł

4 880 zł

Tooltip

Cena regularna

4 580 zł najniższa cena
Tooltip

Najniższa cena z 30 dni
przed obniżką

PROMOCJA
Projekt domu Chmielów dw 11
Chmielów dw 11
Dodano!
Dodano!
139,89 m²
3
2
0

5 780 zł

5 980 zł

Tooltip

Cena regularna

5 680 zł najniższa cena
Tooltip

Najniższa cena z 30 dni
przed obniżką

PROMOCJA
Projekt domu Chmielów z garażem
Chmielów z garażem
Dodano!
Dodano!
94,74 m²
3
1
1

5 080 zł

5 280 zł

Tooltip

Cena regularna

4 980 zł najniższa cena
Tooltip

Najniższa cena z 30 dni
przed obniżką

PROMOCJA
Projekt domu Chmielów dw 25 pcr
Chmielów dw 25 pcr
Dodano!
Dodano!
150,73 m²
4
2
0

6 080 zł

6 280 zł

Tooltip

Cena regularna

5 980 zł najniższa cena
Tooltip

Najniższa cena z 30 dni
przed obniżką

PROMOCJA
Projekt domu Chmielów dw 35
Chmielów dw 35
Dodano!
Dodano!
165,10 m²
4
2
0

6 680 zł

6 880 zł

Tooltip

Cena regularna

6 580 zł najniższa cena
Tooltip

Najniższa cena z 30 dni
przed obniżką

PROMOCJA
Projekt domu Chmielów dw
Chmielów dw
Dodano!
Dodano!
95,25 m²
3
1
0

5 280 zł

5 480 zł

Tooltip

Cena regularna

5 180 zł najniższa cena
Tooltip

Najniższa cena z 30 dni
przed obniżką

PROMOCJA
Projekt domu Chmielów dw 25
Chmielów dw 25
Dodano!
Dodano!
154,23 m²
4
2
0

6 080 zł

6 280 zł

Tooltip

Cena regularna

5 980 zł najniższa cena
Tooltip

Najniższa cena z 30 dni
przed obniżką

PROMOCJA
Projekt domu Chmielów dws
Chmielów dws
Dodano!
Dodano!
96,83 m²
3
1
0

5 080 zł

5 280 zł

Tooltip

Cena regularna

4 980 zł najniższa cena
Tooltip

Najniższa cena z 30 dni
przed obniżką

PROMOCJA
Projekt domu Chmielów dw 45
Chmielów dw 45
Dodano!
Dodano!
91,29 m²
1
1
0

5 480 zł

5 680 zł

Tooltip

Cena regularna

5 380 zł najniższa cena
Tooltip

Najniższa cena z 30 dni
przed obniżką

PROMOCJA
Projekt domu Chmielów 3 dw z garażem
Chmielów 3 dw z garażem
Dodano!
Dodano!
89,19 m²
3
2
1

5 380 zł

5 580 zł

Tooltip

Cena regularna

5 280 zł najniższa cena
Tooltip

Najniższa cena z 30 dni
przed obniżką

PROMOCJA
Projekt domu Chmielów dw 29
Chmielów dw 29
Dodano!
Dodano!
207,88 m²
5
3
0

6 980 zł

7 180 zł

Tooltip

Cena regularna

6 880 zł najniższa cena
Tooltip

Najniższa cena z 30 dni
przed obniżką

PROMOCJA
Projekt domu Chmielów dwsgt
Chmielów dwsgt
Dodano!
Dodano!
96,83 m²
3
1
1

5 480 zł

5 680 zł

Tooltip

Cena regularna

5 380 zł najniższa cena
Tooltip

Najniższa cena z 30 dni
przed obniżką

PROMOCJA
Projekt domu Chmielów 13 dwsgt
Chmielów 13 dwsgt
Dodano!
Dodano!
103,15 m²
3
2
1

5 380 zł

5 580 zł

Tooltip

Cena regularna

5 280 zł najniższa cena
Tooltip

Najniższa cena z 30 dni
przed obniżką

PROMOCJA
Projekt domu Chmielów 6 dws
Chmielów 6 dws
Dodano!
Dodano!
103,35 m²
3
2
0

5 380 zł

5 580 zł

Tooltip

Cena regularna

5 280 zł najniższa cena
Tooltip

Najniższa cena z 30 dni
przed obniżką

PROMOCJA
Projekt domu Chmielów dw 5g
Chmielów dw 5g
Dodano!
Dodano!
95,03 m²
3
1
1

5 680 zł

5 880 zł

Tooltip

Cena regularna

5 580 zł najniższa cena
Tooltip

Najniższa cena z 30 dni
przed obniżką

PROMOCJA
Projekt domu Chmielów z garażem 35
Chmielów z garażem 35
Dodano!
Dodano!
97,13 m²
3
2
1

5 080 zł

5 280 zł

Tooltip

Cena regularna

4 980 zł najniższa cena
Tooltip

Najniższa cena z 30 dni
przed obniżką

PROMOCJA
Projekt domu Chmielów m9
Chmielów m9
Dodano!
Dodano!
102,70 m²
3
1
2

5 280 zł

5 480 zł

Tooltip

Cena regularna

5 180 zł najniższa cena
Tooltip

Najniższa cena z 30 dni
przed obniżką

PROMOCJA
Projekt domu Chmielów dw 19
Chmielów dw 19
Dodano!
Dodano!
100,11 m²
3
2
1

5 780 zł

5 980 zł

Tooltip

Cena regularna

5 680 zł najniższa cena
Tooltip

Najniższa cena z 30 dni
przed obniżką

Podobne projekty (151)

Zobacz wszystkie
NIŻSZA CENA 🔥
Zdjęcie 1 projektu Nastrój III P KDX1012
Nastrój III P
Dodano!
Dodano!
143,20 m²
4
2
0

6 800 zł

7 000 zł

Tooltip

Cena regularna

6 800 zł najniższa cena
Tooltip

Najniższa cena z 30 dni
przed obniżką

NIŻSZA CENA 🔥
Zdjęcie 1 projektu Tekla (766) KRD1863
Tekla (766)
Dodano!
Dodano!
113,90 m²
3
2
1

4 540 zł

4 890 zł

Tooltip

Cena regularna

4 540 zł najniższa cena
Tooltip

Najniższa cena z 30 dni
przed obniżką

NIŻSZA CENA 🔥
Zdjęcie 1 projektu Avalon szkielet drewniany, dom mieszkalny jednorodzinny z poddaszem użytkowym SLN2360
131,49 m²
4
2
0

3 499 zł

3 799 zł

Tooltip

Cena regularna

3 499 zł najniższa cena
Tooltip

Najniższa cena z 30 dni
przed obniżką

NIŻSZA CENA 🔥
Zdjęcie 1 projektu L-58 Dom zimowa - z bali BBD1082
L-58 Dom zimowa - z bali
Dodano!
Dodano!
121,60 m²
4
2
0

3 899 zł

4 299 zł

Tooltip

Cena regularna

3 899 zł najniższa cena
Tooltip

Najniższa cena z 30 dni
przed obniżką

NIŻSZA CENA 🔥
Zdjęcie 1 projektu A-151 Dom świerkowa z bali BBD1272
A-151 Dom świerkowa z bali
Dodano!
Dodano!
115,50 m²
3
3
0

3 799 zł

4 099 zł

Tooltip

Cena regularna

3 799 zł najniższa cena
Tooltip

Najniższa cena z 30 dni
przed obniżką

NIŻSZA CENA 🔥
Zdjęcie 1 projektu L-88 Dom z bali BBD1124
L-88 Dom z bali
Dodano!
Dodano!
117,10 m²
4
2
0

3 499 zł

3 799 zł

Tooltip

Cena regularna

3 499 zł najniższa cena
Tooltip

Najniższa cena z 30 dni
przed obniżką

NIŻSZA CENA 🔥
Zdjęcie 1 projektu Drozdowo dw KRP2680
Drozdowo dw
Dodano!
Dodano!
137,04 m²
4
2
0

5 580 zł

5 780 zł

Tooltip

Cena regularna

5 480 zł najniższa cena
Tooltip

Najniższa cena z 30 dni
przed obniżką

NIŻSZA CENA 🔥
Zdjęcie 1 projektu Osiek 301dw KRP1865
Osiek 301dw
Dodano!
Dodano!
127,59 m²
3
2
0

5 680 zł

5 880 zł

Tooltip

Cena regularna

5 580 zł najniższa cena
Tooltip

Najniższa cena z 30 dni
przed obniżką

Projekt z budową

Budowa Projekt z budową

Zbuduj ten dom z naszym Partnerem - wygodnie, szybko i bezpiecznie

Projekt z budową to:

  • gwarancja niezmiennego kosztu budowy

  • krótki czas realizacji - dom gotowy nawet w 6 miesięcy

  • wieloletnia gwarancja na konstrukcję domu

Elewacje

Frontowa
Tylna
Lewa
Prawa

Przekroje

Przekrój pionowy

Usytuowanie na działce

Czy ten projekt pasuje na
Twoją działkę?

Chętnie to sprawdzimy!

Czy ten projekt pasuje na
Twoją działkę?

Chętnie to sprawdzimy!

Dowiedz się:

  • czy zmieści się na niej wybrany przez Ciebie dom
  • jakie parametry musi spełniać dom według miejscowego planu zagospodarowania lub warunków zabudowy (np. kąt nachylenia i typ dachu, liczba kondygnacji itp.
  • jakie inne projekty pasują na Twoją działkę – znajdziemy je dla Ciebie!
Autor: Dom-Projekt

Dane techniczne projektu

Powierzchnie i wymiary Powierzchnie i wymiary

Powierzchnia użytkowa
Tooltip
Suma powierzchni wszystkich pomieszczeń mieszkalnych, pomniejszona o pow. garażu, kotłowni, strychu, piwnicy. Jest liczona w 100% dla pomieszczeń o wysokości powyżej 2,2 m, w 50% dla pomieszczeń o wys. 2,2-1,4 m i niewliczana dla niższych niż 1,4 m.

122,11 m²

Wysokość ściany kolankowej
Tooltip
Wysokość ściany podpierającej dach. Jej wysokość wpływa na powierzchnię użytkową kondygnacji, na której się znajduje.

0,25 m

Powierzchnia zabudowy
Tooltip
Powierzchnia zajmowana przez część na- oraz nadziemną budynku liczona, jako rzut pionowy budynku na działkę.

111,90 m²

Powierzchnia netto
Tooltip
Powierzchna wszystkich pomieszczeń w budynku mierzona na wysokości podłogi.

184,17 m²

Kubatura brutto
Tooltip
Zazwyczaj jest to suma kubatur (objętości) wszystkich pomieszczeń budynku, liczonych po zewnętrznym obrysie murów (z ociepleniem).

516 m³

Powierzchnia dachu

187,90 m²

Kąt nachylenia dachu
Tooltip
Nachylenie połaci dachu głównego podawane w stopniach. Uwaga! W niektórych projektach występuje więcej niż jedno nachylenie dachu.

40°

Wysokość budynku
Tooltip
Wysokość liczona od części budynku położonej najniżej przy powierzchni terenu do najwyższego punktu dachu (kalenicy) z wyłączeniem kominów.

7,75 m

Szerokość elewacji

12 m

Długość elewacji

9,60 m

Min. szerokość działki
Tooltip
Najmniejsza możliwa szerokość działki niezbędna do wybudowania wybranego domu. Składa się z szerokości elewacji domu powiększonej z obu stron o 3 m dla ściany bez otworów drzwiowych/okiennych lub 4 m, dla ściany z otworami.

20 m

Min. długość działki
Tooltip
Najmniejsza możliwa długość działki niezbędna do wybudowania wybranego domu. Składa się z długości elewacji domu powiększonej z obu stron o 3 m dla ściany bez otworów drzwiowych/okiennych lub 4 m, dla ściany z otworami.

18,20 m

Energooszczędność Energooszczędność

Oze Czym jest OZE (Odnawialne Źródło Energii)?
Ep
Tooltip
Energia pierwotna określa ilość energii nieodnawialnej potrzebnej w ciągu roku do ogrzewania czy też ogrzania wody użytkowej z uwzględnieniem kosztów produkcji i transportu surowców energetycznych.

31,73 kWh/(m²rok)

Ogrzewanie główne

Gazowe lub paliwo stałe (OZE) - do wyboru na etapie adaptacji

Interesuje Cię inne źródło ogrzewania? Wyślij zapytanie lub zadzwoń do doradcy

Wentylacja

Grawitacyjna - szczegóły

Warunki techniczne

Projekt zgody z WT 2021

Technologia i konstrukcja Technologia i konstrukcja

Konstrukcja

Z bali

PROJEKT Z BUDOWĄ Istnieje możliwość zaadaptowania tego projektu do technologii prefabrykowanej/modułowej i budowy nawet w 6 miesięcy ze stałym kosztem budowy

Dowiedz się więcej »
Opis szczegółowy

Wysokość ścianki kolankowej: 0.25 m. Strop: drewniany. Pokrycie dachu: dachówka ceramiczna. Ściany zewnętrzne: płazy drewniane + wełna mineralna + deska. Ściany wewnętrzne: płazy drewniane. Typ ogrzewania: kocioł gazowy lub kocioł na paliwo stałe. Inne: okna połaciowe Velux.

Strop

Drewniany

Reklama
Okna i drzwi tarasowe

Nowoczesne okna PVC i aluminiowe WIŚNIOWSKI – doskonała izolacja, elegancki design i niezrównana trwałość.

Wiśniowski
Sprawdź parametry!
Okna dachowe

Oferujemy bezpłatne konsultacje w zakresie wszystkich rozwiązań VELUX. Wyceny, porady dotyczące doboru okien i rolet zewnętrznych - sprawdź!

Velux
Sprawdź szczegóły
Pompa ciepła

Wybierz pompę ciepła, która pasuje do Twojego domu. Niezależnie od tego, czy ustawienie wewnątrz czy na zewnątrz, pompy ciepła STIEBEL ELTRON dopasują się do każdej przestrzeni.

Stiebel
Dobierz pompę ciepła
Drzwi

Ciepłe drzwi WIŚNIOWSKI z kontrolą dostępu. Szeroka gama wzorów i kolorów.

Wiśniowski
Wybierz najlepsze
Bramy garażowe

Automatyczne bramy garażowe segmentowe i uchylne WIŚNIOWSKI na wymiar i z systemem smart home w standardzie.

Wiśniowski
Sprawdź ofertę!
Rekuperacja

Alnor - kompletny system rekuperacji. Dobierz idealne rozwiązanie dla Twojego domu!

Alnor
Dobierz rekuperator
Dach

Producent stalowych pokryć dachowych i systemów elewacyjnych. Precyzja wykonania, trwałość na lata i szybki montaż doceniany przez dekarzy. Postaw na solidny dach Budmat.

Budmat
Sprawdź ofertę
Ogrodzenie

Nowoczesne stalowe ogrodzenia Budmat - estetyka, bezpieczeństwo i trwałość na lata. Systemowe rozwiązania na wymiar, dopasowane do każdego domu.

Budmat
Sprawdź ofertę

Gotowe domy - najszybszy sposób na dom (115)

Zobacz wszystkie
  • Stan deweloperski nawet w 6 miesięcy
  • Gwarancja stałej ceny
Skonfiguruj dom
Zdjęcie 1 projektu Bergen 130 HUS1002
130,40 m²
4
Stan deweloperski brutto
529 000 zł 4 057 zł/m²
Zdjęcie 1 projektu Dom szkieletowy Twin Smart 170 HHT1031
121,95 m²
5
Stan deweloperski brutto
1 650 700 zł 13 536 zł/m²
Zdjęcie 1 projektu Dom prefabrykowany Parterowy 120A HFX1047
122,73 m²
3
Stan deweloperski brutto
515 000 zł 4 196 zł/m²
Zdjęcie 1 projektu Dom prefabrykowany P.3 z okapem HPK1013
121,46 m²
5
Stan deweloperski brutto
630 000 zł 5 187 zł/m²
Zdjęcie 1 projektu Dom prefabrykowany P.3 bez okapu HPK1002
121,46 m²
5
Stan deweloperski brutto
617 300 zł 5 082 zł/m²
Zdjęcie 1 projektu Dom prefabrykowany Parterowy 120B HFX1048
123,51 m²
4
Stan deweloperski brutto
515 000 zł 4 170 zł/m²
Zdjęcie 1 projektu Dom prefabrykowany FastHome 120 HFX1033
120,04 m²
4
Stan deweloperski brutto
530 000 zł 4 415 zł/m²
Zdjęcie 1 projektu Dom szkieletowy Emily Smart 120 HHT1026
120 m²
3
Stan deweloperski brutto
592 512 zł 4 938 zł/m²

Dodatki do projektu

Dodatki możesz zamówić w koszyku lub telefonicznie u naszego Doradcy.

Ikona

Bestseller

Dodatkowy egzemplarz projektu

400 zł

Opis projektu domu
Chmielów dw 15

Dom Chmielów dw 15 jest wariantem znanego projektu Chmielów. W odróżnieniu od pierwotnej wersji projekt ma więcej pokoi, większą powierzchnię. Projekt domu Chmielów dw 15 jest doskonałym rozwiązaniem dla osób posiadających średniej szerokości działkę. Dom cechuje się prostą bryłą, więc jego realizacja nie pochłonie zbyt wielu środków finansowych. W tym projekcie kalenica skierowana jest równolegle do drogi, co często określane jest w planie zagospodarowania przestrzennego. Dom został stworzony do zabudowy wolnostojącej. Jest to również ciekawa propozycja dla osób szukających domu z dachem dwuspadowym, co pozwala na ograniczenie kosztów. Projekt Chmielów dw 15 to dom parterowy z poddaszem użytkowym, dzięki czemu możemy cieszyć się sporym metrażem nawet na stosunkowo niedużej działce. Warto zwrócić uwagę na przestronną część dzienną. Otwarta kuchnia to rozwiązanie dające wiele możliwości aranżacyjnych, zarówno nowoczesnych jak i tradycyjnych. Ciekawym elementem jest z pewnością usytuowany w salonie kominek, który nada wnętrzu niepowtarzalny klimat. W domu znajdują się trzy wygodne sypialnie, co sprawia iż jest on doskonałym wyborem dla 4-6 osobowej rodziny. Przestrzeń można wykorzystać także jako pokój dla gości lub gabinet. Taras jest idealnym miejscem do organizowania rodzinnych spotkań i chwili relaksu. W jego bryle widoczne są rozwiązania nawiązujące do stylu tradycyjnego, dzięki czemu idealnie wpisze się w dowolny krajobraz.
Czytaj więcej

Polecani producenci

Kompletne systemy rekuperacji

tło producenta

Alnor

Dowiedz się więcej

Dachy modułowe ze stali

tło producenta

Budmat

Poznaj szczegóły oferty

Prefabrykowane konstrukcje dachowe

tło producenta

WIĄZAR POLSKA

Zobacz więcej
Zobacz więcej

Społeczność projektu domu
Chmielów dw 15 w budowie

Dołącz do społeczności osób, które budują ten dom lub są zainteresowane jego budową.

  • Oglądaj zdjęcia z budowy
  • Zadawaj pytania
  • Wymieniaj się doświadczeniami

Opinie o projekcie domu
Chmielów dw 15

Opinie niezweryfikowane

Bądź pierwszy!
Ten projekt nie ma jeszcze opinii, bądź pierwszy!

ikona Dodaj opinię o projekcie

ASYSTENT WYBORU PROJEKTU

Szukasz idealnego projektu? Znajdziemy go dla Ciebie!

Doradca na podstawie Twoich wskazówek przygotuje spersonalizowaną listę projektów

Graficzne opracowanie rzutów poglądowych widocznych na karcie projektu zostało wykonane przez Extradom.pl. Prezentowane przez Extradom.pl wizualizacje wykonane zostały przez autora projektu i należy poczytywać je jedynie za przykład i propozycję wykończenia, wizję architektoniczną autora projektu. Ostateczne wykończenie budynku może nastąpić na wiele sposobów. Szczegółowe rozwiązania zastosowane w oferowanej dokumentacji - w tym również ilość, lokalizacje i wygląd okien, drzwi, kominów - mogą w niewielkim stopniu różnić się od prezentowanej wizualizacji budynku.

Extradom.pl Spółka z ograniczoną odpowiedzialnością z siedzibą przy ul. Jaworskiej 13, 53-612 Wrocław, wpisana do rejestru przedsiębiorców Krajowego Rejestru Sądowego przez Sąd Rejonowy dla Wrocławia-Fabrycznej we Wrocławiu, VI Wydział Gospodarczy Krajowego Rejestru Sądowego do pod numerem KRS 0000648746, numer NIP 895-17-18-333, o kapitale zakładowym 708 150,00 zł uprzejmie informuje, iż poprzez serwis Extradom.pl umożliwia m.in. zapoznanie się przez konsumentów z ofertą handlową Partnerów Extradom.pl, którzy stosują metody budowy domów przy wykorzystaniu różnego rodzaju technologie prefabrykacji bądź modułowe (tzw. „Gotowe domy”).

Extradom.pl nie prowadzi jednakże sprzedaży ani nie oferuje usług polegających na doradztwie finansowym, prawnym ani podatkowym w zakresie inwestycji realizowanych w technologiach tzw. „Gotowych domów”. Informacje prezentowane w serwisie Extradom.pl dotyczące Partnerów Extradom.pl oferujących realizację inwestycji w technologiach „Gotowych domów” lub podobnych mają charakter informacyjny i reklamowy.

Prezentowane w serwisie Extradom.pl informacje dotyczące stosowanych przez Partnerów metod budowy domów w technologii prefabrykacji bądź modułowej pochodzą od Partnerów Extradom.pl.

Extradom.pl sp. z o.o. jedynie umożliwia nawiązanie kontaktu przez Użytkownika z Partnerem Extradom.pl stosującym tego rodzaju technologie budowy domów i nie jest stroną umowy o roboty budowlane zawieranej przez Użytkownika Extradom.pl z Partnerem Extradom.pl.

REKLAMA
Zamknij