👉 Rozgrzewające rabaty! 🔥

Projekt domu Bliźniak B04 - 2 x WM02 GDB1064

Dodano!
Dodano!

Warstwy

Warstwy

Warstwy

Rzut parteru

Powierzchnia (m²)
Tooltip
Powierzchnia pomieszczenia
to ta, z której faktycznie możesz korzystać – skosy i niskie części poddasza są liczone częściowo lub wcale.
  1. 100% dla wysokości powyżej 2,2 m,
  2. 50% dla wysokości 1,4–2,2 m,
  3. nie liczymy poniżej 1,4 m.

Powierzchnia podłogi (wartość w nawiasie)
Liczymy po całym obrysie pomieszczenia, bez względu na jego wysokość.
54,88
1. Korytarz
6,05
2. Pokój
21,61
3. Pokój
8,20
4. Sauna
8,85
5. Wc
1,32
6. Pomieszczenie gospodarcze
8,85
Powierzchnia (m²)
Tooltip
Powierzchnia pomieszczenia
to ta, z której faktycznie możesz korzystać – skosy i niskie części poddasza są liczone częściowo lub wcale.
  1. 100% dla wysokości powyżej 2,2 m,
  2. 50% dla wysokości 1,4–2,2 m,
  3. nie liczymy poniżej 1,4 m.

Powierzchnia podłogi (wartość w nawiasie)
Liczymy po całym obrysie pomieszczenia, bez względu na jego wysokość.
74,45
7. Wiatrołap
2,72
8. Korytarz
2,75
9. Wc
2,86
10. Kuchnia
8,30
11. Pokój dzienny
34,36
12. Garaż jednostanowiskowy
23,46
Powierzchnia (m²)
Tooltip
Powierzchnia pomieszczenia
to ta, z której faktycznie możesz korzystać – skosy i niskie części poddasza są liczone częściowo lub wcale.
  1. 100% dla wysokości powyżej 2,2 m,
  2. 50% dla wysokości 1,4–2,2 m,
  3. nie liczymy poniżej 1,4 m.

Powierzchnia podłogi (wartość w nawiasie)
Liczymy po całym obrysie pomieszczenia, bez względu na jego wysokość.
(72,80)
56,94
13. Korytarz
7,40
14. Pokój
(13,50)
10,50
15. Pokój
(13,70)
10,67
16. Pokój
(7,80)
6,48
17. Pokój
(21,90)
15
18. Garderoba
(1,60)
1,39
19. Łazienka
(6,90)
5,50

    Usytuowanie na działce

    Czy ten projekt pasuje na
    Twoją działkę?

    Chętnie to sprawdzimy!

    Dowiedz się:

    • czy zmieści się na niej wybrany przez Ciebie dom
    • jakie parametry musi spełniać dom według miejscowego planu zagospodarowania lub warunków zabudowy (np. kąt nachylenia i typ dachu, liczba kondygnacji itp.
    • jakie inne projekty pasują na Twoją działkę – znajdziemy je dla Ciebie!

Pow. użytkowa

131,39 m²

Pokoje

6

Łazienki i WC

2

Garaż

1

Min. szer. i dł. działki

15,1 x 18,20 m

Kąt dachu

40°
więcej

Bliźniak B04 - 2 x WM02 - GDB1064

ikona 131,39 m²
Powierzchnia użytkowa
ikona6
Pokoje (bez salonu)
ikona 2
Łazienki (z toaletami)
ikona 1
Liczba stanowisk garażowych
(z wiatą garażową)

Projekt został
wycofany z oferty

W razie pytań prosimy o kontakt
z Centrum Obsługi Klienta
Konsultant Masz pytania?
Zadzwoń
71 715 20 60

pon.-pt. 8-21, sob. 9-17

Piwnica - 54,88 m²

Piwnica projektu Bliźniak B04 - 2 x WM02

Zapytaj, co możesz zmienić

Powierzchnia (m²)
Tooltip
Powierzchnia pomieszczenia
to ta, z której faktycznie możesz korzystać – skosy i niskie części poddasza są liczone częściowo lub wcale.
  1. 100% dla wysokości powyżej 2,2 m,
  2. 50% dla wysokości 1,4–2,2 m,
  3. nie liczymy poniżej 1,4 m.

Powierzchnia podłogi (wartość w nawiasie)
Liczymy po całym obrysie pomieszczenia, bez względu na jego wysokość.
(54,88)
54,88
1. Korytarz
6,05
2. Pokój
21,61
3. Pokój
8,20
4. Sauna
8,85
5. Wc
1,32
6. Pomieszczenie gospodarcze
8,85

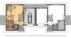
Parter - 74,45 m²

Parter projektu Bliźniak B04 - 2 x WM02

Zapytaj, co możesz zmienić

Powierzchnia (m²)
Tooltip
Powierzchnia pomieszczenia
to ta, z której faktycznie możesz korzystać – skosy i niskie części poddasza są liczone częściowo lub wcale.
  1. 100% dla wysokości powyżej 2,2 m,
  2. 50% dla wysokości 1,4–2,2 m,
  3. nie liczymy poniżej 1,4 m.

Powierzchnia podłogi (wartość w nawiasie)
Liczymy po całym obrysie pomieszczenia, bez względu na jego wysokość.
(74,45)
74,45
7. Wiatrołap
2,72
8. Korytarz
2,75
9. Wc
2,86
10. Kuchnia
8,30
11. Pokój dzienny
34,36
12. Garaż jednostanowiskowy
23,46

Poddasze - 56,94 m²

Poddasze projektu Bliźniak B04 - 2 x WM02

Zapytaj, co możesz zmienić

Powierzchnia (m²)
Tooltip
Powierzchnia pomieszczenia
to ta, z której faktycznie możesz korzystać – skosy i niskie części poddasza są liczone częściowo lub wcale.
  1. 100% dla wysokości powyżej 2,2 m,
  2. 50% dla wysokości 1,4–2,2 m,
  3. nie liczymy poniżej 1,4 m.

Powierzchnia podłogi (wartość w nawiasie)
Liczymy po całym obrysie pomieszczenia, bez względu na jego wysokość.
(72,80)
56,94
13. Korytarz
7,40
14. Pokój
(13,50)
10,50
15. Pokój
(13,70)
10,67
16. Pokój
(7,80)
6,48
17. Pokój
(21,90)
15
18. Garderoba
(1,60)
1,39
19. Łazienka
(6,90)
5,50

Podobne projekty (4888)

Zobacz wszystkie
Zdjęcie 1 projektu Arabeska WRN1556
Arabeska
Dodano!
Dodano!
105 m²
4
2
1

3 995 zł

NIŻSZA CENA ✂️
Nowość
Zdjęcie 1 projektu APS 107 wariant 2 LUA1671
APS 107 wariant 2
Dodano!
Dodano!
118,80 m²
3
2
1

4 049 zł

4 599 zł

Tooltip

Cena regularna

3 999 zł najniższa cena
Tooltip

Najniższa cena z 30 dni
przed obniżką

NIŻSZA CENA ✂️
Zdjęcie 1 projektu Alicja 2 BSA1839
Alicja 2
Dodano!
Dodano!
112,90 m²
4
2
1

4 399 zł

4 749 zł

Tooltip

Cena regularna

4 249 zł najniższa cena
Tooltip

Najniższa cena z 30 dni
przed obniżką

NIŻSZA CENA ✂️
Zdjęcie 1 projektu Malina Alfa (1523) KRD2670
Malina Alfa (1523)
Dodano!
Dodano!
111 m²
4
2
1

4 340 zł

4 690 zł

Tooltip

Cena regularna

4 140 zł najniższa cena
Tooltip

Najniższa cena z 30 dni
przed obniżką

NIŻSZA CENA ✂️
Zdjęcie 1 projektu Malutki 5 BSA2263
Malutki 5
Dodano!
Dodano!
119,58 m²
3
2
0

5 399 zł

5 749 zł

Tooltip

Cena regularna

5 249 zł najniższa cena
Tooltip

Najniższa cena z 30 dni
przed obniżką

NIŻSZA CENA ✂️
Zdjęcie 1 projektu Dom przy Migdałowej 6 KRK1744
Dom przy Migdałowej 6
Dodano!
Dodano!
105,16 m²
3
2
1

3 490 zł

3 990 zł

Tooltip

Cena regularna

3 390 zł najniższa cena
Tooltip

Najniższa cena z 30 dni
przed obniżką

NIŻSZA CENA ✂️
Zdjęcie 1 projektu Ranczo WAH1049
Ranczo
Dodano!
Dodano!
122,14 m²
3
2
0

4 920 zł

6 150 zł

Tooltip

Cena regularna

4 612 zł najniższa cena
Tooltip

Najniższa cena z 30 dni
przed obniżką

Zdjęcie 1 projektu uA88 WCB1129
uA88
Dodano!
Dodano!
125,69 m²
3
2
1

4 190 zł

Usytuowanie na działce

Czy ten projekt pasuje na
Twoją działkę?

Chętnie to sprawdzimy!

Czy ten projekt pasuje na
Twoją działkę?

Chętnie to sprawdzimy!

Dowiedz się:

  • czy zmieści się na niej wybrany przez Ciebie dom
  • jakie parametry musi spełniać dom według miejscowego planu zagospodarowania lub warunków zabudowy (np. kąt nachylenia i typ dachu, liczba kondygnacji itp.
  • jakie inne projekty pasują na Twoją działkę – znajdziemy je dla Ciebie!
Autor: Wm

Dane techniczne projektu

Powierzchnie i wymiary Powierzchnie i wymiary

Powierzchnia użytkowa
Tooltip
Suma powierzchni wszystkich pomieszczeń mieszkalnych, pomniejszona o pow. garażu, kotłowni, strychu, piwnicy. Jest liczona w 100% dla pomieszczeń o wysokości powyżej 2,2 m, w 50% dla pomieszczeń o wys. 2,2-1,4 m i niewliczana dla niższych niż 1,4 m.

131,39 m²

Powierzchnia zabudowy
Tooltip
Powierzchnia zajmowana przez część na- oraz nadziemną budynku liczona, jako rzut pionowy budynku na działkę.

95,70 m²

Kąt nachylenia dachu
Tooltip
Nachylenie połaci dachu głównego podawane w stopniach. Uwaga! W niektórych projektach występuje więcej niż jedno nachylenie dachu.

40°

Wysokość budynku
Tooltip
Wysokość liczona od części budynku położonej najniżej przy powierzchni terenu do najwyższego punktu dachu (kalenicy) z wyłączeniem kominów.

7,63 m

Min. szerokość działki
Tooltip
Najmniejsza możliwa szerokość działki niezbędna do wybudowania wybranego domu. Składa się z szerokości elewacji domu powiększonej z obu stron o 3 m dla ściany bez otworów drzwiowych/okiennych lub 4 m, dla ściany z otworami.

15,10 m

Min. długość działki
Tooltip
Najmniejsza możliwa długość działki niezbędna do wybudowania wybranego domu. Składa się z długości elewacji domu powiększonej z obu stron o 3 m dla ściany bez otworów drzwiowych/okiennych lub 4 m, dla ściany z otworami.

18,20 m

Energooszczędność Energooszczędność

Oze Czym jest OZE (Odnawialne Źródło Energii)?
Warunki techniczne

Projekt zgody z WT 2021

Technologia i konstrukcja Technologia i konstrukcja

Opis szczegółowy

Projekt domu B04 Wymiary i powierzchnie podane są dla jednego segmentu gdyż cały bliźniak składa się z zestawionych ze sobą domów WM02 i WM02L. W projekcie W02 Orlik przeznaczonym dla cztero - lub pięcioosobowej rodziny wyraźnie oddzielono (na dwóch poziomach) cześć dzienną od części nocnej. Parter może być otwartym, jednoprzestrzennym wnętrzem, lub pozostać w układzie tradycyjnym (pokój dzienny i kuchnię rozdzieli ściana). Poddasze pełni funkcję sypialnianą. Konstrukcja domu (brak wewnętrznych ścian konstrukcyjnych) umożliwia inny od zaproponowanego, indywidualny podział wnętrza. Na poddaszu, o podziale pomieszczeń lekkimi ściankami działowymi można zadecydować praktycznie już po zbudowaniu dachu i wstawieniu okien, kierując się własnymi potrzebami i wymiarami posiadanych mebli. Kuchnia, łazienka na parterze i na piętrze usytuowane są wokół jednego komina i pionu instalacyjnego. Zmniejsza to koszty budowy i eksploatacji. Jest wygodnym mieszkaniem dla wieloosobowej rodziny. Projekt przewiduje kilka wariantów elewacji oraz wersję z podpiwniczeniem (wszystkie warianty znajdują się w dokumentacji) W wersji podstawowej dom ma elewację wykończoną białym tynkiem mineralnym, cokół oblicowany płytkami klinkierowymi oraz fragmenty ścian obłożone deskami. Dach pokryty jest dachówką ceramiczną, a okapy podbite deskami pomalowanymi w kolorze ciemnego brązu. Ściany są murowane z bloczków ceramicznych i betonowych i ocieplone płytami styropianu lub wełny mineralnej. Nad parterem zaprojektowano strop żelbetowy gęsto żebrowy wykonany z gotowych elementów belek i pustaków stropowych. Konstrukcja dachu jest krokwiowo-jętkowa z belkami, słupami i płatwiami z drewna sosnowego. Do budowy domu przewiduje się zastosowanie powszechnie dostępnych materiałów budowlanych, Dzienna część domu to salon i kuchnia, które można połączyć lub oddzielić ścianą. W kuchni od strony ulicy można również wydzielić małą spiżarnię. Kuchnia, łazienka na parterze i ta na piętrze usytuowane są wokół jednego komina i pionu instalacyjnego. Zmniejsza to koszty eksploatacji, zwłaszcza podczas korzystania z ciepłej wody, która cyrkuluje w bardzo krótkich odcinkach rur, więc nie trzeba czekać i marnować zimnej aż do rąk dopłynie ciepła. Konstrukcja budynku pozwala również na różnorodne urządzanie poddasza. Podział pomieszczeń wykonany lekkimi ściankami działowymi można wykonać inaczej i praktycznie budujący po zbudowaniu dachu i wstawieniu okien może sam zadecydować gdzie je postawi uwzględniając indywidualne potrzeby i wymiary posiadanych mebli. Często się bowiem zdarza, że kształt i wielkość domu zależy z jednej strony od wymagań dostosowania do charakteru architektury otoczenia, a z drugiej od wymiarów i sposobu ustawienia mebli. Projekt był opublikowany na łamach Dodatku do Dziennika Bałtyckiego i Wieczoru Wybrzerza w październiku 2001 roku. Komentarz autorski do projektu WM02 Dom przeznaczony jest dla pięcioosobowej rodziny i można go zbudować na niedużej działce o powierzchni 350 m2. Jego bryła składa się z dwu połączonych – przenikających się części, z których każda ma prosty dwuspadowy dach pokryty dachówką. Część domu ustawiona szczytem do ulicy ma wejście umieszczone w podcieniu podpartym grubym filarem. Znajduje się w niej zasadnicza część domu z kuchnią i salonem na parterze, a sypialniami i łazienką na poddaszu. Druga bryła domu ustawiona kalenicą równolegle do ulicy ma w przyziemiu garaż, nad którym zaprojektowano obszerną sypialnię państwa domu. W centralnej części domu, obok wejścia i widoczne z salonu są schody na piętro. Cztery sypialnie, garderoba i duża łazienka pozwolą na wygodne życie wielodzietnej rodziny, chociaż jeden z pokoi może pełnić rolę pokoju gościnnego. Niewielki gabarytowo dom wygląda na większy niż jest w rzeczywistości. Sprawia to jego dwubryłowa konstrukcja, dzięki której powstaje podcień wejściowy i taras ogrodowy z zaciszną wnęką za garażem. Różne koncepcje elewacji domu od wykończenia standardowego w białym tynku, aż po zastosowane cegły

Reklama
Okna i drzwi tarasowe

Nowoczesne okna PVC i aluminiowe WIŚNIOWSKI – doskonała izolacja, elegancki design i niezrównana trwałość.

Wiśniowski
Sprawdź parametry!
Okna dachowe

Oferujemy bezpłatne konsultacje w zakresie wszystkich rozwiązań VELUX. Wyceny, porady dotyczące doboru okien i rolet zewnętrznych - sprawdź!

Velux
Sprawdź szczegóły
Dach

Producent stalowych pokryć dachowych i elewacyjnych - 40 lat doświadczenia. Zbuduj solidny dach z nami!

Blachy Pruszyński
Sprawdź szczegóły
Płytki ceramiczne i gresy

Od małych formatów po wielkoformatowe gresy. Marmur, beton, drewno, kamień, lastryko czy cegiełki zamówisz wygodnie online z szybką dostawą.

Ceramzet
Sprawdź ofertę
Drzwi

Ciepłe drzwi WIŚNIOWSKI z kontrolą dostępu. Szeroka gama wzorów i kolorów.

Wiśniowski
Wybierz najlepsze
Bramy garażowe

Automatyczne bramy garażowe segmentowe i uchylne WIŚNIOWSKI na wymiar i z systemem smart home w standardzie.

Wiśniowski
Sprawdź ofertę!
Armatura i ceramika łazienkowa

Topowi producenci. Baterie łazienkowe, zestawy natynkowe i podtynkowe, umywalki, wanny, miski WC oraz kabiny zamówisz kompleksowo online.

Ceramzet II
Dowiedz się więcej
Rekuperacja

Alnor - kompletny system rekuperacji. Dobierz idealne rozwiązanie dla Twojego domu!

Alnor
Dobierz rekuperator
Gruntowe pompy ciepła

Przeprowadzimy kompletną instalację najbardziej oszczędnego źródła ciepła w Twoim nowym domu - gruntowej pompy ciepła. Od dokumentacji, pozwoleń, po odwierty i instalację.

Geothermal Solutions
Dowiedz się więcej

Gotowe domy modułowe (113)

Zobacz wszystkie
Stan deweloperski nawet w 6 miesięcy Gwarancja stałej ceny
Zdjęcie 1 projektu Dom prefabrykowany Piętrowy 130B HFX1022
Pow. użytkowa
131,60 m²
Pokoje
5
539 000 zł 4 096 zł/m²
Zdjęcie 1 projektu Dom prefabrykowany Piętrowy 130C HFX1023
Pow. użytkowa
132 m²
Pokoje
4
539 000 zł 4 083 zł/m²
Zdjęcie 1 projektu Dom prefabrykowany Piętrowy 130A HFX1021
Pow. użytkowa
130,40 m²
Pokoje
4
539 000 zł 4 133 zł/m²
Zdjęcie 1 projektu Dom prefabrykowany DEX136 HDX1002
Pow. użytkowa
136 m²
Pokoje
4
845 000 zł 6 213 zł/m²
Zdjęcie 1 projektu Dom prefabrykowany P.5 HPK1004
Pow. użytkowa
138,67 m²
Pokoje
5
772 700 zł 5 572 zł/m²
Zdjęcie 1 projektu Dom prefabrykowany P.1 z okapem HPK1000
Pow. użytkowa
139,44 m²
Pokoje
3
721 000 zł 5 171 zł/m²
Zdjęcie 1 projektu Dom prefabrykowany P.1 bez okapu HPK1012
Pow. użytkowa
139,44 m²
Pokoje
3
699 800 zł 5 019 zł/m²
Zdjęcie 1 projektu Dom prefabrykowany P.11 HPK1011
Pow. użytkowa
122,88 m²
Pokoje
3
681 300 zł 5 544 zł/m²

Opis projektu domu
Bliźniak B04 - 2 x WM02

Projekt domu B04 Wymiary i powierzchnie podane są dla jednego segmentu gdyż cały bliźniak składa się z zestawionych ze sobą domów WM02 i WM02L. W projekcie W02 Orlik przeznaczonym dla cztero - lub pięcioosobowej rodziny wyraźnie oddzielono (na dwóch poziomach) cześć dzienną od części nocnej. Parter może być otwartym, jednoprzestrzennym wnętrzem, lub pozostać w układzie tradycyjnym (pokój dzienny i kuchnię rozdzieli ściana). Poddasze pełni funkcję sypialnianą. Konstrukcja domu (brak wewnętrznych ścian konstrukcyjnych) umożliwia inny od zaproponowanego, indywidualny podział wnętrza. Na poddaszu, o podziale pomieszczeń lekkimi ściankami działowymi można zadecydować praktycznie już po zbudowaniu dachu i wstawieniu okien, kierując się własnymi potrzebami i wymiarami posiadanych mebli. Kuchnia, łazienka na parterze i na piętrze usytuowane są wokół jednego komina i pionu instalacyjnego. Zmniejsza to koszty budowy i eksploatacji. Jest wygodnym mieszkaniem dla wieloosobowej rodziny. Projekt przewiduje kilka wariantów elewacji oraz wersję z podpiwniczeniem (wszystkie warianty znajdują się w dokumentacji) W wersji podstawowej dom ma elewację wykończoną białym tynkiem mineralnym, cokół oblicowany płytkami klinkierowymi oraz fragmenty ścian obłożone deskami. Dach pokryty jest dachówką ceramiczną, a okapy podbite deskami pomalowanymi w kolorze ciemnego brązu. Ściany są murowane z bloczków ceramicznych i betonowych i ocieplone płytami styropianu lub wełny mineralnej. Nad parterem zaprojektowano strop żelbetowy gęsto żebrowy wykonany z gotowych elementów belek i pustaków stropowych. Konstrukcja dachu jest krokwiowo-jętkowa z belkami, słupami i płatwiami z drewna sosnowego. Do budowy domu przewiduje się zastosowanie powszechnie dostępnych materiałów budowlanych, Dzienna część domu to salon i kuchnia, które można połączyć lub oddzielić ścianą. W kuchni od strony ulicy można również wydzielić małą spiżarnię. Kuchnia, łazienka na parterze i ta na piętrze usytuowane są wokół jednego komina i pionu instalacyjnego. Zmniejsza to koszty eksploatacji, zwłaszcza podczas korzystania z ciepłej wody, która cyrkuluje w bardzo krótkich odcinkach rur, więc nie trzeba czekać i marnować zimnej aż do rąk dopłynie ciepła. Konstrukcja budynku pozwala również na różnorodne urządzanie poddasza. Podział pomieszczeń wykonany lekkimi ściankami działowymi można wykonać inaczej i praktycznie budujący po zbudowaniu dachu i wstawieniu okien może sam zadecydować gdzie je postawi uwzględniając indywidualne potrzeby i wymiary posiadanych mebli. Często się bowiem zdarza, że kształt i wielkość domu zależy z jednej strony od wymagań dostosowania do charakteru architektury otoczenia, a z drugiej od wymiarów i sposobu ustawienia mebli. Projekt był opublikowany na łamach Dodatku do Dziennika Bałtyckiego i Wieczoru Wybrzerza w październiku 2001 roku. Komentarz autorski do projektu WM02 Dom przeznaczony jest dla pięcioosobowej rodziny i można go zbudować na niedużej działce o powierzchni 350 m2. Jego bryła składa się z dwu połączonych – przenikających się części, z których każda ma prosty dwuspadowy dach pokryty dachówką. Część domu ustawiona szczytem do ulicy ma wejście umieszczone w podcieniu podpartym grubym filarem. Znajduje się w niej zasadnicza część domu z kuchnią i salonem na parterze, a sypialniami i łazienką na poddaszu. Druga bryła domu ustawiona kalenicą równolegle do ulicy ma w przyziemiu garaż, nad którym zaprojektowano obszerną sypialnię państwa domu. W centralnej części domu, obok wejścia i widoczne z salonu są schody na piętro. Cztery sypialnie, garderoba i duża łazienka pozwolą na wygodne życie wielodzietnej rodziny, chociaż jeden z pokoi może pełnić rolę pokoju gościnnego. Niewielki gabarytowo dom wygląda na większy niż jest w rzeczywistości. Sprawia to jego dwubryłowa konstrukcja, dzięki której powstaje podcień wejściowy i taras ogrodowy z zaciszną wnęką za garażem. Różne koncepcje elewacji domu od wykończenia standardowego w białym tynku, aż po zastosowane cegły
Czytaj więcej

Polecani producenci

Prefabrykowane konstrukcje dachowe

tło producenta

WIĄZAR POLSKA

Zobacz więcej

Sprawdź nową generację okien GREENVIEW

tło producenta

FAKRO

Sprawdź nową generację okien GREENVIEW

Styropian, tynki, farby, kleje

tło producenta

Termo Organika

Poznaj super jakość

Okna, drzwi, osłony przeciwsłoneczne

tło producenta

Aluprof

Sprawdź ofertę

Kompletne systemy rekuperacji

tło producenta

Alnor

Dowiedz się więcej

Sprawdź nowy system DACHRYNNA

tło producenta

Galeco

Sprawdź ofertę
Zobacz więcej

Społeczność projektu domu
Bliźniak B04 - 2 x WM02 w budowie

Dołącz do społeczności osób, które budują ten dom lub są zainteresowane jego budową.

  • Oglądaj zdjęcia z budowy
  • Zadawaj pytania
  • Wymieniaj się doświadczeniami

Opinie o projekcie domu Bliźniak B04 - 2 x WM02

Ocena

Ten projekt nie ma jeszcze opinii, bądź pierwszy!

Dodaj opinię

ASYSTENT WYBORU PROJEKTU

Szukasz idealnego projektu? Znajdziemy go dla Ciebie!

Doradca na podstawie Twoich wskazówek przygotuje spersonalizowaną listę projektów

Graficzne opracowanie rzutów poglądowych widocznych na karcie projektu zostało wykonane przez Extradom.pl. Prezentowane przez Extradom.pl wizualizacje wykonane zostały przez autora projektu i należy poczytywać je jedynie za przykład i propozycję wykończenia, wizję architektoniczną autora projektu. Ostateczne wykończenie budynku może nastąpić na wiele sposobów. Szczegółowe rozwiązania zastosowane w oferowanej dokumentacji - w tym również ilość, lokalizacje i wygląd okien, drzwi, kominów - mogą w niewielkim stopniu różnić się od prezentowanej wizualizacji budynku.

REKLAMA
Zamknij