👉 Wiosenne okazje + karta allegro 200 zł! 🔥

Koniec oferty za:

00godz.

00min.

00sek.

Sprawdź

Projekt domu Bliźniak B01a Sówka GDB1070

Zapisz Dodano!
Porównaj Dodano!
ikona Pobierz i drukuj

Warstwy

Warstwy

Rzut parteru

Powierzchnia (m²)
Tooltip
Powierzchnia pomieszczenia
to ta, z której faktycznie możesz korzystać – skosy i niskie części poddasza są liczone częściowo lub wcale.
  1. 100% dla wysokości powyżej 2,2 m,
  2. 50% dla wysokości 1,4–2,2 m,
  3. nie liczymy poniżej 1,4 m.

Powierzchnia podłogi
Liczymy po obrysie pomieszczenia, bez względu na jego wysokość/skosy. Jeśli nie ma skosów to powierzchnia podłogi i pomieszczenia jest taka sama.
pomieszczenia i podłogi
podłogi
1. Wiatrołap
4,92
2. Kuchnia
7,65
3. Pokój
22,79
4. Pokój dzienny + kuchnia
21,53
5. Wiatrołap
4,16
6. Pokój
7,36
7. Łazienka
2,72
8. Wc
1,70
Razem
72,83
72,83
Powierzchnia (m²)
Tooltip
Powierzchnia pomieszczenia
to ta, z której faktycznie możesz korzystać – skosy i niskie części poddasza są liczone częściowo lub wcale.
  1. 100% dla wysokości powyżej 2,2 m,
  2. 50% dla wysokości 1,4–2,2 m,
  3. nie liczymy poniżej 1,4 m.

Powierzchnia podłogi
Liczymy po obrysie pomieszczenia, bez względu na jego wysokość/skosy. Jeśli nie ma skosów to powierzchnia podłogi i pomieszczenia jest taka sama.
pomieszczenia
podłogi
5. Korytarz
5,78
5,78
6. Pomieszczenie gospodarcze
3,94
5,80
7. Pokój
7,79
13,08
8. Pokój
7,79
13,08
9. Pokój
12,28
15,55
10. Pokój
7,34
10,83
11. Łazienka
4,31
6,06
Razem
49,23
70,18

    Usytuowanie na działce

    Czy ten projekt pasuje na
    Twoją działkę?

    Chętnie to sprawdzimy!

    Dowiedz się:

    • czy zmieści się na niej wybrany przez Ciebie dom
    • jakie parametry musi spełniać dom według miejscowego planu zagospodarowania lub warunków zabudowy (np. kąt nachylenia i typ dachu, liczba kondygnacji itp.
    • jakie inne projekty pasują na Twoją działkę – znajdziemy je dla Ciebie!

Pow. użytkowa

121,44 m²

Pokoje

6

Łazienki i WC

3

Garaż

0

Min. szer. i dł. działki

19,28 x 16,12 m

Kąt dachu

40°
więcej

Bliźniak B01a Sówka - GDB1070

ikona 121,44 m²
Powierzchnia użytkowa
ikona6
Pokoje (bez salonu)
ikona 3
Łazienki (z toaletami)
ikona 0
Liczba stanowisk garażowych
(z wiatą garażową)

Projekt został
wycofany z oferty

W razie pytań prosimy o kontakt
z Centrum Obsługi Klienta
Konsultant
71 715 20 60

pon.-pt. 8-21, sob. 9-17

Parter - 72,83 m²

Parter projektu Bliźniak B01a Sówka

Zapytaj, co możesz zmienić

Powierzchnia (m²)
Tooltip
Powierzchnia pomieszczenia
to ta, z której faktycznie możesz korzystać – skosy i niskie części poddasza są liczone częściowo lub wcale.
  1. 100% dla wysokości powyżej 2,2 m,
  2. 50% dla wysokości 1,4–2,2 m,
  3. nie liczymy poniżej 1,4 m.

Powierzchnia podłogi
Liczymy po obrysie pomieszczenia, bez względu na jego wysokość/skosy. Jeśli nie ma skosów to powierzchnia podłogi i pomieszczenia jest taka sama.
pomieszczenia i podłogi
podłogi
1. Wiatrołap
4,92
2. Kuchnia
7,65
3. Pokój
22,79
4. Pokój dzienny + kuchnia
21,53
5. Wiatrołap
4,16
6. Pokój
7,36
7. Łazienka
2,72
8. Wc
1,70
Razem
72,83
72,83

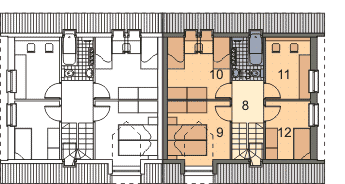
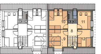
Poddasze - 49,23 m²

Poddasze projektu Bliźniak B01a Sówka

Zapytaj, co możesz zmienić

Powierzchnia (m²)
Tooltip
Powierzchnia pomieszczenia
to ta, z której faktycznie możesz korzystać – skosy i niskie części poddasza są liczone częściowo lub wcale.
  1. 100% dla wysokości powyżej 2,2 m,
  2. 50% dla wysokości 1,4–2,2 m,
  3. nie liczymy poniżej 1,4 m.

Powierzchnia podłogi
Liczymy po obrysie pomieszczenia, bez względu na jego wysokość/skosy. Jeśli nie ma skosów to powierzchnia podłogi i pomieszczenia jest taka sama.
pomieszczenia
podłogi
5. Korytarz
5,78
5,78
6. Pomieszczenie gospodarcze
3,94
5,80
7. Pokój
7,79
13,08
8. Pokój
7,79
13,08
9. Pokój
12,28
15,55
10. Pokój
7,34
10,83
11. Łazienka
4,31
6,06
Razem
49,23
70,18

Podobne projekty (1404)

Zobacz wszystkie
PROMOCJA
Zdjęcie 1 projektu Aksamitka dr-S BSA2366
Aksamitka dr-S
Dodano!
Dodano!
110,15 m²
4
2
0

4 749 zł

5 149 zł

Tooltip

Cena regularna

4 749 zł najniższa cena
Tooltip

Najniższa cena z 30 dni
przed obniżką

PROMOCJA
Zdjęcie 1 projektu A-150 Dom jodłowa szkieletowy BBD1278
115,40 m²
5
2
0

3 799 zł

4 099 zł

Tooltip

Cena regularna

3 799 zł najniższa cena
Tooltip

Najniższa cena z 30 dni
przed obniżką

PROMOCJA
Zdjęcie 1 projektu Na swoim 2 WAH1673
Na swoim 2
Dodano!
Dodano!
112,42 m²
4
2
0

4 312 zł

5 390 zł

Tooltip

Cena regularna

4 312 zł najniższa cena
Tooltip

Najniższa cena z 30 dni
przed obniżką

PROMOCJA
Zdjęcie 1 projektu Dom przy Alabastrowej 20 KRK1335
Dom przy Alabastrowej 20
Dodano!
Dodano!
115 m²
4
3
0

3 490 zł

3 990 zł

Tooltip

Cena regularna

3 490 zł najniższa cena
Tooltip

Najniższa cena z 30 dni
przed obniżką

PROMOCJA
Zdjęcie 1 projektu N33-BG KKG1025
N33-BG
Dodano!
Dodano!
109,43 m²
4
2
0

4 500 zł

5 300 zł

Tooltip

Cena regularna

4 500 zł najniższa cena
Tooltip

Najniższa cena z 30 dni
przed obniżką

PROMOCJA
Zdjęcie 1 projektu Domek Prosty ES (009 ES) SLF1098
Domek Prosty ES (009 ES)
Dodano!
Dodano!
113,74 m²
4
2
0

3 780 zł

4 200 zł

Tooltip

Cena regularna

3 780 zł najniższa cena
Tooltip

Najniższa cena z 30 dni
przed obniżką

PROMOCJA
Zdjęcie 1 projektu Dom przy Cyprysowej 72 KRK1738
Dom przy Cyprysowej 72
Dodano!
Dodano!
120 m²
4
2
0

3 490 zł

3 990 zł

Tooltip

Cena regularna

3 490 zł najniższa cena
Tooltip

Najniższa cena z 30 dni
przed obniżką

Zdjęcie 1 projektu HG-N3A KRM1084
HG-N3A
Dodano!
Dodano!
116,80 m²
4
2
0

4 150 zł

Elewacje

Frontowa
Tylna
Lewa
Prawa
Autor: Wm

Dane techniczne projektu

Powierzchnie i wymiary Powierzchnie i wymiary

Powierzchnia użytkowa
Tooltip
Suma powierzchni wszystkich pomieszczeń mieszkalnych, pomniejszona o pow. garażu, kotłowni, strychu, piwnicy. Jest liczona w 100% dla pomieszczeń o wysokości powyżej 2,2 m, w 50% dla pomieszczeń o wys. 2,2-1,4 m i niewliczana dla niższych niż 1,4 m.

121,44 m²

Powierzchnia zabudowy
Tooltip
Powierzchnia zajmowana przez część na- oraz nadziemną budynku liczona, jako rzut pionowy budynku na działkę.

90,80 m²

Kąt nachylenia dachu
Tooltip
Nachylenie połaci dachu głównego podawane w stopniach. Uwaga! W niektórych projektach występuje więcej niż jedno nachylenie dachu.

40°

Wysokość budynku
Tooltip
Wysokość liczona od części budynku położonej najniżej przy powierzchni terenu do najwyższego punktu dachu (kalenicy) z wyłączeniem kominów.

7,63 m

Min. szerokość działki
Tooltip
Najmniejsza możliwa szerokość działki niezbędna do wybudowania wybranego domu. Składa się z szerokości elewacji domu powiększonej z obu stron o 3 m dla ściany bez otworów drzwiowych/okiennych lub 4 m, dla ściany z otworami.

19,28 m

Min. długość działki
Tooltip
Najmniejsza możliwa długość działki niezbędna do wybudowania wybranego domu. Składa się z długości elewacji domu powiększonej z obu stron o 3 m dla ściany bez otworów drzwiowych/okiennych lub 4 m, dla ściany z otworami.

16,12 m

Energooszczędność Energooszczędność

Oze Czym jest OZE (Odnawialne Źródło Energii)?
Warunki techniczne

Projekt zgody z WT 2021

Technologia i konstrukcja Technologia i konstrukcja

Opis szczegółowy

DOM Z DWOMA MIESZKANIAMI WM B01a Sówka, wariant I, to dom wolnostojący z poddaszem użytkowym, niepodpiwniczony. Plan domu jest bardzo prosty, a realizacja szybka i tania. Na stosunkowo niewielkiej powierzchni zaprojektowano 2 wygodne mieszkania: większe dla rodziny 4-6-osobowej, mniejsze dla 1-2 osób. Mieszkanie mniejsze znajduje się na parterze, natomiast większe zajmuje część parteru oraz całe poddasze. Oba mieszkania posiadają osobne wejścia i tarasy od strony ogrodowej, zaprojektowano w nich kominki w pokojach dziennych. Funkcjonują jako odrębne całości, mniejsze mieszkanie można zatem przeznaczyć dla dziadków, pod wynajem lub też dla dorosłego dziecka. Lekkie ścianki działowe można w nim przesuwać dowolnie, adoptując wnętrze do indywidualnych potrzeb (możliwość zaaranżowania gabinetu dostępnego z przedsionka, wydzielenia ścianką kuchni, rezygnacji z osobnej sypialni itp.). W większym mieszkaniu na parterze zaprojektowano część dzienną, na poddaszu zaś nocną: łazienkę, pomieszczenie gospodarcze (pralnię, kotłownię) oraz 4 sypialnie; jedna z nich może z powodzeniem pełnić funkcję gabinetu-pracowni. W domu zaprojektowano tylko jeden komin, takie rozwiązanie jest tanie i praktyczne. Możliwa jest dobudowa garażu, jednego lub dwóch (dla każdej z rodzin). Dom WM B01a znakomicie daje się zestawiać w zabudowę szeregową. Technologia: Dom można zbudować w różnych technologiach - od szybkiej w realizacji technologii szkieletu drewnianego, do solidniejszej tradycyjnej murowanej. Dach przekryty dachówką ceramiczną, betonową, lub z blachy. Nad wejściem znajduje się lekki daszek, a ściany w styku z gruntem omurowane elewacyjną cegłą klinkierową. Wykończenie: Dach przekryty dachówką ceramiczną, betonową, lub z blachy. Nad wejściem znajduje się lekki daszek, a ściany w styku z gruntem omurowane są elewacyjną cegłą klinkierową.

Reklama
Okna i drzwi tarasowe

Nowoczesne okna PVC i aluminiowe WIŚNIOWSKI – doskonała izolacja, elegancki design i niezrównana trwałość.

Wiśniowski
Sprawdź parametry!
Okna dachowe

Oferujemy bezpłatne konsultacje w zakresie wszystkich rozwiązań VELUX. Wyceny, porady dotyczące doboru okien i rolet zewnętrznych - sprawdź!

Velux
Sprawdź szczegóły
Pompa ciepła

Wybierz pompę ciepła, która pasuje do Twojego domu. Niezależnie od tego, czy ustawienie wewnątrz czy na zewnątrz, pompy ciepła STIEBEL ELTRON dopasują się do każdej przestrzeni.

Stiebel
Dowiedz się więcej
Płytki ceramiczne i gresy

Od małych formatów po wielkoformatowe gresy. Marmur, beton, drewno, kamień, lastryko czy cegiełki zamówisz wygodnie online z szybką dostawą.

Ceramzet
Sprawdź ofertę
Drzwi

Ciepłe drzwi WIŚNIOWSKI z kontrolą dostępu. Szeroka gama wzorów i kolorów.

Wiśniowski
Wybierz najlepsze
Bramy garażowe

Automatyczne bramy garażowe segmentowe i uchylne WIŚNIOWSKI na wymiar i z systemem smart home w standardzie.

Wiśniowski
Sprawdź ofertę!
Rekuperacja

Alnor - kompletny system rekuperacji. Dobierz idealne rozwiązanie dla Twojego domu!

Alnor
Dobierz rekuperator
Dach

Producent stalowych pokryć dachowych i systemów elewacyjnych. Precyzja wykonania, trwałość na lata i szybki montaż doceniany przez dekarzy. Postaw na solidny dach Budmat.

Budmat
Sprawdź ofertę
Ogrodzenie

Nowoczesne stalowe ogrodzenia Budmat - estetyka, bezpieczeństwo i trwałość na lata. Systemowe rozwiązania na wymiar, dopasowane do każdego domu.

Budmat
Sprawdź ofertę

Gotowe domy - najszybszy sposób na dom (115)

Zobacz wszystkie
  • Stan deweloperski nawet w 6 miesięcy
  • Gwarancja stałej ceny
Skonfiguruj dom
Zdjęcie 1 projektu Bergen 130 HUS1002
130,40 m²
4
Stan deweloperski brutto
499 000 zł 3 827 zł/m²
Zdjęcie 1 projektu Dom prefabrykowany Parterowy 120A HFX1015
121,44 m²
4
Stan deweloperski brutto
515 000 zł 4 241 zł/m²
Zdjęcie 1 projektu Dom prefabrykowany P.3 z okapem HPK1013
121,46 m²
5
Stan deweloperski brutto
630 000 zł 5 187 zł/m²
Zdjęcie 1 projektu Dom prefabrykowany P.3 bez okapu HPK1002
121,46 m²
5
Stan deweloperski brutto
617 300 zł 5 082 zł/m²
Zdjęcie 1 projektu Dom szkieletowy Twin Smart 170 HHT1031
121,95 m²
5
Stan deweloperski brutto
1 650 700 zł 13 536 zł/m²
Zdjęcie 1 projektu Dom prefabrykowany Parterowy 120B HFX1016
122,36 m²
3
Stan deweloperski brutto
515 000 zł 4 209 zł/m²
Zdjęcie 1 projektu Dom prefabrykowany Parterowy 120C HFX1017
120,06 m²
4
Stan deweloperski brutto
515 000 zł 4 290 zł/m²
Zdjęcie 1 projektu Dom szkieletowy Emily Smart 120 HHT1026
120 m²
3
Stan deweloperski brutto
592 512 zł 4 938 zł/m²

Opis projektu domu
Bliźniak B01a Sówka

DOM Z DWOMA MIESZKANIAMI WM B01a Sówka, wariant I, to dom wolnostojący z poddaszem użytkowym, niepodpiwniczony. Plan domu jest bardzo prosty, a realizacja szybka i tania. Na stosunkowo niewielkiej powierzchni zaprojektowano 2 wygodne mieszkania: większe dla rodziny 4-6-osobowej, mniejsze dla 1-2 osób. Mieszkanie mniejsze znajduje się na parterze, natomiast większe zajmuje część parteru oraz całe poddasze. Oba mieszkania posiadają osobne wejścia i tarasy od strony ogrodowej, zaprojektowano w nich kominki w pokojach dziennych. Funkcjonują jako odrębne całości, mniejsze mieszkanie można zatem przeznaczyć dla dziadków, pod wynajem lub też dla dorosłego dziecka. Lekkie ścianki działowe można w nim przesuwać dowolnie, adoptując wnętrze do indywidualnych potrzeb (możliwość zaaranżowania gabinetu dostępnego z przedsionka, wydzielenia ścianką kuchni, rezygnacji z osobnej sypialni itp.). W większym mieszkaniu na parterze zaprojektowano część dzienną, na poddaszu zaś nocną: łazienkę, pomieszczenie gospodarcze (pralnię, kotłownię) oraz 4 sypialnie; jedna z nich może z powodzeniem pełnić funkcję gabinetu-pracowni. W domu zaprojektowano tylko jeden komin, takie rozwiązanie jest tanie i praktyczne. Możliwa jest dobudowa garażu, jednego lub dwóch (dla każdej z rodzin). Dom WM B01a znakomicie daje się zestawiać w zabudowę szeregową. Technologia: Dom można zbudować w różnych technologiach - od szybkiej w realizacji technologii szkieletu drewnianego, do solidniejszej tradycyjnej murowanej. Dach przekryty dachówką ceramiczną, betonową, lub z blachy. Nad wejściem znajduje się lekki daszek, a ściany w styku z gruntem omurowane elewacyjną cegłą klinkierową. Wykończenie: Dach przekryty dachówką ceramiczną, betonową, lub z blachy. Nad wejściem znajduje się lekki daszek, a ściany w styku z gruntem omurowane są elewacyjną cegłą klinkierową.
Czytaj więcej

Polecani producenci

Kompletne systemy rekuperacji

tło producenta

Alnor

Dowiedz się więcej

Prefabrykowane konstrukcje dachowe

tło producenta

WIĄZAR POLSKA

Zobacz więcej

Sprawdź nową generację okien GREENVIEW

tło producenta

FAKRO

Sprawdź nową generację okien GREENVIEW

Styropian, tynki, farby, kleje

tło producenta

Termo Organika

Poznaj super jakość

Okna, drzwi, osłony przeciwsłoneczne

tło producenta

Aluprof

Sprawdź ofertę
Zobacz więcej

Społeczność projektu domu
Bliźniak B01a Sówka w budowie

Dołącz do społeczności osób, które budują ten dom lub są zainteresowane jego budową.

  • Oglądaj zdjęcia z budowy
  • Zadawaj pytania
  • Wymieniaj się doświadczeniami

Opinie o projekcie domu Bliźniak B01a Sówka

Ocena

Ten projekt nie ma jeszcze opinii, bądź pierwszy!

Dodaj opinię

ASYSTENT WYBORU PROJEKTU

Szukasz idealnego projektu? Znajdziemy go dla Ciebie!

Doradca na podstawie Twoich wskazówek przygotuje spersonalizowaną listę projektów

Graficzne opracowanie rzutów poglądowych widocznych na karcie projektu zostało wykonane przez Extradom.pl. Prezentowane przez Extradom.pl wizualizacje wykonane zostały przez autora projektu i należy poczytywać je jedynie za przykład i propozycję wykończenia, wizję architektoniczną autora projektu. Ostateczne wykończenie budynku może nastąpić na wiele sposobów. Szczegółowe rozwiązania zastosowane w oferowanej dokumentacji - w tym również ilość, lokalizacje i wygląd okien, drzwi, kominów - mogą w niewielkim stopniu różnić się od prezentowanej wizualizacji budynku.

REKLAMA
Zamknij