👉 200 zł na przyjemności 📖🎶

Koniec oferty za:

00godz.

00min.

00sek.

Sprawdź

Projekt domu Beta KRD2204

Dodano!
Dodano!

Warstwy

Warstwy

Warstwy

Rzut parteru

Powierzchnia (m²)
Tooltip
Powierzchnia pomieszczenia
to ta, z której faktycznie możesz korzystać – skosy i niskie części poddasza są liczone częściowo lub wcale.
  1. 100% dla wysokości powyżej 2,2 m,
  2. 50% dla wysokości 1,4–2,2 m,
  3. nie liczymy poniżej 1,4 m.

Powierzchnia podłogi
Liczymy po obrysie pomieszczenia, bez względu na jego wysokość/skosy. Jeśli nie ma skosów to powierzchnia podłogi i pomieszczenia jest taka sama.
pomieszczenia i podłogi
podłogi
1. Garaż
30,50
2. Spiżarka
5,60
3. Klatka schodowa
5,50
4. Pomieszczenie gospodarcze
4,60
5. Korytarz
3,50
6. Korytarz
3,50
Razem
53,20
53,20
Powierzchnia (m²)
Tooltip
Powierzchnia pomieszczenia
to ta, z której faktycznie możesz korzystać – skosy i niskie części poddasza są liczone częściowo lub wcale.
  1. 100% dla wysokości powyżej 2,2 m,
  2. 50% dla wysokości 1,4–2,2 m,
  3. nie liczymy poniżej 1,4 m.

Powierzchnia podłogi
Liczymy po obrysie pomieszczenia, bez względu na jego wysokość/skosy. Jeśli nie ma skosów to powierzchnia podłogi i pomieszczenia jest taka sama.
pomieszczenia i podłogi
podłogi
1. Pokój dzienny
42
2. Jadalnia
15,80
3. Pokój
12,60
4. Kuchnia
10,40
5. Hol
8,20
6. Sień
7,20
7. Łazienka
4,50
8. Klatka schodowa
3
Razem
103,70
103,70
Powierzchnia (m²)
Tooltip
Powierzchnia pomieszczenia
to ta, z której faktycznie możesz korzystać – skosy i niskie części poddasza są liczone częściowo lub wcale.
  1. 100% dla wysokości powyżej 2,2 m,
  2. 50% dla wysokości 1,4–2,2 m,
  3. nie liczymy poniżej 1,4 m.

Powierzchnia podłogi
Liczymy po obrysie pomieszczenia, bez względu na jego wysokość/skosy. Jeśli nie ma skosów to powierzchnia podłogi i pomieszczenia jest taka sama.
pomieszczenia i podłogi
podłogi
1. Pokój
18,10
2. Pokój
18
3. Pokój
14,90
4. Przedpokój
7,80
5. Łazienka
6,90
6. Garderoba
5,30
7. Łazienka
4,80
8. Klatka schodowa
3
Razem
78,80
78,80

    Usytuowanie na działce

    Czy ten projekt pasuje na
    Twoją działkę?

    Chętnie to sprawdzimy!

    Dowiedz się:

    • czy zmieści się na niej wybrany przez Ciebie dom
    • jakie parametry musi spełniać dom według miejscowego planu zagospodarowania lub warunków zabudowy (np. kąt nachylenia i typ dachu, liczba kondygnacji itp.
    • jakie inne projekty pasują na Twoją działkę – znajdziemy je dla Ciebie!

Pokoje

4

Łazienki i WC

3

Garaż

0
więcej

Beta - KRD2204

ikona4
Pokoje (bez salonu)
ikona 3
Łazienki (z toaletami)
ikona 0
Liczba stanowisk garażowych
(z wiatą garażową)

Projekt został
wycofany z oferty

W razie pytań prosimy o kontakt
z Centrum Obsługi Klienta
Konsultant Masz pytania?
Zadzwoń
71 715 20 60

pon.-pt. 8-21, sob. 9-17

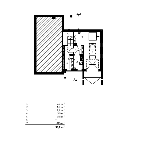
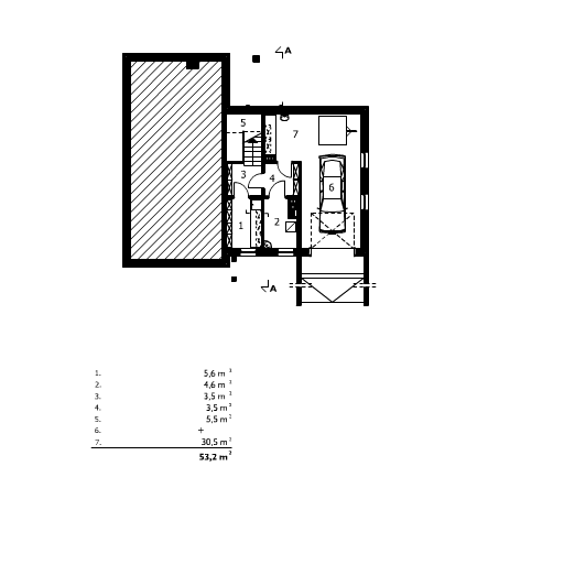
Piwnica - 53,20 m²

Piwnica projektu Beta

Zapytaj, co możesz zmienić

Powierzchnia (m²)
Tooltip
Powierzchnia pomieszczenia
to ta, z której faktycznie możesz korzystać – skosy i niskie części poddasza są liczone częściowo lub wcale.
  1. 100% dla wysokości powyżej 2,2 m,
  2. 50% dla wysokości 1,4–2,2 m,
  3. nie liczymy poniżej 1,4 m.

Powierzchnia podłogi
Liczymy po obrysie pomieszczenia, bez względu na jego wysokość/skosy. Jeśli nie ma skosów to powierzchnia podłogi i pomieszczenia jest taka sama.
pomieszczenia i podłogi
podłogi
1. Garaż
30,50
2. Spiżarka
5,60
3. Klatka schodowa
5,50
4. Pomieszczenie gospodarcze
4,60
5. Korytarz
3,50
6. Korytarz
3,50
Razem
53,20
53,20

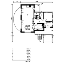
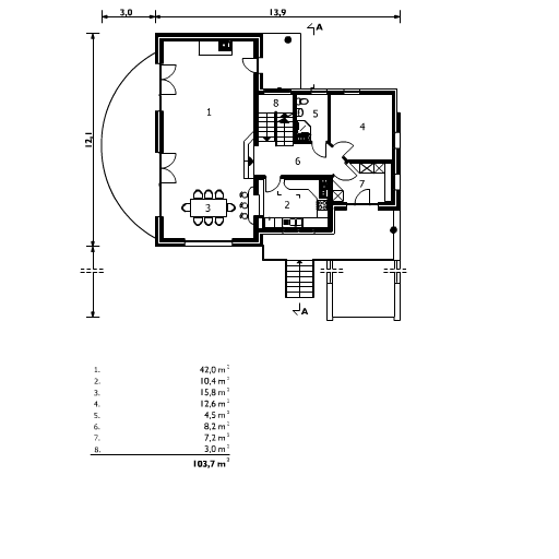
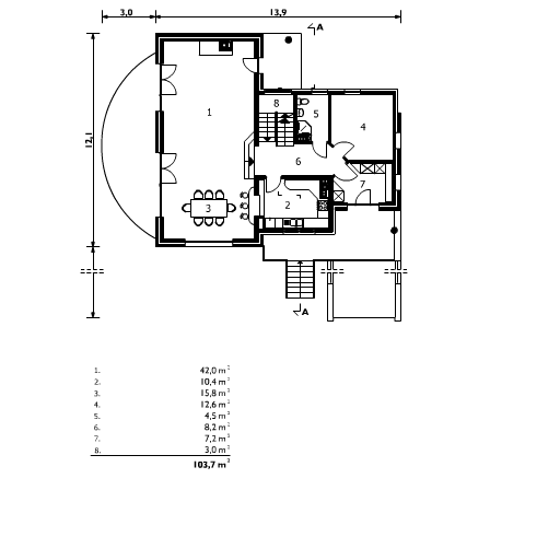
Parter - 103,70 m²

Parter projektu Beta

Zapytaj, co możesz zmienić

Powierzchnia (m²)
Tooltip
Powierzchnia pomieszczenia
to ta, z której faktycznie możesz korzystać – skosy i niskie części poddasza są liczone częściowo lub wcale.
  1. 100% dla wysokości powyżej 2,2 m,
  2. 50% dla wysokości 1,4–2,2 m,
  3. nie liczymy poniżej 1,4 m.

Powierzchnia podłogi
Liczymy po obrysie pomieszczenia, bez względu na jego wysokość/skosy. Jeśli nie ma skosów to powierzchnia podłogi i pomieszczenia jest taka sama.
pomieszczenia i podłogi
podłogi
1. Pokój dzienny
42
2. Jadalnia
15,80
3. Pokój
12,60
4. Kuchnia
10,40
5. Hol
8,20
6. Sień
7,20
7. Łazienka
4,50
8. Klatka schodowa
3
Razem
103,70
103,70

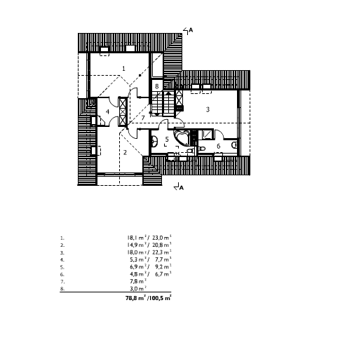
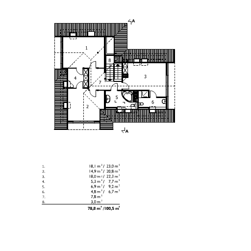
Poddasze - 78,80 m²

Poddasze projektu Beta

Zapytaj, co możesz zmienić

Powierzchnia (m²)
Tooltip
Powierzchnia pomieszczenia
to ta, z której faktycznie możesz korzystać – skosy i niskie części poddasza są liczone częściowo lub wcale.
  1. 100% dla wysokości powyżej 2,2 m,
  2. 50% dla wysokości 1,4–2,2 m,
  3. nie liczymy poniżej 1,4 m.

Powierzchnia podłogi
Liczymy po obrysie pomieszczenia, bez względu na jego wysokość/skosy. Jeśli nie ma skosów to powierzchnia podłogi i pomieszczenia jest taka sama.
pomieszczenia i podłogi
podłogi
1. Pokój
18,10
2. Pokój
18
3. Pokój
14,90
4. Przedpokój
7,80
5. Łazienka
6,90
6. Garderoba
5,30
7. Łazienka
4,80
8. Klatka schodowa
3
Razem
78,80
78,80

Podobne projekty (9918)

Zobacz wszystkie
PROMOCJA
Zdjęcie 1 projektu A-93 PZB1093
A-93
Dodano!
Dodano!
179,17 m²
4
3
2

8 987 zł

9 460 zł

Tooltip

Cena regularna

8 514 zł najniższa cena
Tooltip

Najniższa cena z 30 dni
przed obniżką

PREZENT 📖🎶
Zdjęcie 1 projektu Gustowny D39 wariant III WWB1101
Gustowny D39 wariant III
Dodano!
Dodano!
196,73 m²
4
2
2

4 749 zł

PREZENT 📖🎶
Zdjęcie 1 projektu Gustowny D39 wariant I WWB1074
Gustowny D39 wariant I
Dodano!
Dodano!
127,71 m²
4
2
2

4 849 zł

PREZENT 📖🎶
Zdjęcie 1 projektu EG-105 WWB1134
EG-105
Dodano!
Dodano!
106,68 m²
3
2
0

4 400 zł

PREZENT 📖🎶
Zdjęcie 1 projektu Tygrysie oko WRN1567
Tygrysie oko
Dodano!
Dodano!
99,90 m²
3
2
0

3 795 zł

PREZENT 📖🎶
Zdjęcie 1 projektu B-122 PZB1037
B-122
Dodano!
Dodano!
268,66 m²
7
4
2

9 580 zł

PREZENT 📖🎶
Zdjęcie 1 projektu Qubik 3 WAH2117
Qubik 3
Dodano!
Dodano!
151,83 m²
5
3
1

9 490 zł

PREZENT 📖🎶
Zdjęcie 1 projektu Precyzyjny D59 WWB1067
Precyzyjny D59
Dodano!
Dodano!
203,76 m²
4
3
2

5 649 zł

Elewacje

Frontowa
Tylna
Lewa
Prawa

Usytuowanie na działce

Czy ten projekt pasuje na
Twoją działkę?

Chętnie to sprawdzimy!

Czy ten projekt pasuje na
Twoją działkę?

Chętnie to sprawdzimy!

Dowiedz się:

  • czy zmieści się na niej wybrany przez Ciebie dom
  • jakie parametry musi spełniać dom według miejscowego planu zagospodarowania lub warunków zabudowy (np. kąt nachylenia i typ dachu, liczba kondygnacji itp.
  • jakie inne projekty pasują na Twoją działkę – znajdziemy je dla Ciebie!
Autor: Archeton

Dane techniczne projektu

Powierzchnie i wymiary Powierzchnie i wymiary

Energooszczędność Energooszczędność

Oze Czym jest OZE (Odnawialne Źródło Energii)?
Warunki techniczne

Projekt zgody z WT 2021

Opis projektu domu
Beta

Projektowany budynek jest wolno stojącym domem jednorodzinnym przeznaczonym dla 4-8 osób. Budynek jest parterowy z użytkowym poddaszem, częściowo podpiwniczony. Na parterze zlokalizowano pokój dzienny z kominkiem, kuchnię, jadalnię, pokój, łazienkę, hol z otwartą klatką schodową i sień. Na poziomie piwnic znajduje się spiżarka, pomieszczenie gospodarcze, korytarze oraz garaż jednostanowiskowy. Na poddaszu umieszczono 3 pokoje, 2 łazienki w tym jedną dostępną bezpośrednio z pokoju, garderobę oraz przestronny przedpokój. Dość duży dom na planie litery T, przeznaczony na pochyłą działkę. Wejście poprzez duży taras, z podcienia. Dach wielospadowy o kącie nachylenia połaci 45°.
Czytaj więcej

Polecani producenci

Prefabrykowane konstrukcje dachowe

tło producenta

WIĄZAR POLSKA

Zobacz więcej

Sprawdź nową generację okien GREENVIEW

tło producenta

FAKRO

Sprawdź nową generację okien GREENVIEW

Styropian, tynki, farby, kleje

tło producenta

Termo Organika

Poznaj super jakość

Okna, drzwi, osłony przeciwsłoneczne

tło producenta

Aluprof

Sprawdź ofertę

Kompletne systemy rekuperacji

tło producenta

Alnor

Dowiedz się więcej

Sprawdź nowy system DACHRYNNA

tło producenta

Galeco

Sprawdź ofertę
Zobacz więcej

Społeczność projektu domu
Beta w budowie

Dołącz do społeczności osób, które budują ten dom lub są zainteresowane jego budową.

  • Oglądaj zdjęcia z budowy
  • Zadawaj pytania
  • Wymieniaj się doświadczeniami

Opinie o projekcie domu Beta

Ocena

Ten projekt nie ma jeszcze opinii, bądź pierwszy!

Dodaj opinię

ASYSTENT WYBORU PROJEKTU

Szukasz idealnego projektu? Znajdziemy go dla Ciebie!

Doradca na podstawie Twoich wskazówek przygotuje spersonalizowaną listę projektów

Graficzne opracowanie rzutów poglądowych widocznych na karcie projektu zostało wykonane przez Extradom.pl. Prezentowane przez Extradom.pl wizualizacje wykonane zostały przez autora projektu i należy poczytywać je jedynie za przykład i propozycję wykończenia, wizję architektoniczną autora projektu. Ostateczne wykończenie budynku może nastąpić na wiele sposobów. Szczegółowe rozwiązania zastosowane w oferowanej dokumentacji - w tym również ilość, lokalizacje i wygląd okien, drzwi, kominów - mogą w niewielkim stopniu różnić się od prezentowanej wizualizacji budynku.

REKLAMA
Zamknij