Projekty nawet 500 zł taniej ❄️

Koniec oferty za:

00godz.

00min.

00sek.

Sprawdź

Projekt domu Belfast III DCP268b WOB1497

Dodano!
Dodano!

Warstwy

Warstwy

Rzut parteru

Powierzchnia (m²)
Tooltip
Powierzchnia pomieszczenia
to ta, z której faktycznie możesz korzystać – skosy i niskie części poddasza są liczone częściowo lub wcale.
  1. 100% dla wysokości powyżej 2,2 m,
  2. 50% dla wysokości 1,4–2,2 m,
  3. nie liczymy poniżej 1,4 m.

Powierzchnia podłogi
Liczymy po obrysie pomieszczenia, bez względu na jego wysokość/skosy. Jeśli nie ma skosów to powierzchnia podłogi i pomieszczenia jest taka sama.
pomieszczenia
podłogi
1. Wiatrołap
6,61
6,61
2. Korytarz
4,05
4,05
3. Schody
2,51
2,51
4. Spiżarnia
1,35
2,45
5. Kuchnia
9,79
9,79
6. Pokój dzienny + jadalnia
27,78
27,78
7. Pokój
10,47
10,47
8. Łazienka
3,27
3,27
9. Kotłownia
5,75
5,75
10. Pomieszczenie gospodarcze
4,08
4,08
11. Garaż dwustanowiskowy
31,80
31,80
Razem
107,46
108,56
12. Podest
5,02
13. Podest
1,34
14. Taras
19,89
Powierzchnia (m²)
Tooltip
Powierzchnia pomieszczenia
to ta, z której faktycznie możesz korzystać – skosy i niskie części poddasza są liczone częściowo lub wcale.
  1. 100% dla wysokości powyżej 2,2 m,
  2. 50% dla wysokości 1,4–2,2 m,
  3. nie liczymy poniżej 1,4 m.

Powierzchnia podłogi
Liczymy po obrysie pomieszczenia, bez względu na jego wysokość/skosy. Jeśli nie ma skosów to powierzchnia podłogi i pomieszczenia jest taka sama.
pomieszczenia i podłogi
podłogi
1. Korytarz
7,21
2. Pokój
13,14
3. Pokój
12,63
4. Garderoba
4,90
5. Pokój
11,49
6. Łazienka
11,96
7. Schody
5,33
Razem
66,66
66,66
8. Taras
42,37

    Usytuowanie na działce

    Czy ten projekt pasuje na
    Twoją działkę?

    Chętnie to sprawdzimy!

    Dowiedz się:

    • czy zmieści się na niej wybrany przez Ciebie dom
    • jakie parametry musi spełniać dom według miejscowego planu zagospodarowania lub warunków zabudowy (np. kąt nachylenia i typ dachu, liczba kondygnacji itp.
    • jakie inne projekty pasują na Twoją działkę – znajdziemy je dla Ciebie!

Pow. użytkowa

132,49 m²

Pokoje

4

Łazienki i WC

2

Garaż

2

Min. szer. i dł. działki

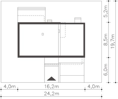
24,2 x 19,70 m

Kąt dachu

1,20°

Konstrukcja

Murowana
więcej

Belfast III DCP268b - WOB1497

ikona 132,49 m²
Powierzchnia użytkowa
ikona4
Pokoje (bez salonu)
ikona 2
Łazienki (z toaletami)
ikona 2
Liczba stanowisk garażowych
(z wiatą garażową)
ikona
Konstrukcja: Murowana

Projekt został
wycofany z oferty

W razie pytań prosimy o kontakt
z Centrum Obsługi Klienta
Konsultant Masz pytania?
Zadzwoń
71 715 20 60

pon.-pt. 8-21, sob. 9-17

Szukasz wykonawcy godnego zaufania?
Zleć budowę w Extradom.pl!

  • Z góry znasz koszt budowy domu
  • Dom odbierasz zgodnie z ustalonym harmonogramem - nawet w 6 miesięcy
  • Zabezpiecza Cię jedna kompleksowa umowa z jednym wykonawcą
  • Otrzymujesz nawet 30-letnią gwarancję na konstrukcję domu
  • Oszczędzasz swój czas dzięki pewnej i kompletnej usłudze
Cena brutto stanu
deweloperskiego od
Tooltip
Cena brutto stanu deweloperskiego od 4 209 do 5 379 zł/m2.
Cena jest uzależniona m.in. od lokalizacji, wybranej technologii, kubatury budynku, skomplikowania projektu i ewentualnych zmian, na które zdecyduje się inwestor.
Cena za m2 powierzchni netto, czyli wszystkich pomieszczeń mierzonych na wysokości podłogi.
4 209 zł/m2
Dowiedz się więcej
Konsultant Masz pytania?
Zadzwoń
71 715 20 70

pon.-pt. 8-19

Parter - 107,46 m²

Parter projektu Belfast III DCP268b

Zapytaj, co możesz zmienić

Powierzchnia (m²)
Tooltip
Powierzchnia pomieszczenia
to ta, z której faktycznie możesz korzystać – skosy i niskie części poddasza są liczone częściowo lub wcale.
  1. 100% dla wysokości powyżej 2,2 m,
  2. 50% dla wysokości 1,4–2,2 m,
  3. nie liczymy poniżej 1,4 m.

Powierzchnia podłogi
Liczymy po obrysie pomieszczenia, bez względu na jego wysokość/skosy. Jeśli nie ma skosów to powierzchnia podłogi i pomieszczenia jest taka sama.
pomieszczenia
podłogi
1. Wiatrołap
6,61
6,61
2. Korytarz
4,05
4,05
3. Schody
2,51
2,51
4. Spiżarnia
1,35
2,45
5. Kuchnia
9,79
9,79
6. Pokój dzienny + jadalnia
27,78
27,78
7. Pokój
10,47
10,47
8. Łazienka
3,27
3,27
9. Kotłownia
5,75
5,75
10. Pomieszczenie gospodarcze
4,08
4,08
11. Garaż dwustanowiskowy
31,80
31,80
Razem
107,46
108,56
12. Podest
5,02
13. Podest
1,34
14. Taras
19,89

Piętro 1 - 66,66 m²

Piętro 1 projektu Belfast III DCP268b

Zapytaj, co możesz zmienić

Powierzchnia (m²)
Tooltip
Powierzchnia pomieszczenia
to ta, z której faktycznie możesz korzystać – skosy i niskie części poddasza są liczone częściowo lub wcale.
  1. 100% dla wysokości powyżej 2,2 m,
  2. 50% dla wysokości 1,4–2,2 m,
  3. nie liczymy poniżej 1,4 m.

Powierzchnia podłogi
Liczymy po obrysie pomieszczenia, bez względu na jego wysokość/skosy. Jeśli nie ma skosów to powierzchnia podłogi i pomieszczenia jest taka sama.
pomieszczenia i podłogi
podłogi
1. Korytarz
7,21
2. Pokój
13,14
3. Pokój
12,63
4. Garderoba
4,90
5. Pokój
11,49
6. Łazienka
11,96
7. Schody
5,33
Razem
66,66
66,66
8. Taras
42,37

Warianty projektu (8)

Projekt domu Belfast IV DCP268c
Belfast IV DCP268c
Dodano!
Dodano!
132,49 m²
4
2
2

5 870 zł

PROMOCJA
Projekt domu Belfast VIII DCP268g
Belfast VIII DCP268g
Dodano!
Dodano!
168,84 m²
4
2
2

5 370 zł

5 770 zł

Tooltip

Cena regularna

5 370 zł najniższa cena
Tooltip

Najniższa cena z 30 dni
przed obniżką

Projekt domu Belfast VI DCP268e
Belfast VI DCP268e
Dodano!
Dodano!
104,31 m²
4
2
2

5 170 zł

Projekt domu Belfast DCP268
Belfast DCP268
Dodano!
Dodano!
103,83 m²
4
2
2

5 170 zł

PROMOCJA
Projekt domu Belfast VII DCP268f
Belfast VII DCP268f
Dodano!
Dodano!
162,30 m²
4
3
2

5 170 zł

5 570 zł

Tooltip

Cena regularna

5 170 zł najniższa cena
Tooltip

Najniższa cena z 30 dni
przed obniżką

PROMOCJA
Projekt domu Belfast II DCP268a
Belfast II DCP268a
Dodano!
Dodano!
162,30 m²
4
3
2

5 170 zł

5 570 zł

Tooltip

Cena regularna

5 170 zł najniższa cena
Tooltip

Najniższa cena z 30 dni
przed obniżką

Projekt domu Belfast IX DCP268h
Belfast IX DCP268h
Dodano!
Dodano!
123,98 m²
4
2
2

5 270 zł

Projekt domu Belfast V DCP268d
Belfast V DCP268d
Dodano!
Dodano!
103,83 m²
4
2
1

5 170 zł

Podobne projekty (7269)

Zobacz wszystkie
NIŻSZA CENA❄️
Zdjęcie 1 projektu Porywający D67 WWB1076
Porywający D67
Dodano!
Dodano!
139,08 m²
3
2
2

4 799 zł

5 049 zł

Tooltip

Cena regularna

4 649 zł najniższa cena
Tooltip

Najniższa cena z 30 dni
przed obniżką

NIŻSZA CENA❄️
Zdjęcie 1 projektu Gustowny D39 wariant I WWB1074
Gustowny D39 wariant I
Dodano!
Dodano!
127,71 m²
4
2
2

4 599 zł

4 849 zł

Tooltip

Cena regularna

4 449 zł najniższa cena
Tooltip

Najniższa cena z 30 dni
przed obniżką

NIŻSZA CENA❄️
Zdjęcie 1 projektu EG-105 WWB1134
EG-105
Dodano!
Dodano!
106,68 m²
3
2
0

4 150 zł

4 400 zł

Tooltip

Cena regularna

4 000 zł najniższa cena
Tooltip

Najniższa cena z 30 dni
przed obniżką

NIŻSZA CENA❄️
Zdjęcie 1 projektu EG-81 WWB1099
EG-81
Dodano!
Dodano!
147,81 m²
4
2
2

4 499 zł

4 749 zł

Tooltip

Cena regularna

4 349 zł najniższa cena
Tooltip

Najniższa cena z 30 dni
przed obniżką

NIŻSZA CENA❄️
Zdjęcie 1 projektu Gustowny D39 wariant II WWB1088
Gustowny D39 wariant II
Dodano!
Dodano!
145,67 m²
4
2
2

4 449 zł

4 699 zł

Tooltip

Cena regularna

4 299 zł najniższa cena
Tooltip

Najniższa cena z 30 dni
przed obniżką

NIŻSZA CENA❄️
Zdjęcie 1 projektu Qubik 3 WAH2117
Qubik 3
Dodano!
Dodano!
151,83 m²
5
3
1

7 592 zł

9 490 zł

Tooltip

Cena regularna

7 117 zł najniższa cena
Tooltip

Najniższa cena z 30 dni
przed obniżką

Zdjęcie 1 projektu Domidea 201 WAC1131
Domidea 201
Dodano!
Dodano!
146,99 m²
5
3
2

10 332 zł

NIŻSZA CENA❄️
Zdjęcie 1 projektu BK-19 wariant II WWC1065
BK-19 wariant II
Dodano!
Dodano!
105,34 m²
4
2
0

6 799 zł

7 099 zł

Tooltip

Cena regularna

6 599 zł najniższa cena
Tooltip

Najniższa cena z 30 dni
przed obniżką

Projekt z budową

Budowa Projekt z budową

Zbuduj ten dom z naszym Partnerem - wygodnie, szybko i bezpiecznie

Projekt z budową to:

  • gwarancja niezmiennego kosztu budowy

  • krótki czas realizacji - dom gotowy nawet w 6 miesięcy

  • wieloletnia gwarancja na konstrukcję domu

Elewacje

Frontowa
Tylna
Lewa
Prawa

Przekroje

Przekrój pionowy

Usytuowanie na działce

Czy ten projekt pasuje na
Twoją działkę?

Chętnie to sprawdzimy!

Czy ten projekt pasuje na
Twoją działkę?

Chętnie to sprawdzimy!

Dowiedz się:

  • czy zmieści się na niej wybrany przez Ciebie dom
  • jakie parametry musi spełniać dom według miejscowego planu zagospodarowania lub warunków zabudowy (np. kąt nachylenia i typ dachu, liczba kondygnacji itp.
  • jakie inne projekty pasują na Twoją działkę – znajdziemy je dla Ciebie!
Autor: Lipińscy Domy Biuro Projektowe

Dane techniczne projektu

Powierzchnie i wymiary Powierzchnie i wymiary

Powierzchnia użytkowa
Tooltip
Suma powierzchni wszystkich pomieszczeń mieszkalnych, pomniejszona o pow. garażu, kotłowni, strychu, piwnicy. Jest liczona w 100% dla pomieszczeń o wysokości powyżej 2,2 m, w 50% dla pomieszczeń o wys. 2,2-1,4 m i niewliczana dla niższych niż 1,4 m.

132,49 m²

Powierzchnia zabudowy
Tooltip
Powierzchnia zajmowana przez część na- oraz nadziemną budynku liczona, jako rzut pionowy budynku na działkę.

135,88 m²

Powierzchnia netto
Tooltip
Powierzchna wszystkich pomieszczeń w budynku mierzona na wysokości podłogi.

217,59 m²

Kubatura brutto
Tooltip
Zazwyczaj jest to suma kubatur (objętości) wszystkich pomieszczeń budynku, liczonych po zewnętrznym obrysie murów (z ociepleniem).

787,66 m³

Powierzchnia dachu

86,60 m²

Kąt nachylenia dachu
Tooltip
Nachylenie połaci dachu głównego podawane w stopniach. Uwaga! W niektórych projektach występuje więcej niż jedno nachylenie dachu.

1,20°

Wysokość budynku
Tooltip
Wysokość liczona od części budynku położonej najniżej przy powierzchni terenu do najwyższego punktu dachu (kalenicy) z wyłączeniem kominów.

6,99 m

Min. szerokość działki
Tooltip
Najmniejsza możliwa szerokość działki niezbędna do wybudowania wybranego domu. Składa się z szerokości elewacji domu powiększonej z obu stron o 3 m dla ściany bez otworów drzwiowych/okiennych lub 4 m, dla ściany z otworami.

24,20 m

Min. długość działki
Tooltip
Najmniejsza możliwa długość działki niezbędna do wybudowania wybranego domu. Składa się z długości elewacji domu powiększonej z obu stron o 3 m dla ściany bez otworów drzwiowych/okiennych lub 4 m, dla ściany z otworami.

19,70 m

Energooszczędność Energooszczędność

Oze Czym jest OZE (Odnawialne Źródło Energii)?
Ep
Tooltip
Energia pierwotna określa ilość energii nieodnawialnej potrzebnej w ciągu roku do ogrzewania czy też ogrzania wody użytkowej z uwzględnieniem kosztów produkcji i transportu surowców energetycznych.

38,45 kWh/(m²rok)

Euco
Tooltip
Energia użytkowa potrzebna do ogrzewania i wentylacji. Im parametr jest niższy tym budynek bardziej energooszczędny.

21,11 kWh/(m²rok)

Ogrzewanie główne

Gazowe - szczegóły

Interesuje Cię inne źródło ogrzewania? Wyślij zapytanie lub zadzwoń do doradcy

Wentylacja

Mechaniczna nawiewno-wywiewna z rekuperacją - szczegóły

Warunki techniczne

Projekt zgody z WT 2021

Technologia i konstrukcja Technologia i konstrukcja

Konstrukcja

Murowana

PROJEKT Z BUDOWĄ Istnieje możliwość zaadaptowania tego projektu do technologii prefabrykowanej/modułowej i budowy nawet w 6 miesięcy ze stałym kosztem budowy

Dowiedz się więcej »
Opis szczegółowy

Fundamenty - rozwiązanie o podwyższonej izolacji termicznej. Ściany zewnętrzne - Bloczek silikatowy 24 cm + styropian 20 cm. Dach - stropodach gęstożebrowy. Ogrzewanie - c.o. grzejnikowe + c.w.u. - kocioł gazowy. Wentylacja - rekuperacja.

Strop

Gęstożebrowy

Reklama
Okna i drzwi tarasowe

Nowoczesne okna PVC i aluminiowe WIŚNIOWSKI – doskonała izolacja, elegancki design i niezrównana trwałość.

Wiśniowski
Sprawdź parametry!
Okna dachowe

Oferujemy bezpłatne konsultacje w zakresie wszystkich rozwiązań VELUX. Wyceny, porady dotyczące doboru okien i rolet zewnętrznych - sprawdź!

Velux
Sprawdź szczegóły
Płytki ceramiczne i gresy

Od małych formatów po wielkoformatowe gresy. Marmur, beton, drewno, kamień, lastryko czy cegiełki zamówisz wygodnie online z szybką dostawą.

Ceramzet
Sprawdź ofertę
Drzwi

Ciepłe drzwi WIŚNIOWSKI z kontrolą dostępu. Szeroka gama wzorów i kolorów.

Wiśniowski
Wybierz najlepsze
Bramy garażowe

Automatyczne bramy garażowe segmentowe i uchylne WIŚNIOWSKI na wymiar i z systemem smart home w standardzie.

Wiśniowski
Sprawdź ofertę!
Armatura i ceramika łazienkowa

Topowi producenci. Baterie łazienkowe, zestawy natynkowe i podtynkowe, umywalki, wanny, miski WC oraz kabiny zamówisz kompleksowo online.

Ceramzet II
Dowiedz się więcej
Rekuperacja

Alnor - kompletny system rekuperacji. Dobierz idealne rozwiązanie dla Twojego domu!

Alnor
Dobierz rekuperator
Gruntowe pompy ciepła

Przeprowadzimy kompletną instalację najbardziej oszczędnego źródła ciepła w Twoim nowym domu - gruntowej pompy ciepła. Od dokumentacji, pozwoleń, po odwierty i instalację.

Geothermal Solutions
Dowiedz się więcej

Gotowe domy modułowe (114)

Zobacz wszystkie
Stan deweloperski nawet w 6 miesięcy Gwarancja stałej ceny
Zdjęcie 1 projektu Dom prefabrykowany Piętrowy 130C HFX1023
Pow. użytkowa
132 m²
Pokoje
4
539 000 zł 4 083 zł/m²
Zdjęcie 1 projektu Dom prefabrykowany Piętrowy 130B HFX1022
Pow. użytkowa
131,60 m²
Pokoje
5
539 000 zł 4 096 zł/m²
Zdjęcie 1 projektu Dom prefabrykowany Piętrowy 130A HFX1021
Pow. użytkowa
130,40 m²
Pokoje
4
539 000 zł 4 133 zł/m²
Zdjęcie 1 projektu Dom prefabrykowany DEX136 HDX1002
Pow. użytkowa
136 m²
Pokoje
4
845 000 zł 6 213 zł/m²
Zdjęcie 1 projektu Dom prefabrykowany P.5 HPK1004
Pow. użytkowa
138,67 m²
Pokoje
5
772 700 zł 5 572 zł/m²
Zdjęcie 1 projektu Dom prefabrykowany P.1 z okapem HPK1000
Pow. użytkowa
139,44 m²
Pokoje
3
721 000 zł 5 171 zł/m²
Zdjęcie 1 projektu Dom prefabrykowany P.1 bez okapu HPK1012
Pow. użytkowa
139,44 m²
Pokoje
3
699 800 zł 5 019 zł/m²
Zdjęcie 1 projektu Dom prefabrykowany P.11 HPK1011
Pow. użytkowa
122,88 m²
Pokoje
3
681 300 zł 5 544 zł/m²

Opis projektu domu
Belfast III DCP268b

Budynek Belfast III DCP268b został stworzony na wzór popularnego projektu Belfast DCP268. W przeciwieństwie do pierwotnej wersji projekt ma większą powierzchnię. Projekt domu Belfast III DCP268b jest doskonałym rozwiązaniem dla osób posiadających średniej szerokości działkę. Dom cechuje się prostą bryłą, więc jego realizacja nie pochłonie zbyt wielu środków finansowych. Projekt został stworzony z myślą o działkach pozwalających na usytuowanie domu w zabudowie wolnostojącej. W projekcie zaplanowano garaż dwustanowiskowy w linii budynku. Bryła budynku przykryta jest dachem płaskim, dzięki czemu piętro nie posiada skosów i tym samym jest w pełni funkcjonalne. Projekt Belfast III DCP268b to dom piętrowy, co sprawia, że jego powierzchnia jest wyraźnie podzielona na strefy: dzienną i nocną. Autor projektu przewidział w nim ciekawie prezentującą się strefę dzienną. W projekcie przewidziano kuchnię otwartą. Takie rozwiązanie sprawia, że część dzienna jest bardzo przestronna. Uwzględniona w projekcie spiżarka znacznie ułatwi zachowanie porządku. Strefę dzienną tworzy także przestronny salon z jadalnią, dzięki czemu domownicy mogą wspólnie integrować się w jednym miejscu. Usytuowany w salonie kominek sprawi, iż wnętrze stanie się bardziej przytulne. W projekcie uwzględniono jedną komfortową łazienkę na parterze i jedną na piętrze. Uwzględnione w domu cztery przestronne sypialnie to optymalna opcja dla 4-6 osobowej rodziny. Przestrzeń można wykorzystać także jako pokój dla gości lub gabinet. Oprócz tego, w domu znajduje się również pomieszczenie gospodarcze, które można wykorzystać zgodnie z własnymi potrzebami. Rodzinne spotkania w słonecznie dni uprzyjemni przewidziany przy domu taras. Projekt został wykonany w technologii murowanej, dzięki czemu podczas upałów dom utrzymuje przyjemny chłód. W jego bryle widoczne są rozwiązania nawiązujące do stylu nowoczesnego, co jest idealnym rozwiązaniem dla osób ceniących najnowsze rozwiązania.
Czytaj więcej

Polecani producenci

Prefabrykowane konstrukcje dachowe

tło producenta

WIĄZAR POLSKA

Zobacz więcej

Sprawdź nową generację okien GREENVIEW

tło producenta

FAKRO

Sprawdź nową generację okien GREENVIEW

Styropian, tynki, farby, kleje

tło producenta

Termo Organika

Poznaj super jakość

Okna, drzwi, osłony przeciwsłoneczne

tło producenta

Aluprof

Sprawdź ofertę

Kompletne systemy rekuperacji

tło producenta

Alnor

Dowiedz się więcej

Sprawdź nowy system DACHRYNNA

tło producenta

Galeco

Sprawdź ofertę
Zobacz więcej

Społeczność projektu domu
Belfast III DCP268b w budowie

Dołącz do społeczności osób, które budują ten dom lub są zainteresowane jego budową.

  • Oglądaj zdjęcia z budowy
  • Zadawaj pytania
  • Wymieniaj się doświadczeniami

Opinie o projekcie domu Belfast III DCP268b

Ocena

Ten projekt nie ma jeszcze opinii, bądź pierwszy!

Dodaj opinię

Wywiady mieszkańców domu Belfast III DCP268b

Zdjęcie profilowe użytkownika danso danso

Szukając projektu nowego domu musieliśmy zwracać uwagę, aby był zgodny z wymogami narzuconymi przez konserwatora zabytków w naszym mieście. Określają one, iż budynki powstające na tym terenie muszą posiadać dach o bardzo wysokim kącie nachylenia lub też całkowicie płaski. Zdecydowaliśmy się na drugą opcję i tym samym postanowiliśmy poszukać domu o nowoczesnym wyglądzie. Z projektów, które spełniały te kryteria, najbardziej do gustu przypadł nam Belfast III (DCP268b). Spodobała nam się jego prosta bryła oraz sporych rozmiarów okna. Na naszą decyzję duży wpływ miała także możliwość zrealizowania projektu w systemie domu pasywnego.Cała inwestycja odbyła się bez jakichkolwiek problemów. Był to już trzeci dom, który wybudowałem i mam w tym temacie dosyć spore doświadczenie, co pozwoliło mi na uniknięcie trudności. Realizacja przebiegła w szybkim czasie, gdyż od pierwszego „wbicia łopaty” do wprowadzenia się do nowego domu minął w naszym przypadku 1 rok i 2 tygodnie.Budynek został wymurowany z bloczków Ytong, zaś oba stropy wykonaliśmy w konstrukcji strunobetonowej. Ściany z zewnątrz ociepliliśmy 20 cm warstwą styropianu. Dom oraz wodę użytkową ogrzewamy za pomocą pompy ciepła. Rachunki za to rozwiązanie w najbardziej mroźnych miesiącach wyniosły nas ok. 350 zł/mies.Trudno ocenić mi poprawność szacunków dotyczących ceny inwestycji, ponieważ zdecydowałem się na budowę systemem gospodarczym. Wiele prac (np. wykonanie instalacji elektrycznej czy hydraulicznej) wykonałem samodzielnie, z racji czego udało mi się sporo zaoszczędzić na robociźnie. Budynek w technologi pasywnej, łącznie z instalacjami, systemem Inteligentnego Domu, tynkami, pompą ciepła oraz z większością wykończeń wyniósł nas ok. 320 tys. zł.Do projektu Belfast III (DCP268b) postanowiliśmy wprowadzić modyfikacje polegające na zmianie układu pomieszczeń na wyższej kondygnacji. Uznaliśmy, że nie potrzebujemy tak dużej łazienki, dlatego jej sporą powierzchnię przeznaczyliśmy na zrobienie pokoju. Łazienkę wykonaliśmy zaś w miejscu pierwotnej garderoby, którą nieco powiększyliśmy kosztem sypialni obok. Pozostały metraż tego pomieszczenia zaaranżowaliśmy na garderobę.Dodatkowo, na parterze zrezygnowaliśmy ze ścianki działowej tworzącej wiatrołap. Dzięki temu obecnie wchodząc do domu od razu znajdujemy się w dużym, przestronnym hallu. Oprócz tego postanowiliśmy zaadaptować powierzchnię pod schodami i przyłączyliśmy ją do spiżarki, tworząc tym samym większe zaplecze do przechowywania.Inne modyfikacje nie były potrzebne i w dalszym ciągu nie widzę w naszym domu nic, co chciałbym jeszcze zmienić. Wnętrze jest funkcjonalne i w całości mi odpowiada. Wybór projektu domu piętrowego Belfast III (DCP268b) okazał się dla nas naprawdę trafioną decyzją. Pozdrawiam.

ASYSTENT WYBORU PROJEKTU

Szukasz idealnego projektu? Znajdziemy go dla Ciebie!

Doradca na podstawie Twoich wskazówek przygotuje spersonalizowaną listę projektów

Graficzne opracowanie rzutów poglądowych widocznych na karcie projektu zostało wykonane przez Extradom.pl. Prezentowane przez Extradom.pl wizualizacje wykonane zostały przez autora projektu i należy poczytywać je jedynie za przykład i propozycję wykończenia, wizję architektoniczną autora projektu. Ostateczne wykończenie budynku może nastąpić na wiele sposobów. Szczegółowe rozwiązania zastosowane w oferowanej dokumentacji - w tym również ilość, lokalizacje i wygląd okien, drzwi, kominów - mogą w niewielkim stopniu różnić się od prezentowanej wizualizacji budynku.

Extradom.pl Spółka z ograniczoną odpowiedzialnością z siedzibą przy ul. Jaworskiej 13, 53-612 Wrocław, wpisana do rejestru przedsiębiorców Krajowego Rejestru Sądowego przez Sąd Rejonowy dla Wrocławia-Fabrycznej we Wrocławiu, VI Wydział Gospodarczy Krajowego Rejestru Sądowego do pod numerem KRS 0000648746, numer NIP 895-17-18-333, o kapitale zakładowym 708 150,00 zł uprzejmie informuje, iż poprzez serwis Extradom.pl umożliwia m.in. zapoznanie się przez konsumentów z ofertą handlową Partnerów Extradom.pl, którzy stosują metody budowy domów przy wykorzystaniu różnego rodzaju technologie prefabrykacji bądź modułowe (tzw. „Gotowe domy”).

Extradom.pl nie prowadzi jednakże sprzedaży ani nie oferuje usług polegających na doradztwie finansowym, prawnym ani podatkowym w zakresie inwestycji realizowanych w technologiach tzw. „Gotowych domów”. Informacje prezentowane w serwisie Extradom.pl dotyczące Partnerów Extradom.pl oferujących realizację inwestycji w technologiach „Gotowych domów” lub podobnych mają charakter informacyjny i reklamowy.

Prezentowane w serwisie Extradom.pl informacje dotyczące stosowanych przez Partnerów metod budowy domów w technologii prefabrykacji bądź modułowej pochodzą od Partnerów Extradom.pl.

Extradom.pl sp. z o.o. jedynie umożliwia nawiązanie kontaktu przez Użytkownika z Partnerem Extradom.pl stosującym tego rodzaju technologie budowy domów i nie jest stroną umowy o roboty budowlane zawieranej przez Użytkownika Extradom.pl z Partnerem Extradom.pl.

REKLAMA
Zamknij