👉 Odbierz prezent 🎁

Projekt domu ASTER 2 KRD1017

Zapisz Dodano!
Porównaj Dodano!
ikona Pobierz i drukuj

Warstwy

Warstwy

Warstwy

Rzut parteru

Powierzchnia (m²)
Tooltip
Powierzchnia pomieszczenia
to ta, z której faktycznie możesz korzystać – skosy i niskie części poddasza są liczone częściowo lub wcale.
  1. 100% dla wysokości powyżej 2,2 m,
  2. 50% dla wysokości 1,4–2,2 m,
  3. nie liczymy poniżej 1,4 m.

Powierzchnia podłogi
Liczymy po obrysie pomieszczenia, bez względu na jego wysokość/skosy. Jeśli nie ma skosów to powierzchnia podłogi i pomieszczenia jest taka sama.
pomieszczenia i podłogi
podłogi
1. Pomieszczenie gospodarcze
32,20
2. Kotłownia
11,20
3. Korytarz
5,50
4. Pomieszczenie techniczne
3,60
5. Spiżarnia
8,20
Razem
60,70
60,70
Powierzchnia (m²)
Tooltip
Powierzchnia pomieszczenia
to ta, z której faktycznie możesz korzystać – skosy i niskie części poddasza są liczone częściowo lub wcale.
  1. 100% dla wysokości powyżej 2,2 m,
  2. 50% dla wysokości 1,4–2,2 m,
  3. nie liczymy poniżej 1,4 m.

Powierzchnia podłogi
Liczymy po obrysie pomieszczenia, bez względu na jego wysokość/skosy. Jeśli nie ma skosów to powierzchnia podłogi i pomieszczenia jest taka sama.
pomieszczenia i podłogi
podłogi
1. Pokój dzienny
32,20
2. Garaż
18,20
3. Hall
6,50
4. Kuchnia
11,20
5. Wiatrołap
2,70
6. Łazienka
7,80
Razem
78,60
78,60
Powierzchnia (m²)
Tooltip
Powierzchnia pomieszczenia
to ta, z której faktycznie możesz korzystać – skosy i niskie części poddasza są liczone częściowo lub wcale.
  1. 100% dla wysokości powyżej 2,2 m,
  2. 50% dla wysokości 1,4–2,2 m,
  3. nie liczymy poniżej 1,4 m.

Powierzchnia podłogi
Liczymy po obrysie pomieszczenia, bez względu na jego wysokość/skosy. Jeśli nie ma skosów to powierzchnia podłogi i pomieszczenia jest taka sama.
pomieszczenia i podłogi
podłogi
1. Pokój
11,70
2. Pokój
11,10
3. Przedpokój
4,80
4. Pokój
10,20
5. Łazienka
5,70
Razem
43,50
43,50

    Usytuowanie na działce

    Czy ten projekt pasuje na
    Twoją działkę?

    Chętnie to sprawdzimy!

    Dowiedz się:

    • czy zmieści się na niej wybrany przez Ciebie dom
    • jakie parametry musi spełniać dom według miejscowego planu zagospodarowania lub warunków zabudowy (np. kąt nachylenia i typ dachu, liczba kondygnacji itp.
    • jakie inne projekty pasują na Twoją działkę – znajdziemy je dla Ciebie!

Pokoje

3

Łazienki i WC

2

Garaż

0
więcej

ASTER 2 - KRD1017

ikona3
Pokoje (bez salonu)
ikona 2
Łazienki (z toaletami)
ikona 0
Liczba stanowisk garażowych
(z wiatą garażową)

Projekt został
wycofany z oferty

W razie pytań prosimy o kontakt
z Centrum Obsługi Klienta
Konsultant
71 715 20 60

pon.-pt. 8-21, sob. 9-17

Piwnica - 60,70 m²

Piwnica projektu ASTER 2

Zapytaj, co możesz zmienić

Powierzchnia (m²)
Tooltip
Powierzchnia pomieszczenia
to ta, z której faktycznie możesz korzystać – skosy i niskie części poddasza są liczone częściowo lub wcale.
  1. 100% dla wysokości powyżej 2,2 m,
  2. 50% dla wysokości 1,4–2,2 m,
  3. nie liczymy poniżej 1,4 m.

Powierzchnia podłogi
Liczymy po obrysie pomieszczenia, bez względu na jego wysokość/skosy. Jeśli nie ma skosów to powierzchnia podłogi i pomieszczenia jest taka sama.
pomieszczenia i podłogi
podłogi
1. Pomieszczenie gospodarcze
32,20
2. Kotłownia
11,20
3. Korytarz
5,50
4. Pomieszczenie techniczne
3,60
5. Spiżarnia
8,20
Razem
60,70
60,70

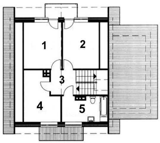
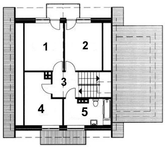
Parter - 78,60 m²

Parter projektu ASTER 2

Zapytaj, co możesz zmienić

Powierzchnia (m²)
Tooltip
Powierzchnia pomieszczenia
to ta, z której faktycznie możesz korzystać – skosy i niskie części poddasza są liczone częściowo lub wcale.
  1. 100% dla wysokości powyżej 2,2 m,
  2. 50% dla wysokości 1,4–2,2 m,
  3. nie liczymy poniżej 1,4 m.

Powierzchnia podłogi
Liczymy po obrysie pomieszczenia, bez względu na jego wysokość/skosy. Jeśli nie ma skosów to powierzchnia podłogi i pomieszczenia jest taka sama.
pomieszczenia i podłogi
podłogi
1. Pokój dzienny
32,20
2. Garaż
18,20
3. Hall
6,50
4. Kuchnia
11,20
5. Wiatrołap
2,70
6. Łazienka
7,80
Razem
78,60
78,60

Poddasze - 43,50 m²

Poddasze projektu ASTER 2

Zapytaj, co możesz zmienić

Powierzchnia (m²)
Tooltip
Powierzchnia pomieszczenia
to ta, z której faktycznie możesz korzystać – skosy i niskie części poddasza są liczone częściowo lub wcale.
  1. 100% dla wysokości powyżej 2,2 m,
  2. 50% dla wysokości 1,4–2,2 m,
  3. nie liczymy poniżej 1,4 m.

Powierzchnia podłogi
Liczymy po obrysie pomieszczenia, bez względu na jego wysokość/skosy. Jeśli nie ma skosów to powierzchnia podłogi i pomieszczenia jest taka sama.
pomieszczenia i podłogi
podłogi
1. Pokój
11,70
2. Pokój
11,10
3. Przedpokój
4,80
4. Pokój
10,20
5. Łazienka
5,70
Razem
43,50
43,50

Podobne projekty (10190)

Zobacz wszystkie
PREZENT 🎁
Nowość
Zdjęcie 1 projektu LK&1827 LKP1021
LK&1827
Dodano!
Dodano!
232,54 m²
4
1
2

16 000 zł

PREZENT 🎁
Zdjęcie 1 projektu Mini 4 modern energo WRC2765
Mini 4 modern energo
Dodano!
Dodano!
114,22 m²
3
2
0

5 200 zł

PREZENT 🎁
Zdjęcie 1 projektu HomeKoncept 122 G2 KRX1282
HomeKoncept 122 G2
Dodano!
Dodano!
107,62 m²
3
2
2

6 790 zł

PREZENT 🎁
Nowość
Zdjęcie 1 projektu Astina 2 BSE1284
Astina 2
Dodano!
Dodano!
158,95 m²
4
3
2

6 800 zł

PREZENT 🎁
Nowość
Zdjęcie 1 projektu Mini 4 modern plus energo plus WRC2837
110,05 m²
3
2
0

6 600 zł

PREZENT 🎁
Nowość
Zdjęcie 1 projektu Mini 1 G1 modern plus energo plus WRC2838
86,22 m²
3
2
1

6 100 zł

PREZENT 🎁
Nowość
Zdjęcie 1 projektu N-114 PZB1117
N-114
Dodano!
Dodano!
126,40 m²
3
2
1

8 290 zł

PREZENT 🎁
Zdjęcie 1 projektu HomeKoncept 58 KRX1074
HomeKoncept 58
Dodano!
Dodano!
141,68 m²
3
2
2

7 490 zł

Przekroje

Przekrój pionowy
Autor: Archeton

Dane techniczne projektu

Powierzchnie i wymiary Powierzchnie i wymiary

Energooszczędność Energooszczędność

Oze Czym jest OZE (Odnawialne Źródło Energii)?
Warunki techniczne

Projekt zgody z WT 2021

Opis projektu domu
ASTER 2

Przez sień wejście do hallu. Po prawej stronie klatka schodowa - zejście do piwnicy i wejście na poddasze. Na wprost z hallu dostępny pokój dzienny , po lewej kuchnia. W piwnicach zlokalizowano kotłownię, spiżarnię i garaż. Na poddaszu 3 pokoje sypialnei łazienka. Z boku dostawiony garaż. Mały, zgrabny dom na rzucie zbliżonym do kwadratu, przykryty symetrycznym dwuspadowym dachem. Malowniczości dodają budynkowi deskowania ścian szczytowych w części poddasza oraz balkon i zadaszenie wejścia. Harmonijna i spokojna architektura oraz niewielka bryła sprawiają, iż dom wydaje się przytulnym i miłym miejscem do zamieszkania.
Czytaj więcej

Polecani producenci

Kompletne systemy rekuperacji

tło producenta

Alnor

Dowiedz się więcej

Prefabrykowane konstrukcje dachowe

tło producenta

WIĄZAR POLSKA

Zobacz więcej

Sprawdź nową generację okien GREENVIEW

tło producenta

FAKRO

Sprawdź nową generację okien GREENVIEW

Styropian, tynki, farby, kleje

tło producenta

Termo Organika

Poznaj super jakość

Okna, drzwi, osłony przeciwsłoneczne

tło producenta

Aluprof

Sprawdź ofertę
Zobacz więcej

Społeczność projektu domu
ASTER 2 w budowie

Dołącz do społeczności osób, które budują ten dom lub są zainteresowane jego budową.

  • Oglądaj zdjęcia z budowy
  • Zadawaj pytania
  • Wymieniaj się doświadczeniami

Opinie o projekcie domu ASTER 2

Ocena

Ten projekt nie ma jeszcze opinii, bądź pierwszy!

Dodaj opinię

ASYSTENT WYBORU PROJEKTU

Szukasz idealnego projektu? Znajdziemy go dla Ciebie!

Doradca na podstawie Twoich wskazówek przygotuje spersonalizowaną listę projektów

Graficzne opracowanie rzutów poglądowych widocznych na karcie projektu zostało wykonane przez Extradom.pl. Prezentowane przez Extradom.pl wizualizacje wykonane zostały przez autora projektu i należy poczytywać je jedynie za przykład i propozycję wykończenia, wizję architektoniczną autora projektu. Ostateczne wykończenie budynku może nastąpić na wiele sposobów. Szczegółowe rozwiązania zastosowane w oferowanej dokumentacji - w tym również ilość, lokalizacje i wygląd okien, drzwi, kominów - mogą w niewielkim stopniu różnić się od prezentowanej wizualizacji budynku.

REKLAMA
Zamknij