👉 Niższe ceny + karta allegro 200 zł! 🔥
Koniec oferty za:
0dni
00godz.
00min.
00sek.
531
opinii Google
Żaden projekt lub kategoria nie pasują do Twojego wyszukiwania
pon.-pt. 8-21, sob. 9-17
Polecane kategorie
Analiza MPZP co warto sprawdzic w planie zagospodarowania przestrzennego
Warunki zabudowy i zagospodarowania teranu - decyzja
Mapa ewidencyjna czym jest i gdzie ją uzyskać
Domy modułowe, domy prefabrykowane co warto o nich wiedzieć.
Dom pasywny - co to znaczy
Projekt budowlany - co powinnien zawierać
Rodzaje dachów poznaj wszystkie możliwości
Budowa garażu ile kosztuje
Nadproże, co warto wiedzieć przed budową
Dom w stylu skandynawskim poznaj fenomen stylu ze skandynawii
Tynk strukturalny - jak samodzielnie położyć na ścianie
Sufit podwieszany jak zamontować - podpowiadamy
Zadaszenie tarasu - jak samodzielnie wykonać
Izolacja fundamentów - jak prawidłowo wykonać
Kominek z płaszczem wodnym co warto wiedzieć
Aranżacja ogrodu - od czego zaczącząć
Ogrodzenie panelowe jak zamontować
Sypialnia na poddaszu poznaj pomysły na ciekawą aranżację sypialni
Wanna z prysznicem czy takie połączenie sprawdzi się w każdej łazience
Łazienka na poddaszu odkryj ciekawe pomysły na aranżację
Wskaźnik intensywności zabudowy jak go obliczyć
Samowola budowlana czym jest i jak sprawdzić
Adaptacja poddasza - jak zaadaptować poddasze w domu jednorodzinnym
Wpis do księgi wieczystej - jak złożyć wniosek o wpis nieruchomości
Dom bez pozwolenia - co musisz o nich wiedzieć
Wycena nieruchomości - jak wygląda i ile to kosztuje
Podatek od nieruchomości 2021 ile wynosi i kiedy trzeba go zapłacić
Mieszkanie dla młodych jakie warunki oferował zakończony program rządowym MDM
Podatek katastralny w polsce co to jest i czy zastąpi podatek od nieruchomości
Taksa notarialna - jakie są opłaty notarialne przy zakupie domu
Co zalicza się do odnawialnych źródeł energii?
Czym są domy pasywne?
Dofinansowanie do budowy domu energooszczędnego
Jak dobrać magazyn energii do fotowoltaiki?
Dlaczego warto inwestować w OZE właśnie teraz?
Otrzymasz:
Twoje konto
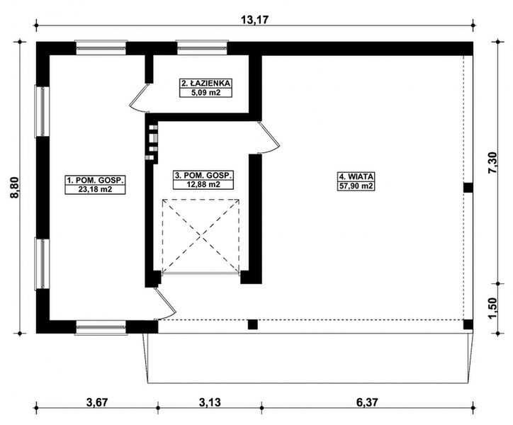
Wymiary wewnętrzne
Powierzchnie pomieszczeń
Numery pomieszczeń
Meble
Kolory pomieszczeń
G372 - Budynek gospodarczy PRA1389
Wizualizacje
Rzuty
Elewacje i przekroje
Warstwy
Rzut parteru
Czy ten projekt pasuje na Twoją działkę?
Chętnie to sprawdzimy!
Dowiedz się:
Pow. użytkowa
Pokoje
Łazienki i WC
Garaż
Kąt dachu
Wysokość budynku
Powierzchnia zabudowy
Konstrukcja
Pokaż więcej parametrów
G372 - Budynek gospodarczy - PRA1389
1 390 zł
Projekt jest dostępny
15% rabatu do LEROY MERLIN
10% rabatu w CASTORAMIE
10% zwrotu za zakupy w OBI
16% rabatu w SELSEY
TYLKO U NAS! Kurs online dla inwestorów
Pakiet Formalności 2026
Przydatne Extradodatki
Poradnik Dach Solarny
15% rabatu - buduj i urządzaj taniej
Do tego projektu otrzymasz voucher na 15% rabatu w sklepach Leroy Merlin. Rabat obowiązuje przez cały dzień!
Rabatem objęte są m.in.:
Dowiedz się więcej
10% rabatu - Twój sposób na tańszą budowę
Do tego projektu otrzymasz zaproszenie do programu PakietMieszkanie. Dzięki niemu zrobisz zakupy w Castoramie aż 10% taniej - każdego dnia, przez 12 miesięcy.
Oszczędzaj na materiałach budowlanych i wyposażeniu wnętrz, a do tego skorzystaj z bezpłatnego projektowania kuchni, łazienki i garderoby.
10% zwrotu na kartę podarunkową OBI
Do tego projektu otrzymasz zaproszenie do programu Pakiet Remontowy OBI. Dzięki niemu przy jednorazowych zakupach za minimum 6000 zł brutto w sklepie stacjonarnym OBI otrzymasz 10% zwrotu na kartę podarunkową OBI — maksymalnie 2000 zł.
Zyskaj dodatkowe środki na kolejne zakupy i łatwiej zaplanuj wydatki związane z budową, wykończeniem i urządzaniem domu.
16% rabatu - meble i dodatki kupisz taniej
Kupując projekt, otrzymasz voucher na 16% rabatu w Selsey. Rabat obowiązuje przy zamówieniach od 1000 zł na produkty nieprzecenione.
Wybieraj spośród tysięcy stylowych mebli i dodatków, które odmienią Twoje wnętrze.
Planujesz budowę domu i nie wiesz, od czego zacząć?
Tylko u nas otrzymasz bezpłatny dostęp do Akademii Budowy - bestsellerowego kursu online!
W 32 lekcjach wideo nasi eksperci przeprowadzą Cię za rękę przez wybór działki, adaptację projektu i szacowanie budżetu. Dzięki praktycznym poradom możesz uniknąć kosztownych błędów. Buduj bez stresu! Tylko u nas za 0 zł zamiast 399 zł!
Pakiet Formalności - Twój niezbędnik inwestora
Do tego projektu otrzymasz zestaw obowiązujących wniosków i przydatnych dokumentów, które pomogą Ci przygotować się do każdego z etapów budowy. W zestawie znajdziesz:
Obok zamówionej dokumentacji projektowej otrzymasz od nas prezent - pakiet przydatnych dodatków! Otrzyma je każdy, kto zamówi u nas gotowy projekt domu.
Gotowe projekty architektury ogrodowej w PDF
To gotowe rozwiązania i projekty, które pasują do ogrodu w każdym stylu. W środku m.in.:
Wybrane wizualizacje projektów
Poradnik PDF “Jak budować dom”
Wraz z naszymi ekspertami przygotowaliśmy poradnik dla początkujących inwestorów! Z nim łatwiej przejdziesz przez wszystkie najważniejsze etapy budowy. Tu znajdziesz podpowiedzi dotyczące materiałów, technologii czy samej budowy. Zadbaliśmy o to, by nasze porady miały przyjazną i przystępną formę - zachęcamy do lektury i gwarantujemy, że budowa Twojego nowego domu z Extradom.pl będzie przyjemnością.
OBOWIĄZKOWY NA BUDOWIE
Dziennik budowy
Dziennik budowy to dokument urzędowy niezbędny do uzyskania pozwolenia na budowę. Wchodzi w skład kompletnej dokumentacji i prowadzi go kierownik budowy. Dokument został opracowany zgodnie z rozporządzeniem ministra infrastruktury z 26 lutego 2002 roku.
Poradnik PDF “Jak urządzić ogród?”
Przydatny przy aranżowaniu przydomowego ogrodu. Zawiera opisy roślin, porady dotyczące zakładania trawnika, praktyczne wskazówki ułatwiające całoroczną pielęgnację roślin i gotowe moduły ogrodowe dopasowane do kształtu działki. Przykładowe strony poradnika znajdziesz poniżej!
Odkryj innowacyjne rozwiązanie, które łączy funkcjonalność nowoczesnego dachu i fotowoltaiki w jednym. Kupując projekt domu otrzymasz bezpłatny poradnik SunRoof – Dach solarny 2 w 1, dzięki któremu dowiesz się, jak w prosty sposób zaoszczędzić na energii i zadbać o środowisko. Zainspiruj się nowoczesnymi technologiami!
Parter - 41,15 m²
Zapytaj, co możesz zmienić
Natychmiast, otrzymasz PDF-y z rzutami wszystkich kondygnacji
Zamów rysunki szczegółowe
1 750 zł
Powierzchnie i wymiary
99,05 m²
115,90 m²
504,70 m³
25°
5,38 m
Technologia i konstrukcja
Murowana
Budynek wykonany w technologii tradycyjnej. Ściany murowane z bloczków z betonu komórkowego grubości 24cm. Brama o wymiarach 2,40×2,20m. Więźba dachowa dwuspadowa, drewniana, pokryta blachodachówką.
Nowoczesne okna PVC i aluminiowe WIŚNIOWSKI – doskonała izolacja, elegancki design i niezrównana trwałość.
Oferujemy bezpłatne konsultacje w zakresie wszystkich rozwiązań VELUX. Wyceny, porady dotyczące doboru okien i rolet zewnętrznych - sprawdź!
Systemy drzwi i okien z myślą o nowoczesnej architekturze i dużych przeszkleniach tarasowych.
Wybierz pompę ciepła, która pasuje do Twojego domu. Niezależnie od tego, czy ustawienie wewnątrz czy na zewnątrz, pompy ciepła STIEBEL ELTRON dopasują się do każdej przestrzeni.
Idealne połączenie sztuki z technologią! Nowoczesne i energooszczędne drzwi wyróżniają się doskonałym połączeniem funkcjonalności, wysokiej estetyki wykonania oraz unikalnego stylu.
Ciepłe drzwi WIŚNIOWSKI z kontrolą dostępu. Szeroka gama wzorów i kolorów.
Automatyczne bramy garażowe segmentowe i uchylne WIŚNIOWSKI na wymiar i z systemem smart home w standardzie.
Alnor - kompletny system rekuperacji. Dobierz idealne rozwiązanie dla Twojego domu!
Producent stalowych pokryć dachowych i systemów elewacyjnych. Precyzja wykonania, trwałość na lata i szybki montaż doceniany przez dekarzy. Postaw na solidny dach Budmat.
Nowoczesne stalowe ogrodzenia Budmat - estetyka, bezpieczeństwo i trwałość na lata. Systemowe rozwiązania na wymiar, dopasowane do każdego domu.
Dokumentacja projektowa jest zabezpieczona plombą, której usunięcie uniemożliwi zwrot oraz wymianę projektu. Przed zakupem zachęcamy do zapoznania się z rysunkami szczegółowymi do projektu.
Kompletne systemy rekuperacji
Alnor
Dachy modułowe ze stali
Budmat
Prefabrykowane konstrukcje dachowe
WIĄZAR POLSKA
Dołącz do społeczności osób, które budują ten dom lub są zainteresowane jego budową.
Społeczność użytkowników Extradom.pl
Grupa "Buduję mój Extradom" na Facebooku
Opinie niezweryfikowane
Bądź pierwszy! Ten projekt nie ma jeszcze opinii, bądź pierwszy!
Określ ilość gwiazdek
Tekst opinii nie powinien zawierać niecenzuralnych treści, dlatego zostanie dodany po weryfikacji. W pierwszej kolejności pojawią się opinie osób, które budują wybrany projekt.
Dziękujemy za Twoją opinię.
ASYSTENT WYBORU PROJEKTU
Szukasz idealnego projektu? Znajdziemy go dla Ciebie!
Doradca na podstawie Twoich wskazówek przygotuje spersonalizowaną listę projektów
Graficzne opracowanie rzutów poglądowych widocznych na karcie projektu zostało wykonane przez Extradom.pl. Prezentowane przez Extradom.pl wizualizacje wykonane zostały przez autora projektu i należy poczytywać je jedynie za przykład i propozycję wykończenia, wizję architektoniczną autora projektu. Ostateczne wykończenie budynku może nastąpić na wiele sposobów. Szczegółowe rozwiązania zastosowane w oferowanej dokumentacji - w tym również ilość, lokalizacje i wygląd okien, drzwi, kominów - mogą w niewielkim stopniu różnić się od prezentowanej wizualizacji budynku.
Ups, wystąpił problem
ODKRYJ NOWE
Konto Extradom.pl