Projekty nawet 500 zł taniej ❄️

Koniec oferty za:

0dni

00godz.

00min.

00sek.

Sprawdź

ExtraMurowany 1

HAD1003

Dodaj

Dodano!

Porównaj

Dodano!

Drukuj

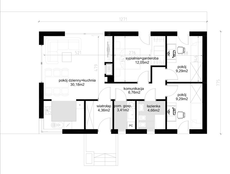
Rzut parteru

Powierzchnia (m²)
Tooltip
Powierzchnia pomieszczenia
to ta, z której faktycznie możesz korzystać – skosy i niskie części poddasza są liczone częściowo lub wcale.
  1. 100% dla wysokości powyżej 2,2 m,
  2. 50% dla wysokości 1,4–2,2 m,
  3. nie liczymy poniżej 1,4 m.

Powierzchnia podłogi
Liczymy po obrysie pomieszczenia, bez względu na jego wysokość/skosy. Jeśli nie ma skosów to powierzchnia podłogi i pomieszczenia jest taka sama.
pomieszczenia i podłogi
podłogi
1. Wiatrołap
4,36
2. Korytarz
6,76
3. Pomieszczenie gospodarcze
3,41
4. Łazienka
4,66
5. Pokój
9,29
6. Pokój
9,29
7. Pokój + garderoba
12,05
8. Pokój dzienny + jadalnia + kuchnia
30,18
Razem
80
80

Pow. użytkowa

80 m²

Pow. zabudowy

98,50 m²

Pokoje

3

Łazienki i WC

1

Garaż

0

Kąt dachu

30°

Min. szer. i dł. działki:

19,71 m x 15,75 m

Technologia

Murowana

więcej

Dom wycofany z oferty

W razie pytań prosimy o kontakt z doradcą. Polecamy zobaczyć podobne domy gotowe.

Wolne terminy!
Umów wizytę w
domu pokazowym
  • Jak wygląda proces budowy?
  • Ile trwa budowa i jakie terminy są dostępne?
  • Jak się mieszka w takim domu!

Zobacz podobne domy gotowe

1

/

3

Zdjęcie ExtraKeramzytowy 1
ExtraKeramzytowy 1
Dodano!
Dodano!
Pow. użytkowa
80 m²
Pow. zabudowy
98,50 m²
Pokoje
3
411 560 zł 5 145 zł/m²
Zdjęcie Dom prefabrykowany Parterowy 80C
Pow. użytkowa
79,83 m²
Pow. zabudowy
97,36 m²
Pokoje
2
385 000 zł 4 823 zł/m²
Zdjęcie Dom prefabrykowany Parterowy 80A
Pow. użytkowa
79,48 m²
Pow. zabudowy
97,36 m²
Pokoje
3
385 000 zł 4 844 zł/m²
Zdjęcie Dom prefabrykowany Parterowy 80B
Pow. użytkowa
79,27 m²
Pow. zabudowy
97,36 m²
Pokoje
3
385 000 zł 4 857 zł/m²
Bez pozwolenia
Zdjęcie Dom szkieletowy Mezzanine Smart 70
Pow. użytkowa
81,09 m²
Pow. zabudowy
70 m²
Pokoje
2
449 600 zł 5 544 zł/m²
Zdjęcie Dom modułowy Energy
Dom modułowy Energy
Dodano!
Dodano!
Pow. użytkowa
83,28 m²
Pow. zabudowy
97,50 m²
Pokoje
3
473 000 zł 5 680 zł/m²
Zdjęcie Dom prefabrykowany DEX76
Dom prefabrykowany DEX76
Dodano!
Dodano!
Pow. użytkowa
76 m²
Pow. zabudowy
101,52 m²
Pokoje
2
505 000 zł 6 645 zł/m²
Zdjęcie Dom keramzytowy Fiore 76
Dom keramzytowy Fiore 76
Dodano!
Dodano!
Pow. użytkowa
75,95 m²
Pow. zabudowy
125,05 m²
Pokoje
3
344 520 zł 4 536 zł/m²
Zdjęcie Dom prefabrykowany P.10
Dom prefabrykowany P.10
Dodano!
Dodano!
Pow. użytkowa
84,54 m²
Pow. zabudowy
104 m²
Pokoje
3
474 900 zł 5 617 zł/m²
Zdjęcie Dom prefabrykowany P.10a
Dom prefabrykowany P.10a
Dodano!
Dodano!
Pow. użytkowa
84,54 m²
Pow. zabudowy
104 m²
Pokoje
3
474 900 zł 5 617 zł/m²
Zdjęcie Dom szkieletowy Space Smart 90
Pow. użytkowa
74 m²
Pow. zabudowy
90 m²
Pokoje
3
379 527 zł 5 129 zł/m²
Zdjęcie Dom szkieletowy One Step Smart 90
Pow. użytkowa
73,45 m²
Pow. zabudowy
90 m²
Pokoje
2
428 600 zł 5 318 zł/m²
RZUTY

Rozmieszczenie
pomieszczeń

Parter - 80 m²

Parter projektu ExtraMurowany 1
Powierzchnia (m²)
Tooltip
Powierzchnia pomieszczenia
to ta, z której faktycznie możesz korzystać – skosy i niskie części poddasza są liczone częściowo lub wcale.
  1. 100% dla wysokości powyżej 2,2 m,
  2. 50% dla wysokości 1,4–2,2 m,
  3. nie liczymy poniżej 1,4 m.

Powierzchnia podłogi
Liczymy po obrysie pomieszczenia, bez względu na jego wysokość/skosy. Jeśli nie ma skosów to powierzchnia podłogi i pomieszczenia jest taka sama.
pomieszczenia i podłogi
podłogi
1. Wiatrołap
4,36
2. Korytarz
6,76
3. Pomieszczenie gospodarcze
3,41
4. Łazienka
4,66
5. Pokój
9,29
6. Pokój
9,29
7. Pokój + garderoba
12,05
8. Pokój dzienny + jadalnia + kuchnia
30,18
Razem
80
80

Podoba Ci się dom, ale chciałbyś dokonać pewnych zmian?

  • Możesz zmienić kolor i materiał elewacji
  • Możesz zmienić funkcję i układ pomieszczeń
Konsultant

Skontaktuj się z nami - przygotujemy bezpłatną ofertę dla Ciebie

71 718 89 70

pon.-pt. 08:00 - 19:00

PODSTAWOWE INFORMACJE

Energooszczędny dom murowany

icon
Dom murowany
icon
5 lat gwarancji
icon
Realizacja w 9-12 m-cy
icon
Tylko w Extradom!
HARMONIA PRZESTRZENI I FUNKCJONALNOŚCI
Nowoczesna Stodoła

Odkryj urok nowoczesnej architektury w domu ExtraMurowany 1. Ten unikatowy dom zaprojektowano z myślą o tych, którzy cenią sobie przestronność, naturalne światło i innowacyjność.

Zewnętrzna fasada domu łączy naturalne materiały z nowoczesną formą i sprawia, że ExtraMurowany 1 jest jednocześnie śmiałym dziełem architektonicznym, jak i subtelnym dopełnieniem otaczającego krajobrazu.

To nie tylko dom – to przestrzeń, w której nowoczesny design spotyka się z funkcjonalnością, tworząc miejsce, które możesz nazwać swoim.

ExtraMurowany 1 - HAD1003
ZAKRES REALIZACJI DO WYBORU

Wybierz wariant dopasowany do Twoich potrzeb

Zakres podstawowy

Ekonomiczne rozwiązanie, idealne dla osób, które chcą mieć wpływ na wykończenie swojego domu. Otrzymujesz solidną konstrukcję, którą dopasujesz do swoich potrzeb.

Zakres PODSTAWOWY obejmuje:

  • ściany zewnętrzne i wewnętrzne z gazobetonu,
  • konstrukcję dachu z drewnianych wiązarów,
  • strop drewniany - dolny pas wiązara,
  • pokrycie dachu blachodachówką,
  • okna 3-szybowe, 6-komorowe PVC,
  • drzwi wejściowe antywłamaniowe,
  • wentylację grawitacyjną i kominki systemowe, wentylacyjne,
  • wybudowanie domu na działce.

Opcja dodatkowa:

  • wykonanie fundamentów,
  • wysoki salon z przeszkleniem - o szczegóły zpaytaj doradcę.
ExtraMurowany 1 - HAD1003
Zakres rozszerzony

Opcja dla tych, którzy które cenią sobie czas i wygodę. Otrzymujesz częściowo wykończony dom i możesz szybciej przejść do etapu jego urządzania.

Zakres ROZSZERZONY obejmuje dodatkowo:

  • izolację termiczną ścian zewnętrznych zgodną z  WT2021,
  • elewację - tynk silikatowo-silikonowy,
  • posadzki z izolacją i wylewką cementową,
  • tynki wewnętrzne gipsowe,
  • instalację C.O.,
  • instalację wodno-kanalizacyjną,
  • instalację elektryczną,
  • orynnowanie - rynny stalowe,
  • parapety zewnętrzne stalowe.

Opcje dodatkowe:

  • źródło ciepła,
  • wysoki salon z przeszkleniem - o szczegóły zapytaj doradcę.
ExtraMurowany 1 - HAD1003
WYGODA I KOMFORT
Przytulne, rodzinne wnętrze

Centralnym punktem domu jest otwarty salon rozciągający się aż do kalenicy, gdzie potężne przeszklenia tworzą spektakularną, "otwartą" ścianę. Naturalne światło płynnie wypełnia wnętrze, podkreślając wysokiej jakości materiały wykończeniowe i surową elegancję przestrzeni.

Tuż obok salonu znajduje się nowoczesna kuchnia. Ergonomiczny układ i wyspowa konstrukcja zapewniają maksymalną funkcjonalność, umożliwiając łatwe przygotowywanie posiłków i sprawną komunikację z salonem – sercem domu.

ExtraMurowany 1 - HAD1003
ExtraMurowany 1 - HAD1003

Wygodne sypialnie

ExtraMurowany 1 - HAD1003

Dużo światła

ExtraMurowany 1 - HAD1003

Jadalnia

ROZWIĄZANIA SZYTE NA MIARĘ
Jakość wliczona w cenę

W tym projekcie każdy znajdzie miejsce dla siebie. Trzy przestronne pokoje mogą służyć jako sypialnie, pokój gościnny, gabinet lub sala do zabaw dla dzieci – wszystko zależy od Twoich potrzeb.

Elegancka łazienka, wyposażona w nowoczesne rozwiązania sanitarne, oferuje przestrzeń relaksu i odprężenia. Subtelne oświetlenie i wyselekcjonowane materiały tworzą atmosferę luksusu i spokoju.

Kotłownia została zaprojektowana z myślą o efektywności i łatwości obsługi, integrując nowoczesne systemy ogrzewania domu w jedną, zorganizowaną przestrzeń.

ExtraMurowany 1 - HAD1003
ENERGOOSZCZĘDNY DOM MUROWANY
Jaki będzie Twój nowy dom?

Dom ExtraMurowany 1 został zaprojektowany w technologii murowanej. Co ją charakteryzuje? 

  • Jest trwałą i wytrzymała technologią – odporną na uszkodzenia mechaniczne, nacisk, ogień i warunki atmosferyczne.
  • Daje duże możliwości formowania bryły budynku.
  • Budynek w tej technologii łatwiej dopasować do warunków miejscowych i indywidualnych potrzeb.
  • Została dopracowana i udoskonalona przez lata doświadczeń.
  • Dzięki zastosowaniu wysokiej jakości materiałów i ulepszonych technologii można łatwo osiągnąć wysoką energooszczędność.
  • Nie wymaga ciężkiego sprzętu, więc budowa tą metodą jest możliwa praktycznie wszędzie.

Więcej

ExtraMurowany 1 - HAD1003

Analiza działki

Czy ten dom pasuje na Twoją działkę? Chętnie to sprawdzimy!

  • Czy wybrany dom zmieści się na Twojej działce?
  • Czy spełnia parametry wg MPZT lub WZ?
TECHNOLOGIA I KONSTRUKCJA

Energooszczędne domy murowane z gazobetonu

 

 

Ciepły dom

Technologia murowana ulepszona jest najpowszechniejszą technologią stawiania domów w Polsce. Do budowy, zamiast cegieł, wykorzystuje się bloczki lub pustaki. W tym przypadku stosowane są bloczki z gazobetonu.

Gazobeton, znany jako beton komórkowy, to materiał, który jest:

  • lekki i porowaty, o dobrych parametrach izolacyjności termicznej i akustycznej, co wpływa na oszczędność energetyczną oraz komfort mieszkańców,
  • łatwy w obróbce i montażu, co pozwala na szybszą i mniej kosztowną budowę oraz daje możliwość swobodnej aranżacji bryły,
  • odporny na ogień,
  • ekologiczny i nadający się do recyklingu, co wspiera zrównoważone budownictwo.
ExtraMurowany 1 - HAD1003
Ściany

Ściany zewnętrzne i wewnętrzne wykonane są z bloczków YTONG, SILKA lub POROTHERM. Do ocieplenia domu stosuje się styropian grafitowy o grubości 20 cm. Technologia wykończenia ścian minimalizuje mostki termiczne i zapewnia izolację zgodną z WT2021.

Domy z gazobetonu zapewniają komfort termiczny i akustyczny oraz niższe koszty eksploatacji, jednak ich budowa trwa dłużej niż domów prefabrykowanych i jest uzależniona od warunków atmosferycznych.

ExtraMurowany 1 - HAD1003
Płyta fundamentowa

Płyta fundamentowa to jednolita podstawa, wykonana ze wzmocnionego betonu, która rozkłada równomiernie ciężar budynku, zapobiegając jego osiadaniu. Taki rodzaj posadowienia jest polecany w regionach o stabilnym gruncie i łagodnym klimacie. Metoda ta eliminuje potrzebę głębokich fundamentów, co skraca czas budowy i obniża koszty. Dodatkowo zapewnia izolację termiczną od dołu, poprawiając efektywność energetyczną domu.

ExtraMurowany 1 - HAD1003
Dach i stropy

Dach wykonuje się z drewnianych wiązarów z drzewa iglastego klasy C24, a standardowe pokrycie stanowi blachodachówka.

Konstrukcję ściany szczytowych stanowią elementy wiązara dachowego obitego płytą OSB.

W domach parterowych spotkamy drewniany strop na dolnym pasie wiązara, ocieplony i zamknięty płytami g-k. W przypadku domów piętrowych, nad parterem stosuje się strop monolityczny.

ExtraMurowany 1 - HAD1003
Energooszędność

Domy z gazobetonu są projektowane z myślą o maksymalnym wykorzystaniu energii słonecznej, co zwiększa ich efektywność energetyczną. Duże okna i otwarte przestrzenie są często wykorzystywane do ogrzewania i oświetlenia wnętrz.

Dodatkowo zastosowanie nowoczesnych systemów wentylacyjnych z rekuperacją ciepła pozwala na utrzymanie optymalnej temperatury i świeżości powietrza wewnątrz budynku.

ExtraMurowany 1 - HAD1003
Dane techniczne

Specyfikacja

Powierzchnie i wymiary Powierzchnie i wymiary

Powierzchnia użytkowa
Tooltip
Suma powierzchni wszystkich pomieszczeń mieszkalnych, pomniejszona o pow. garażu, kotłowni, strychu, piwnicy. Jest liczona w 100% dla pomieszczeń o wysokości powyżej 2,2 m, w 50% dla pomieszczeń o wys. 2,2-1,4 m i niewliczana dla niższych niż 1,4 m.

80 m²

Powierzchnia zabudowy
Tooltip
Powierzchnia zajmowana przez część na- oraz nadziemną budynku liczona, jako rzut pionowy budynku na działkę.

98,50 m²

Powierzchnia netto
Tooltip
Powierzchna wszystkich pomieszczeń w budynku mierzona na wysokości podłogi.

80,37 m²

Kubatura netto
Tooltip
Zazwyczaj jest to suma kubatur (objętości) pomieszczeń budynku, bez strychu, liczonych po zewnętrznym obrysie murów (z ociepleniem).

240,10 m³

Kubatura brutto
Tooltip
Zazwyczaj jest to suma kubatur (objętości) wszystkich pomieszczeń budynku, liczonych po zewnętrznym obrysie murów (z ociepleniem).

340,20 m³

Powierzchnia dachu

119,50 m²

Kąt nachylenia dachu
Tooltip
Nachylenie połaci dachu głównego podawane w stopniach. Uwaga! W niektórych projektach występuje więcej niż jedno nachylenie dachu.

30°

Wysokość budynku
Tooltip
Wysokość liczona od części budynku położonej najniżej przy powierzchni terenu do najwyższego punktu dachu (kalenicy) z wyłączeniem kominów.

5,85 m

Szerokość elewacji

12,71 m

Długość elewacji

7,75 m

Min. szerokość działki
Tooltip
Najmniejsza możliwa szerokość działki niezbędna do wybudowania wybranego domu. Składa się z szerokości elewacji domu powiększonej z obu stron o 3 m dla ściany bez otworów drzwiowych/okiennych lub 4 m, dla ściany z otworami.

19,71 m

Min. długość działki
Tooltip
Najmniejsza możliwa długość działki niezbędna do wybudowania wybranego domu. Składa się z długości elewacji domu powiększonej z obu stron o 3 m dla ściany bez otworów drzwiowych/okiennych lub 4 m, dla ściany z otworami.

15,75 m

Energooszczędność Energooszczędność

Ep
Tooltip
Energia pierwotna określa ilość energii nieodnawialnej potrzebnej w ciągu roku do ogrzewania czy też ogrzania wody użytkowej z uwzględnieniem kosztów produkcji i transportu surowców energetycznych.

52,60 kWh/(m²rok)

Ogrzewanie

pompa ciepła

Wentylacja

grawitacyjna

Technologia i materiały Technologia i materiały

Posadowienie budynku

Płyta fundamentowa - opcja dodatkowo płatna lub do wykonania po stronie inwestora

Ściany zewnętrzne

silikat 18 cm + styropian 20 cm

Ściany wewnętrzne

bloczek gazobeton 12 cm

Strop nad parterem

wiązary

Konstrukcja dachu

drewniana

Pokrycie dachu

blachodachówka

Elewacja

tynk silikonowo-silikatowy

DOMY GOTOWE

Zbuduj swój dom w 3 prostych krokach

Wybierasz dom,
przygotowujemy ofertę

Konfigurujemy i tworzymy dla Ciebie bezpłatną ofertę. Pomagamy w weryfikacji działki.

Podpisujesz umowę, rusza produkcja

Podpisujesz umowę z naszym partnerem na produkcję i montaż Twojego domu. Nie martwisz się o terminy i znasz koszty budowy.

Ciesz się swoim domem

W zależności od wybranej technologii budowy, Producent albo przywiezie gotowe elementy na Twoją działkę, albo – w przypadku metody murowanej - rozpocznie proces budowy domu od podstaw. Tobie pozostaną już tylko wewnętrzne prace wykończeniowe.

Dom w 3 krokach

NIE CZEKAJ DŁUŻEJ!

Pomożemy Ci zrealizować marzenie o domu - nawet w 3 miesiące!

Ikona zadzwoń

Zadzwoń

71 71 88 970

pon.-pt. 8:00-19:00

Zadzwoń teraz
Ikona list

Napisz do nas:

domygotowe@extradom.pl
lub
Wolne terminy!

Zobacz na żywo nasz gotowy dom!

Zanim podejmiesz decyzję, spotkaj się z nami na budowie i zobacz, jak realizowana jest taka inwestycja. Dzięki temu:

  • Dowiesz się, jak wygląda budowa i efekt finalny.
  • Skonsultujesz swoje pomysły z naszym ekspertem

Zobacz podobne domy gotowe

1

/

3

Zdjęcie ExtraKeramzytowy 1
ExtraKeramzytowy 1
Dodano!
Dodano!
Pow. użytkowa
80 m²
Pow. zabudowy
98,50 m²
Pokoje
3
411 560 zł 5 145 zł/m²
Zdjęcie Dom prefabrykowany Parterowy 80C
Pow. użytkowa
79,83 m²
Pow. zabudowy
97,36 m²
Pokoje
2
385 000 zł 4 823 zł/m²
Zdjęcie Dom prefabrykowany Parterowy 80A
Pow. użytkowa
79,48 m²
Pow. zabudowy
97,36 m²
Pokoje
3
385 000 zł 4 844 zł/m²
Zdjęcie Dom prefabrykowany Parterowy 80B
Pow. użytkowa
79,27 m²
Pow. zabudowy
97,36 m²
Pokoje
3
385 000 zł 4 857 zł/m²
Bez pozwolenia
Zdjęcie Dom szkieletowy Mezzanine Smart 70
Pow. użytkowa
81,09 m²
Pow. zabudowy
70 m²
Pokoje
2
449 600 zł 5 544 zł/m²
Zdjęcie Dom modułowy Energy
Dom modułowy Energy
Dodano!
Dodano!
Pow. użytkowa
83,28 m²
Pow. zabudowy
97,50 m²
Pokoje
3
473 000 zł 5 680 zł/m²
Zdjęcie Dom prefabrykowany DEX76
Dom prefabrykowany DEX76
Dodano!
Dodano!
Pow. użytkowa
76 m²
Pow. zabudowy
101,52 m²
Pokoje
2
505 000 zł 6 645 zł/m²
Zdjęcie Dom keramzytowy Fiore 76
Dom keramzytowy Fiore 76
Dodano!
Dodano!
Pow. użytkowa
75,95 m²
Pow. zabudowy
125,05 m²
Pokoje
3
344 520 zł 4 536 zł/m²
Zdjęcie Dom prefabrykowany P.10
Dom prefabrykowany P.10
Dodano!
Dodano!
Pow. użytkowa
84,54 m²
Pow. zabudowy
104 m²
Pokoje
3
474 900 zł 5 617 zł/m²
Zdjęcie Dom prefabrykowany P.10a
Dom prefabrykowany P.10a
Dodano!
Dodano!
Pow. użytkowa
84,54 m²
Pow. zabudowy
104 m²
Pokoje
3
474 900 zł 5 617 zł/m²
Zdjęcie Dom szkieletowy Space Smart 90
Pow. użytkowa
74 m²
Pow. zabudowy
90 m²
Pokoje
3
379 527 zł 5 129 zł/m²
Zdjęcie Dom szkieletowy One Step Smart 90
Pow. użytkowa
73,45 m²
Pow. zabudowy
90 m²
Pokoje
2
428 600 zł 5 318 zł/m²

Graficzne opracowanie rzutów poglądowych widocznych na karcie projektu zostało wykonane przez Extradom.pl. Prezentowane przez Extradom.pl wizualizacje wykonane zostały przez autora projektu i należy poczytywać je jedynie za przykład i propozycję wykończenia, wizję architektoniczną autora projektu. Ostateczne wykończenie budynku może nastąpić na wiele sposobów. Szczegółowe rozwiązania zastosowane w oferowanej dokumentacji - w tym również ilość, lokalizacje i wygląd okien, drzwi, kominów - mogą w niewielkim stopniu różnić się od prezentowanej wizualizacji budynku.

Extradom.pl Spółka z ograniczoną odpowiedzialnością z siedzibą przy ul. Jaworskiej 13, 53-612 Wrocław, wpisana do rejestru przedsiębiorców Krajowego Rejestru Sądowego przez Sąd Rejonowy dla Wrocławia-Fabrycznej we Wrocławiu, VI Wydział Gospodarczy Krajowego Rejestru Sądowego do pod numerem KRS 0000648746, numer NIP 895-17-18-333, o kapitale zakładowym 708 150,00 zł uprzejmie informuje, iż poprzez serwis Extradom.pl umożliwia m.in. zapoznanie się przez konsumentów z ofertą handlową Partnerów Extradom.pl, którzy stosują metody budowy domów przy wykorzystaniu różnego rodzaju technologie prefabrykacji bądź modułowe (tzw. „Gotowe domy”).

Extradom.pl nie prowadzi jednakże sprzedaży ani nie oferuje usług polegających na doradztwie finansowym, prawnym ani podatkowym w zakresie inwestycji realizowanych w technologiach tzw. „Gotowych domów”. Informacje prezentowane w serwisie Extradom.pl dotyczące Partnerów Extradom.pl oferujących realizację inwestycji w technologiach „Gotowych domów” lub podobnych mają charakter informacyjny i reklamowy.

Prezentowane w serwisie Extradom.pl informacje dotyczące stosowanych przez Partnerów metod budowy domów w technologii prefabrykacji bądź modułowej pochodzą od Partnerów Extradom.pl.

Extradom.pl sp. z o.o. jedynie umożliwia nawiązanie kontaktu przez Użytkownika z Partnerem Extradom.pl stosującym tego rodzaju technologie budowy domów i nie jest stroną umowy o roboty budowlane zawieranej przez Użytkownika Extradom.pl z Partnerem Extradom.pl.

REKLAMA
Zamknij