Projekty nawet 500 zł taniej ❄️

Koniec oferty za:

0dni

00godz.

00min.

00sek.

Sprawdź

Dom murowany Perła bez garażu

HDD1009

Dodaj

Dodano!

Porównaj

Dodano!

Drukuj

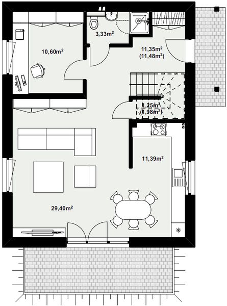
Rzut parteru

Powierzchnia (m²)
Tooltip
Powierzchnia pomieszczenia
to ta, z której faktycznie możesz korzystać – skosy i niskie części poddasza są liczone częściowo lub wcale.
  1. 100% dla wysokości powyżej 2,2 m,
  2. 50% dla wysokości 1,4–2,2 m,
  3. nie liczymy poniżej 1,4 m.

Powierzchnia podłogi
Liczymy po obrysie pomieszczenia, bez względu na jego wysokość/skosy. Jeśli nie ma skosów to powierzchnia podłogi i pomieszczenia jest taka sama.
pomieszczenia
podłogi
1. Wiatrołap
11,35
11,48
2. Łazienka
3,33
3,33
3. Pokój
10,60
10,60
4. Pokój dzienny
29,40
29,40
5. Kuchnia + jadalnia
11,39
11,39
6. Pomieszczenie gospodarcze
1,25
1,98
Razem
67,32
68,18
Powierzchnia (m²)
Tooltip
Powierzchnia pomieszczenia
to ta, z której faktycznie możesz korzystać – skosy i niskie części poddasza są liczone częściowo lub wcale.
  1. 100% dla wysokości powyżej 2,2 m,
  2. 50% dla wysokości 1,4–2,2 m,
  3. nie liczymy poniżej 1,4 m.

Powierzchnia podłogi
Liczymy po obrysie pomieszczenia, bez względu na jego wysokość/skosy. Jeśli nie ma skosów to powierzchnia podłogi i pomieszczenia jest taka sama.
pomieszczenia
podłogi
1. Korytarz
7,73
7,73
2. Łazienka
7,35
9,20
3. Pokój
10,40
13,38
4. Pokój
14,03
17,66
5. Pokój
14,03
17,66
Razem
53,54
65,63

Pow. użytkowa

120,84 m²

Pow. zabudowy

110,90 m²

Pokoje

4

Łazienki i WC

2

Garaż

0

Kąt dachu

40°

Min. szer. i dł. działki:

16,16 m x 18,40 m

Technologia

Murowana

więcej

Dom wycofany z oferty

W razie pytań prosimy o kontakt z doradcą. Polecamy zobaczyć podobne domy gotowe.

Wolne terminy!
Umów wizytę w
domu pokazowym
  • Jak wygląda proces budowy?
  • Ile trwa budowa i jakie terminy są dostępne?
  • Jak się mieszka w takim domu!

Zobacz podobne domy gotowe

1

/

3

Zdjęcie Dom prefabrykowany Parterowy 120A
Pow. użytkowa
121,44 m²
Pow. zabudowy
144,66 m²
Pokoje
4
489 000 zł 4 027 zł/m²
Zdjęcie Dom prefabrykowany P.3 z okapem
Pow. użytkowa
121,46 m²
Pow. zabudowy
87,55 m²
Pokoje
5
600 100 zł 4 941 zł/m²
Zdjęcie Dom prefabrykowany P.3 bez okapu
Pow. użytkowa
121,46 m²
Pow. zabudowy
87,55 m²
Pokoje
5
594 000 zł 4 890 zł/m²
Zdjęcie Dom prefabrykowany Parterowy 120C
Pow. użytkowa
120,06 m²
Pow. zabudowy
144,66 m²
Pokoje
4
489 000 zł 4 073 zł/m²
Zdjęcie Dom szkieletowy Emily Smart 120
Pow. użytkowa
120 m²
Pow. zabudowy
151 m²
Pokoje
3
592 512 zł 4 938 zł/m²
Zdjęcie Dom szkieletowy Twin Smart 170
Pow. użytkowa
121,95 m²
Pow. zabudowy
337,16 m²
Pokoje
5
1 650 700 zł 13 536 zł/m²
Zdjęcie Dom szkieletowy Scandinavian Smart 120
Pow. użytkowa
119,43 m²
Pow. zabudowy
148,50 m²
Pokoje
3
571 271 zł 4 761 zł/m²
Zdjęcie Dom prefabrykowany Parterowy 120B
Pow. użytkowa
122,36 m²
Pow. zabudowy
144,66 m²
Pokoje
3
489 000 zł 3 996 zł/m²
Zdjęcie Dom prefabrykowany P.14
Dom prefabrykowany P.14
Dodano!
Dodano!
Pow. użytkowa
118,94 m²
Pow. zabudowy
147 m²
Pokoje
3
694 700 zł 5 829 zł/m²
Zdjęcie Dom modułowy Soul
Dom modułowy Soul
Dodano!
Dodano!
Pow. użytkowa
118,94 m²
Pow. zabudowy
85,28 m²
Pokoje
4
518 000 zł 3 654 zł/m²
Zdjęcie Dom prefabrykowany P.11
Dom prefabrykowany P.11
Dodano!
Dodano!
Pow. użytkowa
122,88 m²
Pow. zabudowy
90,72 m²
Pokoje
3
681 300 zł 5 544 zł/m²
Zdjęcie Dom szkieletowy Creative Smart 160
Pow. użytkowa
118,35 m²
Pow. zabudowy
112 m²
Pokoje
4
780 019 zł 6 591 zł/m²
RZUTY

Rozmieszczenie
pomieszczeń

Parter - 67,32 m²

Parter projektu Dom murowany Perła bez garażu
Powierzchnia (m²)
Tooltip
Powierzchnia pomieszczenia
to ta, z której faktycznie możesz korzystać – skosy i niskie części poddasza są liczone częściowo lub wcale.
  1. 100% dla wysokości powyżej 2,2 m,
  2. 50% dla wysokości 1,4–2,2 m,
  3. nie liczymy poniżej 1,4 m.

Powierzchnia podłogi
Liczymy po obrysie pomieszczenia, bez względu na jego wysokość/skosy. Jeśli nie ma skosów to powierzchnia podłogi i pomieszczenia jest taka sama.
pomieszczenia
podłogi
1. Wiatrołap
11,35
11,48
2. Łazienka
3,33
3,33
3. Pokój
10,60
10,60
4. Pokój dzienny
29,40
29,40
5. Kuchnia + jadalnia
11,39
11,39
6. Pomieszczenie gospodarcze
1,25
1,98
Razem
67,32
68,18

Poddasze - 53,54 m²

Poddasze projektu Dom murowany Perła bez garażu
Powierzchnia (m²)
Tooltip
Powierzchnia pomieszczenia
to ta, z której faktycznie możesz korzystać – skosy i niskie części poddasza są liczone częściowo lub wcale.
  1. 100% dla wysokości powyżej 2,2 m,
  2. 50% dla wysokości 1,4–2,2 m,
  3. nie liczymy poniżej 1,4 m.

Powierzchnia podłogi
Liczymy po obrysie pomieszczenia, bez względu na jego wysokość/skosy. Jeśli nie ma skosów to powierzchnia podłogi i pomieszczenia jest taka sama.
pomieszczenia
podłogi
1. Korytarz
7,73
7,73
2. Łazienka
7,35
9,20
3. Pokój
10,40
13,38
4. Pokój
14,03
17,66
5. Pokój
14,03
17,66
Razem
53,54
65,63

Podoba Ci się dom, ale chciałbyś dokonać pewnych zmian?

  • Możesz zmienić kolor i materiał elewacji
  • Możesz zmienić funkcję i układ pomieszczeń
Konsultant

Skontaktuj się z nami - przygotujemy bezpłatną ofertę dla Ciebie

71 718 89 70

pon.-pt. 08:00 - 19:00

PODSTAWOWE INFORMACJE

Oszczędny dom murowany

icon
Dom murowany
icon
5 lat gwarancji
icon
Realizacja 10-18 m-cy
icon
Z poddaszem
PONADCZASOWY DOM
Klasyczny i funkcjonalny

Nieduży dom Perła z poddaszem użytkowym będzie idealnym miejscem dla rodziny w modelu 2+1 i 2+2. To ekonomiczne rozwiązanie, gdy marzysz o własnych 4 ścianach za nieduże pieniądze

Przemyślany rozkład pomieszczeń to gwarancja komfortu, pomimo stosunkowo niedużej powierzchni użytkowej ok. 100 m2.

Dom Perła to prosta, klasyczna bryła z dachem dwuspadowym. Cechą charakterystyczną jest wysunięty daszek nad wejściem oparty na wąskich słupkach.

Jeżeli interesuje Cię dom z garażem, sprawdź wersję: Dom Perła z wiatą garażową

Dom murowany Perła bez garażu - HDD1009
ZAKRES REALIZACJI DO WYBORU

Wybierz wariant dopasowany do Twoich potrzeb

Zakres podstawowy

Ekonomiczne rozwiązanie, idealne dla osób, które chcą mieć wpływ na wykończenie swojego domu. Otrzymujesz solidną konstrukcję, którą dopasujesz do swoich potrzeb.

Zakres PODSTAWOWY obejmuje:

  • ściany zewnętrzne z pustaków ceramicznych,
  • ściany wewnętrzne z pustaków ceramicznych,
  • żelbetowy strop,
  • drewnianą konstrukcję dachu,
  • pokrycie dachu dachówką cementową i orynnowanie PVC,
  • kominy systemowe wentylacyjne,
  • wentylację grawitacyjną,
  • okna 3-szybowe i drzwi tarasowe PVC białe,
  • wybudowanie domu na działce.

Opcje dodatkowe:

  • wykonanie fundamentów,
  • drzwi zewnętrzne – o szczegóły zapytaj doradcę.
Dom murowany Perła bez garażu - HDD1009
Zakres rozszerzony

Opcja dla tych, którzy które cenią sobie czas i wygodę. Otrzymujesz częściowo wykończony dom i możesz szybciej przejść do etapu jego urządzania.

Zakres ROZSZERZONY obejmuje dodatkowo:

  • tynkowanie ścian,
  • ściany działowe poddasza w lekkiej zabudowie z płyt g-k z izolacją,
  • posadzki z cementowych, zbrojonych, niepylących wylewek z izolacją styropianem,
  • instalacją elektryczną oraz wodno-kanalizacyjną,
  • ogrzewanie podłogowe,
  • stelaże podtynkowe Geberit 2 szt. (w przypadku dwóch łazienek).

Opcje dodatkowe:

  • elewacja z termoizolacją i parapety – o szczegóły zapytaj doradcę.
Dom murowany Perła bez garażu - HDD1009
IDEALNA PRZESTRZEŃ DLA RODZINY
Otwarty salon i kuchnia

Do wnętrza domu Perła prowadzi nas niewielki przedpokój ze schodami na poddasze. Kierując się do pokoju dziennego mijamy niewielką łazienkę z prysznicem i pierwszą sypialnię.

Na parterze pierwsze skrzypce gra otwarta przestrzeń. Mamy tu obszerny salon ze sporym aneksem kuchennym i szerokie drzwi balkonowe prowadzące na ogród. Znajdzie się tu wystarczająco dużo miejsca do zabawy i wspólnego spędzania czasu. W strefie dziennej bez problemu ustawimy komplet wypoczynkowy oraz stół z krzesłami.

Dom murowany Perła bez garażu - HDD1009
Dom murowany Perła bez garażu - HDD1009

Przestronny salon

Dom murowany Perła bez garażu - HDD1009

Otwarta kuchnia

Dom murowany Perła bez garażu - HDD1009

2 łazienki

FUNKCJONALNE POMIESZCZENIA
Wygoda na każdym poziomie

Do dyspozycji mieszkańców na dwóch poziomach domu Perła są 4 pokoje, które mogą zostać zaadaptowane na sypialnie, pokoje dla dzieci lub gabinety. Na poddaszu znajdziemy 3 ustawne pokoje, doświetlone dużymi oknami na ścianie szczytowej domu.

Pomimo niewielkich rozmiarów domu Perła, mieszkańcy mają do swojej dyspozycji aż 2 łazienki, a na parterze zaplanowano dodatkowo nieduże pomieszczenie gospodarcze, które zagospodarujesz jako domową spiżarnię lub składzik na domowe sprzęty.

Dom murowany Perła bez garażu - HDD1009
ENERGOOSZCZĘDNY DOM MUROWANY
Jaki będzie Twój nowy dom?

Dom Perła został zaprojektowany w energooszczędnej technologii murowanej . Co ją charakteryzuje?

  • Jest trwała i wytrzymała – budynek jest odporny na uszkodzenia mechaniczne, nacisk, ogień i warunki atmosferyczne.
  • Daje duże możliwości formowania bryły budynku.
  • Budynek w tej technologii łatwiej dopasować do warunków miejscowych i indywidualnych potrzeb inwestora.
  • Metoda została dopracowana i udoskonalona przez pokolenia.
  • Dzięki zastosowaniu wysokiej jakości materiałów i ulepszonych technologii, można łatwo osiągnąć wysoką energooszczędność.
  • Nie wymaga ciężkiego sprzętu, więc budowa tą metodą jest możliwa praktycznie wszędzie.

Więcej

Dom murowany Perła bez garażu - HDD1009

Analiza działki

Czy ten dom pasuje na Twoją działkę? Chętnie to sprawdzimy!

  • Czy wybrany dom zmieści się na Twojej działce?
  • Czy spełnia parametry wg MPZT lub WZ?
TECHNOLOGIA I KONSTRUKCJA

Energooszczędny dom murowany

Uniwersalna technologia

Technologia murowana to nadal najpopularniejsza metoda budowy domów, która jest ceniona za solidność, trwałość i odporność na warunki atmosferyczne. Wykorzystanie wysokiej jakości materiałów, które dobrze akumulują i utrzymują ciepło, sprawia, że domy murowane są bardzo energooszczędne. Do budowy stosowane są pustaki ceramiczne, które:

  • charakteryzują się niskim współczynnikiem przenikania ciepła,
  • łatwe w obróbce i montażu, co daje możliwość swobodnej aranżacji bryły,
  • wykazują wysoką odporność na ogień i wytrzymałość na nacisk,
  • sprzyjają regulacji wilgotności wewnątrz budynku i utrzymaniu zdrowego mikroklimatu,
  • dobrze izolują tło akustyczne.
Dom murowany Perła bez garażu - HDD1009
Ściany i posadzki

Ściany konstrukcyjne wewnętrzne i zewnętrzne wykonane są z pustaka ceramicznego o grubości 25 cm, a ściany działowe parteru z pustaka ceramicznego o grubości 12 cm. Technologia murowana nie wymaga więc stosowania ciężkiego sprzętu. Ściany poddasza, jeżeli projekt je przewiduje, to lekka zabudowa karton/gips na konstrukcji aluminiowej, która jest wyciszona i zaizolowana wełną mineralną 10 cm.

Posadzki na parterze  to cementowa, zbrojona, niepyląca wylewka na warstwie twardego styropianu o grubości 10 cm. Warstwę izolacji poziomej stanowi masa asfaltowo-kauczukowa oraz papa termozgrzewalna. W przypadku domów piętrowych, posadzki na wyższych kondygnacjach wykonane są z tego samego rodzaju wylewki, ale na styropianie o grubości 5 cm.

Dom murowany Perła bez garażu - HDD1009
Fundamenty

W zależności od warunków gruntowych, jakie panują na działce, stosowane są żelbetowe ławy lub stopy fundamentowe. Indywidualne podejście do każdego projektu pozwala na podnoszenie zdolności przenoszenia obciążeń przez fundament, aby niwelować spękania i uniknąć późniejszego osiadania budynku.

Ściany fundamentowe mogą być murowane z bloczków lub pustaków betonowych. Taka metoda przyspiesza roboty budowlane, ponieważ ściany nie wymagają szalowania. Jako alternatywę można wykonać ściany fundamentowe lane jako monolit, co sprawia, że będą wyjątkowo trwałe i bardzo wytrzymałe.

Dom murowany Perła bez garażu - HDD1009
Stropy

Aby zapewnić niezawodną trwałość i nośność całego budynku, stosowane są stropy monolityczne żelbetowe. Cechuje je niewielka grubość, ale i podwyższona izolacyjność akustyczna. W przyszłości wpłynie to korzystnie na komfort życia mieszkańców, gdyż strop monolityczny doskonale tłumi dźwięki.

Aby strop monolityczny dobrze spełniał swoje funkcje, proces jego wykonania jest kilkuetapowy i wymaga przerwy technologicznej, co wydłuża czas budowy domu, jednak w zamian otrzymujemy solidny budynek o wysokiej trwałości.

Dom murowany Perła bez garażu - HDD1009
Dach

Dach wykonany jest w solidnej, tradycyjnej konstrukcji drewnianej. Więźba dachowa składa się z elementów z impregnowanego, suszonego, struganego drewna z drzew iglastych, o różnych przekrojach, łączonych ze sobą na miejscu budowy. Rodzaj więźby zależy od wielkości i rozpiętości dachu oraz warunków klimatycznych panujących w lokalizacji, w której stawiasz planujesz dom.

Dach izolowany jest folią paroprzepuszczalną, a pokrycie dachowe stanowi dachówka cementowa. Rynny i rury spustowe wykonane są z PCV, a okucia koszy z blachy aluminiowej w kolorze dachówki.

Dom murowany Perła bez garażu - HDD1009
Stolarka okienna i drzwiowa

Realizacja domu obejmuje montaż 3–szybowych, 6 –komorowych okien z PVC oraz zewnętrznych drzwi antywłamaniowych klasy R2. Jeżeli w projekcie domu pojawia się garaż, montowana jest segmentowa brama garażowa z napędem.

Wykorzystanie wysokiej jakości materiałów o podwyższonym standardzie, które lepiej akumulują i utrzymują ciepło, sprawia, że domy murowane są bardzo energooszczędne. Co następnie przełoży się na niższe koszty eksploatacji w przyszłości.

Dom murowany Perła bez garażu - HDD1009
Dane techniczne

Specyfikacja

Powierzchnie i wymiary Powierzchnie i wymiary

Powierzchnia użytkowa
Tooltip
Suma powierzchni wszystkich pomieszczeń mieszkalnych, pomniejszona o pow. garażu, kotłowni, strychu, piwnicy. Jest liczona w 100% dla pomieszczeń o wysokości powyżej 2,2 m, w 50% dla pomieszczeń o wys. 2,2-1,4 m i niewliczana dla niższych niż 1,4 m.

120,84 m²

Wysokość ściany kolankowej
Tooltip
Wysokość ściany podpierającej dach. Jej wysokość wpływa na powierzchnię użytkową kondygnacji, na której się znajduje.

1,25 m

Powierzchnia zabudowy
Tooltip
Powierzchnia zajmowana przez część na- oraz nadziemną budynku liczona, jako rzut pionowy budynku na działkę.

110,90 m²

Powierzchnia całkowita
Tooltip
Całkowita powierzchnia wszystkich kondygnacji budynku łącznie z elementami nośnymi, takimi jak ściany zewnętrzne (z ociepleniem), słupy, tarasy, itp.

214,25 m²

Powierzchnia netto
Tooltip
Powierzchna wszystkich pomieszczeń w budynku mierzona na wysokości podłogi.

143,10 m²

Kubatura brutto
Tooltip
Zazwyczaj jest to suma kubatur (objętości) wszystkich pomieszczeń budynku, liczonych po zewnętrznym obrysie murów (z ociepleniem).

460,30 m³

Powierzchnia dachu

150 m²

Kąt nachylenia dachu
Tooltip
Nachylenie połaci dachu głównego podawane w stopniach. Uwaga! W niektórych projektach występuje więcej niż jedno nachylenie dachu.

40°

Wysokość budynku
Tooltip
Wysokość liczona od części budynku położonej najniżej przy powierzchni terenu do najwyższego punktu dachu (kalenicy) z wyłączeniem kominów.

8,01 m

Szerokość elewacji

8,16 m

Długość elewacji

10,40 m

Min. szerokość działki
Tooltip
Najmniejsza możliwa szerokość działki niezbędna do wybudowania wybranego domu. Składa się z szerokości elewacji domu powiększonej z obu stron o 3 m dla ściany bez otworów drzwiowych/okiennych lub 4 m, dla ściany z otworami.

16,16 m

Min. długość działki
Tooltip
Najmniejsza możliwa długość działki niezbędna do wybudowania wybranego domu. Składa się z długości elewacji domu powiększonej z obu stron o 3 m dla ściany bez otworów drzwiowych/okiennych lub 4 m, dla ściany z otworami.

18,40 m

Energooszczędność Energooszczędność

Ep
Tooltip
Energia pierwotna określa ilość energii nieodnawialnej potrzebnej w ciągu roku do ogrzewania czy też ogrzania wody użytkowej z uwzględnieniem kosztów produkcji i transportu surowców energetycznych.

68,10 kWh/(m²rok)

Ogrzewanie

ogrzewanie podłogowe. Cena nie obejmuje pieca.

Wentylacja

grawitacyjna

Technologia i materiały Technologia i materiały

Posadowienie budynku

fundament, płyta fundamentowa

Ściany zewnętrzne

pustak ceramiczny 25cm

Ściany wewnętrzne

pustak ceramiczny 12cm

Strop nad parterem

żelbetowy

Konstrukcja dachu

drewniana

Pokrycie dachu

dachówka ceramiczna

DOMY GOTOWE

Zbuduj swój dom w 3 prostych krokach

Wybierasz dom,
przygotowujemy ofertę

Konfigurujemy i tworzymy dla Ciebie bezpłatną ofertę. Pomagamy w weryfikacji działki.

Podpisujesz umowę, rusza produkcja

Podpisujesz umowę z naszym partnerem na produkcję i montaż Twojego domu. Nie martwisz się o terminy i znasz koszty budowy.

Ciesz się swoim domem

W zależności od wybranej technologii budowy, Producent albo przywiezie gotowe elementy na Twoją działkę, albo – w przypadku metody murowanej - rozpocznie proces budowy domu od podstaw. Tobie pozostaną już tylko wewnętrzne prace wykończeniowe.

Dom w 3 krokach

NIE CZEKAJ DŁUŻEJ!

Pomożemy Ci zrealizować marzenie o domu - nawet w 3 miesiące!

Ikona zadzwoń

Zadzwoń

71 71 88 970

pon.-pt. 8:00-19:00

Zadzwoń teraz
Ikona list

Napisz do nas:

domygotowe@extradom.pl
lub
Wolne terminy!

Zobacz na żywo nasz gotowy dom!

Zanim podejmiesz decyzję, spotkaj się z nami na budowie i zobacz, jak realizowana jest taka inwestycja. Dzięki temu:

  • Dowiesz się, jak wygląda budowa i efekt finalny.
  • Skonsultujesz swoje pomysły z naszym ekspertem

Zobacz podobne domy gotowe

1

/

3

Zdjęcie Dom prefabrykowany Parterowy 120A
Pow. użytkowa
121,44 m²
Pow. zabudowy
144,66 m²
Pokoje
4
489 000 zł 4 027 zł/m²
Zdjęcie Dom prefabrykowany P.3 z okapem
Pow. użytkowa
121,46 m²
Pow. zabudowy
87,55 m²
Pokoje
5
600 100 zł 4 941 zł/m²
Zdjęcie Dom prefabrykowany P.3 bez okapu
Pow. użytkowa
121,46 m²
Pow. zabudowy
87,55 m²
Pokoje
5
594 000 zł 4 890 zł/m²
Zdjęcie Dom prefabrykowany Parterowy 120C
Pow. użytkowa
120,06 m²
Pow. zabudowy
144,66 m²
Pokoje
4
489 000 zł 4 073 zł/m²
Zdjęcie Dom szkieletowy Emily Smart 120
Pow. użytkowa
120 m²
Pow. zabudowy
151 m²
Pokoje
3
592 512 zł 4 938 zł/m²
Zdjęcie Dom szkieletowy Twin Smart 170
Pow. użytkowa
121,95 m²
Pow. zabudowy
337,16 m²
Pokoje
5
1 650 700 zł 13 536 zł/m²
Zdjęcie Dom szkieletowy Scandinavian Smart 120
Pow. użytkowa
119,43 m²
Pow. zabudowy
148,50 m²
Pokoje
3
571 271 zł 4 761 zł/m²
Zdjęcie Dom prefabrykowany Parterowy 120B
Pow. użytkowa
122,36 m²
Pow. zabudowy
144,66 m²
Pokoje
3
489 000 zł 3 996 zł/m²
Zdjęcie Dom prefabrykowany P.14
Dom prefabrykowany P.14
Dodano!
Dodano!
Pow. użytkowa
118,94 m²
Pow. zabudowy
147 m²
Pokoje
3
694 700 zł 5 829 zł/m²
Zdjęcie Dom modułowy Soul
Dom modułowy Soul
Dodano!
Dodano!
Pow. użytkowa
118,94 m²
Pow. zabudowy
85,28 m²
Pokoje
4
518 000 zł 3 654 zł/m²
Zdjęcie Dom prefabrykowany P.11
Dom prefabrykowany P.11
Dodano!
Dodano!
Pow. użytkowa
122,88 m²
Pow. zabudowy
90,72 m²
Pokoje
3
681 300 zł 5 544 zł/m²
Zdjęcie Dom szkieletowy Creative Smart 160
Pow. użytkowa
118,35 m²
Pow. zabudowy
112 m²
Pokoje
4
780 019 zł 6 591 zł/m²

Graficzne opracowanie rzutów poglądowych widocznych na karcie projektu zostało wykonane przez Extradom.pl. Prezentowane przez Extradom.pl wizualizacje wykonane zostały przez autora projektu i należy poczytywać je jedynie za przykład i propozycję wykończenia, wizję architektoniczną autora projektu. Ostateczne wykończenie budynku może nastąpić na wiele sposobów. Szczegółowe rozwiązania zastosowane w oferowanej dokumentacji - w tym również ilość, lokalizacje i wygląd okien, drzwi, kominów - mogą w niewielkim stopniu różnić się od prezentowanej wizualizacji budynku.

Extradom.pl Spółka z ograniczoną odpowiedzialnością z siedzibą przy ul. Jaworskiej 13, 53-612 Wrocław, wpisana do rejestru przedsiębiorców Krajowego Rejestru Sądowego przez Sąd Rejonowy dla Wrocławia-Fabrycznej we Wrocławiu, VI Wydział Gospodarczy Krajowego Rejestru Sądowego do pod numerem KRS 0000648746, numer NIP 895-17-18-333, o kapitale zakładowym 708 150,00 zł uprzejmie informuje, iż poprzez serwis Extradom.pl umożliwia m.in. zapoznanie się przez konsumentów z ofertą handlową Partnerów Extradom.pl, którzy stosują metody budowy domów przy wykorzystaniu różnego rodzaju technologie prefabrykacji bądź modułowe (tzw. „Gotowe domy”).

Extradom.pl nie prowadzi jednakże sprzedaży ani nie oferuje usług polegających na doradztwie finansowym, prawnym ani podatkowym w zakresie inwestycji realizowanych w technologiach tzw. „Gotowych domów”. Informacje prezentowane w serwisie Extradom.pl dotyczące Partnerów Extradom.pl oferujących realizację inwestycji w technologiach „Gotowych domów” lub podobnych mają charakter informacyjny i reklamowy.

Prezentowane w serwisie Extradom.pl informacje dotyczące stosowanych przez Partnerów metod budowy domów w technologii prefabrykacji bądź modułowej pochodzą od Partnerów Extradom.pl.

Extradom.pl sp. z o.o. jedynie umożliwia nawiązanie kontaktu przez Użytkownika z Partnerem Extradom.pl stosującym tego rodzaju technologie budowy domów i nie jest stroną umowy o roboty budowlane zawieranej przez Użytkownika Extradom.pl z Partnerem Extradom.pl.

REKLAMA
Zamknij