👉 Niższe ceny + karta allegro 200 zł! 🔥

Koniec oferty za:

0dni

00godz.

00min.

00sek.

Sprawdź

Dom murowany Dom na 10 sposobów wersja klasyczna

HAD1005

Dodaj

Dodano!

Porównaj

Dodano!

Drukuj

Rzut parteru

Powierzchnia (m²)
Tooltip
Powierzchnia pomieszczenia
to ta, z której faktycznie możesz korzystać – skosy i niskie części poddasza są liczone częściowo lub wcale.
  1. 100% dla wysokości powyżej 2,2 m,
  2. 50% dla wysokości 1,4–2,2 m,
  3. nie liczymy poniżej 1,4 m.

Powierzchnia podłogi
Liczymy po obrysie pomieszczenia, bez względu na jego wysokość/skosy. Jeśli nie ma skosów to powierzchnia podłogi i pomieszczenia jest taka sama.
pomieszczenia i podłogi
podłogi
1. Wiatrołap
6,21
2. Pokój dzienny + jadalnia
27,93
3. Kuchnia
7,91
4. Spiżarnia
3,42
5. Pokój
12,28
6. Korytarz
1,83
7. Łazienka
4,51
8. Pokój
8,47
Razem
72,56
72,56
Powierzchnia (m²)
Tooltip
Powierzchnia pomieszczenia
to ta, z której faktycznie możesz korzystać – skosy i niskie części poddasza są liczone częściowo lub wcale.
  1. 100% dla wysokości powyżej 2,2 m,
  2. 50% dla wysokości 1,4–2,2 m,
  3. nie liczymy poniżej 1,4 m.

Powierzchnia podłogi
Liczymy po obrysie pomieszczenia, bez względu na jego wysokość/skosy. Jeśli nie ma skosów to powierzchnia podłogi i pomieszczenia jest taka sama.
pomieszczenia
podłogi
1. Poddasze do adaptacji
31,90
50,39
Razem
31,90
50,39

Pow. użytkowa

72,56 m²

Pow. zabudowy

88,93 m²

Pokoje

2

Łazienki i WC

1

Garaż

0

Kąt dachu

40°

Min. szer. i dł. działki:

18,65 m x 16,35 m

Technologia

Murowana

więcej

Dom wycofany z oferty

W razie pytań prosimy o kontakt z doradcą. Polecamy zobaczyć podobne domy gotowe.

Wolne terminy!
Umów wizytę w
domu pokazowym
  • Jak wygląda proces budowy?
  • Ile trwa budowa i jakie terminy są dostępne?
  • Jak się mieszka w takim domu!

Zobacz podobne domy gotowe

1

/

3

Zdjęcie Bergen 70
Bergen 70
Dodano!
Dodano!
Pow. użytkowa
72,05 m²
Pow. zabudowy
91,82 m²
Pokoje
3
389 000 zł 5 399 zł/m²
Bez pozwolenia
Zdjęcie Dom szkieletowy Edge Smart 90
Pow. użytkowa
71,68 m²
Pow. zabudowy
66,67 m²
Pokoje
3
452 995 zł 6 320 zł/m²
Zdjęcie Dom szkieletowy One Step Smart 90
Pow. użytkowa
73,45 m²
Pow. zabudowy
90 m²
Pokoje
2
428 600 zł 5 318 zł/m²
Zdjęcie Dom szkieletowy Space Smart 90
Pow. użytkowa
74 m²
Pow. zabudowy
90 m²
Pokoje
3
379 527 zł 5 129 zł/m²
Bez pozwolenia
Zdjęcie Dom prefabrykowany DH70-3
Dom prefabrykowany DH70-3
Dodano!
Dodano!
Pow. użytkowa
74,60 m²
Pow. zabudowy
68,57 m²
Pokoje
3
581 742 zł 7 798 zł/m²
Zdjęcie Dom szkieletowy Solo Smart 100
Pow. użytkowa
74,64 m²
Pow. zabudowy
96 m²
Pokoje
2
362 383 zł 4 855 zł/m²
Bez pozwolenia
Zdjęcie Dom szkieletowy Vista Smart 80
Pow. użytkowa
69,20 m²
Pow. zabudowy
55,20 m²
Pokoje
3
390 830 zł 5 648 zł/m²
Zdjęcie Dom keramzytowy Fiore 76
Dom keramzytowy Fiore 76
Dodano!
Dodano!
Pow. użytkowa
75,95 m²
Pow. zabudowy
125,05 m²
Pokoje
3
352 080 zł 4 636 zł/m²
Zdjęcie Dom prefabrykowany DEX76
Dom prefabrykowany DEX76
Dodano!
Dodano!
Pow. użytkowa
76 m²
Pow. zabudowy
101,52 m²
Pokoje
2
570 587 zł 7 508 zł/m²
Bez pozwolenia
Zdjęcie Dom szkieletowy Family Smart 50
Pow. użytkowa
67,67 m²
Pow. zabudowy
50 m²
Pokoje
3
385 800 zł 5 701 zł/m²
Bez pozwolenia
Zdjęcie Dom prefabrykowany DH70-2
Dom prefabrykowany DH70-2
Dodano!
Dodano!
Pow. użytkowa
66,43 m²
Pow. zabudowy
69,66 m²
Pokoje
3
557 820 zł 8 397 zł/m²
Zdjęcie Dom prefabrykowany Parterowy 80B
Pow. użytkowa
79,62 m²
Pow. zabudowy
97,36 m²
Pokoje
2
399 000 zł 5 011 zł/m²
RZUTY

Rozmieszczenie
pomieszczeń

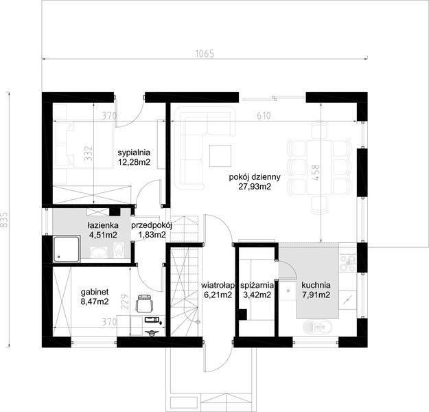
Parter - 72,56 m²

Projekt gotowy Dom murowany Dom na 10 sposobów wersja klasyczna - rzut parteru, dom liczy 2 pokoje, 1 łazienki i wc
Powierzchnia (m²)
Tooltip
Powierzchnia pomieszczenia
to ta, z której faktycznie możesz korzystać – skosy i niskie części poddasza są liczone częściowo lub wcale.
  1. 100% dla wysokości powyżej 2,2 m,
  2. 50% dla wysokości 1,4–2,2 m,
  3. nie liczymy poniżej 1,4 m.

Powierzchnia podłogi
Liczymy po obrysie pomieszczenia, bez względu na jego wysokość/skosy. Jeśli nie ma skosów to powierzchnia podłogi i pomieszczenia jest taka sama.
pomieszczenia i podłogi
podłogi
1. Wiatrołap
6,21
2. Pokój dzienny + jadalnia
27,93
3. Kuchnia
7,91
4. Spiżarnia
3,42
5. Pokój
12,28
6. Korytarz
1,83
7. Łazienka
4,51
8. Pokój
8,47
Razem
72,56
72,56

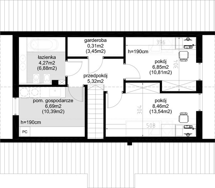
Poddasze - 31,90 m²

Projekt gotowy Dom murowany Dom na 10 sposobów wersja klasyczna - rzut poddasza, dom liczy 2 pokoje, 1 łazienki i wc
Powierzchnia (m²)
Tooltip
Powierzchnia pomieszczenia
to ta, z której faktycznie możesz korzystać – skosy i niskie części poddasza są liczone częściowo lub wcale.
  1. 100% dla wysokości powyżej 2,2 m,
  2. 50% dla wysokości 1,4–2,2 m,
  3. nie liczymy poniżej 1,4 m.

Powierzchnia podłogi
Liczymy po obrysie pomieszczenia, bez względu na jego wysokość/skosy. Jeśli nie ma skosów to powierzchnia podłogi i pomieszczenia jest taka sama.
pomieszczenia
podłogi
1. Poddasze do adaptacji
31,90
50,39
Razem
31,90
50,39

Podoba Ci się dom, ale chciałbyś dokonać pewnych zmian?

  • Możesz zmienić kolor i materiał elewacji
  • Możesz zmienić funkcję i układ pomieszczeń
Konsultant

Skontaktuj się z nami - przygotujemy bezpłatną ofertę dla Ciebie

71 718 89 70

pon.-pt. 08:00 - 19:00

PODSTAWOWE INFORMACJE

Dom murowany w technologii niskoenergetycznej

icon
Dom murowany
icon
10 lat gwarancji
icon
Realizacja w 9-12 m-cy
icon
Z poddaszem
PARTEROWY DOM Z PODDASZEM DO ADAPTACJI
Dom na dobry początek

Wersja klasyczna Domu na 10 sposobów w technologii murowanej to przytulna przestrzeń na dobry początek. Do dyspozycji domowników jest nieco ponad 72 m2 pow. użytkowej.

Do idealna opcja dla osób, które myślą o powiększeniu rodziny w przyszłości. Na start korzystasz z pełni funkcjonalnego parteru, a w razie potrzeby adaptujesz poddasze, aby zyskać kolejne cenne metry.

Ten dom jest dostępny również w technologii prefabrykowanej – sprawdź Dom keramzytowy na 10 sposobów wersja klasyczna.

Dom murowany Dom na 10 sposobów wersja klasyczna - HAD1005
ZAKRES REALIZACJI DO WYBORU

Wybierz wariant dopasowany do Twoich potrzeb

Zakres podstawowy

Ekonomiczne rozwiązanie, idealne dla osób, które chcą mieć wpływ na wykończenie swojego domu. Otrzymujesz solidną konstrukcję, którą dopasujesz do swoich potrzeb.

Zakres PODSTAWOWY obejmuje:

  • ściany zewnętrzne i wewnętrzne z gazobetonu,
  • konstrukcję dachu z drewnianych wiązarów,
  • strop drewniany - dolny pas wiązara,
  • pokrycie dachu blachodachówką,
  • okna 3-szybowe, 6-komorowe PVC,
  • drzwi wejściowe antywłamaniowe,
  • wentylację grawitacyjną i kominki systemowe wentylacyjne,
  • wybudowanie domu na działce.

Opcje dodatkowe:

  • wykonanie fundamentów,
  • adaptacja poddasza - o szczegóły zapytaj doradcę.
Dom murowany Dom na 10 sposobów wersja klasyczna - HAD1005
Zakres rozszerzony

Opcja dla tych, którzy które cenią sobie czas i wygodę. Otrzymujesz częściowo wykończony dom i możesz szybciej przejść do etapu jego urządzania.

Zakres ROZSZERZONY obejmuje dodatkowo:

  • izolację termiczną ścian zewnętrznych zgodną z  WT2021,
  • elewację - tynk silikatowo-silikonowy,
  • posadzki z izolacją i wylewką cementową,
  • tynki wewnętrzne gipsowe,
  • instalację C.O.,
  • instalację wodno-kanalizacyjną,
  • instalację elektryczną,
  • orynnowanie - rynny stalowe,
  • parapety zewnętrzne stalowe.

Opcje dodatkowe:

  • źródło ciepła,
  • wykończenie poddasza - o szczegóły zapytaj doradcę.
Dom murowany Dom na 10 sposobów wersja klasyczna - HAD1005
DOM Z DZIECIĘCYCH MARZEŃ
Maksymalne wykorzystanie niedużej przestrzeni

Prosta bryła z dwuspadowym dachem to klasyka w czystej formie. Przywołuje na myśl dom z czasów dzieciństwa. Świeżości projektowi nadają narożne okna, stylowy okap oraz minimalistyczna elewacja.

Dom na 10 sposobów skrywa spory salon ze strefą jadalną i wyjściem na taras, otwartą kuchnię ze spiżarnią, sypialnię i gabinet, łazienkę i wiatrołap z miejscem na szafę.

Podoba Ci się ten układ? Sprawdź także Dom murowany na 10 sposobów w wersji nowoczesnej.

Dom murowany Dom na 10 sposobów wersja klasyczna - HAD1005
Dom murowany Dom na 10 sposobów wersja klasyczna - HAD1005

Spiżarnia przy kuchni

Dom murowany Dom na 10 sposobów wersja klasyczna - HAD1005

Wyjście na taras

Dom murowany Dom na 10 sposobów wersja klasyczna - HAD1005

2 pokoje na parterze

PODDASZE DO ADAPTACJI
Dom z możliwościami

Wybierając Dom na 10 sposobów otrzymujesz parterowy dom z poddaszem do adaptacji. Po wykończeniu poddasza zyskasz dodatkowe 31,9 m2. Co możesz tam urządzić? Np. 2 sypialnie, garderobę, łazienkę i pralnię lub master bedroom i pomieszczenie gospodarcze.

Słoneczna strefa dzienna z aneksem kuchennym jest wyraźnie oddzielona od strefy prywatnej z pokojami i łazienką. Projektanci zadbali o maksymalną funkcjonalność i wygodę na niedużej przestrzeni.

Dom murowany Dom na 10 sposobów wersja klasyczna - HAD1005
ENERGOOSZCZĘDNY DOM MUROWANY
Jaki będzie Twój nowy dom?

Dom na 10 sposobów został zaprojektowany w technologii murowanej. Co ją charakteryzuje? 

  • Jest trwałą i wytrzymała technologią – odporną na uszkodzenia mechaniczne, nacisk, ogień i warunki atmosferyczne.
  • Daje duże możliwości formowania bryły budynku.
  • Budynek w tej technologii łatwiej dopasować do warunków miejscowych i indywidualnych potrzeb.
  • Została dopracowana i udoskonalona przez lata doświadczeń.
  • Dzięki zastosowaniu wysokiej jakości materiałów i ulepszonych technologii można łatwo osiągnąć wysoką energooszczędność.
  • Nie wymaga ciężkiego sprzętu, więc budowa tą metodą jest możliwa praktycznie wszędzie.

Więcej

Dom murowany Dom na 10 sposobów wersja klasyczna - HAD1005

Analiza działki

Czy ten dom pasuje na Twoją działkę? Chętnie to sprawdzimy!

  • Czy wybrany dom zmieści się na Twojej działce?
  • Czy spełnia parametry wg MPZT lub WZ?
TECHNOLOGIA I KONSTRUKCJA

Energooszczędne domy murowane z gazobetonu

 

 

Ciepły dom

Technologia murowana ulepszona jest najpowszechniejszą technologią stawiania domów w Polsce. Do budowy, zamiast cegieł, wykorzystuje się bloczki lub pustaki. W tym przypadku stosowane są bloczki z gazobetonu.

Gazobeton, znany jako beton komórkowy, to materiał, który jest:

  • lekki i porowaty, o dobrych parametrach izolacyjności termicznej i akustycznej, co wpływa na oszczędność energetyczną oraz komfort mieszkańców,
  • łatwy w obróbce i montażu, co pozwala na szybszą i mniej kosztowną budowę oraz daje możliwość swobodnej aranżacji bryły,
  • odporny na ogień,
  • ekologiczny i nadający się do recyklingu, co wspiera zrównoważone budownictwo.
Dom murowany Dom na 10 sposobów wersja klasyczna - HAD1005
Ściany

Ściany zewnętrzne i wewnętrzne wykonane są z bloczków YTONG, SILKA lub POROTHERM. Do ocieplenia domu stosuje się styropian grafitowy o grubości 20 cm. Technologia wykończenia ścian minimalizuje mostki termiczne i zapewnia izolację zgodną z WT2021.

Domy z gazobetonu zapewniają komfort termiczny i akustyczny oraz niższe koszty eksploatacji, jednak ich budowa trwa dłużej niż domów prefabrykowanych i jest uzależniona od warunków atmosferycznych.

Dom murowany Dom na 10 sposobów wersja klasyczna - HAD1005
Płyta fundamentowa

Płyta fundamentowa to jednolita podstawa, wykonana ze wzmocnionego betonu, która rozkłada równomiernie ciężar budynku, zapobiegając jego osiadaniu. Taki rodzaj posadowienia jest polecany w regionach o stabilnym gruncie i łagodnym klimacie. Metoda ta eliminuje potrzebę głębokich fundamentów, co skraca czas budowy i obniża koszty. Dodatkowo zapewnia izolację termiczną od dołu, poprawiając efektywność energetyczną domu.

Dom murowany Dom na 10 sposobów wersja klasyczna - HAD1005
Dach i stropy

Dach wykonuje się z drewnianych wiązarów z drzewa iglastego klasy C24, a standardowe pokrycie stanowi blachodachówka.

Konstrukcję ściany szczytowych stanowią elementy wiązara dachowego obitego płytą OSB.

W domach parterowych spotkamy drewniany strop na dolnym pasie wiązara, ocieplony i zamknięty płytami g-k. W przypadku domów piętrowych, nad parterem stosuje się strop monolityczny.

Dom murowany Dom na 10 sposobów wersja klasyczna - HAD1005
Energooszędność

Domy z gazobetonu są projektowane z myślą o maksymalnym wykorzystaniu energii słonecznej, co zwiększa ich efektywność energetyczną. Duże okna i otwarte przestrzenie są często wykorzystywane do ogrzewania i oświetlenia wnętrz.

Dodatkowo zastosowanie nowoczesnych systemów wentylacyjnych z rekuperacją ciepła pozwala na utrzymanie optymalnej temperatury i świeżości powietrza wewnątrz budynku.

Dom murowany Dom na 10 sposobów wersja klasyczna - HAD1005
Dane techniczne

Specyfikacja

Powierzchnie i wymiary Powierzchnie i wymiary

Powierzchnia użytkowa
Tooltip
Suma powierzchni wszystkich pomieszczeń mieszkalnych, pomniejszona o pow. garażu, kotłowni, strychu, piwnicy. Jest liczona w 100% dla pomieszczeń o wysokości powyżej 2,2 m, w 50% dla pomieszczeń o wys. 2,2-1,4 m i niewliczana dla niższych niż 1,4 m.

72,56 m²

Powierzchnia zabudowy
Tooltip
Powierzchnia zajmowana przez część na- oraz nadziemną budynku liczona, jako rzut pionowy budynku na działkę.

88,93 m²

Powierzchnia netto
Tooltip
Powierzchna wszystkich pomieszczeń w budynku mierzona na wysokości podłogi.

72,56 m²

Kubatura netto
Tooltip
Zazwyczaj jest to suma kubatur (objętości) pomieszczeń budynku, bez strychu, liczonych po zewnętrznym obrysie murów (z ociepleniem).

217,10 m³

Kubatura brutto
Tooltip
Zazwyczaj jest to suma kubatur (objętości) wszystkich pomieszczeń budynku, liczonych po zewnętrznym obrysie murów (z ociepleniem).

434,20 m³

Powierzchnia dachu

135,42 m²

Kąt nachylenia dachu
Tooltip
Nachylenie połaci dachu głównego podawane w stopniach. Uwaga! W niektórych projektach występuje więcej niż jedno nachylenie dachu.

40°

Wysokość budynku
Tooltip
Wysokość liczona od części budynku położonej najniżej przy powierzchni terenu do najwyższego punktu dachu (kalenicy) z wyłączeniem kominów.

7,33 m

Szerokość elewacji

10,65 m

Długość elewacji

8,35 m

Min. szerokość działki
Tooltip
Najmniejsza możliwa szerokość działki niezbędna do wybudowania wybranego domu. Składa się z szerokości elewacji domu powiększonej z obu stron o 3 m dla ściany bez otworów drzwiowych/okiennych lub 4 m, dla ściany z otworami.

18,65 m

Min. długość działki
Tooltip
Najmniejsza możliwa długość działki niezbędna do wybudowania wybranego domu. Składa się z długości elewacji domu powiększonej z obu stron o 3 m dla ściany bez otworów drzwiowych/okiennych lub 4 m, dla ściany z otworami.

16,35 m

Energooszczędność Energooszczędność

Ep
Tooltip
Energia pierwotna określa ilość energii nieodnawialnej potrzebnej w ciągu roku do ogrzewania czy też ogrzania wody użytkowej z uwzględnieniem kosztów produkcji i transportu surowców energetycznych.

48,80 kWh/(m²rok)

Ogrzewanie

gaz/pompa ciepła

Wentylacja

grawitacyjna

Technologia i materiały Technologia i materiały

Posadowienie budynku

Płyta fundamentowa - opcja dodatkowo płatna lub do wykonania po stronie inwestora

Ściany zewnętrzne

silka 18 cm + 20 cm styropianu

Ściany wewnętrzne

bloczek gazobetonowy 12 cm

Strop nad parterem

drewniany

Konstrukcja dachu

drewniana

Pokrycie dachu

blachodachówka

Elewacja

tynk silikonowy

Instalacje dodatkowe w
standardzie

ogrzewanie podłogowe

DOMY GOTOWE

Zbuduj swój dom w 3 prostych krokach

Wybierasz dom,
przygotowujemy ofertę

Konfigurujemy i tworzymy dla Ciebie bezpłatną ofertę. Pomagamy w weryfikacji działki.

Podpisujesz umowę, rusza produkcja

Podpisujesz umowę z naszym partnerem na produkcję i montaż Twojego domu. Nie martwisz się o terminy i znasz koszty budowy.

Ciesz się swoim domem

W zależności od wybranej technologii budowy, Producent albo przywiezie gotowe elementy na Twoją działkę, albo – w przypadku metody murowanej - rozpocznie proces budowy domu od podstaw. Tobie pozostaną już tylko wewnętrzne prace wykończeniowe.

Dom w 3 krokach

NIE CZEKAJ DŁUŻEJ!

Pomożemy Ci zrealizować marzenie o domu - nawet w 3 miesiące!

Ikona zadzwoń

Zadzwoń

71 71 88 970

pon.-pt. 8:00-19:00

Zadzwoń teraz
Ikona list

Napisz do nas:

domygotowe@extradom.pl
lub
Wolne terminy!

Zobacz na żywo nasz gotowy dom!

Zanim podejmiesz decyzję, spotkaj się z nami na budowie i zobacz, jak realizowana jest taka inwestycja. Dzięki temu:

  • Dowiesz się, jak wygląda budowa i efekt finalny.
  • Skonsultujesz swoje pomysły z naszym ekspertem

Zobacz podobne domy gotowe

1

/

3

Zdjęcie Bergen 70
Bergen 70
Dodano!
Dodano!
Pow. użytkowa
72,05 m²
Pow. zabudowy
91,82 m²
Pokoje
3
389 000 zł 5 399 zł/m²
Bez pozwolenia
Zdjęcie Dom szkieletowy Edge Smart 90
Pow. użytkowa
71,68 m²
Pow. zabudowy
66,67 m²
Pokoje
3
452 995 zł 6 320 zł/m²
Zdjęcie Dom szkieletowy One Step Smart 90
Pow. użytkowa
73,45 m²
Pow. zabudowy
90 m²
Pokoje
2
428 600 zł 5 318 zł/m²
Zdjęcie Dom szkieletowy Space Smart 90
Pow. użytkowa
74 m²
Pow. zabudowy
90 m²
Pokoje
3
379 527 zł 5 129 zł/m²
Bez pozwolenia
Zdjęcie Dom prefabrykowany DH70-3
Dom prefabrykowany DH70-3
Dodano!
Dodano!
Pow. użytkowa
74,60 m²
Pow. zabudowy
68,57 m²
Pokoje
3
581 742 zł 7 798 zł/m²
Zdjęcie Dom szkieletowy Solo Smart 100
Pow. użytkowa
74,64 m²
Pow. zabudowy
96 m²
Pokoje
2
362 383 zł 4 855 zł/m²
Bez pozwolenia
Zdjęcie Dom szkieletowy Vista Smart 80
Pow. użytkowa
69,20 m²
Pow. zabudowy
55,20 m²
Pokoje
3
390 830 zł 5 648 zł/m²
Zdjęcie Dom keramzytowy Fiore 76
Dom keramzytowy Fiore 76
Dodano!
Dodano!
Pow. użytkowa
75,95 m²
Pow. zabudowy
125,05 m²
Pokoje
3
352 080 zł 4 636 zł/m²
Zdjęcie Dom prefabrykowany DEX76
Dom prefabrykowany DEX76
Dodano!
Dodano!
Pow. użytkowa
76 m²
Pow. zabudowy
101,52 m²
Pokoje
2
570 587 zł 7 508 zł/m²
Bez pozwolenia
Zdjęcie Dom szkieletowy Family Smart 50
Pow. użytkowa
67,67 m²
Pow. zabudowy
50 m²
Pokoje
3
385 800 zł 5 701 zł/m²
Bez pozwolenia
Zdjęcie Dom prefabrykowany DH70-2
Dom prefabrykowany DH70-2
Dodano!
Dodano!
Pow. użytkowa
66,43 m²
Pow. zabudowy
69,66 m²
Pokoje
3
557 820 zł 8 397 zł/m²
Zdjęcie Dom prefabrykowany Parterowy 80B
Pow. użytkowa
79,62 m²
Pow. zabudowy
97,36 m²
Pokoje
2
399 000 zł 5 011 zł/m²

Graficzne opracowanie rzutów poglądowych widocznych na karcie projektu zostało wykonane przez Extradom.pl. Prezentowane przez Extradom.pl wizualizacje wykonane zostały przez autora projektu i należy poczytywać je jedynie za przykład i propozycję wykończenia, wizję architektoniczną autora projektu. Ostateczne wykończenie budynku może nastąpić na wiele sposobów. Szczegółowe rozwiązania zastosowane w oferowanej dokumentacji - w tym również ilość, lokalizacje i wygląd okien, drzwi, kominów - mogą w niewielkim stopniu różnić się od prezentowanej wizualizacji budynku.

Extradom.pl Spółka z ograniczoną odpowiedzialnością z siedzibą przy ul. Jaworskiej 13, 53-612 Wrocław, wpisana do rejestru przedsiębiorców Krajowego Rejestru Sądowego przez Sąd Rejonowy dla Wrocławia-Fabrycznej we Wrocławiu, VI Wydział Gospodarczy Krajowego Rejestru Sądowego do pod numerem KRS 0000648746, numer NIP 895-17-18-333, o kapitale zakładowym 708 150,00 zł uprzejmie informuje, iż poprzez serwis Extradom.pl umożliwia m.in. zapoznanie się przez konsumentów z ofertą handlową Partnerów Extradom.pl, którzy stosują metody budowy domów przy wykorzystaniu różnego rodzaju technologie prefabrykacji bądź modułowe (tzw. „Gotowe domy”).

Extradom.pl nie prowadzi jednakże sprzedaży ani nie oferuje usług polegających na doradztwie finansowym, prawnym ani podatkowym w zakresie inwestycji realizowanych w technologiach tzw. „Gotowych domów”. Informacje prezentowane w serwisie Extradom.pl dotyczące Partnerów Extradom.pl oferujących realizację inwestycji w technologiach „Gotowych domów” lub podobnych mają charakter informacyjny i reklamowy.

Prezentowane w serwisie Extradom.pl informacje dotyczące stosowanych przez Partnerów metod budowy domów w technologii prefabrykacji bądź modułowej pochodzą od Partnerów Extradom.pl.

Extradom.pl sp. z o.o. jedynie umożliwia nawiązanie kontaktu przez Użytkownika z Partnerem Extradom.pl stosującym tego rodzaju technologie budowy domów i nie jest stroną umowy o roboty budowlane zawieranej przez Użytkownika Extradom.pl z Partnerem Extradom.pl.

REKLAMA
Zamknij