👉 Projekty w extracenach! ✂️

Koniec oferty za:

00godz.

00min.

00sek.

Sprawdź

Dom modułowy całoroczny Marysia 1

HDM1000

Dodaj

Dodano!

Porównaj

Dodano!

Drukuj

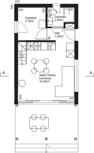
Rzut parteru

Powierzchnia (m²)
Tooltip
Powierzchnia pomieszczenia
to ta, z której faktycznie możesz korzystać – skosy i niskie części poddasza są liczone częściowo lub wcale.
  1. 100% dla wysokości powyżej 2,2 m,
  2. 50% dla wysokości 1,4–2,2 m,
  3. nie liczymy poniżej 1,4 m.

Powierzchnia podłogi
Liczymy po obrysie pomieszczenia, bez względu na jego wysokość/skosy. Jeśli nie ma skosów to powierzchnia podłogi i pomieszczenia jest taka sama.
pomieszczenia i podłogi
podłogi
1. Hall
1,80
2. Pokój dzienny + jadalnia + kuchnia
18,09
3. Pokój
5,18
4. Łazienka
2,83
Razem
27,90
27,90
Powierzchnia (m²)
Tooltip
Powierzchnia pomieszczenia
to ta, z której faktycznie możesz korzystać – skosy i niskie części poddasza są liczone częściowo lub wcale.
  1. 100% dla wysokości powyżej 2,2 m,
  2. 50% dla wysokości 1,4–2,2 m,
  3. nie liczymy poniżej 1,4 m.

Powierzchnia podłogi
Liczymy po obrysie pomieszczenia, bez względu na jego wysokość/skosy. Jeśli nie ma skosów to powierzchnia podłogi i pomieszczenia jest taka sama.
pomieszczenia i podłogi
podłogi
1. Antresola
13,16
Razem
13,16
13,16

Pow. użytkowa

35,40 m²

Pow. zabudowy

35 m²

Pokoje

1

Łazienki i WC

1

Garaż

0

Kąt dachu

45°

Min. szer. i dł. działki:

9 m x 11 m

Technologia

Szkielet drewniany

więcej

Dom wycofany z oferty

W razie pytań prosimy o kontakt z doradcą. Polecamy zobaczyć podobne domy gotowe.

Wolne terminy!
Umów wizytę w
domu pokazowym
  • Jak wygląda proces budowy?
  • Ile trwa budowa i jakie terminy są dostępne?
  • Jak się mieszka w takim domu!

Zobacz podobne domy gotowe

1

/

3

Bez pozwolenia
Zdjęcie Dom mobilny Model Mazuria Economy
Pow. użytkowa
39 m²
Pow. zabudowy
48 m²
Pokoje
2
240 000 zł 6 154 zł/m²
Bez pozwolenia
Zdjęcie Dom mobilny Model Mazuria Standard
Pow. użytkowa
39 m²
Pow. zabudowy
48 m²
Pokoje
2
290 000 zł 7 436 zł/m²
Bez pozwolenia
Zdjęcie Dom mobilny Model Mazuria Premium
Pow. użytkowa
39 m²
Pow. zabudowy
48 m²
Pokoje
2
320 000 zł 8 205 zł/m²
Bez pozwolenia
Zdjęcie Dom prefabrykowany DH44
Dom prefabrykowany DH44
Dodano!
Dodano!
Pow. użytkowa
39,12 m²
Pow. zabudowy
44,46 m²
Pokoje
0
309 500 zł 5 853 zł/m²
Bez pozwolenia
Zdjęcie Dom mobilny MoonWave
Dom mobilny MoonWave
Dodano!
Dodano!
Pow. użytkowa
41,15 m²
Pow. zabudowy
48,32 m²
Pokoje
2
305 750 zł 7 430 zł/m²
Bez pozwolenia
Zdjęcie Dom mobilny StarPoint
Dom mobilny StarPoint
Dodano!
Dodano!
Pow. użytkowa
41,69 m²
Pow. zabudowy
57,11 m²
Pokoje
1
365 750 zł 8 792 zł/m²
Bez pozwolenia
Zdjęcie Dom szkieletowy Mezzanine Smart 35
Pow. użytkowa
45 m²
Pow. zabudowy
35 m²
Pokoje
1
242 750 zł 5 405 zł/m²
Bez pozwolenia
Zdjęcie Dom prefabrykowany DH55
Dom prefabrykowany DH55
Dodano!
Dodano!
Pow. użytkowa
48,20 m²
Pow. zabudowy
44,54 m²
Pokoje
0
332 640 zł 6 510 zł/m²
Bez pozwolenia
Zdjęcie Dom szkieletowy Family Smart
Pow. użytkowa
48,91 m²
Pow. zabudowy
35 m²
Pokoje
3
269 400 zł 5 508 zł/m²
Bez pozwolenia
Zdjęcie Dom mobilny SunStone
Dom mobilny SunStone
Dodano!
Dodano!
Pow. użytkowa
49,21 m²
Pow. zabudowy
57,11 m²
Pokoje
2
335 500 zł 6 818 zł/m²
Bez pozwolenia
Zdjęcie Dom prefabrykowany DH47
Dom prefabrykowany DH47
Dodano!
Dodano!
Pow. użytkowa
51,10 m²
Pow. zabudowy
48,70 m²
Pokoje
2
378 600 zł 6 321 zł/m²
Bez pozwolenia
Zdjęcie Dom prefabrykowany DH47 + przedsionek
Pow. użytkowa
53,72 m²
Pow. zabudowy
58,28 m²
Pokoje
2
413 964 zł 7 706 zł/m²
RZUTY

Rozmieszczenie
pomieszczeń

Parter - 27,90 m²

Parter projektu Dom modułowy całoroczny Marysia 1
Powierzchnia (m²)
Tooltip
Powierzchnia pomieszczenia
to ta, z której faktycznie możesz korzystać – skosy i niskie części poddasza są liczone częściowo lub wcale.
  1. 100% dla wysokości powyżej 2,2 m,
  2. 50% dla wysokości 1,4–2,2 m,
  3. nie liczymy poniżej 1,4 m.

Powierzchnia podłogi
Liczymy po obrysie pomieszczenia, bez względu na jego wysokość/skosy. Jeśli nie ma skosów to powierzchnia podłogi i pomieszczenia jest taka sama.
pomieszczenia i podłogi
podłogi
1. Hall
1,80
2. Pokój dzienny + jadalnia + kuchnia
18,09
3. Pokój
5,18
4. Łazienka
2,83
Razem
27,90
27,90

Poddasze - 13,16 m²

Poddasze projektu Dom modułowy całoroczny Marysia 1
Powierzchnia (m²)
Tooltip
Powierzchnia pomieszczenia
to ta, z której faktycznie możesz korzystać – skosy i niskie części poddasza są liczone częściowo lub wcale.
  1. 100% dla wysokości powyżej 2,2 m,
  2. 50% dla wysokości 1,4–2,2 m,
  3. nie liczymy poniżej 1,4 m.

Powierzchnia podłogi
Liczymy po obrysie pomieszczenia, bez względu na jego wysokość/skosy. Jeśli nie ma skosów to powierzchnia podłogi i pomieszczenia jest taka sama.
pomieszczenia i podłogi
podłogi
1. Antresola
13,16
Razem
13,16
13,16

Podoba Ci się dom, ale chciałbyś dokonać pewnych zmian?

  • Możesz zmienić kolor i materiał elewacji
  • Możesz zmienić funkcję i układ pomieszczeń
Konsultant

Skontaktuj się z nami - przygotujemy bezpłatną ofertę dla Ciebie

71 718 89 70

pon.-pt. 08:00 - 19:00

DOM MARYSIA 01 CAŁOROCZNY

Podstawowe informacje

icon
60 dni czas realizacji
icon
Stan deweloperski
icon
Dom całoroczny
icon
Bez pozwolenia

BŁYSKAWICZNA REALIZACJA

Gotowy dom w 60 dni

Dom gotowy Marysia 1 to dom całoroczny, o powierzchni 35 m², co pozwala na jego budowę bez pozwolenia, na tzw. zgłoszenie. Dzięki antresoli powierzchnia użytkowa domu zwięszka się do 44 m².

Dzięki modułowej technologii ta konstrukcja zostanie wyprodukowana i wzniesiona na Twojej działce już w 60 dni! Wszystkie elementy wykonane są z ekologicznych i energooszczędnych materiałów.

Dom modułowy całoroczny Marysia 1 - HDM1000

PRZEJRZYSTA OFERTA CENOWA

Niezmienna cena domu w stanie deweloperskim

Dom Marysia w stanie deweloperskim to gwarancja ceny od dnia podpisania umowy. Podczas całego procesu produkcji i budowy cena pozostanie niezmieniona.

Stan dweloperski obejmuje:

  • dach i komin, zintegrowane orynnowanie budynku
  • elewację świerkową, impregnowaną
  • instalację wodno-kanalizacyjną
  • okna, drzwi przesuwne na taras, drzwi zewnętrzne
  • montaż na Twojej działce
  • instalacje elektryczne zewnętrzne i wewnętrzne
  • taras o powierzchni 16 m² z drewna iglastego
  • ściany i sufity z płyty G-K
  • wentylację grawitacyjną

Więcej

Dom modułowy całoroczny Marysia 1 - HDM1000

ARCHITEKTURA I ZASTOSOWANIE

Całoroczny lub wakacyjny dom pod klucz

Dom gotowy Marysia 1 składa się z otwartego salonu i kuchni z przeszkleniem na froncie, łazienki, garderoby, dwóch sypialni i antresoli. Może pełnić rolę domu całorocznego lub stać się Twoją bazą wakacyjną.

Możesz zamówić dom pod klucz - otrzymasz pełne wyposażenie łazienki, termy do wody w kuchni i łazience, podłogę drewnianą, ogrzewanie, drzwi wewnętrzne i schody na antresolę.

Dom modułowy całoroczny Marysia 1 - HDM1000
Dom modułowy całoroczny Marysia 1 - HDM1000

Imponujące przeszklenie na całej fasadzie

Dom modułowy całoroczny Marysia 1 - HDM1000

W pełni funkcjonalna łazienka z wanną lub prysznicem

Dom modułowy całoroczny Marysia 1 - HDM1000

Przestronny taras z drewna iglastego

Analiza działki

Czy ten dom pasuje na Twoją działkę? Chętnie to sprawdzimy!

  • Czy wybrany dom zmieści się na Twojej działce?
  • Czy spełnia parametry wg MPZT lub WZ?
KONSTRUKCJA

Drewniana konstrukcja i nowoczesna technologia

Certyfikowane skandynawskie drewno

Wszystkie elementy naszego domku wykonane są z certyfikowanego drewna skandynawskiego C24. To budulec o wysokiej klasie wytrzymałościowej, twardy i trwały.

Drewno pochodzi z lasów skandynawskich, które charakteryzują się wolnym przyrostem, co zapewnia solidność i trwałość drewna. Dzięki procesowi suszenia komorowego do wilgotności 15-18% nasze drewno jest wolne od grzybów i insektów.

certyfikowane skandynawskie drewno

Konstrukcja pozwalająca zmieniać lokalizację

Lekka konstrukcja budynków modułowych Marysia to rozwiązanie dla tych, którzy nie przywiązują się do miejsca. Domki są nawet dwukrotnie lżejsze niż budynki wykonywane w technologii tradycyjnej, dzięki czemu można je demontować, przewozić i montować ponownie. Każdy nasz domek można łatwo powiększyć i nadać mu nowy kształt dzięki kolejnym modułom.

Projekty można stawiać na każdym gruncie (skalistym, piaszczystym, czy podmokłym), także na skarpach.

konstrukcja budynków modułowych

Ciepła i trwała konstrukcja

Poszycie ścian domku Marysia to niezawierająca formaldehydu płyta wiórowa MFP. Ma lepsze właściwości budowlane, hydrofobowe i izolacyjne od innych drewnopochodnych płyt budowlanych. Płyty połączone są na pióro-wpust, co zapewnia gładkie i estetyczne wykończenie.

Wszystkie przegrody zostały ocieplone wełną mineralną. W projekcie wybrano izolację przegród pionowych wełną o zwiększonej sztywności. Zapobiega to grawitacyjnemu zapadaniu się wełny. Domek Marysia spełnia wymagania dotyczące przenikalności cieplnej przegród, stawiane budynkom całorocznym od 2021 roku.

Poszycie - konstrukcja budynków modułowych
Dane techniczne

Specyfikacja

Powierzchnie i wymiary Powierzchnie i wymiary

Powierzchnia użytkowa
Tooltip
Suma powierzchni wszystkich pomieszczeń mieszkalnych, pomniejszona o pow. garażu, kotłowni, strychu, piwnicy. Jest liczona w 100% dla pomieszczeń o wysokości powyżej 2,2 m, w 50% dla pomieszczeń o wys. 2,2-1,4 m i niewliczana dla niższych niż 1,4 m.

35,40 m²

Wysokość ściany kolankowej
Tooltip
Wysokość ściany podpierającej dach. Jej wysokość wpływa na powierzchnię użytkową kondygnacji, na której się znajduje.

1,35 m

Powierzchnia zabudowy
Tooltip
Powierzchnia zajmowana przez część na- oraz nadziemną budynku liczona, jako rzut pionowy budynku na działkę.

35 m²

Powierzchnia netto
Tooltip
Powierzchna wszystkich pomieszczeń w budynku mierzona na wysokości podłogi.

41,10 m²

Kubatura brutto
Tooltip
Zazwyczaj jest to suma kubatur (objętości) wszystkich pomieszczeń budynku, liczonych po zewnętrznym obrysie murów (z ociepleniem).

199,70 m³

Kąt nachylenia dachu
Tooltip
Nachylenie połaci dachu głównego podawane w stopniach. Uwaga! W niektórych projektach występuje więcej niż jedno nachylenie dachu.

45°

Wysokość budynku
Tooltip
Wysokość liczona od części budynku położonej najniżej przy powierzchni terenu do najwyższego punktu dachu (kalenicy) z wyłączeniem kominów.

6,76 m

Szerokość elewacji

5 m

Długość elewacji

7 m

Min. szerokość działki
Tooltip
Najmniejsza możliwa szerokość działki niezbędna do wybudowania wybranego domu. Składa się z szerokości elewacji domu powiększonej z obu stron o 3 m dla ściany bez otworów drzwiowych/okiennych lub 4 m, dla ściany z otworami.

9 m

Min. długość działki
Tooltip
Najmniejsza możliwa długość działki niezbędna do wybudowania wybranego domu. Składa się z długości elewacji domu powiększonej z obu stron o 3 m dla ściany bez otworów drzwiowych/okiennych lub 4 m, dla ściany z otworami.

11 m

Energooszczędność Energooszczędność

Ep
Tooltip
Energia pierwotna określa ilość energii nieodnawialnej potrzebnej w ciągu roku do ogrzewania czy też ogrzania wody użytkowej z uwzględnieniem kosztów produkcji i transportu surowców energetycznych.

70 kWh/(m²rok)

Ek
Tooltip
Energia końcowa określa zapotrzebowanie budynku na energię niezbędną do uzyskania założonych parametrów, jak np. temperatura wewnątrz budynku.

45 kWh/(m²rok)

Ogrzewanie

ogrzewanie podłogowe

Wentylacja

grawitacyjna

Technologia i materiały Technologia i materiały

Posadowienie budynku

po stronie klienta lub opcja dodatkowo płatna: płyta fundamentowa

Ściany zewnętrzne

konstrukcja drewniana, ocieplona wełną mineralną

Ściany wewnętrzne

konstrukcja drewniana, ocieplona wełną mineralną

Strop nad parterem

drewniany

Konstrukcja dachu

drewniana, jętki

Pokrycie dachu

blacha na rąbek

Elewacja

drewno iglaste, malowane

DOMY GOTOWE

Zbuduj swój dom w 3 prostych krokach

Wybierasz dom,
przygotowujemy ofertę

Konfigurujemy i tworzymy dla Ciebie bezpłatną ofertę. Pomagamy w weryfikacji działki.

Podpisujesz umowę, rusza produkcja

Podpisujesz umowę z naszym partnerem na produkcję i montaż Twojego domu. Nie martwisz się o terminy i znasz koszty budowy.

Ciesz się swoim domem

W zależności od wybranej technologii budowy, Producent albo przywiezie gotowe elementy na Twoją działkę, albo – w przypadku metody murowanej - rozpocznie proces budowy domu od podstaw. Tobie pozostaną już tylko wewnętrzne prace wykończeniowe.

Dom w 3 krokach

NIE CZEKAJ DŁUŻEJ!

Pomożemy Ci zrealizować marzenie o domu - nawet w 3 miesiące!

Ikona zadzwoń

Zadzwoń

71 71 88 970

pon.-pt. 8:00-19:00

Zadzwoń teraz
Ikona list

Napisz do nas:

domygotowe@extradom.pl
lub
Wolne terminy!

Zobacz na żywo nasz gotowy dom!

Zanim podejmiesz decyzję, spotkaj się z nami na budowie i zobacz, jak realizowana jest taka inwestycja. Dzięki temu:

  • Dowiesz się, jak wygląda budowa i efekt finalny.
  • Skonsultujesz swoje pomysły z naszym ekspertem

Zobacz podobne domy gotowe

1

/

3

Bez pozwolenia
Zdjęcie Dom mobilny Model Mazuria Economy
Pow. użytkowa
39 m²
Pow. zabudowy
48 m²
Pokoje
2
240 000 zł 6 154 zł/m²
Bez pozwolenia
Zdjęcie Dom mobilny Model Mazuria Standard
Pow. użytkowa
39 m²
Pow. zabudowy
48 m²
Pokoje
2
290 000 zł 7 436 zł/m²
Bez pozwolenia
Zdjęcie Dom mobilny Model Mazuria Premium
Pow. użytkowa
39 m²
Pow. zabudowy
48 m²
Pokoje
2
320 000 zł 8 205 zł/m²
Bez pozwolenia
Zdjęcie Dom prefabrykowany DH44
Dom prefabrykowany DH44
Dodano!
Dodano!
Pow. użytkowa
39,12 m²
Pow. zabudowy
44,46 m²
Pokoje
0
309 500 zł 5 853 zł/m²
Bez pozwolenia
Zdjęcie Dom mobilny MoonWave
Dom mobilny MoonWave
Dodano!
Dodano!
Pow. użytkowa
41,15 m²
Pow. zabudowy
48,32 m²
Pokoje
2
305 750 zł 7 430 zł/m²
Bez pozwolenia
Zdjęcie Dom mobilny StarPoint
Dom mobilny StarPoint
Dodano!
Dodano!
Pow. użytkowa
41,69 m²
Pow. zabudowy
57,11 m²
Pokoje
1
365 750 zł 8 792 zł/m²
Bez pozwolenia
Zdjęcie Dom szkieletowy Mezzanine Smart 35
Pow. użytkowa
45 m²
Pow. zabudowy
35 m²
Pokoje
1
242 750 zł 5 405 zł/m²
Bez pozwolenia
Zdjęcie Dom prefabrykowany DH55
Dom prefabrykowany DH55
Dodano!
Dodano!
Pow. użytkowa
48,20 m²
Pow. zabudowy
44,54 m²
Pokoje
0
332 640 zł 6 510 zł/m²
Bez pozwolenia
Zdjęcie Dom szkieletowy Family Smart
Pow. użytkowa
48,91 m²
Pow. zabudowy
35 m²
Pokoje
3
269 400 zł 5 508 zł/m²
Bez pozwolenia
Zdjęcie Dom mobilny SunStone
Dom mobilny SunStone
Dodano!
Dodano!
Pow. użytkowa
49,21 m²
Pow. zabudowy
57,11 m²
Pokoje
2
335 500 zł 6 818 zł/m²
Bez pozwolenia
Zdjęcie Dom prefabrykowany DH47
Dom prefabrykowany DH47
Dodano!
Dodano!
Pow. użytkowa
51,10 m²
Pow. zabudowy
48,70 m²
Pokoje
2
378 600 zł 6 321 zł/m²
Bez pozwolenia
Zdjęcie Dom prefabrykowany DH47 + przedsionek
Pow. użytkowa
53,72 m²
Pow. zabudowy
58,28 m²
Pokoje
2
413 964 zł 7 706 zł/m²

Graficzne opracowanie rzutów poglądowych widocznych na karcie projektu zostało wykonane przez Extradom.pl. Prezentowane przez Extradom.pl wizualizacje wykonane zostały przez autora projektu i należy poczytywać je jedynie za przykład i propozycję wykończenia, wizję architektoniczną autora projektu. Ostateczne wykończenie budynku może nastąpić na wiele sposobów. Szczegółowe rozwiązania zastosowane w oferowanej dokumentacji - w tym również ilość, lokalizacje i wygląd okien, drzwi, kominów - mogą w niewielkim stopniu różnić się od prezentowanej wizualizacji budynku.

Extradom.pl Spółka z ograniczoną odpowiedzialnością z siedzibą przy ul. Jaworskiej 13, 53-612 Wrocław, wpisana do rejestru przedsiębiorców Krajowego Rejestru Sądowego przez Sąd Rejonowy dla Wrocławia-Fabrycznej we Wrocławiu, VI Wydział Gospodarczy Krajowego Rejestru Sądowego do pod numerem KRS 0000648746, numer NIP 895-17-18-333, o kapitale zakładowym 708 150,00 zł uprzejmie informuje, iż poprzez serwis Extradom.pl umożliwia m.in. zapoznanie się przez konsumentów z ofertą handlową Partnerów Extradom.pl, którzy stosują metody budowy domów przy wykorzystaniu różnego rodzaju technologie prefabrykacji bądź modułowe (tzw. „Gotowe domy”).

Extradom.pl nie prowadzi jednakże sprzedaży ani nie oferuje usług polegających na doradztwie finansowym, prawnym ani podatkowym w zakresie inwestycji realizowanych w technologiach tzw. „Gotowych domów”. Informacje prezentowane w serwisie Extradom.pl dotyczące Partnerów Extradom.pl oferujących realizację inwestycji w technologiach „Gotowych domów” lub podobnych mają charakter informacyjny i reklamowy.

Prezentowane w serwisie Extradom.pl informacje dotyczące stosowanych przez Partnerów metod budowy domów w technologii prefabrykacji bądź modułowej pochodzą od Partnerów Extradom.pl.

Extradom.pl sp. z o.o. jedynie umożliwia nawiązanie kontaktu przez Użytkownika z Partnerem Extradom.pl stosującym tego rodzaju technologie budowy domów i nie jest stroną umowy o roboty budowlane zawieranej przez Użytkownika Extradom.pl z Partnerem Extradom.pl.

REKLAMA
Zamknij