👉 Niższe ceny + karta allegro 200 zł! 🔥

Koniec oferty za:

0dni

00godz.

00min.

00sek.

Sprawdź

Dom keramzytowy Dom na 10 sposobów wersja nowoczesna

HAK1003

Dodaj

Dodano!

Porównaj

Dodano!

Drukuj

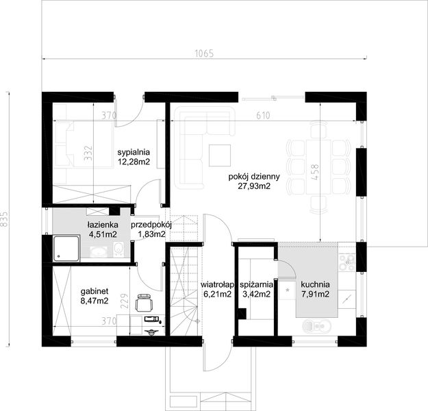
Rzut parteru

Powierzchnia (m²)
Tooltip
Powierzchnia pomieszczenia
to ta, z której faktycznie możesz korzystać – skosy i niskie części poddasza są liczone częściowo lub wcale.
  1. 100% dla wysokości powyżej 2,2 m,
  2. 50% dla wysokości 1,4–2,2 m,
  3. nie liczymy poniżej 1,4 m.

Powierzchnia podłogi
Liczymy po obrysie pomieszczenia, bez względu na jego wysokość/skosy. Jeśli nie ma skosów to powierzchnia podłogi i pomieszczenia jest taka sama.
pomieszczenia i podłogi
podłogi
1. Wiatrołap
6,21
2. Pokój dzienny + jadalnia
27,93
3. Kuchnia
7,91
4. Spiżarnia
3,42
5. Pokój
12,28
6. Korytarz
1,83
7. Łazienka
4,51
8. Pokój
8,47
Razem
72,56
72,56

Pow. użytkowa

72,56 m²

Pow. zabudowy

88,93 m²

Pokoje

2

Łazienki i WC

1

Garaż

0

Kąt dachu

40°

Min. szer. i dł. działki:

18,65 m x 16,35 m

Technologia

Prefabrykat keramzytobetonowy

więcej

Dom wycofany z oferty

W razie pytań prosimy o kontakt z doradcą. Polecamy zobaczyć podobne domy gotowe.

Wolne terminy!
Umów wizytę w
domu pokazowym
  • Jak wygląda proces budowy?
  • Ile trwa budowa i jakie terminy są dostępne?
  • Jak się mieszka w takim domu!

Zobacz podobne domy gotowe

1

/

3

Zdjęcie Bergen 70
Bergen 70
Dodano!
Dodano!
Pow. użytkowa
72,05 m²
Pow. zabudowy
91,82 m²
Pokoje
3
389 000 zł 5 399 zł/m²
Bez pozwolenia
Zdjęcie Dom szkieletowy Edge Smart 90
Pow. użytkowa
71,68 m²
Pow. zabudowy
66,67 m²
Pokoje
3
452 995 zł 6 320 zł/m²
Zdjęcie Dom szkieletowy One Step Smart 90
Pow. użytkowa
73,45 m²
Pow. zabudowy
90 m²
Pokoje
2
428 600 zł 5 318 zł/m²
Zdjęcie Dom szkieletowy Space Smart 90
Pow. użytkowa
74 m²
Pow. zabudowy
90 m²
Pokoje
3
379 527 zł 5 129 zł/m²
Bez pozwolenia
Zdjęcie Dom prefabrykowany DH70-3
Dom prefabrykowany DH70-3
Dodano!
Dodano!
Pow. użytkowa
74,60 m²
Pow. zabudowy
68,57 m²
Pokoje
3
581 742 zł 7 798 zł/m²
Zdjęcie Dom szkieletowy Solo Smart 100
Pow. użytkowa
74,64 m²
Pow. zabudowy
96 m²
Pokoje
2
362 383 zł 4 855 zł/m²
Bez pozwolenia
Zdjęcie Dom szkieletowy Vista Smart 80
Pow. użytkowa
69,20 m²
Pow. zabudowy
55,20 m²
Pokoje
3
390 830 zł 5 648 zł/m²
Zdjęcie Dom keramzytowy Fiore 76
Dom keramzytowy Fiore 76
Dodano!
Dodano!
Pow. użytkowa
75,95 m²
Pow. zabudowy
125,05 m²
Pokoje
3
352 080 zł 4 636 zł/m²
Zdjęcie Dom prefabrykowany DEX76
Dom prefabrykowany DEX76
Dodano!
Dodano!
Pow. użytkowa
76 m²
Pow. zabudowy
101,52 m²
Pokoje
2
570 587 zł 7 508 zł/m²
Bez pozwolenia
Zdjęcie Dom szkieletowy Family Smart 50
Pow. użytkowa
67,67 m²
Pow. zabudowy
50 m²
Pokoje
3
385 800 zł 5 701 zł/m²
Bez pozwolenia
Zdjęcie Dom prefabrykowany DH70-2
Dom prefabrykowany DH70-2
Dodano!
Dodano!
Pow. użytkowa
66,43 m²
Pow. zabudowy
69,66 m²
Pokoje
3
557 820 zł 8 397 zł/m²
Zdjęcie Dom prefabrykowany Parterowy 80A
Pow. użytkowa
79,62 m²
Pow. zabudowy
97,36 m²
Pokoje
3
399 000 zł 5 011 zł/m²
RZUTY

Rozmieszczenie
pomieszczeń

Parter - 72,56 m²

Projekt gotowy Dom keramzytowy Dom na 10 sposobów wersja nowoczesna - rzut parteru, dom liczy 2 pokoje, 1 łazienki i wc
Powierzchnia (m²)
Tooltip
Powierzchnia pomieszczenia
to ta, z której faktycznie możesz korzystać – skosy i niskie części poddasza są liczone częściowo lub wcale.
  1. 100% dla wysokości powyżej 2,2 m,
  2. 50% dla wysokości 1,4–2,2 m,
  3. nie liczymy poniżej 1,4 m.

Powierzchnia podłogi
Liczymy po obrysie pomieszczenia, bez względu na jego wysokość/skosy. Jeśli nie ma skosów to powierzchnia podłogi i pomieszczenia jest taka sama.
pomieszczenia i podłogi
podłogi
1. Wiatrołap
6,21
2. Pokój dzienny + jadalnia
27,93
3. Kuchnia
7,91
4. Spiżarnia
3,42
5. Pokój
12,28
6. Korytarz
1,83
7. Łazienka
4,51
8. Pokój
8,47
Razem
72,56
72,56

Podoba Ci się dom, ale chciałbyś dokonać pewnych zmian?

  • Możesz zmienić kolor i materiał elewacji
  • Możesz zmienić funkcję i układ pomieszczeń
Konsultant

Skontaktuj się z nami - przygotujemy bezpłatną ofertę dla Ciebie

71 718 89 70

pon.-pt. 08:00 - 19:00

PODSTAWOWE INFORMACJE

Ciepły i ekologiczny dom z keramzytu

icon
Prefabrykat keramzytowy
icon
10 lat gwarancji
icon
Realizacja w 150 dni
icon
Z poddaszem, bezokapowy
PARTEROWY DOM Z PODDASZEM DO ADAPTACJI
Idealny na start

Nowoczesny dom na 10 sposobów z prefabrykatów keramzytowych to przytulna przestrzeń na dobry początek. Oferuje mieszkańcom 72,56 m2 pow. użytkowej, w tym: jasny salon, sypialnię i gabinet.

Na start korzystasz z pełni funkcjonalnego parteru, a w razie potrzeby adaptujesz poddasze, aby zyskać kolejne cenne metry. Do idealna opcja dla osób, które myślą o powiększeniu rodziny w przyszłości.

Ten dom jest dostępny również w technologii murowanej – sprawdź Dom murowany na 10 sposobów wersja nowoczesna.

Dom keramzytowy Dom na 10 sposobów wersja nowoczesna - HAK1003
ZAKRES REALIZACJI DO WYBORU

Wybierz wariant dopasowany do Twoich potrzeb

Zakres podstawowy

Ekonomiczne rozwiązanie, idealne dla osób, które chcą mieć wpływ na wykończenie swojego domu. Otrzymujesz solidną konstrukcję, którą dopasujesz do swoich potrzeb.

Zakres PODSTAWOWY obejmuje:

  • ściany zewnętrzne i wewnętrzne z prefabrykatów keramzytowych,
  • konstrukcję dachu z drewnianych wiązarów,
  • strop drewniany - dolny pas wiązara,
  • pokrycie dachu blachodachówką,
  • okna 3-szybowe, 6-komorowe PVC,
  • drzwi wejściowe antywłamaniowe,
  • wentylację grawitacyjną i kominki systemowe wentylacyjne,
  • wybudowanie domu na działce.

Opcje dodatkowe:

  • wykonanie fundamentów,
  • adaptacja poddasza - o szczegóły zapytaj doradcę.
Dom keramzytowy Dom na 10 sposobów wersja nowoczesna - HAK1003
Zakres rozszerzony

Opcja dla tych, którzy które cenią sobie czas i wygodę. Otrzymujesz częściowo wykończony dom i możesz szybciej przejść do etapu jego urządzania.

Zakres ROZSZERZONY obejmuje dodatkowo:

  • izolację termiczną ścian zewnętrznych zgodną z  WT2021,
  • elewację - tynk silikatowo-silikonowy,
  • posadzki z izolacją i wylewką cementową,
  • tynki wewnętrzne gipsowe,
  • instalację C.O.,
  • instalację wodno-kanalizacyjną,
  • instalację elektryczną,
  • orynnowanie - rynny stalowe,
  • parapety zewnętrzne stalowe.

Opcje dodatkowe:

  • źródło ciepła,
  • wykończenie poddasza - o szczegóły zapytaj doradcę.
Dom keramzytowy Dom na 10 sposobów wersja nowoczesna - HAK1003
NOWOCZESNOŚĆ I MINIMALIZM
Pełna wygoda na niedużej przestrzeni

Architekci zaproponowali spójną, minimalistyczną konstrukcję w stylu nowoczesnej stodoły. Wycięcia wokół wejścia, narożne okna i dwuspadowy, bezokapowy dach tworzą stylową bryłę domu na lata.

Dom na 10 sposobów skrywa wewnątrz przestronny salon z jadalnią i wyjściem na taras, otwartą kuchnię, sypialnię, gabinet oraz ustawną łazienkę. Strefa dzienna została wyraźnie oddzielona od strefy prywatnej.

Dom keramzytowy Dom na 10 sposobów wersja nowoczesna - HAK1003
Dom keramzytowy Dom na 10 sposobów wersja nowoczesna - HAK1003

Wyjście na taras

Dom keramzytowy Dom na 10 sposobów wersja nowoczesna - HAK1003

Kuchnia ze spiżarnią

Dom keramzytowy Dom na 10 sposobów wersja nowoczesna - HAK1003

Sypialnia i gabinet

PODDASZE DO ADAPTACJI
Dom z myślą o przyszłości

Dom na 10 sposobów to dom parterowy z poddaszem do adaptacji. Po zaadaptowaniu poddasza zyskasz dodatkowe 31,9 m2. Co możesz tam urządzić? Np. master bedroom lub 2 sypialnie, garderobę, łazienkę i pralnię.

Znajdziemy tu funkcjonalne rozwiązania znane z dużych projektów t.j. spiżarnia, spory wiatrołap z miejscem na szafę, wyjście na taras z salonu.

Podoba Ci się ten układ? Sprawdź także Dom keramzytowy na 10 sposobów w wersji klasycznej.

Dom keramzytowy Dom na 10 sposobów wersja nowoczesna - HAK1003
DOM Z PREFABRYKATU KERAMZYTOWEGO
Jaki będzie Twój nowy dom?

Dom na 10 sposobów z prefabrykatu keramzytowego to odpowiedź na współczesne potrzeby – jest trwały, energooszczędny i ekonomiczny. Poznaj jego zalety:

  • Solidna, monolityczna konstrukcja: precyzyjne wykonanie elementów, niewielka liczba łączeń, profesjonalny montaż.
  • Doskonała izolacyjność termiczna: łatwiej utrzymasz optymalną temperaturę w swoim domu i oszczędzisz na ogrzewaniu.
  • Odporność: keramzytobeton jest całkowicie niepalny, odporny na szkodniki, wilgoć i zmiany.
  • Dobra akustyka: doskonale izoluje dźwięki, co przekłada się na Twój komfort życia.
  • Zysk metrażu: cieńsze ściany to większa pow. użytkowa niż w domu murowanym przy takiej samej pow. zabudowy.
  • Łatwość wykończenia: gładkie i proste ściany, które nie wymagają tynków wewnętrznych.
  • Ekologia: keramzyt to tworzywo naturalne, produkcja pochłania mniej energii i generuje mniej odpadów.

Więcej

Dom keramzytowy Dom na 10 sposobów wersja nowoczesna - HAK1003

Analiza działki

Czy ten dom pasuje na Twoją działkę? Chętnie to sprawdzimy!

  • Czy wybrany dom zmieści się na Twojej działce?
  • Czy spełnia parametry wg MPZT lub WZ?
ZOBACZ TECHNOLOGIĘ NA WŁASNE OCZY
Odwiedź dom pokazowy!

Odwiedź dom pokazowy i przekonaj się na własne oczy:

  • jak wygląda proces budowy takiego domu 
  • ile trwa budowa i jakie terminy są dostępne
  • jak mieszka się w takim domu! 

Zapisz się na DRZWI OTWARTE! Skontaktuj się z nami - podamy Ci najbliższy termin i wpiszemy Cię na listę uczestników. Napisz wiadomość na adres e-mail: domygotowe@extradom.pl lub zadzwoń: 71 715 20 69. Do zobaczenia!

Dom keramzytowy Dom na 10 sposobów wersja nowoczesna - HAK1003
TECHNOLOGIA I KONSTRUKCJA

Dom z prefabrykatów keramzytowych

Proces produkcji prefabrykatów keramzytowych

Znana od lat i popularna w Europie technologia ścian ceramicznych bazuje na keramzycie – lekkim kruszywie budowlanym, wypalanym z oczyszczonej gliny w temperaturze ok. 1200ºC. W procesie wypalania uzyskuje się okrągłe, porowate bryłki, pokryte twardą, ceramiczną powłoką w kolorze czerwono-brązowym. Łączy się je z betonem, dzięki czemu powstaje wyjątkowo lekki i wytrzymały materiał do produkcji poszczególnych elementów konstrukcyjnych — keramzytobeton. Prefabrykaty keramzytobetonowe są zbrojone i wyposażone w niezbędne otwory, w tym pod instalacje.

Dom keramzytowy Dom na 10 sposobów wersja nowoczesna - HAK1003
Szybka budowa z prefabrykatów keramzytobetonowych

Wzniesienie domu na działce z prefabrykatów keramzytowych trwa kilka dni. Moment ten poprzedza jednak ok. 3-miesięczny proces produkcji ścian w fabryce. Po tym czasie gotowe części są transportowane na plac budowy, gdzie dokonuje się ich montażu na wcześniej przygotowanej płycie fundamentowej.

Ściany są mocowane do płyty i łączone za pomocą specjalnych elementów i spoin betonowych. Gotową konstrukcję wieńczy dach na drewnianych wiązarach, tworzących więźbę dachową i strop. Pokrycie dachowe wykonane jest z dachówki ceramicznej.

Grubość ścian z keramzytobetonu wynosi 15 cm dla ścian zewnętrznych i 10 cm dla ścian wewnętrznych. Cieńsze ściany to większa powierzchnia użytkowa niż w domach murowanych, przy tej samej powierzchni zabudowy.

Dom keramzytowy Dom na 10 sposobów wersja nowoczesna - HAK1003
Precyzyjna konstrukcja i szybkie wykończenie

Elementy prefabrykowane przygotowywane są z dużą precyzją, co pozwala uniknąć błędów wykonawczych i zminimalizować większość mostków termicznych. Nie muszą być również sezonowane – osiągają swoją pełną wytrzymałość, zanim trafią na plac budowy.

Po zakończeniu montażu ścian i przykryciu dachu można natychmiast przystąpić do dalszych prac: montażu stolarki otworowej, wykonania posadzek, sufitów, adaptacji poddasza, wykonania elewacji, rozprowadzenia instalacji i przygotowania ścian do wykończenia. W związku z tym, że elementy prefabrykowane mają doskonale gładką powierzchnię, nie wymagają tynkowania.

Wykończenie domu jest szybsze i prostsze.

Dom keramzytowy Dom na 10 sposobów wersja nowoczesna - HAK1003
Zdrowy, ciepły, bezpieczny i ekologiczny dom

Produkcja keramzytobetonu jest energooszczędna i przyjazna dla środowiska – w procesie jego wytwarzania nie powstają żadne odpady, a sam keramzyt jest materiałem naturalnym. Keramzytobeton jest również w pełni recyklingowalny.

Kruszywo to należy do materiałów niepalnych, obojętnych chemicznie, odpornych na wodę, działanie pleśni, grzybów i gryzoni. Ta wytrzymałość na działanie czynników zewnętrznych zwiększa bezpieczeństwo mieszkańców i trwałość budynku, którą szacuje się nawet na 200-300 lat.

Keramzyt ma doskonałe właściwości termoizolacyjne i wysoką dźwiękochłonność. Mieszkańcy nie odczują gwałtownych zmian temperatur w budynku. Dom jest ciepły zimą a chłodny latem.

Dom keramzytowy Dom na 10 sposobów wersja nowoczesna - HAK1003
Dane techniczne

Specyfikacja

Powierzchnie i wymiary Powierzchnie i wymiary

Powierzchnia użytkowa
Tooltip
Suma powierzchni wszystkich pomieszczeń mieszkalnych, pomniejszona o pow. garażu, kotłowni, strychu, piwnicy. Jest liczona w 100% dla pomieszczeń o wysokości powyżej 2,2 m, w 50% dla pomieszczeń o wys. 2,2-1,4 m i niewliczana dla niższych niż 1,4 m.

72,56 m²

Powierzchnia zabudowy
Tooltip
Powierzchnia zajmowana przez część na- oraz nadziemną budynku liczona, jako rzut pionowy budynku na działkę.

88,93 m²

Kubatura netto
Tooltip
Zazwyczaj jest to suma kubatur (objętości) pomieszczeń budynku, bez strychu, liczonych po zewnętrznym obrysie murów (z ociepleniem).

217,10 m³

Kubatura brutto
Tooltip
Zazwyczaj jest to suma kubatur (objętości) wszystkich pomieszczeń budynku, liczonych po zewnętrznym obrysie murów (z ociepleniem).

434,20 m³

Powierzchnia dachu

135,42 m²

Kąt nachylenia dachu
Tooltip
Nachylenie połaci dachu głównego podawane w stopniach. Uwaga! W niektórych projektach występuje więcej niż jedno nachylenie dachu.

40°

Wysokość budynku
Tooltip
Wysokość liczona od części budynku położonej najniżej przy powierzchni terenu do najwyższego punktu dachu (kalenicy) z wyłączeniem kominów.

7,33 m

Szerokość elewacji

10,65 m

Długość elewacji

8,35 m

Min. szerokość działki
Tooltip
Najmniejsza możliwa szerokość działki niezbędna do wybudowania wybranego domu. Składa się z szerokości elewacji domu powiększonej z obu stron o 3 m dla ściany bez otworów drzwiowych/okiennych lub 4 m, dla ściany z otworami.

18,65 m

Min. długość działki
Tooltip
Najmniejsza możliwa długość działki niezbędna do wybudowania wybranego domu. Składa się z długości elewacji domu powiększonej z obu stron o 3 m dla ściany bez otworów drzwiowych/okiennych lub 4 m, dla ściany z otworami.

16,35 m

Energooszczędność Energooszczędność

Ep
Tooltip
Energia pierwotna określa ilość energii nieodnawialnej potrzebnej w ciągu roku do ogrzewania czy też ogrzania wody użytkowej z uwzględnieniem kosztów produkcji i transportu surowców energetycznych.

48,80 kWh/(m²rok)

Ogrzewanie

gaz/pompa ciepła

Wentylacja

grawitacyjna

Technologia i materiały Technologia i materiały

Posadowienie budynku

Płyta fundamentowa - opcja dodatkowo płatna lub do wykonania po stronie inwestora

Ściany zewnętrzne

prefabrykat keramzytobetonowy 15 cm + styropian 20 cm

Ściany wewnętrzne

prefabrykat keramzytobetonowy 12 cm

Strop nad parterem

drewniany

Konstrukcja dachu

drewniana

Pokrycie dachu

blachodachówka

Elewacja

tynk silikonowy

Instalacje dodatkowe w
standardzie

ogrzewanie podłogowe

DOMY GOTOWE

Zbuduj swój dom w 3 prostych krokach

Wybierasz dom,
przygotowujemy ofertę

Konfigurujemy i tworzymy dla Ciebie bezpłatną ofertę. Pomagamy w weryfikacji działki.

Podpisujesz umowę, rusza produkcja

Podpisujesz umowę z naszym partnerem na produkcję i montaż Twojego domu. Nie martwisz się o terminy i znasz koszty budowy.

Ciesz się swoim domem

W zależności od wybranej technologii budowy, Producent albo przywiezie gotowe elementy na Twoją działkę, albo – w przypadku metody murowanej - rozpocznie proces budowy domu od podstaw. Tobie pozostaną już tylko wewnętrzne prace wykończeniowe.

Dom w 3 krokach

NIE CZEKAJ DŁUŻEJ!

Pomożemy Ci zrealizować marzenie o domu - nawet w 3 miesiące!

Ikona zadzwoń

Zadzwoń

71 71 88 970

pon.-pt. 8:00-19:00

Zadzwoń teraz
Ikona list

Napisz do nas:

domygotowe@extradom.pl
lub
Wolne terminy!

Zobacz na żywo nasz gotowy dom!

Zanim podejmiesz decyzję, spotkaj się z nami na budowie i zobacz, jak realizowana jest taka inwestycja. Dzięki temu:

  • Dowiesz się, jak wygląda budowa i efekt finalny.
  • Skonsultujesz swoje pomysły z naszym ekspertem

Zobacz podobne domy gotowe

1

/

3

Zdjęcie Bergen 70
Bergen 70
Dodano!
Dodano!
Pow. użytkowa
72,05 m²
Pow. zabudowy
91,82 m²
Pokoje
3
389 000 zł 5 399 zł/m²
Bez pozwolenia
Zdjęcie Dom szkieletowy Edge Smart 90
Pow. użytkowa
71,68 m²
Pow. zabudowy
66,67 m²
Pokoje
3
452 995 zł 6 320 zł/m²
Zdjęcie Dom szkieletowy One Step Smart 90
Pow. użytkowa
73,45 m²
Pow. zabudowy
90 m²
Pokoje
2
428 600 zł 5 318 zł/m²
Zdjęcie Dom szkieletowy Space Smart 90
Pow. użytkowa
74 m²
Pow. zabudowy
90 m²
Pokoje
3
379 527 zł 5 129 zł/m²
Bez pozwolenia
Zdjęcie Dom prefabrykowany DH70-3
Dom prefabrykowany DH70-3
Dodano!
Dodano!
Pow. użytkowa
74,60 m²
Pow. zabudowy
68,57 m²
Pokoje
3
581 742 zł 7 798 zł/m²
Zdjęcie Dom szkieletowy Solo Smart 100
Pow. użytkowa
74,64 m²
Pow. zabudowy
96 m²
Pokoje
2
362 383 zł 4 855 zł/m²
Bez pozwolenia
Zdjęcie Dom szkieletowy Vista Smart 80
Pow. użytkowa
69,20 m²
Pow. zabudowy
55,20 m²
Pokoje
3
390 830 zł 5 648 zł/m²
Zdjęcie Dom keramzytowy Fiore 76
Dom keramzytowy Fiore 76
Dodano!
Dodano!
Pow. użytkowa
75,95 m²
Pow. zabudowy
125,05 m²
Pokoje
3
352 080 zł 4 636 zł/m²
Zdjęcie Dom prefabrykowany DEX76
Dom prefabrykowany DEX76
Dodano!
Dodano!
Pow. użytkowa
76 m²
Pow. zabudowy
101,52 m²
Pokoje
2
570 587 zł 7 508 zł/m²
Bez pozwolenia
Zdjęcie Dom szkieletowy Family Smart 50
Pow. użytkowa
67,67 m²
Pow. zabudowy
50 m²
Pokoje
3
385 800 zł 5 701 zł/m²
Bez pozwolenia
Zdjęcie Dom prefabrykowany DH70-2
Dom prefabrykowany DH70-2
Dodano!
Dodano!
Pow. użytkowa
66,43 m²
Pow. zabudowy
69,66 m²
Pokoje
3
557 820 zł 8 397 zł/m²
Zdjęcie Dom prefabrykowany Parterowy 80A
Pow. użytkowa
79,62 m²
Pow. zabudowy
97,36 m²
Pokoje
3
399 000 zł 5 011 zł/m²

Graficzne opracowanie rzutów poglądowych widocznych na karcie projektu zostało wykonane przez Extradom.pl. Prezentowane przez Extradom.pl wizualizacje wykonane zostały przez autora projektu i należy poczytywać je jedynie za przykład i propozycję wykończenia, wizję architektoniczną autora projektu. Ostateczne wykończenie budynku może nastąpić na wiele sposobów. Szczegółowe rozwiązania zastosowane w oferowanej dokumentacji - w tym również ilość, lokalizacje i wygląd okien, drzwi, kominów - mogą w niewielkim stopniu różnić się od prezentowanej wizualizacji budynku.

Extradom.pl Spółka z ograniczoną odpowiedzialnością z siedzibą przy ul. Jaworskiej 13, 53-612 Wrocław, wpisana do rejestru przedsiębiorców Krajowego Rejestru Sądowego przez Sąd Rejonowy dla Wrocławia-Fabrycznej we Wrocławiu, VI Wydział Gospodarczy Krajowego Rejestru Sądowego do pod numerem KRS 0000648746, numer NIP 895-17-18-333, o kapitale zakładowym 708 150,00 zł uprzejmie informuje, iż poprzez serwis Extradom.pl umożliwia m.in. zapoznanie się przez konsumentów z ofertą handlową Partnerów Extradom.pl, którzy stosują metody budowy domów przy wykorzystaniu różnego rodzaju technologie prefabrykacji bądź modułowe (tzw. „Gotowe domy”).

Extradom.pl nie prowadzi jednakże sprzedaży ani nie oferuje usług polegających na doradztwie finansowym, prawnym ani podatkowym w zakresie inwestycji realizowanych w technologiach tzw. „Gotowych domów”. Informacje prezentowane w serwisie Extradom.pl dotyczące Partnerów Extradom.pl oferujących realizację inwestycji w technologiach „Gotowych domów” lub podobnych mają charakter informacyjny i reklamowy.

Prezentowane w serwisie Extradom.pl informacje dotyczące stosowanych przez Partnerów metod budowy domów w technologii prefabrykacji bądź modułowej pochodzą od Partnerów Extradom.pl.

Extradom.pl sp. z o.o. jedynie umożliwia nawiązanie kontaktu przez Użytkownika z Partnerem Extradom.pl stosującym tego rodzaju technologie budowy domów i nie jest stroną umowy o roboty budowlane zawieranej przez Użytkownika Extradom.pl z Partnerem Extradom.pl.

REKLAMA
Zamknij