👉 200 zł na co tylko chcesz! ❄️

Koniec oferty za:

00godz.

00min.

00sek.

Sprawdź

Dom Lenna

HTE1001

Dodaj

Dodano!

Porównaj

Dodano!

Drukuj

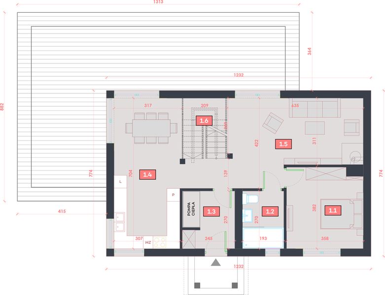
Rzut parteru

Powierzchnia (m²)
Tooltip
Powierzchnia pomieszczenia
to ta, z której faktycznie możesz korzystać – skosy i niskie części poddasza są liczone częściowo lub wcale.
  1. 100% dla wysokości powyżej 2,2 m,
  2. 50% dla wysokości 1,4–2,2 m,
  3. nie liczymy poniżej 1,4 m.

Powierzchnia podłogi
Liczymy po obrysie pomieszczenia, bez względu na jego wysokość/skosy. Jeśli nie ma skosów to powierzchnia podłogi i pomieszczenia jest taka sama.
pomieszczenia i podłogi
podłogi
1. Pokój
13,67
2. Łazienka
5,22
3. Wiatrołap
6,52
4. Kuchnia + jadalnia
22,03
5. Pokój dzienny
25,64
6. Schody
5,90
Razem
78,98
78,98
Powierzchnia (m²)
Tooltip
Powierzchnia pomieszczenia
to ta, z której faktycznie możesz korzystać – skosy i niskie części poddasza są liczone częściowo lub wcale.
  1. 100% dla wysokości powyżej 2,2 m,
  2. 50% dla wysokości 1,4–2,2 m,
  3. nie liczymy poniżej 1,4 m.

Powierzchnia podłogi
Liczymy po obrysie pomieszczenia, bez względu na jego wysokość/skosy. Jeśli nie ma skosów to powierzchnia podłogi i pomieszczenia jest taka sama.
pomieszczenia i podłogi
podłogi
1. Pokój
10,67
2. Pokój
8,05
3. Garderoba
2,55
4. Łazienka
3,15
5. Antresola
15,98
Razem
40,40
40,40

Pow. użytkowa

119,38 m²

Pow. zabudowy

96 m²

Pokoje

3

Łazienki i WC

2

Garaż

0

Kąt dachu

35°

Min. szer. i dł. działki:

15,74 m x 19,32 m

Technologia

Z perlitu

więcej

Dom wycofany z oferty

W razie pytań prosimy o kontakt z doradcą. Polecamy zobaczyć podobne domy gotowe.

Wolne terminy!
Umów wizytę w
domu pokazowym
  • Jak wygląda proces budowy?
  • Ile trwa budowa i jakie terminy są dostępne?
  • Jak się mieszka w takim domu!

Zobacz podobne domy gotowe

1

/

3

Zdjęcie Dom szkieletowy Scandinavian Smart 120
Pow. użytkowa
119,43 m²
Pow. zabudowy
148,50 m²
Pokoje
3
571 271 zł 4 761 zł/m²
Zdjęcie Dom prefabrykowany P.14
Dom prefabrykowany P.14
Dodano!
Dodano!
Pow. użytkowa
118,94 m²
Pow. zabudowy
147 m²
Pokoje
3
694 700 zł 5 829 zł/m²
Zdjęcie Dom modułowy Soul
Dom modułowy Soul
Dodano!
Dodano!
Pow. użytkowa
118,94 m²
Pow. zabudowy
85,28 m²
Pokoje
4
518 000 zł 3 654 zł/m²
Zdjęcie Dom szkieletowy Emily Smart 120
Pow. użytkowa
120 m²
Pow. zabudowy
151 m²
Pokoje
3
592 512 zł 4 938 zł/m²
Zdjęcie Dom prefabrykowany Parterowy 120C
Pow. użytkowa
120,06 m²
Pow. zabudowy
144,66 m²
Pokoje
4
489 000 zł 4 073 zł/m²
Zdjęcie Dom szkieletowy Creative Smart 160
Pow. użytkowa
118,35 m²
Pow. zabudowy
112 m²
Pokoje
4
780 019 zł 6 591 zł/m²
Zdjęcie Dom prefabrykowany Parterowy 120A
Pow. użytkowa
121,44 m²
Pow. zabudowy
144,66 m²
Pokoje
4
489 000 zł 4 027 zł/m²
Zdjęcie Dom prefabrykowany P.3 z okapem
Pow. użytkowa
121,46 m²
Pow. zabudowy
87,55 m²
Pokoje
5
600 100 zł 4 941 zł/m²
Zdjęcie Dom prefabrykowany P.3 bez okapu
Pow. użytkowa
121,46 m²
Pow. zabudowy
87,55 m²
Pokoje
5
594 000 zł 4 890 zł/m²
Zdjęcie Dom szkieletowy Twin Smart 170
Pow. użytkowa
121,95 m²
Pow. zabudowy
337,16 m²
Pokoje
5
1 650 700 zł 13 536 zł/m²
Zdjęcie Dom prefabrykowany Parterowy 120B
Pow. użytkowa
122,36 m²
Pow. zabudowy
144,66 m²
Pokoje
3
489 000 zł 3 996 zł/m²
Zdjęcie Dom prefabrykowany P.11
Dom prefabrykowany P.11
Dodano!
Dodano!
Pow. użytkowa
122,88 m²
Pow. zabudowy
90,72 m²
Pokoje
3
681 300 zł 5 544 zł/m²
RZUTY

Rozmieszczenie
pomieszczeń

Parter - 78,98 m²

Parter projektu Dom Lenna
Powierzchnia (m²)
Tooltip
Powierzchnia pomieszczenia
to ta, z której faktycznie możesz korzystać – skosy i niskie części poddasza są liczone częściowo lub wcale.
  1. 100% dla wysokości powyżej 2,2 m,
  2. 50% dla wysokości 1,4–2,2 m,
  3. nie liczymy poniżej 1,4 m.

Powierzchnia podłogi
Liczymy po obrysie pomieszczenia, bez względu na jego wysokość/skosy. Jeśli nie ma skosów to powierzchnia podłogi i pomieszczenia jest taka sama.
pomieszczenia i podłogi
podłogi
1. Pokój
13,67
2. Łazienka
5,22
3. Wiatrołap
6,52
4. Kuchnia + jadalnia
22,03
5. Pokój dzienny
25,64
6. Schody
5,90
Razem
78,98
78,98

Poddasze - 40,40 m²

Poddasze projektu Dom Lenna
Powierzchnia (m²)
Tooltip
Powierzchnia pomieszczenia
to ta, z której faktycznie możesz korzystać – skosy i niskie części poddasza są liczone częściowo lub wcale.
  1. 100% dla wysokości powyżej 2,2 m,
  2. 50% dla wysokości 1,4–2,2 m,
  3. nie liczymy poniżej 1,4 m.

Powierzchnia podłogi
Liczymy po obrysie pomieszczenia, bez względu na jego wysokość/skosy. Jeśli nie ma skosów to powierzchnia podłogi i pomieszczenia jest taka sama.
pomieszczenia i podłogi
podłogi
1. Pokój
10,67
2. Pokój
8,05
3. Garderoba
2,55
4. Łazienka
3,15
5. Antresola
15,98
Razem
40,40
40,40

Podoba Ci się dom, ale chciałbyś dokonać pewnych zmian?

  • Możesz zmienić kolor i materiał elewacji
  • Możesz zmienić funkcję i układ pomieszczeń
Konsultant

Skontaktuj się z nami - przygotujemy bezpłatną ofertę dla Ciebie

71 718 89 70

pon.-pt. 08:00 - 19:00

PODSTAWOWE INFORMACJE

Ekologiczny dom z perlitu

icon
Murowany, system 3E
icon
5 lat gwarancji
icon
Realizacja w 9 m-cy
icon
Z poddaszem
INNOWACYJNA TECHNOLOGIA
Ciepły dom dla rodziny

Dom Lenna to energooszczędny dom parterowy z poddaszem użytkowym, który jest nie tylko niezwykle funkcjonalny, ale także dzięki zastosowaniu technologii perlitowej, zdrowy i bezpieczny. Ściany wzniesione z perlitowych elementów chronią przed pleśnią, algami i grzybami oraz stanowią świetną izolację przeciw wilgoci.

Mieszkańcy mają do dyspozycji prawie 120 m2 nowocześnie zaprojektowanej powierzchni użytkowej, zamknięte w klasycznej bryle z dwuspadowym dachem.

Dom Lenna - HTE1001
ZAKRES REALIZACJI DO WYBORU

Wybierz wariant dopasowany do Twoich potrzeb

Zakres podstawowy

Ekonomiczne rozwiązanie, idealne dla osób, które chcą mieć wpływ na wykończenie swojego domu. Otrzymujesz solidną konstrukcję, którą dopasujesz do swoich potrzeb.

Zakres PODSTAWOWY obejmuje:

  • ściany nośne i działowe (konstrukcyjne) w technologii 3E – bloczki z perlitu,
  • strop,
  • więźbę dachową z pokryciem, orynnowaniem i podbitką,
  • stolarkę okienną,
  • drzwi wejściowe.

Opcje dodatkowe:

  • wykonanie fundamentów.
Dom Lenna - HTE1001
Zakres rozszerzony

Opcja dla tych, którzy które cenią sobie czas i wygodę. Otrzymujesz częściowo wykończony dom i możesz szybciej przejść do etapu jego urządzania.

Zakres ROZSZERZONY obejmuje dodatkowo:

  • elewację,
  • instalację C.O.,
  • instalację wodno-kanalizacyjną,
  • instalację elektryczną,
  • instalację wentylacji mechanicznej – rekuperacji,
  •  tynki wewnętrzne,
  • parapety zewnętrzne,
  • wylewki posadzkowe.

Opcje dodatkowe:

  • źródło ciepła,
  • instalacja fotowoltaiczna.
Dom Lenna - HTE1001
PARTER
Nowoczesna, otwarta przestrzeń

W domu Lenna spotkamy się z ciekawym ukłądem funkcjonalnym. Po przejściu przez wiatrołap trafiamy do przestronnego wnętrza - strefy dziennej. Po lewej stronie będziemy mieć kuchnią z jadalnią. Po prawej natomiast część wypoczynkową. Pomiędzy nimi znajduje się otwarta klatka schodowa prowadząca na piętro z antresolą.

Nad kuchnią i jadalnią zrezygnowano z sufitu. Z obu części strefy dziennej możemy wyjść bezpośrednio na duży, narożny taras.

Na parterze znalazło się rónież miejsce dla 1 sypialni i w pełni wyposażonej łazienki.

Dom Lenna - HTE1001
Dom Lenna - HTE1001

3 sypialnie

Dom Lenna - HTE1001

Kuchnia z jadalnią

Dom Lenna - HTE1001

Biuro na antresoli

PODDASZE Z ANTRESOLĄ
Kameralna strefa prywatna

Otwarcie sufitu nad jadalnią sprawiło, że powstał cichy zakątek na antresoli - idealny na domową bliblioteczkę, małą strefę wypoczynku lub miejsce do pracy.

Poddasze zostało zarezerwowane jednak dla strefy nocnej. Znajdziemy tu 2 ustawne sypialnie, oddzielną garderobę i drugą łazienkę z miejscem na wannę.

Układ i podział pomieszczeń w domu Lenna zapewnia komfortowe funkcjonowanie każego dnia, nawet gdy przyjmujemy gości.

Dom Lenna - HTE1001
DOM Z BLOCZKÓW PERLITOWYCH W SYSTEMIE 3E
Jaki będzie Twój nowy dom?

Dom Lenna budowany w innowacyjnej technologii z perlitu systemem 3E to rewolucja na rynku. Poznaj ją bliżej:

  • Ściany w systemie 3E wznosi się bez zaprawy i kleju, co przyspiesza proces budowy.
  • Precyzyjnie wykonane elementy doskonale do siebie przylegają – dom budowany niczym z klocków.
  • Ściany nie wymagają ocieplenia, gdyż perlit posiada świetne parametry termoizolacyjne – to oszczędność na materiałach i większa powierzchnia użytkowa.
  • Perlit jest materiałem naturalnym, ognioodpornym i paroprzepuszczalnym.
  • Technologia zapewnia doskonałą izolację przeciw wilgoci, co eliminuje ryzyko kondensacji wody.
  • Wysokie pH materiału chroni przed pleśnią, algami i grzybami – dom idealny dla alergików.

Więcej

Dom Lenna - HTE1001

Analiza działki

Czy ten dom pasuje na Twoją działkę? Chętnie to sprawdzimy!

  • Czy wybrany dom zmieści się na Twojej działce?
  • Czy spełnia parametry wg MPZT lub WZ?
Dane techniczne

Specyfikacja

Powierzchnie i wymiary Powierzchnie i wymiary

Powierzchnia użytkowa
Tooltip
Suma powierzchni wszystkich pomieszczeń mieszkalnych, pomniejszona o pow. garażu, kotłowni, strychu, piwnicy. Jest liczona w 100% dla pomieszczeń o wysokości powyżej 2,2 m, w 50% dla pomieszczeń o wys. 2,2-1,4 m i niewliczana dla niższych niż 1,4 m.

119,38 m²

Wysokość ściany kolankowej
Tooltip
Wysokość ściany podpierającej dach. Jej wysokość wpływa na powierzchnię użytkową kondygnacji, na której się znajduje.

0,95 m

Powierzchnia zabudowy
Tooltip
Powierzchnia zajmowana przez część na- oraz nadziemną budynku liczona, jako rzut pionowy budynku na działkę.

96 m²

Powierzchnia całkowita
Tooltip
Całkowita powierzchnia wszystkich kondygnacji budynku łącznie z elementami nośnymi, takimi jak ściany zewnętrzne (z ociepleniem), słupy, tarasy, itp.

133,66 m²

Powierzchnia netto
Tooltip
Powierzchna wszystkich pomieszczeń w budynku mierzona na wysokości podłogi.

132,60 m²

Kubatura netto
Tooltip
Zazwyczaj jest to suma kubatur (objętości) pomieszczeń budynku, bez strychu, liczonych po zewnętrznym obrysie murów (z ociepleniem).

356,90 m³

Kubatura brutto
Tooltip
Zazwyczaj jest to suma kubatur (objętości) wszystkich pomieszczeń budynku, liczonych po zewnętrznym obrysie murów (z ociepleniem).

531,90 m³

Powierzchnia dachu

140 m²

Kąt nachylenia dachu
Tooltip
Nachylenie połaci dachu głównego podawane w stopniach. Uwaga! W niektórych projektach występuje więcej niż jedno nachylenie dachu.

35°

Wysokość budynku
Tooltip
Wysokość liczona od części budynku położonej najniżej przy powierzchni terenu do najwyższego punktu dachu (kalenicy) z wyłączeniem kominów.

7,23 m

Szerokość elewacji

7,74 m

Długość elewacji

12,32 m

Min. szerokość działki
Tooltip
Najmniejsza możliwa szerokość działki niezbędna do wybudowania wybranego domu. Składa się z szerokości elewacji domu powiększonej z obu stron o 3 m dla ściany bez otworów drzwiowych/okiennych lub 4 m, dla ściany z otworami.

15,74 m

Min. długość działki
Tooltip
Najmniejsza możliwa długość działki niezbędna do wybudowania wybranego domu. Składa się z długości elewacji domu powiększonej z obu stron o 3 m dla ściany bez otworów drzwiowych/okiennych lub 4 m, dla ściany z otworami.

19,32 m

Energooszczędność Energooszczędność

Ep
Tooltip
Energia pierwotna określa ilość energii nieodnawialnej potrzebnej w ciągu roku do ogrzewania czy też ogrzania wody użytkowej z uwzględnieniem kosztów produkcji i transportu surowców energetycznych.

66 kWh/(m²rok)

Ek
Tooltip
Energia końcowa określa zapotrzebowanie budynku na energię niezbędną do uzyskania założonych parametrów, jak np. temperatura wewnątrz budynku.

22 kWh/(m²rok)

Euco
Tooltip
Energia użytkowa potrzebna do ogrzewania i wentylacji. Im parametr jest niższy tym budynek bardziej energooszczędny.

35,30 kWh/(m²rok)

Ogrzewanie

pompa ciepła

Wentylacja

mechaniczna z rekuperacją

Technologia i materiały Technologia i materiały

Posadowienie budynku

po stronie klienta lub opcja dodatkowo płatna: płyta fundamentowa

Ściany zewnętrzne

SYSTEM 3E

Ściany wewnętrzne

z elementów perlitowych

Strop nad parterem

żelbetowy

Konstrukcja dachu

drewniana

Pokrycie dachu

blacha

Elewacja

ozdobne deski kompozytowe (kolor do wyboru) + tynk

Instalacje dodatkowe w
standardzie

ogrzewanie podłogowe

DOMY GOTOWE

Zbuduj swój dom w 3 prostych krokach

Wybierasz dom,
przygotowujemy ofertę

Konfigurujemy i tworzymy dla Ciebie bezpłatną ofertę. Pomagamy w weryfikacji działki.

Podpisujesz umowę, rusza produkcja

Podpisujesz umowę z naszym partnerem na produkcję i montaż Twojego domu. Nie martwisz się o terminy i znasz koszty budowy.

Ciesz się swoim domem

W zależności od wybranej technologii budowy, Producent albo przywiezie gotowe elementy na Twoją działkę, albo – w przypadku metody murowanej - rozpocznie proces budowy domu od podstaw. Tobie pozostaną już tylko wewnętrzne prace wykończeniowe.

Dom w 3 krokach

NIE CZEKAJ DŁUŻEJ!

Pomożemy Ci zrealizować marzenie o domu - nawet w 3 miesiące!

Ikona zadzwoń

Zadzwoń

71 71 88 970

pon.-pt. 8:00-19:00

Zadzwoń teraz
Ikona list

Napisz do nas:

domygotowe@extradom.pl
lub
Wolne terminy!

Zobacz na żywo nasz gotowy dom!

Zanim podejmiesz decyzję, spotkaj się z nami na budowie i zobacz, jak realizowana jest taka inwestycja. Dzięki temu:

  • Dowiesz się, jak wygląda budowa i efekt finalny.
  • Skonsultujesz swoje pomysły z naszym ekspertem

Zobacz podobne domy gotowe

1

/

3

Zdjęcie Dom szkieletowy Scandinavian Smart 120
Pow. użytkowa
119,43 m²
Pow. zabudowy
148,50 m²
Pokoje
3
571 271 zł 4 761 zł/m²
Zdjęcie Dom prefabrykowany P.14
Dom prefabrykowany P.14
Dodano!
Dodano!
Pow. użytkowa
118,94 m²
Pow. zabudowy
147 m²
Pokoje
3
694 700 zł 5 829 zł/m²
Zdjęcie Dom modułowy Soul
Dom modułowy Soul
Dodano!
Dodano!
Pow. użytkowa
118,94 m²
Pow. zabudowy
85,28 m²
Pokoje
4
518 000 zł 3 654 zł/m²
Zdjęcie Dom szkieletowy Emily Smart 120
Pow. użytkowa
120 m²
Pow. zabudowy
151 m²
Pokoje
3
592 512 zł 4 938 zł/m²
Zdjęcie Dom prefabrykowany Parterowy 120C
Pow. użytkowa
120,06 m²
Pow. zabudowy
144,66 m²
Pokoje
4
489 000 zł 4 073 zł/m²
Zdjęcie Dom szkieletowy Creative Smart 160
Pow. użytkowa
118,35 m²
Pow. zabudowy
112 m²
Pokoje
4
780 019 zł 6 591 zł/m²
Zdjęcie Dom prefabrykowany Parterowy 120A
Pow. użytkowa
121,44 m²
Pow. zabudowy
144,66 m²
Pokoje
4
489 000 zł 4 027 zł/m²
Zdjęcie Dom prefabrykowany P.3 z okapem
Pow. użytkowa
121,46 m²
Pow. zabudowy
87,55 m²
Pokoje
5
600 100 zł 4 941 zł/m²
Zdjęcie Dom prefabrykowany P.3 bez okapu
Pow. użytkowa
121,46 m²
Pow. zabudowy
87,55 m²
Pokoje
5
594 000 zł 4 890 zł/m²
Zdjęcie Dom szkieletowy Twin Smart 170
Pow. użytkowa
121,95 m²
Pow. zabudowy
337,16 m²
Pokoje
5
1 650 700 zł 13 536 zł/m²
Zdjęcie Dom prefabrykowany Parterowy 120B
Pow. użytkowa
122,36 m²
Pow. zabudowy
144,66 m²
Pokoje
3
489 000 zł 3 996 zł/m²
Zdjęcie Dom prefabrykowany P.11
Dom prefabrykowany P.11
Dodano!
Dodano!
Pow. użytkowa
122,88 m²
Pow. zabudowy
90,72 m²
Pokoje
3
681 300 zł 5 544 zł/m²

Graficzne opracowanie rzutów poglądowych widocznych na karcie projektu zostało wykonane przez Extradom.pl. Prezentowane przez Extradom.pl wizualizacje wykonane zostały przez autora projektu i należy poczytywać je jedynie za przykład i propozycję wykończenia, wizję architektoniczną autora projektu. Ostateczne wykończenie budynku może nastąpić na wiele sposobów. Szczegółowe rozwiązania zastosowane w oferowanej dokumentacji - w tym również ilość, lokalizacje i wygląd okien, drzwi, kominów - mogą w niewielkim stopniu różnić się od prezentowanej wizualizacji budynku.

Extradom.pl Spółka z ograniczoną odpowiedzialnością z siedzibą przy ul. Jaworskiej 13, 53-612 Wrocław, wpisana do rejestru przedsiębiorców Krajowego Rejestru Sądowego przez Sąd Rejonowy dla Wrocławia-Fabrycznej we Wrocławiu, VI Wydział Gospodarczy Krajowego Rejestru Sądowego do pod numerem KRS 0000648746, numer NIP 895-17-18-333, o kapitale zakładowym 708 150,00 zł uprzejmie informuje, iż poprzez serwis Extradom.pl umożliwia m.in. zapoznanie się przez konsumentów z ofertą handlową Partnerów Extradom.pl, którzy stosują metody budowy domów przy wykorzystaniu różnego rodzaju technologie prefabrykacji bądź modułowe (tzw. „Gotowe domy”).

Extradom.pl nie prowadzi jednakże sprzedaży ani nie oferuje usług polegających na doradztwie finansowym, prawnym ani podatkowym w zakresie inwestycji realizowanych w technologiach tzw. „Gotowych domów”. Informacje prezentowane w serwisie Extradom.pl dotyczące Partnerów Extradom.pl oferujących realizację inwestycji w technologiach „Gotowych domów” lub podobnych mają charakter informacyjny i reklamowy.

Prezentowane w serwisie Extradom.pl informacje dotyczące stosowanych przez Partnerów metod budowy domów w technologii prefabrykacji bądź modułowej pochodzą od Partnerów Extradom.pl.

Extradom.pl sp. z o.o. jedynie umożliwia nawiązanie kontaktu przez Użytkownika z Partnerem Extradom.pl stosującym tego rodzaju technologie budowy domów i nie jest stroną umowy o roboty budowlane zawieranej przez Użytkownika Extradom.pl z Partnerem Extradom.pl.

REKLAMA
Zamknij