👉 Niższe ceny + karta allegro 200 zł! 🔥

Koniec oferty za:

0dni

00godz.

00min.

00sek.

Sprawdź

Projekt domu W-0320 WAA1199

Zapisz Dodano!
Porównaj Dodano!
ikona Pobierz i drukuj
Dodaj opinię

Warstwy

Warstwy

Warstwy

Rzut parteru

Powierzchnia (m²)
Tooltip
Powierzchnia pomieszczenia
to ta, z której faktycznie możesz korzystać – skosy i niskie części poddasza są liczone częściowo lub wcale.
  1. 100% dla wysokości powyżej 2,2 m,
  2. 50% dla wysokości 1,4–2,2 m,
  3. nie liczymy poniżej 1,4 m.

Powierzchnia podłogi
Liczymy po obrysie pomieszczenia, bez względu na jego wysokość/skosy. Jeśli nie ma skosów to powierzchnia podłogi i pomieszczenia jest taka sama.
pomieszczenia i podłogi
podłogi
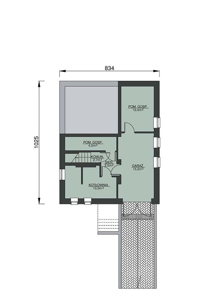
1. Korytarz
2,70
2. Hall
2,50
3. Kotłownia
10
4. Garaż jednostanowiskowy
15,50
5. Pomieszczenie gospodarcze
10,40
6. Pomieszczenie gospodarcze
4,50
Razem
45,60
45,60
Powierzchnia (m²)
Tooltip
Powierzchnia pomieszczenia
to ta, z której faktycznie możesz korzystać – skosy i niskie części poddasza są liczone częściowo lub wcale.
  1. 100% dla wysokości powyżej 2,2 m,
  2. 50% dla wysokości 1,4–2,2 m,
  3. nie liczymy poniżej 1,4 m.

Powierzchnia podłogi
Liczymy po obrysie pomieszczenia, bez względu na jego wysokość/skosy. Jeśli nie ma skosów to powierzchnia podłogi i pomieszczenia jest taka sama.
pomieszczenia i podłogi
podłogi
1. Wiatrołap
1,60
2. Hall
13,50
3. Kuchnia
8
4. Jadalnia
6,80
5. Pokój dzienny
29,50
6. Wc
3,90
7. Garderoba
1,90
Razem
65,20
65,20
Powierzchnia (m²)
Tooltip
Powierzchnia pomieszczenia
to ta, z której faktycznie możesz korzystać – skosy i niskie części poddasza są liczone częściowo lub wcale.
  1. 100% dla wysokości powyżej 2,2 m,
  2. 50% dla wysokości 1,4–2,2 m,
  3. nie liczymy poniżej 1,4 m.

Powierzchnia podłogi
Liczymy po obrysie pomieszczenia, bez względu na jego wysokość/skosy. Jeśli nie ma skosów to powierzchnia podłogi i pomieszczenia jest taka sama.
pomieszczenia i podłogi
podłogi
1. Hall
6,20
2. Pokój
10
3. Pokój
14,20
4. Pokój
14,70
5. Łazienka
9,40
Razem
54,50
54,50

    Usytuowanie na działce

    Czy ten projekt pasuje na
    Twoją działkę?

    Chętnie to sprawdzimy!

    Dowiedz się:

    • czy zmieści się na niej wybrany przez Ciebie dom
    • jakie parametry musi spełniać dom według miejscowego planu zagospodarowania lub warunków zabudowy (np. kąt nachylenia i typ dachu, liczba kondygnacji itp.
    • jakie inne projekty pasują na Twoją działkę – znajdziemy je dla Ciebie!

Pow. użytkowa

119,70 m²

Pokoje

3

Łazienki i WC

2

Garaż

1

Kąt dachu

37°

Wysokość budynku

8,50 m

Powierzchnia zabudowy

114,80 m²

Min. szer. i dł. działki

16,42 x 18,33 m

Konstrukcja

ikona
Murowana

Pokaż więcej parametrów

Zapisz Dodano!
Porównaj Dodano!
ikona Pobierz i drukuj

W-0320 - WAA1199

ikona 119,70 m²
Powierzchnia użytkowa
ikona3
Pokoje (bez salonu)
ikona 2
Łazienki (z toaletami)
ikona 1
Liczba stanowisk garażowych
(z wiatą garażową)
ikona
Konstrukcja: Murowana

Projekt został
wycofany z oferty

W razie pytań prosimy o kontakt
z Centrum Obsługi Klienta
Konsultant
71 715 20 60

pon.-pt. 8-21, sob. 9-17

Piwnica - 45,60 m²

Projekt domu W-0320 - rzut piwnicy, dom liczy 3 pokoje, 2 łazienki i wc

Zapytaj, co możesz zmienić

Powierzchnia (m²)
Tooltip
Powierzchnia pomieszczenia
to ta, z której faktycznie możesz korzystać – skosy i niskie części poddasza są liczone częściowo lub wcale.
  1. 100% dla wysokości powyżej 2,2 m,
  2. 50% dla wysokości 1,4–2,2 m,
  3. nie liczymy poniżej 1,4 m.

Powierzchnia podłogi
Liczymy po obrysie pomieszczenia, bez względu na jego wysokość/skosy. Jeśli nie ma skosów to powierzchnia podłogi i pomieszczenia jest taka sama.
pomieszczenia i podłogi
podłogi
1. Korytarz
2,70
2. Hall
2,50
3. Kotłownia
10
4. Garaż jednostanowiskowy
15,50
5. Pomieszczenie gospodarcze
10,40
6. Pomieszczenie gospodarcze
4,50
Razem
45,60
45,60

Parter - 65,20 m²

Projekt domu W-0320 - rzut parteru, dom liczy 3 pokoje, 2 łazienki i wc

Zapytaj, co możesz zmienić

Powierzchnia (m²)
Tooltip
Powierzchnia pomieszczenia
to ta, z której faktycznie możesz korzystać – skosy i niskie części poddasza są liczone częściowo lub wcale.
  1. 100% dla wysokości powyżej 2,2 m,
  2. 50% dla wysokości 1,4–2,2 m,
  3. nie liczymy poniżej 1,4 m.

Powierzchnia podłogi
Liczymy po obrysie pomieszczenia, bez względu na jego wysokość/skosy. Jeśli nie ma skosów to powierzchnia podłogi i pomieszczenia jest taka sama.
pomieszczenia i podłogi
podłogi
1. Wiatrołap
1,60
2. Hall
13,50
3. Kuchnia
8
4. Jadalnia
6,80
5. Pokój dzienny
29,50
6. Wc
3,90
7. Garderoba
1,90
Razem
65,20
65,20

Poddasze - 54,50 m²

Projekt domu W-0320 - rzut poddasza, dom liczy 3 pokoje, 2 łazienki i wc

Zapytaj, co możesz zmienić

Powierzchnia (m²)
Tooltip
Powierzchnia pomieszczenia
to ta, z której faktycznie możesz korzystać – skosy i niskie części poddasza są liczone częściowo lub wcale.
  1. 100% dla wysokości powyżej 2,2 m,
  2. 50% dla wysokości 1,4–2,2 m,
  3. nie liczymy poniżej 1,4 m.

Powierzchnia podłogi
Liczymy po obrysie pomieszczenia, bez względu na jego wysokość/skosy. Jeśli nie ma skosów to powierzchnia podłogi i pomieszczenia jest taka sama.
pomieszczenia i podłogi
podłogi
1. Hall
6,20
2. Pokój
10
3. Pokój
14,20
4. Pokój
14,70
5. Łazienka
9,40
Razem
54,50
54,50

Podobne projekty (2203)

Zobacz wszystkie
Nowość
Zdjęcie 1 projektu Krajobrazy 109 WRN1597
Krajobrazy 109
Dodano!
Dodano!
116,86 m²
3
2
1

4 195 zł

PROMOCJA
Zdjęcie 1 projektu Malina Alfa (1523) KRD2670
Malina Alfa (1523)
Dodano!
Dodano!
111 m²
4
2
1

4 240 zł

4 690 zł

Tooltip

Cena regularna

4 340 zł najniższa cena
Tooltip

Najniższa cena z 30 dni
przed obniżką

PROMOCJA
Zdjęcie 1 projektu Dom przy Kolorowej 3 KRK1745
Dom przy Kolorowej 3
Dodano!
Dodano!
120 m²
3
2
1

3 690 zł

4 290 zł

Tooltip

Cena regularna

3 790 zł najniższa cena
Tooltip

Najniższa cena z 30 dni
przed obniżką

PROMOCJA
Zdjęcie 1 projektu Arnika BSA1580
Arnika
Dodano!
Dodano!
130,13 m²
3
2
1

4 749 zł

5 349 zł

Tooltip

Cena regularna

4 849 zł najniższa cena
Tooltip

Najniższa cena z 30 dni
przed obniżką

PROMOCJA
Zdjęcie 1 projektu Reksio X BSB1150
Reksio X
Dodano!
Dodano!
112,42 m²
4
2
1

4 929 zł

5 300 zł

Tooltip

Cena regularna

4 563 zł najniższa cena
Tooltip

Najniższa cena z 30 dni
przed obniżką

PROMOCJA
Zdjęcie 1 projektu Lungo 4 modern WOF1153
Lungo 4 modern
Dodano!
Dodano!
110,33 m²
4
2
0

3 899 zł

4 099 zł

Tooltip

Cena regularna

3 899 zł najniższa cena
Tooltip

Najniższa cena z 30 dni
przed obniżką

Zdjęcie 1 projektu WB-3460 KRA1153
WB-3460
Dodano!
Dodano!
124,20 m²
3
2
1

3 950 zł

PROMOCJA
Zdjęcie 1 projektu uA88 WCB1129
uA88
Dodano!
Dodano!
125,69 m²
3
2
1

4 371 zł

4 650 zł

Tooltip

Cena regularna

4 417 zł najniższa cena
Tooltip

Najniższa cena z 30 dni
przed obniżką

Elewacje

Frontowa
Tylna
Lewa
Prawa

Przekroje

Przekrój pionowy
Autor: SOB INWESTPROJEKT sp. z o.o.

Dane techniczne projektu

Powierzchnie i wymiary Powierzchnie i wymiary

Powierzchnia użytkowa
Tooltip
Suma powierzchni wszystkich pomieszczeń mieszkalnych, pomniejszona o pow. garażu, kotłowni, strychu, piwnicy. Jest liczona w 100% dla pomieszczeń o wysokości powyżej 2,2 m, w 50% dla pomieszczeń o wys. 2,2-1,4 m i niewliczana dla niższych niż 1,4 m.

119,70 m²

Powierzchnia zabudowy
Tooltip
Powierzchnia zajmowana przez część na- oraz nadziemną budynku liczona, jako rzut pionowy budynku na działkę.

114,80 m²

Kąt nachylenia dachu
Tooltip
Nachylenie połaci dachu głównego podawane w stopniach. Uwaga! W niektórych projektach występuje więcej niż jedno nachylenie dachu.

37°

Wysokość budynku
Tooltip
Wysokość liczona od części budynku położonej najniżej przy powierzchni terenu do najwyższego punktu dachu (kalenicy) z wyłączeniem kominów.

8,50 m

Min. szerokość działki
Tooltip
Najmniejsza możliwa szerokość działki niezbędna do wybudowania wybranego domu. Składa się z szerokości elewacji domu powiększonej z obu stron o 3 m dla ściany bez otworów drzwiowych/okiennych lub 4 m, dla ściany z otworami.

16,42 m

Min. długość działki
Tooltip
Najmniejsza możliwa długość działki niezbędna do wybudowania wybranego domu. Składa się z długości elewacji domu powiększonej z obu stron o 3 m dla ściany bez otworów drzwiowych/okiennych lub 4 m, dla ściany z otworami.

18,33 m

Energooszczędność Energooszczędność

Oze Czym jest OZE (Odnawialne Źródło Energii)?
Warunki techniczne

Projekt zgody z WT 2021

Technologia i konstrukcja Technologia i konstrukcja

Konstrukcja

Murowana

Opis szczegółowy

Ściany: warstwowe, ceramiczne. Stropy: gęstożebrowe. Dach: o konstrukcji drewnianej, dwuspadowy o nachyleniu połaci 37°, kryty dachówką ceramiczną.

Strop

Gęstożebrowy

Reklama
Okna i drzwi tarasowe

Nowoczesne okna PVC i aluminiowe WIŚNIOWSKI – doskonała izolacja, elegancki design i niezrównana trwałość.

Wiśniowski
Sprawdź parametry!
Okna dachowe

Oferujemy bezpłatne konsultacje w zakresie wszystkich rozwiązań VELUX. Wyceny, porady dotyczące doboru okien i rolet zewnętrznych - sprawdź!

Velux
Sprawdź szczegóły
Okna i drzwi tarasowe

Systemy drzwi i okien z myślą o nowoczesnej architekturze i dużych przeszkleniach tarasowych.

Drutex
Sprawdź ofertę!
Pompa ciepła

Wybierz pompę ciepła, która pasuje do Twojego domu. Niezależnie od tego, czy ustawienie wewnątrz czy na zewnątrz, pompy ciepła STIEBEL ELTRON dopasują się do każdej przestrzeni.

Stiebel
Dobierz pompę ciepła
Drzwi

Idealne połączenie sztuki z technologią! Nowoczesne i energooszczędne drzwi wyróżniają się doskonałym połączeniem funkcjonalności, wysokiej estetyki wykonania oraz unikalnego stylu.

Drutex
Zobacz więcej
Drzwi

Ciepłe drzwi WIŚNIOWSKI z kontrolą dostępu. Szeroka gama wzorów i kolorów.

Wiśniowski
Wybierz najlepsze
Bramy garażowe

Automatyczne bramy garażowe segmentowe i uchylne WIŚNIOWSKI na wymiar i z systemem smart home w standardzie.

Wiśniowski
Sprawdź ofertę!
Rekuperacja

Alnor - kompletny system rekuperacji. Dobierz idealne rozwiązanie dla Twojego domu!

Alnor
Dobierz rekuperator
Dach

Producent stalowych pokryć dachowych i systemów elewacyjnych. Precyzja wykonania, trwałość na lata i szybki montaż doceniany przez dekarzy. Postaw na solidny dach Budmat.

Budmat
Sprawdź ofertę
Ogrodzenie

Nowoczesne stalowe ogrodzenia Budmat - estetyka, bezpieczeństwo i trwałość na lata. Systemowe rozwiązania na wymiar, dopasowane do każdego domu.

Budmat
Sprawdź ofertę

Gotowe domy - najszybszy sposób na dom (115)

Zobacz wszystkie
  • Stan deweloperski nawet w 6 miesięcy
  • Gwarancja stałej ceny
Skonfiguruj dom
Zdjęcie 1 projektu Bergen 110 HUS1001
110,80 m²
3
Stan deweloperski brutto
469 000 zł 4 233 zł/m²
Zdjęcie 1 projektu Dom szkieletowy Scandinavian Smart 120 HHT1020
119,43 m²
3
Stan deweloperski brutto
571 271 zł 4 761 zł/m²
Zdjęcie 1 projektu Dom szkieletowy Emily Smart 120 HHT1026
120 m²
3
Stan deweloperski brutto
592 512 zł 4 938 zł/m²
Zdjęcie 1 projektu Dom prefabrykowany FastHome 120 HFX1033
120,04 m²
4
Stan deweloperski brutto
530 000 zł 4 415 zł/m²
Zdjęcie 1 projektu Dom modułowy Soul HMD1001
118,94 m²
4
Stan deweloperski brutto
518 000 zł 3 654 zł/m²
Zdjęcie 1 projektu Dom prefabrykowany P.14 HPK1026
118,94 m²
3
Stan deweloperski brutto
707 200 zł 5 933 zł/m²
Zdjęcie 1 projektu Dom szkieletowy Creative Smart 160 HHT1023
118,35 m²
4
Stan deweloperski brutto
780 019 zł 6 591 zł/m²
Zdjęcie 1 projektu Dom prefabrykowany P.3 z okapem HPK1013
121,46 m²
5
Stan deweloperski brutto
630 000 zł 5 187 zł/m²

Opis projektu domu
W-0320

Projekt domu W-0320 to idealna propozycja dla osób posiadających średniej szerokości działkę. Dom posiada typową bryłę, co znacznie ułatwia proces budowy. Projekt należy do kategorii domów z kalenicą usytuowaną równolegle do drogi, co często określane jest w warunkach zabudowy. Dom został zaprojektowany do zabudowy wolnostojącej. Posiada garaż jednostanowiskowy garaż podziemny. Konstrukcja domu zwieńczona jest dachem dwuspadowym, co znacznie obniża koszty budowy. Projekt W-0320 to dom parterowy z poddaszem użytkowym, co sprawia, że jego powierzchnia jest wyraźnie podzielona na strefy: dzienną i nocną.Warto zwrócić uwagę, że dom jest podpiwniczony, co bez wątpienia docenią osoby chcące wybudować się na terenach podmiejskich. Projekt domu charakteryzuje się przestronną strefą dzienną. Tworzy ją między innymi kuchnia, która dzięki funkcjonalnym rozwiązaniom zapewni wygodę użytkowania przez długie lata. Architekt przewidział również miejsce na jadalnię, dzięki czemu wspólne posiłki będą doskonałą okazją do rozmów w rodzinnej atmosferze. Na parterze znajduje się oddzielna ubikacja, która doskonale sprawdzi się w przypadku odwiedzin gości. W pełni funkcjonalną łazienkę dla domowników przewidziano zaś na poddaszu. Strefa sypialniana składa się z trzech pokoi, co jest doskonałą opcją dla niedużej rodziny. Przestrzeń można wykorzystać także jako pokój dla gości lub gabinet. Wewnętrzny układ przewiduje miejsce na garderobę, dzięki której utrzymanie porządku w pokojach stanie się o wiele łatwiejsze. Wspólne grillowanie i rodzinne posiłki umili uwzględniony w projekcie taras. Dom zaprojektowano w technologii murowanej. W-0320 jest doskonałą propozycją dla Inwestorów szukających domu tradycyjnego, dzięki czemu idealnie wpisze się w dowolny krajobraz.
Czytaj więcej

Polecani producenci

Kompletne systemy rekuperacji

tło producenta

Alnor

Dowiedz się więcej

Dachy modułowe ze stali

tło producenta

Budmat

Poznaj szczegóły oferty

Prefabrykowane konstrukcje dachowe

tło producenta

WIĄZAR POLSKA

Zobacz więcej
Zobacz więcej

Społeczność projektu domu
W-0320 w budowie

Dołącz do społeczności osób, które budują ten dom lub są zainteresowane jego budową.

  • Oglądaj zdjęcia z budowy
  • Zadawaj pytania
  • Wymieniaj się doświadczeniami

Opinie o projekcie domu
W-0320

Opinie niezweryfikowane

Bądź pierwszy!
Ten projekt nie ma jeszcze opinii, bądź pierwszy!

ikona Dodaj opinię o projekcie

ASYSTENT WYBORU PROJEKTU

Szukasz idealnego projektu? Znajdziemy go dla Ciebie!

Doradca na podstawie Twoich wskazówek przygotuje spersonalizowaną listę projektów

Graficzne opracowanie rzutów poglądowych widocznych na karcie projektu zostało wykonane przez Extradom.pl. Prezentowane przez Extradom.pl wizualizacje wykonane zostały przez autora projektu i należy poczytywać je jedynie za przykład i propozycję wykończenia, wizję architektoniczną autora projektu. Ostateczne wykończenie budynku może nastąpić na wiele sposobów. Szczegółowe rozwiązania zastosowane w oferowanej dokumentacji - w tym również ilość, lokalizacje i wygląd okien, drzwi, kominów - mogą w niewielkim stopniu różnić się od prezentowanej wizualizacji budynku.

REKLAMA
Zamknij