👉 Rozgrzewające rabaty! 🔥

Projekt domu Filipinka I G2 (duplikat) WRC2138

Dodano!
Dodano!

Warstwy

Warstwy

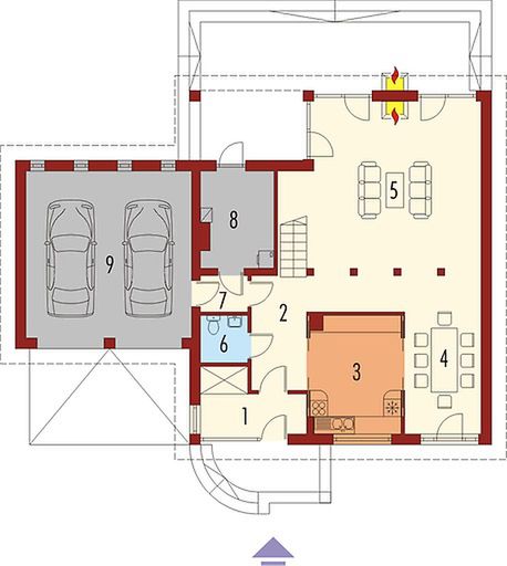
Rzut parteru

Powierzchnia (m²)
Tooltip
Powierzchnia pomieszczenia
to ta, z której faktycznie możesz korzystać – skosy i niskie części poddasza są liczone częściowo lub wcale.
  1. 100% dla wysokości powyżej 2,2 m,
  2. 50% dla wysokości 1,4–2,2 m,
  3. nie liczymy poniżej 1,4 m.

Powierzchnia podłogi (wartość w nawiasie)
Liczymy po całym obrysie pomieszczenia, bez względu na jego wysokość.
118,53
1. Wiatrołap
6,44
2. Hol
7,37
3. Kuchnia
12,29
4. Jadalnia
10,88
5. Pokój dzienny
39,49
6. Toaleta
2,58
7. Korytarz
1,97
8. Pom. gospodarcze
5,01
9. Garaż
32,50
Powierzchnia (m²)
Tooltip
Powierzchnia pomieszczenia
to ta, z której faktycznie możesz korzystać – skosy i niskie części poddasza są liczone częściowo lub wcale.
  1. 100% dla wysokości powyżej 2,2 m,
  2. 50% dla wysokości 1,4–2,2 m,
  3. nie liczymy poniżej 1,4 m.

Powierzchnia podłogi (wartość w nawiasie)
Liczymy po całym obrysie pomieszczenia, bez względu na jego wysokość.
86,06
1. Korytarz
8,28
2. Sypialnia
29,80
3. Pokój
15,45
4. Pokój
12,34
5. Łazienka
8,05
6. Garderoba
2,97
7. Pom. gospodarcze
9,17

    Usytuowanie na działce

    Czy ten projekt pasuje na
    Twoją działkę?

    Chętnie to sprawdzimy!

    Dowiedz się:

    • czy zmieści się na niej wybrany przez Ciebie dom
    • jakie parametry musi spełniać dom według miejscowego planu zagospodarowania lub warunków zabudowy (np. kąt nachylenia i typ dachu, liczba kondygnacji itp.
    • jakie inne projekty pasują na Twoją działkę – znajdziemy je dla Ciebie!

Pokoje

2

Łazienki i WC

1

Garaż

0
więcej

Filipinka I G2 (duplikat) - WRC2138

ikona2
Pokoje (bez salonu)
ikona 1
Łazienki (z toaletami)
ikona 0
Liczba stanowisk garażowych
(z wiatą garażową)

Projekt został
wycofany z oferty

W razie pytań prosimy o kontakt
z Centrum Obsługi Klienta
Konsultant Masz pytania?
Zadzwoń
71 715 20 60

pon.-pt. 8-21, sob. 9-17

Parter - 118,53 m²

Parter projektu Filipinka I G2 (duplikat)

Zapytaj, co możesz zmienić

Powierzchnia (m²)
Tooltip
Powierzchnia pomieszczenia
to ta, z której faktycznie możesz korzystać – skosy i niskie części poddasza są liczone częściowo lub wcale.
  1. 100% dla wysokości powyżej 2,2 m,
  2. 50% dla wysokości 1,4–2,2 m,
  3. nie liczymy poniżej 1,4 m.

Powierzchnia podłogi (wartość w nawiasie)
Liczymy po całym obrysie pomieszczenia, bez względu na jego wysokość.
(118,53)
118,53
1. Wiatrołap
6,44
2. Hol
7,37
3. Kuchnia
12,29
4. Jadalnia
10,88
5. Pokój dzienny
39,49
6. Toaleta
2,58
7. Korytarz
1,97
8. Pom. gospodarcze
5,01
9. Garaż
32,50

Poddasze - 86,06 m²

Poddasze projektu Filipinka I G2 (duplikat)

Zapytaj, co możesz zmienić

Powierzchnia (m²)
Tooltip
Powierzchnia pomieszczenia
to ta, z której faktycznie możesz korzystać – skosy i niskie części poddasza są liczone częściowo lub wcale.
  1. 100% dla wysokości powyżej 2,2 m,
  2. 50% dla wysokości 1,4–2,2 m,
  3. nie liczymy poniżej 1,4 m.

Powierzchnia podłogi (wartość w nawiasie)
Liczymy po całym obrysie pomieszczenia, bez względu na jego wysokość.
(86,06)
86,06
1. Korytarz
8,28
2. Sypialnia
29,80
3. Pokój
15,45
4. Pokój
12,34
5. Łazienka
8,05
6. Garderoba
2,97
7. Pom. gospodarcze
9,17

Podobne projekty (9918)

Zobacz wszystkie
NIŻSZA CENA ✂️
Zdjęcie 1 projektu Gustowny D39 wariant III WWB1101
Gustowny D39 wariant III
Dodano!
Dodano!
196,73 m²
4
2
2

4 499 zł

4 749 zł

Tooltip

Cena regularna

4 349 zł najniższa cena
Tooltip

Najniższa cena z 30 dni
przed obniżką

NIŻSZA CENA ✂️
Zdjęcie 1 projektu EG-105 WWB1134
EG-105
Dodano!
Dodano!
106,68 m²
3
2
0

4 150 zł

4 400 zł

Tooltip

Cena regularna

4 000 zł najniższa cena
Tooltip

Najniższa cena z 30 dni
przed obniżką

Zdjęcie 1 projektu Dom Nexus POZ1007
Dom Nexus
Dodano!
Dodano!
153,24 m²
3
2
2

16 500 zł

NIŻSZA CENA ✂️
Zdjęcie 1 projektu B-121 PZB1020
B-121
Dodano!
Dodano!
251,83 m²
8
4
2

9 072 zł

9 550 zł

Tooltip

Cena regularna

8 595 zł najniższa cena
Tooltip

Najniższa cena z 30 dni
przed obniżką

NIŻSZA CENA ✂️
Zdjęcie 1 projektu EG-81 WWB1099
EG-81
Dodano!
Dodano!
147,81 m²
4
2
2

4 499 zł

4 749 zł

Tooltip

Cena regularna

4 349 zł najniższa cena
Tooltip

Najniższa cena z 30 dni
przed obniżką

Zdjęcie 1 projektu Tygrysie oko WRN1567
Tygrysie oko
Dodano!
Dodano!
99,90 m²
3
2
0

3 795 zł

NIŻSZA CENA ✂️
Zdjęcie 1 projektu A-61 PZB1088
A-61
Dodano!
Dodano!
186,37 m²
3
3
2

11 352 zł

11 950 zł

Tooltip

Cena regularna

10 755 zł najniższa cena
Tooltip

Najniższa cena z 30 dni
przed obniżką

NIŻSZA CENA ✂️
Zdjęcie 1 projektu Gustowny D39 wariant II WWB1088
Gustowny D39 wariant II
Dodano!
Dodano!
145,67 m²
4
2
2

4 449 zł

4 699 zł

Tooltip

Cena regularna

4 299 zł najniższa cena
Tooltip

Najniższa cena z 30 dni
przed obniżką

Elewacje

Frontowa
Tylna
Lewa
Prawa
Autor: Pracownia Projektowa ARCHIPELAG

Dane techniczne projektu

Powierzchnie i wymiary Powierzchnie i wymiary

Energooszczędność Energooszczędność

Oze Czym jest OZE (Odnawialne Źródło Energii)?
Warunki techniczne

Projekt zgody z WT 2021

Opis projektu domu
Filipinka I G2 (duplikat)

Dom parterowy z poddaszem użytkowym niepodpiwniczony przeznaczony dla 4-6 lub nawet 7 osobowej rodziny. Dostępny w dwóch wariantach: z wejściem i wjazdem do garażu po dłuższej lub krótszej szerokości domu. Garderoba na piętrze może zostać wykorzystana na dodatkowy niewielki pokój np. komputerowy lub jako dodatkowa łazienka. Pomieszczenie nad garażem może być dodatkową sypialnią pracownią gabinetem kinem domowym lub biblioteką. Dodatkowo istnieje możliwość zrobienia antresoli na poddaszu która może być powiększeniem sypialni rodziców i dzieci następnym pokojem miejscem odpoczynku lub po prostu pomieszczeniem gospodarczym.
Czytaj więcej

Polecani producenci

Prefabrykowane konstrukcje dachowe

tło producenta

WIĄZAR POLSKA

Zobacz więcej

Sprawdź nową generację okien GREENVIEW

tło producenta

FAKRO

Sprawdź nową generację okien GREENVIEW

Styropian, tynki, farby, kleje

tło producenta

Termo Organika

Poznaj super jakość

Okna, drzwi, osłony przeciwsłoneczne

tło producenta

Aluprof

Sprawdź ofertę

Kompletne systemy rekuperacji

tło producenta

Alnor

Dowiedz się więcej

Sprawdź nowy system DACHRYNNA

tło producenta

Galeco

Sprawdź ofertę
Zobacz więcej

Społeczność projektu domu
Filipinka I G2 (duplikat) w budowie

Dołącz do społeczności osób, które budują ten dom lub są zainteresowane jego budową.

  • Oglądaj zdjęcia z budowy
  • Zadawaj pytania
  • Wymieniaj się doświadczeniami

Opinie o projekcie domu Filipinka I G2 (duplikat)

Ocena

Ten projekt nie ma jeszcze opinii, bądź pierwszy!

Dodaj opinię

ASYSTENT WYBORU PROJEKTU

Szukasz idealnego projektu? Znajdziemy go dla Ciebie!

Doradca na podstawie Twoich wskazówek przygotuje spersonalizowaną listę projektów

Graficzne opracowanie rzutów poglądowych widocznych na karcie projektu zostało wykonane przez Extradom.pl. Prezentowane przez Extradom.pl wizualizacje wykonane zostały przez autora projektu i należy poczytywać je jedynie za przykład i propozycję wykończenia, wizję architektoniczną autora projektu. Ostateczne wykończenie budynku może nastąpić na wiele sposobów. Szczegółowe rozwiązania zastosowane w oferowanej dokumentacji - w tym również ilość, lokalizacje i wygląd okien, drzwi, kominów - mogą w niewielkim stopniu różnić się od prezentowanej wizualizacji budynku.

REKLAMA
Zamknij