👉 Rozgrzewające rabaty! 🔥

Projekt domu DN 214 WAM1274

Dodano!
Dodano!

Warstwy

Warstwy

Rzut parteru

Powierzchnia (m²)
Tooltip
Powierzchnia pomieszczenia
to ta, z której faktycznie możesz korzystać – skosy i niskie części poddasza są liczone częściowo lub wcale.
  1. 100% dla wysokości powyżej 2,2 m,
  2. 50% dla wysokości 1,4–2,2 m,
  3. nie liczymy poniżej 1,4 m.

Powierzchnia podłogi (wartość w nawiasie)
Liczymy po całym obrysie pomieszczenia, bez względu na jego wysokość.
137,10
1. Wiatrołap
4,20
2. Hall
4,17
3. Garderoba
2,40
4. Spiżarnia
2
5. Kuchnia
12,40
6. Pokój dzienny
53,15
7. Pokój
12,80
8. Łazienka
4,58
9. Pomieszczenie gospodarcze
5,80
10. Garaż dwustanowiskowy
35,60
Powierzchnia (m²)
Tooltip
Powierzchnia pomieszczenia
to ta, z której faktycznie możesz korzystać – skosy i niskie części poddasza są liczone częściowo lub wcale.
  1. 100% dla wysokości powyżej 2,2 m,
  2. 50% dla wysokości 1,4–2,2 m,
  3. nie liczymy poniżej 1,4 m.

Powierzchnia podłogi (wartość w nawiasie)
Liczymy po całym obrysie pomieszczenia, bez względu na jego wysokość.
103,19
1. Korytarz
12,43
2. Łazienka
14,80
3. Pokój
14,60
4. Pokój
14,60
5. Pomieszczenie gospodarcze
6,40
6. Łazienka
9,50
7. Garderoba
6
8. Pomieszczenie gospodarcze
2,10
9. Pokój
22,76

    Usytuowanie na działce

    Czy ten projekt pasuje na
    Twoją działkę?

    Chętnie to sprawdzimy!

    Dowiedz się:

    • czy zmieści się na niej wybrany przez Ciebie dom
    • jakie parametry musi spełniać dom według miejscowego planu zagospodarowania lub warunków zabudowy (np. kąt nachylenia i typ dachu, liczba kondygnacji itp.
    • jakie inne projekty pasują na Twoją działkę – znajdziemy je dla Ciebie!

Pow. użytkowa

152,80 m²

Pokoje

4

Łazienki i WC

3

Garaż

2

Min. szer. i dł. działki

25,17 x 22,31 m

Kąt dachu

21°

Konstrukcja

Murowana
więcej

DN 214 - WAM1274

ikona 152,80 m²
Powierzchnia użytkowa
ikona4
Pokoje (bez salonu)
ikona 3
Łazienki (z toaletami)
ikona 2
Liczba stanowisk garażowych
(z wiatą garażową)
ikona
Konstrukcja: Murowana

Projekt został
wycofany z oferty

W razie pytań prosimy o kontakt
z Centrum Obsługi Klienta
Konsultant Masz pytania?
Zadzwoń
71 715 20 60

pon.-pt. 8-21, sob. 9-17

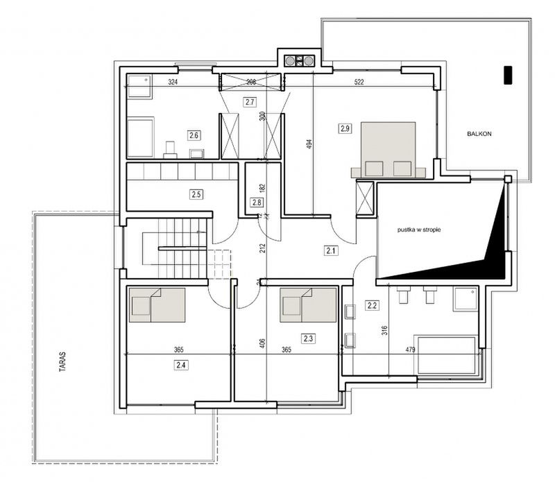
Parter - 137,10 m²

Parter projektu DN 214

Zapytaj, co możesz zmienić

Powierzchnia (m²)
Tooltip
Powierzchnia pomieszczenia
to ta, z której faktycznie możesz korzystać – skosy i niskie części poddasza są liczone częściowo lub wcale.
  1. 100% dla wysokości powyżej 2,2 m,
  2. 50% dla wysokości 1,4–2,2 m,
  3. nie liczymy poniżej 1,4 m.

Powierzchnia podłogi (wartość w nawiasie)
Liczymy po całym obrysie pomieszczenia, bez względu na jego wysokość.
(137,10)
137,10
1. Wiatrołap
4,20
2. Hall
4,17
3. Garderoba
2,40
4. Spiżarnia
2
5. Kuchnia
12,40
6. Pokój dzienny
53,15
7. Pokój
12,80
8. Łazienka
4,58
9. Pomieszczenie gospodarcze
5,80
10. Garaż dwustanowiskowy
35,60

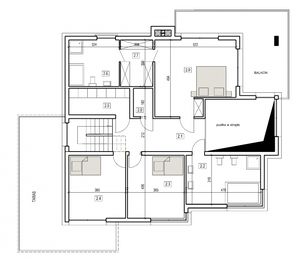
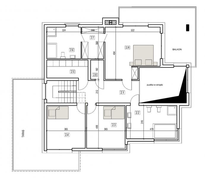
Piętro 1 - 103,19 m²

Piętro 1 projektu DN 214

Zapytaj, co możesz zmienić

Powierzchnia (m²)
Tooltip
Powierzchnia pomieszczenia
to ta, z której faktycznie możesz korzystać – skosy i niskie części poddasza są liczone częściowo lub wcale.
  1. 100% dla wysokości powyżej 2,2 m,
  2. 50% dla wysokości 1,4–2,2 m,
  3. nie liczymy poniżej 1,4 m.

Powierzchnia podłogi (wartość w nawiasie)
Liczymy po całym obrysie pomieszczenia, bez względu na jego wysokość.
(103,19)
103,19
1. Korytarz
12,43
2. Łazienka
14,80
3. Pokój
14,60
4. Pokój
14,60
5. Pomieszczenie gospodarcze
6,40
6. Łazienka
9,50
7. Garderoba
6
8. Pomieszczenie gospodarcze
2,10
9. Pokój
22,76

Podobne projekty (7326)

Zobacz wszystkie
NIŻSZA CENA ✂️
Zdjęcie 1 projektu AJR 21 A2 WOJ1011
AJR 21 A2
Dodano!
Dodano!
180,70 m²
5
3
2

6 200 zł

6 500 zł

Tooltip

Cena regularna

6 100 zł najniższa cena
Tooltip

Najniższa cena z 30 dni
przed obniżką

NIŻSZA CENA ✂️
Zdjęcie 1 projektu Przestronny D40 wariant I WWC1030
Przestronny D40 wariant I
Dodano!
Dodano!
155,72 m²
4
3
2

5 299 zł

5 599 zł

Tooltip

Cena regularna

5 099 zł najniższa cena
Tooltip

Najniższa cena z 30 dni
przed obniżką

NIŻSZA CENA ✂️
Zdjęcie 1 projektu AJR_27_A2 WOJ1009
AJR_27_A2
Dodano!
Dodano!
173,40 m²
5
1
2

6 000 zł

6 300 zł

Tooltip

Cena regularna

5 900 zł najniższa cena
Tooltip

Najniższa cena z 30 dni
przed obniżką

NIŻSZA CENA ✂️
Zdjęcie 1 projektu Dom z widokiem 5 wariant B WAH1926
Dom z widokiem 5 wariant B
Dodano!
Dodano!
146,25 m²
4
3
2

6 952 zł

8 690 zł

Tooltip

Cena regularna

6 517 zł najniższa cena
Tooltip

Najniższa cena z 30 dni
przed obniżką

NIŻSZA CENA ✂️
Zdjęcie 1 projektu Emilian WOE1011
Emilian
Dodano!
Dodano!
167,76 m²
5
3
2

4 699 zł

4 799 zł

Tooltip

Cena regularna

4 599 zł najniższa cena
Tooltip

Najniższa cena z 30 dni
przed obniżką

Zdjęcie 1 projektu Domena 311 B WRW1287
Domena 311 B
Dodano!
Dodano!
147,76 m²
4
2
2

4 900 zł

NIŻSZA CENA ✂️
Zdjęcie 1 projektu Domidea 104d 2G WAC1094
Domidea 104d 2G
Dodano!
Dodano!
173,99 m²
4
3
2

6 957 zł

7 257 zł

Tooltip

Cena regularna

6 957 zł najniższa cena
Tooltip

Najniższa cena z 30 dni
przed obniżką

NIŻSZA CENA ✂️
Zdjęcie 1 projektu APS 274 + 2G LUA1371
APS 274 + 2G
Dodano!
Dodano!
170,10 m²
5
2
2

5 399 zł

5 899 zł

Tooltip

Cena regularna

5 349 zł najniższa cena
Tooltip

Najniższa cena z 30 dni
przed obniżką

Dane techniczne projektu

Powierzchnie i wymiary Powierzchnie i wymiary

Powierzchnia użytkowa
Tooltip
Suma powierzchni wszystkich pomieszczeń mieszkalnych, pomniejszona o pow. garażu, kotłowni, strychu, piwnicy. Jest liczona w 100% dla pomieszczeń o wysokości powyżej 2,2 m, w 50% dla pomieszczeń o wys. 2,2-1,4 m i niewliczana dla niższych niż 1,4 m.

152,80 m²

Powierzchnia zabudowy
Tooltip
Powierzchnia zajmowana przez część na- oraz nadziemną budynku liczona, jako rzut pionowy budynku na działkę.

189 m²

Kąt nachylenia dachu
Tooltip
Nachylenie połaci dachu głównego podawane w stopniach. Uwaga! W niektórych projektach występuje więcej niż jedno nachylenie dachu.

21°

Wysokość budynku
Tooltip
Wysokość liczona od części budynku położonej najniżej przy powierzchni terenu do najwyższego punktu dachu (kalenicy) z wyłączeniem kominów.

9,20 m

Min. szerokość działki
Tooltip
Najmniejsza możliwa szerokość działki niezbędna do wybudowania wybranego domu. Składa się z szerokości elewacji domu powiększonej z obu stron o 3 m dla ściany bez otworów drzwiowych/okiennych lub 4 m, dla ściany z otworami.

25,17 m

Min. długość działki
Tooltip
Najmniejsza możliwa długość działki niezbędna do wybudowania wybranego domu. Składa się z długości elewacji domu powiększonej z obu stron o 3 m dla ściany bez otworów drzwiowych/okiennych lub 4 m, dla ściany z otworami.

22,31 m

Energooszczędność Energooszczędność

Oze Czym jest OZE (Odnawialne Źródło Energii)?
Warunki techniczne

Projekt zgody z WT 2021

Technologia i konstrukcja Technologia i konstrukcja

Konstrukcja

Murowana

Opis szczegółowy

Propozycje materiałowe: Ściany: beton komórkowy, ceramika, silikaty Strop: żelbetowy Dach: dachówka, blachodachówka, blacha Instalacja grzewcza: gaz/paliwo stałe, pompa ciepła, panele fotowoltaiczne.

Reklama
Okna i drzwi tarasowe

Nowoczesne okna PVC i aluminiowe WIŚNIOWSKI – doskonała izolacja, elegancki design i niezrównana trwałość.

Wiśniowski
Sprawdź parametry!
Okna dachowe

Oferujemy bezpłatne konsultacje w zakresie wszystkich rozwiązań VELUX. Wyceny, porady dotyczące doboru okien i rolet zewnętrznych - sprawdź!

Velux
Sprawdź szczegóły
Dach

Producent stalowych pokryć dachowych i elewacyjnych - 40 lat doświadczenia. Zbuduj solidny dach z nami!

Blachy Pruszyński
Sprawdź szczegóły
Płytki ceramiczne i gresy

Od małych formatów po wielkoformatowe gresy. Marmur, beton, drewno, kamień, lastryko czy cegiełki zamówisz wygodnie online z szybką dostawą.

Ceramzet
Sprawdź ofertę
Drzwi

Ciepłe drzwi WIŚNIOWSKI z kontrolą dostępu. Szeroka gama wzorów i kolorów.

Wiśniowski
Wybierz najlepsze
Bramy garażowe

Automatyczne bramy garażowe segmentowe i uchylne WIŚNIOWSKI na wymiar i z systemem smart home w standardzie.

Wiśniowski
Sprawdź ofertę!
Armatura i ceramika łazienkowa

Topowi producenci. Baterie łazienkowe, zestawy natynkowe i podtynkowe, umywalki, wanny, miski WC oraz kabiny zamówisz kompleksowo online.

Ceramzet II
Dowiedz się więcej
Rekuperacja

Alnor - kompletny system rekuperacji. Dobierz idealne rozwiązanie dla Twojego domu!

Alnor
Dobierz rekuperator
Gruntowe pompy ciepła

Przeprowadzimy kompletną instalację najbardziej oszczędnego źródła ciepła w Twoim nowym domu - gruntowej pompy ciepła. Od dokumentacji, pozwoleń, po odwierty i instalację.

Geothermal Solutions
Dowiedz się więcej

Gotowe domy modułowe (113)

Zobacz wszystkie
Stan deweloperski nawet w 6 miesięcy Gwarancja stałej ceny
Zdjęcie 1 projektu Dom prefabrykowany Stodoła 150C HFX1026
Pow. użytkowa
152,90 m²
Pokoje
5
589 000 zł 3 852 zł/m²
Zdjęcie 1 projektu Dom prefabrykowany Stodoła 150A HFX1024
Pow. użytkowa
152,20 m²
Pokoje
5
589 000 zł 3 870 zł/m²
Zdjęcie 1 projektu Dom prefabrykowany Stodoła 150B HFX1025
Pow. użytkowa
151,30 m²
Pokoje
4
589 000 zł 3 893 zł/m²
Zdjęcie 1 projektu Dom prefabrykowany P.2 HPK1001
Pow. użytkowa
159,18 m²
Pokoje
5
832 200 zł 5 228 zł/m²
Zdjęcie 1 projektu Dom szkieletowy Open Sky 195 HHT1029
Pow. użytkowa
145,04 m²
Pokoje
4
940 300 zł 6 483 zł/m²
Zdjęcie 1 projektu Dom prefabrykowany P.4 bez okapu HPK1003
Pow. użytkowa
162,18 m²
Pokoje
4
701 000 zł 4 322 zł/m²
Zdjęcie 1 projektu Dom prefabrykowany P.4 z okapem HPK1014
Pow. użytkowa
162,18 m²
Pokoje
5
710 500 zł 4 381 zł/m²
Zdjęcie 1 projektu Dom szkieletowy Viking Smart 220 HHT1032
Pow. użytkowa
163,86 m²
Pokoje
4
1 095 606 zł 6 686 zł/m²

Opis projektu domu
DN 214

Projekt domu piętrowego DN 214 z obszernym garażem, z dachem kopertowym, z tarasem, z antresolą, sprawdź!
Czytaj więcej

Polecani producenci

Prefabrykowane konstrukcje dachowe

tło producenta

WIĄZAR POLSKA

Zobacz więcej

Sprawdź nową generację okien GREENVIEW

tło producenta

FAKRO

Sprawdź nową generację okien GREENVIEW

Styropian, tynki, farby, kleje

tło producenta

Termo Organika

Poznaj super jakość

Okna, drzwi, osłony przeciwsłoneczne

tło producenta

Aluprof

Sprawdź ofertę

Kompletne systemy rekuperacji

tło producenta

Alnor

Dowiedz się więcej

Sprawdź nowy system DACHRYNNA

tło producenta

Galeco

Sprawdź ofertę
Zobacz więcej

Społeczność projektu domu
DN 214 w budowie

Dołącz do społeczności osób, które budują ten dom lub są zainteresowane jego budową.

  • Oglądaj zdjęcia z budowy
  • Zadawaj pytania
  • Wymieniaj się doświadczeniami

Opinie o projekcie domu DN 214

Ocena

Ten projekt nie ma jeszcze opinii, bądź pierwszy!

Dodaj opinię

ASYSTENT WYBORU PROJEKTU

Szukasz idealnego projektu? Znajdziemy go dla Ciebie!

Doradca na podstawie Twoich wskazówek przygotuje spersonalizowaną listę projektów

Graficzne opracowanie rzutów poglądowych widocznych na karcie projektu zostało wykonane przez Extradom.pl. Prezentowane przez Extradom.pl wizualizacje wykonane zostały przez autora projektu i należy poczytywać je jedynie za przykład i propozycję wykończenia, wizję architektoniczną autora projektu. Ostateczne wykończenie budynku może nastąpić na wiele sposobów. Szczegółowe rozwiązania zastosowane w oferowanej dokumentacji - w tym również ilość, lokalizacje i wygląd okien, drzwi, kominów - mogą w niewielkim stopniu różnić się od prezentowanej wizualizacji budynku.

REKLAMA
Zamknij