👉 Odbierz prezent 🎁

Koniec oferty za:

0dni

00godz.

00min.

00sek.

Sprawdź

Dom prefabrykowany MP6

HED1010

Dodaj

Dodano!

Porównaj

Dodano!

Drukuj

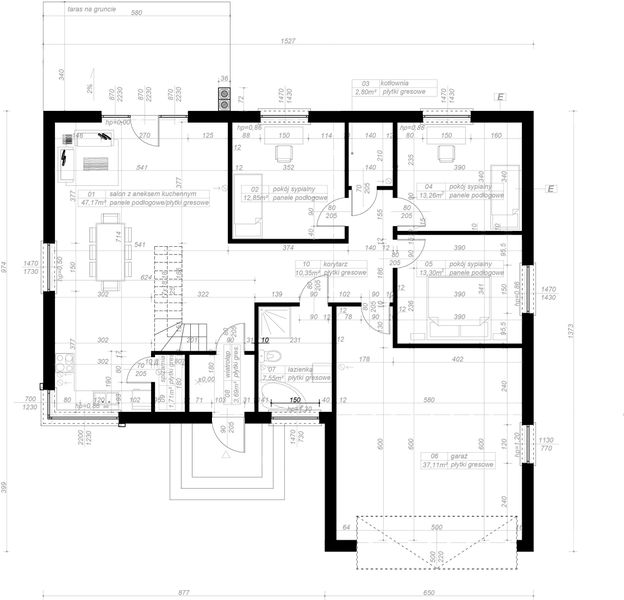
Rzut parteru

Powierzchnia (m²)
Tooltip
Powierzchnia pomieszczenia
to ta, z której faktycznie możesz korzystać – skosy i niskie części poddasza są liczone częściowo lub wcale.
  1. 100% dla wysokości powyżej 2,2 m,
  2. 50% dla wysokości 1,4–2,2 m,
  3. nie liczymy poniżej 1,4 m.

Powierzchnia podłogi (wartość w nawiasie)
Liczymy po całym obrysie pomieszczenia, bez względu na jego wysokość.
149,80
1. Pokój dzienny + jadalnia + kuchnia
44,40
2. Pokój
14,90
3. Garderoba
2,80
4. Pokój
13,30
5. Pokój
13,30
6. Garaż jednostanowiskowy
37,10
7. Łazienka
7,60
8. Wiatrołap
3,70
9. Spiżarnia
1,70
10. Korytarz
11

Pow. użytkowa

113 m²

Pow. zabudowy

176 m²

Pokoje

3

Łazienki i WC

1

Garaż

1

Kąt dachu

30°

Min. szer. i dł. działki:

23,27 m x 21,73 m

Technologia

Prefabrykat keramzytowy

więcej

Cena
Tooltip

8% VAT dla klienta
indywidualnego, 23% VAT dla
firmy. Cena za metr wyliczana
na podstawie powierzchni netto
lub powierzchni użytkowej.

Brutto
Netto
Cena
Tooltip

8% VAT dla klienta
indywidualnego, 23% VAT dla
firmy. Cena za metr wyliczana
na podstawie powierzchni netto
lub powierzchni użytkowej.

Brutto
Netto
Stan deweloperski
Tooltip

Szczegóły zakresu podstawowego znajdziesz
w opisie.

519 000 zł

3 473 zł/m²

Skonfiguruj dom

Skonfiguruj dom

Fundamenty

od 63 000 zł

Wolne terminy!
Umów wizytę w
domu pokazowym
  • Jak wygląda proces budowy?
  • Ile trwa budowa i jakie terminy są dostępne?
  • Jak się mieszka w takim domu!
RZUTY

Rozmieszczenie
pomieszczeń

Parter - 149,80 m²

Parter projektu Dom prefabrykowany MP6
Powierzchnia (m²)
Tooltip
Powierzchnia pomieszczenia
to ta, z której faktycznie możesz korzystać – skosy i niskie części poddasza są liczone częściowo lub wcale.
  1. 100% dla wysokości powyżej 2,2 m,
  2. 50% dla wysokości 1,4–2,2 m,
  3. nie liczymy poniżej 1,4 m.

Powierzchnia podłogi (wartość w nawiasie)
Liczymy po całym obrysie pomieszczenia, bez względu na jego wysokość.
(149,80)
149,80
1. Pokój dzienny + jadalnia + kuchnia
44,40
2. Pokój
14,90
3. Garderoba
2,80
4. Pokój
13,30
5. Pokój
13,30
6. Garaż jednostanowiskowy
37,10
7. Łazienka
7,60
8. Wiatrołap
3,70
9. Spiżarnia
1,70
10. Korytarz
11

Podoba Ci się dom, ale chciałbyś dokonać pewnych zmian?

  • Możesz zmienić kolor i materiał elewacji
  • Możesz zmienić funkcję i układ pomieszczeń
Konsultant

Skontaktuj się z nami - przygotujemy bezpłatną ofertę dla Ciebie

71 718 89 70

pon.-pt. 08:00 - 19:00

PODSTAWOWE INFORMACJE

Solidny i ciepły dom z keramzytu

icon
Prefabrykat keramzytowy
icon
5 lat gwarancji
icon
Realizacja w 120 dni
icon
W kształcie litery L
DOM NA PLANIE "L"
Nowoczesność i funkcjonalność

Prosty dom z kopertowym dachem i wbudowanym w bryłę garażem - taki właśnie jest dom gotowy  MP6. To właśnie minimalistyczne wykończenie sprawia, że budynek będzie wyglądał nowocześnie przez kolejne dekady. Dom zaprojektowano na planie litery L.

Na powierzchni 113 m2 zaplanowano użyteczną przestrzeń, która spełni wymagania nie tylko pary, ale także rodziny z dzieckiem.

Dom prefabrykowany MP6 - HED1010
ZAKRES REALIZACJI DO WYBORU

Wybierz wariant dopasowany do Twoich potrzeb

Zakres podstawowy

Ekonomiczne rozwiązanie, idealne dla osób, które chcą mieć wpływ na wykończenie swojego domu. Otrzymujesz solidną konstrukcję, którą dopasujesz do swoich potrzeb.

Zakres PODSTAWOWY obejmuje:

  • ściany zewnętrzne i wewnętrzne w technologii ciepłych, ceramicznych ścian z keramzytu,
  • konstrukcję dachową w technologii MITEK,
  • pokrycie dachu dachówką CREATON z orynnowaniem,
  • strop drewniany,
  • okna i parapety wewnętrzne,
  • drzwi zewnętrzne,
  • instalację elektryczną z uzbrojoną rozdzielnią,
  • instalację C.O. - ogrzewanie podłogowe i grzejniki,
  • instalację wodno-kanalizacyjną, punkty wod-kan w wyznaczonych miejscach,
  • instalację centralnego odkurzacza (bez jednostki ssącej),
  • rozprowadzenie instalacji pod „inteligentny dom”,
  • ocieplone posadzki betonowe,
  • wyprowadzenie instalacji elektrycznej na zewnątrz (zasilanie bramy wjazdowej, oświetlenia itp.),
  • montaż domu na działce.

Opcje dodatkowe:

  • wykonanie fundamentów,
  • adaptacja poddasza - o szczegóły zapytaj doradcę.
Dom prefabrykowany MP6 - HED1010
Zakres rozszerzony

Opcja dla tych, którzy które cenią sobie czas i wygodę. Otrzymujesz częściowo wykończony dom i możesz szybciej przejść do etapu jego urządzania.

Zakres ROZSZERZONY obejmuje dodatkowo:

  • ocieplenie stropu i sufitu z płyt G-K,
  • ocieplenie i otynkowanie elewacji,
  • podbitkę,
  • montaż parapetów zewnętrznych.

Po stronie inwestora pozostaje:

  • zabudowa poddasza wraz z ociepleniem i ściankami działowymi,
  • rozprowadzenie instalacji elektrycznej, C.O. i wodno-kanalizacyjnej na piętrze,
  • położenie gładzi.
Dom prefabrykowany MP6 - HED1010
ARCHITEKTURA I ZASTOSOWANIE
Przykuwający oko design

MP6 zachwyca doświetlonym ustawnym salonem z otwartą kuchnią i wygodną jadalnią. Bezpośrednio z salonu można wyjść na taras. W domu zaprojektowano również przydatną spiżarnię i garderobę.

Trzy duże sypialnie i spora, wygodna łazienka uzupełniają przestrzeń. 37-metrowy garaż pomieści rodzinne auto, narzędzia ogrodnicze czy rowery.

Dom prefabrykowany MP6 - HED1010
Dom prefabrykowany MP6 - HED1010

3 sypialnie

Dom prefabrykowany MP6 - HED1010

Spiżarnia

Dom prefabrykowany MP6 - HED1010

Garaż jednostanowiskowy

DOM Z PREFABRYKATU KERAMZYTOWEGO
Jaki będzie Twój nowy dom?

Dom z prefabrykatów keramzytowych MP6 - dom na lata szybki w budowie. Poznaj jego pozostałe zalety:

  • Solidna, monolityczna konstrukcja: precyzyjne wykonanie elementów, niewielka liczba łączeń, profesjonalny montaż.
  • Doskonała izolacyjność termiczna: łatwiej utrzymasz optymalną temperaturę w swoim domu i oszczędzisz na ogrzewaniu.
  • Odporność: keramzytobeton jest całkowicie niepalny, odporny na szkodniki, wilgoć i zmiany.
  • Dobra akustyka: doskonale izoluje dźwięki, co przekłada się na Twój komfort życia.
  • Zysk metrażu: cieńsze ściany to większa pow. użytkowa niż w domu murowanym przy takiej samej pow. zabudowy.
  • Łatwość wykończenia: gładkie i proste ściany, które nie wymagają tynków wewnętrznych.
  • Ekologia: keramzyt to tworzywo naturalne, produkcja pochłania mniej energii i generuje mniej odpadów.
  • Lekkość: keramzytobeton ma niską masę a konstrukcja lepiej przenosi obciążenia

Więcej

Dom prefabrykowany MP6 - HED1010

Analiza działki

Czy ten dom pasuje na Twoją działkę? Chętnie to sprawdzimy!

  • Czy wybrany dom zmieści się na Twojej działce?
  • Czy spełnia parametry wg MPZT lub WZ?
ZOBACZ TECHNOLOGIĘ NA WŁASNE OCZY
Odwiedź dom pokazowy!

Odwiedź dom pokazowy i przekonaj się na własne oczy:

  • jak wygląda proces budowy takiego domu 
  • ile trwa budowa i jakie terminy są dostępne
  • jak mieszka się w takim domu! 

Zapisz się na DRZWI OTWARTE! Skontaktuj się z nami - podamy Ci najbliższy termin i wpiszemy Cię na listę uczestników. Napisz wiadomość na adres e-mail: domygotowe@extradom.pl lub zadzwoń: 71 715 20 69. Do zobaczenia!

Dom prefabrykowany MP6 - HED1010
TECHNOLOGIA I KONSTRUKCJA

Dom z prefabrykatów keramzytowych

Proces produkcji prefabrykatów keramzytowych

Znana od lat i popularna w Europie technologia ścian ceramicznych bazuje na keramzycie – lekkim kruszywie budowlanym, wypalanym z oczyszczonej gliny w temperaturze ok. 1200ºC. W procesie wypalania uzyskuje się okrągłe, porowate bryłki, pokryte twardą, ceramiczną powłoką w kolorze czerwono-brązowym. Łączy się je z betonem, dzięki czemu powstaje wyjątkowo lekki i wytrzymały materiał do produkcji poszczególnych elementów konstrukcyjnych — keramzytobeton. Prefabrykaty keramzytobetonowe są zbrojone i wyposażone w niezbędne otwory, w tym pod instalacje.

Dom prefabrykowany MP6 - HED1010
Szybka budowa z prefabrykatów keramzytobetonowych

Wzniesienie domu na działce z prefabrykatów keramzytowych trwa kilka dni. Moment ten poprzedza jednak ok. 3-miesięczny proces produkcji ścian w fabryce. Po tym czasie gotowe części są transportowane na plac budowy, gdzie dokonuje się ich montażu na wcześniej przygotowanej płycie fundamentowej.

Ściany są mocowane do płyty i łączone za pomocą specjalnych elementów i spoin betonowych. Gotową konstrukcję wieńczy dach na drewnianych wiązarach, tworzących więźbę dachową i strop. Pokrycie dachowe wykonane jest z dachówki ceramicznej.

Grubość ścian z keramzytobetonu wynosi 15 cm dla ścian zewnętrznych i 10 cm dla ścian wewnętrznych. Cieńsze ściany to większa powierzchnia użytkowa niż w domach murowanych, przy tej samej powierzchni zabudowy. Zewnętrzne ściany są dodatkowo ocieplane styropianem.

Dom prefabrykowany MP6 - HED1010
Precyzyjna konstrukcja i szybkie wykończenie

Elementy prefabrykowane przygotowywane są z dużą precyzją, co pozwala uniknąć błędów wykonawczych i zminimalizować większość mostków termicznych. Nie muszą być również sezonowane – osiągają swoją pełną wytrzymałość, zanim trafią na plac budowy.

Po zakończeniu montażu ścian i przykryciu dachu można natychmiast przystąpić do dalszych prac: montażu stolarki otworowej, wykonania posadzek, sufitów, adaptacji poddasza, wykonania elewacji, rozprowadzenia instalacji i przygotowania ścian do wykończenia. W związku z tym, że elementy prefabrykowane mają doskonale gładką powierzchnię, nie wymagają tynkowania.

Wykończenie domu jest szybsze i prostsze.

Dom prefabrykowany MP6 - HED1010
Zdrowy, ciepły, bezpieczny i ekologiczny dom

Produkcja keramzytobetonu jest energooszczędna i przyjazna dla środowiska – w procesie jego wytwarzania nie powstają żadne odpady, a sam keramzyt jest materiałem naturalnym. Keramzytobeton jest również w pełni recyklingowalny.

Kruszywo to należy do materiałów niepalnych, obojętnych chemicznie, odpornych na wodę, działanie pleśni, grzybów i gryzoni. Ta wytrzymałość na działanie czynników zewnętrznych zwiększa bezpieczeństwo mieszkańców i trwałość budynku, którą szacuje się nawet na 200-300 lat.

Keramzyt ma doskonałe właściwości termoizolacyjne i wysoką dźwiękochłonność. Mieszkańcy nie odczują gwałtownych zmian temperatur w budynku. Dom jest ciepły zimą a chłodny latem.

Dom prefabrykowany MP6 - HED1010
Dane techniczne

Specyfikacja

Powierzchnie i wymiary Powierzchnie i wymiary

Powierzchnia użytkowa
Tooltip
Suma powierzchni wszystkich pomieszczeń mieszkalnych, pomniejszona o pow. garażu, kotłowni, strychu, piwnicy. Jest liczona w 100% dla pomieszczeń o wysokości powyżej 2,2 m, w 50% dla pomieszczeń o wys. 2,2-1,4 m i niewliczana dla niższych niż 1,4 m.

113 m²

Powierzchnia zabudowy
Tooltip
Powierzchnia zajmowana przez część na- oraz nadziemną budynku liczona, jako rzut pionowy budynku na działkę.

176 m²

Powierzchnia netto
Tooltip
Powierzchna wszystkich pomieszczeń w budynku mierzona na wysokości podłogi.

149,46 m²

Kąt nachylenia dachu
Tooltip
Nachylenie połaci dachu głównego podawane w stopniach. Uwaga! W niektórych projektach występuje więcej niż jedno nachylenie dachu.

30°

Wysokość budynku
Tooltip
Wysokość liczona od części budynku położonej najniżej przy powierzchni terenu do najwyższego punktu dachu (kalenicy) z wyłączeniem kominów.

6,83 m

Szerokość elewacji

15,27 m

Długość elewacji

13,73 m

Min. szerokość działki
Tooltip
Najmniejsza możliwa szerokość działki niezbędna do wybudowania wybranego domu. Składa się z szerokości elewacji domu powiększonej z obu stron o 3 m dla ściany bez otworów drzwiowych/okiennych lub 4 m, dla ściany z otworami.

23,27 m

Min. długość działki
Tooltip
Najmniejsza możliwa długość działki niezbędna do wybudowania wybranego domu. Składa się z długości elewacji domu powiększonej z obu stron o 3 m dla ściany bez otworów drzwiowych/okiennych lub 4 m, dla ściany z otworami.

21,73 m

Energooszczędność Energooszczędność

Ogrzewanie

ogrzewanie podłogowe

Wentylacja

grawitacyjna

Technologia i materiały Technologia i materiały

Posadowienie budynku

po stronie klienta lub opcja dodatkowo płatna: płyta fundamentowa

Ściany zewnętrzne

keramzyt

Ściany wewnętrzne

keramzyt

Strop nad parterem

drewniany

Konstrukcja dachu

drewniana, system MitTek

Pokrycie dachu

dachówka betonowa

Instalacje dodatkowe w
standardzie

ogrzewanie podłogowe

DOMY GOTOWE

Zbuduj swój dom w 3 prostych krokach

Wybierasz dom,
przygotowujemy ofertę

Konfigurujemy i tworzymy dla Ciebie bezpłatną ofertę. Pomagamy w weryfikacji działki.

Podpisujesz umowę, rusza produkcja

Podpisujesz umowę z naszym partnerem na produkcję i montaż Twojego domu. Nie martwisz się o terminy i znasz koszty budowy.

Ciesz się swoim domem

W zależności od wybranej technologii budowy, Producent albo przywiezie gotowe elementy na Twoją działkę, albo – w przypadku metody murowanej - rozpocznie proces budowy domu od podstaw. Tobie pozostaną już tylko wewnętrzne prace wykończeniowe.

Dom w 3 krokach

NIE CZEKAJ DŁUŻEJ!

Pomożemy Ci zrealizować marzenie o domu - nawet w 3 miesiące!

Ikona zadzwoń

Zadzwoń

71 71 88 970

pon.-pt. 8:00-19:00

Zadzwoń teraz
Ikona list

Napisz do nas:

domygotowe@extradom.pl
lub
Wolne terminy!

Zobacz na żywo nasz gotowy dom!

Zanim podejmiesz decyzję, spotkaj się z nami na budowie i zobacz, jak realizowana jest taka inwestycja. Dzięki temu:

  • Dowiesz się, jak wygląda budowa i efekt finalny.
  • Skonsultujesz swoje pomysły z naszym ekspertem

Zobacz podobne domy gotowe

1

/

3

Zdjęcie Dom szkieletowy Forest Smart 120
Pow. użytkowa
113,18 m²
Pow. zabudowy
157,50 m²
Pokoje
4
535 459 zł 4 730 zł/m²
Zdjęcie Dom prefabrykowany Parterowy 110C
Pow. użytkowa
112,16 m²
Pow. zabudowy
133,40 m²
Pokoje
4
465 000 zł 4 146 zł/m²
Zdjęcie Dom szkieletowy Moly Smart 112
Pow. użytkowa
112 m²
Pow. zabudowy
136 m²
Pokoje
3
553 375 zł 4 941 zł/m²
Bez pozwolenia
Zdjęcie Dom szkieletowy Family Smart 70
Pow. użytkowa
111,77 m²
Pow. zabudowy
70 m²
Pokoje
5
534 125 zł 5 046 zł/m²
Zdjęcie Dom prefabrykowany Parterowy 110B
Pow. użytkowa
111,33 m²
Pow. zabudowy
133,40 m²
Pokoje
4
465 000 zł 4 177 zł/m²
Zdjęcie Dom modułowy Harmony
Dom modułowy Harmony
Dodano!
Dodano!
Pow. użytkowa
114,80 m²
Pow. zabudowy
85,28 m²
Pokoje
4
512 000 zł 3 853 zł/m²
Zdjęcie Dom prefabrykowany Parterowy 110A
Pow. użytkowa
110,71 m²
Pow. zabudowy
133,40 m²
Pokoje
3
465 000 zł 4 200 zł/m²
Zdjęcie Dom prefabrykowany P.13 z dachem płaskim bez garażu
Pow. użytkowa
115,39 m²
Pow. zabudowy
139,50 m²
Pokoje
3
616 100 zł 5 339 zł/m²
Zdjęcie Dom prefabrykowany P.13 z dachem kopertowym bez garażu
Pow. użytkowa
115,39 m²
Pow. zabudowy
139,50 m²
Pokoje
3
616 100 zł 5 339 zł/m²
Zdjęcie Dom prefabrykowany P.13 z dachem kopertowym z garażem
Pow. użytkowa
115,39 m²
Pow. zabudowy
180,75 m²
Pokoje
3
730 400 zł 6 330 zł/m²
Zdjęcie Dom prefabrykowany P.13 z dachem płaskim z garażem
Pow. użytkowa
115,39 m²
Pow. zabudowy
180,75 m²
Pokoje
3
730 400 zł 6 330 zł/m²
Zdjęcie Dom keramzytowy EP1
Dom keramzytowy EP1
Dodano!
Dodano!
Pow. użytkowa
110,58 m²
Pow. zabudowy
131,86 m²
Pokoje
3
440 500 zł 3 984 zł/m²

Graficzne opracowanie rzutów poglądowych widocznych na karcie projektu zostało wykonane przez Extradom.pl. Prezentowane przez Extradom.pl wizualizacje wykonane zostały przez autora projektu i należy poczytywać je jedynie za przykład i propozycję wykończenia, wizję architektoniczną autora projektu. Ostateczne wykończenie budynku może nastąpić na wiele sposobów. Szczegółowe rozwiązania zastosowane w oferowanej dokumentacji - w tym również ilość, lokalizacje i wygląd okien, drzwi, kominów - mogą w niewielkim stopniu różnić się od prezentowanej wizualizacji budynku.

Extradom.pl Spółka z ograniczoną odpowiedzialnością z siedzibą przy ul. Jaworskiej 13, 53-612 Wrocław, wpisana do rejestru przedsiębiorców Krajowego Rejestru Sądowego przez Sąd Rejonowy dla Wrocławia-Fabrycznej we Wrocławiu, VI Wydział Gospodarczy Krajowego Rejestru Sądowego do pod numerem KRS 0000648746, numer NIP 895-17-18-333, o kapitale zakładowym 708 150,00 zł uprzejmie informuje, iż poprzez serwis Extradom.pl umożliwia m.in. zapoznanie się przez konsumentów z ofertą handlową Partnerów Extradom.pl, którzy stosują metody budowy domów przy wykorzystaniu różnego rodzaju technologie prefabrykacji bądź modułowe (tzw. „Gotowe domy”).

Extradom.pl nie prowadzi jednakże sprzedaży ani nie oferuje usług polegających na doradztwie finansowym, prawnym ani podatkowym w zakresie inwestycji realizowanych w technologiach tzw. „Gotowych domów”. Informacje prezentowane w serwisie Extradom.pl dotyczące Partnerów Extradom.pl oferujących realizację inwestycji w technologiach „Gotowych domów” lub podobnych mają charakter informacyjny i reklamowy.

Prezentowane w serwisie Extradom.pl informacje dotyczące stosowanych przez Partnerów metod budowy domów w technologii prefabrykacji bądź modułowej pochodzą od Partnerów Extradom.pl.

Extradom.pl sp. z o.o. jedynie umożliwia nawiązanie kontaktu przez Użytkownika z Partnerem Extradom.pl stosującym tego rodzaju technologie budowy domów i nie jest stroną umowy o roboty budowlane zawieranej przez Użytkownika Extradom.pl z Partnerem Extradom.pl.

Zadzwoń i poproś
o bezpłatną wycenę

71 718 89 70
REKLAMA
Zamknij